東急不動産 ブランズタワー文京小日向 Concept 「茗荷谷」駅 徒歩7分、近隣には桜の名所 播磨坂桜並木、空へと溶け込むプレミアムピュアホワイトの外観デザイン、都心を見晴らす高台にそびえるタワーマンション

ブランズタワー文京小日向

山手、都心を見晴らす高台、江戸時代から続く由緒ある邸宅地

「茗荷谷」駅 徒歩7分

地上22階、総戸数81戸のタワーマンション

2025.04.11 公開

LOCATION ロケーション

小石川台地の中心
住宅地にありながら
自然に近い環境

ブランズタワー文京小日向は総面積約4000㎡の規模で進められた複合開発街区事業の一環として建てられました。タワーの下層にはポルシェ認定中古車センターが、隣にはレクサス小石川販売が店舗を構える商住一体型の新街区の一部となっています。

春日通り沿いは茗荷谷駅周辺から続く商業地帯とマンションが混在するエリアとなっています。この一帯は小石川台地の上部に位置しますが、江戸の昔から小石川の中心とされる伝通院周辺から茗荷谷駅の先の不忍通りとの交差点を過ぎるまでは平坦な土地が続き、本来の意味での江戸の山の手の一部でもありました。一方、春日通りの左右から少し外れると坂道が現れ、ここが台地の最上部にあることを思い出させてくれます。タワーからは昼は小石川植物園、皇居の緑、夜は新宿・池袋・東京ドームの夜景が楽しめるでしょう。

秋の播磨坂
秋の播磨坂

小日向側の急な坂と比べ小石川側の坂は比較的緩やかです。マンションの左斜向かいにある播磨坂はかつてこの地に常陸府中藩松平播磨守の屋敷があったことから名づけられました。400メートルに及ぶ桜の並木が続き、毎年春には文京さくらまつりが開催され、多くの地元の人々でにぎわいをみせます。坂の左右にはテラス席を備えるお店もあり、ランチやティータイムを楽しめます。

その先には小石川植物園の広大な庭園があり、季節の花々を楽しめます。

小石川植物園 梅林
小石川植物園 梅林

付近の主な商業の中心は徒歩7分の東京メトロ「茗荷谷」駅前になりますが、タワーの向かいには古くから地元で愛されているスーパー三徳茗荷谷店があり、日常の食品の購入には困りません。

ブランズタワー文京小日向の建つ土地は1966年の住居表示の実施前までは近隣の東京教育大学竹早中等高等学校や竹早公園と同じ小石川竹早町の一部でした。かつて春日通りには都電が走り、タワー横の茗台中学校の場所には80年代まで旧小石川区役所・文京区役所があり多くの区民に利用されていました。今も富坂を下りた先にある現文京区役所(文京シビックセンター)・東京ドームシティがほど近くあります。

伝通院 山門
伝通院 山門

近隣の伝通院は徳川家康の生母・於大の方を弔う寺院として建立され、当時は上野寛永寺・芝増上寺と並ぶ江戸の三霊山と称され、多くの僧侶の勉学の場となりました。湯島の昌平坂学問所と並び文京区の今に至る江戸・東京の学究の場として歴史の一つの中心であったと言えます。まさに文京区の要衝である土地に建つタワー、それがブランズタワー文京小日向です。

FEATURES 建物の特徴

上に伸びる優美なデザイン
充実の耐震・防災設備

ブランズタワー文京小日向 レリーフ
ブランズタワー文京小日向 レリーフ

総面積約4000㎡の敷地に建つブランズタワー文京小日向は、下層にシルバー、住居層からはプレミアムビュアホワイト、柱を突出させた上に伸びるデザインが特徴的な地上22階、総戸数81戸のタワーマンションです。こだわり抜いた建物構造、耐震、防災設備で住む方に安心の環境を提供しています。

コンセプト・デザイン

ブランズタワー文京小日向 全景
ブランズタワー文京小日向 全景

ブランズタワー文京小日向では「永住」を見据えた住まい作りを目指しています。新街区全体でのデザイン性や高台のタワーであることをより活かすため、外観は下層にシルバー、住居層からは空に溶け込む高潔なプレミアムビュアホワイトが採用されています。落ち着きと美しさをテーマとするために柱を突出させた上に伸びる優美なデザインとなっています。

建物構造

杭基礎工法

強固で耐久性の高い建物を実現するため、綿密な地盤調査の結果をもとに、強固な地層まで30本の杭をしっかりと打ち込んで建物を支える「杭基礎工法」を採用されています。支持層は密度の高い砂礫層で地盤の固さを示すN値は50以上です。また、杭は大きな先端支持力を確保する場所打ちコンクリート拡底杭を採用しています。

ラーメン構造

地下階は、柱・梁に耐力壁を組み込んだ耐力壁付きラーメン構造により、高い剛性と耐力を確保し、地上階を安定して支えています。必要に応じて高強度コンクリートと高強度鉄筋を組み合わせることで、高い耐震性を実現しています。

高強度コンクリート

主要な構造体のコンクリートは構造強度と耐久性に配慮して、設計基準強度を約30N/mm²以上、最大約80N/mm²の高強度になっています。

高強度せん断補強筋

柱と梁を組み合わせたラーメン構造の柱において、帯筋として継ぎ目を溶接した溶接閉鎖型の高性能な高強度せん断補強筋を採用しています。
せん断力(ハサミで切るような力)に対する拘束効果が高く、柱の粘り強さを向上させています。
また、大きな地震で生ずる押しつぶしの力に対し、主筋のはみ出しを抑える役目を果たし、柱の抵抗力を高めています。

水セメント比50%以下

水セメント比を50%以下に設定しています。コンクリートの強度と耐久性を左右する指標のひとつが水とセメントの配合比です。一般的に配合比の数値が低いほど強度と耐久性の高いコンクリートとなります。

外壁

外壁は断熱性に優れた軽量気泡コンクリートのひとつであるALCを約125mmの厚さで確保しています。
さらに内側に約30mmのウレタンを吹付けることでより断熱性を高めて、プラスターボードとビニールクロスで施工されています。

乾式壁

住戸間の界壁(戸境壁)は遮音を考慮し、耐火性能の認定を受けた約13.6cm・遮音等級(TLD-56)の乾式壁を採用しています。

床工法

遮音等級目標值LL-45タイプの床工法を採用し、遮音性能を高め、階下に伝わる生活音や振動を軽減する配慮をしています。

床スラブ厚

足音による重い衝撃音を緩和するために、住戸内の床スラブ厚は約200~350mmとして下階への音の伝わりを軽減しています。

二重床・二重天井

天井・床とコンクリートスラブとの間に空間を設け、配線や配管などを通せるため、将来のリフォーム時に対応が容易です。

断熱材

建物全体に断熱対策を施すことで冷暖房効率を高め、冬温かく、夏涼しい快適な居住空間を実現します。
外部側には折り返し断熱を施すことで、断熱効果を高めています。

防災設備

防災 火災

※画像はイメージです。

地震時管制運転

初期微動を感知するとエレベーターは最寄階に停止します。本震が小さい場合には通常運転に戻りますが、一定以上の揺れを感知した場合には、運転を休止します。専門技術者の到着後、安全を確認したうえで運転を再開します。

火災時管制運転

万が一火災がおこった場合、エレベーターを避難階へ直行させて、乗客の迅速な避難を促すとともに、乗客が閉じ込められないよう配慮します。また、災害時のエレベーター使用を禁止し、二次災害を防ぎます。

停電時自動着床装置

停電などでエレベーターが停止した場合、自動的に状態を確認したうえで、バッテリーですみやかに最寄階へエレベーターを着床させます。

フットライト

火災や地震等で停電となった際でも、安全に避難できるよう足元停電灯を設置しています。バッテリーが内臓されているため、停電になると自動的に点灯する仕組みとなっています。取り外して携帯もできるため、懐中電灯としても使用できます。

耐震玄関ドア

ドア枠とドアのクリアランスを適度に大きくとって、開閉性を高めた耐震玄関ドアを採用。地震時の避難・脱出ルートの確保を図っています。

火災感知器

火災の発生をいち早くキャッチし、速やかに警報・通達する火災感知器を設置しています。3F~8Fは屋内消火栓設備があり、9F~22Fの住戸内には共同住宅用スプリンクラー設備を設置しています。

防災備蓄倉庫

地震などの万が一の災害に備え、共用部に防災用の備蓄倉庫を配置しました。

セキュリティ

24時間365日体制セキュリティシステム

コムと連動した24時間365日体制のセキュリティシステムを導入。緊急時の通報やセンサーが異常を感知した場合には必要に応じて現場へ急行します。

防犯カメラ

風除室・外部・エレベーター内をはじめ、建物全体に防犯カメラを設置。録画された防犯カメラの映像は、管理室において万一のために一定期間保管されます。

防犯センサー

全戸の玄関扉と開閉可能な窓には、防犯センサーを設置しています。防犯セット時に玄関扉・窓が開くと、室内のインターホンから警報音が鳴り、管理人室へ異常を伝えるとともに、警備会社へ通報します。

トリプルロック

エントランス部分にはダブルオートロックシステムを採用、二箇所のオートロックを設けました。さらに住戸玄関ドア施錠によりトリプルロックが実現。ホテルライクな内廊下もプライバシー性を高めています。

ハンズフリーキーシステム

住戸入口の他、エントランスや宅配ロッカー及び駐輪場等の共用部において、携帯器をポケットやカバンにいれたままセキュリティドアに近づくだけで、オートロックの解除が可能です。

エレベーター

エレベーターでは、密室化による危険を防ぐために防犯カメラを設け、安全性・防犯性の向上を図っています。非常時には非常ボタンで管理室との通話が可能な機能も備えています。

TVモニター付インターホン

エントランスのオートロックを室内から解除できるようTVモニター付インターホンを設置。声だけでなくモニターで画像も確認でき、録画機能も付いています。

住戸玄関

住戸玄関には、優れた防犯性を特徴とするディンプルシリンダーキーを採用しています。
さらにフタ付ドアアイ、不正操作対策機構のドアガード、こじ開け防止に効果を発揮する鎌式デットボルトを備えています。

COMMON AREA 共用部

細部に至るまで上質に
こだわった
共用施設

和を意識したエントランス、大胆なデザインが印象的なエントランスホール、ラウンジ、ゲストルームなど共用部は細部に至るまで上質さにこだわっています。宅配ボックスなど便利なサービスも備わっています。

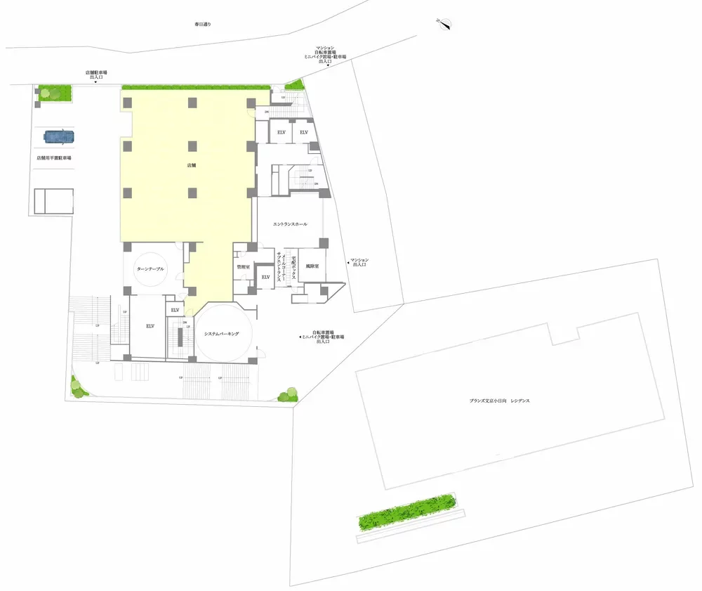
ブランズタワー文京小日向 敷地配置図
ブランズタワー文京小日向 敷地配置図

共用施設

エントランス

ブランズタワー文京小日向 エントランス
ブランズタワー文京小日向 エントランス

エントランスには縦のルーバーを使い、和と上質を意識したデザインがなされています。素材も高級感あふれる御影石を使用するなど細部にまで上質が意識されています。

エントランスホール

開放的な2層吹抜けのエントランスホールは大胆に描いた曲線と印象的な天井から注ぐ明かりが印象的です。重厚な御影石を採用し高級感を演出しています。

ゲストルーム

11Fにゲストルームが用意されています。インテリアなどに繊細な演出を施し、来賓を心地良く上質な空間でお迎えできます。

内廊下

各住戸へのアプローチは落ち着いた雰囲気を演出するホテルライクな内廊下設計が採用されています。

車椅子対応エレベーター

車椅子の方が安心な暮らしを送れるよう、一部エレベーター内に鏡の設置、車椅子専用ボタンを低い位置に設けるなど、お子様や高齢者、車椅子を必要とされる方への配慮がなされています。

ペット表示付きエレベーター

一部エレベーターには、ペットが苦手な方のために、ペットが乗っていることを表示する機能が付いています。また空気消臭機も設置されて臭いを低減させます。

自転車置場・ミニバイク置場

建物内に自転車置場81台、ミニバイク置場9台が用意されています。

駐車場

ブランズタワー文京小日向 駐車場
ブランズタワー文京小日向 駐車場

33台の駐車スペースが敷地内に用意されています。

サービス

宅配ロッカー

メールコーナーの他に、24時間利用可能な宅配ロッカーが用意されています。留守時に届いた宅配物を保管して、ご帰宅時に取り出しが可能です。

24時間ゴミ出し可能

各階にゴミ置場を設置。ゴミの集荷日を気にせず24時間いつでもゴミを出すことができます。

FLOOR PLAN 間取り図一例

2LDK~3LDKの
ファミリー向け間取り

ブランズタワー文京小日向 間取り図例
ブランズタワー文京小日向 間取り図例
ブランズタワー文京小日向 間取り図例
ブランズタワー文京小日向 間取り図例

ブランズタワー文京小日向は2LDK~3LDK、広さは50㎡台半ば~100㎡台半ばが中心のファミリー向けマンションです。

INSIDE THE ROOM 室内

開放感あふれる居室
すぐれた断熱・遮音性

団欒の場となるリビング・ダイニング・キッチンは、ワイドサッシや折上げ天井による最大約2,680mmの天井高など開放感を高める空間設計を採用しています。使い勝手の良い収納など実用性にも配慮。さらに玄関には天然の御影石を採用するなど素材にも拘っています。遮音、断熱性能にも設備を整え、ユニバーサルデザインにも配慮がなされています。

玄関

玄関には天然の御影石を採用し、玄関をすっきり使える収納力豊富なシューズインクロークを採用しています。

人感センサー連動スイッチ付玄関照明

玄関内には、人が近付くだけで自動で点灯する人感センサー連動スイッチ付LED玄関照明を採用。夜の帰宅時や荷物で手がふさがっている時などに便利です。

リビング・ダイニング

床暖房

※画像はイメージです。

リビング・ダイニングには、ワイドサッシや折上げ天井による最大約2,680mmの天井高など開放感を高める空間設計がなされています。サッシは充分な遮音性能を備えたT-2サッシを採用しています。さらに遮熱・断熱効果・省エネ性を発揮し光熱費の節約にもつながり、紫外線(UV)を約70%カットするLow-e複層ガラスを採用しています。また、エアコンはカセット式、空間をすっきりと見せる工夫がなされています。
自然な風合いの幅広フローリングはオレフィンシート加工により傷がつきにくく、足元からおだやかに部屋全体を均一に暖めるガス温水式床暖房を採用することで、ホコリやチリを巻き上げることがなく小さなお子様にも安全です。
気になる住戸内の水流音に配慮するために、居室と水廻り間の壁の内部にはプラスターボードを二重貼りし、その間にグラスウールを充填しています。排水管は共用内廊下のパイプスペースに集約させています。

キッチン

キッチン

※画像はイメージです。

「ブランズタワー文京小日向」のシステムキッチンは、ドイツ・ジーマティック社の製品を採用しています。1960年に世界初のシステムキッチンを発表して以来製品の機能性の高さとデザイン性の美しさは今も人気を博しています。
システムキッチンのカウンタートップは、美しくお手入れもしやすい天然石を採用しています。静音ワイドシンクを採用し、水ハネ音を軽減したうえで大きな鍋も洗いやすくなります。スライド収納にはプルモーションを使用し、重量物を入れたときでもスムーズに開閉できます。
また、ビルトイン浄水器、食器洗浄乾燥機、IHクッキングヒーター、過熱水蒸気ビックオーブン、ディスポーザー、同時給排気型レンジフード、グローエ社製ハンドシャワー水栓を標準装備しています。

洗面室

天然石洗面カウンターに鏡裏収納付きの三面鏡化粧台を標準装備しています。お湯の温度や量を自在に調整できるシングルレバー混合水栓、洗面ボウルをカウンタートップで被せたアンダーカウンターボウルが採用され、蛇口は引き出し式でボウルの隅々まで洗うことができます。

浴室

スイッチひとつで自動お湯張り、保湿、追い焚き機能がついたフルオートバスシステムを採用しています。コントロールパネルは浴室内の他、キッチンにも備えられているため、料理の合間に入浴の準備ができます。
浴槽の残り湯を利用して洗い場にある排水トラップ内に渦流を起こし、その渦の力によって髪の毛を中簡単に捨てることができるくるりんポイ排水口に加え、カビの付きやすいゴムパッキンを使用しないキレイドア、内蔵型プッシュワンウェイ排水栓、床の表面形状には短時間乾燥のモザイクパターン、シャワースライドバー、ヘルスメーター収納スぺースと便利を追求しています。

トイレ

見た目にすっきりと美しく、スペースも広く使えるタンク式ローシルエット便器はお掃除のしやすさを考え便器のフチをなくし、2ヶ所の吐水口からのトルネード洗浄でボウル面をぐるりとくまなく洗浄します。洗浄水も控えめで環境にやさしく経済的です。表面に防汚加工を施すことでお手入れも容易です。また、ゆとりの空間を演出する手洗いカウンターを設置しています。

収納

ウォークインクローゼット

※画像はイメージです。

一部の住戸にはウォークインクーロゼットが設置されています。大きくかさばるものをすっきりと集中的に収納することが可能です。またシステム収納には音をたてずにゆっくりと扉が閉まるソフトクローズ機能がついています。リネン庫や食品庫を含めて多様な収納が用意されています。

ユニバーサルデザイン

浴室にはお子様やご年配の方々が安全に入浴できるように低床式ユニットバスが採用されています。浴室内室内照明のスイッチは、軽く押すだけでオンオフができる大型サイズを採用し、高さも原則床から約110cmに設定しています。
サッシには無理なく握ることができる大型把手を採用することで複層ガラスで重くなりがちな開閉を助けます。
また、玄関・洗面室には将来のライフスタイルに変化に対応できる手摺用下地補強を施しています。

ACCESS アクセス

丸ノ内線で「東京」駅・「銀座」へ
直通アクセス

ブランズタワー文京小日向の最寄り駅は徒歩7分の東京メトロ丸ノ内線「茗荷谷」駅です。都内各所に加え、沿線の「東京」駅、「池袋」駅をハブとしてJR各線で首都圏を含めた広範囲にアクセスしやすい環境です。また、徒歩約3分の小石川四丁目バス停から都心各エリアへアクセスできます。
(タクシーによる時間はすべて交通状況により変動はありますが、道路があまり混雑していない場合の目安をご紹介します。)

掲載の所要分数は日中平常時のもので、乗り換え・待ち時間等は含みません。
また時間帯により異なる場合があります。

鉄道

「茗荷谷」駅から主要駅へは、以下の所要時間で到着できます。

「銀座」駅

「銀座」駅
「銀座」駅

東京メトロ丸ノ内線利用で、所要時間は約14分です。

「霞が関」駅

「霞ヶ関」駅
「霞ヶ関」駅

東京メトロ丸ノ内線利用で、所要時間は約16分です。

「新宿」駅

「新宿」駅
「新宿」駅

東京メトロ丸ノ内線利用で、「池袋」駅からJR湘南新宿ラインに乗り換え、所要時間は約14分です。

「渋谷」駅

「渋谷」駅
「渋谷」駅

東京メトロ丸ノ内線利用で、「池袋」駅からJR湘南新宿ラインに乗り換え、所要時間は約20分です。

「池袋」駅

「池袋」駅
「池袋」駅

東京メトロ丸ノ内線利用で、所要時間は約5分です。

「麻布十番」駅

「麻布十番」駅
「麻布十番」駅

東京メトロ丸ノ内線利用で、「後楽園」駅から東京メトロ南北線に乗り換え、所要時間は約28分です。

タクシー

タクシー

※画像はイメージです。

行き先 所要時間
「飯田橋」駅 約7分
「池袋」駅 約12分
「新宿」駅 約23分
「後楽園」駅 約5分
「西日暮里」駅 約15分

バス

バス

※画像はイメージです。

ブランズタワー文京小日向の最寄りのバス停は春日通り沿いに「小石川四丁目」停留所があります。ここでは錦糸町/大塚駅前行き「都02」、一ツ橋/池袋東口行き「都02乙」が運行し、文京区役所・東京ドームシティへのアクセスに便利です。また「都02」は「上野広小路」バス停を経由するため、上野・御徒町でのアクセスに優れています。

空港

空港

※画像はイメージです。

ブランズタワー文京小日向は、国内外を問わずアクセス良好なことが魅力です。各空港への移動ルートをご紹介します。

羽田空港へのルート

①電車

・ルート1:「小石川四丁目」バス停で都バス「都02乙」路線に乗ります。「春日駅前」バス停から都営地下鉄三田線「春日」駅に乗り継ぎ、「三田」駅で都営地下鉄浅草線から京浜急行本線に乗り換えれば、直通で「羽田空港第1・第2ターミナル」駅へ約56分で到着します。
・ルート2:「茗荷谷」駅から東京メトロ丸ノ内線を利用し、「東京」駅でJR京浜東北線、山手線に乗り継ぎます。「浜松町」駅で東京モノレールに乗り替えれば「羽田空港第1ターミナル」駅へ約49分で到着します。

②タクシー

ブランズタワー文京小日向から羽田空港第1旅客ターミナルへの所要時間は約40分です。

成田空港へのルート

①電車

・ルート1:「小石川四丁目」バス停で都バス「都02」路線に乗り、「上野広小路」バス停から「京成上野」駅に移動して京成本線特急スカイライナーに乗れば約71分で「空港第2ビル」駅に到着します。
・ルート2:「茗荷谷」駅から東京メトロ丸ノ内線に乗り、「池袋」駅でJR山手線に乗り継ぎ「日暮里」駅で京成本線特急スカイライナーに乗れば約70分で「空港第2ビル」駅に到着します。

②タクシー

ブランズタワー文京小日向から成田空港第2旅客ターミナルへの所要時間は約70分です。

新幹線発着駅

「東京」駅へのルート

①電車

「茗荷谷」駅から東京メトロ丸ノ内線に乗車し、直通約12分で到着します。

②タクシー

ブランズタワー文京小日向からの所要時間は約18分です。

「品川」駅へのルート

①電車

「茗荷谷」駅から東京メトロ丸ノ内線に乗車し、「東京」駅でJR東海道線に乗り換えれば31分で到着します。

②タクシー

ブランズタワー文京小日向からの所要時間は約35分です。

LIFE
INFORMATION 周辺の施設・店舗情報

生活利便性と
自然環境の両立
文教地帯にも至近

タワーの正面にあるスーパー三徳など日常生活の利便性に加え、自然環境にも恵まれた立地にあります。文京区役所や東京ドームシティへはバスですぐですが、散歩ついでにも行ける範囲にあります。

商業施設、商店街

スーパー三徳茗荷谷店(徒歩4分/約280m)

スーパー三徳茗荷谷店
スーパー三徳茗荷谷店

地元で長く愛されているスーパー三徳茗荷谷店はブランズタワー文京小日向の春日通りを挟んで向かい側にある食品スーパーです。生鮮食品の取り扱いに評判が
高く、自社プライベートブランドも充実しています。別館となっているリカーワールドでは充実した種類の取り扱いをしています。また播磨坂の手前にはまいばすけっと茗荷谷駅東店、播磨坂を下りた白山三丁目交差点近くには肉のハナマサ小石川店があります。

スギ薬局茗荷谷店(徒歩7分/約500m)

スギ薬局茗荷谷店
スギ薬局茗荷谷店

ブランズタワー文京小日向の最寄りのドラッグストアはスギ薬局茗荷谷店です。処方箋のネット受付もできるので待ち時間も短縮できます。茗荷谷駅前には複数のドラッグストア・薬局もあります。

自然、公園

播磨坂さくら並木(徒歩4分/約300m)

ブランズタワー文京小日向から西に進むと右手に播磨坂が見えます。春には桜、秋には紅葉の名所として知られるこの坂は、毎年春には文京さくらまつりが開催され地元の花見客が数多く訪れます。中央部は全長400メートルに及ぶ細長い広場となっていて地元の散歩コースや子供の遊び場としても親しまれています。
また坂の左右にはテラス席を備えたレストランやカフェ、パティスリーなどもあり、おしゃれな食事も楽しめます。

文京区立教育の森公園(徒歩10分/約800m)

文京区立教育の森公園
文京区立教育の森公園

東京教育大学がつくば市に移転した跡地に作られた文京区立教育の森公園は広大な敷地を活かし文京区スポーツセンター、少年野球やゲートボールにも使える自由広場、夏には子供たちの水遊びもできるじゃぶじゃぶ池もあります。
またブランズタワー文京小日向の最寄りには文京区立小石川図書館を併設する文京区立竹早公園もあります。

小石川植物園(徒歩12分/約900m)

小石川植物園
小石川植物園

16万平方メートルに及ぶ広大な敷地を誇る小石川植物園はブランズタワー文京小日向から播磨坂・吹上坂を下った先にあります。ツバキ園、ツツジ園、日本庭園など四季の花々が咲き誇る庭園に加え、公開温室は冬でも楽しめます。安価で求められる年間パスポートを入手すれば日常の散歩コースとしての利用もできます。

暮らし、インフラ

文京シビックセンター(徒歩18分/約1400m)

文京シビックセンター
文京シビックセンター

25階建ての文京区の中心施設文京シビックセンターは文京区役所、文京公証役場、郵便局に加え、最上階の展望ラウンジやクラッシック音楽の公演も数多く開催される文京シビックホールも併設されています。「小石川四丁目」バス停から都バス「都02」「都02乙」に乗れば約7分で到着します。

小石川医院(徒歩5分/約350m)

小石川医院
小石川医院

小石川医院は内科と皮膚科の診療を行っています。また小児科の診療も行っている三橋医院はブランズタワー文京小日向の春日通りを挟んだ向かい側にあります。

傳通院(徒歩10分/約750m)

傳通院
傳通院

徳川家康の生母・於大の方を弔う寺院として建立され小石川の中心として発展した伝通院は今も地元民の信仰を集めています。除夜の鐘は毎年108人限定で突き手が募集され、夏には文京朝顔まつりが行われます。

東京ドームシティ(徒歩20分/約1600m)

東京ドームシティ
東京ドームシティ

読売ジャイアンツの本拠地として知られる「東京ドーム」、人気の温浴施設「LaQua」、ジェットコースターも楽しめる都心の遊園地「東京ドームシティ アトラクションズ」週末にはヒーローショーが開催される「シアターGロッソ」、屋内型ふれあい動物園「アニタッチ」、ボーリングセンター、ローラースケートアリーナなどなど枚挙に暇がない人気の施設やレストランを抱える東京ドームシティが間近にあります。お子様の遊び場に、家族の憩いの場に用途は様々です。

幼稚園、保育園、学校

明照幼稚園(徒歩9分/約650m)

明照幼稚園
明照幼稚園

文京区立窪町小学校(徒歩10分/約800m)

文京区立窪町小学校
文京区立窪町小学校

文京区立茗台中学校(徒歩3分/約190m)

文京区立茗台中学校
文京区立茗台中学校

跡見学園中学校高等学校(徒歩11分/約850m)

跡見学園中学校高等学校
跡見学園中学校高等学校

イベント、お祭り

文京さくらまつり

ブランズタワー文京小日向が面する春日通りを少し左に進んだ播磨坂のさくら並木では、毎年3月下旬から4月上旬にかけて文京さくらまつりが開催されます。春には約120本の桜が咲き誇り、地元の花見客でにぎわいます。

文京朝顔・ほおずき市

ブランズタワー文京小日向を東京ドーム方向に進んだ少し先にはある、徳川家康の生母・於大の方を弔う伝通院では毎年7月朝顔市が開催されます。また伝通院から善光寺坂を下った先にある「こんにゃく閻魔」源覚寺ではほおずき市が開催されます。

まとめ

眺望と自然環境
開放感と安全性に
こだわった邸宅

ブランズタワー文京小日向は小石川植物園、皇居の緑、池袋、新宿の夜景を見渡す小石川台地の上部に建っています。茗荷谷駅から都内各所へのアクセスにもすぐれた住宅地にありながら恵まれた自然環境も近く文教地帯にもほど近い立地です。開放感にあふれる居室の様々な工夫に加え、耐震・防災にこだわった構造設計・サービスで安心感も高まります。

ブランズタワー文京小日向

駅徒歩 不動産の表示に関する公正競争規約の改正(2022年9月1日)により、交通利便情報が販売中のものと異なる場合がございます。

東京メトロ丸ノ内線
「茗荷谷」駅 徒歩7分

築年月

2013年9月

総戸数

81戸

階数

地上22階 地下3階