東急不動産 ブランズ東雲 Concept 晴海通り沿い、東雲一丁目交差点の角地、ホワイトカラーのタイルを基調に、バルコニーの袖壁に大樹の緑をイメージしたグリーンを配した外観デザイン、中庭に森のような広場を配した緑あふれる住空間

ブランズ東雲

「東雲」駅 徒歩9分、「豊洲駅」徒歩14分、
「辰巳」駅 徒歩11分、
3駅利用可

南向き住戸率80%以上、
ハイサッシ、
センターオープンサッシを採用した
開放的な室内空間

地上15階、
総戸数144戸

2025.04.04 公開

LOCATION ロケーション

空と海に囲まれた
リゾート地のような
新しい
ライフステージを

ブランズ東雲 アプローチ
ブランズ東雲 アプローチ

ブランズ東雲は海に囲まれた湾岸エリアに位置し、りんかい線「東雲」駅、有楽町線「辰巳」駅、「豊洲」駅の3駅が徒歩圏内にある魅力ある立地です。静けさのある環境である東雲エリア、家族や友人とのレジャーで楽しめる辰巳の森海浜公園のある辰巳エリア、ショッピングなどアミューズメント施設のある豊洲エリアと用途に合わせた利便性を享受できる充実した環境です。

辰巳橋からの景色
辰巳橋からの景色

自然あふれる辰巳の森海浜公園への道中では海の気持ちの良い風と風景を楽しめます。
都心の喧噪とした雰囲気とは一転して、木々の緑と海の青という落ち着いた雰囲気のある自然を存分に体験でき魅力にあふれています。

イオン東雲店
イオン東雲店

ブランズ東雲から徒歩3分の立地には食品や生活雑貨、衣料品のほか、ドラッグストアや飲食店も充実し必要なものが揃う地域住民にとっては魅力あるスーパー「イオン東雲店」があります。1階食品売り場は24時間営業のため、日中の買い物が難しい方でも利用しやすく、郵便局をはじめとした各種サービスも利用できるため日々の生活を支えてくれます。
また、広々とした駐車場を完備し車でのアクセスもしやすいです。

FEATURES 建物の特徴

緑の中で暮らす自然体での心地よさを

ブランズ東雲 外観
ブランズ東雲 外観

ブランズ東雲の周囲には湾岸エリアとして海や、公園の緑に囲まれています。建物敷地内にも緑豊かなコミュニティパティオが整備されており、上品さはもちろんのこと自然豊かな環境で健やかなライフスタイルを送ることができます。

コンセプト・デザイン

ブランズ東雲 外観
ブランズ東雲 外観

ブランズ東雲の外観デザインはホワイトカラーのタイルをベースとして、繊細なテクスチャーによって季節や時間の変化を演出します。陽光を浴びて輝く大樹の緑色を表現しています。

ブランズ東雲 エントランス
ブランズ東雲 エントランス

入口脇には木々を配し、緑の豊かさを表現し来訪者を優しく迎え入れます。
豊かな広がりや堂々としたエントランスは品格あるアプローチとして優雅な空間へ誘われる期待感を膨らませます。

ブランズ東雲 敷地配置図
ブランズ東雲 敷地配置図

アプローチから風除室まで整備され、エントランスまで快適な導線が確保されています。敷地内には緑豊かなコミュニティパティオがあり、贅沢なマンションの中にリフレッシュできる落ち着いた空間を提供しています。

建物構造

支持地盤

ブランズ東雲外観
ブランズ東雲外観

N値50異常の支持層がある地下約56mまで、直径約1.2m~3.0mの杭を合計25本打ち込んでいます。

コンクリートかぶり厚

コンクリートかぶりの厚さを確保することで、経年劣化に備えています。

コンクリート水セメント比

コンクリートの強度を高めるために水セメント比を50%以下に抑えています。

溶接閉鎖型帯筋

柱の強度と粘り強さを高め耐震性を上げるため、主構造の柱の外周筋に溶接閉鎖型帯筋を用いています。

ダブル配筋

鉄筋コンクリート造の壁や床にダブル配筋を採用することで、高い強度と耐久性を持たせています。

高強度コンクリート

使用限界期間100年という基準に該当する高強度コンクリートを採用しています。

メッシュ補強

ひび割れを防ぐため、窓枠のコーナー部分を補強しています。

屋上・最下階の断熱

屋上に断熱材を敷くことで太陽光による温度上昇を抑え、最下階の住戸には床スラブの下に断熱材を設置することで建物全体の断熱性を高めています。

断熱材

外部に面している壁や柱の内側には30㎜の断熱材を吹き付けています。

二重床・二重天井

居室内の床はスラブとフローリングの間を二重床として、天井も二重構造とすることで上下階の遮音性を高めています。

外壁

コンクリート厚150㎜~180㎜の外壁、内側にはウレタンを吹き付け空気層を設けプラスターボードとビニールクロスを貼った施工です。

耐震玄関ドア

地震等の揺れによりドアが変形し開閉不能になることを防ぎます。

塩害対策

耐候性の高い被膜を開口部のアルミサッシに採用しています。

24時間低風量換気システム

室内の空気を24時間換気するため居住空間の環境に配慮されています。

ホルムアルデヒド対策

フローリングなどのホルムアルデヒドの放散量を抑えたF☆☆☆☆の建材を利用しています。壁紙の接着剤にはノンホルムタイプを使用しています。

排水音を低減させる防音対策

水回りと居室が隣接している壁には厚さ12.5㎜と9.5㎜のプラスターボードを二重に貼り、排水音を抑えています。また、配管へは遮音材施工を施しているため高い防音性が実現しています。

遮音等級LL-45・LH‐55

上下階への遮音性に配慮するため、フローリングには遮音性能LL-45,LH-55等級を採用しています。

セキュリティ

セキュリティライン

住棟を中心にフェンス内側の敷地に1次セキュリティ、2次セキュリティとし安全に配慮しています。

ダブルオートロックシステム

※画像はイメージです。

エントランスにはダブルオートロックシステムを採用しており、鍵を持っている居住者とそうでない者を区別し不法侵入を防ぎます。

24時間オンラインセキュリティ

共用部・専有部で異常が検知された場合提携している「ALSOK」に通報されます。

24時間有人管理

日中は管理員が常駐し、夜間は警備員が待機しているため異常発生時にも迅速に対応が可能です。

オートスライドゲート

駐車場入り口には機能的なオートスライドゲートを設置しています。

カラーTVモニター付きインターホン

来訪者を画像と音声で確認ができ、オートロックを室内から解除することができます。

防犯カメラ

共用部に11台の防犯カメラが設置されています。録画もされているため有事の際には管理人室で確認することもできます。

非接触型ノンタッチキー

オートロック操作盤にかざすだけで解除できる非接触キーを採用しています。

鎌デッド錠&防犯サムターン

こじ開けなどの不正解錠に備えて鎌形状とし、防犯サムターンも採用しています。

PRシリンダー

高い防犯性がある2WAYロータリータンブラー方式のPRシリンダーを採用しています。

防犯窓センサー

各住戸の玄関ドアと窓に不審者の侵入感知センサーを設置しています。

可動ルーバー面格子

共用廊下に面する窓には可動ルーバー面格子を設置しています。

COMMON AREA 共用部

緑とくつろぎが調和する
都会のオアシス

建物内の共用施設としてゆったりとくつろげるスペースを多く用意されています。広々としたエントランスから中庭に整備されたコミュニティパティオまで緑豊かで心安らげ、まるでオアシスにいるような時間を過ごすことができます。

共用施設

エントランスホール

広々とした空間にはソファ等も設置しているため来訪者の方とのコミュニティサロンとしての利用もできます。

コミュニティパティオ

ブランズ東雲 外観
ブランズ東雲 外観

中庭には四季折々の緑豊かなコミュニティパティオが作られています。 軽い運動や、家族でリラックス時間として利用できる都心の中にあるオアシスのような空間です。

太陽光パネル

共用部の電気の一部をまかなっている太陽光パネルを最上階部分に設置しています。

サービス

レンタサイクル

湾岸エリアを快適に移動するためにレンタサイクルがご利用頂けます。

スカパー光

複数のチャンネルが視聴できるよう、「スカパー光」が採用されています。

光ファイバーインターネット

最大100Mbpsの光ファイバーインターネット接続サービスが導入されています。

24時間ゴミ出し可能

共同集積所は1階に設けられており、24時間いつでも出すことができます。

宅配ロッカー

エントランスに24時間取り出し可能な宅配ロッカーが設置されています。

くらしNAVI

ご入居される方向けに生活総合サービスとして用意しています。
新築時工事の進捗状況の案内から生活設計に役立つセミナー、入居説明会・内覧会などを提案します。

アフターサービス

壁の亀裂10年保証など各項目ごとに保証期間を設けたアフターサービスを行っております。

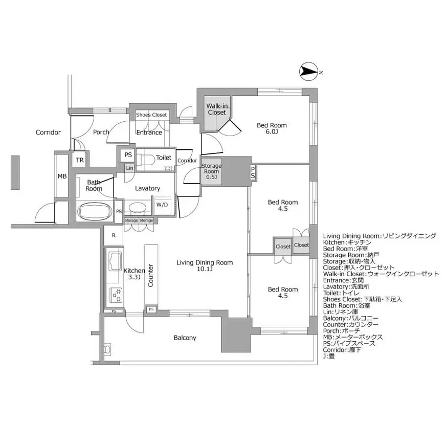
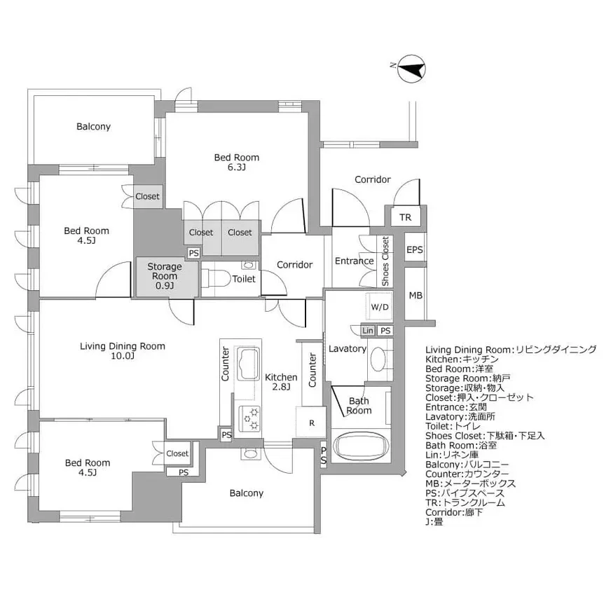
FLOOR PLAN 間取り図一例

自然を感じる開放感に
満ちた
リビングダイニング

ブランズ東雲 間取り図例
ブランズ東雲 間取り図例
ブランズ東雲 間取り図例
ブランズ東雲 間取り図例

リビング・ダイニングは広々とした開放感、バルコニーと一体感を生かした陽の光が差し込む明るい住まいを実現した間取りです。玄関からの動線もスムーズで快適な暮らしをサポートします。

INSIDE THE ROOM 室内

機能性と安らぎを追求した
上質な設備

節水・節約を実現するエコ機能、安らぎを演出するリビングやベッドルームなど居住者目線で作られた快適な空間となっています。開放感あふれる居室では家族との時間を楽しみながら充実した生活を送れます。

室内仕様

リビングダイニング

センターオープンサッシが用いられ開放的な空間としてのびのびした時間を過ごすことができます。

ベッドルーム

落ち着いた色使いで統一した寝室は、より一層の安らぎを感じさせてくれます。
十分な収納スペースであるクローゼットも設置されています。

センターオープンサッシ

バルコニーに面した居室には窓を中央から開けるセンターオープンサッシが採用されており、日の光も十分に差し込みリビングを明るくしてくれます。

キッチン

※画像はイメージです。

家事効率を上げるため2WAY動線を確保、また開放的なオープンキッチンを採用しています。

ディスポーザー

※画像はイメージです。

キッチンで生ごみを粉砕し処理できるため、居住内に生ごみを残しておく必要が無くなり衛生的に非常に便利です。

バス&パウダールーム

よりリラックスできるよう広々としたゆとりを設けています。また、ホテルのような清潔さ、高級感ある質感やフォルムが追求されています。

エコジョーズ

高効率TES熱源機「エコジョーズ」を採用することで、給湯熱効率を排気熱・潜熱回収システムにより約95%まで向上させています。ガス代の年間ランニングコストが約12300円も節約できます。

超節水ECO6シャワートイレ

超節水型としてINAXの「ECO6」を採用し、年間約12000円の節約効果があります。

TES温水式床暖房

※画像はイメージです。

リビング・ダイニングの床に設置しているため、足元から部屋全体を温めてくれます。

複層ガラス

冷暖房効率を上げ、結露を抑制するために2枚のガラスの間に空気の層を設けています。

トイレ手洗いキャビネット

専用の手洗いキャビネットを採用しています。

LDエアコン設置

リビング・ダイニングにはエアコンを標準装備しています。

スロップシンク

全住戸に設置されており、ガーデニングや靴を洗うなどにも利用できます。

トランクルーム

ゴルフバッグなど大型な荷物も収納できます。

ACCESS アクセス

都心へ直結する
快適かつ
自在なアクセス性

最寄りのりんかい線「東雲」駅からお台場や新宿方面へ、「豊洲」駅からは有楽町線を利用することで都心へのアクセスが非常にスムーズです。都心部への利便性が高く通勤通学においても自由度が高いことが魅力です。

掲載の所要分数は日中平常時のもので、乗り換え・待ち時間等は含みません。
また時間帯により異なる場合があります。

鉄道

  • JR「東京」駅
    「東雲」駅より東京臨海高速鉄道りんかい線を利用し「新木場」駅で下車します。JR京葉線快速に乗り換え、約15分で到着します。
  • JR「上野」駅
    「豊洲」駅より東京メトロ有楽町線を利用し「有楽町」駅で下車します。JR山手線に乗り換え、約27分で到着します。
  • 東京メトロ「銀座一丁目」駅
    「豊洲」駅より東京メトロ有楽町線を利用し約14分で到着します。
  • JR「新橋」駅
    「豊洲」駅より東京メトロ有楽町を利用し「有楽町」駅で下車します。JR山手線に乗り換え、約19分で到着します。
  • JR「大井町」駅
    「東雲」駅より東京臨海高速鉄道りんかい線を利用し約12分で到着します。
  • JR「お東京テレポート」駅
    「東雲」駅より東京臨海高速鉄道りんかい線を利用し約4分で到着します。
  • JR「秋葉原」駅
    「豊洲」駅より東京メトロ有楽町を利用し「有楽町」駅で下車します。JR山手線に乗り換え、約23分で到着します。
  • JR「横浜」駅
    「東雲」駅より東京臨海高速鉄道りんかい線を利用し「大崎」駅で下車します。JR湘南新宿ラインに乗り換え、約44分で到着します。

タクシー

※画像はイメージです。

タクシーで各主要駅まで移動した場合の、所要時間と料金の目安です。

所要時間 料金目安
JR「東京」駅 約20分 約2,400円
R「品川」駅 約24分 約4,300円
JR「秋葉原」駅 約23分 約3,000円
JR「渋谷」駅 約36分 約4,800円

バス

※画像はイメージです。

ブランズ東雲から最寄りの「東雲一丁目」停留所から「豊洲駅前」停留所まで約5分で到着します。

空港

※画像はイメージです。

羽田空港へのルート

①自動車

首都高速湾岸線を使い、約15分で到着します。

②電車

「東雲」駅より東京臨海高速鉄道りんかい線を利用し「天王洲アイル」駅で下車します。東京モノレールに乗り換え、約44分で到着します。

③リムジンバス

豊洲駅停留所より東京空港交通羽田空港路線を利用し、約20分で到着致します。

成田空港へのルート

①自動車

首都高速湾岸線を使い、約47分で到着します。

②電車

「豊洲」駅より東京メトロ有楽町線を利用し「月島」駅で下車します。都営大江戸線に乗り換え「大門」駅で下車します。都営浅草線エアポート快特に乗り換え、約90分で到着します。

③リムジンバス

豊洲駅停留所より東京空港交通成田空港路線を利用し、約70分で到着致します。

新幹線発着駅

「東京」駅へのルート

「東雲」駅より東京臨海高速鉄道りんかい線を利用し「新木場」駅で下車します。JR京葉線快速に乗り換え、約15分で到着します。

「品川」駅へのルート

「東雲」駅より東京臨海高速鉄道りんかい線を利用し「大崎」駅で下車します。JR山手線に乗り換え、約24分で到着します。

LIFE
INFORMATION 周辺の施設・店舗情報

利便性と自然を感じる
湾岸エリアの魅力

大型商業施設である「ららぽーと豊洲」や「イオン東雲店」、「辰巳の森海浜公園」など自然豊かな公園も徒歩圏内にあり、日々の買い物から休日のスポーツ、レクリエーションなど選択肢に溢れる魅力ある環境です。

商業施設、商店街

東武ストア東雲店(徒歩2分/約150m)

東武ストア東雲店
東武ストア東雲店

地域密着型のスーパーマーケットです。店内はコンパクトながら、生鮮食品、日用品と品揃えが充実しており手軽に利用できる便利な店舗です。

アーバンドック ららぽーと豊洲
(徒歩18分/約1,400m)

アーバンドック ららぽーと豊洲
アーバンドック ららぽーと豊洲

豊洲エリアに位置するファッション、グルメ、エンターテインメントが揃う大型商業施施設です。映画館や職業体験のできる「キッザニア東京」もあり子供連れのご家族にもおすすめです。

有明アリーナ(徒歩15分/約1,200m)

有明アリーナ
有明アリーナ

2020年東京オリンピックの競技会場として建設された多目的施設です。
バスケットボールなどのスポーツや音楽ライブ、各種イベントが開催されています。

東京ビックサイト(徒歩28分/約2,200m)

東京ビックサイト
東京ビックサイト

「東雲」駅から1駅にある「国際展示場」駅まで約1分で到着します。
東京ビックサイトは国内最大の国際展示場であり、国内外の展示会、ビジネスカンファレンス、アニメイベントなど様々なイベントが開催されています。

自然、公園

辰巳の森海浜公園(徒歩19分/約1,500m)

辰巳の森海浜公園
辰巳の森海浜公園

「辰巳」駅近くにある広大な自然公園であり、充実したスポーツ施設やバーベキュー広場など休日にはアウトドアで家族や友人と満喫できる空間です。湾岸エリアならではの景色と都心にいながら自然を満喫できます。

区立豊洲公園(徒歩18分/約1,400m)

区立豊洲公園
区立豊洲公園

豊洲公園は豊洲ふ頭内公園(豊洲ぐるりパーク)という4つの公園で構成されているうちの一つです。ブランズ東雲一番近い豊洲公園をはじめ、「豊洲ぐるり公園」「豊洲六丁目公園」「豊洲六丁目第二公園」と総面積19.8haと広大です。

東雲公園(徒歩7分/約550m)

東雲公園
東雲公園

地域密着型の公園で緑豊かな環境と開放感があります。園内には遊具やベンチが整備されており、子どもから大人まで気軽に利用できます。

暮らし、インフラ

イオン東雲内郵便局(徒歩7分/約550m)

イオン東雲店内に設置されているため、買い物ついでにも利用でき非常に便利です。
駐車場も利用できるため、車でのアクセスもスムーズにできます。

江東区立東雲図書館(徒歩12分/約900m)

東雲図書館
東雲図書館

大規模改修工事を経て2024年5月にリニューアルオープンしています。
閲覧席は28席、自動コーナーや対面朗読室も用意されており、地域に根差した公共図書館として利用されています。

しののめメディカルクリニック
(徒歩3分/約200m)

しののめメディカルクリニック
しののめメディカルクリニック

内科・小児科・皮膚科など幅広い診療科を備えています。地域住民の健康を支える存在です。
AIP25豊洲ビル4階にクリニック専用フロア「CLINICstation」が設けられております。

幼稚園、保育園、学校

江東区立東雲保育園(徒歩5分/約400m)

江東区立東雲保育園
江東区立東雲保育園

江東区立東雲第二保育園(徒歩7分/約500m)

江東区立東雲第二保育園
江東区立東雲第二保育園

江東区立東雲小学校(徒歩9分/約650m)

江東区立東雲小学校
江東区立東雲小学校

江東区立有明小学校・中学校
(徒歩12分/約900m)

江東区立有明小学校・中学校
江東区立有明小学校・中学校

イベント、お祭り

東雲祭

東雲祭はキャルナコートを中心とした地域住民、地元のお店や企業が参加する実行委員会によって開催されています。模擬店やステージパフォーマンス、子ども神輿など多彩なプログラムが用意され、地域の交流を深める場となっています。

まとめ

都心の快適性と
自然の
豊かさの両立を実現

ブランズ東雲 レリーフ
ブランズ東雲 レリーフ

辰巳の森海浜公園など緑と水辺に恵まれた環境で自然をふんだんに感じながら暮らせる住環境です。開放感のある住空間には最新設備が整い快適さと安心を両立。都心にいながら穏やかで豊かなライフスタイルを実現できる理想的な住まいです。

ブランズ東雲

駅徒歩 不動産の表示に関する公正競争規約の改正(2022年9月1日)により、交通利便情報が販売中のものと異なる場合がございます。

りんかい線「東雲」駅 徒歩9分

築年月

2012年2月

総戸数

144戸

階数

地上15階