新日鉄興和不動産|東急リバブル リビオレゾン
千代田岩本町
ルジェンテ
Concept 2つの都心区を使いこなす先進と
伝統を併せ持つ住環境

リビオレゾン千代田岩本町ルジェンテ

「岩本町」駅 徒歩3分、12駅13路線利用可

千代田区と中央区を縦横無尽に愉しむ好アクセス

地上14階、総戸数65戸の都市型マンション

2025.02.14 公開

LOCATION ロケーション

どんなライフスタイルにも
フィットする街

アキバ・トリム
アキバ・トリム

リビオレゾン千代田岩本町ルジェンテは、都営新宿線「岩本町」駅まで徒歩3分とアクセスが良好です。徒歩10分圏内にある複数の路線で、東京の主要エリアにダイレクトにアクセスできるため、通勤や通学で不便に感じることはないでしょう。秋葉原駅周辺にはアトレやアキバ・トリムなどの商業施設や娯楽施設が充実しており、観光客から地域住民まで多くの人で溢れています。

千代田区役所 和泉橋出張所
千代田区役所 和泉橋出張所

リビオレゾン千代田岩本町ルジェンテの周辺は、千代田区役所和泉橋出張所や神田公証役場、病院・郵便局・銀行など生活に必要な施設が集まっています。飲食店も充実しており、ファストフード店などのチェーン店から個人経営のお店まで種類も豊富です。徒歩圏内で必要なものが揃う利便性が、大きな魅力の1つといえるでしょう。

神田川
神田川

リビオレゾン千代田岩本町ルジェンテの周辺には、商業施設だけでなく自然や公園もあります。小規模の公園や児童公園が街のいたるところに点在しており、子どもと遊んだりペットと散歩したりするにも便利な環境です。近くを流れる神田川は、春には桜が満開になり川の流れを眺めながら季節の趣を感じられるでしょう。

FEATURES 建物の特徴

千代田区に調和する
伝統と先進

リビオレゾン千代田岩本町ルジェンテ アプローチ
リビオレゾン千代田岩本町ルジェンテ アプローチ

リビオレゾン千代田岩本町ルジェンテは、新日鉄興和不動産(現:日鉄興和不動産)株式会社と東急リバブル株式会社が開発した「人生をデザインしよう、リビオと。」をキャッチコピーとした「リビオ」シリーズの地上14階、総戸数65戸の都市型マンションとして2020年5月に竣工しました。

コンセプト・デザイン

リビオレゾン千代田岩本町ルジェンテは商業エリアの近くに位置することから、外部からは「守り」内部では「やすらぎ」という住まいを目指してデザインされています。夜になるとガラスパネルの内側からライトアップされて、柔らかな光を感じられることが特徴的です。

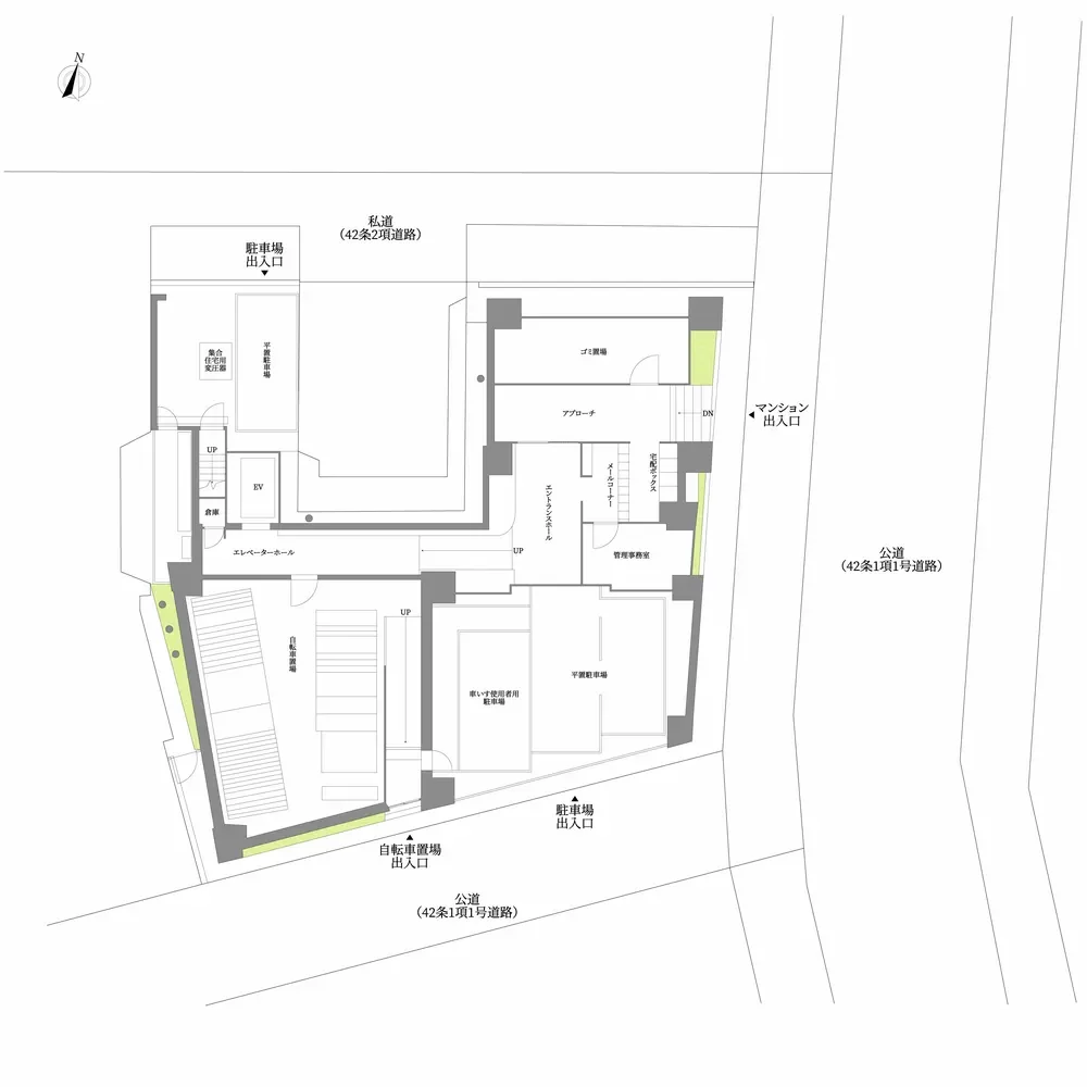
リビオレゾン千代田岩本町ルジェンテ 敷地配置図
リビオレゾン千代田岩本町ルジェンテ 敷地配置図

ランドプランにおいては各住戸の日当たりを重視して、南東と東に向けて住棟を配置しています。半分以上の60%が角住戸であり、周囲の建物との距離も確保することで開放感ある空間を実現しているのが魅力です。

建物構造

リビオレゾン千代田岩本町ルジェンテは新日鉄興和不動産と東急リバブルの分譲で、リンク・トラストが施工した地上14階、総戸数65戸の都市型マンションです。建物構造は鉄筋コンクリート造(RC)となっています。

場所打ちコンクリート杭

地下約32〜38mにある強固な支持層まで11本の杭を打ち込んでいます。さらに、杭の先端を広げて支持力を強化する工法が採用されています。

劣化対策等級 最高等級「3」

劣化対策等級において、住宅性能表示制度の最高等級である「3」を獲得しています。これは、75〜90年(親子3世代)程度、大規模な改修工事が不要な基準の劣化対策が施されていることを示します。

セキュリティ

トリプルセキュリティ

リビオレゾン千代田岩本町ルジェンテには、以下のように建物の入口から住戸まで3つのセキュリティがあります。

  • 1st:アプローチ
  • 2nd:エレベーターホール
  • 3rd:玄関前

またアプローチとエレベーターホールは、ハンズフリーキーで解錠できるようになっています。

エレベーターモニター・防犯カメラ

1階のエレベーターホールには、エレベーター内の様子が確認できるモニターがあります。さらにエレベーター内にも、防犯カメラと非常ボタンが設置されています。

24時間セキュリティシステム

警備会社が各住戸内の火災・非常・防犯警報と、共用部の火災・エレベーター・設備警報を監視しています。アクシデントが発生した際は速やかに検知し、必要に応じて隊員が現場に駆けつける体制です。

COMMON AREA 共用部

アート作品が
アクセントを
加えるアプローチ

都会の喧騒とマンション内の安らぎを分けるための手法として、アート作品を活用しています。

共用施設

エントランスアプローチ

リビオレゾン千代田岩本町ルジェンテ エントランス
リビオレゾン千代田岩本町ルジェンテ エントランス

ガラス越しに見える柔らかな木目のエントランスに入ることで、外界の喧騒と遮断された空間へと切り替わります。その仕掛けとして活用されているのがアート作品で、緩やかなカーブを描くアプローチにアート作品が設置されています。

サービス

サービスデスク24

グループの管理会社である「日鉄コミュニティ」により、安全・安心・快適な暮らしをサポートするための以下のサービスが提供されています。

  • トラブルサポート(水のトラブルや鍵の紛失対応など)
  • 家事代行サポート
  • シニア関連サポート
  • ヘルスケアサポート
  • 優待・割引サポート(旅行・スポーツ関連など)
  • 賃貸・売買仲介
  • 災害用備蓄のサポート

FLOOR PLAN 間取り図一例

安心と居心地の良さを
感じる上質な空間

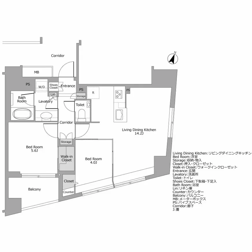
リビオレゾン千代田岩本町ルジェンテ 間取り図例
リビオレゾン千代田岩本町ルジェンテ 間取り図例
リビオレゾン千代田岩本町ルジェンテ 間取り図例
リビオレゾン千代田岩本町ルジェンテ 間取り図例

浄水器や食器洗い乾燥機・浴室暖房乾燥機が標準装備されています。

INSIDE THE ROOM 室内

暮らしの充足感を高める
高い機能性

キッチン・バスルーム・パウダールームなど、細部まで行き届いた設えにより心地の良い日常生活を支えます。

設備

浴室暖房乾燥機

天気の良くない日や夜間でも、洗濯物が乾かせるので大変便利です。さらに送風機能や暖房機能があるので、夏場や冬の入浴も快適になります。

浄水器内蔵混合水栓

キッチン

※画像はイメージです。

水道水(原水)と浄水を簡単に切り替えられるため、おいしいお水を飲用や料理ように気軽に利用できます。浄水器ごとホースが引き出せるので、使い勝手が良くお掃除もしやすいです。

食器洗い乾燥機

食器洗浄機

※画像はイメージです。

大量の食器を一気に洗浄でき、食後の後片付けの時間を短縮でき家事にゆとりが生まれます。衛生面でも安心できるとともに、引き出し式のため出し入れしやすく、システムキッチンのデザインと美しく調和しています。さらに、水道代が節約できることも食器洗い乾燥機の魅力です。

ACCESS 交通アクセス

東京の主要都市へ
ダイレクトにアクセス
できる街

こちらでは最寄りの「岩本町」駅から、主要エリアへの所要時間を紹介いたします。

鉄道

岩本町駅出口
岩本町駅出口
  • 六本木駅
    都営新宿線で「新宿」駅まで行き下車。都営大江戸線に乗り換えてアクセスします。所要時間は約32分です。
  • 新宿駅
    都営新宿線で直通で約14分。乗り換えの必要はありません。
  • 銀座駅
    都営新宿線で「小川町」駅に行き下車。東京メトロ丸ノ内線に乗り換えてアクセスします。所要時間は約13分です。
  • 恵比寿駅
    都営新宿線で「新宿」駅に行き下車。JR埼京線に乗り換えてアクセスします。所要時間は約32分です。
  • 渋谷駅
    都営新宿線で「九段下」駅に行き下車。東京メトロ半蔵門線に乗り換えてアクセスします。所要時間は約20分です。

タクシー

タクシー

※画像はイメージです。

リビオレゾン千代田岩本町ルジェンテからはすぐに靖国通りに出られ、数多くのタクシーが往来しています。交通状況にもよりますが、道が空いていれば「六本木」駅には約12分、「新宿」駅に約16分で到着できます。「銀座」駅には約8分、「東京」駅には約6分、「渋谷」駅には約20分、「品川」駅には約16分、「上野」駅には約6分でアクセスできます。

バス

バス

※画像はイメージです。

リビオレゾン千代田岩本町ルジェンテから、近くの神田金物通りにはバスが通っています。徒歩3分のところにある「岩本町一丁目」のバス停から千代田区役所まで約24分、九段下駅までは約18分でアクセスできます。徒歩6分のところにある「小伝馬町」のバス停から東京駅までは約14分で到着します。

空港

空港

※画像はイメージです。

羽田空港へのルート

①電車でのアクセス

ルート1:JR京浜東北線「神田」駅から「品川」駅で下車。京急本線・空港線に乗り換えて「羽田空港第3ターミナル」駅へ向かいます。リビオレゾン千代田岩本町ルジェンテからの所要時間は約38分です。
ルート2:JR京浜東北線「神田」駅から「浜松町」駅で下車。そこから東京モノレールに乗り換えて「羽田空港第1ターミナル」駅で降ります。リビオレゾン千代田岩本町ルジェンテからの所要時間は約39分です。

②リムジンバスでのアクセス

リビオレゾン千代田岩本町ルジェンテからリムジンバスに乗るには、タクシーで10分ほどでアクセスできる東京シティ・エアターミナルへ行きます。そこからエアポートリムジンバスが出ています。羽田空港までの所要時間は約49分です。

成田空港へのルート

①電車でのアクセス

ルート1:JR山手線「秋葉原」駅から「日暮里」駅で下車。京成スカイライナーに乗り換えて成田空港へ向かいます。リビオレゾン千代田岩本町ルジェンテからの所要時間は約62分です。
ルート2:都営浅草線「東日本橋」駅から「押上」駅より直通の京成押上線で「青砥」駅で降ります。そこから京成スカイライナーに乗り換えて成田空港へ向かいます。リビオレゾン千代田岩本町ルジェンテからの所要時間は約76分です。

②リムジンバスでのアクセス

リビオレゾン千代田岩本町ルジェンテからリムジンバスに乗るには、まずタクシーで10分ほどでアクセスできる「東京シティエアターミナル」へ行きます。そこからエアポートリムジンバスが出ており、そこから成田空港までは約65分です。

新幹線発着駅

「東京」駅へのルート

リビオレゾン千代田岩本町ルジェンテから「東京」駅に向かうためには、以下のルートが便利です。
ルート1:JR京浜東北線「神田」駅から向かいます。所要時間は約15分です。
ルート2:リビオレゾン千代田岩本町ルジェンテから徒歩6分のところにある「小伝馬町」のバス停を利用すると、東京駅まで約14分で到着します。
ルート3:リビオレゾン千代田岩本町ルジェンテからタクシーを利用すると、道が空いていれば東京駅まで約4分でアクセスできます。

「品川」駅へのルート

「岩本町」駅から「品川」駅に向かうためには、以下のルートが便利です。
ルート1:都営新宿線で「馬喰横山」駅に行き下車。徒歩でJR総武線「馬喰町」駅に向かい、「東京」駅から直通のJR横須賀線で向かいます。所要時間は約24分です。
ルート2:リビオレゾン千代田岩本町ルジェンテからタクシーを利用すると、道が空いていれば約16分でアクセスできます。

LIFE
INFORMATION 周辺の施設・店舗情報

秋葉原や神田など、
主要エリアに囲まれた
オフィス街

リビオレゾン千代田岩本町ルジェンテの周辺には、魅力的な商業施設や複合施設が集まっています。

商業施設、商店街

アキバ・トリム(徒歩9分/約650m)

アキバ・トリム
アキバ・トリム

アキバ・トリムは「秋葉原」駅の目と鼻の先にある商業施設です。Zoffや無印良品・UNIQLOなど日常的に利用する便利なお店があるため、地域住民が気軽に利用しやすいです。お洒落なカフェから特別な日に利用する高級レストランまで、さまざまな飲食店があるため目的にあわせて自由にお店を選べるでしょう。

まいばすけっと 岩本町駅南店
(徒歩5分/約400m)

まいばすけっと 岩本町駅南店
まいばすけっと 岩本町駅南店

まいばすけっと岩本町駅南店は、リビオレゾン千代田岩本町ルジェンテから徒歩5分の場所にある最寄りのスーパーマーケットです。23:00まで営業しており、帰宅が遅くなっても利用できます。日用品だけでなくお弁当やお総菜なども販売しており、中にはイートインスペースも設けられているため食事を簡単に済ませたい時にも便利です。

アトレ秋葉原(徒歩12分/約900m)

アトレ秋葉原1
アトレ秋葉原1

アトレ秋葉原はJR「秋葉原」駅内に直結した商業施設です。アトレ秋葉原1と2に分かれており、アトレ秋葉原1はショッピングモールが中心で、アトレ秋葉原2はレストランを中心に、さまざまなお店が出店してします。定期的にアイドルやアニメとのコラボレーション企画が開催され、幅広い年代の人に利用されています。

CHABARA AKI-OKA MARCHE
(徒歩13分/約1,000m)

CHABARA AKI-OKA MARCHE
CHABARA AKI-OKA MARCHE

CHABARA AKI-OKA MARCHEは、日本全国の食品をバイヤーが選りすぐりの薬味や調味料・精進料理などを集めた食の市場です。元々は神田青果市場があった場所で、現在でも食の流通拠点として賑わいを見せています。おいしい食べ物が手に入るだけでなく、生産者と消費者が繋がる場として、食の奥深さや伝統に触れられます。

自然、公園

龍閑児童公園(徒歩5分/約400m)

龍閑児童公園
龍閑児童公園

龍閑児童公園は日本橋小伝馬町の竹森神社の北側にある公園で、千代田区との区境に位置しています。和風の雰囲気と緑に癒される公園で、都会のオアシスとして休憩するにはちょうどいいでしょう。ベンチやトイレも整備されているため気軽に立ち寄りやすい公園です。春には見事な桜が咲き、お花見スポットとして利用できます。

神田川(徒歩5分/約400m)

神田川は吉祥寺の井の頭公園に始まり、東京都の台東区で隅田川に合流する全長約2500mの川です。江戸時代から市民の生活に欠かせない生活用水で、多くの歴史があります。春には川を沿うように桜が満開に咲き、多くの人々を魅了します。自転車・歩行者道路が整備されている区間もあるため、自然を感じながらウォーキングやサイクリングで汗を流すのも良いでしょう。

暮らし、インフラ

千代田区役所 和泉橋出張所
(徒歩7分/約550m)

千代田区役所 和泉橋出張所
千代田区役所 和泉橋出張所

千代田区役所和泉橋出張所は、地下1階・地上5階建ての行政施設です。区役所まで直接足を運ばなくても、住民票の発行などの行政サービスを簡単に済ませられます。最大で70人以上利用できる会議室などの貸し出しも行っており、区民館としての機能も併せもっています。防災備蓄倉庫も完備しているため、災害時にも頼りになるでしょう。

小伝馬町郵便局(徒歩6分/約450m)

小伝馬町郵便局
小伝馬町郵便局

リビオレゾン千代田岩本町ルジェンテの最寄りの郵便局で、徒歩6分でアクセスできるので手紙や荷物の配送を頼む際に便利です。郵便貯金や保険などの金融サービスも提供しているため、地域住民にとって身近で信頼のある金融期間としての一面もあります。

明和病院(徒歩9分/約700m)

明和病院
明和病院

明和病院は前身の同仁会から合わせると、100年以上の歴史を持つ病院です。透析とリハビリテーションができる療養病棟も50棟完備しています。また健康センターでは、健康予防も行っています。地元のかかりつけ医として、多岐にわたり地域住民の日々の健康をサポートしている医療機関です。

水天宮通り(徒歩1分/約50m)

水天宮通り
水天宮通り

水天宮通りは、名前の由来にもなった「水天宮」という安産祈願の神様が祀られている神社のある通りで、下町感溢れる情緒豊かな街並みが広がっています。赤い燈籠が並んでおり、通り沿いには老舗の飲食店から食べ歩きできるお店まで賑わっています。下町とオフィス街という2つの顔を持つ、バラエティ豊かな通りです。

幼稚園、保育園、学校

岩本町ちとせ保育園(徒歩2分/約160m)

岩本町ちとせ保育園
岩本町ちとせ保育園

千代田区立千代田幼稚園
(徒歩13分/約1,000m)

千代田区立千代田幼稚園
千代田区立千代田幼稚園

千代田区立和泉小学校(徒歩12分/約900m)

千代田区立和泉小学校
千代田区立和泉小学校

中央区立日本橋中学校(徒歩17分/約1300m)

中央区立日本橋中学校
中央区立日本橋中学校
              

イベント、お祭り

神田明神納涼祭り

神田明神納涼まつりは、江戸総鎮守である神田明神の境内で開催される夏祭りです。昔ながらの盆踊りや屋台だけでなく、秋葉原の文化と連動してキャラクターとのコラボによる「アニソン盆踊り」などユニークなイベントが人気です。老若男女問わず楽しめる納涼祭りで、毎年多くの人々で賑わいを見せています。

まとめ

全てが揃う街にある
モダンな都市型マンション

リビオレゾン千代田岩本町ルジェンテは、食料品から生活必需品が買えるお店はもちろん、駅、繫華街、郵便局、病院、区役所の出張所などが徒歩圏内に揃っており、生活に必要な全てが兼ね備えられています。どこかにお出かけする時にも複数の路線にアクセスできるため、ダイレクトに目的地までアクセスできます。ぜひ新生活を始める地として、検討してみてはいかがでしょうか。

リビオレゾン
千代田岩本町ルジェンテ

駅徒歩 不動産の表示に関する公正競争規約の改正(2022年9月1日)により、交通利便情報が販売中のものと異なる場合がございます。

都営新宿線
「岩本町」駅 徒歩3分

築年月

2020年5月

総戸数

65戸

階数

地上14階