旭化成不動産レジデンス アトラス表参道 Concept 青山・表参道と渋谷の間、独特の魅力のある渋谷二丁目、ブラウンとベージュのタイルで構成されたオーセンティックな印象の都市型マンション

アトラス表参道

東京メトロ銀座線 「表参道」駅 徒歩7分

角住戸率90%、多くの住居で2面開口

地上14階、総戸数49戸の都市型マンション

2025.03.14 公開

LOCATION ロケーション

都心に息づく新しい
渋谷の魅力
歴史と未来が交差する街

アトラス表参道 外観
アトラス表参道 外観

渋谷の中心から程近い渋谷二丁目。表参道の洗練された空気と、再開発で躍動する渋谷の活力が調和するエリアに位置するアトラス表参道。青山学院大学に隣接するこのエリアには、落ち着いた雰囲気と都会的な洗練が共存する独特の魅力を備えています。

渋谷スクランブルスクエアをはじめとする大規模再開発プロジェクトの進行で、さらなる発展が期待されるエリアの一角に位置しながら、カジュアルなカフェから本格的なレストランまで、多彩な飲食店が点在する街並みを形成。都心でありながらゆったりとした時間が流れ、居るだけで心地良い住環境が広がっています。

表参道駅
表参道駅

青山通りから六本木通りに抜ける道から一歩奥に入った閑静な住宅地に位置するアトラス表参道。青山学院大学付近の恵まれた環境には、商業・教育・文化が融合する多彩な魅力が息づいています。東京メトロ銀座線「表参道」駅徒歩7分、JRや私鉄各線が集まる「渋谷」駅も徒歩圏内という優れた交通利便性を誇り、居住者の快適な生活を実現します。

東京メトロ銀座線・半蔵門線・千代田線が乗り入れる「表参道」駅。銀座線は「渋谷」駅と「銀座」駅を結び、半蔵門線は「渋谷」駅まで直通でアクセスできます。千代田線は「霞ケ関」「大手町」方面への移動に便利で、ビジネス街への通勤にも最適です。

また、「渋谷」駅もほど近く、JR各線や私鉄各線への乗り換えも可能で、都内はもちろん、横浜・埼玉・千葉方面へのアクセスも快適。利便性の高い交通網が、快適な都市生活をサポートします。

渋谷ヒカリエ
渋谷ヒカリエ

周辺には渋谷ヒカリエや渋谷スクランブルスクエアといった大規模商業施設が近接し、日常の買い物から最新トレンドを取り入れたショッピングまで楽しむことができる、便利なロケーションです。

区民サービスセンターや金融機関なども充実しており、機能的な都市生活を実現できる環境です。

さらに、エリアには隠れ家的なレストランやカジュアルなカフェ、本格的なイタリアンやフレンチの名店が点在し、外食の楽しみも広がります。近隣には公園や緑地もあり、都会ならではの利便性と自然の潤いが融合した住環境が魅力です。「アトラス表参道」では、都市生活の便利さと心のゆとりを兼ね備えた毎日が待っています。

FEATURES 建物の特徴

ブラウンとベージュの
タイルで
構成された
オーセンティックな印象の
都市型マンション

アトラス表参道 外観
アトラス表参道 外観

アトラス表参道は、地上14階、総戸数49戸、ブラウンの濃淡を使ったタイル貼りの落ち着いた雰囲気の都市型マンションです。

コンセプト・デザイン

都心だからこそ住まいには解放感があってほしい。「アトラス表参道」はその理想を叶えるため、角住戸率90%を実現しました。多くの住戸で2面採光を確保し、明るい日差しと心地よい通風を存分に楽しむことができます。

さらに、プライバシーを重視しつつ落ち着いた住環境を提供するため、1フロアにはわずか3〜4戸のみを配置しています。長く続くアプローチは外部からの視線を自然に遮り、住まう人のプライバシーをしっかりと守りつつ、静かな安らぎを演出。また、外壁や樹木の高さに工夫を凝らし、敷地内に一歩足を踏み入れるたびに、都会の喧騒から解放されるような感覚を味わえる設計となっています。ホテルライクな内廊下の採用と相まって、都心にいながらも上質で心地よい居住空間を実現しています。

建物構造

アトラス表参道 外観
アトラス表参道 外観

乾式戸境壁・外壁

床・壁のコンクリート厚は、静かな室内環境をつくるための重要なポイント。遮音性と耐火性に優れた、乾式戸境壁を採用しています。また、外壁については断熱並びに結露の発生を低減する外壁を採用することで、経年劣化を防いでいます。

二重天井・二重床

床と天井には、二重構造を採用しています。この設計により、将来のメンテナンスやリフォームが容易になり、住まいの長期的な快適性を保つことができます。設備の更新や修繕が必要な際にも、構造への影響を最小限に抑えながら対応可能です。

基礎杭

基礎部分には、強固な支持地盤に到達する「杭基礎」が採用されています。この構造により、建物全体がしっかりと支えられ、安定性が高まると同時に、地盤の影響による傾きや沈下などのリスクを軽減しています。

アウトフレーム工法

バルコニー側の居室にはアウトフレーム工法が採用されています。この設計により、室内側に柱の出っ張りがほとんどなく、スペースを有効に活用することができます。柱が邪魔にならないため、家具の配置が自由で、ライフスタイルに合わせた多様なレイアウトを楽しむことが可能です。

防災設備

防火・遮音対策

強固な支持脚とパーティクルボードを使用したリフォームにも対応できる二重床・二重天井を採用。遮音性と耐火性に優れた乾式戸境壁も備え、万が一の火災時にも安全性を確保しています。

セキュリティ

セキュリティキー

セキュリティエレベーター

※画像はイメージです。

ポケットに入れたままで解錠できる「Tebraキー」を採用。さらに5兆5千億通りの鍵違いを実現した「F22シリンダーキー」を使用し、玄関扉の不正な開閉を検知し警備会社に通報する「防犯センサー」を設置することで、多層的な防犯システムを構築しています。

トリプルセキュリティ

風除室、エレベーターホール、各住戸玄関の3段階で来訪者をチェックする安全性の高いセキュリティシステムを採用。各住戸の玄関には、来訪者の確認ができるTVモニター付インターホンを設置しています。

オンラインセキュリティ

24時間稼働のオンラインセキュリティシステムにより、非常時には警備会社へ自動通報。エレベーター内に監視モニターを設置し、防犯対策を強化しています。また、共用部には防犯カメラを配置し、映像を記録することで安全性を高めています。

COMMON AREA 共用部

安全・安心を支える
充実の共用施設と管理体制

アトラス表参道 エントランス
アトラス表参道 エントランス

24時間有人管理や内廊下設計による高い快適性とプライバシーの両立を実現。宅配ボックスやAEDなどの利便施設を備え、居住者の日常生活から緊急時まで、きめ細やかにサポートする共用空間を創出しています。

共用施設

24時間有人管理

マンションの顔として、不在時の宅配物預かりやタクシー手配など、日常生活のさまざまなニーズに迅速に対応。緊急時の速やかな対処はもちろん、防犯カメラを活用しつつ館内巡回をすることで、居住者の安全・安心な暮らしを24時間体制で見守ります。

内廊下

外部と遮断された内廊下は、雨風や直射日光を避け、年間を通じて快適な温度を維持。プライバシーへの配慮と防犯性を高めながら、エントランスから住戸までの優雅な動線を創出します。

ペット足洗い場

散歩帰りにペットの足を綺麗に洗うことのできる、ペット足洗い場が準備されています。マンション内では飼育細則が設けられていますが、ペットと共に暮らしを楽しむことができます。

宅配ボックス

留守の際でも荷物を受け取ることができる宅配ボックスを設置し、居住者の快適な暮らしをサポートしています。

サービス

AED

心室細動などの心臓発作時に電気ショックを与えて心拍を正常に戻すAEDを設置。音声ガイドに従って誰でも使用でき、救急隊到着までの救命処置を可能にすることで、居住者の生命を守る「もしも」の備えとしています。

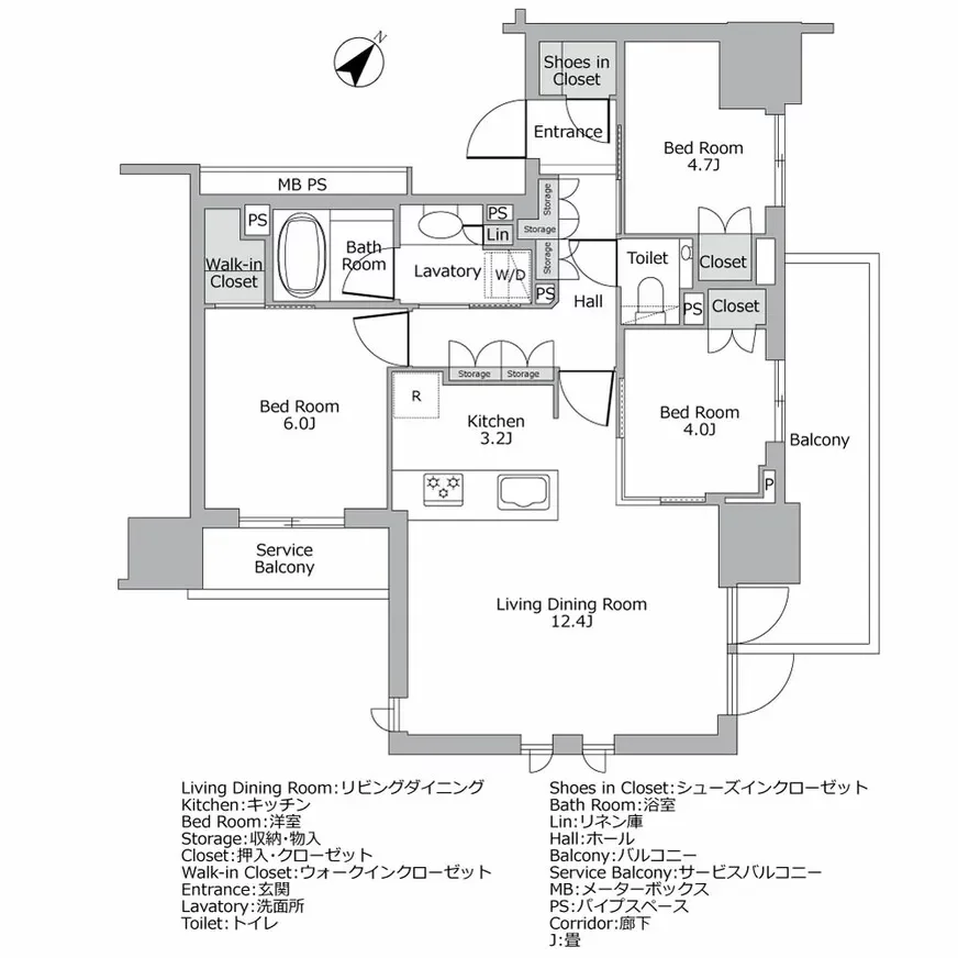
FLOOR PLAN 間取り図一例

多彩なニーズに応える、
効率的で快適な
間取りプラン

1Kから3LDKまで、二重床・二重天井による遮音性と耐火性を確保。各住戸に防犯センサーとTVモニター付インターホンを備え、温水式床暖房やディスポーザーなど、機能的で安心な住空間を提供します。

角住戸率が90%と非常に高く、多くの住戸が2面開口を確保しているため、開放感あふれる居住空間が魅力です。2方向から自然光と風を取り入れることができ、明るく快適な住環境を実現します。さらに、隣接住戸との接触面が少ないため、プライバシー性が高く、静かな居住空間を保ちやすい点も特長です。

アトラス表参道 間取り図例
アトラス表参道 間取り図例
アトラス表参道 間取り図例
アトラス表参道 間取り図例

INSIDE THE ROOM 室内

快適な暮らしを支える
洗練された設備と機能美

都市型マンションにふさわしい高品質な設備を採用。フィオレストーン製キッチンや温水式床暖房、人造大理石浴槽など、機能性とデザイン性を兼ね備えた設備を完備。多面採光と収納設計により、快適で上質な住空間を実現しています。

キッチン

キッチン

※画像はイメージです。

フィオレストーンキッチン天板は、傷つきにくく汚れに強い耐久性を備えています。GROHE社製水栓は浄水の使い分けやお湯と水の調整が容易です。生ごみを粉砕して流せるディスポーザーを設置し、清掃性の高いホーロー整流板付きレンジフードを完備しています。

食器洗浄設備

食器洗浄機

※画像はイメージです。

前面パネルで操作がしやすく、節水効果も高いビルトイン食器洗浄機を採用。また、フラットな天板と前面パネルで使いやすいガスコンロ「ペイズ」を設置しています。

リビング・ダイニング

リビング・ダイニングには「天井カセット型エアコン」を配置。足元から部屋全体を暖め、室内の空気も快適に保つ「温水式床暖房」を完備しています。

インターホン・収納

カラーモニター付きインターホンで訪問者の確認が可能。梅雨や花粉の時期に重宝する「室内物干し」を設置。ダブル保温構造の「サーモバス」で快適な暮らしをサポートします。

洗面・バスルーム

GROHE社製の美しく機能的な水栓や、高級感あふれ触感が滑らかな「人造大理石浴槽」を採用。デザイン性の高い200角の浴室タイルや、収納力のある「三面鏡収納」を完備しています。

トイレ・その他

すっきりとしたデザインのローシルエットトイレと、手洗いカウンターを設置。機能性とデザイン性を両立したスティックリモコンなど、細部まで配慮された設備を採用しています。

ACCESS アクセス

都心の主要エリアを結ぶ
交通網が織りなす利便性

表参道・渋谷エリアの閑静な住宅地に位置するアトラス表参道は、多彩な交通手段による優れたアクセス環境を有しています。東京メトロ銀座線「表参道」駅へ徒歩7分、JRや私鉄が集まる「渋谷」駅へも徒歩圏内という立地は、通勤や買い物など日常の移動を快適にします。

また、主要道路へのアクセスも良好で、タクシーや都営バスの利用で六本木、銀座、新宿などの都心エリアへスムーズに移動可能。羽田・成田両空港へは、リムジンバスや鉄道でのアクセスが可能で、国内外への移動も容易な環境です。

掲載の所要分数は日中平常時のもので、乗り換え・待ち時間等は含みません。
また時間帯により異なる場合があります。

鉄道

「表参道」駅は、東京メトロ3路線を利用でき、スムーズに都心を移動できます。銀座線の直通運転で「銀座」駅まで約14分、半蔵門線利用で「渋谷」駅まではわずか約1分。千代田線を利用すれば「二重橋前」駅から「東京」駅へ徒歩約15分でアクセスできます。ビジネス・レジャー双方の移動に便利な路線網を形成しています。

最寄り駅である「表参道」駅からの所要時間をご紹介いたします。

  • 「六本木」駅へ
     東京メトロ千代田線を利用し、「乃木坂」駅より徒歩で約9分
  • 「渋谷」駅へ
     東京メトロ半蔵門線を利用し、直通で約1分。
  • 「銀座」駅へ
     東京メトロ銀座線を利用し、直通で約14分。
  • 「東京」駅へ
     東京メトロ千代田線を利用し、「二重橋前」駅より徒歩で約15分。
  • 「品川」駅へ
     東京メトロ銀座線を利用し、「渋谷」駅でJR山手線に乗り換えて、約19分で到着。
  • 「新宿」駅へ
     東京メトロ千代田線を利用し、「明治神宮前」駅でJR山手線に乗り換えて、約11分で到着。

タクシー

タクシー

※画像はイメージです。

  • 「六本木」駅まで 約4分(約2,300m)
  • 「渋谷」駅まで 約3分(約750m)
  • 「銀座」駅まで 約10分(約6,200m)
  • 「東京」駅まで 約10分(約6,400m)
  • 「品川」駅まで 約14分(約10,100m)
  • 「新宿」駅まで 約10分(約4,400m)

バス

バス

※画像はイメージです。

青山通り沿いに、「渋谷二丁目」バス停があります。「渋谷駅」から「新橋駅前」まで通じる都営バスで、「渋谷駅」まで約4分、「新橋駅前」までは約34分の所要時間です。「アトラス表参道」から「渋谷二丁目」バス停まで徒歩で約2分(120m)です。

空港

空港

※画像はイメージです。

羽田空港へのルート

リムジンバス

「新宿ワシントンホテル」から「羽田空港」まで約45分。

鉄道

「渋谷」駅からJR山手線で「品川」駅に向かい、京急本線エアポート快特に乗り換え。「羽田空港第1・2ターミナル」駅まで約31分です。

成田空港へのルート

リムジンバス

「新宿ワシントンホテル」から「成田空港」まで約110分。

鉄道

「渋谷」駅からJR湘南新宿ライン 特急成田エクスプレスに乗れば、直通約74分で到着します。

新幹線

「東京」駅へのルート

  • ルート1:「渋谷」駅からJR山手線に乗り、「東京」駅で下車、所要時間は約27分です。乗り換えはありません。
  • ルート2:「渋谷」駅から東京メトロ銀座線(浅草行き)に乗り、「赤坂見附」駅で乗り換え。東京メトロ丸ノ内線(池袋行き)に乗り換え、「東京」駅で下車、所要時間は約18分です。乗り換えはありますが、早く到着できます。

「品川」駅へのルート

「渋谷」駅からJR山手線に乗り、「品川」駅で下車、所要時間は約13分です。乗り換えはありません。

LIFE
INFORMATION 周辺の施設・店舗情報

都市機能と文教地区が
調和する
洗練された
生活環境

「アトラス表参道」の周辺には、日常の生活に必要な店舗からトレンドを発信するおしゃれなショップまで、便利な施設が揃っています。また、近隣には自然を感じられる公園や文化施設もあり、都心にいながら快適で落ち着いた暮らしを楽しめる環境が整っています。

商業施設、商店街

ファミリーマート 渋谷二丁目中央店
(徒歩2分/約120m)

ファミリーマート 渋谷二丁目中央店
ファミリーマート 渋谷二丁目中央店

マンションから徒歩2分とアクセスが容易な、24時間営業のコンビニエンスストアです。近距離にあるため、日常の買い物や急な用事にも素早く対応でき、時間を効率的に使えます。早朝のお出かけや夜遅い帰宅時にも気軽に利用可能です。

渋谷ヒカリエ(徒歩9分/約650m)

渋谷ヒカリエ
渋谷ヒカリエ

渋谷ヒカリエは、鉄道9路線が乗り入れる「渋谷」駅東口に直結した、高層複合施設です。地上34階、地下4階から構成され、2012年に開業して以来、渋谷の新しいランドマークとして親しまれています。

商業施設、オフィス、劇場、イベントスペースが一体となった複合的な機能を持ち、訪れる人々に多彩な体験を提供しています。

MIYASHITA PARK(徒歩9分/約700m)

MIYASHITA PARK
MIYASHITA PARK

MIYASHITA PARKは、渋谷ならではのスポットで、買い物や食事、リラクゼーション、アクティビティなどを楽しめる、ミクスドユース型施設として2020年にオープンしました。屋上公園では、緑に囲まれた中でリラックスしたり、ランチを楽しんだりできます。

また、スケートボードやボルダリングなどの施設も併設されていて、アクティブに過ごしたい人にもおすすめです。

自然、公園

渋谷区立並木橋児童遊園地
(徒歩10分/約750m)

渋谷区立並木橋児童遊園地
渋谷区立並木橋児童遊園地

「渋谷」駅新南口からも近い、都心の小さな公園です。特に遊具はないものの、子供が走り回れるスペースや、水飲み場、トイレ、ベンチがあるので、ちょっとした休憩にも最適な公園です。

渋谷区立氷川の杜公園(徒歩10分/約800m)

渋谷区立氷川の杜公園
渋谷区立氷川の杜公園

「氷川神社」の境内に位置する公園で、豊かな緑と静けさに包まれた空間です。大きな木々が広がり、心を癒す落ち着いた雰囲気を楽しめます。

公園内には、日本の伝統文化を感じられる相撲の土俵があり、近くで見ることができます。また、滑り台やブランコ、鉄棒などの遊具も設置されており、子どもたちが楽しめる場所としても親しまれています。

暮らし、インフラ

シアター・イメージフォーラム
(徒歩2分/約130m)

シアター・イメージフォーラム
シアター・イメージフォーラム

このミニシアターは、映像文化の発展を目指す団体によって運営されており、国内外の多彩な映像作品を上映しています。館内には2つのスクリーンがあり、幅広いジャンルの映画を楽しむことができます。

渋谷区 区民サービスセンター
(徒歩8分/約600m)

渋谷区 区民サービスセンター
渋谷区 区民サービスセンター

区民サービスセンターは、渋谷ヒカリエ8階にある、渋谷区のサービスセンターです。帰路でも立ち寄りやすく、住所届出や印鑑登録、戸籍の届出、証明発行、健康保険や年金、児童手当の窓口となっています。

幼稚園、保育園、学校

青山学院幼稚園(徒歩6分/約450m)

渋谷区立常磐松小学校
(徒歩9分/約700m)

渋谷区立常磐松小学校
渋谷区立常磐松小学校

実践女子学園中学校高等学校
(徒歩6分/約450m)

実践女子学園中学校高等学校
実践女子学園中学校高等学校

渋谷教育学園渋谷中学高等学校
(徒歩9分/約700m)

渋谷教育学園渋谷中学高等学校
渋谷教育学園渋谷中学高等学校

青山学院大学青山キャンパス
(徒歩2分/約150m)

青山学院大学青山キャンパス
青山学院大学青山キャンパス

まとめ

洗練と躍動が調和する、
表参道と渋谷の結節点で
描く
新しい暮らし

アトラス表参道 レリーフ
アトラス表参道 レリーフ

都心の利便性と落ち着きある街並みが調和する渋谷二丁目。このエリアは、表参道の洗練された雰囲気と、100年に1度とも言われる大規模再開発によって日々進化を続ける渋谷の躍動感が融合した、他にはない魅力を備えています。

そんな特別な立地に位置するアトラス表参道は、現代的なデザインと機能性を兼ね備えた住まいです。交通の利便性はもちろん、周辺にはおしゃれなカフェや隠れ家的なレストラン、さらには自然を感じられる公園などが点在しており、暮らしの中にさまざまな楽しみをもたらします。また、再開発エリアとしてさらなる成長が期待される渋谷に隣接することで、未来に向けた発展の恩恵も受けられる点が大きな魅力です。

表参道の上質な空気感と渋谷のエネルギーあふれる街並み、この2つの異なる魅力が交わる希少なエリアにあるアトラス表参道で、洗練された暮らしをスタートしてみませんか。

アトラス表参道

駅徒歩 不動産の表示に関する公正競争規約の改正(2022年9月1日)により、交通利便情報が販売中のものと異なる場合がございます。

東京メトロ銀座線
「表参道」駅 徒歩7分

築年月

2021年6月

総戸数

49戸

階数

地上14階