モリモト ディアナコート御苑内藤町 Concept 四谷四丁目交差点から外苑西通りを神宮方面に進んだ右手、新宿御苑に隣接した新宿区内藤町、アースカラーを基調とした外観に効果的に配されたルーバーが建物にリズム感を生む、洗練された印象の外観

ディアナコート御苑内藤町

「四谷三丁目」駅 徒歩6分6駅5路線利用可

全邸角住戸

地上10階、総戸数38戸

2025.06.13 公開

LOCATION ロケーション

都市の華やぎと
緑の潤いのレジデンス

新宿御苑
新宿御苑

「ディアナコート御苑内藤町」は「新宿」駅と「四谷」駅の間に位置する歴史ある住宅街に佇む邸宅です。目黒通りと靖国通りを結ぶ外苑西通り。ハイセンスなショップやカフェが立ち並ぶ都心のメインストリートに誕生しました。

新宿御苑に近接しており、四季折々の素晴らしい景観を享受することができます。春は艶やかな桜が人の心を動かし、夏は鮮やかな緑が涼をもたらし、秋は紅葉が絵画のような風景をつくります。そして冬はうっすら雪化粧を纏った様子が深い静寂を呼びます。明治神宮外苑、赤坂御用地にもほど近く、豊かな自然があふれる場所です。春夏秋冬を愛でる歓びを享受する暮らしは、何よりの贅沢となるでしょう。

「新宿」駅周辺
「新宿」駅周辺

また、近隣では多くの再開発プロジェクトが進行中であり、未来の都市へと着実に進化し続けています。「四谷」駅には駅前にランドマークとなる「コモレ四谷」が2020年に竣工しました。外苑地区でも国立競技場の建て替えに続き、老朽化したスポーツ施設や歩行者導線の改善を目的としたプロジェクトが進行中です。新宿駅では「グランドターミナル構想」として世界有数のターミナル駅を目指す大きなプロジェクトが動いています。今後さらなる発展が期待できる魅力的なエリアです。

また、ディアナコート御苑内藤町の最寄り駅は東京メトロ丸の内線「四谷三丁目」駅で、徒歩6分の距離にあります。そして、東京メトロ丸の内線の「新宿御苑前」まで徒歩7分、都営大江戸線「国立競技場」駅まで徒歩10分、JR総武線「千駄ヶ谷」駅まで徒歩11分、「信濃町」駅まで徒歩13分、都営新宿線「新宿三丁目」駅まで徒歩14分と、6駅5路線が利用可能な便利な立地です。

FEATURES 建物の特徴

美しく誇らしく 
存在感ある邸宅

ディアナコート御苑内藤町 アプローチ
ディアナコート御苑内藤町 アプローチ

新宿区内藤町に2020年3月に竣工したマンションです。地上10階建てのRC構造で総戸数は38戸です。

コンセプト・デザイン

ディアナコート御苑内藤町 外観
ディアナコート御苑内藤町 外観

スタイリッシュかつダイナミックな存在感のある建物は、多くの受賞歴を持つ「建築家・渡辺純」のデザイン。

由緒ある内藤町に相応しいレジデンスとなるために重厚感とモダンな感覚を大切にしました。効果的に配されたルーバーがリズム感を与え、ガラス手摺りのバルコニーがアクセントとなっています。下層階をスクエアでなく斜めにレイアウトし、シンプルながらモダンアートのような独創的なフォルムとなっています。また、アースカラーを基調とした落ち着いた配色が周辺の自然環境に溶け込むように調和しています。

土の魅力を感じるタイルや石など、マテリアルのひとつひとつが吟味され、厳選された上質な素材を使用。それらの素材を適材適所に使用することで、高級感と心地よさのある空間を実現しています。

建物構造

コンクリート

一般に使用するコンクリートの設計基準強度である18~24N/㎟(1㎡あたり約1,800〜2,400トンの圧縮に耐える性能)を上回る約30N/㎟以上のコンクリートを採用しています。この数値は日本建築学会「建築工事標準仕様書」において「設計基準強度がFc30N/㎟ であれば構造体の大規模な修繕をしなくても100年はもつ」といわれているものです。また、水セメント比を50%以下(杭及び非構造体コンクリートを除く)に設定。かぶり厚さもJASS5(建築工事標準仕様書)に準拠した高い耐久性をクリアしています。
住居間の床コンクリートの厚みを約200mmとし二重床工法にすることで、遮音性に配慮しています。

ダブル配筋

主要構造部にあたる壁は鉄筋を二列に配置ダブル配筋とし、高い強度と耐久性を実現します。

溶接閉鎖型フープ

コンクリート構造の柱や梁の補強に使用されるフープ筋を特殊溶接によって継ぎ目を閉じた形に加工した帯筋を採用。コンクリートを拘束する能力が高く、継ぎ目の弱点をなくしたことで、大地震時の粘り強さに優れています。

強固な基礎構造

合計18本の現場造成杭を地中深く(深度約25m)にあるN値50以上の支持層に貫入するところまで打ち込んでいます。建物をしっかりと支え、沈下しにくく、耐久性と耐震性を確保しています。

サッシ

窓やサッシの気密性能(すきまからの空気漏れの少なさ)に優れた、JIS規格(JIS A 4706)に基づく気密等級A-4のアルミサッシを採用。冷暖房時の熱損失を抑える、防音性能の向上、砂やほこりの侵入を抑えるといった効果があります。

住宅性能評価書

国土交通大臣が指定する第三者機関が品質・性能を評価する住宅性能表示制度により「ディアナコート御苑内藤町」は「設計住宅性能評価書」「建設住宅性能評価書」の取得を予定しています。

劣化対策等級

建物の耐久性(長期間にわたり安全に使用できるか)を評価する指標で、住宅性能表示制度における劣化対策等級で最高の「3」を取得。概ね75~90年の耐久性を実現しています。

断熱等性能等級

住宅の断熱性能(室内の温度を快適に保つ性能)を示す指標です。複層ガラスや断熱材の採用により最高級の「4」を取得(2025年現在は7段階となっています)。断熱性に配慮することで省エネになり環境にも貢献します。

防災設備

防災倉庫

共用施設として災害時に備えて必要な物資を保管する防災倉庫を設置しています。

防災倉庫収納備品

担架・ヘルメット・トイレ・毛布・ブルーシート・軍手・懐中電灯・ポリタンク・その他

セキュリティ

24時間セキュリティシステム

住民の安心と安全を確保するために、警備会社と提携した24時間セキュリティシステムを導入。各住戸から異常信号が発信された場合には、24時間体制でスタンバイする警備員が現場へ出動。建物内の各種設備(各ポンプやエレベーターなど)の異常発生の場合も緊急要員が現場へと出動し、復旧作業を行います。※住戸内の非常警報は警備会社へ通報されます。

TVモニター付きオートロックシステム

セキュリティエレベーター

※画像はイメージです。

風除室と各住戸玄関で、来訪者を二重チェックできるオートロックシステムを採用しています。インターホン親機にて風除室のテレビカメラ付集合インターホンで来訪者を確認の後、オートロック解錠ボタンで扉を解錠できます。来訪者はエレベーター内で訪問階のボタンのみ押すことが可能となっています。各住戸の玄関前インターホンで音声確認してから解錠できます。
居住者は、ハンズフリーシステム「Tebra」にて、手を使わずにオートロックと玄関ドアの解錠が可能です。
高いセキュリティと優れた利便性で、快適で安心できる生活空間を提供しています。

防犯(窓)センサー

防犯警戒中にセンサーが設置された窓を開けたり、窓ガラスが割られたりすると、インターホン親機にて音声警報を発し、周辺に異常を伝えると共に警備会社にも通報します(FIX窓・一部の窓を除く)。外出時や就寝時のセキュリティを高めます。

COMMON AREA 共用部

シンボルツリーが
迎えてくれる
洗練のエントランス

シンプルながら高級感のあるエントランス。
日々の始まりに豊かさを感じさせるシンボルツリーが住まう人を迎えます。

共用施設

エントランス

ディアナコート御苑内藤町 エントランス
ディアナコート御苑内藤町 エントランス

段違いに設えた大きなルーフポーチに季節の植栽が彩りを添えた素敵なファサードのアプローチ。エントランスから一歩入ると上質な空気を纏った心地の良い空間が広がり、住まう人やゲストを温かく迎え入れてくれます。

内廊下

ホテルライクな贅にあふれた空間を演出する内廊下です。風や雨の影響を受けず住戸へアクセスでき、プライバシー性とセキュリティ性を高めています。住まう人が快適に暮らせる設計です。

宅配ボックス

不在時でも荷物を受け取れる宅配ボックスを設置。対面不用で24時間受け取り可能であり、防犯性も高いので安心です。

駐車場

ディアナコート御苑内藤町 駐車場
ディアナコート御苑内藤町 駐車場

機械式駐車場が6台分、来客用兼障害者用平置1台分があります。
バイク置場は2台ご用意。駐輪場は2段式と、平置ラック式の2種類を全51台設置しています。

サービス

24時間使い放題のインターネットサービス

専用回線を導入し、24時間インターネットを使い放題で利用できる環境を整備。快適で充実したデジタルライフを楽しむことができます。

ペット飼育可

大切なご家族の一員としてペットの飼育が可能です(ペットの種類等には制限がございます)。

スカパー!光

光ファイバーを利用したサービス、「スカパー!光」を導入しています。地上デジタルやBSデジタルなど、多彩なコンテンツを楽しむことが可能です(一般放送以外は別途契約が必要となります)。

24時間ゴミ出し可能

24時間利用可能なゴミ置き場を設置しています。時間に縛られずいつでも捨てられて便利さだけでなく、ゴミを長期間家に置いておくストレスもありません。脱臭機つきで気になるニオイも防ぎます。

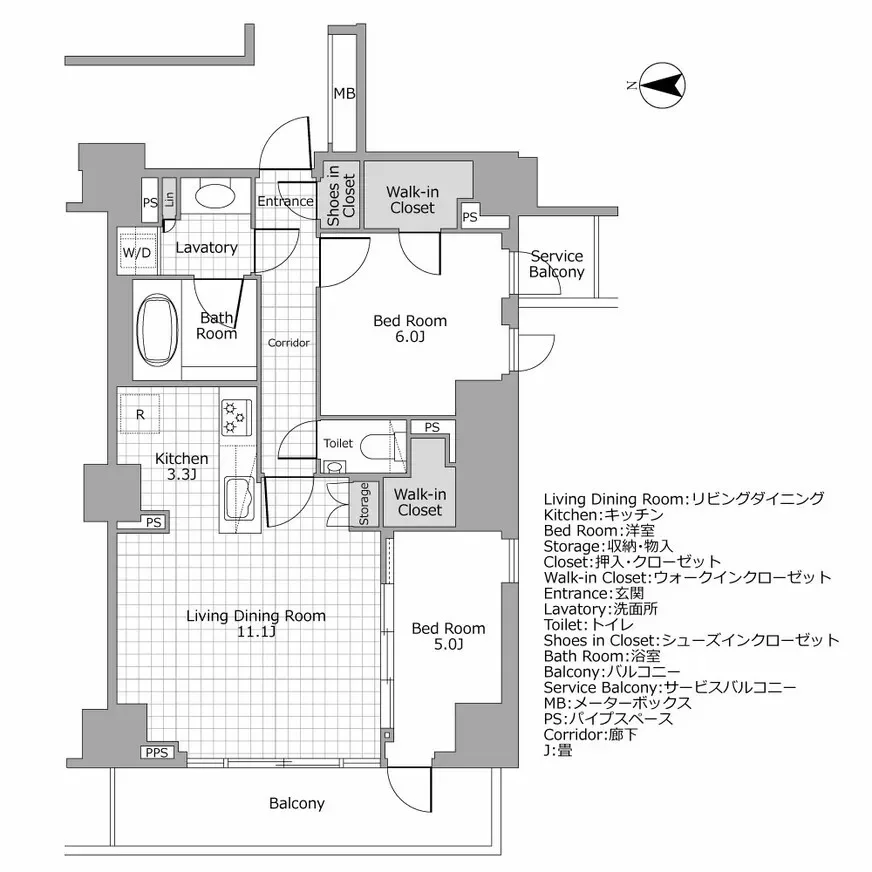
FLOOR PLAN 間取り図一例

全邸各住戸
ライフスタイルに合わせた多彩なプラン

ディアナコート御苑内藤町 間取り図例
ディアナコート御苑内藤町 間取り図例
ディアナコート御苑内藤町 間取り図例
ディアナコート御苑内藤町 間取り図例

専有面積40.78㎡~121.50㎡、コンパクトながらも機能性に優れた1LDKからファミリー向けの3LDKまで様々なライフスタイルに対応。
全邸が独立性の高い角住戸となります。開口部を多くとることで、採光に優れ、風の通りも良くなるなど、開放感と心地よさに満ち溢れた日常を享受できます。

INSIDE THE ROOM 室内

快適さと機能美を
追求した居住空間

24時間換気システムを採用。快適で安心な生活空間を目指した設計が施されています。
玄関や廊下、洗面化粧室・レストルームの床は風合い豊かで高品質な石目調磁器質タイル貼りとしています。

エントランス

プッシュプルドアハンドル付き玄関ドア

押す・引くのワンアクションで開閉できる玄関ドアを採用。

センサー付き照明

玄関には人に反応し、自動で点灯・消灯する照明を採用。

下足入れ

豊富な収納力をもつ下足入れは、扉内にスリッパ掛け、ワイヤーラックを設けました。宅急便の際の印鑑やペンを収納できる小物入れもあり、随所に工夫が盛り込まれた機能的な収納スペースとなっています。

廊下

片側の壁に天然木を使用した突板パネル張りを施した廊下。温かみと高級感を演出しています。

廊下足元保安灯

廊下には夜間に足元を照すフラットライト(足元灯)を設置しています。取り外して懐中電灯として利用することが可能です。

リビング・洋室

TES温水式床暖房

床暖房

※画像はイメージです。

リビング・ダイニングには足下からじっくり暖めるTES温水式床暖房を設置。無風なためほこりが舞いにくく、省エネ性能も高いので、快適で健康的な室内環境に配慮しています。

クローゼット

木目調オレフィンシートで仕上げたクローゼットです。扉の裏には、ミラーとネクタイ掛けを設置。忙しい朝の身支度をサポートします。

キッチン

浄水器一体型水栓(アンダーシンクタイプ)

キッチン

※画像はイメージです。

高性能浄水カートリッジを内臓したすっきりとしたデザインです。ホースが引き出せるので、シンクのすみずみまで洗浄できます。また、ガス使用量が約41%軽減できる節湯タイプです。

食器洗い乾燥機

食器洗浄機

※画像はイメージです。

ビルトインタイプの食器洗い乾燥機を設置。高温洗浄でしっかり洗えて衛生的です。手洗いと比べて、節水にも時短にもなるうれしい設備です。

天板クォーツストーン(シーザーストーン)

キッチンのカウンタートップは高級感あふれるクォーツストーンを採用。天然石の風合いを再現した美しい仕上がりです。傷やひび割れに強く、デザイン性と耐久性を兼ね備えています。

ワイド静音シンク

奥行をたっぷりとった、ワイドサイズで作業がしやすく、約35dBの静音仕様

水切りプレート

調理スペースを広げ、作業効率を高める水切りプレートを採用。見た目もすっきりです。

ディスポーザー

ディスポーザー

※画像はイメージです。

シンクに流した生ゴミを排水口で細かく粉砕・分解してそのまま下水に流します。いつでも簡単に処理が可能で衛生的であり、ゴミの量が減るというメリットもあります。

3口ガラストップコンロ

美しいデザインのガラスラップコンロを採用。強化ガラス製のため、耐熱性・耐久性が高く、割れにくいという特徴があります。油汚れや焦げ付きがつきにくく、拭くだけで簡単に綺麗になるお掃除のしやすさも魅力です。

ステンレスレンジフード

吸い込み力があり、耐久性が高いステンレス製を採用。整流板を取り付け、吸い込み風速が加速。外へ逃げようとする油煙を捕まえます。油汚れをはじきやすく、簡単に拭き取ることができます。

キャビネット

システムキッチン収納

※画像はイメージです。

キッチンカウンターの下にはフルスライド式の大容量キャビネットを設置。引き出しを軽く押すだけで閉まるソフトクローズ仕様です。シンクキャビネットは水まわりの大型アイテムが余裕をもって収納できます。コンロキャビネットはスパイスラックを採用しました。調味料を整然と収納して、キッチンスペースを有効に使えるようにしました。シンク前のデッドスペースを活用して包丁差しを設置。かがまずにスムーズに作業をすることができます。

パウダールーム

シングルレバー混合水栓

デザイン性が高いドイツ・グローエ社製の水栓を採用しました。ひとつのレバーで水量や温度の調節ができ、ホースが伸びるため、洗面ボウルの隅々までお掃除が簡単です。

陶器製アンダーボウル

シーザーストーンのカウンタートップにスクエアタイプの陶器製ボウルを合わせました。高級感を醸し出すすっきりとした美しい仕上がりでお手入れも簡単です。

ミラーキャビネット&収納スペース

三面鏡の裏側にスペースを有効に活用したキャビネットを設置。化粧品や洗面用品がすっきりと収納できます。
排水溝を奥に設けることで、下部に広い収納スペースを確保しました。細かいメイク用品などが整理できる洗面ポケット、足元にはヘルスメーターを収納できるスペースも確保し、機能的な収納を叶えます。

バスルーム

壁に400角の磁器質タイルを贅沢に配したバスルーム。カウンターには御影石を採用し、上質なリラクゼーション空間を演出します。

フルオートバス

お湯張りから追い炊きまでボタンひとつで操作可能です。

スライドバーシャワー水栓

シャワーの高さをスライドして調整できるシャワー水栓です。身長に合わせて心地よくお使いいただけます。

ミストサウナ

浴室暖房乾燥機に美容と健康をサポートするミストサウナ機能が標準装備。高湿度のため肌にも呼吸器にも優しく、穏やかな温度と湿度によるリラックス効果があります。心身ともに安らげる贅沢なバスタイムを提供します。

手摺りバー

浴槽には高齢や小さいお子様にも安心な手摺りバーを設置。浴槽に入る際や立ちあがる際のサポートとして使用できます。

ポップアップ排水栓

押すだけで排水溝の開閉ができる排水栓を採用。浴槽に残ったお湯をワンプッシュで簡単に排水できます。

レストルーム

タンクレストイレ

タンクをなくし、スタイリッシュなデザインのトイレをご用意しました。空間が広く感じられ、お手入れも簡単です。

トイレリモコン

シンプルなデザインで操作性が高く、簡単にご利用いただけます。手元で操作ができる便利で快適な設備です。

手洗いカウンター

レストルーム内にドイツ・グローエ社製の自閉式単水栓と鏡をセットで設置しました。ゲストが人目を気にすることなくお化粧直しができます。

ACCESS アクセス

「四谷三丁目」駅
・「国立競技場」駅を
利用してスマートアクセス

ディアナコート御苑内藤町の最寄り駅は東京メトロ丸の内線「四谷三丁目」駅で、徒歩6分の距離にあります。さらに都営大江戸線「国立競技場」駅まで徒歩10分と、複数の路線が利用可能です。
東京の各主要エリアへ直通アクセスができ、「新宿」駅へはわずか4分、「六本木」駅や「渋谷」駅へも短時間で到着できます。通勤・通学に限らず休日のお出かけにも大変便利です。

こちらでは東京メトロ丸の内線「四谷三丁目」駅・都営大江戸線「国立競技場」駅から主要エリアへの所要時間をご紹介します。

掲載の所要分数は日中平常時のもので、乗り換え・待ち時間等は含みません。
また時間帯により異なる場合があります。

鉄道

「四谷三丁目」駅
「四谷三丁目」駅

「四谷三丁目」駅からのアクセス

  • 東京メトロ丸の内線「四谷三丁目」駅から「霞ケ関」駅で東京メトロ日比谷線に乗り換えて「六本木」駅に到着します。所要時間は約14分です。
  • 東京メトロ丸の内線「四谷三丁目」駅から「新宿三丁目」駅で東京メトロ副都心線に乗り換えて「渋谷」駅に到着します。所要時間は約10分です。
  • 東京メトロ丸の内線「四谷三丁目」駅から直通で「銀座」駅まで約11分です。
  • 東京メトロ丸の内線「四谷三丁目」駅から直通で「新宿」駅まで約4分です。

「国立競技場」駅からのアクセス

      
  • 都営大江戸線「国立競技場」駅から直通で「六本木」駅まで約4分です。
  • 都営大江戸線「国立競技場」駅から「青山一丁目」駅で東京メトロ半蔵門線に乗り換え、「渋谷」駅に到着します。所要時間は約7分です。
  • 都営大江戸線「国立競技場」駅から「青山一丁目」駅で東京メトロ銀座線に乗り換え「銀座」駅に到着します。所要時間は約12分です。
  • 都営大江戸線「国立競技場」駅から直通で「新宿」駅まで約4分です。

タクシー

タクシー

※画像はイメージです。

行き先 所要時間
「六本木」駅 約11分
「渋谷」駅 約16分
「銀座」駅 約15分
「新宿」駅 約7分

所要時間は道路事情により、実際と異なる場合があります。

バス

バス

※画像はイメージです。

マンションから徒歩3分の「四谷四丁目」バス停は、都営バスの早81系統(早稲田正門~渋谷駅東口)と品97系統(品川車庫前~新宿駅西口)が運行されています。

空港

空港

※画像はイメージです。

羽田空港へのルート

①電車

東京メトロ丸の内線「四谷三丁目」駅から「赤坂見附」駅で東京メトロ銀座線に乗り換え、「新橋」駅へ。その後、都営浅草線に乗り換え、「泉岳寺」駅から京浜急行に乗り換えます。所要時間は約32分です。

②車

所要時間は約31分です。

③リムジンバス

「小田急ホテルセンチュリーサザンタワー」からリムジンバスが運行しています。所要時間は約85分です。

成田空港へのルート

①電車

東京メトロ丸の内線「四谷三丁目」駅から「東京」駅でJR総武本線特急成田エクスプレス成田空港行きに乗り換えます。所要時間は約68分です。

②車

所要時間は約70分です。

③リムジンバス

「小田急ホテルセンチュリーサザンタワー」からリムジンバスが運行しています。
所要時間は約145分です。

新幹線発着駅

「東京」駅へのアクセス

①東京メトロ丸の内線「四谷三丁目」駅から直通で14分です。
②タクシーなど車利用での所要時間は約18分です。

「品川」駅へのアクセス

①東京メトロ丸の内線「四谷三丁目」駅から「赤坂見附」駅で東京メトロ銀座線へ。「新橋」駅からはJR東海道線に乗り換えます。所要時間は約17分です。
②タクシーなど車利用での所要時間は約24分です。

LIFE
INFORMATION 周辺の施設・店舗情報

都会と自然が調和する
充実の都市機能

ディアナコート御苑内藤町の周辺には、新宿御苑をはじめ、高級レストラン、ショッピング街、医療機関が揃い、日常生活をサポートする都市機能が充実しています。都会の利便性と自然の恵みが調和したこのエリアで快適な生活を楽しむことが出来ます。

商業施設、商店街

アトレ信濃町(徒歩14分/約1,100m)

アトレ信濃町
アトレ信濃町

JR「信濃町」駅に直結しており、様々なショップやレストランが入っています。2階にはクリニックがあり、医療サービスも提供されています。日常の買い物や食事に便利な施設として地域の人々に愛されています。

まいばすけっと 新宿外苑西通り店
(徒歩4分/約260m)

まいばすけっと 新宿外苑西通り店
まいばすけっと 新宿外苑西通り店

まいばすけっとは、イオン系列の小型スーパーマーケットチェーンです。便利な立地と豊富な品揃えが魅力で、日用品や食品を手軽に購入できる便利な店舗です。

マツモトキヨシ千駄ヶ谷店
(徒歩14分/約1,100m)

マツモトキヨシ千駄ヶ谷店
マツモトキヨシ千駄ヶ谷店

JR「千駄ヶ谷」駅から徒歩1分の便利な立地にあるドラッグストアです。医薬品、化粧品、日用品などの他に食品も取り扱う日常使いしやすい豊富な品揃えがある店舗です。

自然、公園

国立競技場(徒歩12分/約950m)

国立競技場
国立競技場

2020年、東京オリンピックのメインスタジアムとして使用された、日本を代表するスタジアムです。「杜のスタジアム」をコンセプトに、日本の伝統的な建築美を活かしたデザインは、建築家の隈研吾氏が手掛けました。

聖徳記念絵画館(徒歩17分/約1,300m)

聖徳記念絵画館
聖徳記念絵画館

明治神宮外苑にある美術館です。明治天皇と昭憲皇太后の事績を描いた壁画が展示されています。大正15年に竣工したコンクリート造の建物は、近代日本の名建築として国の重要文化財に指定されています。明治神宮外苑のシンボルとして、美しい景観の一部になっています。

多武峯内藤神社(徒歩4分/約280m)

多武峯内藤神社
多武峯内藤神社

新宿区内藤町に位置する神社です。江戸幕府の重臣であった内藤清成が、家祖である藤原鎌足公を祀るために創建しました。歴史的背景と深い緑を持つ神社として地域の人々に愛されています。

大京公園(徒歩5分/約350m)

大京公園
大京公園

新宿区大京町に位置する公園です。外苑西通りからひとつ中に入った住宅街の中にありますが、緑が多くて静かな環境です。地域の憩いの場として人々に親しまれている場所です。

暮らし、インフラ

四谷区民センター(四谷特別出張所)
(徒歩3分/約200m)

四谷区民センター
四谷区民センター

新宿区内の住民が利用できる公共施設です。さまざまな行政サービスや文化活動の拠点となっています。多目的に利用できる複合施設で、四谷地域センター、四谷区民ホール、四谷図書館、新宿区四谷特別出張所などの施設が入っています。区民センター2階の四谷特別出張所では、住民票の写しや印鑑登録証明書の交付、各種届出の発行など、区民の生活に密接に関わる行政サービスを提供しています。

慶應義塾大学病院(徒歩6分/約480m)

慶應義塾大学病院
慶應義塾大学病院

新宿区信濃町に位置する慶應義塾大学医学部の附属病院です。研究・教育・医療の三位一体で高い医療を提供する日本屈指の大学病院のひとつです。多くの診療科を持ち、難病や重症疾患にも対応し、特定機能病院としても認知されています。

四谷大木戸郵便局(徒歩1分/約80m)

四谷大木戸郵便局
四谷大木戸郵便局

新宿区内藤町に位置する郵便局です。郵便サービス、貯金、保険などの金融サービスを提供している地域に密着した施設です。

幼稚園、保育園、学校

新宿区立四谷第六小学校・幼稚園
(徒歩8分/約610m)

新宿区立四谷第六小学校・幼稚園
新宿区立四谷第六小学校・幼稚園

新宿区立四谷中学校(徒歩19分/約1,470m)

新宿区立四谷中学校
新宿区立四谷中学校

イベント、お祭り

神宮外苑花火大会

神宮外苑花火大会は、毎年8月に神宮外苑で開催される花火大会で、100万人ほどの観客が訪れます。東京の夏の風物詩として広く親しまれている人気のイベントです。約1万発の花火が打ち上げられ、豪華な演出が人々を魅了します。

神宮外苑いちょう祭り

毎年秋に明治神宮外苑で開催されるイベントです。黄金色に染まるいちょう並木は圧巻の美しさです。夜間にはライトアップされ、幻想的な雰囲気に包まれます。地元のグルメや様々な屋台が並び、美しい風景と共に多彩なイベントを楽しむことができます。

まとめ

都会の躍動に溶け込む、
静謐の住まい

ディアナコート御苑内藤町は、モリモトのプレミアムブランド「ディアナ」シリーズのひとつです。「ディアナ-月の女神」の名を冠とし、利便性の高い立地、こだわりのマテリアル、上質なデザインを纏う、都心邸宅のあるべき姿を追求した都市型レジデンスです。

新宿御苑の自然豊かな緑を望むエリアに位置し、閑静な内藤町の環境と、都心の利便を両立。歴史ある文化や最新の都市機能が揃い、快適な都市生活の中で、ゆとりある落ち着いた暮らしを実現します。ロケーションの魅力だけでなく、気品のあるデザイン、快適な室内空間、便利な周辺施設、そして万全のセキュリティにより、洗練された空間と安心の住環境が、日常に豊かさをもたらします。

ディアナコート御苑内藤町

駅徒歩 不動産の表示に関する公正競争規約の改正(2022年9月1日)により、交通利便情報が販売中のものと異なる場合がございます。

東京メトロ丸ノ内線
「四谷三丁目」駅 徒歩6分

築年月

2020年3月

総戸数

38戸

階数

地上10階