三井不動産レジデンシャル パークコート千代田駿河台
ヒルトップレジデンス
Concept 歴史と静寂、豊かな緑に囲まれた千代田区駿河台。その独特な景観に溶け込みながらも静かに存在感を放つ、上質を纏った逸邸

パークコート千代田駿河台ヒルトップレジデンス

千代田区駿河台の丘の上

地上18階、総戸数50戸のヒルトップレジデンス

「水道橋」駅 徒歩6分「御茶ノ水」駅徒歩8分

2025.01.31 公開

LOCATION ロケーション

歴史が息づく文教の街・
千代田駿河台

パークコート千代田駿河台ヒルトップレジデンス アプローチ
パークコート千代田駿河台ヒルトップレジデンス アプローチ

「水道橋」駅から神田川に沿って坂を上り、アテネフランスの角を右にそれた駿河台の丘の上にある「パークコート千代田駿河台ヒルトップレジデンス」。
千代田駿河台は、江戸時代、徳川家康に国元の駿河から付き従ってきた家臣たちを住まわせていたことからその名がついたといわれいます。当時は、多くの武家屋敷が立ち並んでいる場所でした。
明治時代になるとその姿を変え、その武家屋敷跡に明治大学、日本大学、中央大学などが設立され文教の街として風格を放つようになりました。現在では大学病院などの医療機関も多いエリアです。
周辺には、街路樹が豊かに配され、小石川後楽園や神社仏閣など歴史や文化を身近に感じとれる魅力ある住環境です。

小石川後楽園
小石川後楽園

徒歩10分圏内に「水道橋」駅、「御茶ノ水」駅、「新御茶ノ水」駅、「神保町」駅があり、全4駅7路線を利用することが可能で、アクセスにもとても優れている立地です。
また、徒歩圏内に東京ドームシティや「本の街」と呼ばれるアカデミックな雰囲気のある神田神保町があり、大人にとっても子供にとっても、様々な楽しみに溢れているのも魅力のひとつです。

FEATURES 建物の特徴

洗練と重厚が調和した
建物デザイン

コンセプト・デザイン

駿河台の丘の上の景観に溶け込みながらも、品よく存在感を放つ奥行きと深さを感じさせる建物です。
その凛とした姿は、まるで初めからそこにあったかのように堂々と佇んでいます。
壁はレンガ調、エントランスにはアイアンの装飾が施されていて、洗練と重厚が調和した上質な雰囲気です。

建物構造

パークコート千代田駿河台ヒルトップレジデンス 外観
パークコート千代田駿河台ヒルトップレジデンス 外観

防災設備

しっかりとした地盤調査を経て、建物の荷重を鉄筋コンクリート造の拡底杭により地下約32mの支持地盤に伝えることで、地震に強い基本構造を実現しています。使用しているコンクリートの品質にもこだわった建物です。
さらに、災害時に備えた設備も各所に装備されています。

家具転倒防止対策

リビング、ダイニング、洋室の壁には、家具の設置を想定し、家具転倒防止用金具を取り付けられる下地材になっています。

キッチン吊戸棚耐震ラッチ・
棚板脱落防止用ツメ

地震の揺れによって、棚の中のものが飛び出したり、中の棚が崩れたりしないための器具が付けられています。

耐震ドア枠

地震によって、ドア枠が変形してもドアが開かなくならないよう配慮した玄関ドア枠を使用しています。

足元停電灯

停電すると同時に自動で点灯します。非常時は取り外して携帯電灯としても使用可能です。

管制運転付エレベーター

エレベーターは、壊れにくく復旧しやすい耐震クラスS仕様の非常用エレベーターを採用。また地震管制装置も装備されています。停電時には、専用バッテリー電源で非常運転し、天井の停電灯が点灯。さらに、停電時でも外部と連絡をとることができるインターホンも装備されています。

強化ガラス

エントランスホールは、衝撃に強く割れにくい合わせガラス、または強化ガラスが使用されています。

非常用発電設備

災害時に停電になった場合は、非常用発電機が作動し、共用部などへ電力供給します。

非常用水貯留槽

災害時でも1階管理用トイレの使用ができるよう、非常用水貯留槽を設けています。

防災倉庫・災害対策拠点

防災備品を収納した倉庫が設置されています(1、2~11、13〜18階)。また、災害対策拠点をエントランスホールとし、共助活動を行う場所としています。

セキュリティ

暮らしを守る安全対策

エレベーターの防犯対策

セキュリティエレベーター

※画像はイメージです。

行き先ボタン、非常用通報ボタンは、お子様が操作できる位置に設定。1階エレベーターホールには、エレベーターの中の様子がわかるようモニターが設置されています。

ダブルオートロック

メインエントランスには、居住者や訪問者と一緒に侵入するのを抑止するダブルオートロック方式のカメラ付オートロック操作盤を設置しています。

防犯カメラ

エントランスホールやエレベーターなど共同部の随所に防犯カメラを設置しています。映像は、録画され一定期間保存されます。

管理室のセキュリティー

マンションの大切な設備が揃っている管理室には、防犯人感センサーと防犯ドアセンサーを設置、不審者の侵入を防いでいます。

防犯玄関ドア

玄関ドアには、無理な侵入を防止するドアガード、サムターン回し手口に対抗する防犯サムターン、こじ開け対策の鎌型デッドボルトを装備しています。

プログレッシブシリンダー玄関錠

不正解除、不正なキーの複製を防止するのに役立つ玄関錠です。

ハンズフリーキーシステム

鍵をバッグやポケットから取り出すことなく、風除室やエントランスホールなどのオートロックを解除することができます。

防犯センサー

全住戸の玄関ドアと一部住戸の窓に設置されています。防犯設定時に開けられると、警備会社などへ自動通報されます。

カラーモニター付インターホン(住宅情報盤)

訪問者録画、録音機能付きで、在宅時、留守時も訪問者を録画することができます。

コールボタン

住戸内で緊急事態が発生した場合にコールボタンを押すと、三井不動産レジデンシャルサービスの「お客様センター」へ通報され、対応します。また水場まわりには、漏水センターが設置されており、異常時にはカラーモニター付インターホンでお知らせします。

セキュリティネットワーク

三井不動産レジデンシャル、三井不動産レジデンシャルサービス、警備会社が運営する「セキュリティネットワーク」を導入。三井不動産レジデンシャルサービスの「お客様センター」が24時間365日の体制で対応しています。

COMMON AREA 共用部

共用施設

光と水と緑に溢れる
共用空間

洗練された雰囲気のエントランスホールからは、水や緑が広がる中庭が見ることができる癒しの空間となっています。エントランス横から入ることができる駐車場、自転車置き場が建物の裏側にあります。

パークコート千代田駿河台ヒルトップレジデンス 敷地配置図
パークコート千代田駿河台ヒルトップレジデンス
敷地配置図
パークコート千代田駿河台ヒルトップレジデンス エントランス
パークコート千代田駿河台ヒルトップレジデンス
エントランス
パークコート千代田駿河台ヒルトップレジデンス エントランス
パークコート千代田駿河台ヒルトップレジデンス
エントランス

サービス

留守の場合も荷物を受け取ることができる宅配ボックスを完備。各階に設置されているゴミ置き場は、24時間ゴミ出しが可能なのも嬉しい環境です。また1階には、ペット専用の足洗い場も備わっています。

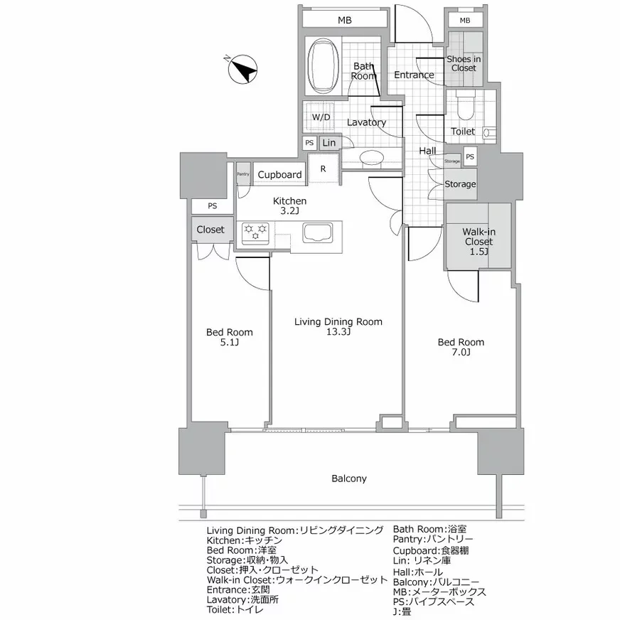
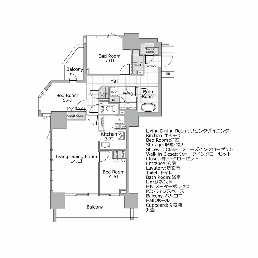
FLOOR PLAN 間取り図一例

総戸数は50戸、地上18階の建物です。プライバシーを重視し各フロア3邸の設計。
間取りは2LDK、3LDKとファミリー向けのタイプが揃っています。
全室がバルコニーに面しており、日当たり良好。リビングダイニング・各居室は最大天井高2.5mで、開放的な室内空間です。

パークコート千代田駿河台ヒルトップレジデンス 間取り図例
パークコート千代田駿河台ヒルトップレジデンス
間取り図例
パークコート千代田駿河台ヒルトップレジデンス 間取り図例
パークコート千代田駿河台ヒルトップレジデンス
間取り図例

INSIDE THE ROOM 室内

住む人に嬉しい
設備が充実

住戸内の遮音対策

水回りやパイプスペースに面する壁は、遮音に考慮した作りになっています。また、隣り合う住戸間の音に対しても、乾式戸境壁を採用し十分に配慮。さらに、二重床材を使用し床衝撃音対策も行なっています。

シックハウス対策

内装で使われる接着剤やボードは、人体にやさしい建材を使用。また、24時間微風量換気システムや換気口によって、常に換気できる配慮が施されています。

設備

ウォークインクローゼット

ウォークインクローゼット

※画像はイメージです。

主寝室には、衣料品から、スーツケースやゴルフセットなど大型の荷物もスッキリ収納できる大容量のウォークインクローゼットが設置されています。

シューズインクローゼット

玄関には、靴はもちろん、高さのあるブーツや傘も入る大きめのシューズインクローゼットがあります。

カップボード

キッチンには、様々な食器やキッチン用品を収納できるカップボードが標準装備されています。調理や配膳の補助スペースとしても活用でき便利です。

天井カセット型エアコン

リビングのエアコンは天井埋め込み式。空間を広く、スタイリッシュに見せてくれる設備です。

全熱交換型換気ユニット

換気の際に排出する室内の空気の熱を利用し、外気の温度をとり入れる時に室内の温度に近づけてから入れるという換気システムを採用。冷暖房の効率を高め、省エネにもなります。

低床式ユニットバス

浴室への段差を極力なくし、立ち座りの動作や移動が楽に行えるようになっています。

浄水器一体型混合水栓

キッチン

※画像はイメージです。

キッチンには、浄水器と一体化した混合水栓を設置。後付けの浄水器を置くスペースの確保の必要がなく、スッキリとしたキッチンが叶います。

食器洗浄乾燥機

食器洗浄機

※画像はイメージです。

ビルドインタイプの食器洗浄乾燥機を標準装備。少ない水で洗うことができ、ランニングコストを抑えることができるエコな設備です。

ディスポーザー

ディスポーザー

※画像はイメージです。

キッチンシンクには、生ゴミを粉砕し、排水と一緒に分解し浄化するディスポーザーを設置。衛生的なのはもちろん、ゴミの軽減にも役立つ環境にやさしい設備です。

ACCESS アクセス

徒歩10分圏内に4駅7路線が利用可能で、通勤通学、お出かけに大変便利なロケーションです。

鉄道

水道橋駅

水道橋駅
水道橋駅

JR中央・総武線(各駅停車)、都営三田線が乗り入れています。

  • 「東京」駅:JR中央・総武線を利用して「御茶ノ水」駅でJR中央線に乗り換え約7分。
  • 「銀座」駅:都営三田線を利用して「日比谷」駅で日比谷線に乗り換え約8分。
  • 「渋谷」駅:JR中央・総武線を利用して「代々木」駅でJR山手線に乗り換え約16分。
  • 「六本木」駅:都営三田線を利用して「日比谷」駅で日比谷線に乗り換え約15分。
  • 「品川」駅:JR中央・総武線を利用して「秋葉原」駅でJR中央線に乗り換え約20分。
  • 「新宿」駅:JR中央・総武線で約12分。

御茶ノ水駅

御茶ノ水駅
御茶ノ水駅

徒歩8分の「御茶ノ水」駅にはJR中央・総武線、東京メトロ丸の内線が乗り入れています。JR中央線快速の停車駅でもあり、快速の利用で「東京」駅、「新宿」駅までは2駅です。

新御茶ノ水駅

新御茶ノ水駅
新御茶ノ水駅

東京メトロ千代田線の「新御茶ノ水」駅までは徒歩10分。「代々木公園」駅、「表参道」駅、「赤坂」駅などへダイレクトアクセスができます。

神保町駅

神保町駅
神保町駅

都営三田線、新宿線、東京メトロ半蔵門線の3路線の接続駅です。

タクシー

タクシー

※画像はイメージです。

パークコート千代田駿河台ヒルトップレジデンスより、タクシーを利用した場合の主要エリアまでの所要時間は以下の通りです。

エリア 所要時間
「銀座」駅 約11分
「東京」駅 約13分
「六本木」駅 約19分
「渋谷」駅 約19分
「新宿」駅 約20分
「品川」駅 約23分

バス

バス

※画像はイメージです。

「神田駿河台2丁目」バス停

千代田区の区の施設、福祉施設を中心に巡回している乗合バス風ぐるま(秋葉原ルート)のバス停「神田駿河台2丁目」が徒歩4分/300mにあります。区役所などへ行く際は、利用がおすすめです。
お茶の水橋にある「御茶ノ水駅前」バス停より、「東京駅行き」など複数の路線バスを利用することができます。

新幹線発着駅

「東京」駅へのルート

最寄りの「水道橋」駅からJR中央・総武線を利用して「御茶ノ水」駅でJR中央線に乗り換え約7分で到着します。

空港

空港 首都圏

※画像はイメージです。

羽田空港へのルート

「東京ドームホテル」からリムジンバスを利用して約45分。タクシーでは約31分です。

成田空港へのルート

「東京ドームホテル」からリムジンバスを利用して約85分。鉄道を利用する場合は、「水道橋」駅よりJR中央・総武線を利用して「秋葉原」駅でJR山手線(内回り)に乗り換え「日暮里」駅へ行き、京成特急スカイライナーで「成田空港」駅へ約50分。

LIFE
INFORMATION 周辺の施設・店舗情報

文教エリアらしい
活気のある街並み

駅周辺には飲食店やコンビニの数が多く、学生の多い街ならではの活気を感じることができます。

商業施設、商店街

マルエツ プチ 神田神保町二丁目店
(徒歩7分/約500m)

マルエツプチ神田神保町二丁目店
マルエツプチ神田神保町二丁目店

食品や日用品が揃うスーパー。入口はスロープになっていて、ベビーカーでも入りやすいように配慮されています。

マツモトキヨシ 御茶ノ水駿河台店
(徒歩6分/約450m)

マツモトキヨシ御茶ノ水駿河台店
マツモトキヨシ御茶ノ水駿河台店

化粧品から日用品まで揃うドラッグストア。調剤薬局も併設されているので、処方箋も受け付けています。

東京ドームシティ(徒歩7分/約500m)

東京ドームシティ
東京ドームシティ

都心最大級のエンターテインメントエリア。東京ドーム、東京ドームホテル、遊園地、天然温泉「スパラクーア」をはじめ、フードコートやショッピングモールなどもあり、老若男女が楽しめる場所です。

御茶ノ水ソラシティ(徒歩12分/約900m)

新しいビジネスアメニティエリアとして誕生。坂の街と言われる駿河台エリアをエスカレーターやエレベーターなどを有機的に配置することで「御茶ノ水」駅―東京メトロ「新御茶ノ水」駅―「御茶ノ水ソラシティ」―淡路町方面へのバリアフリー化を実現しました。
地下1階には、レストランやカフェ、こだわりの食品が揃う「成城石井 御茶ノ水ソラシティ店」もあります。

お茶の水サンクレール(徒歩10分/約800m)

「御茶ノ水」駅聖橋口前にあるショッピングモール。地下1階から2階までが商業施設となっていて、飲食店やカフェ、マッサージ店などが入っています。

自然、公園

千代田区立錦華公園(徒歩6分/約450m)

お茶の水小学校・幼稚園に隣接する公園。地域や学校関係者の意見を反映させ、2024年にリニューアルし、遊具などが一新されました。

千代田区立西神田公園(徒歩6分/約450m)

西神田公園
西神田公園

未就学児も楽しく遊べる滑り台や砂場、大人用の健康器具もあります。広場もあり、ビルの谷間にあるオアシス的存在です。

千代田区立西神田百樹の広場
(徒歩9分/約700m)

西神田百樹の広場
西神田百樹の広場

高層ビルの前にある広場。植栽に囲まれた憩いの場として、近隣住民や近隣で働く人たちに利用されています。

神田明神(徒歩15分/約1,200m)

神田明神
神田明神

東京十社の一社。神田、日本橋、秋葉原、大手丸の内、旧神田市場、築地魚市場など108町会の総氏神。江戸時代には幕府の尊崇する神社となり「江戸総鎮守」となりました。
お宮参り、七五三、厄除けなどのご祈祷も受け付けています。

暮らし、インフラ

千代田区役所(徒歩15分/約1,200m)

千代田区役所
千代田区役所

庁舎は23階まであり、1〜8階が千代田区の窓口や区議会事務所、9〜10階は千代田図書館になっています。11階より上は、国との合同庁舎、地下1階は来庁者用駐車場です。

日本大学歯学部付属歯科病院
(徒歩7分/約500m)

日本大学歯学部付属歯科病院
日本大学歯学部付属歯科病院

100年以上の歴史を誇る、最新の設備と高い医療水準の総合的な歯科医院。

日本大学病院(徒歩8分/約600m)

日本大学病院
日本大学病院

「心温まる安全な医療」をモットーに、高度集約的治療、救命救急医療、予防医療を提供しています。

順天堂大学医学部附属 順天堂医院
(徒歩10分/約800m)

順天堂大学医学部附属順天堂医院
順天堂大学医学部附属順天堂医院

安全で良質、かつ高度な医療を患者一人ひとりに提供することを方針に掲げています。

東京科学大学病院(徒歩10分/約800m)

東京科学大学病院
東京科学大学病院

東京医科歯科大学病院が生まれ変わり、東京科学大学病院に。医学、歯学、理工学の融合により、世界最高水準のヘルスケアを提供。

東京復活大聖堂(徒歩10分/750m)

ニコライ堂と呼ばれ親しまれている日本ハリストス正教会の聖堂。ロシア正教の大主教聖ニコライによって1891(明治24)年に建立。現在の建物は、関東大震災後の昭和4年に修復されたもの。中央ドームの高さ約38mで、御茶ノ水の歴史的ランドマーク。

幼稚園、保育園、学校

西神田保育園(徒歩7分/約500m)

西神田保育園
西神田保育園

千代田区立お茶の水幼稚園
(徒歩7分/約500m)

千代田区立お茶の水幼稚園
千代田区立お茶の水幼稚園

千代田区立お茶の水小学校
(徒歩7分/約500m)

千代田区立お茶の水小学校(仮校舎)
千代田区立お茶の水小学校(仮校舎)

夏目漱石が卒業した小学校(旧・錦華小学校)。正門の横には『吾輩は猫である』の序文が刻まれた記念碑が建っています。

神田一橋中学校(徒歩12分/約960m)

千代田区立神田一橋中学校
千代田区立神田一橋中学校

桜蔭中学校高等学校(徒歩8分/約600m)

神田女学園中学校高等学校
(徒歩5分/約400m)

神田女学園中学校高等学校
神田女学園中学校高等学校

東洋高等学校(徒歩4分/約250m)

東洋高等学校
東洋高等学校

日本大学経済学部(徒歩6分/約450m)

日本大学
日本大学

中央大学駿河台キャンパス
(徒歩8分/約600m)

中央大学駿河台キャンパス
中央大学駿河台キャンパス

順天堂大学 本郷•お茶の水キャンパス
(徒歩10分/約800m)

明治大学 駿河台キャンパス
(徒歩8分/約600m)

明治大学駿河台キャンパス
明治大学駿河台キャンパス

イベント、お祭り

神田祭

神田明神
神田明神

神田明神にて行われる祭礼で、日本三大祭であり、江戸三代祭のひとつ。2年に一度、5月中旬に行われます。見どころは、神輿宮入りです。大小200をこえる神輿が、熱量のこもった掛け声と共に、街を練り歩き神田明神を目指す姿は圧巻です。当日は近隣の交通規制が行われ、大変な賑わいを見せる大型のお祭りです。

まとめ

文教の街の丘に凛と佇む
上質レジデンス

江戸時代には武家屋敷が立ち並び、明治時代になりその跡地が大学に生まれ変わり、文教の街となった千代田駿河台。植栽に囲まれたエントランスから一歩建物に入ると、ふっと空気が変わり、上質で落ち着いた雰囲気に包まれます。
総戸数は50戸で、プライバシーを重視し各フロア3邸のみ。全室がバルコニーに面しており、昼間は心地よい陽射しが差し込む明るい空間となり、富士山が見られます。夜になれば、東京の夜景を一望できます。
4駅7路線を利用でき、通勤、通学に大変便利なロケーション。徒歩圏内に東京ドームシティや本の街・神田神保町があり、小石川後楽園など緑豊かなエリアも点在しており、お出かけを楽しみながら快適に暮らせる環境です。

パークコート千代田駿河台
ヒルトップレジデンス

駅徒歩 不動産の表示に関する公正競争規約の改正(2022年9月1日)により、交通利便情報が販売中のものと異なる場合がございます。

総武・中央緩行線
「水道橋」駅 徒歩6分

築年月

2018年4月

総戸数

50戸

階数

地上18階