プレサンスコーポレーション プレサンス レジェンド
堺筋本町タワー
Concept 大阪の超都心「本町エリア」で
自由なスタイルを謳歌する

プレサンス レジェンド 堺筋本町タワー

大阪メトロ「堺筋本町」「本町」2駅4線 徒歩圏内

2層吹き抜けエントランス緑豊かな景観

地上30階建 総戸数337戸高層タワーレジデンス

2024.12.25 公開

LOCATION ロケーション

ONも、OFFも、
大阪都心の時間を楽しむ

プレサンス レジェンド堺筋本町タワーは、本町や北浜といったオフィスゾーンを身近に感じながら、休日は大阪城公園の緑に憩うことができ、また世界のブランドが集まる「キタ」も、トレンドに敏感な「ミナミ」にも自由自在にアクセスできる、大阪都心「堺筋本町」に位置しています。

最寄り駅の大阪メトロ堺筋線・中央線「堺筋本町」駅、徒歩2分というアクセスの良さ、そして大阪メトロ「本町」駅にも徒歩9分と、充実した都心の交通ネットワークを活かせることはもちろん、暮らせる都心としてさまざまな生活ニーズにも広く対応できる立地です。

船場センタービル
船場センタービル

オフィスが多い都心にありながら、生活利便施設が豊富なことが堺筋本町の特徴です。隣接するスーパーマーケットや数多くのショッピング施設をはじめ、郵便局、銀行、市役所、医療施設も徒歩圏内に充実しています。
また、堺筋本町から本町駅まで、全て合わせると東西1,000mにおよぶ大型商業施設、船場センタービルがすぐそばにあり、その存在からも日常生活の利便性がうかがえます。

久宝公園
久宝公園

周辺には、子供たちが遊べる遊具がそろっている公園もいくつかあります。また広大な史跡公園である大阪城公園、難波宮跡公園も徒歩圏内で、休日は気軽に散策を楽しめ自然や四季の移ろいを身近に感じることができます。

大阪市立開平小学校
大阪市立開平小学校

また、子育て世代にとっては気になる教育施設も、大阪市立開平小学校、大阪市立東中学校をはじめ徒歩圏内の学校が多くあり安心です。

プレサンス レジェンド堺筋本町タワーが位置する「堺筋本町」は大阪都心の利便性を享受しながら、四季折々の草花を楽しめるスポットも近くにあり、日々の生活を豊かにする住環境が整っています。

FEATURES 建物の特徴

悠々たる存在感を放つ、
風格のタワーフォルム

プレサンス レジェンド 堺筋本町タワー レリーフ
プレサンス レジェンド 堺筋本町タワー レリーフ

建物の4面すべてにバルコニーが設けられ、どの角度から視線を受けても品格があり存在感を放っています。バルコニー手摺の水平ラインに対し、柱の垂直ラインを組み合わせ、重厚で彫りの深い表情を創り出しています。街路に面するゆったりとした植栽スペースは並木道を創出し、豊かな緑で建物が囲まれている景観となっています。

コンセプト・デザイン

洗練された都市景観を
印象づける外観デザイン

さまざまなデザインの建物が建ち並ぶ都心で、ひときわ存在感を放つ30階建の高層ランドマークタワーレジデンス。住宅の外観はそこでの暮らしの質を象徴するという考え方も考慮しながら、格調を醸し出す工夫を凝らしデザインされました。

外観には重厚感あるタイル貼りを基本とし、柱・梁を外部に出す、フレーム構成とする事で、奥行きある表情を創出しています。

また、建物の4隅の住戸はガラスコーナーウォールとし、眺望と開放的な空間にすると共に、外観デザインのアクセントとなっています。

エントランス正面プレサンス レジェンド 堺筋本町タワー
エントランス正面プレサンス レジェンド 堺筋本町タワー

2層吹き抜けのエントランスロビーがゆったりと広がり、開放感あふれる心地よさで、住まう方、訪れた方を包み込みます。満足感と誇らしさで心が満たされる、まさにホテルライクな迎賓空間です。

エントランス斜め
エントランス斜め

街路に面する東・北・南の3方には、スペースをゆったりと確保して植込を設け、豊かな緑で建物が囲まれるようにしています。建物に近い側には常緑高木のシマトネリコをメインに低木や地被類を配し、外周廻りには夏に多く花を咲かせる常緑高木のサルスベリを等間隔で植込み、並木道を創出。街並みに四季折々の彩りや風情をもたらしています。

プレサンス レジェンド 堺筋本町タワー 通用口
プレサンス レジェンド 堺筋本町タワー 通用口

また、歩行者と自転車、バイクなどの動線を分離させる、歩車分離設計を施し敷地内の安全性に配慮しています。

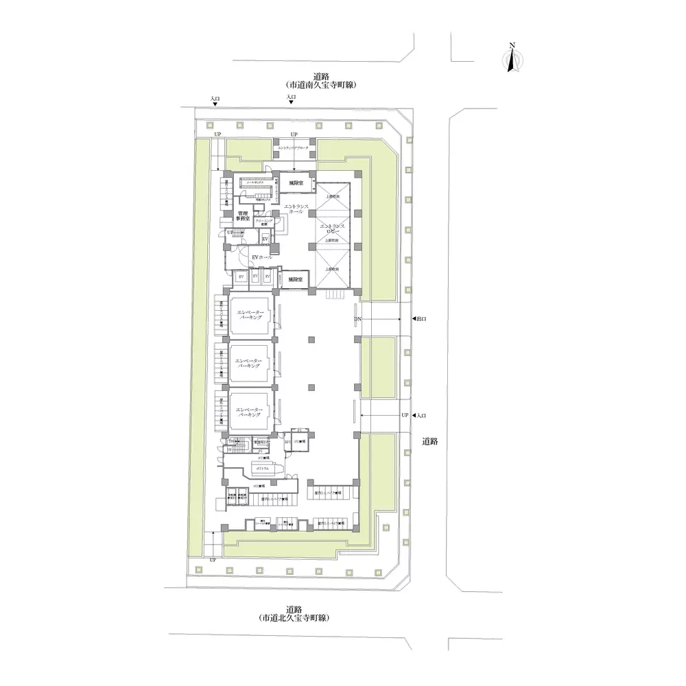
プレサンス レジェンド 堺筋本町タワー敷地配置図
プレサンス レジェンド 堺筋本町タワー敷地配置図

建物構造

先進技術の免震構造と
風格ある外観の共存

プレサンス レジェンド堺筋本町タワーは、地上30階、地下1階、鉄筋コンクリート造の建物で免震構造を採用しています。都心に位置する高層タワーマンションとして、安全性を追及した建物工法が採用されています。外観は黒を基調とした重厚感あるつくりとなっており、柱・梁を外部に出すフレーム構成とする事で、奥行きある表情を創出しています。
また、エントランスアプローチの2層に広がるゲートは重厚な天然石貼りで仕上げられており、スケール感と風格を醸し出し、その悠然たる存在感を放っています。

COMMON AREA 共用部

ライフスタイルに奥行きが生まれる空間

住まう方の生活ニーズに広く対応するため、様々な共用施設を完備しています。豊かなライフスタイルにさらに奥行きが生まれるような空間を提供しています。

共用施設

スカイラウンジ(18階)

都市景観や夜景の眺望を満喫しながらくつろげる、ゆったりとしたスカイラウンジが18階、地上55mにあります。いつでも気軽に贅沢なひとときを味わえるスペースです。
(・利用時間/ 9:00~24:00 ・利用料金/無料)

ゲストルーム

訪ねて来られた方に滞在していただけるゲストルームをご用意しています。ゆとりある広さがありますのでゲストの方に安心してくつろいでいただけます。
(・要予約 ・利用時間/ 15:00~翌11:00 ・利用料金/有料)

フィットネスルーム

本格的なトレーニングマシンを揃えたフィットネスルームもご利用いただけます。日常的にトレーニングを続ける環境がつくれます。
(・利用時間/ 6:00~23:00 ・利用料金/無料)

パーティールーム

様々な集いを手軽に楽しんでもらえるスペースです。気軽にカジュアルなパーティーを催していただけます。
(・要予約 ・利用時間/ 9:00~翌21:00 ・利用料金/有料)

ライブラリーラウンジ

在宅で仕事をされている方の応接ルームとして、お子さまの勉強や大人のスキルアップの学習ルームなど、静かなくつろぎの場としてご利用いただけます。
(・利用時間/ 8:00~23:00 ・利用料金/無料)

VIPルーム

住まう方同士の集会ルームとして、ビジネス関連の会議などにご利用いただけるVIPルームを設けています。
(・要予約 ・利用時間/ 9:00~翌21:00 ・利用料金/有料)

Wi-Fi環境

これらの共用スペースおよびエントランスロビーにはWi-Fiスポットを設置しています。

他にも、宅配ボックス、138台収容できるエレベーターパーキング、24時間毎日ゴミ捨て可能なゴミ置場など、日々の暮らしの安心感を得られる行き届いた共用施設を揃えています。

サービス

暮らし心地をいっそう
高める
上質なサポート

エントランスホールにはコンシェルジュカウンターをご用意し、多彩なメニューで住まわれる方々の暮らしをサポートしています。

コンシェルジュ

コンシェルジュサービス

※画像はイメージです。

受付サービス

共用施設のご利用予約・受付、共用施設の利用案内、交通機関の利用案内、メッセージの受け渡しなどをおこなっています。

紹介サービス

ハウスクリーニング、家事代行、ベビーシッターサービス、高齢者支援サービスなど専門業者の紹介などをおこなっています。

取次サービス

宅急便の発送取次、花の宅配便発送取次、ふとんクリーニングサービス取次などをおこなっています。

他にも脚立や台車の貸し出しや切手、ハガキの販売など安心と快適な暮らしをサポートしています。

INSIDE THE ROOM 室内

ハイクラスな
暮らしを象徴する
高品位な住性能

キッチン

※画像はイメージです。

リビングダイニングは、憩いの場として機能するだけでなく、ゲストをもてなす集いのひとときをより上質で豊かなものにするため、落ち着いた空間となっています。

プライベートルームは、心豊かなひとときを過ごすため、ゆとりある広さと充分な収納スペースを確保しています。パイプ付きのシステム収納を採用し、ワードローブに応じて自在に使いこなせます。収納家具を置く必要もなく、すっきりとした暮らしが実現します。

食器洗浄機

※画像はイメージです。

キッチンには、インテリア性の高い上質なシステムキッチンを採用。リビングダイニングとも調和しています。ディスポーザー、浄水器一体型水栓、食器洗い乾燥機、スライド式収納などが装備されており、設備、仕様、収納の細部に使い勝手を追求しています。

パウダールームの洗面台はボウル一体型カウンタートップを採用し、お手入れがしやすく、いつまでも美しさを保ちます。

バスルームには、ミストサウナ機能を搭載した、24時間換気機能付き 浴室暖房乾燥機をはじめ、滑りにくい床や、保温浴槽を採用しており冬場の入浴も快適です。また標準装備の酸素美水泡湯(マイクロバブル)は、酸素を包み込んだ泡のお湯が、肌をしっとりさせ、湯上り後の体温を長く保ちます。

他にも、収納力あるトールタイプの玄関収納、停電時に足元を照らすホーム保安灯など、数々の機能あふれる設備は、暮らしを豊かにする永住仕様のクオリティといえるでしょう。

FLOOR PLAN 間取り図一例

生活クオリティを高める
細やかな配慮

プレサンス レジェンド 堺筋本町タワー間取り図例
プレサンス レジェンド 堺筋本町タワー 間取り図例

LDKと洋室2室がバルコニーに面し、明るい陽射しが差し込む3LDKタイプです。効率的に作業ができるL型キッチンは、リビングからの視線が気にならない位置にあり、急な来客でも慌てず生活感を隠せて安心です。

プレサンス レジェンド 堺筋本町タワー間取り図例
プレサンス レジェンド 堺筋本町タワー 間取り図例

シューズインクローゼットや各箇所の収納が効率よく配置されている2LDKタイプです。セミオープンのL型のキッチンは眺望を楽しみながら料理ができます。2つの洋室とLDKの動線もよく、家族とのコミュニケーションがとりやすくなっています。

ACCESS アクセス

都心を縦横に活かせる
スムーズなアクセス

プレサンス レジェンド堺筋本町タワーは、大阪メトロ堺筋線・中央線「堺筋本町」駅に徒歩2分、また、大阪メトロ御堂筋線・中央線・四つ橋線「本町」駅にも徒歩9分の立地にあります。主要駅へのアクセスも良好で、都心を縦横に活かせるネットワークで快適な生活が可能です。

ここでは、交通手段別に所要時間を見ていきましょう。

鉄道

堺筋本町駅出入口
堺筋本町駅出入口

最寄りの堺筋本町駅から都内の主要なスポットへは、以下の所要時間で到着できます。

プレサンス レジェンド 堺筋本町タワー路線図
プレサンス レジェンド 堺筋本町タワー路線図

「梅田」駅

大阪メトロ中央線を利用し「本町」駅で大阪メトロ御堂筋線に乗り換え、約13分で到着します。

「なんば」駅

大阪メトロ堺筋線を利用し「日本橋」駅で大阪メトロ千日前線に乗り換え、約9分で到着します。

「森ノ宮」駅

大阪メトロ中央線を利用し直通で2駅、約4分で到着します。

「弁天町」駅

大阪メトロ中央線を利用し直通で4駅、約8分で到着します。

「新大阪」駅

大阪メトロ中央線を利用し「本町」駅で大阪メトロ御堂筋線に乗り換え、約21分で到着します。

タクシー

タクシー

※画像はイメージです。

プレサンス レジェンド堺筋本町タワーからタクシーで移動した場合の所要時間と料金は以下の通りです。

所要時間 タクシー料金目安
大阪メトロ御堂筋線
「森ノ宮」駅
約11分 1,120円程度
大阪メトロ御堂筋線
「本町」駅
約5分 580円程度
大阪メトロ御堂筋線
「なんば」駅
約10分 1,030円程度
大阪メトロ中央線
「西梅田」駅
約13分 1,210円程度
JR大阪環状線
「大阪」駅
約14分 1,300円程度

料金は時間帯や曜日によって変動する場合があります。また、深夜料金が適用される場合もあります。

プレサンス レジェンド堺筋本町タワーから、なんば駅や大阪駅など大阪市内の主要な駅には、おおよそ15分前後で到着するので、電車が遅延している場合など短時間で快適に移動できる好立地な場所です。

空港

空港

※画像はイメージです。

伊丹空港(大阪国際空港)へのルート

伊丹空港までの所要時間は以下の通りです。

・電車を利用する場合
大阪メトロ堺筋線「堺筋本町」駅より谷町四丁目を経由して「東梅田」駅で下車します。阪急宝塚線に乗り換え「蛍池」駅で下車、大阪モノレールに乗り換え「大阪空港」駅まで約46分で到着します。

・車を利用する場合
長堀ICから阪神11号池田線を利用します。所要時間は約23分程度で到着します。下道を利用する場合は、約45分で到着します。

関西国際空港へのルート

関西国際空港までの所要時間は以下の通りです。

・電車を利用する場合
大阪メトロ堺筋線「堺筋本町」駅から「天下茶屋」駅へ移動します。南海本線「天下茶屋」駅から関西空港駅まで乗り換えなしで約1時間2分で到着します。

・車を利用する場合
阿波座ICから阪神高速16号大阪港線、阪神高速4号湾岸線を利用します。所要時間は約56分です。下道を利用する場合は約1時間43分で到着します。

プレサンス レジェンド堺筋本町タワーから伊丹空港・関西国際空港への移動は、ご自身の都合に合わせて、最適な交通手段を選んでください。

LIFE
INFORMATION 周辺の施設・店舗情報

多彩な生活利便施設が
スマートな暮らしを実現

オフィスが多い都心にありながら生活利便施設が豊富なことが、堺筋本町エリアの特徴です。多彩な商業施設をはじめ、郵便局、区役所、教育施設、公園などが徒歩圏内に充実しており、スマートで軽やかな日常が綴られていきます。

商業施設、商店街

船場センタービル(徒歩2分/130m)

船場センタービル
船場センタービル

繊維の街として栄えた船場らしい服飾関連のショップをはじめ、日用雑貨、家具、インテリア用品、絵画、調度品が多く並んでいます。1号館から10号館まで全て合わせると東西1,000mにもなる大型商業施設です。堺筋以東の1-3号館はインポートマーケット(大阪舶来マート)、堺筋-御堂筋間の4-9号館は繊維問屋街、御堂筋以西の10号館は専門店を中心としたショッピング街となっています。また地下を中心に飲食店街も展開しており、5-8号館の地下には駐車場を備えています。

せんば心斎橋商店街(徒歩8分/610m)

せんば心斎橋商店街
せんば心斎橋商店街

せんば心斎橋筋商店街は、大阪メトロ本町駅すぐの位置にあります。その歴史は古く300年以上前の文献に残っているほど。せんばの大阪商人の歴史を物語る商店街です。中央大通りを挟んだ南北約660mの間に、服飾関連ショップをはじめ、飲食店やアミューズメント施設など100を超える店舗が並んでおり、関西を代表する商店街のひとつです。

ライフ堺筋本町店(徒歩1分/隣接)

ライフ堺筋本町店
ライフ堺筋本町店

ライフ堺筋本町店では、生鮮食品はもちろんのこと、オフィス街ということもあり惣菜コーナーとインストアベーカリーが充実しています。オーガニック食品や健康にこだわったプライベートブランド商品も豊富に扱っています。売り場は1階、2階とあり、お酒、日用品、医薬品、肌着類も販売しています。また、深夜12時までと夜遅くまで営業しており帰宅が遅くなった時にも安心です。

都シティ大阪本町(徒歩5分/400m)

都シティ大阪本町
都シティ大阪本町

都シティ大阪本町では、だれもが癒されるくつろぎの場所として、ボタニカルをモチーフにホテル全体に天然木や緑を多く使用し、穏やかで憩いの場になる空間を提供しています。通りのガラス越しに目をひく洗練されたモダンチャイニーズスタイルのレストランでは、美味しいディナーやランチが楽しめます。

セブンイレブン大阪久太郎1丁目店
(徒歩1分/80m)

セブンイレブン大阪久太郎1丁目店
セブンイレブン大阪久太郎1丁目店

プレサンス レジェンド 堺筋本町タワーの北側すぐ、中央大通沿いにあるコンビニエンスストアです。ガラス壁に囲まれた店内は明るい印象で、売り場も広く品揃えが豊富です。ビジネス街ということもありレジや電子レンジの数も多く、購入した食料品をそのまま飲食できるイートインスペースもあります。

自然、公園

久宝公園(徒歩7分/550m)

久宝公園
久宝公園

久宝公園は、プレサンス レジェンド堺筋本町タワーの南側「北久宝寺町通」を西へ7分程歩いたところにあります。ブランコ、すべり台、砂場など、小さいお子様も楽しめる遊具が揃っています。北は中央大通から南は長堀通、西は御堂筋から東は堺筋の一画は、ビルが建ち並ぶビジネス街で、貴重な都心のオアシスの久宝公園では、時々イベントも開催され地元の人々に親しまれています。

難波宮跡公園(徒歩17分/1,310m)

難波宮跡公園
難波宮跡公園

この場所は7世紀中頃、飛鳥から難波へと遷都され、難波宮(なにわのみや)と呼ばれていた広大な芝生と緑が広がる史跡公園です。1961年(昭和36年)に飛鳥〜奈良時代にかけて大阪が日本の都であったことを示す難波宮跡が確認され「難波宮跡 附 法円坂遺跡」として国の史跡に指定されました。現在、大阪市と大阪府では、2050年の難波宮跡遷都1400年に向け、歴史魅力あふれる難波宮跡公園にするための整備を進めています。

大阪城公園(徒歩7分/550m)

大阪城公園
大阪城公園

大阪のシンボルでもある大阪城特別史跡に所在する広大な史跡公園で、国内外からの観光客が多く訪れています。公園内は樹木が多く植えられており梅・桃・桜の名所でもあります。外郭東部に設けられた多目的アリーナの大阪城ホール、野外の大阪城音楽堂では連日コンサートやイベントが行われており、音楽を楽しむ人をはじめ、ジョギングなどスポーツを楽しむ人にも親しまれています。

暮らし、インフラ

中央大通(徒歩2分/110m)

中央大通
中央大通

大阪市内のほぼ中央を東西に通っており、大阪の都心部と、西は大阪港方面、東は東大阪方面をつなぐ重要な幹線道路です。本町エリアの中央大通りには、1,000mにわたって高速道路と一体となって建てられている船場センタービルがあるのも特徴です。

堺筋(徒歩2分/160m)

堺筋
堺筋

大阪市の中心を南北に貫く幹線道路です。北行きの一方通行で御堂筋の東側を並行して通っています。大阪北区の天神橋1交差点から、大阪中心部の船場 島之内を縦断して、西成区の天下茶屋東1交差点に至ります。

大阪中央区役所(徒歩2分/150m)

大阪中央区役所
大阪中央区役所

暮らしに必要な各種手続きに近くて便利です。大阪市中央区には大阪城や難波宮跡をはじめ由緒ある寺社、近代建築物等の歴史的遺産が数多く存在します。ユネスコ無形文化遺産である文楽や能楽、上方芸能といった伝統文化をはじめ多彩な文化が息づいています。大阪を代表する経済、文化の中心地でありながらも、地域活動も活発で昔ながらのコミュニティが育まれています。そんな活動的な街の暮らしをサポートし、様々なサービスを提供しています。

船場郵便局(徒歩5分/400m)

船場郵便局
船場郵便局

プレサンス レジェンド堺筋本町タワーから徒歩5分のところにあり、日常生活の上で郵便局が近くにあると何かと安心です。切手の購入や郵便物が手軽に送れるのはもちろん、ATMでの入出金で利用したり、宅急便の発送が多い方にもたいへん便利です。

幼稚園、保育園、学校

御堂筋本町ちどり保育園(徒歩7分/550m)

御堂筋本町ちどり保育園
御堂筋本町ちどり保育園

大阪市立中大江幼稚園(徒歩10分/790m)

大阪市立中大江幼稚園
大阪市立中大江幼稚園

大阪市立開平小学校(徒歩14分/1,100m)

大阪市立開平小学校
大阪市立開平小学校

大阪市立東中学校(徒歩15分/1,170m)

大阪市立東中学校
大阪市立東中学校

イベント、お祭り

神農祭 少彦名神社(徒歩3分/約190m)

少彦名神社
少彦名神社

神農祭は、大阪市無形文化財に指定されており、毎年11月のお祭り期間中は道修町一帯に露店が立ち並び賑わいます。大阪の祭りは、えべっさんに始まり神農さんで終わると言われるように「とめの祭」とも呼ばれています。文政5年(1822年)大阪でコレラが流行した際、薬の街、道修町の薬種商が病除けの薬として「虎頭殺鬼雄黄黄圓」という丸薬を作り、神虎(張子の虎)の御守と一緒に神前祈願のあとに施与したことに由来するといわれています。

まとめ

生活利便性豊かな、
ゆとりある住環境

プレサンス レジェンド堺筋本町タワーは、堺筋本町という大阪都心に位置し、近くには日常的に利用できる商業施設が多数あり、利便性を享受し豊かな生活をおくることが可能です。また徒歩圏内に四季折々の草花を楽しめる公園もあり、ONもOFFも都心を楽しめ、安心して暮らせる住環境が魅力のタワーマンションといえるでしょう。

プレサンス レジェンド 堺筋本町タワー

駅徒歩 不動産の表示に関する公正競争規約の改正(2022年9月1日)により、交通利便情報が販売中のものと異なる場合がございます。

大阪メトロ堺筋線、中央線
「堺筋本町」駅 徒歩2分

大阪メトロ御堂筋線、四つ橋線、
中央線「本町」徒歩9分

築年月

2018年1月

総戸数

337戸

階数

地上30階 地下1階建