三菱地所レジデンス|住友商事 他 ザ・パークハウス
中之島タワー
Concept 都心の機能性と水都中之島のやすらぎ。
三面接道のゆとりある敷地と共用施設の充実した安心の免震タワーレジデンス

ザ・パークハウス中之島タワー

京阪「中之島」駅徒歩2分

ゲストルーム・ビューラウンジ等充実の共用施設

地上55階894戸タワーレジデンス

2025.02.07 公開

LOCATION ロケーション

都心の機能と水都の
やすらぎを併せ持つ
「中之島」

ザ・パークハウス中之島タワー
ザ・パークハウス中之島タワー

中之島は大阪を代表するビジネス街の一つとなっています。その歴史は深く、古くから商業やビジネスの地として中心的な役割を担っていました。また、文化や芸術など様々な歴史を持っており、今もなお、街にはその痕跡が見られます。そして緑があふれる水辺の魅力を感じることのできる水都大阪のシンボルアイランドとなっています。

ダイビル本館
ダイビル本館

その礎は、大阪がかつて「天下の台所」と呼ばれた時代までさかのぼります。全国各藩の蔵屋敷が集まり、米をはじめとするさまざまな物資の売買がこの中之島で行われていました。

明治に入ってからはさらに図書館や中央公会堂などの文化施設も完成し、商業に加え近代の情報と文化の発信地としての役割も果たしています。

中央公会堂
中央公会堂

名だたる大企業が本拠を置くビジネスの中心地である大阪の水都、中之島。美術館をはじめとする文化施設や日本銀行大阪支店、大阪府立中之島図書館、大阪市中央公会堂など歴史的建造物も立ち並ぶ歴史と文化のエリアでもあります。景観についても条例などによって規制され、維持されています。

中之島公園
中之島公園

大阪市で初めて誕生した公園、中之島公園や重要文化財、登録有形文化財など歴史的建造物も多く、現在の中之島は、水辺に構える洗練された商業施設などが建ち並び、水都大阪の象徴として国内外から多くの人が訪れるようになりました。
堂島川と土佐堀川に挟まれた水と緑が共存した、都市風景が中之島の魅力の一つとなっています。

FEATURES 建物の特徴

敷地に広がる緑の潤い、
安心・安全な免震構造と
防災対策

ザ・パークハウス中之島タワー 植栽
ザ・パークハウス中之島タワー 植栽

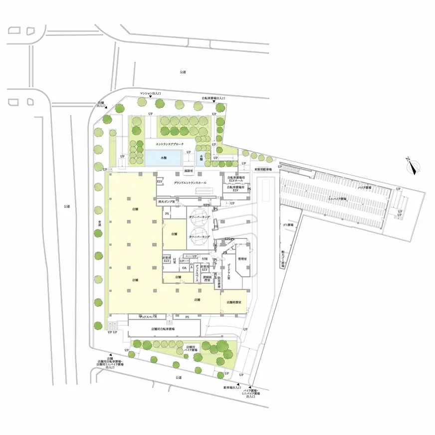
堂島川のほとりに広がる、開放感にあふれた3面接道のゆとりある敷地に、「時のプレートガーデン」、「スクリーンガーデン」、「プロムナード」という、それぞれにテーマ性を持った公開空地を3面に配置。充実した共用施設と多重セキュリティシステムの免震タワーマンションです。

コンセプト・デザイン

ザ・パークハウス中之島タワー 外観
ザ・パークハウス中之島タワー 外観

堂島川のきらめく水面に姿を落とし、中之島の蒼穹に映える「ザ・パークハウス中之島タワー」。アクアライン(水面)が幾層にも重なり、空に向かって積み上げられたガラス箱をイメージ。一気に天空へ突き抜ける、シャープなシルエットが印象的な「アクア・プリズム」がコンセプト。水都・大阪の象徴として屹立しています。

ザ・パークハウス中之島タワー エントランス
ザ・パークハウス中之島タワー エントランス

一歩中に入った「グランドエントランスホール」は、ガラスウォールの3層吹抜け構造になっています。エントランスアプローチの水盤など、ランドスケープとの一体的な繋がりを実現。ホール正面の壁は割肌黒御影石で白い模様が流れる水をイメージさせます。

心やすらぐ「時のプレートガーデン」は敷地調査の際に出土した蔵屋敷の石積みを、かつてこの地の記憶として再現。木々の清々しいアプローチを辿ると水盤のきらめきに迎えられます。

緑が映える南西側の「スクリーンガーデン」は、常緑樹が並木を形成しています。車のゲート付近にはマウンドを設けて、その小高くなった所にクスノキのシンボルツリーを配置。奥行き感を生む積層壁を配置しライティングで壁面に樹形が浮かび上がる立体的な、映えるガーデンです。

西側には心地よく歩ける「プロムナード」があります。

ザ・パークハウス中之島タワー 敷地配置図
ザ・パークハウス中之島タワー 敷地配置図

建物構造

地震エネルギーが直接建物に伝わりにくい「免震構造」が採用されています。地震時に荷重を支えながら水平方向に変形する「積層ゴム」と、振動エネルギーを吸収し、建物の揺れを抑える役目を担う「ダンパー」で構成されています。建物の損傷を軽減させるだけでなく、家具の転倒などの二次災害からも暮らしの安全を守ります。

地盤調査の結果により、支持地盤となる強固な地盤の位置・深さを把握。地盤・建物計画に応じた基礎設計が行われています。支持地盤に達する48本の場所打ちコンクリート拡底杭により、建物を支えています。そして、液状化対策として、大地震により液状化した場合を想定。杭径を大きく設定し、杭頭部を鋼管巻きとすることで、杭の抵抗力を強化しています。

天井及び床下部を二重構造とし、梁型を少なくする設計も採用。リフォームで間取りの変更や配線メンテナンス性も優れています。これにより将来のリフォーム際には、高い更新性を発揮します。永く住むための将来を見据えた設計になっています。

防災設備

歩行困難者等の非常用エレベーター

火災時に火災発生階及びその直上階において、一時避難エリアに待機した歩行困難者等に対して、消防隊到着までの間、管理スタッフ、住民により西側の非常用エレベーター(避難誘導用エレベーター)1基を利用した避難誘導が可能となっています。

非常用発電機と非常時の水源確保

水害に備えて、電気・設備機器スペースは分散して配置。屋上には非常用発電機が2台設置され、内1台は非常時に最大で72時間連続稼働して、防災拠点等に電力を供給できるようになっています。また、受水槽・給水ポンプが付属棟2階に設置されており、緊急遮断弁による地震時の水源確保ができるようになっているとともに、非常用浄水装置も備えています。

防災備蓄倉庫

「防災倉庫」には、電気、水、情報、トイレに関する防災備品、非常用発電機やガス発電機、浄水装置、救助工具セットなどが設置されています。

セキュリティ

24時間有人管理体制

「ザ・パークハウス中之島タワー」では機械だけに任せず、常に人の目が見つめる管理を導入しています。昼間は管理員やフロントスタッフが機器管理やお住まいの方の対応を、夜は警備員が常駐することで、合わせて24時間の有人管理をしています。

多重セキュリティシステム

エントランスホール、エレベーターホール前、及びエレベーターと、ディンプルキー&ダブルロックの住戸玄関の4重セキュリティシステムです。

LIFE EYE`Sセキュリティシステム

三菱地所コミュニティとセコムとともに共同開発したセキュリティシステム。火災や万一の災害やエレベーター故障などの異常が発生した場合、防災センターや警備会社、エレベーター管理会社に自動通報されます。

警備信号鍵

玄関キーを回してそのまま押し込むと警備システムが完了します。

防犯カメラ

3階エレベーターホールにはエレベーター内の防犯カメラ映像が確認できるモニターを設置しています。防犯カメラは、駐車場、エントランス、自転車置き場などに設置。防災センターで24時間録画しています。

各住戸

  • 警備システムの警備信号錠
  • 高性能ピッキング対策シリンダー
  • 2か所施錠のダブルロック
  • セキュリティサムターン&鎌デッドボルト鍵
  • カバー付ドアアイ

COMMON AREA 共用部

多彩な共用施設でゲストも
オーナーも上質な時間を

敷地内に植栽された木々の緑や贅沢なしつらえの各共用施設はオーナーも招いたゲストも上質な時間がを享受できます。また日々の暮らしに寄り添うサービスも充実しています。

共用施設

グランドエントランスホール・
オーナーズラウンジ(3F)

ガラスウォールの3層吹き抜け構造になっています。エントランスアプローチの水盤など、ランドスケープとの一体的な繋がりを実現。ホール正面の壁は割肌黒御影石で白い模様が流れる水をイメージさせます。ホール正面の御影石の壁に沿って配置されたエスカレーターが、オーナーズラウンジへと導きます。

カフェラウンジ(3F)

オーナーズラウンジに隣接した「カフェラウンジ」は、スタイリッシュな憩いの空間になっています。シーズナルガーデンのテラスへも出られるため、堂島川を眺めながらのティータイムを楽しむこともできます。

シーズナルガーデン(3F)

グランドエントランスホール、オーナーズラウンジ、カフェラウンジへ連続する3階の大空間を際立たせる、50m超えのワイドフロンテージを活かした堂島川を望む緑豊かなモダンな空間です。

サイクルピットルーム(3F)

バイクジャーナル難波賢二氏監修。愛車のチューンナップやメンテナンス戦車などができます。

自転車・バイク・ミニバイク置き場
(1~4Fと付属棟2F)

  • 自転車 来客用合わせ1,798台分
  • バイク 18台分
  • ミニバイク 162台分

メールコーナー・宅配ボックス(3F 24時間利用可能)

不在時に届いた宅配物を保管します。

ゴルフレンジ(3F)

世界のコースが楽しめるリアル感に満ちたゴルフシュミレーターを利用できます。

ライブラリー・スタディルーム(5F)

自宅とは異なる環境で落ち着いて学習や仕事ができる空間です。

コミュニティルーム(5F)

キッズルーム

※画像はイメージです。

雨の日も元気に遊べるキッズにうれしいお部屋。キッズのプレイルームとしてマザー・アーキテクチュアの遠藤幹子氏が監修。

ゲストルーム

ゲストルームThe Aqua(5F)

アースカラーを基調にした安らぎのある雰囲気。都会的で洗練されたゲストルームです。

ゲストルームThe Sky(41F)

ワイドなウィンドウに広がる眺望。贅沢なジャグジー付きバス。ホテルライクなゲストルームです。

ゲストルームThe Air(41F)

選び抜かれた家具インテリア、非日常なくつろぎを演出するパノラマビューが、おもてなしを優雅にします。

ビューラウンジ(40,41F)

41Fは、バーカウンターがある大人な時間が愉しめる空間で、40Fは吹き抜けのある伸びやかなリビングルームになっています。

ゴミステーション(各フロア)

曜日や時間に関係なくゴミ出しができます。

4基のタワーパーキング(1F,2F)

フリーローテーションで出入庫がスムーズ。建物内収容で愛車が風雨にさらされず安心です。

電気自動車急速充電スペース(2F 別途電気料金)

電気自動車、プラグインハイブリッド車の急速充電ピットです。

11基のエレベーター

スムーズな利用をいただけるよう低層、中層、高層用に分けて設置されています。

ペット足洗い場(1F)

散歩帰りにペットの足を洗ってから住戸内に入れます。

サービス

コンシェルジュサービス

コンシェルジュサービス

※画像はイメージです。

受付業務

交通機関のご案内、共用施設の予約受付、ショップサービス(切手・はがき・ゴミ処理券等 販売)

取次・手配サービス

クリーニングの取次ぎ、宅配便の発送

各種紹介サービス

ハウスキーパー、ハウスクリーニング、ケータリング、ベビーシッター、ペット関連、食材宅配など、暮らしのサポートをするサービスを提供しています。

シャトルバス運行

お住まいになる方だけのために、専用シャトルバスを運行。梅田方面のお買い物に便利です。

朝刊各戸配達

朝刊を新聞受けまで配達。忙しい朝にメールコーナーまで新聞を取りに行く手間を省いたサービスです。

FLOOR PLAN 間取り図一例

用途が広がるリビングと
一体利用が可能な洋室

ザ・パークハウス中之島タワー 間取り図例
ザ・パークハウス中之島タワー 間取り図例
ザ・パークハウス中之島タワー 間取り図例
ザ・パークハウス中之島タワー 間取り図例
ザ・パークハウス中之島タワー 間取り図例
ザ・パークハウス中之島タワー 間取り図例
ザ・パークハウス中之島タワー 間取り図例
ザ・パークハウス中之島タワー 間取り図例

リビングを中心に各洋室が配置されており、家族が常に顔を合わせられる広いリビングは家族団らんの空間となります。キッチンはリビングに隣接しながらもほどよく視線をさえぎる位置にあります。また収納も充実しています。

INSIDE THE ROOM 室内

機能とデザインを両立した
多彩なアイテム

床暖房や天井カセットエアコン、人感センサーライトなど快適に暮らせる仕様のほか家事をサポートする設備も充実しています。

キッチン

食器洗浄機

※画像はイメージです。

浄水一体型シャワー水栓、静音ワイドシンク、ディスポーザー、キッチン天板(フィレオストーン)、ホーローパネル、食器洗浄乾燥機、野菜ストッカー付スライド収納、スパイスラック、無水両面焼きグリル付三口コンロ、レンジフード(強制同時吸排気)

パウダールーム

シングルレバー混合水栓、アンダーカウンターボウル、三面鏡裏収納、ドライヤーハンガー、ヘルスメータースペース

バスルーム

保温浴槽、ワンプッシュ水栓、フラッグストーンフロア、ささっとキレイ排水口、2か所スライドバー付きシャワー、スマートカウンター、手摺、ミストサウナ(浴室暖房換気乾燥機)エステケアシャワー

トイレ

ローシルエットトイレ、ウォシュレット壁付リモコン、吊戸棚、手洗いカウンター

その他

玄関床、フローリング(ワックスフリー)、玄関プッシュハンドル、床暖房、天井カセットエアコン、人感センサーライト付オートライト、インターホン(リビング・ダイニング)、マルチメディアコンセント、サポートハンドル、保安灯

収納

ウォークインクローゼット

※画像はイメージです。

ウォークインクローゼット、シューズボックス、廊下収納、クローゼット、ウォークインクローゼット、リネン庫

プレミアムフロア仕様

プレミアムフロアは設備が、エレガントさを醸し出すデザイン、使い心地の良い機能、上質な素材感など吟味をした仕様となっています。
三面鏡裏収納(モザイクタイル)、洗面水栓(グローエ社製)、洗面スライド収納(UV鏡面塗装)、キッチン水栓(グローエ社製)、ウォシュレットスティックリモコン、玄関カメラ付インターホン、玄関床(天然大理石)、キッチン(シーザーストーン)、トイレ洗面(ガラスボウル)

ACCESS アクセス

複数の路線が利用可能な
交通利便性

鉄道は複数の駅、路線が選択できます。ここでは、交通手段別に所要時間を見ていきましょう。

鉄道

京阪中之島駅
京阪中之島駅

ザ・パークハウス中之島タワーからは以下の駅などが利用できます。

  • 京阪中之島線「中之島」駅 徒歩2分
  • JR東西線「新福島」駅 徒歩9分
  • JR大阪環状線「福島」駅 徒歩14分
  • Osaka Metro中央線「 阿波座駅」駅 徒歩14分
  • 阪神本線「福島」駅 徒歩13分
  • Osaka Metro千日前線「玉川」駅 徒歩14分
  • 京阪電鉄中之島線「渡辺橋」駅 徒歩15分

近隣駅からの主要なスポットへは、以下の所要時間で到着できます。

「梅田」駅

京阪中之島線「中之島」駅より「大江橋」駅下車、徒歩で移動し「淀屋橋」駅で大阪メトロ御堂筋線を利用し約15分で到着します。

「北新地」駅

JR東西線・学研都市線「新福島駅」より約2分で到着します。

「新大阪」駅

京阪中之島線「中之島」駅より「大江橋」駅下車、徒歩で移動し「淀屋橋」駅で大阪メトロ御堂筋線を利用し約23分で到着します。

「なんば」駅

京阪中之島線「中之島」駅より「渡辺橋」下車、徒歩で移動。肥後橋」駅より大阪メトロ四つ橋線を利用し、約16分で到着します。

「天満橋」駅

京阪中之島線「中之島」駅より約7分で到着します。

「本町」駅

京阪中之島線「中之島」駅より「渡辺橋」下車、徒歩で移動。「肥後橋」駅より大阪メトロ四つ橋線を利用し、約12分で到着します。

「京橋」駅

京阪中之島線「中之島」駅より約10分で到着します。

「鶴橋」駅

京阪中之島線「中之島」駅より「京橋」駅で乗り換え、JR大阪環状線を利用し、約26分で到着します。

「天王寺」駅

京阪中之島線「中之島」駅より「天満橋」で乗り換え、大阪メトロ谷町線を利用し、約22分で到着します。

「淀屋橋」駅

京阪中之島線「中之島」駅より「天満橋」で乗り換え、京阪本線準急を利用し、約14分で到着します。

「京都」駅

JR大阪環状線大和路快速「福島」駅より「大阪」駅で乗り換え、東海道・山陽本線新快速を利用し、約39分で到着です。

「神戸」駅

JR東西線区間快速「新福島駅」より「尼崎」駅で乗り換え、JR東海道山陽本線快速を利用し、約39分で到着します。

ルートは複数ありますので時間帯や用途により最適なルートを選択するのがおすすめです。

タクシー

タクシー

※画像はイメージです。

ザ・パークハウス中之島タワーからタクシーで移動した場合の所要時間と料金は以下の通りです。

所要時間
JR「大阪」駅 約7分
大阪メトロ「梅田」駅 約8分
大阪メトロ「西梅田」駅 約6分
大阪メトロ「東梅田」駅 約9分
JR「北新地」駅 約8分
JR「新大阪」駅 約19分
大阪メトロ「淀屋橋」駅 約9分
大阪メトロ「本町」駅 約8分
JR「京橋」駅 約19分

料金は時間帯や曜日によって変動する場合があります。また、深夜料金が適用される場合もあります。

バス

バス

※画像はイメージです。

ザ・パークハウス中之島タワーからバスで移動した場合の所要時間と料金は以下の通りです。

バスルート/系統 所要時間
「大阪駅前」
バス停
「堂島大橋」バス停
/大阪シティバス53号
9分

所要時間は交通状況によって変動する場合があります。また、料金は時間帯や曜日によって変動する場合があります。

空港

空港

※画像はイメージです。

伊丹空港(大阪国際空港)へのルート

伊丹空港までの所要時間は以下の通りです。

車でのアクセス

「福島出入口」ICより阪神11号池田線を利用し、約18分で到着します。下道利用では、約40分で到着します。

電車でのアクセス

JR大阪環状線大和路快速「福島」駅より「大阪」駅下車、徒歩で移動し「大阪梅田」駅にて阪急宝塚線急行を利用し「蛍池」乗り換え大阪モノレールを利用し、約38分で到着します。

伊丹空港までのルートは複数ありますので時間帯や用途により最適なルートを選択するのがおすすめです。

関西国際空港へのルート

関西国際空港までの所要時間は以下の通りです。

車でのアクセス

「波除出入口」ICより阪神16号大阪港線、阪神4号湾岸線を利用し約56分で到着します。下道利用の場合は約102分で到着します。

電車でのアクセス

大阪環状線大和路快速「福島」駅より「天王寺」駅乗り換えJR阪和線 特急はるか31号を利用して約50分で到着します。

関西国際空港への移動は、ルートが複数ありますので、ご自身の都合に合わせて、最適な交通手段を選ぶことをおすすめします。

新幹線発着駅

「新大阪」駅へのルート

車でのアクセス

一般道の利用で約19分で到着します。

電車のアクセス

京阪中之島線「中之島」駅より「大江橋」駅下車、徒歩で移動し「淀屋橋」駅で大阪メトロ御堂筋線を利用し約23分で到着します。

LIFE
INFORMATION 周辺の施設・店舗情報

水・緑・上質な文化に
包まれた
中之島を愉しむ

ザ・パークタワー中之島の1階にある食品スーパーをはじめとした多くの商業施設から、歴史、文化、公園、などオン・オフ問わずに利用できる施設が周辺には充実しています。

商業施設、商店街

グルメブティック メリッサ(徒歩3分/約180m)

グルメブティック メリッサ
グルメブティック メリッサ

「ホテルの味をご家庭に」をコンセプトにしたリーガロイヤルホテル1階に構えるテイクアウトショップ。ホテルのお総菜をはじめ、パンやケーキなど約300種類もの商品が並びます。

中之島バンクス(徒歩3分/約200m)

中之島バンクス
中之島バンクス

デザインをテーマにしたミュージアムやカフェなどが連なる複合施設「NAKANOSHIMA BANKS」(中之島バンクス)。週末には新鮮な野菜や果物が並ぶマルシェや、季節を通じて水辺というロケーションを生かした様々なイベントを開催しています。

ライフ土佐堀店(徒歩9分/約680m)

ライフ土佐堀店
ライフ土佐堀店

生鮮食料品などのほかに、衣料品や日用品、医薬品といった商品も品揃えされています。店内では、焼きたてパンの販売もしています。ほかにはATM、コピー機、クリーニング店などといった便利な施設も備わっていて、長い営業時間の便利なスーパーマーケットです。

堂島クロスウォーク(徒歩11分/約820m)

堂島クロスウォーク
堂島クロスウォーク

堂島クロスウォーク(DOJIMA CROSSWALK)は、都市型食品スーパーマーケットをはじめ、レストランやカフェ、フラワーショップなどの物販店、フィットネスクラブやカルチャースクールなど、オシャレな大人のアーバンライフを支える商業施設となっています。

中之島フェスティバルプラザ(徒歩15分/約1,200m)

中之島フェスティバルプラザ
中之島フェスティバルプラザ

中之島のランドマーク。高さ200mの超高層ツインタワー内に「食文化・ライフスタイルの情報発信基地、新たな文化の拠点」として、最上階のグランメゾンから日常使いのレストランやカフェなどが集まっています。

自然、公園

下福島公園(徒歩3分/約200m)

下福島公園
下福島公園

公園内にはこの地が発祥の地といわれ、区の花にも指定されているノダフジ(野田藤)が栽培されています。また、足利義詮や豊臣秀吉も訪れた藤庵の庭も復元されて公園内に移設されています。

大阪市立科学館(徒歩10分/約780m)

大阪市立科学館
大阪市立科学館

大阪市立科学館は、毎週のようにイベントが開催され、世代を選ばず楽しめる日本を代表する、科学のミュージアムです。「宇宙とエネルギー」をテーマに科学を楽しむ文化を発信しています。また、プラネタリウムは、天文の専門スタッフが、高性能の投影システムを駆使した生解説で、星空と宇宙をご案内します。

国立国際美術館(徒歩10分/約780m)

国立国際美術館
国立国際美術館

国立国際美術館は、国内外の現代美術を中心とした作品を収集・保管・展示し、関連する調査研究及び事業を行うことを目的として万博記念公園内に開館。建物の外観は、竹の生命力と現代美術の発展・成長をイメージしてデザインされており、設計はアルゼンチン生まれのシーザー・ペリ氏が手がけた。約8,200点もの作品を収蔵し、多彩な展覧会を随時開催しています。

大阪市立東洋陶磁器博物館(26分/約2,080m)

大阪市立東洋陶磁器博物館
大阪市立東洋陶磁器博物館

日本陶磁の収集などにより、東洋陶磁のコレクションとして世界第一級の質と量を誇っています。このなかには、2件の国宝と13件の重要文化財が含まれています。また、ペルシア陶器、鼻煙壺など関連分野のコレクションの寄贈によっても館蔵品の充実が進んでいます。

中之島公園(徒歩27分/約2,150m)

中之島公園
中之島公園

バラ園が有名な水辺公園。約310種類およそ3,700株からなるバラ園があり、5月中旬と10月中旬に見頃を迎えます。年末にはライトアップもされ、付近のレトロビルと調和した景観は「大阪みどりの百選」に選ばれています。

暮らし、インフラ

あみだ池筋(徒歩1分/約50m)

あみだ池筋
あみだ池筋

大阪市内を南北に走る幹線道路で、なにわ筋と新なにわ筋の間を通っています。北は中之島を経て中津方面へ、南は芦原町方面へアクセスできます。

土佐堀通(徒歩4分/約300m)

土佐堀通
土佐堀通

大阪を東西に横断するように抜けている主要幹線道路です。西は大阪港方面に、東は京橋方面へと繋がり市内の東西をつなぐ重要な幹線道路です。

大阪市役所(徒歩13分/約1,040m)

大阪市役所
大阪市役所

大阪市行政の中枢を担う施設で、現在の大阪市役所本庁舎(大阪市庁舎)は4代目市庁舎で、先代の3代目市庁舎から大阪市北区中之島の現在地に位置しています。

中之島センタービル内郵便局(徒歩3分/約180m)

中之島センタービル内郵便局
中之島センタービル内郵便局

窓口では、主に切手、はがきの販売、手紙や小包の郵送など郵便業務、貯金、様々な学資保険などを扱う保険業務と、3つの業務を行っています。さらに欠かせないATMの設置もされていて、各種キャッシュレス決済にも対応しています。

住友病院(徒歩4分/約280m)

住友病院
住友病院

大正10(1921)年7月に開業された、歴史のある病院です。地域医療の第一線を担うかかりつけ医等の支援を行い、地域医療全体の充実を図ることを目的に大阪府知事から「地域医療支援病院」承認を受けた病院です。診療科30以上、病床400以上を誇り、多数の医療機器を備え、地域医療とも連携できる病院です。

幼稚園、保育園、学校

下福島幼稚園(徒歩6分/約410m)

下福島幼稚園
下福島幼稚園

大阪市立中之島小中一貫校(徒歩2分/約110m)

大阪市立中之島小中一貫校
大阪市立中之島小中一貫校

イベント、お祭り

中之島まつり

会場には福祉、人権、医療、環境、国際交流、伝統文化などの活動をする市民文化団体が集結。さまざまなグルメを販売する屋台が登場するほか、音楽、ダンス、政治討論などを行うステージイベント、フリーマーケット、自主制作映画が上映される中之島映画祭まで、多彩な企画が行われます。

まとめ

都会のオアシス中之島から
始まる
豊かな暮らし

ザ・パークハウス中之島タワー レリーフ
ザ・パークハウス中之島タワー レリーフ

自然の魅力と文化・芸術を感じることができる水都大阪のシンボルアイランド中之島。一方で多くの鉄道路線も徒歩圏内で利用でき、生活環境も充実しています。竹中工務店の実績ある技術による免震構造、24時間有人管理をはじめとした防犯性の高いセキュリティで安心で安全な日々の暮らしが送れます。そして「ザ・パークハウス中之島タワー」の多彩な共用施設と上質なサービスを享受しながら、文化・芸術、歴史的な建造物が創り出すこの風景がある都会のオアシス、中之島。「ザ・パークハウス中之島タワー」から始まる豊かな暮らしがここにあります。

ザ・パークハウス
中之島タワー

駅徒歩 不動産の表示に関する公正競争規約の改正(2022年9月1日)により、交通利便情報が販売中のものと異なる場合がございます。

京阪中之島線
「中之島」駅 徒歩2分

JR東西線
「新福島」駅 徒歩9分

阪神本線
「福島」駅 徒歩13分

大阪メトロ千日前線
「玉川」駅 徒歩14分

築年月

2017年10月

総戸数

894戸

階数

地上55階