近鉄不動産|関電不動産 他 ザ・上本町タワー Concept 医療・教育・商業のさまざまな施設が集積 生活の利便性と安らぎが融合した豪華な住環境

ザ・上本町タワー

近鉄難波・奈良線「大阪上本町」駅 徒歩6分

居住、商業、医療、健康づくりの
機能が集約された「複合街区」

地上37階建て、総戸数267戸の高層マンション

2025.03.07 公開

LOCATION ロケーション

ほどよい都心を使いこなす
優越感ある住環境

ザ・上本町タワー 外観
ザ・上本町タワー 外観

上本町は暮らしに必要となるさまざまな施設が集約し、大阪の歴史や文化の街としての顔を持っています。ザ・上本町タワーは、アミューズメントやショッピング、オフィスが集積し絶え間なく活動し続ける、喧騒の中の都会とは異なり、生活のための利便性と安らぎの環境を備えた「ほど良い都心」に位置しています。居住・商業・医療・健康づくりの機能が集約された「複合街区」の中心で、ますます快適で便利、安心な日々を送ることができます。

最寄りの近鉄難波・奈良線「大阪上本町」駅は主要駅へのアクセスがよく、奈良、神戸三宮駅への直通列車が発着します。また、谷町九丁目駅が徒歩圏内であることから、大阪メトロを利用し、オフィス街へのアクセスも良好で、 大阪・ミナミの中心地「なんば」にも短時間で到着します。

上本町近鉄百貨店
上本町近鉄百貨店

ショッピングでは、近鉄「大阪上本町」駅と直結の近鉄百貨店を便利に活用できます。6フロアが専門店街となっており、日常生活に必要なものはほぼ全て揃います。さらに、6階には大阪新歌舞伎座の劇場があり、演劇を楽しむこともできます。

五条公園
五条公園

徒歩でのアクセス圏内に複数の公園があります。徒歩3分の石ヶ辻公園は、小さな子どもも遊べる遊具が揃っている公園で複合遊具もあり、子どもの成長に合わせて遊ぶことができます。大阪市立五条運動場が併設されている広々とした五条公園にも徒歩圏内です。 春には木蓮が開花し、花見を楽しむこともできます。

先進医療を提供している大阪赤十字病院は徒歩1分、小児科・婦人科とともに出産から子育てとその後までを見守る「母と子と女性のための病院」である聖バルバナ病院は徒歩3分と、充実した医療サービスをいつでも享受することができます。

FEATURES 建物の特徴

緑のやさしさに包まれた
上本町のランドマーク

ザ・上本町タワーは、安心、安全の暮らしをコンセプトにした「水と緑の街」に佇みます。敷地の約69%をオープンスペースとし、地域の方に公開しています。段差のないプロムナードや散歩道には四季折々に美しい樹木を植栽し、周辺の緑と調和する都心のオアシスとなり、豊かな「緑」のネットワークが広がります。

コンセプト・デザイン

オアシスから空へ伸びるタワーマンション

ザ・上本町タワー オープンスペース
ザ・上本町タワー オープンスペース

ザ・上本町タワーの外観デザインを形容すると「オアシスから伸びる超高層タワー」がふさわしいでしょう。ゆったりとしたオープンスペースから、豪華な風格を醸し出す格調高い造形は、上本町エリアのランドマークにふさわしい外観です。

優雅であり、癒しとなる表情を見せる
エントランス

ザ・上本町タワー エントランス
ザ・上本町タワー エントランス

ゆったりとしたエントランス前のオープンスペースには、水の潤いが感じられる「アクアコート」があります。心安らぐ水景は、タワーエントランスにふさわしい優雅さを醸し出します。

「緑」「水」「集い」を手に入れる邸宅

ザ・上本町タワーは、緑豊かな「フォレストコート」と水景にやすらぐ「アクアコート」、そして子どもが楽しみ住まう方々の交流を生む「キッズコート」があります。敷地内には、ソメイヨシノやクスノキ、ヒラドツツジやサザンカなど、高低さまざまな樹木が植栽され、段差のないプロムナードや散歩道で豊かな緑と四季の移ろいを感じることができます。

緑に包まれた広場やプレイロットは植栽帯によって車道とは隔離されているため、安心して子どもを自由に遊ばせることができます。十分な広さと遊具やベンチも備え付けられており、憩いのひとときを過ごすことができます。

建物構造

コアウォールと外周フレーム

ザ・上本町タワーは、建物の中心に超高層タワーをしっかりと支えるコアウォールが形成されています。さらに、建物の外周フレームを設けることで、上部構造に必要な剛性と強度を確保しています。外周フレームを構成する柱や梁は、専用工場で製作されたプレキャストコンクリートを採用しており、現地施工時の天候に左右されることなく高い品質のコンクリート製品が得られ、より信頼性の高い構造となっています。

高強度鉄筋・高強度コンクリート

ザ・上本町タワーでは大地震時に対しても十分な耐力を持った、高強度コンクリート・鉄筋で強固な構造となっています。大きな軸力が発生する柱には、最大で75N/mm2の高強度コンクリートを使用、主筋には最大直径38mmの太径かつ高強度鉄筋、せん断補強筋の一部には高強度の帯筋と中子筋を使用しています。

ハイブリッド免震構造

基礎と上部構造体の間に、天然ゴム系積層ゴム支承、弾性すべり支承、オイルダンパーで構成された免震装置を設置する「ハイブリッド免震構造」としており、地震時に建物に伝わる地盤振動を低減することができます。免振装置が地震によるガタガタとした地震の揺れをゆっくりとした揺れに変えることで、建物を確実に支えつつ、躯体へのダメージを抑えることで、住宅の安全性を向上させています。

免震構造により柱や梁を太くすることなく、高い安全性が実現できるため、建物の居住空間が広くなっており、さらに、床構造を梁型が出ないすっきりとしたスパンクリート合成床板を採用することで、スラブ厚を薄くし、すっきりと広がる空間を作り上げています。

防災設備

防災火災

※画像はイメージです。

自動消火のスプリンクラー

9階以上の住戸に火災を感知した場合に自動で消化を行うスプリンクラーを設置しています。これにより、万が一の火災の場合も消防隊の到着を待たずに消化を行うことができ、住まう方の安全を守ります。

24時間有人管理

ザ・上本町タワーでは、24時間体制で管理員がマンション内の防災センターで交代勤務を行っています。機械監視に加えて人の目による監視で住民の安全を守ります。また、24時間フルタイムで稼働する「近鉄セーフティ24-S」によるセキュリティシステムを採用しています。火災だけでなく防犯センサーや非常押しボタンと連動し監視センターまで自動的に通報され、警察署や消防署、警備員などの迅速な初動を実現します。

ヘリポート

屋上には万が一の災害時や緊急時、住まう人々の安全な避難や迅速な救助活動を実現するための緊急着陸場を設置しています。これにより、地上からだけではなく、空からの救助も可能です。

セキュリティ

3重のセキュリティバリア

共用エントランスはオートロックになっており、パッシブキーにより非接触で解錠することができます。エレベータ操作にもパッシブキーが必要で、不審者の侵入を防ぎます。さらに、住戸玄関ではリバーシブルディンプルキーによってダブルロックを解錠する必要があり、万が一不審者が侵入しても入居者の安全は確保されます。

防犯カメラ

エレベータ内をはじめ、エントランスホール、駐車場や駐輪場などの共用部分には、要所に防犯カメラが設けられており、防災センターのモニターで24時間人の目によって監視することで、安全な暮らしを実現します。

24時間管理スタッフ常駐

ザ・上本町タワーでは、24時間体制で管理員がマンション内の防災センターに交代勤務しています。機械監視に加え、人の目による監視で不審者の侵入や災害、トラブルなどの異常事態に備えます。

COMMON AREA 共用部

コミュニティを創造する
豊富で快適な共有施設

共用施設

ザ・上本町タワーは、住まう方同士の交流を深めるための場所として、誰もが楽しめる共用施設を建屋内に保有しています。憩いの場で語り合う安らぎの時間を過ごすことができるとともに、タワーライフを謳歌できるスカイラウンジなど、ラグジュアリーな生活を送ることもできます。

ゲストルーム

地上3階にお客様を迎え入れるゲストルームがあります。一流ホテルを彷彿とさせる格調高い内装で安らぎのひとときを過ごすことができます。

キッズホール

こども用の遊具や本棚が設けられたキッズルームがあります。雨の日も存分に体を動かして遊ぶことができ、同じマンションに住まう家族との交流も生まれます。

コミュニティホール

管理組合の集会所としても利用できる広いコミュニティルームがあります。隣接するキッズルームとパーティションで間仕切られているため、さらにスペースを広げて大きなイベント会場として利用することもできます。

シアタールーム

ワイドスクリーンと迫力のある専用の音響設備を設けたシアタールームがあります。お気に入りの映画を快適な環境で存分に楽しみ日々の疲れを癒すことができます。

和室

シアタールームと隣接して八畳の和室があります。茶道や華道を嗜み、ゆっくりとくつろぐこともできます。

スカイラウンジ

地上21階に都心の夜景を一望できるスカイラウンジがあります。梅田・難波方面を望む北西側にスカイラウンジを設けることで、色とりどりの光が煌めく優雅な眺望を満喫できます。さらに、キッチンやダイニングテーブルもあり、家族や友人とパーティを楽しむことも可能です。

サービス

ザ・上本町タワーは、充実した共用施設だけでなく、入居者の快適な暮らしをサポートする多様なサービスを提供しています。

コンシェルジュ

コンシェルジュサービス

※画像はイメージです。

エントランスロビーに設けられたコンシェルジュカウンターでは、アクティブに生活される方々の日々を快適にサポートします。

コミュニティ施設の利用受付や備品貸し出しサービス、コピー・FAXなどの生活を便利にするサービスはもちろん、レンタカーやタクシーの手配、宅配便の発送受付などの取次サービスを提供します。さらに、ホテルやレストランからのケータリングサービスや幼稚園教諭や保育士の資格をもったベビーシッターを紹介する紹介サービスで、より快適な生活をサポートします。

安心・便利なエミット・マンションシステム

携帯電話やパソコンから住戸内のセキュリティ情報を確認し、遠隔操作ができる「パーソナルセキュリティ」と、来客確認ができる「生活便利サービス」を利用できます。「パーソナルセキュリティ」では留守中のトラブル発生をメールで知ることができる警報メール機能や防犯警戒状態のセット/リセットを携帯電話から操作できる遠隔操作機能、玄関ドアの戸締り確認状態を外出先で確認できる戸締り確認機能があります。

「生活便利サービス」では来客をメールで知ることができ、添付されたURLから画像を確認することができます。さらに宅配ボックスに荷物が届けられる情報もメールで通知を受けることができます。

はぴeプラン

オール電化マンションのザ・上本町タワーでは、全戸で「はぴeプラン」に加入することができます。はぴeプランに加入すると、家族団らんの時間帯である朝と夜の「リビングタイム」と深夜の「ナイトタイム」の電気代が10%安くなります。

以上のように、ザ・上本町タワーは、入居者の暮らしと安全を確保しながら、交流を深めることのできる多様な共用施設や、快適な生活をサポートするコンシェルジュサービスなどを提供しています。

FLOOR PLAN 間取り図一例

機能的で快適さを感じる
理想の間取り

ザ・上本町タワー 間取り図例
ザ・上本町タワー 間取り図例
ザ・上本町タワー 間取り図例
ザ・上本町タワー 間取り図例

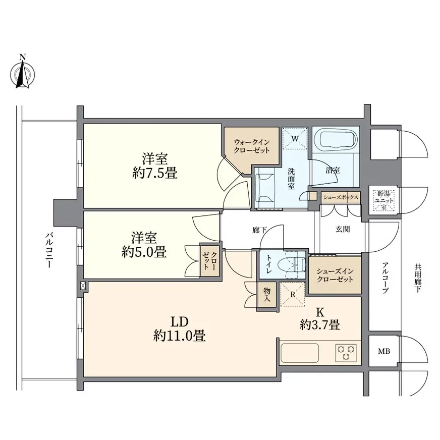
ザ・上本町タワーは、2LDKから4LDKの間取りがあります。玄関から廊下を挟んでリビングダイニングにつながります。キッチンはリビングダイニングと一体となっていながらも、丸見えにならない分離された配置となっています。洋室にはそれぞれクローゼットが付帯しており、子どもの一人部屋としてもプライバシーを守る使い方ができます。また、角住戸は2面バルコニーで開放感が演出されています。

INSIDE THE ROOM 室内

豊かな生活品質を持続する
邸宅としての譲れない品質

ザ・上本町タワーは、住まいのクオリティにこだわるうえで、室内環境を大切にしています。空気・水・光といった欠かせない基本要素をしっかりとコントロールしたうえで、より快適に、格調高い生活を実現する住空間を提供しています。

室内仕様

邸宅の名にふさわしい上質な住空間

天井まであるトールタイプのシューズボックスを配し、下部の間接照明で優雅さを醸し出すスペース十分の玄関を抜け、廊下を通ると、約2.5〜2.7mの天井高を確保した開放感のあるリビング・ダイニングにたどり着きます。リビングに取り付けられたサッシは約2.1〜2.2mのハイサッシが使用されており、たっぷりの自然光が届き、より開放的な広がりを感じることができます。角住戸のリビング・ダイニングにはワイドなコーナーウィンドウを設けており、窓面から広がる都心の眺望を楽しむことができます。

遮音性能も充実

窓には、優れた遮音性を誇る遮音等級T-2(30等級)相当の防音サッシを使用しています。外部の騒音はもちろん、雨・風の音を遮断し快適な生活を守るとともに、室内からの音漏れを軽減し、周囲への不要な配慮を減らすことができます。

機能性と美しさを兼ね備えたキッチン

キッチン

※画像はイメージです。

キッチンの奥行きは通常の600mmより150mmも広い750mmのワークトップになっています。さらに流しは幅約1,100mmのワイドタイプで調理プレートとまな板プレートをセットした「2Dシンク」が採用されており、料理効率が向上します。食器洗い乾燥機は備え付けで、排水溝に流してスイッチを入れるだけで生ごみを直接処理増へと運ぶディスポーザーも付帯しており、キッチンをいつも清潔に家事の負担を減らします。

バリアフリーバスルーム

バスルームには「やさしさ」と「いたわり」をカタチにした多彩なバリアフリー機能が装備されています。出入口はフラットで段差がないため、つまずきを防止します。バスタブは低床仕様で楽な姿勢で浴槽内に出入りできます。

ACCESS アクセス

近鉄、JR、大阪メトロに
快適なアクセス

ザ・上本町タワーは、近鉄難波・奈良線「大阪上本町」駅およびJR大阪環状線「鶴橋」駅まで徒歩6分、大阪メトロ谷町線「谷町九丁目」駅まで徒歩12分と複数路線を快適に利用できます。大阪市内の繁華街やビジネス街はもちろん、奈良や神戸三宮に直通する電車も利用することができます。

掲載の所要分数は日中平常時のもので、乗り換え・待ち時間等は含みません。
また時間帯により異なる場合があります。

鉄道

大阪上本町駅
大阪上本町駅
  • 大阪難波駅
    大阪上本町駅から近鉄難波・奈良線を利用で、所要時間は約4分です。
  • 大阪城公園駅
    鶴橋駅からJR大阪環状線を利用で、所要時間は約5分です。
  • 天王寺駅
    鶴橋駅からJR大阪環状線を利用で、所要時間は約6分です。
  • 京橋駅
    鶴橋駅からJR大阪環状線を利用で、所要時間は約7分です。
  • 大阪駅
    鶴橋駅からJR大阪環状線を利用で、所要時間は約15分です。
  • 近鉄奈良線「近鉄奈良」駅:約38分
    鶴橋駅から近鉄難波・奈良線を利用で、所要時間は約30分です。

タクシー

タクシー

※画像はイメージです。

行き先 所要時間
「大阪難波」駅 約12分
「大阪城公園」駅 約15分
「天王寺」駅 約10分
「京橋」駅 約18分
「大阪」駅 約20分

バス

バス

※画像はイメージです。

行き先 バスルート/系統 所要時間
「大阪難波」駅 細工谷→なんば/73系統 約25分
「大阪城公園」駅 細工谷→上本松六丁目
→京阪東口
→城見一丁目/73系統→62系統→46系統
約40分
「天王寺」駅 上本町八丁目
→あべの橋/62系統→41系統
約20分
「京橋」駅 上本町七丁目北
→京阪東口
→京橋北口/62系統→31系統
約40分
「大阪」駅 上本町七丁目北
→大阪駅前/62系統
約30分

空港

空港

※画像はイメージです。

伊丹空港(大阪国際空港)へのルート

①車

車を利用する場合は、阪神高速13号環状線、阪神高速1号環状線および11号池田線等を利用して、約30分で到着します。阪神高速を使わず下道を利用する場合は約40分で到着します。

②バス

バスを利用する場合は、近鉄「大阪上本町」駅から伊丹空港行のリムジンバスを利用すると、乗換不要で約50分で到着します。

関西国際空港へのルート

①車

車を利用する場合は、阪神高速6号大和川線および阪神高速4号湾岸線等を利用して、約50分で到着します。

②電車

電車を利用する場合は、JR大阪環状線「鶴橋」駅から「天王寺」駅へ、その後「関西空港」駅行きに乗り換えます。ザ・上本町タワーから関西国際空港まで約1時間で到着します。

ザ・上本町タワーから伊丹空港・関西国際空港への移動は、電車・バス・車ともに快適です。ご自身の都合に合わせて、最適な交通手段を選ぶことができます。

LIFE
INFORMATION 周辺の施設・店舗情報

利便性と快適な暮らしを
都会の街中で

ザ・上本町タワーの付近には、複数の公園や病院があり、健康づくりに適した立地です。商業施設や図書館などの公共施設にもアクセスが容易で、ショッピングやグルメを楽しみつつ、普段の生活を快適に過ごすことができるでしょう。

商業施設、商店街

上本町近鉄百貨店(徒歩7分/約500m)

上本町近鉄百貨店
上本町近鉄百貨店

買い物が楽しめるのはもちろんのこと、ワークショップや撮影会などのイベントも頻繁に開催されている上本町近鉄百貨店には徒歩7分でアクセスできます。レストランフロアを中心に、屋上ビアガーデンなど、グルメも充実しています。

上本町YUFURA(徒歩8分/約600m)

上本町YUFURA
上本町YUFURA

上本町YUFURAはショッピングゾーンが6フロアもあり、ファッションや雑貨など個性豊かなショップが立ち並びます。ザ・上本町タワーから徒歩8分のアクセスのよさで、親しみやすいモールです。

うえほんまちハイハイタウン(徒歩8分/約600m)

うえほんまちハイハイタウン
うえほんまちハイハイタウン

ザ・上本町タワーから徒歩8分のうえほんまちハイハイタウンには数多くのショップが立ち並び、食料品・日用品、文具から雑貨・ファッションまでオールマイティにそろえることができます。また、ラーメンやこなもんなどの飲食店だけでなく、クリニックやエステサロンなどもあります。

Vita(ヴィータ)ももやま(徒歩5分/約350m)

Vita(ヴィータ)ももやま
Vita(ヴィータ)ももやま

Vita(ヴィータ)ももやまは、天王寺桃山エリアにある商業施設です。主に、フィットネスクラブ、ファミリーレストラン、スーパーマーケットが入っており、ザ・上本町タワーから徒歩5分でアクセスできるため日常の買い物を手軽に済ませることができます。

自然、公園

石ヶ辻公園(徒歩3分/約200m)

石ヶ辻公園
石ヶ辻公園

ザ・上本町タワーから徒歩3分の距離にある石ヶ辻公園は、複合遊具もあり、子どもの成長に合わせて遊ぶことができます。

五条公園(徒歩9分/約700m)

五条公園
五条公園

ザ・上本町タワーから徒歩9分でアクセスできる五条公園は、大阪市立五条運動場併設の防球ネットに囲まれた広々とした公園です。団体利用も多く、週末は野球やサッカーなどの球技に利用されています。遊具のあるスペースも併設されており、大人にも子どもにも人気の公園になっています。

暮らし、インフラ

大阪赤十字病院(徒歩1分/約50m)

大阪赤十字病院
大阪赤十字病院

ザ・上本町タワーの目前に立地する大阪赤十字病院は、救急医療、がん治療、手術支援ロボットなどの先進医療を提供している病院です。大阪市の基幹病院として、高度急性期医療や救急医療の中核的役割を担っています。

聖バルナバ病院(徒歩3分/約200m)

聖バルナバ病院
聖バルナバ病院

キリスト教の聖バルナバに因んで命名された聖バルナバ病院は、小児科・婦人科とともに出産から子育てとその後までを見守る「母と子と女性のための病院」です。約150年の歴史をもつ病院で、 多くの人が利用しています。

大阪けいさつ病院(徒歩10分/約800m)

大阪けいさつ病院
大阪けいさつ病院

大阪警察病院は、地域医療の中核的な病院として、数多くの診療科をもち、580床の病床を保有しています。先端医療、高機能医療も提供が可能です。

石ヶ辻郵便局(徒歩4分/約250m)

石ヶ辻郵便局
石ヶ辻郵便局

ザ・上本町タワーから徒歩4分の位置には、古くからある街に根付いた石ヶ辻郵便局があります。ビルの1階にあり、手軽に利用することができます。

大阪市立天王寺図書館(徒歩5分/約300m)

大阪市立天王寺図書館
大阪市立天王寺図書館

大阪市立天王寺図書館は、1階と中2階にわかれた蔵書数の多い図書館で、キッズスペースや自習スペースも備わっている、ファミリー層や学生にも人気の図書館です。他の図書館の蔵書を取りよせて、ここで受け取ることもできます。

幼稚園、保育園、学校

大阪市立五条幼稚園(徒歩5分/約400m)

大阪市立五条幼稚園
大阪市立五条幼稚園

大阪市立桃陽小学校(徒歩5分/約400m)

大阪市立桃陽小学校
大阪市立桃陽小学校

大阪市立夕陽丘中学校(徒歩9分/約700m)

大阪市立夕陽丘中学校
大阪市立夕陽丘中学校

清風学園中学校、高等学校(徒歩4分/約300m)

清風学園中学校、高等学校
清風学園中学校、高等学校

上宮学園中学校、高等学校(徒歩7分/約500m)

上宮学園中学校、高等学校
上宮学園中学校、高等学校

イベント

天王寺区民まつり(五条公園)

徒歩圏内の五条公園で開催される「天王寺区民まつり」は大阪市内の24の各区で開催される祭りのひとつです。出店ブースや体験コーナーなども盛んに催されており、近隣の学校の演奏や歌にダンスなど見どころが満載の祭りとなっています。

まとめ

利便性と安らぎの住空間

ザ・上本町タワー 外観
ザ・上本町タワー 外観

ザ・上本町タワーは、暮らしに必要なさまざまな施設が集積し、文化の街、歴史の街としての顔をもつ上本町エリアのランドタワーとして、快適な生活を提供しています。上本町ターミナルに隣接した利便性の高い立地で、敷地内の緑あふれる環境で安らぎのある充実した毎日をすごすことができるでしょう。

ザ・上本町タワー

駅徒歩 不動産の表示に関する公正競争規約の改正(2022年9月1日)により、交通利便情報が販売中のものと異なる場合がございます。

近鉄大阪線
「大阪上本町」駅 徒歩6分

築年月

2009年8月

総戸数

267戸

階数

地上37階