阪急電鉄 ジオタワー京町堀 Concept 眺望を所有する暮らしを手に入れる

ジオタワー京町堀

大阪メトロ四つ橋線「肥後橋」駅 徒歩6分
2路線3駅徒歩圏内

潤いとゆとりの都心生活

地上23階、総戸数76戸のタワーマンション

2025.02.28 公開

LOCATION ロケーション

西区京町堀、潤いの靭公園サイドの生活

ジオタワー京町堀 遠景
ジオタワー京町堀 遠景

ジオタワー京町堀は、大阪のビジネスの中心地、本町のオフィス街と隣り合う西区京町堀に位置しています。徒歩による生活範囲が広く、北は「梅田」南は「なんば」へと都心の広範囲へ気軽に足が伸ばせ、アクティブに生活できます。

ジオタワー京町堀 植栽
ジオタワー京町堀 植栽

ショッピング、カルチャー、スポーツ、グルメなど豊富なアクティビティの中から、自分のライフスタイルに合った選択肢を自由に選ぶことができる、まさに都心に暮らすことの意味を教えてくれる豊かさと活気に満ちた住環境です。

京町堀
京町堀

そして京町堀だからこその魅力のもう一つが、靭公園を南に従えているという事実。東西に広がる壮大なリラックスパーク、靭公園サイドの落ち着きと豊かなコミュニティを持つエリアが日常使いできます。

FEATURES 建物の特徴

高層23階建て、
眺望を所有する暮らし

ジオタワー京町堀 外観
ジオタワー京町堀 外観

ジオタワー京町堀は、空へと伸びあがる住空間です。住まう人と自然と風土のバランスがとれた住まい。土地の魅力を最大限に利用するための在るべき形が、この京町堀にあります。

コンセプト・デザイン

ジオタワー京町堀 エントランス
ジオタワー京町堀 エントランス

靭公園の緑から都心の煌めきを見晴らす秀逸の眺望。人々を引き付けてやまない卓越の展望。この豊かな開放感と歓びこそが高層に住まうことの魅力です。

壮大な緑から天空を目指すようにすっきりと立ち上がるシャープなフォルムが都会的な外観を演出。上質感を醸し出すタイル張り仕様(一部除く)の外観は、靭公園の深い緑に映え、周辺都市環境と調和する落ち着いた色合いを採用しています。

アウトポール逆梁設計の採用により縦方向の伸びを強調し、直線が描き出す力強さが特徴です。

ジオタワー京町堀 エントランス
ジオタワー京町堀 エントランス
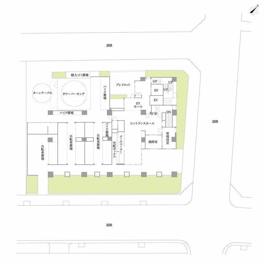
ジオタワー京町堀 敷地配置図
ジオタワー京町堀 敷地配置図

建物構造

柱型を排除したアウトポール逆梁設計

ジオタワー京町堀 外観
ジオタワー京町堀 外観

柱型と梁をバルコニー側に設置するアウトポール逆梁設計を南面に採用。面積以上の広がりを感じると共に、柱の出っ張りがない室内は隅々まで有効活用できます。

快適な住環境を守る優れた遮音設計と断熱使用

ジオタワー京町堀の戸境壁は耐火遮音間仕切りを使用し、隣戸間の生活騒音の軽減が配慮されています。また、外壁の室内側に約25mm厚の現場発泡ウレタンフォーム、天井にも外壁から約450mmまでを吹返す内断熱を設置。直射日光があたる屋上部は、天井スラブコンクリートの上に厚さ約30mmもの押出成型ポリスチレンフォームを敷き詰め、その上からアスファルト防水を施し断熱性を高めています。

防音・遮音に配慮された住環境

パイプスペース内の排水竪管は、グラスウールで包んだうえで遮音シートを巻き、遮音対策を施しています。玄関を除く全ての床を遮音性能の高いL-45等級に設計。足音などの音が下階住戸へ伝播することを緩和し快適な住環境を作っています。この他にも、水廻りの設備には防振ゴムを設置し、生活音への配慮がなされています。

北側居室にはペアガラスサッシ

外気と室内の温度差が大きく、特に冬場に結露が発生しやすい北側に面した居室の窓には、ペアガラスサッシが採用されています。

防災設備

もしもに備えた構造と防災計画が、
家族の安心を育む

防災 火災

※画像はイメージです。

ジオタワー京町堀は、地盤状況に適した工法が採用されています。直径が約1,800mmの杭の先端部分を直径約2,400~3,100mmまで広がらせ、また耐震性能を向上させるために杭頭を鋼管巻きとした剛性の高い杭を、地盤面下約51mの支持層まで貫入させ、しっかりと建物を支えています。

玄関ドアには耐震仕様枠と指詰め防止仕様

地震などにより玄関扉枠が変形しても扉が開閉できる耐震枠付き玄関ドアを設置。扉の吊元側には、小さなお子様を指づめ事故から守る指づめ防止仕様が施されています。

セキュリティ

暮らしを見守る24時間セキュリティシステム

ジオタワー京町堀には、エントランスの訪問者を確認できるカラーTVモニター付インターホンが採用されています。各住戸内のインターホン親機には、火災報知、非常通報機能が組み込まれています。万一火災を検知した場合は、警報音でお知らせするとともに、防災センターおよび監視センターへ自動で通報。通報をキャッチした監視センターは火災の発生を確認すると同時に、速やかに対処します。

エレベーター防犯窓・監視カメラ

エレベーター内での様々なトラブルを想定し、エレベーター扉に窓を付ける等安全策が採用されています。また、監視カメラを設置し、不審者の不正行為や万一の事故など、その画像は24時間録画されると共に、防災センターで映像を確認することができます。

オートロックキーレスエントリー

玄関扉はデッドボルト付鎌錠が採用されています。精密・複雑なダブルタンブラー方式を採用したシリンダーはピッキングに強く高硬度部品を使用しているためドリル等による不正開錠にも強い抵抗力を誇ります。

COMMON AREA 共用部

公園と都心の眺望が堪能
できるラウンジ

ジオタワー京町堀には、居住者が利用できる施設が備わっています。

共用施設

ラウンジ(14階)

居住者すべてにジオタワー京町堀ならではの秀逸な眺望をお愉しみいただけるよう、あえて14階にフロアに共用のラウンジが設けられています。歳時記のイベントやサークル活動、ホームパーティーの会場などとして、活用できます。

安全と利便性に配慮したタワーパーキング

エントランスホールからの導線を設けた駐車場は、防犯上も安心なタワーパーキング仕様です。ハイルーフ車対応のスペースも16台分確保されています。暮らしの足まわりの良さを支えるバイクや駐輪スペースは、日差しや風雨を考慮し屋内に設置されています。

サービス

超高速インターネット

光ファイバー専用線をダイレクトに引き込み、代々通信速度100bpsの超高速ブロードバンド環境が整備されています。24時間常時接続で、料金を気にせず、映画や音楽の視聴が可能です。

INSIDE THE ROOM 室内

豊かさを味わうための
特等席

天井高約2.45m、バルコニー開口高約2.2m。南向きの健康的なリビング空間の利点を最大限に引き出すハイサッシを採用し、より大きな広がりと開放感を演出しました。家具レイアウトもすっきり収まる柱型のないリビング・ダイニングルームには、ピクチャーレールが標準仕様になっており、お好みの絵画も壁を傷つけずに手軽に飾ることができます。

室内設備

身体にやさしく安全な電気式床暖房

床暖房

※画像はイメージです。

ジオタワー京町堀には、暮らしに安心と快適を提供するオール電化システムが採用されています。空気を汚さず乾燥させない電気を利用した自己温度制御機能付きの床暖房が設置されています。住まいによってもたらすことのできる心地よさが多角的に検証され、具体化された上質な住空間となっています。

おいしさを紡ぎ出すクリエイティブな機能

キッチン

※画像はイメージです。

キッチンワーク中もリビングルームのご家族やお客様と会話が愉しめ、配膳や食後の片付けに便利な対面カウンター付きキッチン。オール電化システムの採用により、火を使わない調理器IHクッキングヒーターを全戸に設置。2.6kwの高火力を誇り、ガラストップは掃除もしやすく清潔を保つのも簡単です。その高い安全性は年配の方やお子様のいらっしゃるご家庭でも安心して使用できます。

清潔と心地よさ、バリアフリーを考えた浴室

スイッチ一つでお湯はりが完了するフルオートバス。24時間換気機能付きの浴室換気暖房乾燥機は、洗濯物の乾燥に重宝します。浴槽への出入りが楽な低床タイプの採用やフルフラット出入口、手すりの設置など、バリアフリーにも配慮されています。

使いやすさを追求した、
下足箱やトランクルーム

長傘などもすっきり収まるトールタイプの下足箱には、間接照明や鏡が設置され、使いやすさが追求されています。また、アウトドア用品などの収納に役立つトランクルームも標準装備されています。

ガーデニングにも役立つ便利なスロップシンク

ガーデニングやスニーカーの洗濯に便利なスロップシンク。バルコニーで水や電気が使えることで快適なバルコニーライフが楽しめます。

ACCESS アクセス

都心を縦横無尽に
謳歌する生活

ジオタワー京町堀は、大阪メトロの2路線3駅(四つ橋線「肥後橋」駅 徒歩6分、「本町」駅 徒歩7分、御堂筋線「淀屋橋」駅 徒歩10分)があり、都心の広範囲へ気軽に足が伸ばせる大阪の中心部に位置しています。徒歩による生活範囲も広く、北は「梅田」、南は「心斎橋」へ徒歩でアクセス出来る恵まれた立地が魅力です。

鉄道

肥後橋駅
肥後橋駅

ジオタワー京町堀から最寄りの肥後橋駅・本町駅から主要なスポットへは、以下の所要時間で到着できます。

なんば駅:大阪メトロ四つ橋線「本町」利用 約4分

大阪を代表する繁華街・難波の中心部に位置するなんば駅には、大阪メトロ御堂筋線で約4分で到着します。大阪市内のみならず、関西国際空港など主要スポットへのアクセスも良好なターミナル駅です。海外への窓口的な存在でもあります。

梅田駅:大阪メトロ四つ橋線「肥後橋」利用 約2分

梅田駅は、多くの商業施設やオフィスが立ち並ぶまさに大阪の顔。大阪市内のみならず、京都駅、神戸三宮駅など関西の主要都市に繋がるターミナル駅です。

新大阪駅:大阪メトロ御堂筋線「淀屋橋」利用 約10分

新大阪駅は、東海道新幹線、山陽新幹線の停車駅であり、東京や九州方面への玄関口となる駅です。旅行やビジネスに出かける際に利用する頻度は高いでしょう。

天王寺駅:大阪メトロ御堂筋線「淀屋橋」利用 約13分

天王寺駅は、天王寺公園、天王寺動物園、あべのハルカスなど、歴史的な建造物や文化施設が周辺に多く、国内外の観光客にも人気のスポットです。大阪市内はもちろん、近郊地域への起点駅です。

タクシー

タクシー

※画像はイメージです。

ジオタワー京町堀からタクシーで移動した場合の所要時間は以下の通りです

所要時間
「なんば」駅 約12分
「天王寺」駅 約20分
「梅田」駅 約10分
「新大阪」駅 約21分
関西国際空港 約1時間46分
大阪国際空港(伊丹空港) 約41分

バス

バス

※画像はイメージです。

マンションから徒歩3分の距離にある「京町堀1丁目」バス停からバスで移動した場合の所要時間は以下の通りです。

「なんば」まで:大阪シティバス75系統を利用して約14分で到着します。

「大阪駅前」まで:大阪シティバス75系統を利用して約10分で到着します。

所要時間は交通状況によって変動する場合があります。また、料金は時間帯や曜日によって変動する場合があります。

空港

空港

※画像はイメージです。

大阪国際空港(伊丹空港)へのルート

大阪空港までの所要時間は以下の通りです。

①車を利用する場合

車を利用する場合は、福島出入口から阪神高速1号環状線等を利用して、約20分で到着します。
阪神高速を使わず、一般道を利用する場合は、なにわ筋を北進し国道176号線を経由して府道10号線を利用して伊丹空港方面へ向かうと約41分で到着します。

②電車を利用する場合

電車を利用する場合は、大阪メトロ御堂筋線「本町」駅から阪急線「梅田」駅を経由し、大阪モノレールに乗り換え、約40分で到着します。

関西国際空港へのルート

関西国際空港までの所要時間は以下の通りです。

①車を利用する場合

車を利用する場合は、阪神高速16号大阪港線等を利用して、約60分で到着します。高速を使わず一般道を利用する場合は、新なにわ筋を南下し、約1時間40分で到着します。

②電車を利用する場合

電車を利用する場合は、大阪メトロ御堂筋線「淀屋橋」駅から「なんば」駅へ、その後南海本線「なんば」駅から「関西空港」駅に向かいます。約1時間で到着します。

ジオタワー京町堀から大阪国際空港(伊丹空港)・関西国際空港への移動は、ご自身の都合に合わせて、最適な交通手段を選んでください。

新幹線発着駅

「新大阪」駅へのルート

新幹線の発着駅である「新大阪」駅へは、大阪メトロ「淀屋橋」駅から約10分で到着します。
タクシーを利用する場合、約21分で到着します。

LIFE
INFORMATION 周辺の施設・店舗情報

小粋に生まれ変わる
京町堀界隈

ジオタワー京町堀周辺には、雑貨店や輸入家具店、レストラン、人気のスポットが点在しています。靭公園の緑に面したオープンカフェやテイクアウトのお店、スタイリッシュなインテリアがひときわ目を引く店舗が多いエリアです。また、歴史を感じさせる落ち着いた店も営業する界隈であり、お気に入りの店探しをしながら散策できることでしょう。

商業施設、商店街

せんば心斎橋筋商店街(徒歩15分/約1,200m)

せんば心斎橋筋商店街
せんば心斎橋筋商店街

せんば心斎橋筋商店街は、OsakaMetro 御堂筋線の心斎橋駅~本町駅の南北約660mにおよぶ関西屈指の人気を誇る商店街です。300年以上の歴史ある大阪商人の商店街として、今も多くの人に愛されています。100を超える店舗が軒を連ね、通りには日々さまざまな人々が往来し活気に満ちています。ファッションはもちろん、飲食店やアミューズメント施設など、一日中楽しめます。昨今は、外国人観光客からも人気を集め、平日の日中から多くの観光客を惹きつけています。その賑わいには圧倒されることでしょう。

ライフ土佐堀店(徒歩7分/約520ⅿ)

ライフ土佐堀店
ライフ土佐堀店

ジオタワー京町堀タワーから徒歩7分にあるライフ土佐堀店は、深夜12時まで営業しているスーパーマーケットです。周辺がビジネス街という特徴から、惣菜コーナーの品ぞろえが豊富です。また、単身世帯も多い地域性から、カットフルーツやカップサラダなど個食、簡便商品のコーナーに力を入れています。

自然、公園

靭公園(徒歩1分/約30ⅿ)

靭公園
靭公園

ジオタワー京町堀に近接する靭公園は、大阪市内屈指の人気を集める都心のオアシスです。総面積約9.7ha、東西約800m、南北約150mの細長い形をしており、中央を南北に通るなにわ筋によって東園と西園に分かれています。
緑の連なり、水の潤い、花の香、鳥の声。大阪市内では貴重なオアシスを庭のように使える、安らぎを満たす立地です。靭公園はウォーキングやジョギングコースとしても人気があり、多くの人が日常的に利用しています。日々の活力をいつでもチャージすることができ、健康的なライフスタイルを無理なく継続しやすい、それも靭公園を目の前に臨むジオタワー京町堀ならではの暮らしです。

西船場公園(徒歩1分/約20m)

西船場公園
西船場公園

西船場小学校に隣接する西船場公園の周囲にはお洒落なカフェや飲食店が立ち並ぶ都心の公園です。ちいさな子どもの遊び場として、周辺ビジネス街の癒しの場として親しまれています。また、地震時の一時避難所となっています。

靭テニスセンター(徒歩4分/約300m)

靭テニスセンター
靭テニスセンター

靭テニスセンターは、大阪国際ローンテニスクラブのメインコートとして1953年に開設された歴史あるテニス場です。靱テニスセンターは、ITFワールドテニスツアージュニアのJ500カテゴリー7大会の一つである世界スーパージュニアテニス選手権大会や、ジャパン女子オープンテニスの会場となっています。

暮らし、インフラ

四つ橋筋(徒歩4分/約280m)

四つ橋筋
四つ橋筋

ジオタワー京町堀から徒歩約3分に位置する四つ橋筋は、大阪府大阪市を南北に横断する幹線道路です。四つ橋筋は、大阪市内の主要な道路の一つであり、車での移動が非常に便利。大阪駅や梅田駅など、市内の主要駅へのアクセスも良く、ビジネスやレジャーなど、様々な用途に活用できます。四つ橋筋から阪神高速道路へのアクセスも良好です。遠方への移動や、渋滞を避けたい場合などにも便利です。

なにわ筋(徒歩2分/約120m)

なにわ筋
なにわ筋

なにわ筋は、大阪市を南北に走る都市幹線道路です。現在、大阪駅から同市浪速区のJR難波駅および同市西成区の新今宮駅までを、なにわ筋の地下を経由して結ぶ工事が進められており、2031年春頃の開通が予定されています。

フェスティバルホール(徒歩12分/約940m)

フェスティバルホール
フェスティバルホール

フェスティバルホールは、1958年(昭和33年)に誕生した日本を代表するホールです。芸術性の高い国際的な音楽祭を開催できるホールとして、大阪・中之島に誕生しました。2013年春、装いも新たに生まれ変わったフェスティバルホールは、“天井から音が降り注ぐ”と称された音響特性や、舞台間口30m、2,700人収容のスケールはそのままに、赤を基調とし、快適性を大幅に向上させた椅子、旧ホールの伝統を継承しつつ、進化を実現しました。今もなお、大阪の舞台芸術文化を支える一翼を担っています。

住友病院(徒歩12分/約900m)

住友病院
住友病院

住友病院は、大正10年(1921年)7月、住友グループの社会貢献活動の一環として、開設された病床数499床を擁する総合病院です。平成12年(2000年)9月には新病院を建設し、21世紀の病院に相応しい「新しい住友病院」として生まれ変わりました。2022年3月に、大阪府から「地域医療支援病院」の承認を受けています。

幼稚園、保育園、学校

うつぼほんまち保育園(徒歩5分/約400m)

うつぼほんまち保育園
うつぼほんまち保育園

大阪市立西船場小学校(徒歩4分/約270ⅿ)

大阪市立西船場小学校
大阪市立西船場小学校

大阪市立花乃井中学校(徒歩8分/約630ⅿ)

大阪市立花乃井中学校
大阪市立花乃井中学校

イベント、お祭り

靭公園ばら祭り

靭公園
靭公園

靭公園の東側に位置するバラ園では、毎年5月にバラ祭りが開催されます。このバラ祭りは2024年で20周年を迎えたイベントで、園内ではミニコンサートや和太鼓演奏、獅子舞等が披露されるほか、カフェやマルシェが出店され多くの人が訪れます。

まとめ

利便性に包まれた
暮らしを手に入れる

住宅地としての歴史を持つ京町堀界隈は、教育環境や医療機関も充実しています。各種公共施設や金融機関も近距離に多数点在し、靭テニスセンターなどアクティブな暮らしを愉しむことも可能です。都心ならではの至便な環境を満喫できるでしょう。

ジオタワー京町堀

駅徒歩 不動産の表示に関する公正競争規約の改正(2022年9月1日)により、交通利便情報が販売中のものと異なる場合がございます。

大阪メトロ四つ橋線
「肥後橋」駅 徒歩6分

築年月

2004年11月

総戸数

76戸

階数

地上23階