東急不動産|積水ハウス 他 シエルトーレ三番町 Concept 大麦通りと番町中央通りの交差点、2本のガラスシリンダーを組み込み、基部には石積み調の壁面で構成、ガラスウォールの先進性と番町の街並みが融合したプレミアムマンション。

シエルトーレ三番町

千代田区 番町アドレス

「半蔵門」駅徒歩3分、麹町駅、半蔵門駅 3駅5路線利用可

地上14階、総戸数70戸のプレミアムマンション

2025.02.21 公開

LOCATION ロケーション

徳川家康の時代から連なる、400年余りの三番町の歴史。以来ほとんど変わらない屋敷街の風格の中に存在するのがシエルトーレ三番町です。
坂の頂きに佇む地上14階建て。番町の特等席とも言える高台から目に飛び込んでくるのは、千鳥ヶ淵の美しい緑と広大な青い空。
伝統的な歴史と都心の輝きが融合したエリアに、グレーを基調とした気品ある佇まいこそ、シエルトーレ三番町の大きな魅力の一つと言えるでしょう。
ガラスのカーテンウォールのワイドな窓からは皇居やイギリス大使館の木々が広がり、その美しさと心地よい開放感がインテリアの一部となって潤いのある生活を実現してくれます。

かつてこの地は、大村益次郎など幕末から明治期にかけて数々の学者が学び舎を開き、永井荷風、国木田独歩などの文人も愛した場所。
そんな文教の気風と共に、伯爵などの華族や政府役人の邸宅地でもあった三番町には品格と高貴な雰囲気が今も受け継がれています。

今もシエルトーレ三番町周辺は、大使館や海外公館など荘厳な佇まいの施設が建ち並び、小学校から大学まで伝統ある教育施設も多く存在するエリア。それだけに、品格のある高級マンションも数多く点在しています。その地で凛とした姿を見せるシエルトーレ三番町は、落ち着きと潤いに包まれた贅のある生活空間を与えてくれます。

三番町は皇居を目の前に、九段、市谷、麺町に囲まれた街。ちょうど山手線の円内の中心点に位置しています。そのため、都内はもちろん、遠方へのアクセスも快適。最寄り駅となる徒歩約3分の東京メトロ半蔵門線「半蔵門」駅を始め、東京メトロ有楽町線「麹町」駅、JR・都営新宿線「市ヶ谷」駅など、地下鉄・JRが計4路線も交差し、生活に応じて使い分けができます。
あらゆる場所へ、思いのままに旅立つことができる立地と自然と安心感に満ちたライフスタイルが、ここにあります。

千鳥ヶ淵公園
千鳥ヶ淵公園

美しい緑と桜が象徴的な番町エリア。南北に約450mの細長い形が特徴の千鳥ヶ淵公園は、ソメイヨシノやヤマザクラなど約170本の桜が植えられ、桜まつりなども行われる東京の桜の名所です。近隣には千鳥ヶ淵ボート場もあり、下から眺める桜の美しさは圧巻。水面に映る幻想的な桜も楽しめます。

東京国立近代美術館
東京国立近代美術館

また、文教地区でもあるこのエリアには、東京の中心部に位置する日本で最初の国立美術館・東京国立近代美術館もあります。19世紀末から現代までの日本の作品をメインに、横山大観らの重要文化財など約13,000点の作品を所有。国内外の作品を堪能できる企画展や、展望休憩室からの眺めも人気です。

市谷亀岡八幡宮
市谷亀岡八幡宮

少し足を延ばすと、ペットと一緒にご祈祷や初詣ができる市谷亀岡八幡宮があります。江戸城が築城された際、太田道灌が江戸城西之鎮護として創建したと言われ、江戸時代も大いに賑わう人気の神社として広く知られていました。
神社には区内唯一の銅の鳥居(区指定文化財)もあり、地元の方やペットを愛する方々に人気の神社。愛犬を連れて散策する方も多く見られます。

皇居東御苑
皇居東御苑

住まいから望む、皇居の豊かな緑。都心で安らぎにひたれる贅沢な眺めもシエルトーレ三番町の魅力の一つ。今なお息づく屋敷街の雰囲気の街並みを抜けると、徒歩約14分の場所に皇居東御苑があります。
天皇皇后両陛下のお住まいになっている皇居の一角にある皇居附属庭園には、広々とした芝生を囲むようにバラ園、竹林など色とりどりの植物が顔を見せ、由緒ある豊かな自然や歴史を感じることができます。

FEATURES 建物の特徴

歴史ある番町の
坂の頂から、
豊かなの緑と共に
贅沢な暮らしへ

コンセプト・デザイン

シエルトーレ三番町 外観
シエルトーレ三番町 外観

大使館や有名大学など、気品あふれる雰囲気の一角にあるシエルトーレ三番町。歴史と伝統に彩られた街の高台先端に位置し、斬新なランドマークとして存在感を放っています。特徴的なのが、プライバシーを保つ空間演出。車でエントランスに向かうと、石積み基壇部の奥に配置された車寄せに自然と誘導される設計になっており、道路から直接乗り降りの必要もなく、外部の視線も気になりません。

シエルトーレ三番町 エントランス
シエルトーレ三番町 エントランス

エントランスの前庭のウエルカムパークには千代田区の木、シダレザクラを植栽し、敷地の南面の五味坂に沿って設けられたパレスプロムナードにより、千鳥ヶ淵へと自然に足が向くよう工夫されるなど、日々の暮らしに心のゆとりを育む造りになっています。

シエルトーレ三番町 レリーフ
シエルトーレ三番町 レリーフ

光あふれるラウンジには、暖炉周りの飾り枠であるマントルビースが据えられ、チーク無垢材のフローリングによる温もりが、ゆったりとした語らいの時を提供。窓からはシダレザクラも堪能できます。

シエルトーレ三番町には、ホテルライクなホスピタリティーも備わっています。エントランスのロータリー中央部には格調高い噴水が備えられ、番町にふさわしい風格で客人をお出迎え。駐車場は69台分も用意され、地下駐車場から住戸フロアにはエレベーターで直接行き来できるので安心と安全な造りになっています。

建物構造

シエルトーレ三番町は、渋谷スクランブルスクエアなどを手掛ける東急建設が施工を手掛けており、長期にわたって高い耐久性と耐震性に優れた、プレストレストコンクリート造が地上部分の柱・梁に採用されています。

また、硬練り高強度コンクリートを使用することで、通常30年の寿命を約200年という脅威の長寿命化を実現。さらに、隣戸へ音を伝えにくく周囲からも聞こえにくい遮音性を高めた構造も特徴的で、200mmのコンクリートスラブ厚を確保した二重床を採用。二重天井との組み合わせで、落ち着いた生活空間に導いてくれます。

防災設備

シエルトーレ三番町には防災はもちろん、防犯にも対応するセコムホームセキュリティーシステムが導入されています。火災、ガス漏れなどの異常があれば各種センサーが検知し、管理室と警備会社が自動受信。警備員が現場に急行するなど適切な処理も万全です。
また、防犯窓センサーもあり、住戸内インターホンには非常ボタン、マスターベッドルームにもインターホンが設置されているので、お休みの時も安心して過ごすことができます。

24時間体制の有人管理により、日中はフロントマン、夜間はガードマンが常駐。エントランスに届いた荷物を玄関まで運んでくれるポーターサービス(14時~19時)もあるので、プライバシーとセキュリティーを保ってくれます。

周囲の道路と隔てられた建物1階には、麹町警察署五味坂交番も移設されているので、暮らしにゆとりと安心を与えてくれます。プライバシーを保ちながら、安らぎに満ちたライフスタイルの実現がここに。

COMMON AREA 共用部

プライバシーを守り、
ゆとり溢れる
健やかな日常へ

共用施設

下記のような充実した共用施設が備わっています。

ラウンジ

たくさんの光を取り込める、南に面したワイドなガラス張りが魅力的なラウンジ。マントルピースが配され、チーク無垢材のフローリングが温もりの空間を描き、語らいの時間をやさしく包み込んでくれます。

アクアホール

1階エレベーター前にあるアクアホールは、メールコーナー横の水路から続く池を設けた、爽やかで清々しい空間。忙しない日常の中で、ふと目にする水の流れと揺らめきは、心に潤いをもたらし、ひと時の清涼感を感じさせてくれるスペースです。

ライブラリー&レストブース

落ち着いた雰囲気で過ごすことのできるライブラリーを始め、囲まれた空間で休息できるレストブースを完備。飲み物の自動販売機も設置されているので、有意義なひとり時間を堪能できます。

宅配ボックス

仕事や子育てに忙しい日々をサポートする宅配ボックスは、留守の際にも宅配便を受け取ることができ、クリーニングの受け取りにも最適。深夜、休日問わず、24時間取り出しが可能で再配達の手間もなくなります。

住戸内LAN

各居室間に設置された住戸内LANのおかげで、パソコンデータのやりとりや共有も可能に。

トランクルーム

スキーやゴルフなどの趣味アイテムを始め、季節物の衣装なども収納できるトランクルームが地下1階に全邸分揃っています。荷物が多めの方にとっては、自室がスッキリと片付き、快適な生活環境を叶えてくれる便利な収納スペースです。

エレベーター

エレベーターは8階以上の各階に止まる上層階用と、7階までの低層階用の2基設置されているので待ち時間も短縮でき、ストレスの少ないスムーズな行き来が可能です。
エレベーターフロアから住まいの玄関までは内廊下形式なので、外部からは出入りが見えない造りになっています。

サービス

フロントサービス

コンシェルジュサービス

※画像はイメージです。

宅配便やタクシーの手配、クリーニングの取り次ぎ、カラーコピーサービスに対応しています。
また、留守中に訪れたお客さんからのメッセージを伝えてくれるホテルのフロントのようなサービスも。
そして、メールコーナーに配達された新聞をガードマンが住まいまで届けてくれるサービスもあります。

一部有料のサービスがあります。

電気式自転車のレンタルサービス

駐輪場にはレンタルの電気式自転車を5台設置。カードキーを使っていつでも利用可能で料金精算も楽チンです。

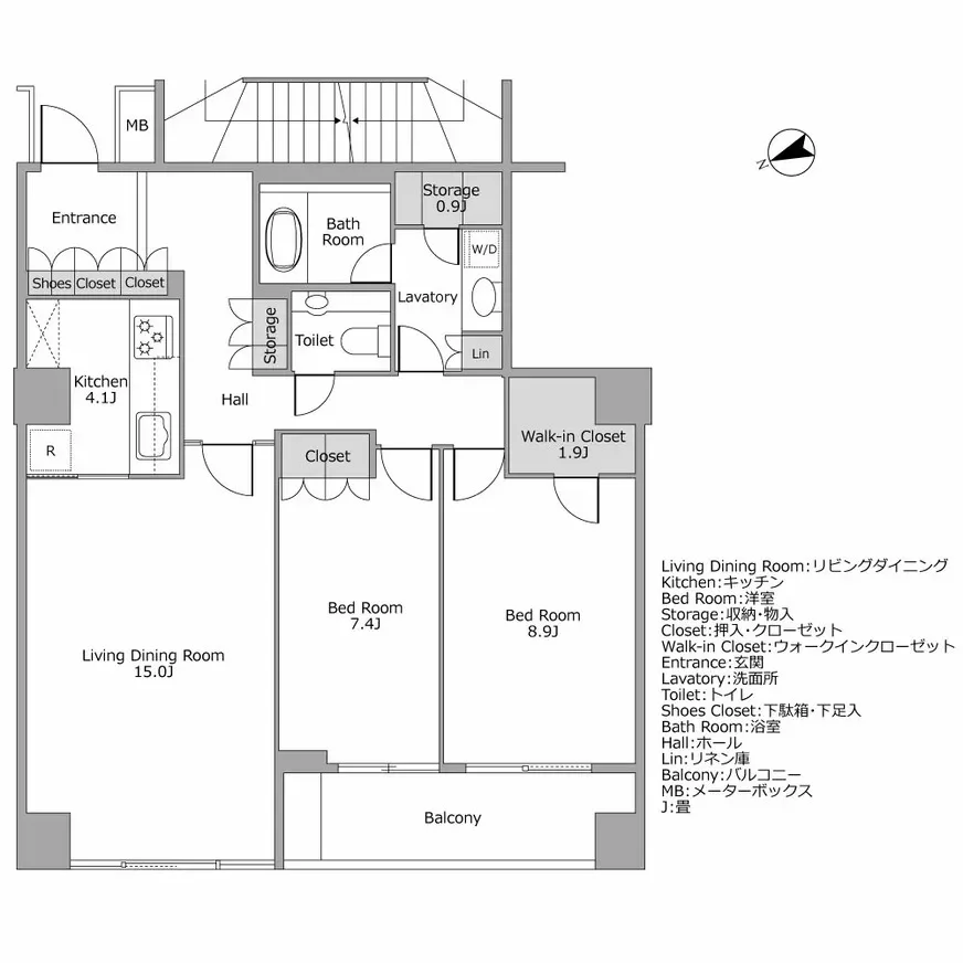
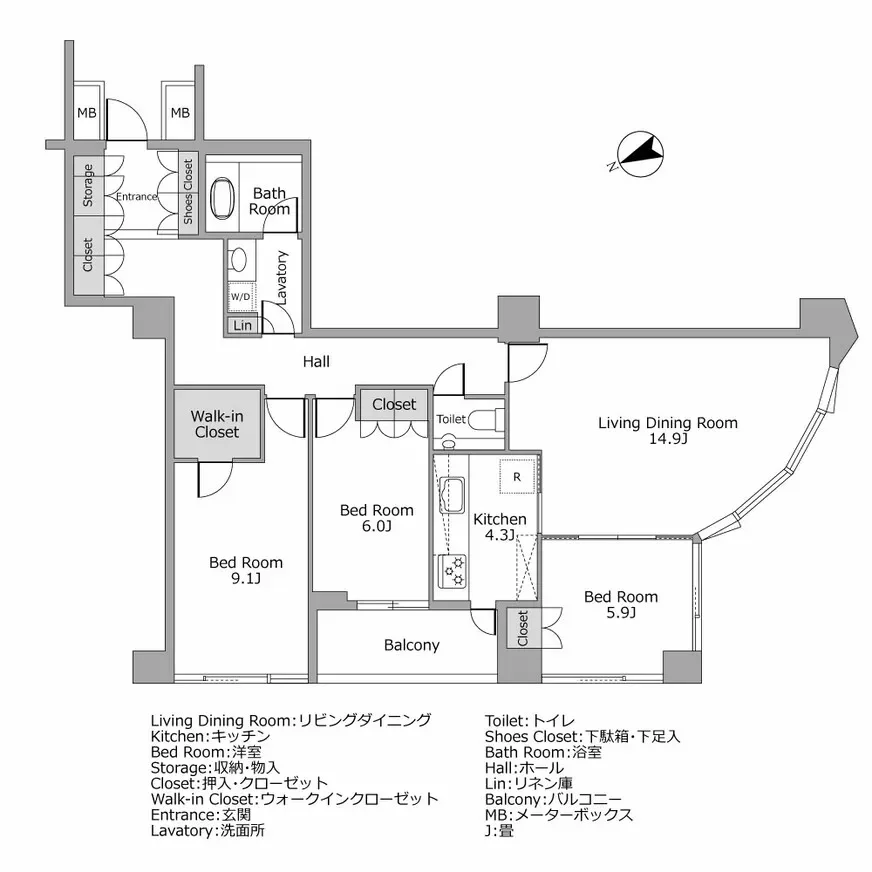
FLOOR PLAN 間取り図一例

上品な空気感と寛ぎを
演出するスペシャルな空間

シエルトーレ三番町 間取り図例
シエルトーレ三番町 間取り図例
シエルトーレ三番町 間取り図例
シエルトーレ三番町 間取り図例

INSIDE THE ROOM 室内

あふれる光がもたらす
穏やかで心地のよい住空間

              

シエルトーレ三番町のリビング・ダイニングに採用した窓には、床上からサッシ上端までの高さが2200mmあるハイサッシを使用しています。そんなハイサッシからあふれる光がひとつ上の解放感と心地よさを与えてくれます。また、クロゼットや物入れには、効率よく収納できるシステム収納を採用しているので、住空間をさらにすっきり美しく演出しています。

キッチン

シックハウス症候群の原因といわれているホルムアルデヒド。一般的にキッチンまわりのノンホルム化が遅れているといわれる中、シエルトーレ三番町では、キッチン本体や扉など目にふれない部分まで化粧仕上げすることで、ホルムアルデヒドの放出量を抑制。健康とエコロジーに細かく配慮しています。

浴室

タイル張りのユニットバスと人造大理石の浴槽により格調にあふれたひとクラス上の浴室を採用しています。

ACCESS アクセス

東京の中心部から多彩な
アクセスを可能にする

              

交通手段別に所要時間を見ていきましょう。

鉄道

最寄りの「半蔵門」駅から都内の主要なスポットへは、以下の所要時間で到着できます。

半蔵門駅
半蔵門駅
  • 「六本木」駅
    東京メトロ半蔵門線を利用し、「青山一丁目」駅で東京メトロ大江戸線に乗り換え、約6分です。
  • 「渋谷」駅
    東京メトロ半蔵門線を利用し、直通で約9分です。
  • 「銀座」駅
    東京メトロ半蔵門線を利用し、「大手町」駅で東京メトロ丸ノ内線に乗り換え、約10分です。
  • 「新宿」駅
    東京メトロ半蔵門線を利用し、「九段下」駅で都営新宿線に乗り換え、約10分です。
  • 「品川」駅
    東京メトロ半蔵門線を利用し、「大手町」駅で東京メトロ丸ノ内線に乗り換え、「東京」駅へ。そこからJR横須賀線で約15分です。

タクシー

タクシー

※画像はイメージです。

交通状況により変動しますが、目安となる所要時間は、
「六本木」駅まで約12分、「渋谷」駅まで約17分、「銀座」駅まで約11分、「東京」駅まで約11分、「品川」駅まで約24分、「新宿」駅まで約12分、「羽田空港」駅まで約29分となります。

バス

バス

※画像はイメージです。

シエルトーレ三番町から道路を挟んだ向かい側に、千代田区内の施設を中心に循環するコミュニティバスの「五味坂」バス停があります。こちらを利用した場合、市ヶ谷駅まで約7分で行くことができます。

空港

空港

※画像はイメージです。

出張で利用することが多い羽田空港や成田空港、東京駅への移動時間は以下になります。

羽田空港へのルート

電車でのアクセス

東京メトロ半蔵門線「半蔵門」駅から、「永田町/赤坂見附」駅まで行き、東京メトロ銀座線に乗り換え、「新橋」駅へ。JR山手線を利用し、「浜松町」で東京モノレールに乗り換え、約43分で行くことができます。

リムジンバス

東京メトロ 「麴町」駅、「永田町/赤坂見附」駅などが最寄駅の「ザ・プリンスギャラリー 東京紀尾井町」から羽田空港行きのリムジンバスが運行されています。「ザ・プリンスギャラリー 東京紀尾井町」から羽田空港までのリムジンバスの所要時間は約55分となります。

成田空港へのルート

電車でのアクセス

東京メトロ半蔵門線「半蔵門」駅から、「押上」駅まで行き、京成押上線の利用で所要時間は約96分です。

リムジンバス

東京メトロ 「麴町」駅、「永田町/赤坂見附」駅などが最寄駅の「ザ・プリンスギャラリー 東京紀尾井町」から成田空港行きのリムジンバスが運行されています。「ザ・プリンスギャラリー 東京紀尾井町」から成田空港までのリムジンバスの所要時間は約115分となります。

新幹線発着駅

東京駅へのルート

電車の場合は、東京メトロ半蔵門線「半蔵門」駅から「大手町」駅まで行き、東京メトロ丸ノ内線に乗り換え。所要時間約12分で「東京駅」にアクセスできます。また、タクシーの場合は、約11分で到着します。

品川駅へのルート

電車の場合は、東京メトロ半蔵門線「半蔵門」駅から「大手町」駅まで行き、東京メトロ丸ノ内線に乗り換え。「東京駅」でJR横須賀線に乗り換えて約15分で「品川」駅にアクセスできます。また、タクシーの場合は、約24分で到着します。

LIFE
INFORMATION 周辺の施設・店舗情報

都心ならではの利便性と
文化に満ちた安らぎの環境

商業施設、商店街

セブン-イレブン千代田一番町店
(徒歩3分/約170m)

セブン-イレブン千代田一番町店
セブン-イレブン千代田一番町店

シエルトーレ三番町の目の前の通り、大妻通りを南下し、半蔵門駅に向かうと、徒歩3分の場所にセブン-イレブン千代田一番町店があります。深夜でもちょっとした買い出しに便利です。

マルエツプチ一番町店(徒歩3分/約220m)

マルエツプチ一番町店
マルエツプチ一番町店

東京メトロ半蔵門線「半蔵門」駅近くに、生鮮食品やお惣菜、日用雑貨などを取り揃える都市型スーパーマーケットのマルエツプチがあります。朝7時~深夜1時までの営業なので、仕事前の朝ごはんから困った時の生活用品まで、幅広いシチュエーションでサポートしてくれます。

まいばすけっと半蔵門駅前店
(徒歩5分/約400m)

まいばすけっと半蔵門駅前店
まいばすけっと半蔵門駅前店

シエルトーレ三番町から南に向かうと、徒歩約6分の場所に都市型小型食品スーパーのまいばすけっとがあります。小さい店舗ながら豊富な品揃えで地域住民の生活を支えています。

スーパーマーケット リコス九段南4丁目店
(徒歩8分/約600m)

シエルトーレ三番町から徒歩8分の場所にあるのが、東京と神奈川で展開するスーパーマーケット「リコス」です。安全・安心をモットーに鮮度にこだわった野菜と、生産履歴を詳しくチェックできるトレーサビリティを徹底した国産牛肉が魅力のお店です。夜10時までの営業なので、遅い時間でも美味しくて安全な食材を手に入れることができます。

自然、公園

国民公園皇居外苑半蔵門園地
(徒歩7分/約550m)

国民公園皇居外苑半蔵門園地
国民公園皇居外苑半蔵門園地

シエルトーレ三番町から徒歩約8分の場所にある「国民公園皇居外苑半蔵門園地」は、2015年に英国大使館から返還された場所を活用し2023年3月に開園しました。駐日英国大使館の跡地であったという歴史的背景を感じてもらうため、植栽、石垣、腰壁やローズポール等は英国を象徴するイングリッシュガーデンを取り入れたデザインとなっています。園内には桜の木やベンチなどを有するテラスを始め、フリースペースの芝生広場もあるなど、国民公園として魅力ある空間が広がっています。

東郷元帥記念公園 (徒歩7分/約550m)

東郷元帥記念公園
東郷元帥記念公園

シエルトーレ三番町からJR「市ヶ谷」駅方面に向かう途中にあるのが、東郷元帥記念公園です。
高低差が特徴のこの公園は、1929年に上六公園として開園し、1938年に公園に隣接していた東郷平八郎の私邸を東郷元帥記念会から寄付を受け、現在に至ります。子供たちが楽しめる砂場や遊具が揃い、春には桜も咲き誇る憩いの場所となっています。

千鳥ヶ淵公園(徒歩5分/約400m)

千鳥ヶ淵公園
千鳥ヶ淵公園

シエルトーレ三番町の東に位置する千鳥ヶ淵公園は、内掘通りと皇居の西側に位置する「半蔵濠」の間にあります。四季を彩る花が魅力的でソメイヨシノやヤマザクラなど約170本の桜が植えられ、菜の花とのコントラストも美しく、地元の方のお散歩コースとしても知られています。
南北に約450mと細長い形をしているのも特徴。天気の良い日は、ベンチで森林浴をする人の姿も多く見られます。

暮らし、インフラ

千代田区立四番町図書館(徒歩5分/約350m)

千代田区立四番町図書館
千代田区立四番町図書館

番町・麹町地域にまつわる資料に加え、伝統芸能関連資料を収集している図書館です。児童室と赤ちゃんルームがあり、おはなし会やイベントも開催されるなど、家族・親子に愛されているスポットです。

科学技術館(徒歩15分/約1,200m)

科学技術館
科学技術館

子供から大人まで幅広い層が訪れる、科学技術・産業技術の総合的博物館です。実験ショーや工作教室など参加体験型の展示も多く、見たり、触ったりしながら科学技術に興味、関心を深められます。

スギ薬局一番町店(徒歩2分/約130m)

スギ薬局一番町店
スギ薬局一番町店

処方せん調剤から化粧品販売なども行っているドラッグストアです。地域の方々のライフステージに最適なヘルスケアサービスを提供しており、憩いのスペース「涼み処」があるのも嬉しい。

三番町クリニック(徒歩5分/約350m)

都心部に住む医師が24時間体制でサポートしてくれる往診専門クリニック。医師が自宅へ診療に伺い、入院治療が必要にった場合は大学病院や地域病院の専門医を紹介してくれます。

幼稚園、保育園、学校

アスクバイリンガル保育園 二番町
(徒歩6分/約450m)

千代田区立九段幼稚園・小学校
(徒歩7分/約500m)

千代田区立九段幼稚園・小学校
千代田区立九段幼稚園・小学校

千代田区立麹町小学校(徒歩8分/約600m)

東京家政学院大学 千代田三番町キャンパス
(徒歩7分/約500m)

二松学舎大学(徒歩9分/約650m)

二松学舎大学
二松学舎大学

大妻女子大学(徒歩3分/約210m)

大妻女子大学
大妻女子大学

まとめ

贅沢な皇居の緑と
やすらぎの環境が
織りなす坂の上の特等席

伝統的な歴史と都心の輝きが融合したエリアに佇むシエルトーレ三番町。落ち着きと潤いに包まれた贅のある生活空間が住まう人に豊かさを与えてくれます。また、主要拠点への移動がスムーズな各駅に囲まれた利便性の高い立地なので、ビジネスシーンもプライベートシーンも充実することでしょう。

シエルトーレ三番町

駅徒歩 不動産の表示に関する公正競争規約の改正(2022年9月1日)により、交通利便情報が販売中のものと異なる場合がございます。

東京メトロ半蔵門線
「半蔵門」駅 徒歩3分

築年月

2003年3月

総戸数

70戸

階数

地上14階 地下2階