大和ハウス工業 プレミスト九段 Concept 靖国通りから一本奥に入った二七通り沿いの閑静な住宅地、武家屋敷の様式を引用してつくり上げた屋敷門、エントランスへのアプローチには露地の飛び石を見立てた石張りを施し、武家地を由来とするこの地の歴史を受け継ぐ

プレミスト九段

千代田区 九段南アドレス

「市ヶ谷」駅 徒歩3分4路線マルチアクセス

地上17階、総戸数47戸

2025.01.31 公開

LOCATION ロケーション

江戸の武家地を由来とする
歴史ある街、九段

プレミスト九段タワー レリーフ
プレミスト九段タワー レリーフ

皇居をはじめ千鳥ヶ淵、靖国神社など桜の名所に囲まれた九段。名称の由来は、坂に沿って段違いになった九軒の御用屋敷に江戸城勤めの役人を住まわせたこととされます。

旧江戸城 田安門
旧江戸城 田安門

さらに、各国大使館も近隣。明治以降の歴史も今に伝えています。

駐日英国大使館
駐日英国大使館

また、伝統ある名門校が集まる文教エリアとしても名高いです。

そして、プレミスト九段から徒歩3分と最寄り駅になる「市ヶ谷」駅は、その北西、外堀の上には市ヶ谷橋があり、かつて江戸城の市ヶ谷門があった場所です。現在、「市ヶ谷」駅は、JR中央・総武線、東京メトロ有楽町線、南北線、都営地下鉄新宿線が利用できる交通の要衝です。

市ヶ谷駅
市ヶ谷駅

そして九段は、東京メトロ有楽町線の「麹町」駅、東京メトロ半蔵門線の「半蔵門」駅にも近く、交通は至便となっています。

FEATURES 建物の特徴

武家地の歴史を受け継ぐ
「櫻丘の屋敷」

コンセプト・デザイン

プレミスト九段 外観
プレミスト九段 外観

江戸の武家地を由来とする九段。

プレミスト九段が目指したのは、「屋敷の美」を備えた美しい空間を創出することです。「もてなし」や「見立て」「機微」といった和の思想が、巧みな職人技で織り込まれていた日本の屋敷。それらの伝統的な作法・仕組みを現代の新しい技法で蘇らせ、この地に暮らすことの歓び、安息の時間を住空間として設えました。

まずは、その矜持を示す門。かつての武家屋敷が持つ和の作法に学び、作り上げた鍛鉄で設えた屋敷塀が、訪れる人をお出迎えします。

プレミスト九段 エントランス
プレミスト九段 エントランス

門の先には、屋敷の玄関へと人を導く露地を思わせる、飛び石に見立てた石張りを施しました。

さらに、奈良の法隆寺に残された築地壁などに技の源流を見いだせる、古代から脈々と受け継がれてきた「版築(はんちく)」も、和の伝統を汲む建築様式。時間と手間をかけて何層にも重ねた土の層が、現代の建築技法では表現しにくい味わいを伝えてくれます。

そして、エレベーターホールの壁面には積層ガラスが光の妙を映し出す「瑠璃の壁」を採用。さらに、金に緑の縞が入った「金明孟宗竹」を植えた坪庭は、情緒豊かな空間を演出します。

また、千鳥ヶ淵を原風景とした「櫻江(さくらえ)」の庭は、春を迎えると、枝垂れ桜が見事に咲き誇ります。

プレミスト九段 敷地配置図
プレミスト九段 敷地配置図

このように、山の手の歴史・九段の歴史を現代に受け継ぐプレミスト九段は、日本の美しい作法に学んだ、新しい時代の屋敷です。

建物構造

プレミスト九段は2017年2月に竣工した、RC構造による地上17階、地下1階のマンションです。

防災設備

プレミスト九段は、敷地内に防災備蓄倉庫を用意。万が一に備えています。

※画像はイメージです。

セキュリティ

プレミスト九段は多重セキュリティーシステムを採用することで、安全性にも配慮。

COMMON AREA 共用部

コンシェルジュデスクが
快適な生活をサポート

共用施設

敷地内に駐車場、駐輪場、宅配ボックスを用意

マンションの敷地内には駐車場、駐輪場、宅配ボックスなどが備わっています。

また、ホテルを思わせるような内廊下設計のため、エレベーターを降りれば、外を気にすることなく各住戸へのアクセスが可能です。

さらに、トランクルームや宅配ボックスも備え付け、各階にはゴミ置場が用意されています。

サービス

コンシェルジュサービス

※画像はイメージです。

エントランスを入ると、コンシェルジュデスクが設置されていて、快適に生活をサポートしてくれます。

FLOOR PLAN 間取り図一例

専有面積に対して
間取りをゆったりと確保

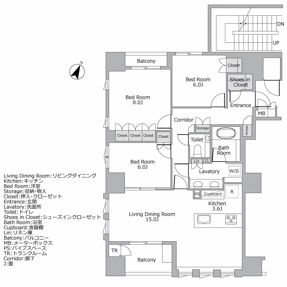
プレミスト九段は2017年2月に竣工し、総戸数は47戸。2階~16階に住戸は3戸、17階に住戸は2戸で、全戸南東向きに配置しています。

分譲時の専有面積は63.06㎡~121.83㎡、間取りは2LDK~3LDKです。

プレミスト九段 間取り図例
プレミスト九段 間取り図例
プレミスト九段 間取り図例
プレミスト九段 間取り図例

INSIDE THE ROOM 室内

都心生活にふさわしい
上質で快適なインテリア

プレミスト九段は、都心生活にふさわしい上質なマテリアルを室内にセレクト。また、家具調度品には住む人のために細やかな配慮をし、使い勝手が良く、住むことに誇りを持てるアイテムを厳選しています。

ACCESS 交通アクセス

「市ヶ谷」駅から
都心主要エリアへ
スムーズにアクセス

プレミスト九段から徒歩3分、JR中央・総武線、東京メトロ有楽町線、南北線、都営地下鉄新宿線が利用可能な「市ヶ谷」駅から、都心の主要エリアへのアクセスはとてもスムーズです。

また、出張などの多い方も、「東京」駅や羽田空港、成田空港へのアクセスも便利です。

鉄道

「市ヶ谷」駅

市ヶ谷駅
市ヶ谷駅

プレミスト九段は、最寄り駅となるJR中央・総武線、東京メトロ有楽町線、南北線、都営地下鉄新宿線の「市ヶ谷」駅から徒歩3分です。

また、徒歩10分圏内には「麹町」駅、「半蔵門」駅、「四ッ谷」駅もあり、それぞれを利用可能です。

「半蔵門」駅

半蔵門駅
半蔵門駅

「麹町」駅

麴町駅
麴町駅

最寄り駅「市ヶ谷」駅からの主な駅への所要時間は以下の通りです。

  • 「東京」駅
    JR総武線利用、「御茶ノ水」駅でJR中央線快速に乗り換えます。所要時間は約9分です。
  • 「新宿」駅
    都営新宿線急行を利用します。所要時間は約5分です。
  • 「渋谷」駅
    JR総武線利用、「代々木」駅でJR山手線に乗り換えます。所要時間は約13分です。
  • 「六本木」駅
    東京メトロ南北線利用、「溜池山王」駅で東京メトロ銀座線に乗り替え、「青山一丁目」駅で都営大江戸線に乗り替えます。所要時間は約11分です。
  • 「銀座」駅
    東京メトロ南北線利用、「溜池山王」駅で東京メトロ銀座線に乗り替ます。所要時間は約17分です。

タクシー

※画像はイメージです。

交通状況により多少の変動はありますが、「東京」駅までは約15分、「新宿」駅までは約13分、「渋谷」駅までは約20分、「六本木」駅までは約15分、「羽田空港」駅までは約32分が所要時間の目安です。

バス

※画像はイメージです。

「市ヶ谷駅前」バス停からは都営バスが2系統運行中です。「高71」は、「高田馬場駅前」と「九段下(千代田区役所前)」を結んでおり、「大久保通り」「東新宿駅前」「東京女子医大前」「防衛省前」などに停車します。

「橋63」は「小滝橋車庫前」と「新橋駅前」を結んでおり、「大久保駅前」「新大久保駅前」「大久保通り」「牛込柳町駅前」「永田町」「国会議事堂前」「内幸町」などに停車します。

新幹線発着駅

「東京」駅へのルート

JR総武線利用、「御茶ノ水」駅でJR中央線快速に乗り換えます。所要時間は約9分です。

「品川」駅へのルート

JR総武線利用、「代々木」駅でJR山手線に乗り換えます。所要時間は約28分です。

空港

※画像はイメージです。

羽田空港へのルート

JR総武線利用、「秋葉原」駅でJR京浜東北線に乗り換え、「浜松町」駅で東京モノレールに乗り換えます。所要時間は約50分です。

成田空港へのルート

JR総武線利用、「秋葉原」駅でJR山手線に乗り換え、「日暮里」駅で京成特急スカイライナーに乗り換えます。所要時間は約1時間7分です。

また、JR総武線利用、「秋葉原」駅でJR山手線に乗り換え、「東京」駅でJR特急成田エクスプレスに乗り換えるルートもあります。所要時間は約1時間15分です。

LIFE
INFORMATION 周辺の施設・店舗情報

暮らしやすい施設や
店舗が便利

九段は駅に近いこともあり、暮らしに必要な商店なども充実しています。また、公園など自然と触れあえる場所も都心でいながら豊富。学校も多くて家族みんなが安心して生活できる場所です。

商業施設、商店街

スーパーマーケット リコス 九段南4丁目店
(徒歩3分/約230m)

スーパーマーケット リコス 九段南4丁目店
スーパーマーケット リコス 九段南4丁目店

「こだわり・新鮮」野菜と国産牛肉の生産から消費までの流通過程を追跡・記録・管理するシステム「トレーサビリティ」に取り組むのが、スーパーマーケット リコスです。

マルエツプチ 一番町店(徒歩9分/約670m)

マルエツプチ 一番町店
マルエツプチ 一番町店

首都圏の1都5県に307店舗(2024年9月末現在)を展開。2025年で創業80周年を迎える食品スーパーマーケットチェーンのマルエツ。その小型版の店舗です。

成城石井 市ヶ谷店(徒歩4分/約260m)

成城石井 市ヶ谷店
成城石井 市ヶ谷店

おいしい、こだわった、安心・安全な食品を、世界中、日本中を歩き回り発掘、開発するスーパーが成城石井です。

自然、公園

皇居外苑半蔵門園地(徒歩13分/約1000m)

皇居外苑半蔵門園地
皇居外苑半蔵門園地
皇居外苑半蔵門園地
皇居外苑半蔵門園地

皇居外苑半蔵門園地は、2015年8月に駐日英国大使館敷地の5分の1にあたる約7000㎡が日本に返地されたことを受けて、国民公園である皇居外苑の一部として整備された公園です。

駐日英国大使館の跡地という歴史的背景を利用者が感じられるよう、植栽、石垣、腰壁やローズポールなどは、英国を象徴するイングリッシュガーデンを取り入れたデザインとなっています。

千鳥ヶ淵(徒歩14分/約1,100m)

千鳥ヶ淵
千鳥ヶ淵
千鳥ヶ淵緑道
千鳥ヶ淵緑道

千鳥ヶ淵は江戸開府当時、水を確保するダムとして機能していました。麹町からの小川をせき止めて水源を確保し、江戸城創成期は本丸と西の丸の間を通り、日比谷入江(現在の日比谷公園あたり)へ流れ込んでいたと言われます。

靖国通りから北の丸公園に沿って整備された、700mもの遊歩道は「千鳥ヶ淵緑道」と呼ばれ、ソメイヨシノをはじめ約260本の桜の木が植えられていて、3月下旬から4月上旬には鮮やかに咲く桜を望めます。

北の丸公園(徒歩22分/約1,700m)

北の丸公園
北の丸公園
北の丸公園
北の丸公園

皇居に隣接し、都内ながら広さ約20万平方メートルの敷地を誇ります。昭和44年(1969年)に昭和天皇の還暦を記念して開園した北の丸公園の園内は、四季折々の草花が映え、季節でその表情を変えるのが特徴です。

東郷元帥記念公園(徒歩4分/約260m)

園内に高低差のある東郷元帥記念公園は、昭和4年(1929年)に低い部分が上六公園として開園。その後昭和13年(1938年)に公園に隣接した東郷平八郎連合艦隊司令長官の私邸を寄付されて高い部分を公園とした、歴史ある公園です。

暮らし、インフラ

外堀通り(徒歩5分/約350m)

外堀通り
外堀通り

中央区八重洲二丁目を起点・終点とする環状道路の都道405号(都道405号外濠環状線)が外堀通りです。

靖国通り(徒歩3分/約170m)

靖国通り
靖国通り

中央区東日本橋二丁目を起点に、北の丸公園の北部、「市ヶ谷」駅前を通り、新宿区歌舞伎町一丁目に至る道路です。靖国神社や「市ヶ谷」駅近辺は都道302号となっています。

内堀通り(徒歩12分/約900m)

内堀通り
内堀通り

千代田区霞ヶ関一丁目を起点・終点とする環状道路です。半蔵門のある半蔵濠近辺は、都道401号、国道20号となっており、日比谷近辺は国道1号となるなど変化に富んでおり、皇居に一番近い外周道路になっています。

麹町大通り(徒歩11分/約850m)

麹町大通り(国道20号)
麹町大通り(国道20号)

「半蔵門」駅付近を通る国道20号に付けられた呼び名として「麹町大通り」があります。

靖国神社(徒歩8分/約610m)

靖国神社
靖国神社

靖国神社神社は明治2年(1869)6月29日に、明治天皇の思し召しにより建てられた招魂社が始まりです。明治12年(1879)に「靖國神社」(靖国神社)と改称され、今日に至っています。

日本武道館(徒歩16分/約1,230m)

日本武道館
日本武道館

昭和38年(1963年)10月に着工し、昭和39年(1964年)9月に完成した日本武道館は、同年10月3日の開館式の後、昭和天皇皇后両陛下をお迎えし、「演武始めの儀」が弓道、相撲、剣道、柔道の順で行われました。

科学技術館(徒歩26分/約2,050m)

科学技術館
科学技術館

現代から近未来の科学技術や産業技術についての知識を広く普及・啓発するため、科学技術館は昭和39年(1964年)4月に開館しました。展示は参加体験型のものが多く、見たり、触ったり楽しみながら、科学技術に興味、関心を深められるよう工夫されています。

皇居(半蔵門)(徒歩17分/約1,300m)

皇居
皇居

徳川家康が江戸城に入府した際、今の麹町大通りを通って江戸城に入りました。しかし、城の西口にあたるここが地形的にもっとも守りが弱かったため、家康の信頼の厚い服部半蔵の伊賀衆を守備にあてました。そこで、半蔵門と呼ばれるようになったというのが通説とされています。

国立国会図書館(徒歩21分/約1,610m)

国立国会図書館
国立国会図書館

国立国会図書館は、昭和23年(1948年)6月、赤坂離宮(現迎賓館)を仮庁舎に開館しました。そして、昭和36年(1961年)、永田町に現庁舎の第一期工事が竣工、支部上野図書館(旧帝国図書館)などの資料を統合、205万冊の蔵書を擁する日本を代表する図書館として活動を開始しています。

千代田区役所 麹町出張所(徒歩11分/約830m)

千代田区役所 麹町出張所
千代田区役所 麹町出張所

総合窓口と同様に住民異動に係わる各種届出を行える、千代田区役所の出張所と、区民館です。

医療機関

東京逓信病院(徒歩12分/約960m)

東京逓信病院
東京逓信病院

東京逓信病院は、昭和13年(1938年)2月から、日本郵政グループ(当時は逓信省)社員とその家族の健康を守るための職域病院として診療を開始しました。当初は診療科が10科、病床数は260床でしたが、現在は29標榜科、461床あり、どなたも利用できる総合病院として診療を行っています。

幼稚園、保育園、学校

四番町保育園(徒歩5分/約370m)

四番町保育園
四番町保育園

千代田区立九段幼稚園(徒歩5分/約350m)

千代田区立九段幼稚園
千代田区立九段幼稚園

千代田区立九段小学校(徒歩5分/約350m)

千代田区立九段小学校
千代田区立九段小学校

千代田区立麹町中学校(徒歩17分/約1,300m)

千代田区立麹町中学校
千代田区立麹町中学校

女子学院(徒歩8分/約580m)

女子学院
女子学院

法政大学市ヶ谷キャンパス(徒歩10分/約750m)

法政大学市ヶ谷キャンパス
法政大学市ヶ谷キャンパス

日本大学(徒歩4分/約290m)

日本大学
日本大学

大妻女子大学(徒歩9分/約650m)

大妻女子大学
大妻女子大学

イベント、お祭り

千代田のさくらまつり

千代田のさくらまつりは例年、3月〜4月に開催します(開花状況により変更する場合があります)。

期間中は、さくらの名所「千鳥ヶ淵緑道」の全長約700mをLEDライトアップしたり、お濠の水上から夜桜を楽しめる「区営千鳥ヶ淵ボート場」の夜間特別営業など実施します。

山王祭

山王祭は、京都の祇園祭・大阪の天神祭と共に、日本三大祭に数えられているお祭りで、例年6月に日枝神社にて開催されます。

また、隔年で東京都心を300mの神幸行列が練り歩く神幸祭も開催され、境内で江戸時代の伝統芸能の邦楽やお茶、お花など、様々なイベントを開催します。

皇居 千鳥ヶ淵 灯ろう流し

戦後の荒廃した人々の心を癒やそうと、昭和33年に始まった灯ろう流し。千代田の夏の風物詩として、例年7月にボートの上から千鳥ヶ淵に約2,000個の灯ろうを浮かべます。

まとめ

歴史と伝統ある九段で
都心の暮らしを楽しむ

プレミスト九段は武家地を由来とする九段に立地し、都心とは思えない静けさと、緑あふれる街並みでの日々を過ごせます。

交通のアクセスにも優れ、また、皇居や官公庁のひしめく東京の中心という好立地は、ビジネスパーソンが活躍するにも快適。学校も数多く、子育て家庭にも適したここ九段で、都心ならではの暮らしを送ってみてはいかがでしょうか。

プレミスト九段

駅徒歩 不動産の表示に関する公正競争規約の改正(2022年9月1日)により、交通利便情報が販売中のものと異なる場合がございます。

JR中央・総武線
「市ケ谷」駅 徒歩3分

築年月

2017年2月

総戸数

47戸

階数

地上17階 地下1階