住友不動産 グランドヒルズ恵比寿 Concept 恵比寿駅東口を出て白金方面に進んだ恵比寿郵便局交差点、四方を道路に囲まれた角地、クラシカルなタイル調のグリッドとガラスカーテンウォールによる重厚感と高級感のあるタワーマンション

グランドヒルズ恵比寿

山手線
「恵比寿」駅 徒歩7分

最大約2.55mの天井高、
ダイナミックパノラマウィンドウ、
アウトフレーム設計による
開放的な室内空間

地上23階、総戸数310戸のタワーマンション

2025.02.21 公開

LOCATION ロケーション

広尾、白金、代官山など
重要エリアが徒歩圏内

JR線「恵比寿」駅
JR線「恵比寿」駅

グランドヒルズ恵比寿は渋谷区恵比寿1丁目に位置しているタワーマンションです。JR線「恵比寿」駅の東側、すなわち山手線の内側という好立地で、新橋通りに面しています。周囲はビール坂などの個性的な飲食店が並ぶ通りがあるほか、コンビニエンスストアやスーパーマーケット、銀行といった生活に必要な施設も徒歩圏内にあります。

立科学博物館 附属自然教育園
立科学博物館 附属自然教育園

最寄り駅のJR線「恵比寿」駅は徒歩約7分の好アクセスで、駅ビルや周辺の商業施設などでも買い物できます。また、恵比寿ガーデンプレイスもほど近く、週末のアクティビティにも適しています。駅の西側へ抜けると、目黒や代官山といったエリアにも足を運べます。また、白金や広尾といったエリアも徒歩圏内にあり、自然が豊かな施設なども楽しめます。

ミヤシタパーク
ミヤシタパーク

恵比寿は渋谷や新宿、六本木といった主要エリアが近く、移動も容易です。通勤しやすく、またショッピングなどのお出かけにも便利です。

東京の中心地とも言える、さまざまなエリアの拠点となる恵比寿。行動範囲が広がり、多様な楽しみ方をもたらします。

FEATURES 建物の特徴

自然あふれる格調の高さ
優れたセキュリティ体制

グランドヒルズ恵比寿 敷地配置図
グランドヒルズ恵比寿 敷地配置図

敷地内は空地率が高く、広々とした開放感を得られます。建物内は防災やセキュリティ面が充実しており、安心して過ごせます。

コンセプト・デザイン

グランドヒルズ恵比寿 エントランス
グランドヒルズ恵比寿 エントランス

グランドヒルズ恵比寿は地上23階、地下2階の大規模なタワーマンションで、総戸数は310戸になります。2019年2月に竣工し、分譲時住戸専有面積は40.72㎡~154.45㎡となっています。四方が道路で囲まれているうえ、空地率は約50%と、敷地全体が開放的に感じられます。

建物の外観は、タイル調のグリッドが特徴的。また、ガラスカーテンウォールが施されており、重厚感を思わせる輝きが印象に残ります。一方で、個性的なシャープさも感じられ、恵比寿ブランドをより高めるような存在感を発揮しています。

グランドヒルズ恵比寿 アプローチ
グランドヒルズ恵比寿 アプローチ

敷地内には、100本を超える植栽によって自然の豊かさに触れられます。都会のマンションに住みながら、季節の移ろいを優しく感じられます。森のように豊かな自然の先へと進むと、格調高いエントランスが迎えてくれます。

グランドヒルズ恵比寿 夜間
グランドヒルズ恵比寿 夜間

山手線の内側ということもあり、高層階からは都会を一望できる贅沢な景色を楽しめます。お部屋の向きによっては東京タワーを臨むことができるなど、光り輝く夜景はまた格別なものがあります。

建物構造

直接基礎

床下を鉄筋コンクリートで固めて、地盤で直接的に支えます。杭を地下深くに打ち込む方法とは違い面的に建物を支えるため、より安定した基礎構造になります。

構造躯体

グランドヒルズ恵比寿はコンクリートの強度を高めています。それにより、住宅性能表示制度において「劣化対策等級3」と認められており、最高のランクとなっています。劣化対策等級3とは、構造躯体などについて、75~90年(親子3世代)の期間、大規模な改修が不要となる劣化対策が講じられていることを示します。

制震構造

制震間柱を使った制震構造を導入。制振装置が地震エネルギーを吸収して、建物が変形するのを抑えます。

水・セメント比

柱、梁、床といった重要な構造部については、セメントに対する水の重量の割合を50%以下としています。これによってコンクリートの耐久性が高くなるとされています。

溶接閉鎖型帯筋

主要な柱部分には、溶接閉鎖型帯筋を採用しています。これは帯筋の接続部を溶接したもので、柱が粘り強くなって強度が安定します。地震が起きた際にコンクリートの拘束力が高くなり、耐震性が上がります。

乾式耐火遮音壁

住戸の間の壁には、厚さ約136mmの乾式耐火遮音壁を使っています。耐火性と遮音性が高まり、安心感を得られるとともに、音の気遣いを軽減できます。

サッシュ

一部住戸には遮音性能T-1~T-2相当のサッシュを使用しています。外部からの音を低減できるので、居住空間の静音性が守られます。

二重床

居室の床は振動を吸収するクッションゴムを備えており、遮音性を高める二重床構造となっています。

間仕切り壁

住戸内を仕切っている壁は、厚さ約9.5mmのプラスターボード貼となっています。さらに細やかな配慮として、直接貫通パイプスペースと接するところは、プラスターボードを片側に1枚増やして二重貼りとして遮音性をさらに高めています。また、バスルーム、パウダールーム、トイレ、キッチンと接する間仕切り壁は、ボード下地材にグラスウールを充填し、音が漏れるのを防ぎます。

防災設備

火災報知器

防災 火災

※画像はイメージです。

火災などが発生した場合に、住戸インターホンなどから非常事態を知らせます。防災センターを経由して警備会社へ通報されるので、迅速に適切な処置へ移れます。

ガス漏れ検知器

ガス漏れが起きた場合に周囲に異常を伝えます。また、警備会社へも自動的に通報されます。

エレベーター安全装置

エレベーターが動いている最中に地震が起きた場合、最寄りの階で停止します。停電時には天井の停電灯が作動してエレベーター内を照らし、インターホンで外部と連絡を取れるようにします。

防災備品

万が一の災害に備えて、工具セットや救助用ロープ、小型の拡声器など必要なものを備えています。その他、ライフサポートとして救急箱、充電ラジオ、カセットガス発電機、災害用簡易トイレなども備えるなど、防災品が充実しています。

セキュリティ

24時間オンラインセキュリティシステム

各住戸や共用部で異常が感知され警報が発信された場合、提携する警備会社の警備員が現場に駆けつけ、適切に対応する体制を整えています。

ダブルオートロックシステム

エントランスホール前の来訪者を、住戸内にあるカラーモニター付インターホンで確認でき、オートロックを解錠できます。さらに、1階エレベーターホール前でも同じようにチェックすることが可能。住戸前の玄関を加えた3段階で確認でき、不審者の侵入に備えています。インターホンには録画録音機能も付属しています。

防犯カメラ

防犯カメラ

※画像はイメージです。

防犯カメラは24時間体制で録画をして一定期間保管されます。不審者の侵入を抑制する効果も期待できます。

24時間有人管理

専門のスタッフが、建物内の防災センターから居住者の暮らしを24時間体制で見守ります。共有設備や防災設備などの管理も行います。

エレベーターモニター

1階エレベーター前にあるモニターで、エレベーター内の様子を確認できます。エレベーターに乗るときの状況を事前に把握できて安心です。

防犯センサー

玄関ドアや住戸の窓に付いている防犯センサーにより、開口部が開けられると警報が鳴り響いて警備会社へ伝わるシステムになっています。

COMMON AREA 共用部

ゲストをおもてなしできる格別な空間

パーティルームやオーナーズスイートなど、大切なゲストを迎えるための特別な施設が備わっています。

共用施設

エントランスホール

窓から差し込む光が、上質な壁や床を柔らかく照らし出します。都心の喧騒から離れた静謐さが漂い、ゲストを気持ち良く迎えられます。壁には上品なアート作品が飾られ、ソファやテーブルも静かな雰囲気を妨げないシンプルなタイプを用意。穏やかな気持ちで過ごせます。

コーチエントランス

雨に濡れることなく車寄せができるスペースです。荷物がある際の乗り降りがスムーズになり、優雅に建物内へ入れます。ゲストを迎え入れるときにも適しています。

パーティルーム

大勢の来訪者が集まるときにも使える、広々としたパーティルームです。複数のテーブルやソファが用意されており、いくつかのパーティに分かれて話すことができる空間です。キッチンも設置され、料理や飲み物を華やかに振る舞うこともできます。

オーナーズスイート

来客が宿泊できる、特別なお部屋です。ベッドやソファが置かれており、居住空間のようにゆったりとくつろげます。ラグジュアリーな空間で大切なゲストをおもてなしできます。

内廊下

エレベーターホールから住戸まで続く内廊下は、居住者のプライバシーに配慮した設計です。外気に触れず快適なのはもちろん、床がカーペットになっており音が響きません。また、外部から不審者が侵入する心配もありません。ホテルライクな環境で、気持ち良く帰宅できます。

自転車置場・バイク置場

自転車とバイク、それぞれの専用スペースが用意されています。自転車は607台分の駐輪ラックが用意されています。また、バイク・ミニバイクは31台分の置場が設けられています。

サービス

コンシェルジュサービス

コンシェルジュサービス

※画像はイメージです。

エントランスホールでは、さまざまなサービスを提供するコンシェルジュサービスが相談を受け付けます。日常で必要となる取次や手配などのライフサービスを取り扱っています。

宅配ボックス

出かけている間に届いた荷物を受け取れます。それ以外にも荷物の発送、クリーニングの依頼なども可能です。

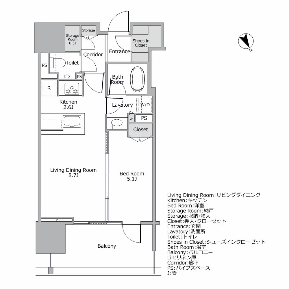
FLOOR PLAN 間取り図一例

都心を一望できる
ゆとりあるバルコニー

グランドヒルズ恵比寿 間取り図例
グランドヒルズ恵比寿 間取り図例

INSIDE THE ROOM 室内

天井高を確保するなど
開放感に配慮した設計

室内は最大約2.55mの天井高を確保するなど、開放的な空間を演出。さらに、柱や梁などのフレームを室外に出すアウトフレーム設計、ダイナミックパノラマウィンドウを採用し、室内に余裕が生まれています。

リビング

天井まで高さのある窓からは、光り輝く都会を臨む贅沢な夜景を楽しめ、室内はシックで高級感あふれるデザインに仕上がっています。エアコンは天井に組み込まれており、突出感のないスッキリした空間です。家族やお友達と談笑し、夜景を楽しながらゆっくり語らうことができる、ホテルのラウンジのように過ごせます。

キッチン

広くスペースを取っており、調理をする人のことを考えた機能的な設計になっています。料理を作るのが特別な時間になるような、高級感を演出した色調にまとまっています。

対面フラットカウンター

キッチン

※画像はイメージです。

システムキッチンは対面式で、家族とのコミュニケーションを楽しみながら調理できます。段差がなくワイドな奥行きがあり、お料理の仮置きがスムーズです。カウンタートップには天然石を採用し、美しさを長く保ちます。また、キッチンの扉はメラミン仕上げを施し、美しい光沢を見せます。収納スペースはスライド式で、必要なものを取り出しやすくなっています。

静音シンク

シャワー水や食器を置くときの音が軽減されます。家族間のコミュニケーションを妨げません。

パウダールーム

ホテルのように良質な素材を使った洗面台です。鏡は天井近くまで高さがあり、その下部にはモザイクタイルを施すなど、個性的なデザインが反映されています。タオルや肌着類を収納できるリネン庫が用意されており、ヘルスメーターをスマートにしまえるスペースも設けられています。また、住戸によっては洗面台を2台用意したツーボウルタイプもあります。朝の時間帯にご家族で効率良く使用できます。

バスルーム

ホワイトを基調とした、広さを感じられる明るい空間です。またぎ高を約420~485mmに抑えた低床型ユニットバスで、無理なく浴槽へ入れます。保温効果も高く、温まったお湯を楽しめます。TES式浴室暖房乾燥機も配備されていて、雨や曇りの日は洗濯物を乾かせます。

トイレ

人工大理石を用いた手洗いカウンターが付いています。継ぎ目がなく一体型になっており、デザイン性に優れているとともに清掃性にも配慮しています。トイレはローシルエットタンクトイレを採用。コンパクトで圧迫感を抑えており、使用する水量が少なく環境に優しい仕様となっています。

ACCESS アクセス

JR山手線が最寄り路線
主要駅へのアクセス良好

最寄り駅となるJR線「恵比寿」駅は山手線が走っています。その他にも埼京線、湘南新宿ラインが走っており、「渋谷」駅や「品川」駅などへのアクセスが良好です。また、東京メトロ日比谷線「恵比寿」駅もあり、「六本木」駅などの日比谷線が走る主要駅にも気軽に移動できます。あらゆるエリアに乗り換えなしで行くことができ、利便性の高さを実感できます。

鉄道

渋谷駅

渋谷駅
渋谷駅

グランドヒルズ恵比寿の最寄り駅であるJR線「恵比寿」駅から山手線に乗ります。乗車時間は約2分と好アクセスです。

新宿駅

新宿駅
新宿駅

JR線「恵比寿」駅から山手線に乗り、乗車時間約7分で到着します。

六本木駅

六本木駅
六本木駅

東京メトロ日比谷線「恵比寿」駅から2駅で到着します。乗車時間は約6分と、六本木方面にも容易に移動できます。

銀座駅

銀座駅
銀座駅

日比谷線「恵比寿」駅から乗り換えなしで「銀座」駅に着きます。所要時間は約16分です。

タクシー

タクシー

※画像はイメージです。

行き先 所要時間
「渋谷」駅 約9分
「新宿」駅 約21分
「六本木」駅 約10分
「銀座」駅 約12分

バス

バス

※画像はイメージです。

マンションからほど近くにある「恵比寿四丁目」バス停は「渋谷駅前」バス停や「田町駅前」バス停の方面に運行します。途中「白金高輪駅前」バス停も通ります。

空港

空港

※画像はイメージです。

羽田空港へのルート

①電車

JR線「恵比寿」駅から山手線に乗って「品川」駅へ。そこから京急本線特急に乗り換えて、羽田空港そばの「羽田空港第1・第2ターミナル」駅に着きます。乗車時間は約30分です。

②タクシー

タクシーで行く場合、乗車時間は約27分です。

成田空港へのルート

①電車

JR「恵比寿」駅から山手線で「新橋」駅へ。都営浅草線エアポート快特に乗り、複数の路線に乗り入れて成田空港そばの「空港第2ビル」駅に着きます。乗車時間は約74分です。

②タクシー

タクシーでの移動時間は、約60分になります。

③リムジンバス

また、恵比寿ガーデンプレイス近くにあるウェスティンホテル東京から、成田空港まで行くリムジンバスが出ています。乗車時間は約127分です。

新幹線発着駅

「東京」駅へのアクセス

JR線「恵比寿」駅から山手線の内回りに乗車すれば、乗車時間は約23分です。タクシーに乗った場合、乗車時間は約18分です。

「品川」駅へのアクセス

JR「恵比寿」駅から山手線に乗り、乗り換えなしで「品川」駅に着きます。乗車時間は約11分です。タクシーで向かった場合の乗車時間は、約19分です。

LIFE
INFORMATION 周辺の施設・店舗情報

図書館や公園など
公共施設も充実したエリア

スーパーマーケットやコンビニエンスストアなどの商業施設も揃っていますが、教育機関や図書館などの公共施設も周囲に点在しています。

商業施設、商店街

スーパーマーケット リコス 広尾5丁目店
(徒歩8分/約600m)

スーパーマーケット リコス 広尾5丁目店
スーパーマーケット リコス 広尾5丁目店

渋谷警察署 広尾五丁目交番のそばにあるスーパーマーケットです。品揃えが豊富で便利です。

セブン-イレブン 渋谷恵比寿1丁目南店
(徒歩4分/約270m)

セブン-イレブン 渋谷恵比寿1丁目南店
セブン-イレブン 渋谷恵比寿1丁目南店

JR線「恵比寿」駅東口の通りに面しているコンビニエンスストアです。

自然、公園

アメリカ橋公園(徒歩7分/約500m)

アメリカ橋公園
アメリカ橋公園

恵比寿ガーデンプレイスの開発工事にともなって整備された公園です。面積は1,421㎡で、きれいな光のモニュメントが設置されています。

伊達児童遊園地(徒歩5分/約350m)

伊達児童遊園地
伊達児童遊園地

住宅地にある小規模な公園ですが、滑り台や砂場などの遊具があります。ベンチもあり、休みながらお子さまを見守れます。

暮らし、インフラ

臨川みんなの図書館(徒歩7分/約550m)

臨川みんなの図書館
臨川みんなの図書館

臨川小学校の校舎の一部を使い開館しています。一般向けと児童書が1階、絵本コーナーが2階にあります。

幼稚園、保育園、学校

こもれび保育園 恵比寿園(徒歩11分/約850m)

こもれび保育園 恵比寿園
こもれび保育園 恵比寿園

加計塚小学校(徒歩5分/約400m)

加計塚小学校
加計塚小学校

広尾中学校(徒歩17分/約1,300m)

広尾中学校
広尾中学校

まとめ

暮らしのランクが高まる
充実の住空間

山手線の内側に位置するグランドヒルズ恵比寿は、ハイグレードなエリアとして知られる広尾や白金、代官山などが徒歩圏内にあります。また、日常生活を彩る商業施設なども豊富で、快適な暮らしができます。

地上23階地下2階、総戸数310戸となっている大規模タワーマンションですが、派手にならず気品を保った重厚感が外観から感じられます。パーティルームなどゲストを迎え入れられる共用施設も充実しており、豊かなコミュニケーションをサポートします。

室内は共用施設同様に高級感のある素材が使われており、暮らしのランクを高めます。また、高層階から眺める都会の夜景は圧巻の美しさです。

敷地内は空地率が高く、広々とした贅沢な設計となっています。自然環境も豊富に整えられています。グランドヒルズ恵比寿の開放的な環境で、充足感に満ちた生活を送ることができるでしょう。

グランドヒルズ恵比寿

駅徒歩 不動産の表示に関する公正競争規約の改正(2022年9月1日)により、交通利便情報が販売中のものと異なる場合がございます。

山手線
「恵比寿」駅 徒歩7分

東京メトロ日比谷線
「恵比寿」駅 徒歩9分

築年月

2019年2月

総戸数

310戸

階数

地上23階 地下2階