野村不動産 プラウド代官山
猿楽町
Concept 旧山手通りから一本奥、代官山T-SITEに面する角地、陽光が生み出すガラスの美しい輝き、表情ゆたかな石張りで構成される印象的なファサード、エントランスホールに入ると壁面に施した積層ガラスが創り出す幻想的な光とガラスのコントラスト、賑わいから寛ぎのプライベートへと誘う

プラウド代官山猿楽町

ガラスが連なる大胆なデザイン

「代官山」駅 徒歩5分

地上4階、総戸数15戸

2025.05.30 公開

LOCATION ロケーション

伝統ある文化的な街
「代官山」の丘上に位置

DAIKANYAMA T-SITE GARDEN
DAIKANYAMA T-SITE GARDEN

プラウド代官山猿楽町は渋谷区猿楽町に位置するマンションで、最寄り駅となる東急東横線「代官山」駅まで徒歩約5分という立地にあります。

「代官山」駅
「代官山」駅

代官山一帯は安定した地盤である「西渋谷台地」に属しています。かつては眺望絶佳の地ともされたエリアで、その景色によって心が晴れるという「去我苦(さるがく)」から猿楽町という地名が生まれたとも言われています。そんな西渋谷台地の丘上にあるのがプラウド代官山猿楽町。採光性、通風性に優れており、清々しい空気のなかで爽やかに過ごせます。

代官山エリアといえば、多くの政治家や文化人に愛されてきた街です。古くからこのエリアに居を構えた朝倉家は、私道を広げて幹線道路へと整備しました。こうしたゆとりある都市空間の創造は、今なお高い評価を受けています。

Bunkamura
Bunkamura

渋谷にも近接しており、ショッピングやレジャーなど多様な楽しみ方ができます。代官山と渋谷という文化的な街に囲まれた、華やかさに満ちたロケーションになっています。

FEATURES 建物の特徴

ガラスを巧みに活かした
大胆なファサード

プラウド代官山猿楽町 アプローチ
プラウド代官山猿楽町 アプローチ

マンションの外観はガラスを大胆に使用し、代官山らしくデザイン性の高さが目を引きます。周囲の植栽は、付近を通る人の目をも楽しませてくれます。

コンセプト・デザイン

プラウド代官山猿楽町 敷地配置図
プラウド代官山猿楽町 敷地配置図

プラウド代官山猿楽町は2018年7月に竣工した地上4階建、総戸数15戸のマンションです。多くの住戸が100㎡以上のタイプ。ワンフロア5戸以内の住戸は、内廊下や内階段を囲むようにして配置されています。4階は3戸がメゾネットタイプで、屋上には上階とルーフテラスがあります。屋上は緑化されており、環境にも配慮したマンションです。

プラウド代官山猿楽町 外観
プラウド代官山猿楽町 外観

ファサードは大胆なデザインが施されています。全体をガラスが連なるように作られており、ハイサッシにはセラミックプリントガラスが使われています。このプリントガラスは、足元から上部に向かうと少しずつクリアになるタイプとなっています。基壇部のコーナーには積層ガラスを採用するなど、さまざまな質感を組み合わせて単調にならないよう仕掛けられています。また、採光性を高めながらも外からの視線を遮っており、居住者のプライバシーを守っています。階層ごとの境界となる部分などには石張りがされているほか、コーナーが緩やかにカーブするなど印象的な外観にデザインされています。また、南東部のファサードにはバーチカルブラインドを設置。縦長のラインが美しく、大きな窓に映えます。

プラウド代官山猿楽町 エントランス
プラウド代官山猿楽町 エントランス

建物のまわりには四季を彩る木々が多数植えられています。お帰りの際には気持ちが穏やかになる、癒しの植栽です。そして、エントランス部分は光が穏やかに入るように設計されており、外部との境界性を強調しています。また、扉が外部から奥まったところにあるのも高級感を高めるポイントです。

セキュリティ

ハンズフリーキー

ポケットやバックにハンズフリーキーを携帯しておくだけで、エントランスのオートロックを解錠してスムーズに出入りができます。

エレベーターセキュリティ

セキュリティエレベーター

※画像はイメージです。

エレベーターの利用もハンズフリーキーと連動。住戸のある階や訪問先の住戸階のみに止まるので、防犯の精度が高まります。

4重のセキュリティシステム

プラウド代官山猿楽町では、アプローチとエントランスホールで鍵の認証が必要になるダブルオートロックシステムを導入。さらに、エレベーターセキュリティ(1階住戸を除く)と住戸の玄関を合わせて、4重ものセキュリティ対策がなされています。外部からの侵入を防ぐ、安全性に配慮したシステムです。

COMMON AREA 共用部

幻想的な空間でくつろげる
共用スペース

エントランスホールは積層ガラスの機能により、独特な色調の世界が広がる落ち着けるスペースに仕上がっています。また、コンシェルジュサービスも利用でき、日常生活の利便性を高めます。

共用施設

エントランスホール

エントランスホールの壁面に設置されている積層ガラスにより、光とガラスのコントラストが生まれて幻想的な空間に仕上がっています。潤いを感じさせるとともに、独特な世界観に浸れるプライベートなスペースへと続いていきます。ホール内にはゆったりと休める調度品も導入されており、外部とは違った趣きを感じられます。

ゴミステーション

ゴミステーションを各階に設置しており、24時間いつでもゴミ出しができます。

平置式地下駐車場

プラウド代官山猿楽町 地下駐車場
プラウド代官山猿楽町 地下駐車場

全戸分の平置式地下駐車場が用意されています(空き状況は都度確認を要します)。入出庫時の待ち時間がなく、車を停めたまま荷物の出し入れができるなど、平置きのメリットを享受できます。建物の地下空間にあり、プライバシーを守ります。駐車中に愛車が雨に濡れる心配もありません。

サービス

コンシェルジュサービス

コンシェルジュサービス

※画像はイメージです。

日常で必要となる便利なサービスを手配・紹介しています。

一部のサービスは有料です。また、サービス内容は変更されたり取りやめになる可能性があります。

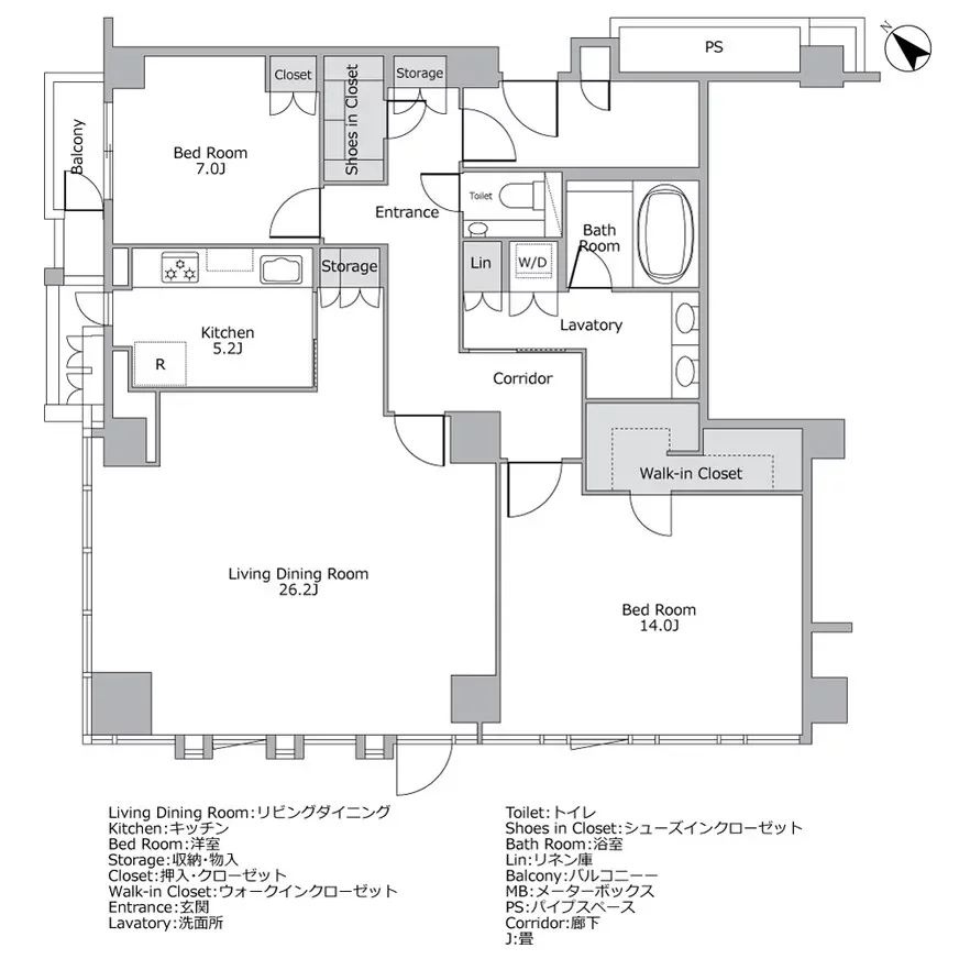
FLOOR PLAN 間取り図一例

プラウド代官山猿楽町 間取り図例
プラウド代官山猿楽町 間取り図例
プラウド代官山猿楽町 間取り図例
プラウド代官山猿楽町 間取り図例

INSIDE THE ROOM 室内

水栓等のブランドにも
こだわり
ハイセンスな室内空間

キッチンやドレッシングルームで使用する水栓金具や洗面ボウルは、海外の高級ブランドのものを採用するなど、ラグジュアリーさが際立ちます。

室内仕様

プライベートエントランス

お持ちの家具やアートなどのレイアウトを自由に楽しめるプライベートエントランスです。玄関前に広がりができてホテルライクな開放感が生まれます。

プライベートロッカー

住戸側だけでなく、共用廊下からも扉が開く動線となっており、宅配やクリーニングなどの受け渡しがスムーズにできます。人と顔を合わせることがないので、プライバシーにも配慮した設計になります。また、プライベートロッカーにある棚板は外すことができ、トランクルームとしても活用できます。大きな荷物を置いておきたいときにも便利です。

リビング・ダイニング

全体をシックにまとめ、ホテルライクな高級感が漂います。温かみのあるインテリアを組み合わせることで、家族やゲストがゆったりと語り合える空間が生まれます。
折上天井で高さを感じさせる設計になっており、ワイドな窓からは自然光がたっぷり入り込みます。住む人のライフスタイルに合わせて自由自在に使える、使い勝手の良さが特徴的です。

キッチン

キッチン

※画像はイメージです。

シーザーストーンを施して明るさを感じられるキッチンです。システムキッチンには、ドイツの老舗の高級水栓金具ブランドであるドンブラハ社製の水栓金具を使用(浄水器は除く)。

ドレッシングルーム

ホワイトを基調にした清潔感のある洗面室です。洗面ボウルはトルコのヴィトラ社製のものを採用。美しいフォルムが特徴的な置き型のタイプで、まるでホテルにいるような感覚を覚えます。

プライベートパーキング

ガラス越しに愛車を眺められるプライベートパーキング付きの住戸があります(すべてのタイプに併設されているわけではございません)。

ACCESS アクセス

「代官山」駅をメインに
主要都市へ移動可能

鉄道

「代官山」駅
「代官山」駅

最寄り駅は東急東横線「代官山」駅で、徒歩5分の距離にあります。
東京の各主要エリアへ直通アクセスができ、「渋谷」駅へはわずか1駅、「新宿」駅や「銀座」駅へも短時間で到着できます。通勤・通学に限らず休日のお出かけにも大変便利です。
こちらでは、最寄りの「代官山」駅から、主要エリアへの所要時間を紹介いたします。

掲載の所要分数は日中平常時のもので、乗り換え・待ち時間等は含みません。
また時間帯により異なる場合があります。

「渋谷」駅

「渋谷」駅
「渋谷」駅

東急東横線「代官山」駅から、「渋谷」駅まで直通で約2分です。

「新宿」駅

「新宿」駅
「新宿」駅

東急東横線「代官山」駅から、「渋谷」駅でJR山手線に乗り換えます。「新宿」駅まで約9分です。
また、東急東横線「代官山」駅から、東京メトロ副都心線「新宿三丁目」駅まで乗り換えなしの直通で約9分です。

「銀座」駅

「銀座」駅
「銀座」駅

東急東横線「代官山」駅から、「中目黒」駅で東京メトロ日比谷線に乗り換えます。「銀座」駅まで約20分です。

「六本木」駅

「六本木」駅
「六本木」駅

東急東横線「代官山」駅から、「中目黒」駅で東京メトロ日比谷線に乗り換えます。「六本木」駅まで約9分です。

タクシー

タクシー

※画像はイメージです。

行き先 所要時間
「渋谷」駅 約6分
「六本木」駅 約11分
「銀座」駅 約16分
「新宿」駅 約17分

バス

バス

※画像はイメージです。

マンションのすぐ近くに「猿楽トレーニングジム入口・代官山Tサイト」バス停があります。恵比寿・代官山循環のハチ公バスのルートで、恵比寿や渋谷方面を走行します。近隣の駅などへ移動したいときに便利です。

空港

空港

※画像はイメージです。

羽田空港へのルート

①電車

徒歩13分のところにあるJR山手線「恵比寿」駅利用で「品川」駅に向かい、京急本線特急に乗り換えて所要時間は約25分で到着します。

②タクシー

所要時間は約27分です。

成田空港へのルート

①電車

徒歩13分のところにあるJR山手線「恵比寿」駅利用で「渋谷」駅に向かい、JR湘南新宿ライン 特急成田エクスプレスに乗り換えて所要時間は約1時間15分で到着します。

②タクシー

所要時間は、約1時間10分です。

③リムジンバス

徒歩約13分のところにある「セルリアンタワー東急ホテル」から、成田空港行きのリムジンバスが出ています。所要時間は約1時間35分です。

新幹線発着駅

「東京」駅へのアクセス

東急東横線利用「渋谷」駅で東京メトロ銀座線に乗り換え、「赤坂見附」駅で東京メトロ丸ノ内線に乗り換えて所要時間は約18分です。
タクシーなどを使った車移動の場合は、約19分です。

「品川」駅へのアクセス

東急東横線を利用「渋谷」駅でJR山手線に乗り換えると所要時間は約15分です。
タクシーなどを使った車移動の場合は、約19分です。

LIFE
INFORMATION 周辺の施設・店舗情報

代官山の主要施設が近接し
買い物に便利

マンションのすぐそばにある代官山T-SITEや「代官山」駅近くの代官山アドレス・ディセなど、買い物やカフェが近接しています。

商業施設、商店街

ピーコックストア 代官山店(徒歩5分/約350m)

ピーコックストア 代官山店
ピーコックストア 代官山店

ウエルシア 代官山ディセ店(徒歩4分/約300m)

ウエルシア 代官山ディセ店
ウエルシア 代官山ディセ店

代官山アドレス・ディセ1階に位置するドラッグストアで、ピーコックストア 代官山店に隣接しています。スーパーマーケットとドラッグストアが並んでいるので、日常の買い物をするのにとても便利です。

無印良品 代官山(徒歩4分/約270m)

無印良品 代官山
無印良品 代官山

自然、公園

猿楽古代住居跡公園(徒歩4分/約290m)

猿楽古代住居跡公園
猿楽古代住居跡公園

暮らし、インフラ

代官山内科外科クリニック(徒歩1分/約60m)

代官山内科外科クリニック
代官山内科外科クリニック

マンションのすぐ近くに位置する、1913年開業の歴史あるクリニックです。内科や外科以外にもさまざまな診療に対応しています。

幼稚園、保育園、学校

鶯谷さくら幼稚園(徒歩6分/約450m)

鶯谷さくら幼稚園
鶯谷さくら幼稚園

渋谷区立猿楽小学校(徒歩3分/約180m)

渋谷区立猿楽小学校
渋谷区立猿楽小学校

渋谷区立鉢山中学校(徒歩7分/約500m)

渋谷区立鉢山中学校
渋谷区立鉢山中学校

まとめ

代官山にふさわしい
ハイグレードなマンション

このマンションの特徴のひとつが、ガラスが連なるように配置されたファサードです。基壇部には積層ガラスを採用し、エントランスホールへ差し込む光をコントロールして幻想的な空間にしています。平置式地下駐車場や24時間ゴミを捨てられるゴミステーション、コンシェルジュサービスなど、日常をより便利に快適に過ごせる共用施設も魅力的です。

代官山の地だからこそ得られる豊かさを、存分に享受できるマンションです。

プラウド代官山猿楽町

駅徒歩 不動産の表示に関する公正競争規約の改正(2022年9月1日)により、交通利便情報が販売中のものと異なる場合がございます。

東急東横線
「代官山」駅 徒歩5分
JR「恵比寿」駅 徒歩13分

築年月

2018年7月

総戸数

15戸

階数

地上4階