東急不動産 ブランズ明石町 Concept 居留地通りを挟んで聖路加国際病院、隅田川が至近、銀座を徒歩圏とする立地、かつてこの地にあった外国人居留地の歴史と呼応し、重厚でありながら洗練を感じさせるベージュとダークブラウンで構成された外観

ブランズ明石町

銀座、丸の内、築地が
生活圏

新富町駅 徒歩6分、築地駅 徒歩7分、
八丁堀 駅徒歩10分、
3駅3路線利用可

地上12階、総戸数66戸

2025.02.14 公開

LOCATION ロケーション

上質な安らぎのある
中央区明石町

江戸時代には、松平藩や細川藩の武家屋敷、井伊直弼も居を構えていた奥州白河藩松平正信の下屋敷があった中央区明石町エリア。
海水を取り入れた池泉回遊式庭園の「浴恩園」などもあり、風光明媚な地として栄えました。
明治時代になると、貿易に適した隅田川の河口に広がる立地から外国人居留地となり、洋館や住居、教会や学校などが建てられたことで、異国情緒あふれる街並みが形成されていきました。またこの時期に、教会やミッションスクールが次々と設立されました。日本で最初の女学校をはじめ、現在は別の場所に移転していますが、明治学院や青山学院など多くのミッションスクールの誕生の地としても知られています。
現在でも明石町にあるミッションスクールというのが、聖路加国際大学です。隣接する聖路加病院は、最新設備の揃った大型病院となっていますが、ゴシック建築の傑作と呼べるチャペルは当時の面影を残していて、歴史がありモダンな雰囲気の漂う明石町の象徴的存在となっています。

隅田川のリバーサイドに位置し、日本を代表する洗練されたレトロモダンの街・銀座も徒歩圏内と、快適な都市生活であることはもちろん、正しき由緒や緑あふれる安らぎをも得ることができる理想的なロケーションです。

聖路加国際病院
聖路加国際病院

FEATURES 建物の特徴

街並みと調和する
洗練された
Vintage Modern

ブランズ明石町 外観
ブランズ明石町 外観

外観・共有部分をデザインしたのは、明石町界隈に縁のあるという建築家・南条洋雄氏。明石町の景観や空気感を伝承できる建築物とすることを自らのミッションにデザインしたといいます。
外観は、街の景観に調和する重厚でありながら洗練を感じさせるベージュとダークブラウンで構成。“伝統”と“正統”を両立させ、自然石の風合いが個性的な1階部分は、温かみのあるタイルと調和し、奥ゆかしさがありながら存在感を放っています。サッシを囲む四方枠がアクセントになっています。

コンセプト・デザイン

アプローチの壁、低層バルコニーの手摺りには西洋の伝統技術を用いたロートアイアンを採用しています。
建材にもこだわり、御影石は老舗の石材メーカー「松下産業」のものを、タイルは、1885年に設立された「Danto Tile」のオリジナルカラーを使用しています。
またロートアイアンは、「よし与工房」のもの。これは室内の照明ブラケット、ラウンジ・エレベーターホールフェンス、各階の階数表示にも使用されていて、外から内へつながるストーリー性を感じさせる要素のひとつとなっています。

ブランズ明石町 レリーフ
ブランズ明石町 レリーフ

建物構造

地震や火事に強く、遮音性にも優れているRC(鉄筋コンクリート)造の建物で、耐震構造、制震構造が施されています。

防災設備

防災備蓄倉庫が備えられています。

セキュリティ

24時間遠隔管理システム

共用部や住居内で異常が発生した場合には、直ちに管理会社の監視センター及びALSOKのガードセンターに自動通報される24時間遠隔管理システムが入っていて、安心・安全な暮らしをサポートします。

トリプルセキュリティ

エントランスは、不審者の侵入を抑制するダブルオートロックシステムを採用。2箇所でオートロックを解鍵するようになっています。さらに、エレベーターは行き先階以外には停止しないシステムになっています。

セキュリティエレベーター

※画像はイメージです。

録画機能付カラーモニター・インターホン

エントランスには、住戸内から解錠できるオートロック対応のカラーモニター付きインターホンを設置しています。来訪者をカラーモニターで確認できるだけでなく、録音・録画機能で保存することも可能です。

CP認定仕様の玄関ドア

玄関のチャイムが押されると同時に来訪者の様子を画像と音声で確認できるカメラ付きインターホン子機、室内側からボタンを押さないと回すことのできない防犯サムターン、不正解除を困難にする鎌形デットボルト錠、リーダーにかざすだけで解錠可能なオートロックノンタッチキー、防犯センサーなど数々のセキュリティ機能が搭載された玄関ドアです。

COMMON AREA 共用部

贅沢な空気感に満ちた空間

ブランズ明石町 エントランス
ブランズ明石町 エントランス

エンストランスへと続くアプローチには、植栽が美しく施されています。続くエントランスは上質で落ち着きがあり、住む人をさらなる安らぎへと誘うような共同空間になっています。

共用施設

エントランスホール・ラウンジ

壁面と床には、老舗の石材メーカー「松下産業」の御影石をふんだんに使用しています。また、床の一部には、聖路加礼拝堂の床面にあるものと同じパターンが施されています。

ブランズ明石町 敷地配置図
ブランズ明石町 敷地配置図

機械式駐車場が備えられています。また、近隣へのお出かけに、自転車での移動も大変便利なため、大きめの駐輪場も備わっています。

その他

ペットの足洗い場、荷物の受け取りが24時間できる宅配ボックス

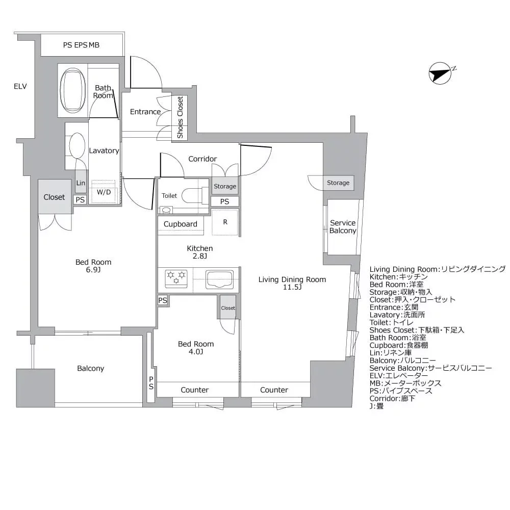
FLOOR PLAN 間取り図一例

広々とした間取りで
幅広い家族構成に対応

専有面積は40.11㎡~71.32㎡、間取りは1LDK~3LDKとなっていて、シングルからファミリーまで様々な家族構成に適したレイアウトになっています。

ブランズ明石町 間取り図例
ブランズ明石町 間取り図例
ブランズ明石町 間取り図例
ブランズ明石町 間取り図例

INSIDE THE ROOM 室内

洗練と機能性が両立した
上質な室内空間

住む人がゆったりとした気分で過ごせるよう、開放感がありながら落ち着いた雰囲気にデザインされた室内空間。厳選された素材で構成し、伸びやかさを満喫できる広さ、さらに快適な設備の揃ったプライベートスペースです。

              

室内仕様

TES温水式床暖房

床暖房

※画像はイメージです。

効率よく心地いい温もりが得られるガス式温水式床暖房を採用しています。暖房器具の転倒による火傷や怪我、火災などの心配がなく、快適です。

天井カセット式エアコン

リビングダイニングは、室内機を天井に埋め込む方式のカセットエアコンを設置。出っ張りがなく、すっきりとした見た目で、広々とした空間を演出します。

大きな収納

ウォークインクローゼット

※画像はイメージです。

ウォークインクローゼット、シューズインクローゼット、ストレージルームと使いやすく充実した収納が備わっています

キッチン、バスルーム、パウダールームは、質の高いデザインと使い勝手の良さにこだわった心地よさと機能性が両立した仕上がりです。

天然石キッチンカウンター

カウンタートップには、高級感が漂う天然の御影石を採用。本物だけが持つ質感や光沢があり、格調高いキッチンを演出します。

ガラストップコンロ

見た目の美しさはもちろん、キズや摩擦に強い耐久性と、お掃除がしやすいもの魅力です。

キッチンシンク

シンクはスライド式の水切り板のついた大きめサイズです。裏面には、水はね音を抑える特殊加工が施された静音仕様になっています。

ディスポーザー

キッチンシンクにはディスポーザーが付いていて、排水溝部分で生ゴミを粉砕し、水と一緒に専用処理装置から下水道へ流れるシステムになっており、清潔に快適さをキープできます。

フィルターレスレンジフード

吸い込み効果の高い整流板の付いたレンジフードで、フィルターレスのためフィルター交換の必要もなく、お手入れが簡単です。

キッチン水栓

キッチン

※画像はイメージです。

キッチン水栓は、洗練されたデザインのドイツのグローエ社製の混合水栓を採用。シンクの隅々まで水流が届く、シャワー機能も付いています。また、バスルームの水栓もグローエ社製となっています。

食器洗い乾燥機

食器洗浄機

※画像はイメージです。

2段式の洗浄ノズルでシャワーを拡散、隅々まで洗うことができます。排気口には、ソフト排気モードが装備されており、温度環境や小さなお子様の安全にも配慮したものになっています。

ミストサウナ(ミスティ)

細かなミストが身体を包み、短い時間でも手足の先までしっかり温まるミストサウナを標準装備。気軽に利用できる節水・省コストもなのも嬉しいポイント

超節水タンクレストイレ

超節水の5.5Lトイレを採用しています。タンクレスで掃除がしやすいデザインです。

ACCESS 交通アクセス

3駅利用出来、
銀座は
徒歩圏内という好立地

東京メトロ有楽町線「新富町」駅(徒歩7分/約500m)、東京メトロ日比谷線「築地」駅(徒歩8分/約600m)、「八丁堀」駅(徒歩10分/約800m)と3駅の利用が可能で、通勤や通学、お出かけに大変便利な立地です。主要な駅までのアクセス時間は以下の通りです。

鉄道

「有楽町」駅

「有楽町」駅
「有楽町」駅

「新富町」駅より、東京メトロ有楽町線利用で所要時間は約3分です。

「豊洲」駅

「豊洲」駅
「豊洲」駅

「新富町」駅より、東京メトロ有楽町線利用で所要時間は約5分です。

「東京」駅

「東京」駅
「東京」駅

「新富町」駅より、東京メトロ有楽町線利用で「有楽町」駅まで行き、徒歩にて約9分です。

「新木場」駅

「新木場」駅
「新木場」駅

「新富町」駅より、東京メトロ有楽町線利用で所要時間は約10分です。

「霞ヶ関」駅

「霞ヶ関」駅
「霞ヶ関」駅

「新富町」駅より、東京メトロ有楽町線利用で「桜田門」駅まで行き、徒歩にて約11分です。

「銀座」駅

「銀座」駅
「銀座」駅

「築地」駅より、東京メトロ日比谷線利用で所要時間は約3分です。

「虎ノ門ヒルズ」駅

「虎ノ門ヒルズ」駅
「虎ノ門ヒルズ」駅

「築地」駅より、東京メトロ日比谷線利用で所要時間は約9分です。

「六本木」駅

「六本木」駅
「六本木」駅

「築地」駅より、東京メトロ日比谷線利用で所要時間は約14分です。

「上野」駅

「上野」駅
「上野」駅

「築地」駅より、東京メトロ日比谷線利用で所要時間は約14分です。

「恵比寿」駅

「恵比寿」駅
「恵比寿」駅

「築地」駅より、東京メトロ日比谷線利用で所要時間は約20分です。

「北千住」駅

「北千住」駅
「北千住」駅

「築地」駅より、東京メトロ日比谷線利用で所要時間は約24分です。

「新橋」駅

「新橋」駅
「新橋」駅

「東銀座」駅より、都営浅草線利用で所要時間は約12分です。

タクシー

タクシー

※画像はイメージです。

タクシーを利用して移動する場合の所要時間は、以下の通りです。

行き先 所要時間
「豊洲」駅 約6分
「新橋」駅 約8分
「東京」駅 約10分
「霞ヶ関」駅 約12分
「新木場」駅 約17分

バス

バス

※画像はイメージです。

都営バス「明石町」2番乗り場(徒歩1分/約60m)より「深川車庫前」行きバスを利用すると、勝どき、晴海、豊洲、東雲方面へ行くことができます
都営バス「聖路加病院前」1番乗り場(徒歩2分/約150m)からは「東京駅八重洲口」行きが出ています。
また中央区のコミュニティバスを使い、勝どき、晴海、月島方面など中央区内へアクセスすることができます。

空港

空港

※画像はイメージです。

羽田空港へのルート

「コートヤード・マリオット銀座東武ホテル」よりリムジンバスを利用して約25分。タクシーを利用した場合は、約23分で到着できます。

成田空港へのルート

「コートヤード・マリオット銀座東武ホテル」よりリムジンバスを利用して約77分。電車の場合は、徒歩8分の「築地」駅より東京メトロ日比谷線にて「東銀座」駅まで行き、都営浅草線アクセス特急に乗り換えれば「空港第2ビル」駅まで約102分です。

 

新幹線発着駅

「東京」駅へのルート

最寄りの「新富町」駅より東京メトロ有楽町線にて「有楽町」駅まで行き、「有楽町」駅より徒歩約4分で「東京」駅に行くことができます。

LIFE
INFORMATION 周辺の施設・店舗情報

個性のあるエリアに
囲まれた
多様性が魅力

築地市場が移転し、再開発の期待が高まっている築地エリア、百貨店やブティック、老舗が並ぶ日本のラグジュアリーを代表する繁華街・銀座エリア、オフィス街としてエグゼクティブなムードを放つ丸の内エリアと個性豊かなエリアに囲まれている明石町。洗練された高級感、飾らない下町の親しみやすさという多様性を徒歩圏内で堪能できるという魅力があります。

商業施設、商店街

まいばすけっと築地明石町店
(徒歩2分/約100m)

まいばすけっと築地明石町店
まいばすけっと築地明石町店

コンパクトな店内ながら、必要なものがバランスよく揃っています。

どらっぐぱぱす明石町店(徒歩1分/約70m)

どらっぐぱぱす明石町店
どらっぐぱぱす明石町店

薬、化粧品、日用品、食品など幅広い品揃えです。調剤薬局を併設しています。

聖路加ガーデン(徒歩2分/約150m)

医・職・住・学・悠を融合させた都市空間。2本のタワーからなり、アメニティ・オフィス空間である「聖路加タワー」、シニアライフのためのレジデンスを中心とした「聖路加レジデンス」があります。聖路加タワー47階には「レストラン ルーク ウィズ スカイ ラウンジ」があり、特別な日のお食事にぴったりの絶景も楽しめるレストランです。1−2階には、手頃なレストラン、カフェもあります。

築地場外市場(徒歩13分/約1000m)

築地場外市場
築地場外市場

豊洲への市場移転後は、400を超える食の店舗が営業し、専門店街となっている築地エリア。築地場外市場で長く愛されてきた名店はもちろん、観光客にも人気の高い食べ歩きフード、包丁や食器などの食品以外の専門店も揃い、活気にあふれています。再開発も進められているので、これからもどんどんと進化するグルメな街歩きにおすすめのスポットです。

月島もんじゃストリート
(徒歩13分/約1000m)

月島もんじゃストリート
月島もんじゃストリート

月島もんじゃストリートは徒歩圏内です。もんじゃ焼きと共に、下町風情も楽しめます。

自然、公園

外国人居留区があった頃のモダンさが残る明石町の近くには公園も多く、隅田川沿いならではのゆったりとした開放感も堪能できます。

あかつき公園(徒歩5分/約400m)

滑り台、ブランコ、うんてい、砂場など遊具が揃っていて、広場や噴水もあり、広々としています。冒険広場には、タイヤ遊具やターザンロープなどもあり、思いっきり身体を動かして遊ぶことができる公園です。

明石町河岸公園(徒歩3分/約200m)

明石町河岸公園
明石町河岸公園

聖路加ガーデンと隅田川テラスの間にある細長い公園。隅田川の反対側には桜の木が並んでいて、対岸には高層ビル群が見えるというロケーション。お散歩に適した遊歩道のような空間です。

築地川公園(徒歩5分/約400m)

築地川公園
築地川公園

桜や紫陽花、ラベンダーなど四季折々の樹木や草木が楽しめます。幼児向けと児童向けの複合遊具があり、幅広い年齢層の子どもたちが安全に遊ぶことができます。また、「デイキャンプ場」があり、BBQなど日帰りキャンプを体験することができます。

はとば公園(徒歩8分/約600m)

はとば公園
はとば公園

隅田川沿いにありで、穏やかな川の流れを感じることのできる癒しの公園です。シルバーの大きな球体のモニュメントが目印。

暮らし、インフラ

中央区役所(徒歩10分/約800m)

中央区役所
中央区役所

中央区築地1-1-1に位置する中央区役所。建築家・佐藤武夫氏の設計で、平たい六角形の形をしたユニークな形が印象的なビルです。区民がより行政サービスを利用しやすくなるよう、一部の業務を除き、毎週水曜日は午後7時まで窓口を延長しています。

聖路加国際病院(徒歩2分/約150m)

聖路加国際病院
聖路加国際病院

明石町の象徴的存在の病院。1901年に米国聖公会の宣教師ルドルフ・トイスラー博士によって創設。1世紀以上経た現在も、職員一人ひとりが「病める人々のために身も心も寄り添うような医療」を提供することを掲げ、「質の高い安全な医療」の実践を目指しています。

国立がん研究センター中央病院
(徒歩18分/約1400m)

国立がん研究センター中央病院
国立がん研究センター中央病院

日本のがん治療を支える国立の医療機関。がん患者の相談や診療から、新しいがん治療研究や治験なども行われている研究機関でもあります。

幼稚園、保育園、学校

ぽけっとランド明石町保育園(徒歩1分/約70m)

明石町保育園(徒歩4分/約250m)

中央区立明石幼稚園・小学校(徒歩4分/約250m)

中央区立明石小学校
中央区立明石小学校

中央区立銀座中学校(徒歩22分/約1700m)

中央区立銀座中学校
中央区立銀座中学校

聖路加国際大学(徒歩6分/約450m)

イベント、お祭り

築地本願寺
築地本願寺

築地本願寺(徒歩13分/約1000m)にて、4月上旬には、お釈迦さまの誕生日をお祝いする「花まつり」が行われます。また、8月には築地本願寺納涼盆踊り大会が盛大に開催され、周りには出店が並び、大勢の人で賑わいます。特に、コスプレを楽しむ仮装盆踊りの日は大盛況となります。

築地の守護神波除稲荷神社(徒歩9分/約700m)の夏のお祭りが「つきじ獅子祭り」。日本最大級の獅子頭のお神輿が街を練り歩きます。また、11月の酉の日には「酉の市」が開催され、商売繁盛の熊手“かっこめ”が授与されます。

まとめ

粋で潤沢な毎日を実現する
都心の邸宅

歴史と文化があり、異国情緒あふれる街並みが残る明石町に佇む洗練と重厚感が両立するデザインの建物、ブランズ明石。築地、銀座、丸の内という日本を代表する個性的なエリアに囲まれたロケーションで、利便性が高く、徒歩圏内でラグジュアリーも下町らしさも存分に味わえる魅力があります。また、隅田川が近く、川沿いには緑や公園も多く、広々としています。多様性にあふれ、江戸の粋が根付いた生活環境は、“贅沢”な毎日となることでしょう。

ブランズ明石町

駅徒歩 不動産の表示に関する公正競争規約の改正(2022年9月1日)により、交通利便情報が販売中のものと異なる場合がございます。

東京メトロ有楽町線
「新富町」駅 徒歩6分

築年月

2017年4月

総戸数

66戸

階数

地上12階