住友不動産 ハーバーテラス品川 Concept 旧海岸通りから新港南橋交差点を曲がって橋を渡った左手奥、高浜運河沿い、コンクリート打放しの素材感を活かしながら、あえて華美な装飾を排したモノトーンで凛としたファサード

ハーバーテラス品川

「品川」駅 徒歩13分

高浜運河に面したテラスバルコニーは
奥行き最大2.8mの開放感

地上15階、総戸数55戸

2025.02.21 公開

LOCATION ロケーション

美しい水辺で味わう
スマートな暮らし

高浜運河
高浜運河

港区港南の北側、今なお開発が進み美しく整えられている一角に、地上15階、総戸数55戸のハーバーテラス品川があります。ハーバーテラスの名の通り、眼前には高浜運河が流れ、対岸の遊歩道を歩けばカモメがふんわりと風に乗って並走する、ウォーターフロントならではの日常が待っています。

品川駅
品川駅

最寄りの「品川」駅は、JR線、東海道新幹線、京急線が乗り入れ、アクセスの起点として良い条件がそろっています。新幹線で関西方面、京急線一本で羽田空港にも行くことができ、在来線でも熱海方面、横須賀方面へと縦横無尽に移動することが可能です。

港南大橋
港南大橋
芝浦中央公園
芝浦中央公園

港南大橋から見渡すベイの景観はブルーに満ちていて、広々とした芝生広場に木製遊具が光る芝浦中央公園や、京浜運河を望み、高層ビルに囲まれた港南地区のオアシス・港南緑水公園があるなど、緑もあふれています。運河の東京水景も相まって都会と自然の融合を感じられるのが港南地区の魅力の一つです。

FEATURES 建物の特徴

モダン&スタイリッシュで
プライバシー対策も万全

ハーバーテラス品川 外観
ハーバーテラス品川 外観

垂直ラインと打放しコンクリートがモダンでスタイリッシュなファサードを形成し、テラスバルコニーに面した高浜運河の水面に凛々しく映ります。都心の洗練された空間で暮らすために遮音性能を充実させており、プライバシー対策も万全です。

コンセプト・デザイン

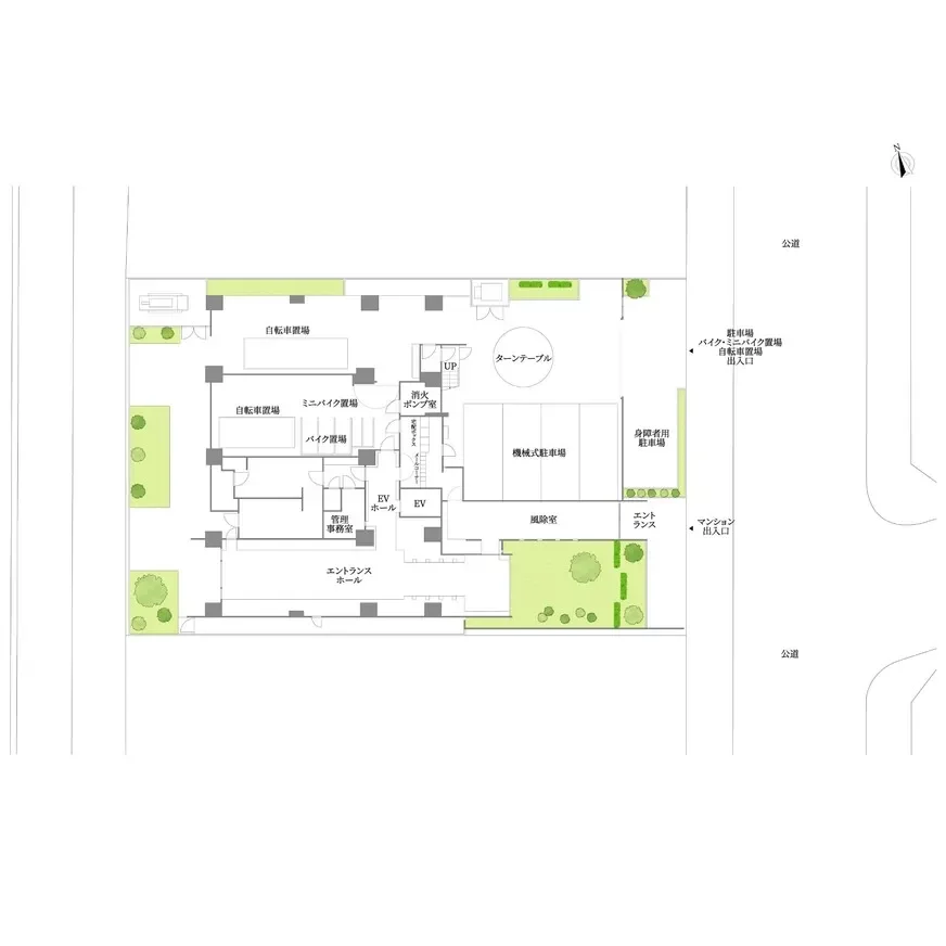
ハーバーテラス品川 敷地配置図
ハーバーテラス品川 敷地配置図

高浜運河沿いにそびえる凛とした表情のハーバーテラス品川。コンクリート打放しのモダンかつスタイリッシュな外観は、水辺に映え、その存在感は品川周辺の都市の景観の中でも異彩を放っています。

美しくそろったバーティカルラインを際立たせるために、外観の色彩は極力抑えられ、クールでシックな印象を与えます。エントランス付近や低層階は白を基調とし、都会的で洗練された邸宅のたたずまいを表現しています。

建物構造

19本の杭が支える

15階建てのハーバーテラス品川を支えているのは、強固な支持地盤に打ち込んだ19本の杭です。地下約16〜17mあたりにある強固な支持地盤を事前の綿密な調査によって発見し、そこに直径約1〜2mのコンクリート杭をしっかりと打ち込み、躯体構造を支える礎を築きました。

溶接閉鎖型帯筋

主要な柱の部分には、耐久性や耐震性を高め、より強固なものにするために溶接閉鎖型帯筋を採用。コンクリートの拘束力を高め、長い年月が経過しても頑丈さにほころびが出ないようにしています。

ダブル配筋

耐震壁を構成するコンクリートは二重の構造になっており、シングルで構築するよりもはるかに高い耐震性を発揮します。

水セメント比

強固に組まれた鉄筋を覆うコンクリートは水セメント比が50%以下になるように設定、緻密で頑丈なコンクリートを作り上げて鉄筋の劣化を防止し、長く住み続けられるような構造にしています。

サッシュ・間仕切り壁・戸境壁

隣戸や屋外に音を漏らさない、あるいは外からの騒音を軽減して快適な室内空間を実現するため、壁には遮音性が高い部材を使用しています。窓ガラスには遮音性能T-2相当のサッシュを採用し、外音の低減に寄与しています。間仕切り壁の厚さは約9.5mmで、居室が水回りのパイプスペースと接する場合にはプラスターボードを二重に貼り、遮音性を高めています。また、住戸の戸境壁は厚さ約20〜22cmとし、住戸内の生活音を外に漏らさない、あるいは隣戸の生活音を極力遮断するように配慮されています。

床・天井

生活の中で起こる振動を吸収できるように床にはクッションゴムを装備した支持脚を設け、振動が原因の音を遮断するような二重床となっています。また、支持脚の下のコンクリートスラブの厚さは、遮音性を高めるため、約20〜22cmという数値を維持しています。天井部分も二重になっており、二重床と合わせて、将来、住戸内のリフォームやお手入れをする際に余計な費用と時間をかけることなく、比較的スムーズに施工できるようになっています。

防災設備

安全装置付きエレベーター

セキュリティエレベーター

※画像はイメージです。

地震の初期微動を感知すると、最寄階に自動停止する安全装置の付いたエレベーターが備わっています。停止後は停電灯が点灯して空間内の明るさを確保し、二次災害を避け、インターホンを使用して外部との連絡が取れるようになっています。

非常電源・電灯

ハーバーテラス品川では、地震などの災害時に非常用コンセント、消火栓、スプリンクラーポンプ、電動シャッターなどに非常用発電機から電力を供給する仕組みが備わっています。また、住戸内には大きな揺れを感知すると自動点灯する保安灯も採用し、コンセントから取り外せば懐中電灯としての使用も可能。さらに救助を求める際などに役立つブザー機能も有しています。マンション内の避難経路には非常用照明が配置され、安全に避難できるように配慮されています。

地震対策

地震による住戸内の家具の転倒を防ぐために、居室の壁には家具を固定できるような下地が施されており、家具の配置後にさまざまな転倒防止アイテムを壁にしっかりと固定できるようになっています。また、戸外への避難時、玄関扉がゆがんで出られないことを避けるために対震ドア枠を採用して、変形しても開閉ができるような作りになっています。洗面化粧台の三面鏡収納棚には、地震の揺れで扉が開いて物が散乱する、鏡が落ちて床に破片が飛び散るといった危険な状況を避けるため、耐震ラッチを設置して、落下防止策を講じています。

火災対策

防災火災

※画像はイメージです。

住戸内のもしもの火災の時にも被害を最小限にとどめ、住まう方の安全を確保できるように、火炎感知器やガス漏れ検知器、消火器や周辺に火災を知らせる自動火災報知設備などが設置されています。また11階以上の住戸には熱を感知すると散水するスプリンクラーも設置しています。出火原因となりやすいキッチンのガスコンロには、火が消えるとガスを自動遮断してくれる安全装置や消し忘れタイマーが備わっています。さらにコンロと魚焼きグリルには、一定時間が経過したのちにガスを止めてブザーで知らせ、揚げ物の過加熱による出火を防止する機能も備わっています。

防災リュックと防災備品

住戸の引き渡し時、災害用飲料水や長期保管が可能な食料、防塵マスクや軍手、サイレン付きラジオ、防寒効果のあるレスキューシートなどが入った防災リュックを渡しています。また、ハーバーテラス品川には、小型拡声器や救助用工具、スコップ、救急箱、充電機能付きラジオ、ロウソクといった防災備品も準備されています。地震災害時の初期は共助が重要となるため、その手助けとなるアイテムを常に備蓄しておくことで、住まう方のもしもの時の不安をカバーするように考えられています。さらに、1階共用部分の水栓は給水ポンプが停止しても水が使うことができるような仕組みになっています。

セキュリティ

S-GUARD

提携するセントラル警備保障株式会社が24時間オンライン体制で監視するセキュリティシステム、S-GUARDが導入されています。住戸内のガス漏れや火災、防犯センサーなどの異常を感知すると警備会社に通知され、警備員が現場に急行。人の目で安全性を確認し、場合によっては警察、消防に通報するなど、防犯対策の要となっています。

ダブルオートロックシステム

来訪者は、エントランス、エレベーター前のオートロックシステムを通過しなければ住戸玄関にはたどり着けません。オートロックシステムの2カ所にはカメラが設置され、住戸内のインターホンで来訪者を確認することができます。また、留守時に来訪者があったときには、録画機能で記録される仕組みになっています。

堅牢な作りの玄関

玄関扉には、パターンが1000億通りもある、複製が困難なプログレッシブシリンダーキーを採用し、プッシュプルハンドルの上下に配置するダブルロックシステムで防犯性能を高めています。またバールなどを用いて玄関扉をこじ開けようとする侵入者から守るために鎌デッドボルトを採用、工具を用いて不正解錠されないように防犯サムターンも設置しています。さらに、来訪者を確認できるドアスコープとドアガードも当然のごとく配備し、警報で侵入者を知らせる防犯センサーも設置されています。防犯センサーが異常を感知すると、住戸内のインターホンから警備会社に異常信号を発信する仕組みになっています。

防犯カメラ

防犯カメラ

※画像はイメージです。

いたずらや不審者の侵入を防ぎ、マンション内の安全を監視するために、共用部に防犯カメラを配置しています。映像は一定期間保存されるので、万が一の場合にも犯人の特定に役立ちます。

電動シャッター付き駐車場

住まう方の大切な愛車をお守りし、安全性と防犯性を高めるために、駐車場には専用リモコンで開けることができる電動シャッターを配置しています。通過後に自動で閉まるので、車に乗ったままでの出入りが可能です。

COMMON AREA 共用部

シンプルで必要十分な
サービスを用意

モノトーンを基調に作られたエントランスホールには静謐な時間が流れ、エントランスの外には落ち着いた風合いの植栽が潤いを与える共用部分があります。生活にまつわるさまざまなサポートも準備していて、暮らしに不自由さを感じさせない充実のサービスが待っています。

共用施設

エントランスホール

外壁から続く打放しのコンクリートの力強さに魅了されながら三層吹き抜けの風除室を進むと、ここでもモノトーンとバーティカルラインを基調とした、シンプルでスタイリッシュなエントランスホールが現れます。無駄なものを極力排除し、住戸へ続く空間は外界との橋。オンとオフの切り替えをするためのわずかな距離に静謐さが漂っています。エントランスホールは二層吹き抜けになっており、ホールを進むと高浜運河を見渡しながら来訪者との語らいもできるようなキャナルテラスが設計されています。

エントランス脇の植栽

ハーバーテラス品川 植栽
ハーバーテラス品川 植栽

理知的な外観とは対極でありながらも、そこに沿うようにしてデザインされた植栽がエントランス脇を飾ります。シマトネリコ、ローズマリー、ラベンダーなど、心を穏やかにする落ち着いた色彩の、周辺の景観とも調和するような植物が選定され、植えられています。運河沿いにはオリーブも植栽され、住まいを囲む緑の空間が設けられています。

サービス

ライフサポートサービス

カギ、水回り、ガラス、パソコン、電気関係のトラブルや困りごとには、24時間365日、電話1本でスタッフが駆けつけてくれるサービスを提供しています。また快適な生活をサポートするために、家事代行や不用品の引き取り、引越しやハウスクリーニング、家財の保管、消毒・害虫駆除などのサービスも用意して、住まう方の要求に応えられるようなシステムを構築しています。

宅配ボックス

不在時でも荷物の受け取りが可能な宅配ボックスを完備しています。受け取りは24時間いつでも可能です。不在時に荷物が届いたかどうかを住戸内のインターホンで確認することができます。

クリーニング・布団丸洗い保管サービス

住戸での洗濯が困難な大きな衣類や厚手のコートなどをクリーニングに出し、最大9カ月預けられるサービスを提供しています。また、衣替えの時期の布団の丸洗いにも保管サービスが用意されており、住戸内の収納量を減らすことなく、快適な生活を送ることができます。

ネットスーパー受取サービス

提携先のイオン、サミット、ダイエーのネットスーパーで購入した食料品などを住戸に届けてくれたり、不在時に宅配ボックスに届けてくれたりするネットスーパー受取サービスを用意しています。

靴修理サービス

靴の修理専門店ミスターミニットと提携した靴の修理サービスも用意しています。大事な外出の前にあらかじめ申し出ておけば、必要な時までに仕上げてくれ、足元の気品を損なうことなく出かけることができます。

FLOOR PLAN 間取り図一例

水辺を望むテラスの
採光を生かした住戸プラン

ハーバーテラス品川 間取り図例
ハーバーテラス品川 間取り図例
ハーバーテラス品川 間取り図例
ハーバーテラス品川 間取り図例

INSIDE THE ROOM 室内

数多のユーティリティを
兼ね備えた居室

室内仕様

テラスバルコニーの奥行きは最大で約2.8mあり、洗濯物を干す場所というだけでなく、庭やもう一つのリビングとして、景色を眺めながらリラックスできる空間が設計されています。中住戸ではバルコニーにトランクルームを設置し、テラス生活を楽しむアイテムやアウトドア用品を収納できるようになっていて、遊び心を大事にした作りになっています。

リビング・ダイニング

リビング・ダイニングはテラスバルコニーからの陽光で満たされる空間です。バルコニーさえもリビング・ダイニングの一部として考え、余裕のある外空間で光や風、カモメの鳴き声に癒されるというのもハーバーテラス品川ならではのシーン。床には温水を利用して足元から体、ひいては部屋全体を温める床暖房が完備されており、一年を通して快適な居住空間を実現しています。

キッチン

※画像はイメージです。

キッチン

白く美しい人工大理石が光るキッチンは、水はね音を軽減する静音シンクや、調理器具や食器、グラス類をすっきりと収められるスライド式収納が機能美を見せてくれます。ショット社製のガラストッププレートが美しい、調理欲を駆り立てられる3口ガスコンロに、家事の時短に役立つ食器洗い乾燥機も完備。対面フラットカウンターは会話を楽しみながら時間を共有できる設計となっていて、充実のキッチンライフを送れそうです。

パウダールーム

大きな三面鏡付き洗面化粧台が存在感を醸すパウダールームは、デザイン性と機能美を兼ね備えたステップ付き一体型洗面ボウル、ヘッドが引き出せてボウルの隅まで水を届けられるシングルレバー水栓、ヘルスメータースペースや必要なものをしっかりとしまうことができるリネン庫など、多彩な収納と機能がたくさん。三面鏡の裏側にはデンタルケア用品やヘアケア用品を十分に収納できる棚も配置されていて、パウダールームのすっきりとした見た目の維持に一役買っています。

バスルーム

ストレート型浴槽にスイッチひとつでお湯を張ることができるオートバスシステムを採用しているバスルーム。保温効果でお湯を冷めにくくするといった性能も持ち合わせています。床にはブラックストーンフロアを採用して水はけを良くさせ、乾きやすくしています。快適な空間をより一層楽しいものにするためにミュージックリモコンも完備し、音楽を聴きながら入浴を楽しむことができます。安定したお湯の供給のために24号給湯器を設置し、キッチン、パウダールーム、バスルームの3カ所でいつでも十分な量のお湯を使うことができます。また、作られたお湯を活用するTES方式の浴室暖房乾燥機が配置されているため、防カビ対策も万全です。

レストルーム

見た目がすっきりとして節水効果も期待できるタンクレストイレのかたわらには、おしゃれな手洗いカウンターを配置しています。温水洗浄機能が付いた便座は冬の冷たさを解消する暖房機能付きで、落ち着いて過ごせるレストルームとなっています。

設備

インターネット環境

高速インターネットサービスSUISUI Lite-Plusが引かれており、光ファイバーによる高速通信が可能です。また住戸内の各居室にLANを配置しているため、どこにいてもインターネットを利用することができます。また、BSデジタル放送やスカパー!などの多彩な番組・コンテンツを楽しめるメディア環境も整っています。

ユニバーサルデザイン

ハーバーテラス品川の住戸内には、住む人を選ばず、誰もが安全に、快適に過ごせる仕組みが散りばめられています。床はフルフラットに設計し、つまずきの原因となる段差を排除。思わぬ転倒をする可能性があるバスルームには、安全に考慮して手すりを設置したり、低床型ユニットバスを採用したりして、体に負担をかけずに、そして安全に入浴ができるように配慮されています。また、住戸内の照明には操作が簡単な大型のプレートスイッチを採用。玄関には「押す・引く」だけで開閉可能なプッシュプルドアハンドルが設置されています。エントランスホールの扉は荷物が多い時などに助かるダブルオープン式となっており、大きな荷物を抱えていても、車椅子であっても、スムーズに通ることができます。これらユニバーサルデザインの気の利いた配慮。生活の質を底上げしてくれる仕組みが満載です。

ACCESS アクセス

圧倒的なアクセシビリティを誇る
品川は空路も手中に

JR線、東海道新幹線、京急線が乗り入れる「品川」駅がハーバーテラス品川の最寄駅です。東西南北どこへでも圧倒的なアクセシビリティを持つ主要駅が至近にあり、京急線の利用で羽田空港からの空路も手中に収めています。

鉄道

五反田駅

五反田駅
五反田駅

JR山手線直通で約5分。

新橋駅

新橋駅
新橋駅

JR山手線または横須賀線直通で約5分。

渋谷駅

渋谷駅
渋谷駅

JR山手線直通で約13分。

大手町駅

大手町駅
大手町駅

JR山手線または横須賀線で「東京」駅降車後、約5分歩くと到着します。

新宿駅

新宿駅
新宿駅

JR山手線直通で約20分で到着します。

タクシー

タクシー

※画像はイメージです。

行き先 所要時間
「新橋」駅 約12分
「東京」駅 約14分
「五反田」駅 約14分
「大手町」駅 約16分
「羽田空港」駅 約20分
「渋谷」駅 約20分
「新宿」駅 約24分

バス

バス

※画像はイメージです。

最寄りの「浜路橋」バス停からは「品川」駅、「田町」駅、竹芝を結ぶ路線バスが運行しています。「品川」駅からの帰りなどにも利用でき、便利です。

空港

空港

※画像はイメージです。

羽田空港へのルート

京急本線「品川」駅から羽田空港第1・第2ターミナル駅行きの列車が出ており、乗車後、約14分で到着します。

成田空港へのルート

「品川」駅から京急線で成田空港駅行きの列車に乗車して約80分で到着します。JR線では、成田空港駅直通の特急成田エクスプレスがあり、こちらを利用すると約70分で到着します。

新幹線発着駅

「東京」駅へのルート

東京駅
東京駅

「品川」駅からJR横須賀線または上野東京ライン直通で約8分。

「品川」駅へのルート

品川駅
品川駅

ハーバーテラス品川から「品川」駅までは徒歩で約13分、タクシーでは約7分で到着します。

LIFE
INFORMATION 周辺の施設・店舗情報

買い物に不自由せず、
豊潤な緑量も確保

「品川」駅周辺にはアトレ品川や品川インターシティなどハイエンドな品物をそろえることができるショップがある一方で、日頃の食料品を気軽に買えるスーパーマーケットも点在しています。また、子どもが伸び伸び遊べる遊具を備えた公園や、高層ビルと緑の共演を楽しめる公園もあり、住み心地の良い周辺環境となっています。

商業施設、商店街

マルエツ プチ 港南シティタワー店
(徒歩4分/約270m)

マルエツ プチ 港南シティタワー店
マルエツ プチ 港南シティタワー店

日常の食料品が購入できるマルエツ プチは住まいから徒歩約4分です。夜遅くまで営業している店舗なので、時間をあまり気にせずお買い物ができます。食料品以外にちょっとした日用品も取りそろえていて、何かと重宝する店舗です。

アトレ品川(徒歩13分/約1000m)

アトレ品川
アトレ品川

ファッション、コスメ、アクセサリー、メガネ、時計などの店舗、ドラッグストア、スイーツ店やカフェ、レストランなどが集結しているアトレ品川。JR線の改札からは港南口方面に入り口があります。土日は特に来客数が多く、家族連れや外国人観光客で賑わいます。

クイーンズ伊勢丹 品川店
(徒歩13分/約1,000m)

クイーンズ伊勢丹 品川店
クイーンズ伊勢丹 品川店

「品川」駅直結のアトレ品川3階にクイーンズ伊勢丹があります。生鮮食品や酒類を取り扱い、青果や水産・畜産がお得に買える日などを設け、駅ビル内ではあるものの、生活に密着した企画を用意しています。毎月の特売イベントはホームページでカレンダーを掲載しており、実施日がわかりやすくなっています。

自然、公園

芝浦中央公園(徒歩9分/約650m)

芝浦中央公園
芝浦中央公園

芝浦中央公園は、複合施設・品川シーズンテラスの裏側にあります。豊かな緑に囲まれて散歩が楽しめ、綺麗なバラが出迎えるバラ園の奥にはバスケットゴールがある多目的広場やドッグランも併設されています。子どもたちが伸び伸び遊べそうな芝生広場には触り心地の良い木製の遊具があり、休日に家族で出かけても楽しめそうな公園です。

港南和楽公園(徒歩7分/約550m)

港南和楽公園
港南和楽公園

広い砂の広場に、滑り台やうんていなどの複合遊具、小さな子どもが楽しめそうなスプリング遊具もある港南和楽公園。トイレや水飲み場、ホッと一息つけるあずまやもあります。植栽されたグリーンは初春から花を咲かせ、大人から子どもまで来園する方々を楽しませています。

品川セントラルガーデン
(徒歩13分/約1,000m)

品川セントラルガーデン
品川セントラルガーデン

「品川」駅の東側、南北に広がる品川セントラルガーデンには、高木が約290本植栽されています。この高木がビル風を緩和し、スカイウェイからの眺めはまるで森。ガーデン内にはベンチや、品川の自然をテーマにした造形物もあります。春には可憐な桜が季節を教えてくれ、冬にはイルミネーションが美しく輝きます。

暮らし、インフラ

「品川」駅(徒歩12分/約940m)

JR線、東海道新幹線、京急線が乗り入れる「品川」駅。駅周辺には商業施設がありますが、エキナカのエキュートでもお惣菜やお弁当を販売しています。住まいに近いのは港南口で、反対側の高輪口には自由通路を通って行くことができます。駅周辺に有名企業のオフィスビル街があることから、平日・休日を問わず利用客が多く、混雑しています。

芝浦港南地区総合支所(徒歩27分/約2,100m)

芝浦港南地区総合支所
芝浦港南地区総合支所

役所関係の手続きの際には、遠方の港区役所よりも、JR線「田町」駅至近のみなとパーク芝浦内の、木でデザインされた壁が美しい芝浦港南地区総合支所を利用するのが便利です。ホームページでは芝浦港南地区の魅力を発信したり、暮らしに役立つ情報を掲載したりしています。また、港区ではSNSでも区民に向けた情報発信をしています。

都道480号線(徒歩2分/約150m)

都道480号線
都道480号線

住まいの南側約150mにある片側3車線の大きな通りは都道480号線(品川埠頭線)です。「品川」駅までは一本道で行くことができ、港南大橋を渡るときには東京湾景も楽しむことができます。

幼稚園、保育園、学校

たかはま保育園(徒歩6分/約450m)

たかはま保育園
たかはま保育園

こうなん保育園(徒歩8分/約600m)

こうなん保育園
こうなん保育園

港南幼稚園(徒歩9分/約650m)

港南幼稚園
港南幼稚園

港区立港南小学校(徒歩10分/約750m)

港区立港南小学校
港区立港南小学校

港区立港南中学校(徒歩5分/約400m)

港区立港南中学校
港区立港南中学校

イベント、お祭り

港南3丁目合同まつり

港南3丁目遊び場を会場として、9月上旬に港南3丁目合同まつりが行われています。自治会、マンション管理組合、企業などが協働して作り上げており、港南中学校の生徒の熱演や数々の模擬店が楽しめます。

まとめ

水辺のスタイリッシュな
城で楽しむスマートな生活

品川に住むというステータスに、水景のすがすがしさと、居室内の快適さを付与してくれるハーバーテラス品川。ビジネスに、レジャーに、どこへ行くにもアクセスが良好で、都心の生活をよりスタイリッシュに、よりスマートに彩ってくれることでしょう。ユーティリティに囲まれたテラスバルコニーからの眺めは、日々の生活に豊かなひとときをもたらします。毎日目にする景色だからこそ、自然と心に刻まれる風景となるでしょう。

ハーバーテラス品川

駅徒歩 不動産の表示に関する公正競争規約の改正(2022年9月1日)により、交通利便情報が販売中のものと異なる場合がございます。

山手線「品川」駅 徒歩13分

築年月

2015年1月

総戸数

55戸

階数

地上15階