野村不動産 プラウド日本橋三越前 Concept 三越前駅から徒歩6分、昭和通りと人形町通りの間の日本橋堀留町1丁目、天然石を用いて門柱のように設えた重厚なメインエントランス、日本橋の伝統と先進性を表現した都市型マンション。

プラウド日本橋三越前

三越前駅 徒歩6分、新日本橋駅 徒歩4分、16駅23路線利用可能

両面接道、半数の南向き住戸

地上12階、総戸数88戸の都市型マンション

2025.02.07 公開

LOCATION ロケーション

400年の歴史と
未来の発展に満ちた
日本橋ブランドの真骨頂

プラウド日本橋三越前 外観
プラウド日本橋三越前 外観

江戸開府以来、商業・経済の街として日本を先導し、新たな流行と豊かな文化を築き上げてきた街、日本橋三越前。日本の中心、東京の中心としての価値を感じさせるレジデンスが、プラウド日本橋三越前です。伝統を感じさせる老舗百貨店や名店が至る所に顔を見せる、かつての城下町。歴史を受け継ぎながらも、再開発により新たな一面が垣間見える魅力的なスポットにそれは在ります。重厚で洗練されたエントランスラウンジは、居住者や来訪者が落ち着ける空間。また、両面接道の特徴を活かし、建物の中央に内廊下が設置され美しく高品質なカーペットが敷かれた空間はホテルライクな上質さに溢れています。
16駅23路線利用可能という利便性に加え、商業施設や子ども連れで楽しめるスポットも豊富。都心の利便性を享受しながら、子育てしやすい街としても知られています。
新旧が共存する「日本橋」に佇む、理想のプライベートスペースが、ここにあります。

日本橋三越本店
日本橋三越本店

日本橋から北に広がる街・三越前は、両替商が多かった江戸時代の名残から現在も金融機関が集中している場所。日本銀行を始め、大手銀行、地方銀行の支店や製薬会社なども多く見られます。日本橋を南北に貫くメインストリート、中央通り沿いで威風堂々たる姿を見せるのが、日本の百貨店を代表する日本橋三越本館です。ルネサンス式建築の大建造物は、2016年に本館が国の重要文化財に指定され、三越の守護神とも言われるライオン像は待ち合わせの目印として愛されています。

また、本館6階には、歌舞伎や演劇等が催される三越劇場、屋上には三囲神社(みめぐりじんじゃ)が鎮座し、ショッピングだけでなく、幅広い世代の方々が楽しめる場所として、街の象徴的な役割を担っています。

COREDO室町テラス
COREDO室町テラス

歴史を感じさせる街として印象深い三越前ですが、近年、活発な再開発により新しく洗練されたスポットも続々誕生しています。コレド室町は「日本を賑わす、日本橋」をコンセプトに、飲食、物販店舗を集積させた商業ゾーンと、日本橋地域最大級の「日本橋三井ホール」から構成された話題の商業施設。江戸時代から続く老舗から、最新シネマ音響を導入した映画館、日本初進出となる台湾の大型セレクトショップも誕生するなど、日本の風土や伝統と最先端が共存し、賑わっています。

小網神社
小網神社

オフィスや老舗、気鋭の商業施設が並ぶ三越前ですが、プラウド日本橋三越前から少し足を伸ばすと、ポツンと存在する古式ゆかしい木造社殿があります。全国から人が押し寄せ、平日でも行列ができるほど人気なのが小網神社です。第二次世界大戦では、社殿や神楽殿が奇跡的に空襲を逃れ、この神社のお守りを携えて出征した兵士が全員生還できたという、都内屈指のパワースポット。厄除けや金運、強運のご利益があると言われ、日々多くの参拝客の姿が見られます。

FEATURES 建物の特徴

意匠と機能に満ちた
都心邸宅の新たな上質空間

プラウド日本橋三越前 アプローチ
プラウド日本橋三越前 アプローチ

天然石とタイルを使用し、黄土色を基調としたプラウド日本橋三越前の外観からは、風格と静謐さが感じられます。

コンセプト・デザイン

プラウド日本橋三越前 エントランス
プラウド日本橋三越前 エントランス

プラウド日本橋三越前のアプローチには植栽が綺麗に施され、天然石を用いたエントランスホールは高級ホテルのような空気が漂っています。重厚さと経年美をもたらす天然石を、門柱のように設えたメインエントランスは、日本橋の美しさと華やかさが感じられます。天然石の自然の凹凸を活かした熟練職人の手による割肌仕上げが、訪れる方を丁寧にお出迎え。また、左右に伸びる庇照明は、老舗の欄間看板がモチーフ。伝統美と洗練された印象を描き出しています。素材に石とレザーを使用したラウンジや、フロストガラスの障子壁に包まれた空間が重厚なアプローチを演出するエントランスも見逃せないポイント。
エントランスホールを抜けると、伝統的な素材・江戸ちりめんをあしらったモダンでトラディショナルな江戸光壁が空間を優雅に照らし、邸宅への期待を高めるラウンジスペースへ。空気の変化を楽しみながら、光と素材の魅惑の印象で客人を迎える演出が施されています。

建物構造

地盤調査結果により、地盤の奥深くにある支持層「江戸川層下部層」まで既成コンクリート杭を打ち込む、杭基礎を採用しています。
また、三井住友建設のSuKKiT-W (スキットダブル)構法により、採光性に優れ、すっきりとした室内空間も実現しています。

防災設備

共用部には、もしもの時のための防災備蓄倉庫があり、ポリタンクやLEDランタン、救急箱、ラジオやヘルメット等(備品の一部)が備えられています。

セキュリティ

セコムと提携している24時間のセキュリティシステム「アーバント」。各住戸に設置された24時間稼働の各種センサーにより、異常のキャッチや非常押しボタンが作動すると、管理事務室内の総合監視盤を通じて「セコムコントロールセンター」および「野村住まいるセンター」に自動通報されます。万一の場合には関係機関にも緊急連絡。また、給排水設備、電気設備など共用部の異常警報を24時間オンラインで監視を行い、故障時には専門技術者などが即時に対応します。

各住戸の玄関ドアは約1,000億通りのキーバターンを持つ「プログレッシブシリンダーキー」を採用。複製しづらく、耐ピッキング性能もあり、リバーシブルタイプなので操作も簡単です。駐車場入口にはリモコンで操作できる「リモコン式リングシャッターゲート」が設置され、セキュリティ面でも安心です。

オートロック機能により、メインエントランスの来訪者を各住戸内のカラーモニター付インターホンで確認後、オートロックを解錠。音声と画像で確認できる防犯性の高いシステムを採用しています。玄関ドアのこじ開けを困難にし、防犯性能の高い「鎌デッド錠」を採用。デッドボルトの鎌部が枠に引っかかり、犯罪から守ってくれます。また、敷地内への不審者侵入などを録画する防犯カメラを敷地内の複数箇所に設置しています

COMMON AREA 共用部

光と素材で
演出された空間、
抜かりのない安心の設備

共用施設

プラウド日本橋三越前のエントランスホールを抜けると見えてくるのが、光と素材の演出が施されたエントランスラウンジ。
ゆったりとしたラウンジ空間は、江戸ちりめんをあしらった光壁が訪問者を優雅に迎えます。その正面には石とレザーを基調とし、静かで品がありながら、厳かな佇まいを感じさせるラウンジスペースを配しています。

各住戸までのアプローチは内廊下を採用。ホテルのような上質な雰囲気で、共用廊下が外部に面していないため、セキュリティの上でも安心です。
また、共用施設としては、駐車場、駐輪場、ミニバイク置き場なども完備されています。

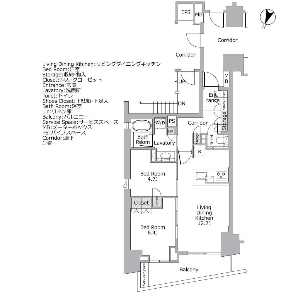
FLOOR PLAN 間取り図一例

日本橋の陽光が心地よい
美意識となって
住まいを包む

プラウド日本橋三越前 間取り図例
プラウド日本橋三越前 間取り図例
プラウド日本橋三越前 間取り図例
プラウド日本橋三越前 間取り図例

間取りは1LDK~3LDK+Nでシングルからファミリータイプまで揃っており、家族構成やご自身のライフスタイルなどに応じた幅広いニーズに対応しています。プラウド日本橋三越前の立地は、大通りから一歩入った、南側が一方通行の約11m幅の道路に面した敷地。この敷地形状を活かし、半数の南向き住戸を実現しました。

INSIDE THE ROOM 室内

日本橋アドレスに
相応しい、
凝縮された
質の高い
プライベート
スペース

質感や素材など、細部までこだわった高級感あふれるデザイン内装が、贅沢な時間を生み出してくれます。

室内仕様

日本橋三越前の上品さと華やかさを住まいに取り込んだような空間は、穏やかな人生を満たすプライベートスペースと言っても過言ではありません。玄関、廊下の床は本磨き仕上げの天然石を採用し、その輝きは邸宅の入口に上質な風格をもたらしています。

フローリングは天然木の木目を活かしたナチュラルな意匠。時が経つにつれ、違った趣きを見せ、深みのある風合いへと変わっていきます。キッチンカウンターのトップには、天然石を採用。重厚な質感が味わいとなって日常を潤してくれます。

節水効果が期待でき、高温洗浄で油汚れもきれいに落とせる食器洗い乾燥機や、気になる生ごみを簡単に処理できるディスポーザー、ビルトイン浄水器を完備。浴室には、微粒子の霧と蒸気が満たすミストサウナ機能を備えた浴室暖房乾燥機を設置。肌を潤し、リラックス効果も期待できます。衣類脱臭機能、カビ抑制機能も搭載されており、日常をサポートします。スタイリッシュな機能性と細部にまでこだわった品と質で、プライベート空間を快適で優雅な時間で包み込んでくれます。

ACCESS アクセス

16駅23路線利用可の
比類のないマルチアクセス性

活気に溢れる中央通りからほどよく距離をおいた場所に佇むプラウド日本橋三越前。落ち着いた環境ながら、「東京」駅までは1.2km圏内で16駅23路線の利用が可能という、圧倒的な利便を実現した都心立地となっています。

鉄道

最寄りの総武本線 「新日本橋」駅から都内の主要なスポットへは、以下の乗車時間で到着できます。

「東京」駅へ

JR中央・総武線「新日本橋」駅から「東京」駅まで所要時間は直通で約3分です。

「錦糸町」駅へ

JR中央・総武線「新日本橋」駅から「錦糸町」駅まで所要時間は直通で約6分です。

「秋葉原」駅へ

JR「神田」駅まで徒歩で移動し、「秋葉原」駅まで所要時間は約9分です。

「御茶ノ水」駅へ

JR「神田」駅まで徒歩で移動し、JR中央線を利用して「御茶ノ水」駅まで所要時間は約10分です。

「上野」駅へ

JR「神田」駅まで徒歩で移動し、JR京浜東北線を利用して「御茶ノ水」駅まで所要時間は約12分です。

タクシー

タクシー

※画像はイメージです。

交通状況により変動しますが、目安となる所要時間は、

「秋葉原」駅まで約6分、「大手町」駅まで約7分、「東京」駅まで約8分、「上野」駅まで約8分、「御茶ノ水」駅まで約10分、「錦糸町」駅まで約12分、「羽田空港」駅まで約24分となります。

バス

バス

※画像はイメージです。

プラウド日本橋三越前から徒歩約2分のところに、コミュニティバス(江戸バス)の「日本橋保健センター」バス停があります。
区の中心にある中央区役所から、北側を右回りで1周約70分かけて巡るこのバスは、「小伝馬町」駅や、「人形町」駅へも楽にアクセスできます。

空港

空港

※画像はイメージです。

羽田空港へのルート

電車でのアクセスは、JR総武線「新日本橋」駅から「東京」駅で降車不要の横須賀線を利用し、「品川」駅へ。京急本線急行に乗り換えた場合、「羽田空港第1・第2ターミナル」駅まで乗車時間は約35分です。
リムジンバスでは、東京駅八重洲北口(鉃鋼ビル)から羽田空港行きのリムジンバスが運行されています。羽田空港までのリムジンバスの所要時間は約40分となります。

成田空港へのルート

電車でのアクセスは、JR総武線「新日本橋」駅から、「東京」駅へ。JR特急成田エクスプレスに乗り換え、乗車時間約58分で行くことができます。
リムジンバスでは、東京シティエアターミナルから成田空港行きのリムジンバスが運行されています。成田空港までのリムジンバスの所要時間は約62分となります。

新幹線発着駅

「東京」駅へのルート

JR総武線「新日本橋」駅からJR中央・総武線を利用し、直通で約3分。タクシーでは「東京」駅まで約8分で行くことができます。

「品川」駅へのルート

JR総武線「新日本橋」駅からJR総武線快速を利用し、約13分で行くことができます。

LIFE
INFORMATION 周辺の施設・店舗情報

安全性と利便性を誇る、
美しい都市景観のある環境

魅力あふれる都心3区の一角、中央区の中でも「三越前」駅付近は世紀を超えて再開発が続く場所でもあります。多彩なショップや利便性、子育てのしやすさなど、未来への発展が続く将来性も、街の大きな強み。多彩な顔を持つ東京の中心が、人生の新たな旅路を後押ししてくれます。

商業施設、商店街

まいばすけっと日本橋堀留町1丁目店
(徒歩5分/約350m)

まいばすけっと日本橋堀留町1丁目店
まいばすけっと日本橋堀留町1丁目店

プラウド日本橋三越前の南側、中央区立堀留児童公園のそばに地域の冷蔵庫のようなスーパー、まいばすけっと日本橋堀留町1丁目店があります。お惣菜やお得なお弁当が人気で、お酒とタバコも扱っており、朝8時から夜10時までの営業です。

成城石井小伝馬町店(徒歩4分/約290m)

成城石井小伝馬町店
成城石井小伝馬町店

日本、世界のお酒や食品が揃うワンランク上のスーパーマーケット。プラウド日本橋三越前からも気軽に立ち寄れる距離にあるので、毎日の食卓を輝かせてくれます。

デイリ-ヤマザキ日本橋堀留町店
(徒歩3分/約190m)

プラウド日本橋三越前から南に進み、徒歩約2分の場所にデイリ-ヤマザキ日本橋堀留町店があります。夜遅い時間の買い物にも便利で、近くには公園もあり、近所の方々に重宝されているコンビニエンスストアです。

マルエツプチ日本橋本町店
(徒歩5分/約400m)

マルエツプチ日本橋本町店
マルエツプチ日本橋本町店

日常生活に欠かせない食材から日用品まで揃う、身近な都市型スーパーマーケット。ビジネス街で働くオフィスワーカーのオアシスとしても人気です。

コレド室町(徒歩7分/約550m)

コレド室町
コレド室町

歴史ある老舗の名店から、人気有名店の新業態など多彩な店舗と美味が集結した複合商業施設です。コレド室町2には日本橋初のシネマコンプレックスもあるなど、一日中巡っても楽しいスポットになっています。

自然、公園

中央区立堀留児童公園(徒歩4分/約300m)

中央区立堀留児童公園
中央区立堀留児童公園

2023年にリニューアルされ、幼児向けの遊具も一新した堀留児童公園は、ちびっこから小学生まで子どもたちで賑わっている地元民に人気の公園です。滑り台がたくさんついたコンビネーション遊具やブランコなどがあり、子どもたちが思いっきり走り回って遊べるスペースも。また、かつてこの地に流れていた東堀留川の歴史を継承し、川を模した水路も設置され、多くの人の憩いの場となっています。

十思公園(徒歩5分/約350m)

十思公園
十思公園

プラウド日本橋三越前から北に4分ほど歩いた距離に、落ち着いた雰囲気の十思公園があります。ブランコなどで遊ぶ子どもたちも多く、のんびりとした時間を過ごすことのできるスポットとして親しまれています。

福徳の森(徒歩7分/約500m)

福徳神社
福徳神社

プラウド日本橋三越前から西に向かい、コレド室町の近くにあるのが、日本橋の交流拠点でもある広場「福徳の森」です。約1000平方メートルの敷地では緑や自然の草花が鮮やかな色彩を奏で、お散歩コースにも最適なスポットとなっています。近くには商売繁盛や勝負事などにご利益のある福徳神社もあり、多くの参拝客で賑わっています。

暮らし、インフラ

中央区立日本橋図書館(徒歩9分/約650m)

中央区立日本橋図書館
中央区立日本橋図書館

日本橋小学校との複合施設で、日本橋図書館は6〜7階で開館しています。 6階が児童フロアで児童書や絵本のほか、子育てに関する本も所蔵しています。7階の一般開架フロアには重点分野の図書を集めた「ビジネス」、「日本橋」、「暮らし」を設けています。そのほか、新聞・雑誌やCDも所蔵しています。

どらっぐぱぱす新人形町店
(徒歩5分/約400m)

どらっぐぱぱす新人形町店
どらっぐぱぱす新人形町店

健康食品、日用消耗品から食品まで取り揃えているドラッグストア。年中無休で夜10時まで営業なのも嬉しい。

日本橋人形町消化器・内視鏡クリニック
(徒歩3分/約240m)

高性能の最新機器による検査と、がん専門病院での経験を持つ内視鏡専門医の丁寧な診察で多くの方に愛されているクリニックです。早朝、土曜、日曜も胃カメラ検査が可能。

小伝馬歯科・矯正歯科(徒歩3分/約210m)

小伝馬歯科・矯正歯科は、幅広い歯科診療に対応しており、治療ごとに経験豊富な専門のドクターが大学病院レベルの質の高い治療を提供しています。また、治療した方のお口の健康を生涯安定させるために、定期的なメンテナンスにも力を入れている歯科医院です。

三井記念美術館(徒歩8分/約600m)

三井記念美術館
三井記念美術館

江戸時代以来350年の歴史をもつ三井家が収集した日本・東洋の優れた美術品を収蔵し、展示してきた「三井文庫別館」が日本橋に移転。2005年に開設した美術館です。
中央通り沿いに面した三井本館の7階にある私立美術館には、茶道具類の国宝や重要文化財を始め、円山応挙の代表作 国宝「雪松図屏風」などの絵画作品も。
また、刀剣類、日本最古の墓誌、世界的な切手コレクション約13万点も所蔵しています。

幼稚園、保育園、学校

中央区立堀留町保育園(徒歩3分/約240m)

中央区立十思保育園(徒歩5分/約400m)

中央区立常盤小学校(徒歩11分/約850m)

東京都立一橋高校(徒歩13分/約1,000m)

イベント、お祭り

春の名橋「日本橋」まつり

「日本橋」の誕生日(4月3日)を祝い、毎年、老舗の人気商品や名産品の販売が行われるグルメイベントです。

日本橋・京橋まつり

五街道の起点でもある「日本橋」で、昭和47年に国道完成記念としてパレードが開催されました。以降、毎年10月に中央区観光商業まつりの協賛事業として行われているのが「日本橋・京橋まつり」です。全国各地の伝統的な祭りや踊りが集結し、日本橋を華やかに彩ります。

日本橋 べったら市

毎年10月19日20日の2日間、日比谷線の「小伝馬町」駅から「人形町」駅までのエリアに約400の露店が並ぶ、「べったら市」。
東京都の名物「べったら漬け」が販売されるこのお祭りは、日本橋にある2つの神社の例大祭でもあります。

まとめ

東京の中心ならではの
豊かさを感じられる街で
未来を過ごす

多彩な顔を持つ東京の中心で、誇り高き日本橋アドレスを受け継ぎ、次世代へ繋いで行く。
新しい暮らしのスタート地点は、進化を遂げる歴史ある街にあるのかもしれません。

プラウド日本橋三越前

駅徒歩 不動産の表示に関する公正競争規約の改正(2022年9月1日)により、交通利便情報が販売中のものと異なる場合がございます。

総武本線
「新日本橋」駅 徒歩4分

築年月

2016年8月

総戸数

88戸

階数

地上12階 地下1階