丸紅|モリモト グランスイート神楽坂
ピアース
Concept 神楽坂の丘の上、牛込中央通り沿い、矢来町。南北に分かれた二つの敷地にノースヒルズ、サウスヒルズの2棟構成、ベージュ系タイルの落ち着きある佇まいの都市型マンション

グランスイート神楽坂ピアース 外観

神楽坂の坂上、高台立地のツインレジデンス

東京メトロ東西線「神楽坂」駅 徒歩3分

地上10階、総戸数118戸

2025.01.17 公開

LOCATION ロケーション

大きな通りに挟まれた高台
街の賑わいを堪能できる
エリア

グランスイート神楽坂ピアースは、新宿区矢来町に位置している2棟で構成されたマンションです。最寄り駅は徒歩3分の東京メトロ東西線「神楽坂」駅となっており、由緒ある料亭などが残る情緒あふれるエリアです。また、都営大江戸線「牛込神楽坂」駅も徒歩6分のところにあり、新宿方面や大手町方面へ気軽に移動できるなど、都心部へのアクセスも良好です。

神楽坂
神楽坂

2棟とも牛込中央通り沿いにあり、近くにはおしゃれな料理店が並ぶなど、ちょっとしたお出かけでも楽しみやすい立地になっています。また、神楽坂方面へ出ると多くの人で賑わっており、おしゃれなカフェなどが並ぶ繁華街となります。江戸時代から武家地や寺町として賑わっていたこともあり、下町の風情も感じられます。週末のお出かけとしても充分に楽しめて、歩いているだけでも明るい気持ちになれるエリアです。

また、マンションのアドレスになっている矢来町も、やはり江戸時代からの歴史がある高台の住宅街とされています。大老酒井忠勝の屋敷跡地の一画にマンションが建っており、ほかのエリアでは得難いステータスを感じられます。

グランスイート神楽坂ピアースは大久保通りと早稲田通りの間に位置していることもあり、どちらの大通りにも行きやすいというのも大きな利点。公園や教育機関、行政機関なども近隣にあり、快適に生活できる地域と言えるでしょう。

FEATURES 建物の特徴

閑静な街に調和した
シンプルで風格がある
ファサード

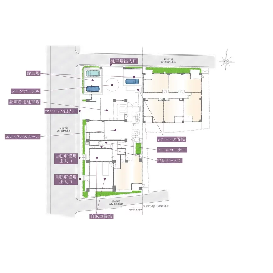
敷地配置図
敷地配置図

コンセプト・デザイン

グランスイート神楽坂ピアース
グランスイート神楽坂ピアース
グランスイート神楽坂ピアース エントランス
グランスイート神楽坂ピアース エントランス

グランスイート神楽坂ピアースは、2016年1月に竣工。サウスヒルズとノースヒルズの2棟で構成されている、どちらも地上10階建てのツインレジデンスです。総戸数は2棟合わせて118戸となっています。

坂道が多い神楽坂エリアのなかでも、グランスイート神楽坂ピアースは高台に位置しており、通風性や採光性なども良好。そして神楽坂という伝統的なエリアになじむように、決して華美にならず洗練されたデザインを施しています。外観はベージュ系のタイル貼りでまとめ、堂々とした風格を体現しています。閑静な住宅地にふさわしい、品のある色調が来訪者を迎え入れます。

グランスイート神楽坂ピアース(サウスヒルズアプローチ)
グランスイート神楽坂ピアース(サウスヒルズアプローチ)

エントランスは、ライムストーンを壁一体に張り巡らせるという、大胆ながら穏やかな風合いをした空間を演出。外構にはバランスよく緑を配備しており、こうした環境とも調和した自然な雰囲気を醸し出しています。

高い美意識のもとで設計されたことがよくわかる、洗練さが表現されたデザインに仕上がっています。

グランスイート神楽坂ピアース(ノースヒルズエントランス)
グランスイート神楽坂ピアース(ノースヒルズエントランス)

建物構造

建物は鉄筋コンクリート造で、耐震構造も取り入れています。耐震性に優れており、大きな揺れにも対応できる構造となっています。このほかにも、耐火性や快適に過ごすための気密性、遮音性にも配慮しており、居住者の安全性を考えた設計になっています。

住戸のガラスには、断熱性や遮熱性にすぐれたLow-E複層ガラスを採用しています。ガラスとガラスの間に空間をもたせることで熱が出入りするのを防ぐので、冷暖房の効率が上がってお部屋で快適に過ごせます。結露も発生しにくくなり、カーテンや窓枠を汚れから守ります。また、CO2の排出量も抑えられる、環境にもやさしい設備です。

防災設備

火災報知器

防災 火災

※画像はイメージです。

天井に取り付けられた火災報知器が火災などによって熱を感知すると、インターホンや出火階、直下階の住戸に警報が発せられます。また、管理事務所および警備会社にも通知され、迅速に対応する体制が整っています。

セキュリティ

リングシャッター付駐車場

駐車場の出入口にはリングシャッターを付けており、盗難やいたずらを防ぎます。出入りするときは車内からリモコン操作で開閉できます。居住者の愛車を守るためのセキュリティに力を入れています。

非接触キー

オートロックは、センサーにキーをかざすだけで解除できます。手荷物があってもスムーズに移動できます。

TVモニター付インターホン

来訪者がエントランスに来ると、居室からインターホンで確認できます。画像はカラーなのでお顔などもしっかり判別できます。

住戸前玄関カメラ

エントランスだけでなく、玄関前でも訪問者を確認できるシステムです。複数のセキュリティによって安全性をさらに向上させています。

玄関ドアの防犯機能

玄関ドアは防犯性が高いものとして、CPマークの認定を受けています。ダブルロックの設計で防犯に配慮し、防犯サムターンや鎌式デッドボルト、ドアアイカバーなども採用しています。

防犯センサー

玄関扉と窓に設置しており、異常を感知すると警報音が鳴り響きます。また、自動的に警備会社にも通知されるので、お出かけの際も安心です。

防犯カメラ

共用部の要所に防犯カメラを設置しています。映像はデジタルレコーダーに保存され、後から確認することもできます。

COMMON AREA 共用部

ホテルのような
上質さを演出
プライバシーへの配慮も

共用施設

エントランスホール

エントランスと同じライムストーンを壁面に施しており、統一感が表れています。奥行きがあって、広々とした空間には静謐さも感じられます。上質なソファを配置し、来訪者や居住者とじっくり語らうことができます。

宅配ロッカー

24時間受け取りが可能な宅配ロッカーです。お帰りが遅い方でも安心して荷物を確認できます。

アルコーブ

各住戸の玄関前は、独立性を確保するためのアルコーブが設けられています。アルコーブとは、壁の一部をくぼませて生まれるスペースです。独立性が高まるとともに、外部からの視線が遮断されてプライバシーも守ります。

ペット足洗い場

飼育細則はありますが、ペットを飼うことも可能です。お散歩に連れて行ったときのために、足洗い場が設けられています。こちらでペットの足を洗い、きれいになってもらってからマンションへ戻ることができます。

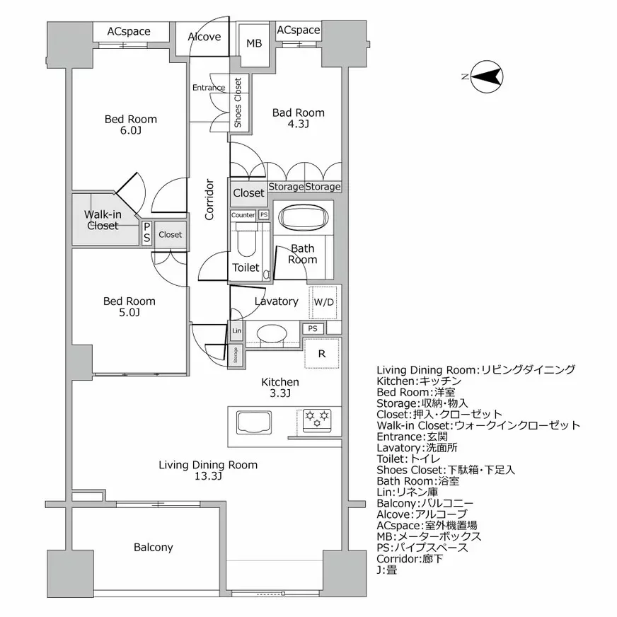
FLOOR PLAN 間取り図一例

自由に室内を彩れる
13.3帖を確保したリビング

クランスイート神楽坂ピアース 間取り図例
クランスイート神楽坂ピアース 間取り図例

INSIDE THE ROOM 室内

機能性とデザイン性が高く
住み心地を追求した
良質な空間

玄関

住戸の入口からホテルライクな雰囲気を作り出しており、帰宅とともにホッとした気持ちになれます。土間と廊下の段差が低く、楽に上がれるのも大きなメリット。壁や床は明るめの色調を採用し、疲れていても気分を晴れやかにしてくれます。

リビングルーム

帰宅後やお休みの日に優雅に過ごせる、上質な空間に仕上げました。朝は光がたっぷり差し込み、爽やかな一日を送ることができます。TES温水式床暖房を設置しており、足元からしっかり暖まって快適に生活を送れます。

キッチン

システムキッチン収納

※画像はイメージです。

独立性が高く、調理に集中できる機能的なキッチンです。天板には天然石を使っており、上質な光沢感を放ちます。美しく見せるだけでなく、清掃性にも配慮しています。また、水がはねる音などを抑えた静音ワイドシンクや、生ゴミを溜めず簡単に処理できるディスポーザーなどをシステムキッチンに配備。静かに閉められるソフトクローズ機能がついた引出収納や、食器洗浄乾燥機も付いています。このほか、高級感のあるステンレス製のレンジフードや、美的なフォルムが目を引くグローエ社のキッチン水栓などを採用しており、スムーズに料理ができる環境を整えています。

ベッドルーム

落ち着いた色合いでまとめたプライベートな空間は、趣味や仕事をするのに適しています。読書に没頭するなど、この部屋での過ごし方を自由に設計できます。また、ウォークインクローゼットを設置している寝室もあり、お洋服選びにもじっくり時間をかけられます。

バスルーム

ホワイトを基調にした、開放感が広がる清潔なバスルームです。浴室壁は石調タイル貼りになっており、浴室にも気品がもたらされます。天井に設置された浴室暖房乾燥機は、雨の日でも洗濯物を乾かすことができ、暖房効果でバスルーム内を暖かくすることもできます。また、ミストサウナの機能も付いており、負担をかけずに全身を洗い流せます。さらに、シャワーヘッドはマッサージ機能付き。浴槽は断熱性能が高く保温機能に優れており、お湯が冷めにくい設計になっています。機能とデザインにこだわったバスルームで、一日の疲れを癒やすことができます。

洗面台

デザイン性が高く、広々としたスペースを感じさせます。洗面台の天板は天然石が使われており、水回りにも気品が漂います。大きな三面鏡の内側は収納スペースとなっており、化粧品などをまとめられて便利です。洗面ボウルは陶器製で、スタイリッシュに見せるスクエアな形状に仕上がっています。また、洗面用の水栓は機能性・デザイン性に富んだグローエ社製の混合水栓。スクエアな洗面ボウルと相まってホテルライクな雰囲気を醸し出します。

トイレ

トイレはタンクレスのものを採用しており、空間がすっきりとして開放感があります。また、節水トイレなので環境にやさしく経済的です。手洗いカウンターには使いやすい手洗いボウルと天然石を使用。落ち着いた色合いの組み合わせで、清潔感を高めてくれます。また、サニタリー用品などを収納できる吊戸棚も設置しており、トイレ内のスペースを効果的に利用しています。

その他のポイント

電源コンセントのほかにLAN用端子、テレビアンテナ端子、電話端子を一体化した、マルチメディアコンセントを全居室に標準として配備しています。テレビやパソコンなど、設置場所が限定されにくくなります。

ACCESS アクセス

2駅が徒歩数分の距離に
東西に移動しやすい
アクセス

グランスイート神楽坂ピアースの最寄り駅は東京メトロ東西線「神楽坂」駅で、徒歩3分の距離にあります。さらに、「神楽坂」駅と反対方向の南側には、徒歩6分の距離に都営大江戸線「牛込神楽坂」駅が位置しています。2駅2路線が徒歩圏内にあり、利便性が高いアクセスと言えるでしょう。西側の新宿方面や東側の東京方面に出やすく、ビジネスとプライベートの両方で気軽に移動できます。

鉄道

「飯田橋」駅まで

東西線飯田橋駅
東西線飯田橋駅

最寄り駅の東京メトロ東西線「神楽坂」駅から1駅で到着します。所要時間は約2分で、多くの路線が乗り入れるハブ駅へすぐに向かえます。

「六本木」駅まで

大江戸線六本木駅
大江戸線六本木駅

最寄り駅の東京メトロ東西線「神楽坂」駅から「九段下」駅へ行き、東京メトロ半蔵門線に乗り換えて「青山一丁目」駅へ。さらに都営大江戸線に乗り換えて到着します。乗車時間は約13分です。

「渋谷」駅まで

半蔵門線渋谷駅
半蔵門線渋谷駅

東西線「神楽坂」駅から「九段下」駅へ。東京メトロ半蔵門線に乗り換えて「渋谷」駅に着きます。乗車時間は約16分です。

「銀座」駅まで

銀座線銀座駅
銀座線銀座駅

「神楽坂」駅から東西線で「日本橋」駅へ行き、東京メトロ銀座線に乗り換えて「銀座」駅に着きます。乗車時間は約12分です。

「新宿」駅まで

大江戸線新宿駅
大江戸線新宿駅

「牛込神楽坂」駅から都営大江戸線で「都庁前」駅へ。同じ都営大江戸線の六本木・大門方面に乗り換えて「新宿」駅に到着します。乗車時間は約13分です。
また、乗り換えのないルートとして「牛込神楽坂」駅から都営大江戸線で「新宿西口」駅へ。そこから徒歩約7分で「新宿」駅に行けます。乗車時間は約8分、徒歩約5分です。

タクシー

タクシー

※画像はイメージです。

タクシーに乗った場合の各駅への所要時間は、「飯田橋」駅までが約6分、「六本木」駅までが約20分、「渋谷」駅までが約28分、「銀座」駅までが約21分、「新宿」駅までが約17分となります。

バス

バス

※画像はイメージです。

グランスイート神楽坂ピアースの近隣には大久保通り沿いに「牛込北町」バス停、「牛込神楽坂駅前」バス停があります。「都営飯田橋駅前」バス停行きや、「新大久保駅前」バス停などを通る「小滝橋車庫前」バス停行きがあります。「牛込北町」バス停には、「市ヶ谷駅前」バス停や「新橋駅前」への路線も通っています。

空港

羽田空港へのルート

「羽田空港第1・第2ターミナル」駅に行くルートは、東西線「神楽坂」駅から「日本橋」駅に行き、都営浅草線エアポート快特に乗り換えて京急本線に乗り入れ、到着します。乗車時間は約45分です。タクシーを利用する場合の所要時間は、約35分です。

成田空港へのルート

成田空港につながる「空港第2ビル」駅までのルートは、東西線「神楽坂」駅から「日本橋」駅へ。都営浅草線快速成田空港行に乗り、京成線に乗り入れ到着します。乗車時間は約1時間40分です。タクシーで向かう場合、約1時間10分で到着します。

新幹線発着駅

「東京」駅まで

丸ノ内線東京駅
丸ノ内線東京駅

「神楽坂」駅から東西線で「大手町」駅へ行き、東京メトロ丸ノ内線に乗り換えて到着します。所要時間は約17分です。タクシーを利用した場合、所要時間は約12~40分です。

「品川」駅まで

京急本線品川駅
京急本線品川駅

「神楽坂」駅から東西線で「日本橋」駅へ向かい、都営浅草線エアポート快特に乗り換えて京急本線に乗り入れ「品川」駅に着きます。所要時間は約33分です。タクシーで向かう場合の所要時間は、約24~55分です。

LIFE
INFORMATION 周辺の施設・店舗情報

行政機関が近接するなど
利便性が高い地域

商業施設、商店街

キッチンコート神楽坂店(徒歩5分/約400m)

キッチンコート神楽坂店
キッチンコート神楽坂店

京王ストアが運営している、上質な商品構成がアピールポイントのスーパーマーケットです。都営大江戸線「牛込神楽坂」駅から出るとすぐに見える、立地の良いショップです。12台分の駐車場スペースを確保しているほか、23時まで営業しています。お帰りが遅くなっても、駅からすぐに買い物に行けるのは大きな利点です。

まいばすけっと 牛込神楽坂駅西店
(徒歩4分/約290m)

まいばすけっと 牛込神楽坂駅西店
まいばすけっと 牛込神楽坂駅西店

大久保通りと牛込中央通りの交差点付近にあるスーパーマーケットです。

ウエルシア新宿牛込店(徒歩7分/約500m)

ウエルシア新宿牛込店
ウエルシア新宿牛込店

大久保通り沿いにあるドラッグストアです。23時まで営業しており、遅い時間の買い物にも便利です。また、調剤薬局も併設しており、処方箋の受付も可能です。

タリーズコーヒー 神楽坂店(徒歩4分/約300m)

タリーズコーヒー 神楽坂店
タリーズコーヒー 神楽坂店

タリーズコーヒー本社ビルに併設されているカフェです。「牛込神楽坂」駅から歩いてすぐのところに位置していて、店内はガラス張りでおしゃれな雰囲気になっています。

ファミリーマート 新宿矢来町店(徒歩1分/約80m)

ファミリーマート 新宿矢来町店
ファミリーマート 新宿矢来町店

グランスイート神楽坂ピアースのすぐ近くにあるコンビニエンスストアです。翌日の準備で必要なものができたり、すぐに使いたいものがあったりするときに便利です。

自然、公園

あさひ児童遊園(徒歩3分/約170m)

あさひ児童遊園
あさひ児童遊園

新宿区役所 箪笥町特別出張所に隣接している公園です。カラフルで安全性に配慮した複合遊具があり、思い切り体を動かせます。

山伏公園(徒歩7分/約500m)

山伏公園
山伏公園

大久保通り沿いにある公園です。緑のフェンスの内側は、キャッチボールができる貴重なスペースになっています。

暮らし、インフラ

新宿区役所 箪笥町特別出張所(徒歩5分/約400m)

新宿区役所 箪笥町特別出張所
新宿区役所 箪笥町特別出張所

「牛込神楽坂」駅から地上に出てすぐのところにある、区役所の出張所です。区民の生活に関する業務が集約されていて、区民ホール、地域センターも併設されています。

ゆうちょ銀行 牛込店(徒歩6分/約450m)

ゆうちょ銀行 牛込店
ゆうちょ銀行 牛込店

大久保通り沿いにある郵便局です。郵便窓口は平日19時まで営業しており、ATMは休日も使うことができます。

幼稚園、保育園、学校

アスク神楽坂保育園(徒歩3分/約180m)

アスク神楽坂保育園
アスク神楽坂保育園

新宿区立市谷小学校(徒歩9分/約650m)

新宿区立市谷小学校
新宿区立市谷小学校

新宿区立牛込第一中学校(徒歩5分/約400m)

新宿区立牛込第一中学校
新宿区立牛込第一中学校

まとめ

洗練さが際立つデザイン性
日常生活も送りやすい
好立地

グランスイート神楽坂ピアースは、シンボリックな2棟の建築から構成されているツインレジデンス。新宿区矢来町の高台に位置しており、大久保通りと早稲田通りの間に立つため、どちらの大通りにも行きやすく買い物やお出かけにも便利です。2駅2路線が徒歩圏内にあり、都心部へも移動しやすい立地です。

武家屋敷や寺町があった神楽坂エリアになじむように、気品あふれるデザインが施されています。エントランスはライムストーンを壁一面に張り巡らせて、閑静な住宅街に調和しながらも風格が出ています。

室内空間も上質さにこだわっており、ホテルで暮らしているかのように贅沢さが味わえる空間が演出されています。都会の高台という好立地とともに、機能性とデザイン性に配慮したマンション設計が融合した、快適な住まいとなっています。

グランスイート神楽坂
ピアース

駅徒歩 不動産の表示に関する公正競争規約の改正(2022年9月1日)により、交通利便情報が販売中のものと異なる場合がございます。

東京メトロ東西線
「神楽坂」駅 徒歩3分
(ノースヒルズ)

東京メトロ東西線
「神楽坂」駅 徒歩4分
(サウスヒルズ)

築年月

2016年1月

総戸数

118戸
61戸(ノースヒルズ)
57戸(サウスヒルズ)

階数

地上10階