三菱地所 麻布台パークハウス Concept 飯倉交差点から外苑東通りに入りロシア大使館の角を曲がった高台の邸宅地、隣接する東京アメリカンクラブとのパートナーシップにより誕生したコンドミニアム

麻布台パークハウス

東京メトロ日比谷線「神谷町」駅 徒歩8分

東京アメリカンクラブと調和したクラシカルで気品のある空間

地上17階、総戸数165戸のハイグレードマンション

2025.03.21 公開

LOCATION ロケーション

都心の喧騒、自然の静寂、
歴史ある
伝統が織りなす
都市のオアシス

麻布台パークハウス 外観
麻布台パークハウス 外観

麻布台は、各国大使館が集まり、インターナショナルスクールも多く、国際色が豊かな地域として知られています。1928年に麻布台で発起された「東京アメリカンクラブ」。歴史と伝統のあるクラブで、日本人とアメリカ人を中心に、国際的な交流を深めたい人やビジネスのネットワークを広げたい人など、世界約50カ国の人々が会員として交流。クラブは、「麻布台パークハウス」と隣接しており、パートナーシップも結んでいるので、会員の居住者はマンション内から行き来ができ、クラブにあるフィットネスジム、プールだけでなく、レストラン、バーでさまざまな交流ができます。

このエリアは、東京タワーや、大規模複合施設の六本木ヒルズ、東京ミッドタウンなど、日本を代表する施設が多く、世界中から観光客を引き寄せる名所が集中しています。ショッピングやグルメ、エンターテインメントなど、多彩な魅力が凝縮された東京の中心部で、充実した生活を楽しむことができます。

八幡神社
八幡神社

周辺には、歴史ある神社や趣深い商店街が点在し、江戸時代から続く名家の屋敷が立ち並ぶ由緒ある土地でもあります。明治期には川村伯爵邸があり、文豪・島崎藤村も居を構えるなど、歴史と文化が息づく風情豊かな街並みが広がっています。

有栖川宮記念公園
有栖川宮記念公園

また都心に位置しながら豊かな自然を享受できることも麻布エリアの魅力です。周辺には穏やかな環境が多く存在するため、喧騒を避けた落ち着いた暮らしが可能です。有栖川記念公園は四季折々の景色の移ろいを楽しみ、心の落ち着きが得られる都心のオアシスとして、老若男女を問わず多くの人々に愛されています。

FEATURES 建物の特徴

まるで隠れ家のような
「安息の空間」を、
あなたの人生に
取り入れる。

麻布台パークハウス 外観
麻布台パークハウス 外観

コンセプト・デザイン

「麻布台パークハウス」は、港区麻布台の高台に位置する165戸のプレミアムマンションです。南斜面の高台に位置し、多くの住戸が陽光と開放感を味わえる一方で、プライバシーもしっかり確保。麻布台パークハウスは、隣接する「東京アメリカンクラブ」の再開発事業の一環として誕生しました。外観デザインは、六本木ヒルズなど東京の先進的建築を手がけた世界的建築家、シーザー・ペリ氏率いるペリ・クラーク・ペリ・アーキテクツが監修しています。外観には土の風合いが特徴的なタイルとメタルフィンを採用し、重厚感と洗練さを兼ね備えた意匠となっています。内装はアメリカンクラシックテイストを取り入れ、本国の"わが家"に帰ってきたような懐かしさと温もりのある空間を演出しています。

建物構造

建物は地上17階建てのRC造で、高い耐震性と防音性を誇ります。高台に位置する立地を活かし、多くの住戸から東京タワーや六本木ヒルズなどの眺望を楽しむことができます。

防災設備

24時間有人管理だけ
でなく、
17個の災害対策と、安心・安全な住環境

玄関ドア 

震災時にも扉が開閉しやすい耐震玄関ドアを設置しています。

非常用エレベーター 

4基中2基を「非常用エレベーター」として設置し、万が一の際は消火や救助活動が迅速に対応できる設計となっています。

P波センサー採用エレベーター 

地震の初期微動をキャッチするP波センサーをエレベーターに採用しており、揺れが来る前に最寄り階に停止して、素早く避難できる仕様となっています。

保安灯 非常用照明 

停電時に自動で点灯する保安灯は、夜間の脱出時に懐中電灯としても使用可能。また避難経路にも停電時に自動で点灯する非常用照明も設置しています。

耐震対策の排水管

災害に備え、排水第1桝を建物躯体で支えているため、屋外排水管の破断箇所を減らす設計になっています。

ガスマイコンメーター

強い揺れや異常を察知すると自動で止まるガスマイコンメーターを採用しています。

地震速報システム

気象庁提供の地震速報が素早くマンションに届きます。揺れが来る前に、マンション内に共有され警報を発令。エレベーターが停止する仕組みとなっています。

非常用発電機

火災など、非常事態に備えて、非常用発電機を備えています。停電時には、非常用エレベーター、給水ポンプが利用可能です。共用部の照明の一部が点灯します。

エントランスガラス

避難経路の妨げにならないよう、安全性の高い強化ガラスが施されたエントランスガラスを採用しています。

共用引込管の水道栓

水道本管から給水ポンプを経由せず、配水しているので、非常時に給水ポンプが停止しても、水道局が配水を停止しない限り、水を使用することが可能です。

変圧器

大きな揺れなどで、変圧器が転倒し、電気設備に支障が起きないよう、居室の電気室にある変圧器の下に耐震金物が設置されています。

防潮板

大雨などの際、水の侵入を防げるよう、移動もできる防潮板を備えています。

火災・ガス感知器

各居室やキッチンに熱感知器を搭載。温度が一定以上に上昇すると、警報が鳴り、管理室や警備会社へ自動で通報が届きます。またキッチンには、ガス漏れ感知器も
設置されているため、ガス漏れを察知した際、住宅情報盤(インターホン親機)で警報が鳴るのと同時に、管理室や警備会社に自動で通知されます。

スプリンクラー

1〜6階並びに17階には、火災感知器と連動している湿式予作動型スプリンクラーが設置。通常のスプリンクラーとは異なり、火災を感知した際、規定温度が超えた場合のみ作動するため、スプリンクラーの誤作動によって、居室が水浸しになることを防ぎます。

強制排煙システム

火災が発生した場合でも共用廊下が煙で充満しないよう、廊下と特別避難階段の間に外部と遮断した付室が設けられています。スイッチ1つで排煙が行えるよう
付室には、中央管理室から遠隔操作が行える強制排煙システムが設置されています。

漏電遮断器

1住戸内で規定数値を超える漏電が発生した場合、漏電火災を防げるように漏電遮断器が設置されています。ブレーカーが作動し、漏電火災を防ぎます。

配管 

施工途中に消防署が検査を行う配管は、火災時に火が上に上昇しにくいよう、床との設置面も隙間なく塞がれています。また耐火性の高い材料を使用しているので、
万が一の場合でも安心です。

セキュリティ

エントランス、サロン、エレベーター、住戸玄関と4重のセキュリティとなっています。居住者は、このセキュリティ扉を全て「タッチキーシステムセキュリティ」で開閉できます。また敷地内や建物内には複数の監視カメラを設置しており、常時録画しているだけでなく、敷地の東と南側のフェンスの上部には、赤外線センサーが搭載されているので、不正侵入を見逃しません。駐車場の出入り口にも、オートロックシステムが導入されているため、盗難被害などを未然に防ぐ機能も備わっています。さらに24時間の安心を見守る最新セキュリティシステム「LIFE EYES」を導入しています。火災やガス漏れなどが起きた際、自動的にセコムコントロールセンターまで通報され、迅速かつ適切に対処できる体制が整っています。

COMMON AREA 共用部

快適さとくつろぎを
追及した共用部

共用施設

麻布台パークハウス エントランス
麻布台パークハウス エントランス

グランドエントランス

上品な印象を抱ける建物でありながら、静寂な雰囲気も保つグランドエントランスは、周りの景観にも見事に溶け込むエレガントなデザイン。日本の茶室の躙り口(にじりぐち)を彷彿とさせる趣のあるアプローチ。壁面には石英岩、床面にはアルゼンチン斑岩が使用されており、落ち着いた雰囲気に溶け込む石素材があしらわれています。

コリドー

グランドエントランスの扉の先には、控えめな灯りのシャンデリアが、美しくクラシカルに装飾された調度品を上品に照らしています。先の空間の窓越しからは、豊かな緑も覗いています。床面には、こだわりの4種類の御影石を使用し、凛とした雰囲気に。また壁面には、暖かみのあるローズウッドの板材を均等に配置。その間には、草木のデザインの布地が施され、優美な雰囲気が漂う空間となっています。

レセプションホール

コリドーを抜けて奥へと進むと、光に包まれたレセプションホールが広がります。天井は折り上げられ、アールデコ風のシャンデリアが優雅に輝き、落ち着きと豊かさを醸し出しています。さらに、居住者の日常生活をサポートするコンシェルジュカウンターがホールの一角に設置されており、快適な暮らしをサポートします。都市生活の華やかさと落ち着きを見事に融合させ、訪れる人々の心を魅了する特別な場所となっています。

サロン

暖炉を中心に配された「サロン」は、くつろぎと私的空間への入り口を兼ねた特別な場所です。落ち着いた色調の壁と柔らかな照明が、静けさと開放感が交わる豊かな時間を演出しています。家具や調度品も雰囲気に溶け込むよう、色彩や形状が細やかに選定されています。一人で過ごすのも、誰かと共に共有するのも心地よく、時の流れを忘れさせるほどの穏やかさで訪れる人を包み込みます。日々の喧騒から離れた特別な時間を過ごせる空間を堪能できます。

エレベーターホール

サロンから進むエレベーターホールは、やわらかい照明の灯りと、大理石による床面が高級感を演出します。落ち着きのある空間から、部屋までのアプローチを彩ります。

ガーデン

レセプションホールから、美しいガーデンの景色が目に飛び込んできます。季節の移ろいを感じられる植栽が配置され、都会にいながら自然を身近に感じられる空間となっています。

駐車場

リモコンで開閉できる「カーゲート」を採用しています。また、車寄せに入る手前には「リングシャッター」を設けており、大切な愛車を守る二重のセキュリティが備わっています。

サービス

レセプションホールに設置されたコンシェルジュカウンターでは、多彩なサービスを提供しています。

コンシェルジュサービス

  • レンタカー予約手配サービス
  • タクシー手配サービス
  • メッセージサービス
  • インフォメーションサービス
  • 宅配便サービス
  • デリバリー紹介サービス
  • ベビーシッター紹介サービス
  • ハウスメイド紹介サービス
  • ハウスクリーニング紹介サービス
  • クリーニング取次サービス
  • アニバーサリーサポートサービス

有人管理サービス

各種サービスの対応やご要望にお応えする「コンシェルジュ」、敷地内や建物内の定期的な巡回、共用部の各種点検・保守業務などを行う「管理スタッフ」、敷地内や建物強要スペースの清掃を行う「日常清掃員」など、24時間、マンパワーで安心と快適さを叶えています。

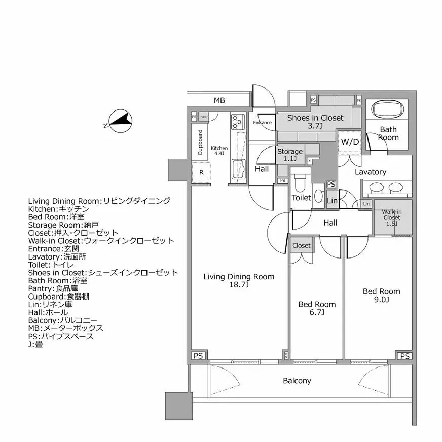
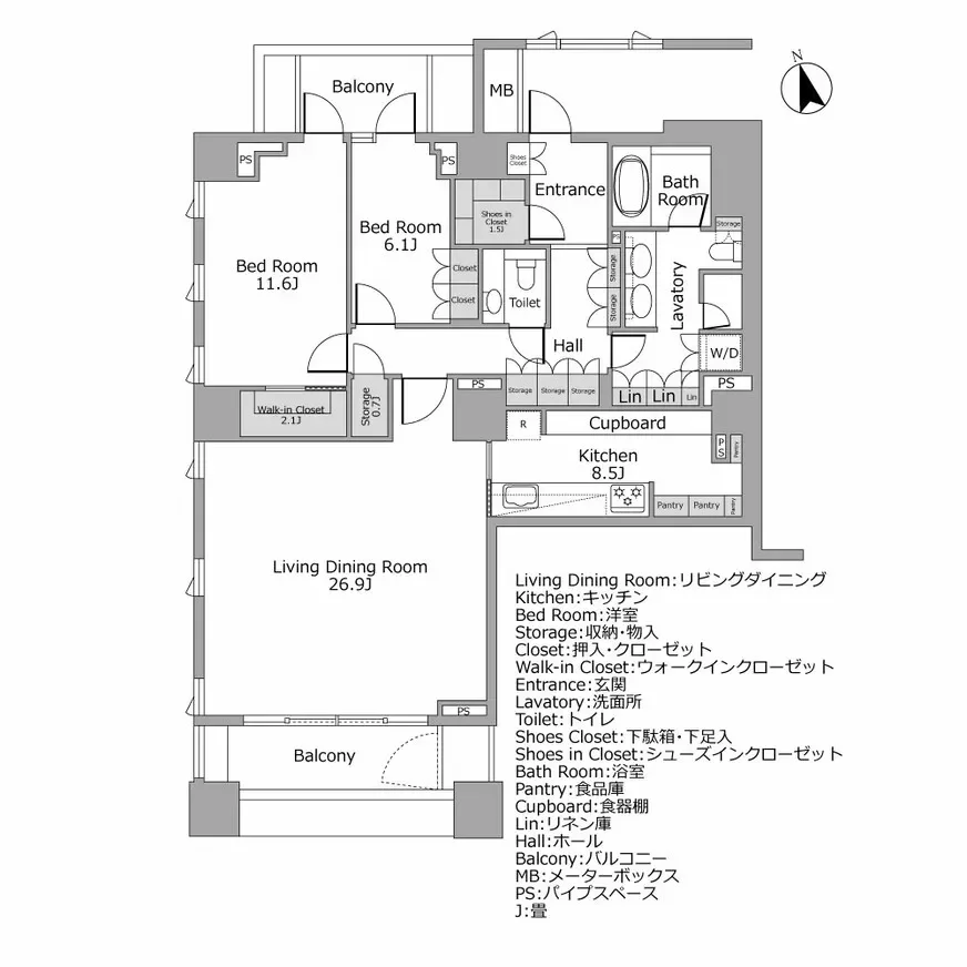
FLOOR PLAN 間取り図一例

多様な暮らし方に対応する
使い勝手のよい間取り

 麻布台パークハウス 間取り図例
麻布台パークハウス 間取り図例
 麻布台パークハウス 間取り図例
麻布台パークハウス 間取り図例

INSIDE THE ROOM 室内

心地よさが広がる、
ラグジュアリーな室内

各室タイプによって異なるものがあるため、共通事項について記述します。

キッチン

水栓金具

システムキッチンの水栓は、ドイツグローエ社製のグースネック形状の混合水栓を採用。使いやすさとデザインに優れたノズル引き出しタイプの水栓です。

浄水器

安全で美味しい水を提供するため、メイスイ社製の浄水器を設置。

ディスポーザー

スイッチひとつで生ごみを粉砕してくれるディスポーザーを標準装備しています(生ごみの種類によっては処理できないものもあります)。

レンジフード

見た目や使い易さ面で評判のアリアフィーナ社製のマントル型レンジフードを採用。

ガスコンロ

高火力の本格ガスコンロで、日々の料理を楽しめます。調理油過熱防止装置・立ち消え安全装置・コンロやグリルの消し忘れ、消化機能付。安全面にも配慮したシルバーカラーのガスコンロです。

コンビネーションレンジ

電子レンジ機能付きのコンビネーションレンジを採用。大容量に加え、自動調理機能付き。手軽で本格的な調理を楽しみたい方にピッタリの機能です。色はガスコンロと同色のスタイリッシュシルバー。

ビルトイン食器洗浄乾燥機

ミーレ社製のビルトイン食器洗浄乾燥機(ミスト洗浄)を標準装備。フルオープンスライド式なので出し入れもしやすく使い勝手も抜群です。

スライド収納

滑らかな引き心地と無駄なく奥まで収納可能で使い心地もよいスライド収納が備わっているので、居住部をスッキリさせることができます。

洗面所・バスルーム

浴室暖房換気乾燥機

浴室は暖房換気乾燥機付きのため、快適な空間を提供するだけでなく、入浴前の寒さやカビの発生などを抑えるなど、お手入れの手間も省ける充実した機能が標準装備されています。

浴室内手摺り

ユニットバスには手すりを設置。滑って事故にならないように、安全面にも配慮しています。

フルオートバス

お湯貼り・保温(最大9時間)・足し湯を自動で行えるフルオートバス機能も備わっており、快適なバスタイムを実現してくれます。

トイレ

タンクレストイレ

余計なものを置かない、デザイン性の高いタンクレストイレを採用しています。掃除がしやすく、清潔感を確保できるのが特徴です。

手洗いカウンター

広々とした手洗いカウンターと、下部には収納スペースも設置されています。サニタリー用品などのストックが可能です。

トイレリモコン

洗浄便座のコントローラーは、シルバースティック型のすっきりしたデザイン。室内全体がスタイリッシュにまとまっています。

その他設備

全熱交換型24時間換気システム

常時換気を行い、粉塵などの一部を除去する換気システムを採用。室内の空気から熱のみを回収することでエネルギーロスを削減し、外気を24時間供給するため、いつでも清潔な空気を保つことが可能となります。

エコジョーズ

高効率のガス給湯器「エコジョーズ」を採用。従来の給湯熱効率は80%が限界と言われていましたが、最新の排気熱や潜熱回収システムにより95%まで向上しています。省エネルギーを実現し、大幅なランニングコスト削減を叶えました。

プッシュドアハンドル

「押す」「引く」のワンアクションでラクラク開閉できる玄関扉を採用しています。

人感センサー付照明

人の動きを感知して自動点灯する人感センサーを採用。夜の帰宅でも安心できる機能です。

天井カセット型エアコン

リビングやダイニング、居室、キッチン(一部タイプのみ)には天井カセットエアコンを標準装備しています。でっぱりがなくすっきりとしたデザインの室内を叶えます。

TES温水式床暖房

リビング・ダイニング・洋室(1)には床暖房を採用。室内の空気を乱さずに部屋全体を暖めてくれます。

足元保安灯

バッテリー内蔵式のLED足元保安灯を設置。停電時に自動点灯してくれるので万が一の際も安心です。非常時の懐中電灯としても使用可能。

バルコニー防水コンセント

バルコニーには防水型のコンセントを設置。いざという時に便利です(住戸によりコンセントの形状が異なります)。

ペット

ペット対応エレベーターを1基設置しており、7階にはペット専用の足洗い場を設けています。ペットを飼う方も飼わない方も、お互いに快適に暮らせるような生活配慮を築いています。

FTTH方式のインターネット

住戸まで4芯の光ファイバーを引き込んだFTTH (Fiber To The Home) のインターネットを実現しています。通信や映像など、大容量の情報をやりとりできる次世代型の通信インフラです。

ACCESS アクセス

徒歩圏内で4駅利用可能と、
都心で自由自在な
生活を叶える

「麻布台パークハウス」は、東京メトロ日比谷線「神谷町」駅から徒歩8分です。また都営大江戸線「赤羽橋」駅、東京メトロ南北線・都営大江戸線「麻布十番」駅、東京メトロ南北線「六本木一丁目」駅が徒歩圏内で4駅3路線が利用可能です。

掲載の所要分数は日中平常時のもので、乗り換え・待ち時間等は含みません。
また時間帯により異なる場合があります。

鉄道

渋谷駅

渋谷駅
渋谷駅

東京メトロ日比谷線「神谷町」駅から「中目黒」駅へ。そこから東急東横線に乗り換えます。乗車時間は約14分で到着します。

銀座駅

銀座駅
銀座駅

東京メトロ日比谷線「神谷町」駅から約7分です。

新宿駅

新宿駅
新宿駅

東京メトロ日比谷線「神谷町」駅から「霞ケ関」駅へ。そこから丸ノ内線に乗り換えます。乗車時間は約16分です。

タクシー

※画像はイメージです。

行き先 所要時間
「六本木」駅 約3分
「渋谷」駅  約14分
「銀座」駅 約11分
「新宿」駅 約22分

バス

※画像はイメージです。

マンションから徒歩5分の位置に、都営バス「麻布台ヒルズ」バス停があります。渋谷、青山、虎ノ門、新橋方面への移動に便利です。

空港

※画像はイメージです。

羽田空港へのルート

①電車

東京メトロ日比谷線「神谷町」駅から「東銀座」駅へ、都営浅草線に乗り変え京急線に乗り入れます。乗車時間は約39分です。

②タクシー

乗車時間は約25分です。

成田空港へのルート

①電車

東京メトロ「神谷町」駅から「人形町」駅へ、都営浅草線に乗り換え京成線、北総鉄道に乗り入れます。「新鎌ヶ谷」駅で京成成田空港線アクセス特急に乗り換えて到着です。乗車時間は約86分で到着します。

②タクシー

乗車時間は約60分です。

③リムジンバス

歩いて19分の所にある「グランドハイアット東京」から、乗車時間約135分で到着します。

新幹線発着駅

東京駅までのアクセス

東京メトロ日比谷線「神谷町」駅から「銀座」駅へ。そこから東京メトロ丸ノ内線に乗り換えます。乗車時間は約9分で到着です。
タクシーなど車で移動する場合は、乗車時間約13分で到着します。

品川駅までのアクセス

東京メトロ日比谷線「神谷町」駅から「恵比寿」駅へ。その後、JR山手線に乗り換えます。乗車時間は約19分で到着します。
タクシーの場合は、乗車時間約12分です。

LIFE
INFORMATION 周辺の施設・店舗情報

最先端の街ながら、
風情のある暮らしも楽しめる

六本木ヒルズや東京ミッドタウンなど都心を象徴するランドマークが徒歩圏内と、ショッピングやアート鑑賞と休日の選択肢が広がるエリアです。また地域密着の商店街など、生活良品を購入できるスポットや公園も多く、ファミリー層でも、充実したライフスタイルが送れます。

商業施設、商店街

六本木ヒルズ(徒歩13分/約1,000m)

六本木ヒルズ
六本木ヒルズ

2003年にオープンした六本木ヒルズは、日本を代表するランドマークです。「文化都心」をコンセプトに、都市機能と文化的要素を融合させた独特の空間を創出しています。地上54階、地下6階の六本木ヒルズ森タワーを中心に、オフィス、商業施設、美術館、展望台、映画館、放送局、ホテル、住宅などが集約されており、ビジネス、文化、生活が融合した「新しい都市モデル」を体現しています。

東京ミッドタウン(徒歩18分/約1,400m) 

東京ミッドタウン
東京ミッドタウン

東京ミッドタウンは、オフィス、高級ホテル、商業施設、文化施設、住居、医療機関、そして広大な緑地を含む多機能複合施設です。約130のショップやレストランが集まる商業エリアは「都心の上質な日常」をコンセプトとし、高品質・高級商材を扱う店舗が多く並びます。「サントリー美術館」や「21_21 DESIGN SIGHT」などの文化施設も擁し、デザインやアートの発信地としての役割も果たしているので、1日ここで楽しめるオススメのスポットです。

麻布十番商店街(徒歩9分/約700m)

麻布十番商店街
麻布十番商店街

300年以上の歴史を持つ麻布十番商店街は、東京中心部にありながら下町の雰囲気を味わえる商店街です。周辺の各国大使館の影響で国際色豊かな雰囲気が特徴で、さまざまな国の料理を楽しめるレストランが並んでいます。また毎年8月末に開催される「麻布十番納涼まつり」は大規模イベントとして有名です。

自然、公園

狸穴公園(徒歩3分/約170m)

狸穴公園
狸穴公園

江戸時代の武家屋敷の跡地であるこの公園では、当時の歴史を感じさせる石垣や古木が残されています。緑豊かで落ち着いた雰囲気ですが、園内には、遊具だけでなく、池や滝、小川などがあり、水辺の生き物や植物を観察できたりと、年齢を問わず気軽に立ち寄れる身近な癒しスポットです。

飯倉公園(徒歩6分/約450m)

飯倉公園
飯倉公園

安全な遊具広場やふわふわドームがあり、子供連れの家族に人気です。公園を囲むベンチでは、大人がくつろぎながら子どもたちを見守ることができます。公園の近くには保育園や児童館もあり、地域の交流の場としても親しまれています。

暮らし、インフラ

まいばすけっと 東麻布1丁目店
(徒歩4分/約280m)

まいばすけっと 東麻布1丁目店
まいばすけっと 東麻布1丁目店

食品はもちろん、生活用品や雑貨も販売しています。朝早い時間から夜遅くまで営業しているので、忙しい方にも便利です。

成城石井 東麻布店(徒歩5分/約350m)

成城石井 東麻布店
成城石井 東麻布店

品質の良い食材や輸入された世界の食品を取り揃えています。惣菜やデザートなども種類が豊富にあり楽しめます。

麻布台ヒルズ ガーデンプラザ
(徒歩9分/約650m)

麻布台ヒルズ ガーデンプラザ
麻布台ヒルズ ガーデンプラザ

「神谷町」駅に直結しており、ショッピングやレストランに加え、親子で楽しめるアートや企画展も開催されます。休日に家族で訪れるオススメの場所です。

りそな銀行 麻布支店(徒歩8分/約590m)

りそな銀行麻布支店
りそな銀行麻布支店

個人・法人向けの幅広い金融サービスを提供し、地域に根ざしています。

麻布台ヒルズ郵便局(徒歩12分/約950m)

麻布台ヒルズ郵便局
麻布台ヒルズ郵便局

郵便・貯金・保険などの生活サービスを提供する、麻布台ヒルズタワープラザの4階に位置する郵便局です。

国際医療福祉大学 三田病院
(徒歩11分/約850m)

国際医療福祉大学 三田病院
国際医療福祉大学 三田病院

地域密着型の医療施設として、東京都の二次救急医療機関の指定を受け、高度急性期病院として機能しています。

幼稚園、保育園、学校

飯倉保育園(徒歩6分/約450m)

飯倉保育園
飯倉保育園

港区立麻布幼稚園(徒歩8分/約640m)

港区立麻布幼稚園
港区立麻布幼稚園

港区立麻布小学校 (徒歩8分/約640m)

港区立麻布小学校
港区立麻布小学校

港区立六本木中学校(徒歩14分/約1,100m)

港区立六本木中学校
港区立六本木中学校

まとめ

都心の利便性と緑の
安らぎ、
二つの贅沢を
一度に叶える

麻布台パークハウスは、東京の中心地にありながら、豊かな自然に囲まれた稀有な住まいです。世界的に有名なランドマークが点在する一方で、徒歩圏内には静かな公園や便利なスーパーがあります。高層階からは東京タワーや六本木ヒルズの壮麗な夜景を一望でき、日常生活の中に贅沢な非日常を取り入れることができます。都市と自然、喧騒と静寂。相反する魅力を同時に享受できることが、麻布台パークハウスの最大の特徴です。また4駅3路線が利用でき、都会の利便性と自然の潤いを両立させた、理想的な都市生活が実現できます。

麻布台パークハウス

駅徒歩 不動産の表示に関する公正競争規約の改正(2022年9月1日)により、交通利便情報が販売中のものと異なる場合がございます。

東京メトロ日比谷線
「神谷町」駅 徒歩8分

築年月

2010年12月

総戸数

165戸

階数

地上17階 地下1階