モリモト ディアナコート
小石川竹早
Concept 春日通り、茗台中学校前交差点から吹上坂に入った右手、小石川四丁目の高台、ホワイトアイボリーのボーダータイルを施した気品あるシンプルなデザイン

ディアナコート小石川竹早

小石川の高台

東京メトロ丸ノ内線「茗荷谷」駅 徒歩8分

地上9階、総戸数75戸

2025.02.07 公開

LOCATION ロケーション

桜並木、植物園が至近
日常生活にも高い利便性

ディアナコート小石川竹早は江戸古来の山の手の一部である小石川台地に立つマンションです。マンションが面する吹上坂は台地の上の頂上部となる春日通り、下を千川通りと交差しています。
この二つの通りは文京区役所の入る徒歩約17分の文京シビックホール前で交差します。
坂の斜向かいには胃薬やビタミン剤で知られるエーザイ本社、坂の下には共同印刷本社があります。社屋前の交差点から千川通りを渡った奥には、広大な敷地を誇る小石川植物園があり四季の花々をたのしむことができます。

小石川植物園 梅林
小石川植物園 梅林

この交差点からはもう一つ春日通り方面に登る播磨坂があります。戦後、環状3号線計画によって拓かれたこの坂道は、かつてこの地に常陸府中藩松平播磨守の上屋敷があったことから播磨坂と呼ばれています。この計画は長く中断されていますが、すでに整備された区間の中央部分には広い道幅を利用して地元住民によって植えられた桜の並木ができています。毎年春にはここで文京さくらまつりが開催され、多くの近隣住民が集まり、日常の散歩道や子供遊び場としても地元では親しまれています。
この坂の左右にはテラス席を設けている飲食店もあり、日中のひと時の安らぎの場とすることもできます。

秋の播磨坂
秋の播磨坂

播磨坂の上下にはミニスーパー、まいばすけっとが2店(茗荷谷駅東店と小石川植物園前店)あります。さらにこの近隣には千川通り沿いに食肉中心の業務用スーパーである肉のハナマサ小石川店、春日通りにはマンションから最寄りのスーパーとなる地元で長く愛されている三徳茗荷谷店があり日頃の食品の購入には困りません。
最寄りの商業地帯は春日通りを右方向に進んだ徒歩8分の東京メトロ「茗荷谷」駅前になります。この界隈は商業地であると同時に跡見学園、お茶の水女子大学などがある一大文教地区であり、文京区立教育の森公園を中心とした広大な公園地帯でもあります。
また春日通りの左側、伝通院方向には古くから地元に愛されている個人商店が点在しています。このあたりは現在マンションが立ち並んでいますが、かつては吹上坂の突き当たり、現在の茗台中学校の場所には旧小石川区役所・文京区役所があり、伝通院前までの道のりがにぎわった街であった名残を今も感じます。

伝通院 山門
伝通院 山門

伝通院は徳川家康の生母・於大の方を弔う寺院として建立されたことが発祥となる寺院です。往時は上野寛永寺・芝増上寺と並ぶ江戸の三霊山と賞され、最盛期は1000人にも及ぶ僧侶の勉学の場でもありました。湯島の昌平坂学問所と並び文京区の今に至る江戸・東京の学究の場として歴史の一つの中心であったと言えます。また江戸末期においては新選組の前身となる浪士組が山内で結成された場としても知られています。
明治に入り、伝通院付近は文豪が居を構える場にもなりました。永井荷風がこの近隣に生を受け、幸田露伴そして娘の幸田文もこの地に長く居を構え、若き日の夏目漱石もこの地に下宿していたと伝えられています。

東京ドーム
東京ドーム

伝通院の先、富坂を下りた先は文京区役所が入っている文京シビックセンター、東京ドームシティのエリアとなります。天気のいい休日にはここまで歩いて、温浴施設、ボウリング、お子様向けの各種施設など数々のコンテンツで楽しむのもいいでしょう。平日の仕事帰りにご家族やお友達とドーム球場でプロ野球の試合を観戦しつつ乾杯を楽しんでも自宅はもう間近です。

FEATURES 建物の特徴

気品高いアイボリー
ホワイトの
シンプルデザイン

ディアナコート小石川竹早は地上9階、敷地面積1500㎡に全75戸のマンションです。
街並みと調和したシンプルな外観デザインに、こだわりの自然の素材を活かしたインテリアデザインが特徴です。

ディアナコート小石川竹早 レリーフ
ディアナコート小石川竹早 レリーフ

コンセプト・デザイン

ディアナコート小石川竹早 外観
ディアナコート小石川竹早 外観

ディアナコート小石川竹早は街並みと調和した気品を大切にしたシンプルなデザインに、ホワイトアイボリーのボーダータイルを施した外観が、凜とした雰囲気を漂わせています。手仕事を思わせる温かみのあるタイルや力強く重厚な魅力をもった御影石などこだわりの素材がこのマンションの価値を感じさせてくれます。

セキュリティ

オートロック・防犯カメラ

ディアナコート小石川竹早ではエントランスにオートロックを導入しています。また防犯カメラも完備しています。

COMMON AREA 共用部

経年で美しさを増す
インテリアデザイン

経年美化するデザインを得意とする藤原益男氏がインテリアデザインを担当しています。玄関や廊下の床面には天然の大理石を採用するなど、時の経過とともに美しさを増す素材が積極的に採用され、本物の素材が醸し出す上質感にあふれたデザインは知的で美しい空間を作り出しています。

ディアナコート小石川竹早 敷地配置図
ディアナコート小石川竹早 敷地配置図

共用施設

アプローチ・エントランス

ディアナコート小石川竹早 エントランス
ディアナコート小石川竹早 エントランス

エントランスは奥行きのある贅沢な作りになっています。エントランスへ続くアプローチにはスロープが設けられていて、ベビーカーやカートなどでも出入りのしやすいように設計されています。

エントランスホール

御影石の間知積みが施されたエントランスホールは華美を誇るのではなく重厚さをアーティスティックに表現しています。

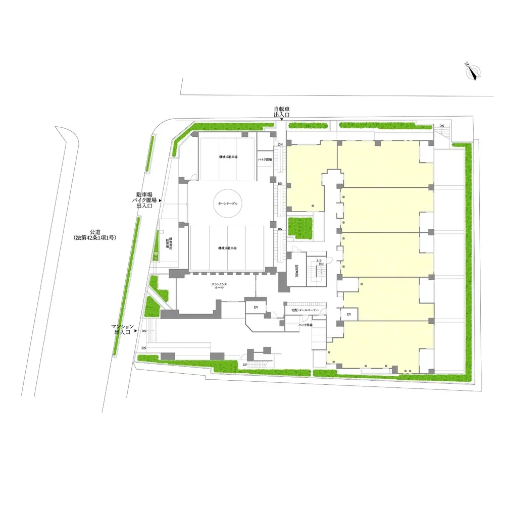
駐車場・駐輪場

ディアナコート小石川竹早 駐車場
ディアナコート小石川竹早 駐車場

駐車場は機械式地下2段18台、地上1段17台、平置障害者用駐車場1台(外来者用駐車場1台含む)に加え、110台の2段ラック式駐輪場、8台のバイク置場が用意されています。

FLOOR PLAN 間取り図一例

1LDK~3LDKの
多種多様なプラン

ディアナコート小石川竹早 間取り図例
ディアナコート小石川竹早 間取り図例
ディアナコート小石川竹早 間取り図例
ディアナコート小石川竹早 間取り図例

INSIDE THE ROOM 室内

藤原益男氏の
インテリアデザイン
天然木のフローリング

藤原益男氏のインテリアデザインにより建具とフローリングには天然木の突き板を採用し、本物の素材が醸し出す上質感にあふれたデザインを追求しています。

ACCESS アクセス

丸ノ内線で
「東京」駅・「銀座」へ直通アクセス

ディアナコート小石川竹早の最寄り駅は徒歩9分の東京メトロ丸ノ内線「茗荷谷」駅です。都内各所に加え、沿線の「東京」駅、「池袋」駅をハブとしてJR各線で首都圏を含めた広範囲にアクセスしやすい環境です。また、徒歩約3分の小石川四丁目バス停から都心各エリアへアクセスできます。
(タクシーによる時間はすべて交通状況により変動はありますが、道路があまり混雑していない場合の目安をご紹介します。)

鉄道

「茗荷谷」駅から主要駅へは、以下の所要時間で到着できます。

「銀座」駅

「銀座」駅
「銀座」駅

東京メトロ丸ノ内線「茗荷谷」駅から「銀座」駅まで所要時間は直通で約14分です。

「霞が関」駅

「霞が関」駅
「霞が関」駅

東京メトロ丸ノ内線「茗荷谷」駅から「霞が関」駅まで所要時間は直通で約16分です。

「新宿」駅

「新宿」駅
「新宿」駅

東京メトロ丸ノ内線「茗荷谷」駅から、「池袋」駅でJR湘南新宿ラインに乗り換えます。「新宿」駅まで所要時間は約14分です。

「渋谷」駅

「渋谷」駅
「渋谷」駅

東京メトロ丸ノ内線「茗荷谷」駅から、「池袋」駅でJR湘南新宿ラインに乗り換えます。「渋谷」駅まで所要時間は約20分です。

「池袋」駅

「池袋」駅
「池袋」駅

東京メトロ丸ノ内線「茗荷谷」駅から「池袋」駅まで所要時間は直通で約4分です。

「麻布十番」駅

「麻布十番」駅
「麻布十番」駅

東京メトロ丸ノ内線「茗荷谷」駅から、「後楽園」駅で東京メトロ南北線に乗り換えます。「麻布十番」駅まで所要時間は約28分です。

タクシー

タクシー

※画像はイメージです。

行き先 所要時間
「後楽園」駅 約5分
「六本木」駅 約24分
「渋谷」駅 約26分
「新宿」駅 約28分
「上野」駅 約31分

バス

バス

※画像はイメージです。

ディアナコート小石川竹早の最寄りのバス停は春日通り沿いに都バス「小石川四丁目」停留所があります。
ここでは錦糸町/大塚駅前行き「都02」、一ツ橋/池袋東口行き「都02乙」が運行し、文京区役所・東京ドームシティへのアクセスに便利です。また「都02」は「上野広小路」バス停を経由するため、上野・御徒町でのアクセスに優れています。

空港

空港

※画像はイメージです。

ディアナコート小石川竹早は、国内外を問わずアクセス良好なことが魅力です。各空港への移動ルートをご紹介します。

羽田空港へのルート

➀電車
  • ルート1:「小石川四丁目」バス停で都バス「都02乙」路線に乗ります。
    「春日駅前」バス停から都営地下鉄三田線「春日」駅に乗り継ぎ、「三田」駅で都営地下鉄浅草線から京浜急行本線に乗り換えれば、直通で「羽田空港第1・第2ターミナル」駅へ約56分で到着します。
  • ルート2:「茗荷谷」駅から東京メトロ丸ノ内線を利用し、「東京」駅でJR京浜東北線、山手線に乗り継ぎます。
    「浜松町」駅で東京モノレールに乗り替えれば「羽田空港第1ターミナル」駅へ約49分で到着します。
②タクシー

ディアナコート小石川竹早から羽田空港第1旅客ターミナルへの所要時間は約40分です。

成田空港へのルート

➀電車
  • ルート1:「小石川四丁目」バス停で都バス「都02」路線に乗り、「上野広小路」バス停から「京成上野」駅に移動して京成本線特急スカイライナーに乗れば約71分で「空港第2ビル」駅に到着します。
  • ルート2:「茗荷谷」駅から東京メトロ丸ノ内線に乗り、「池袋」駅でJR山手線に乗り継ぎ「日暮里」駅で京成本線特急スカイライナーに乗れば約70分で「空港第2ビル」駅に到着します。
②タクシー

ディアナコート小石川竹早から成田空港第2旅客ターミナルへの所要時間は約70分です。

新幹線発着駅

「東京」駅へのルート

➀電車

「茗荷谷」駅から東京メトロ丸ノ内線に乗車し、直通約23分で到着します。

②タクシー

ディアナコート小石川竹早からの所要時間は約18分です。

「品川」駅へのルート

➀電車

「茗荷谷」駅から東京メトロ丸ノ内線に乗車し、「東京」駅でJR東海道線に乗り換えれば約40分で到着します。

②タクシー

ディアナコート小石川竹早からの所要時間は約35分です。

LIFE
INFORMATION 周辺の施設・店舗情報

大規模な公園・庭園、
日常のお買い物にも十二分

数多い規模の大きな公園・庭園に恵まれているのが特徴的なディアナコート小石川竹早の周辺ですが、複数のスーパーなど日常のお買い物にも困らない好立地でもあります。また文京シビックセンター、東京ドームシティにも地下鉄で1駅、もしくは散歩圏内となっています。

商業施設、商店街

スーパー三徳茗荷谷店(徒歩3分/約200m)

スーパー三徳茗荷谷店
スーパー三徳茗荷谷店

地元で長く愛されているスーパー三徳茗荷谷店はディアナコート小石川竹早から吹上坂を登ればすぐの場所にある食品スーパーです。自社プライベートブランドも充実しています。また播磨坂の上にはまいばすけっと茗荷谷駅東店があり、吹上坂を下りた白山三丁目交差点近くには肉のハナマサ小石川店があります。

スギ薬局 茗荷谷店(徒歩7分/約500m)

スギ薬局 茗荷谷店
スギ薬局 茗荷谷店

ディアナコート小石川竹早の最寄りのドラッグストアはスギ薬局茗荷谷店です。処方箋のネット受付もできるので待ち時間も短縮できます。茗荷谷駅前には複数のドラッグストア・薬局もあります。

自然、公園

播磨坂さくら並木(徒歩4分/約280m)

播磨坂
播磨坂

ディアナコート小石川竹早から吹上坂を渡って直進するとほどなく播磨坂に出ます。春には桜、秋には紅葉の名所として知られるこの坂は、毎年春には文京さくらまつりが開催され地元の花見客が数多く訪れます。中央部は全長400メートルに及ぶ細長い広場となっていて地元の散歩コースや子供の遊び場としても親しまれています。

文京区立教育の森公園(徒歩10分/約800m)

文京区立教育の森公園
文京区立教育の森公園

東京教育大学がつくば市に移転した跡地に作られた文京区立教育の森公園は広大な敷地を活かし文京区スポーツセンター、少年野球やゲートボールにも使える自由広場、夏には子供たちの水遊びもできるじゃぶじゃぶ池もあります。
またディアナコート小石川竹早の最寄りには文京区立小石川図書館を併設する文京区立竹早公園もあります。

小石川植物園(徒歩9分/約650m)

小石川植物園
小石川植物園

16万平方メートルに及ぶ広大な敷地を誇る小石川植物園は吹上坂を下った先にあります。ツバキ園、ツツジ園、日本庭園など四季の花々が咲き誇る庭園に加え、公開温室は冬でも楽しめます。安価で求められる年間パスポートを入手すれば日常の散歩コースとしての利用もできます。

暮らし、インフラ

文京シビックセンター(徒歩17分/約1,300m)

文京シビックセンター
文京シビックセンター

25階建ての文京区の中心施設文京シビックセンターは文京区役所、文京公証役場、郵便局に加え、最上階の展望ラウンジやクラッシック音楽の公演も数多く開催される文京シビックホールも併設されています。「小石川四丁目」バス停から都バス「都02」「都02乙」に乗れば約9分で到着します。

伝通院(徒歩6分/約450m)

伝通院
伝通院

徳川家康の生母・於大の方を弔う寺院として建立されかつては小石川の中心として発展した伝通院は今も地元民の信仰を集めています。除夜の鐘は毎年108人限定で突き手が募集されています。

小石川医院(徒歩4分/約260m)

小石川医院
小石川医院

小石川医院は内科と皮膚科の診療を行っています。また小児科の診療も行っている三橋医院はディアナコート小石川竹早の春日通りを挟んだ向かい側にあります。
伝通院の近くにある浪越指圧治療センターに併設される日本指圧専門学校では最高学年生徒による臨床実習の受け手を実費のみで募集しています。定期的に施術を受ける地元のファンも多くいます。

東京ドームシティ(徒歩20分/約1,600m)

東京ドームシティ
東京ドームシティ

読売ジャイアンツの本拠地として知られる「東京ドーム」、人気の温浴施設「LaQua」、ジェットコースターも楽しめる都心の遊園地「東京ドームシティ アトラクションズ」週末にはヒーローショーが開催される「シアターGロッソ」、屋内型ふれあい動物園「アニタッチ」、ボーリングセンター、ローラースケートアリーナなどなど枚挙に暇がない人気の施設やレストランを抱える東京ドームシティが間近にあります。お子様の遊び場に、家族の憩いの場に用途は様々です。

幼稚園、保育園、学校

明照幼稚園(徒歩4分/約300m)

明照幼稚園
明照幼稚園

文京区立金富小学校(徒歩8分/約600m)

文京区立金富小学校
文京区立金富小学校

文京区立茗台中学校(徒歩2分/約160m)

文京区立茗台中学校
文京区立茗台中学校

跡見学園中学校高等学校(徒歩11分/約850m)

跡見学園中学校高等学校
跡見学園中学校高等学校

イベント、お祭り

文京さくらまつり

ディアナコート小石川竹早が面する春日通りを少し左に進んだ播磨坂のさくら並木では、毎年3月下旬から4月上旬にかけて文京さくらまつりが開催されます。春には約120本の桜が咲き誇り、地元の花見客でにぎわいます。

文京朝顔・ほおずき市

徳川家康の生母・於大の方を弔う伝通院では毎年7月朝顔市が開催されます。また伝通院から善光寺坂を下った先にある「こんにゃく閻魔」源覚寺ではほおずき市が開催されます。

まとめ

自然の素材を活かした
デザイン
自然と利便性に
恵まれた立地

ディアナコート小石川竹早は小石川台地の緩やかな斜面の上部に位置する、気品あるシンプルなアイボリーホワイトの外観と自然の素材を活かしたインテリアデザインが特徴的なマンションです。東京駅まで地下鉄一本で行ける最寄りの「茗荷谷」駅まで行かなくとも日常の買い物には坂の上下にスーパーが集中し、さらには間近に東京ドームシティまである高い利便性も兼ね備えています。

ディアナコート小石川竹早

駅徒歩 不動産の表示に関する公正競争規約の改正(2022年9月1日)により、交通利便情報が販売中のものと異なる場合がございます。

東京メトロ丸ノ内線
「茗荷谷」駅 徒歩8分

築年月

2015年10月

総戸数

75戸

階数

地上9階