三菱地所レジデンス ザ・パークハウス白金 Concept プラチナ通りから明治坂へと続く坂を上って右へ一歩奥へ入った丘の上、沿道に常緑樹と落葉樹を織り交ぜて植栽、基壇部はホワイト系の割肌調タイル、上段は濃いグレーの細ボーダータイル、濃いグレーを背景に白と緑と光が繊細な陰影を描く外観

ザ・パークハウス 白金

「白金台」駅 徒歩10分
「広尾」駅 徒歩14分
2駅3路線利用可

白金6丁目明治坂・蜀江坂を
上りきった丘の上

地上5階、総戸数30戸

2025.06.13 公開

LOCATION ロケーション

緑と調和する丘の上の邸宅

ザ・パークハウス白金は、明治坂・蜀江坂を登った標高約29mの丘に位置し、落ち着いた住宅地「白金」に立地しています。
南西側には「プラチナ通り」が広がり、整備された街並みが魅力です。都心の快適性と静かな住環境を重視した理想の住まいとなっています。

東京メトロ南北線 「白金台」駅
東京メトロ南北線 「白金台」駅

ザ・パークハウス白金は、東京メトロ南北線「白金台」駅から徒歩約10分に位置しています。
「白金台」駅から約2分でアクセスできる「目黒」駅からは、JR山手線や東急目黒線、東京メトロ南北線、都営三田線なども利用可能で、都心部への移動が非常に便利です。

プラチナ通り
プラチナ通り

プラチナ通りには、高級ブティックやカフェ、レストランが並び、落ち着いた雰囲気が魅力です。 春には緑が美しく、秋には紅葉が彩りを添え、四季折々の風景が楽しめます。

東京都庭園美術館
東京都庭園美術館

東京都庭園美術館は、港区白金台にあるアール・デコ様式の美しい美術館です。旧朝香宮邸を活用した館内では、多彩な企画展が開催され、歴史ある建築と芸術を一緒に楽しめます。周囲には緑豊かな庭園が広がり、四季折々の風景を堪能できるのも魅力です。カフェやミュージアムショップも併設されており、ゆったりとした時間を過ごすことができます。

FEATURES 建物の特徴

洗練と荘厳感が
調和する佇まい

ザ・パークハウス白金 外観
ザ・パークハウス白金 外観

「ザ・パークハウス白金」は、丘の上に立つ気品あるレジデンスです。プラチナ通りから続く坂を上り、敷地内に入ると、常緑樹と落葉樹が織りなす豊かな植栽が出迎えます。
外観には、基壇部にホワイト系の割肌調タイルが使用され、上層部には濃いグレーの細ボーダータイルが採用されています。

コンセプト・デザイン

ザ・パークハウス白金 エントランス
ザ・パークハウス白金 エントランス

エントランスには、立体的な陰影を生み出すバーチカルリブウォールを採用し、白金の街並みに調和する品格のある空間を演出していて、気品と見通しを抑えた設計が特徴です。
アプローチには、馬車道を思わせる穏やかなスロープが配され、住まう人や通行人を優雅に迎えます。

ザ・パークハウス白金 外観
ザ・パークハウス白金 外観

建物の基壇部にはホワイト系の割肌調タイルが使用されており、洗練された素材感が上質で重厚な印象を与えます。上層部には濃いグレーのボーダータイルが用いられ、陰影の美しさが際立つデザインとなっています。

建物構造

ゆとりある構造と洗練された設計
安心で快適な空間を実現

ザ・パークハウス白金 外観
ザ・パークハウス白金 外観

標高約29mの高台に位置し、安定した地盤に支えられた頑丈な構造です。基礎には強固な杭基礎工法を採用し、建物全体の耐震性を高める設計が施されています。

杭基礎

地表から約23mの深さまで杭を重ね、安定した支持層に到達させることで、建物全体の強度をしっかりと支える設計となっています。また、支持壁の高さは約2.5m〜6.01m、杭の長さは約16m〜20mで、地盤との一体性を考慮した構造となっています。

防災設備

浄水設置

災害時に備え、停電時でも使用可能な中圧用手動装置付きの浄水装置が設置されています。また、定期的な点検とメンテナンスを実施し、装置の機能を常に維持することで、長期間の使用にも対応できるようにしています。

防災バック

万が一の災害に備え、防災バックが各所に備えられています。バックの中には、非常食や飲料水に加え、ライト、ホイッスル、ラジオ、防寒シート、救急セット、携帯トイレなども含まれ、非常時に欠かせないアイテムがそろっています。

防災用ハロゲンライト

停電時や非常時の視認性を確保するために防災用ハロゲンライトを設置しています。強力な照射力を備え、避難や救助活動をサポートします。また、防水・耐衝撃仕様で悪天候や災害時の過酷な環境下でも使用可能です。さらに、長時間の点灯が可能な省エネルギー設計となっており、バッテリーや発電機とも併用できるため、夜間の作業や避難所での使用にも適しています。

ポータブル発電機

停電時の電力供給を確保するためにポータブル発電機が設置されており、ガソリンやソーラーパネルなど多様な電源に対応するタイプが使用されています。災害時の避難所や屋外での使用にも適しており、スマートフォンの充電や照明の確保、医療機器の電源供給など、多目的に活用できます。

セキュリティ

LIFE EYE'S

セキュリティエレベーター

※画像はイメージです。

LIFE EYE'Sセキュリティシステムを導入し、安心・安全な暮らしを提供しています。24時間体制で異常を監視し、共用部や住戸内の異常を管理室や警備会社へ即時通報します。
防犯カメラ、エレベーターの監視システムなど、多層的なセキュリティ対策を備え、住まう人々の安全を守ります。

着床制限セキュリティ

エレベーターには、ICキーによって自宅階と地下1階のみに停止を制限する着床制限セキュリティが搭載されています。ICタグ付き住戸キーを使用することで、自宅の階および地下1階のみ先行登録が可能です。また、非常警報ボタンはお子様でも押しやすい高さに設置され、防犯性と利便性を兼ね備えた設計となっています。

オートロックシステム

オートロックシステムを採用しています。来訪者はエントランスで通話し、TVモニターで確認後にオートロックを解錠する仕組みです。さらに、カラーTVモニター付きインターホンや玄関扉・窓開閉センサー、防犯カメラを設置し、安全性を高めています。

COMMON AREA 共用部

快適と安心を
支える共用空間

エントランスへと続くアプローチには、シンボルツリーが配され、街並みに調和した穏やかな景観を演出します。その先に広がる共用空間では、四季折々の植栽が彩りを添え、住まう方々に癒しとくつろぎのひとときを提供します。

共用施設

エントランスホール(1F)

エントランスアプローチには、水をたたえたような石のオブジェが配され、静寂の中に趣を添えています。アイアンワークの格子が光と影を織りなし、伊達冠石の石積みが風格を演出。四季や時間の移ろいが繊細に映し出される、美しいロビーへと続きます。

ELVホール(1F)

ELVホールは、白木パネルと黒タイルが織りなす洗練されたコントラストが特徴です。
ライティングによって際立つデザインが空間に奥行きをもたらし、間接光に照らされた白木の壁面が上質な雰囲気を演出しています。

パーゴラ・リングシャッター(1F)

パーゴラ・リングシャッターは、上部に植栽が施され、自然と調和したデザインが魅力。緑がアクセントとなり、エントランス空間に心地よい潤いをもたらします。

吹き抜けに面した内廊下

内廊下には乳白色のスリットガラスが採用され、自然光が柔らかく差し込み、心地よい空間を演出しています。プライバシーを守りながらも、明るさと開放感を両立したデザインになっています。高級感と落ち着きを抑えた住環境が魅力です。

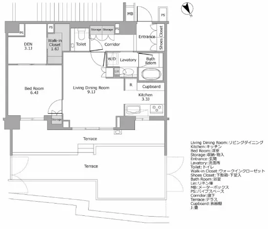
FLOOR PLAN 間取り図一例

開放的なテラスが魅力の
上質な空間

ザ・パークハウス白金 間取り図例
ザ・パークハウス白金 間取り図例
ザ・パークハウス白金 間取り図例
ザ・パークハウス白金 間取り図例

1LDKや1LDK+DENの間取りでは、リビングと寝室のゆとりを確保しながら、機能性の高い収納スペースを豊富に完備。ウォークインクローゼットやシューズクローゼット、ストレージスペースを設け、生活感をスマートに隠すことができます。

INSIDE THE ROOM 室内

洗練された空間美と
快適な暮らし

開放感のあるリビングには天井カセット型エアコンと床暖房を完備し、 高耐久フローリングや複層ガラスで快適性を高めています。
玄関には天然大理石を採用し、全熱交換換気システムで空気も快適です。

室内仕様

LD・洋室には天井カセット型エアコン

すっきりとした空間デザインを叶える天井カセット型エアコンを採用しています。インテリアの邪魔をせず、快適な室温をキープします。

TES温水式床暖房

床暖房

※画像はイメージです。

足元からじんわりと暖めるTES温水式床暖房を導入しています。寒い季節でも心地よい温もりが広がり、快適な居住空間を実現します。

高耐久・高意匠仕様のフローリング

フローリングには、美しさと耐久性を兼ね備えた高意匠仕様を採用しています。キズや汚れに強く、長年にわたって上質な質感を保ちます。

全熱交換型24時間換気システム

室内の快適な温度を保ちつつ、効率よく換気を行う全熱交換型24時間換気システムを導入しています。

複層ガラス

断熱性に優れた複層ガラスを採用しています。外気の影響を受けにくく、冷暖房効率を向上させることで、快適な室温をキープします。

エネルック対応リモコン

室内のエネルギー使用状況をひと目で確認できるエネルック対応リモコンを搭載しています。省エネ意識を高め、効率的な暮らしをサポートします。

天然大理石の玄関

玄関には、上質な天然大理石を使用しています。重厚感のある美しい仕上がりが、住まいの顔として気品漂うエントランス空間を演出します。

キッチン

キッチン

※画像はイメージです。

天然石のワークトップ

キッチンの天板には、高級感あふれる天然石を採用しています。美しい質感と耐久性を備え、お手入れも簡単です。

LEDダウン付き吊戸棚

キッチンのライト戸棚には、手元を明るく照らすLEDダウンライトを搭載しています。省エネ性能に優れ、作業効率が高まります。

食器洗い乾燥機

食器洗浄機

※画像はイメージです。

食器洗い乾燥機を標準装備しています。手洗いの手間を軽減し、節水効果も期待できます。

ディスポーザー

ディスポーザー

※画像はイメージです。

生ごみをその場で処理できるディスポーザーを設置しています。衛生的で、キッチンの清潔を保ちます。

ガラストップ3口コンロ

美しい光沢を持つガラストップ仕様の3口コンロを採用しています。 耐熱性・耐汚性に優れ、お手入れが簡単です。

湯節型キッチン水栓 / 浄水器一体型水栓

節水機能付きのキッチン水栓と、便利な浄水器一体型水栓を備えています。環境家計にも優しい設計です。

食器棚

収納力のある食器棚が設置されています。キッチン空間をすっきり整理し、美しく置くことができます。

アリアフィーナ社製レンジフード

高性能でデザイン性の高いアリアフィーナ社製のレンジフードを採用しています。強力な換気性能で快適なキッチン環境を実現します。

ブルモーション機能付き収納

引き出しには、静かに閉まるブルモーション機能を搭載しています。衝撃を抑え、スムーズな開閉を実現します。

LED調光機能付き浴槽

浴室には、明るさを調節できるLED調光機能を搭載しています。シーンに応じた照明演出が可能で、リラックスしたバスタイムを提供しています。

ミストサウナ・24時間換気機能付
浴室暖房乾燥機

心地よいミストサウナ機能を備えた浴室暖房乾燥機を設置しています。24時間換気機能付きで、カビ対策や冬場の暖房にも役立ちます。

保温浴槽

浴槽は保温性に優れた仕様を採用しています。お湯が冷めにくく、長時間温かさを保つことで、快適な入浴環境を実現します。

手元ボタン付節湯型シャワーヘッド
(手元止水機能付き)

手元ボタンで簡単にお湯を止められる節湯型シャワーヘッドを採用しています。無駄な水を使わず、エコで快適なシャワー時間を実現します。

天然石洗面カウンター・鏡裏収納付き三面鏡

高級感漂う天然石の洗面カウンターを採用し、上質な空間を演出しています。三面鏡の裏には収納スペースを備えています。

洗面 引出し式シングルレバー水栓

シングルレバー水栓は引き出し可能な仕様で、洗面ボウルの隅々まで水を流せる設計になっています。シャワーモードとストレートモードの切り替えが可能で、用途に応じた使い分けができます。

節水型トイレ

少ない水量でしっかり流せる節水型トイレが設置されており、清潔さと効率性を兼ね備えた仕様です。水道料金の節約にもつながるため、経済的なメリットも享受できます。

ACCESS アクセス

白金台駅徒歩圏内、
快適な都心アクセス

「ザ・パークハウス白金」の交通アクセスは、都心主要エリアへのスムーズな移動が可能な利便性が魅力です。最寄りの東京メトロ南北線・都営三田線「白金高輪」駅から徒歩14分、「白金台」駅へも徒歩圏内の好立地。さらに、「六本木」駅へは直通4分、「目黒」駅へは直通2分と、都心生活に最適なアクセス環境が整っています。

掲載の所要分数は日中平常時のもので、乗り換え・待ち時間等は含みません。
また時間帯により異なる場合があります。

鉄道

最寄りの「白金台」駅より各主要駅までの所要時間は以下の通りです。

  • JR「新宿」駅
    都営三田線急行を利用し「目黒」駅で下車、JR山手線で駅へ向かい、約19分で到着します。
  • JR「目黒」駅
    都営三田線急行を利用し約2分で到着します。
  • JR「渋谷」駅
    都営三田線急行を利用し「目黒」駅で下車、JR山手線で駅へ向かい、約12分で到着します。
  • JR「品川」駅
    都営三田線急行を利用し「目黒」駅で下車、JR山手線で駅へ向かい、約15分で到着します。
  • JR「東京」駅
    都営三田線急行を利用し「目黒」駅で下車、JR山手線で駅へ向かい、約29分で到着します。

タクシー

タクシー

※画像はイメージです。

タクシーで各主要駅まで移動した場合の、所要時間と料金の目安です。

行き先 所要時間
JR「渋谷」駅 約18分
JR「新宿」駅 約30分
JR「品川」駅 約17分

バス

バス

※画像はイメージです。

最寄りのバス停「白金六丁目」からバスで移動した場合の所要時間は以下の通りです。
「目黒駅前」まで:都営バス [黒77] 目黒駅前行を利用して約9分で到着します。

空港

空港

※画像はイメージです。

羽田空港へのルート

①電車

都営三田線を利用し「三田」駅で下車、京急線に直通している都営浅草線に乗り換えて、羽田空港第1・第2ターミナル駅まで約38分で到着します。

②タクシー

約32分で到着します。

成田空港へのルート

①電車

都営三田線を利用し「三田」駅で下車、都営浅草線アクセス特急 成田空港に乗り換えて成田空港駅まで約1時間40分で到着します。

②車

自宅周辺から首都高速都心環状線に入り、成田空港東ICを降り、約1時間10分で到着します。

③リムジンバス

シェラトン都ホテル東京から成田空港行きのリムジンバスが利用可能です。所要時間はバス乗り場より約1時間52分です。

新幹線発着駅

「東京」駅へのルート

都営三田線を利用し「大手町」駅で下車、東京メトロ丸ノ内線に乗り換えて、約24分で到着します。

「品川」駅へのルート

都営三田線を利用し「目黒」駅で下車、JR山手線に乗り換えて、約15分で到着します。

LIFE
INFORMATION 周辺の施設・店舗情報

上質な暮らしを彩る
充実の周辺環境

「ザ・パークハウス白金」は、洗練された街・白金ならではのアクセス性と快適な居住環境が魅力です。 徒歩圏内にはスーパー、コンビニが揃っており、日々の買い物に便利です。 周辺には医療機関や金融機関も充実しており、安心した暮らしを支えます。 さらに、「自然教育園」など、自然を感じられるスポットも点在しています。

商業施設、商店街

まいばすけっと 白金6丁目店(徒歩6分/約450m)

まいばすけっと 白金6丁目店
まいばすけっと 白金6丁目店

徒歩約6分に位置する「まいばすけっと白金6丁目店」は、日常使いに便利なスーパーマーケットです。生鮮食品や日用品が揃い、長時間営業で生活を支えています。

ミニストップ 白金6丁目店(徒歩5分/約400m)

ミニストップ 白金6丁目店
ミニストップ 白金6丁目店

徒歩約5分に「ミニストップ 白金6丁目店」が位置し、24時間営業で日々の暮らしをサポートしています。

暮らし、インフラ

港区立郷土歴史館(徒歩9分/約700m)

港区立郷土歴史館
港区立郷土歴史館

港区立郷土歴史館は、東京都港区白金台にある歴史博物館です。旧公衆衛生院の建物を活用し、港区の歴史や文化を学べる展示が充実しています。体験型のプログラムや企画展も開催され、地域の魅力を深く知ることができます。館内には図書閲覧スペースやカフェも併設されており、歴史を学ぶだけでなく、ゆったりとした時間を過ごすことも可能です。さらに、子ども向けワークショップやガイドツアーもあり、幅広い世代が楽しめる施設です。

港白金台郵便局(徒歩10分/約800m)

港白金台郵便局
港白金台郵便局

渋谷新橋出張所(徒歩14分/約1,100m)

渋谷新橋出張所
渋谷新橋出張所

徒歩約14分の「渋谷新橋出張所」は、行政手続きや地域サービスの利用に便利です。生活をサポートする施設が身近にある安心の環境です。住民票や印鑑登録、各種証明書の発行が可能で、引っ越しや各種申請の際に役立ちます。また、福祉関連の相談窓口も設置されており、高齢者や子育て世帯にとっても心強い存在です。さらに、定期的に地域イベントや講習会が開催され、住民同士の交流の場としても活用されています。

松岡美術館(徒歩6分/約450m)

松岡美術館
松岡美術館

徒歩約6分の「松岡美術館」は、古代オリエント美術や東洋陶磁、西洋絵画など幅広いコレクションを展示しています。静かな環境の中で芸術を楽しめる空間が魅力的です。館内には落ち着いたカフェスペースもあり、美術鑑賞の合間にリラックスできます。また、定期的に特別展やワークショップが開催され、訪れるたびに新たな発見があります。

白金クリニック(徒歩6分/約450m)

白金クリニック
白金クリニック

徒歩約6分の「白金クリニック」では、内科、皮膚科、整形外科、リウマチ科の診療を行っています。予防接種や健康診断にも対応しており、地域住民の健康管理をサポートしています。

北里大学北里研究所病院(徒歩7分/約500m)

北里大学北里研究所病院
北里大学北里研究所病院

徒歩約7分の「北里大学北里研究所病院」は、内科や外科など多岐にわたる診療科を備え、地域医療に貢献しています。最新の医療技術を導入し、高度な診療を提供しているほか、専門外来も充実しています。また、リハビリテーションや予防医療にも力を入れており、慢性疾患の管理や健康増進にも対応。さらに、救急医療にも対応しており、急な体調不良やケガの際にも安心して受診できる環境が整っています。

幼稚園、保育園、学校

神応保育園(徒歩2分/約100m)

神応保育園
神応保育園

港区立小中一貫教育校 白金の丘学園 白金の丘小学校(徒歩6分/約450m)

港区立小中一貫教育校白金の丘学園白金の丘小学校
港区立小中一貫教育校 白金の丘学園 白金の丘小学校

まとめ

白金の高台に佇む、
気品のある邸宅

ザ・パークハウス白金 レリーフ
ザ・パークハウス白金 レリーフ

「ザ・パークハウス白金」は、白金の丘の上に位置し、落ち着いた居住環境と都市の快適性を優先した理想の住まいです。白金台・白金高輪の2駅が徒歩圏内にあり、六本木や目黒などの主要エリアへもスムーズにアクセス可能です。

建物は品格漂うデザインと安定した構造を採用し、防災・セキュリティ対策も充実しています。さらに、開放的なテラス付き住戸や機能的な設備が、快適な日常を演出します。
白金の街並みに調和した落ち着きある外観と機能的な設備が、住まいとしての質を高めています。

ザ・パークハウス白金

駅徒歩 不動産の表示に関する公正競争規約の改正(2022年9月1日)により、交通利便情報が販売中のものと異なる場合がございます。

東京メトロ南北線
「白金台」駅 徒歩10分

築年月

2013年10月

総戸数

30戸

階数

地上5階