丸紅 グランスイート
四谷二丁目レジデンス
Concept 東京の中枢に咲く 
利便性と自然を併せ持つ夢の居住空間

グランスイート四谷二丁目レジデンス

東京を代表する各エリアへスムーズな移動が実現

徒歩圏内で楽しめる生活便利施設と大自然

都心でありながら採光・通風が確保された構造

LOCATION ロケーション

本物の都心 
利便性と自然の豊かさへ
同時にアクセス

グランスイート四谷二丁目レジデンス アプローチ
グランスイート四谷二丁目レジデンス アプローチ

グランスイート四谷二丁目レジデンスは、東京の利便性と快適な住環境を兼ね備えた理想的な住まいです。山手線の内側、その中心エリアに位置する四谷は、周辺の主要エリアへのアクセスに優れているのが特徴。ビジネスにもプライベートにも最適な、アクティブで充実したライフスタイルの実現が可能です。

徒歩圏内にはショッピングモールなどのさまざまな商業施設が軒を連ね、日常生活に活気をもたらし続けます。さらに、新宿御苑や迎賓館赤坂離宮のような緑豊かな自然環境にも恵まれており、都市生活の中で自然を感じながら過ごせるのも魅力の一つです。

住宅ユニットの窓から見えるのは、都会ならではの優雅で華やかなイルミネーション。グランスイート四谷二丁目レジデンスは、贅沢で心地よい、まさに理想の生活空間を提供する高級マンションです。

グランスイート四谷二丁目レジデンス前
グランスイート四谷二丁目レジデンス前

グランスイート四谷二丁目レジデンス前の通りは、広い歩道が広がっており安心感があります

杉大門通り商店街
杉大門通り商店街

マンションから徒歩3分程度のところにある商店街です。昔ながらの雰囲気を残しつつも、多数の飲食店が立ち並んでいます。

FEATURES 建物の特徴

都心の息苦しさを排除
こだわり抜かれた上質設計

コンセプト・デザイン

目を見張るのは、印象的でダイナミックなファサード。当レジデンスは、独特の質感を持つ素材の使用により、重厚感と洗練が融合したデザインが施されています。エントランスやアプローチ、風除室などに配置された多様な6種類のマテリアルは、四谷の街にたしかな存在感を放ち続けるでしょう。

建物構造

センターコアプランを採用

グランスイート四谷二丁目レジデンス
グランスイート四谷二丁目レジデンス

共用廊下、共用階段、エレベーターを建物の中心にレイアウトしたセンターコアプランを採用。共用部から住まいへのスムーズな動線を確保しつつ、角住戸率100%を実現しています。

採光・風通しを確保

13階建て、総戸数47戸のなかで、南向きに開口部が設けられた部屋が45%。さらに、道路の反対側とは約40mの距離を保っているため、南面からの採光・通風の確保に成功しています。

防災設備

防災 火災

※画像はイメージです。

防災倉庫

2階の共用廊下には、救急用具などを備蓄する防災倉庫を設置。有事の際もできる限りマンション内で過ごすことができます。

管理運転付エレベーター

地震の発生とともに、揺れを感知して最寄り階で停止をし、扉を開く機能が付いたエレベーターです。停電時は非常用電源が作動し、最も近い階に移動してから停止されるため安心です。

支持杭(現場造成拡底杭)

グランスイート四谷二丁目レジデンスは、耐震に対しても高い性能を有しています。地表から24mに鉄筋コンクリートを11本打ち込むことに加え、地盤に接する先端の面を広げる工夫により、さらなる支持力の確保に成功しています。

セキュリティ

セキュリティエレベーター

※画像はイメージです。

オートロックシステム

キーを持った居住者から承諾を得た来訪者のみ建物内に入れるオートロックシステムを採用。風除室、各住戸前のインターホンによるダブルセキュリティが施されており、不審者の侵入を防ぎます。

丸紅コミュニティによる
トータルセキュリティシステム

有事の際、管理スタッフ・技術員が24時間体制で駆けつけ対応をおこなうトータルセキュリティシステムです。各住戸に設置した防犯や火災関連のセンサーが作動すると、提携の警備会社に通報されるオンラインシステム。緊急時、預かっている鍵で住戸内に入り対応をするホームセキュリティなどのシステムが組み合わさり、住まう人の安心を守り続けます。

録画機能付カメラ

不審者の侵入など、さまざまな犯罪を抑止する効果をもつ録画機能付カメラを設置。映像は事務室管理のデジタルレコーダーにて約2~3週間保存されています。

COMMON AREA 共用部

都心生活の夢を叶える
終着点のような佇まい

共用施設

エントランス

優雅な居住空間が待ち受けていることを予感させるエントランス。住まう人の気持ちを常に高揚させるデザインが施されています。

内廊下

各階の共用廊下は、高級ホテルへ訪れたかのようなエレガンスさを感じさせる雰囲気に。足音を吸収し、住まい全体に落ち着いた環境をもたらす柔らかなカーペットが、上品さを常に演出し続けています。

駐車場

四谷の限られた土地のなかでも、7台分の駐車スペースの確保に成功しました。ミニバイク置き場も1台分用意されており、ライフスタイルに合わせた活用が可能です。

自転車置き場

48台分の自転車置き場を設置。自転車の利用により、近隣に立ち並ぶさまざまな商業・文化施設をスムーズに利用できます。

宅配ボックス

不在時にも荷物を受け取れる宅配ボックスを標準設置。忙しい毎日を快適にする設備です。

サービス

コンシェルジュサービス

※画像はイメージです。

24時間有人管理

専門のスタッフが24時間有人で管理にあたっており、マンション内でトラブルが発生した場合もすぐに対応できる仕組みが整えられています。

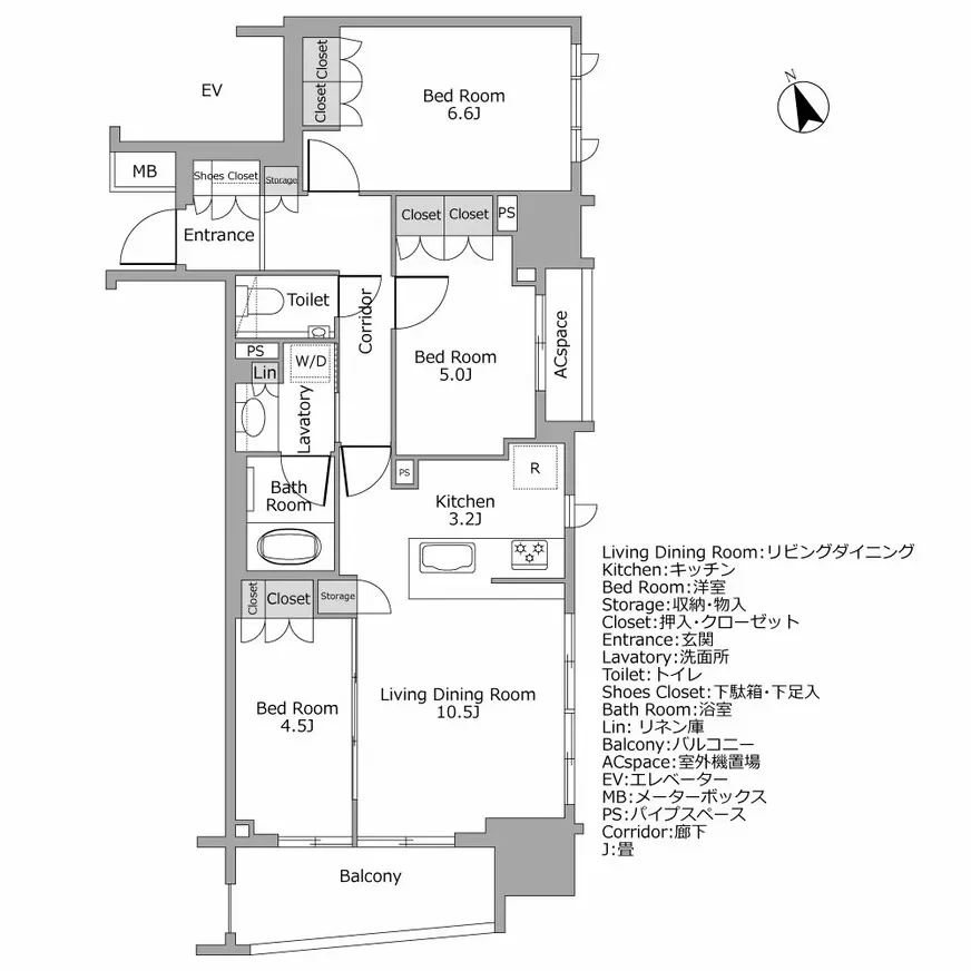
FLOOR PLAN 間取り図一例

収納力を味方に
ゆとりのある東京暮らし

グランスイート四谷二丁目レジデンス 間取り図例
グランスイート四谷二丁目レジデンス 間取り図例
グランスイート四谷二丁目レジデンス 間取り図例
グランスイート四谷二丁目レジデンス 間取り図例

専有面積は30㎡台~70㎡台、間取りは1LDK~3LDKが用意されています。収納力に優れたクロゼットやパントリーなどが豊富に揃っており、DINKsやファミリーに適したゆとりのある住戸です。

INSIDE THE ROOM 室内

開放感あふれる空間で
プライベートタイムの
充実へ

住戸内へと足を踏み入れると、東京の中心とは思えないほどの開放感あふれるリビング・ダイニングがあります。ホワイトを基調としたデザインに木の温もりをアクセントにし、優雅でありながらも透明感すら覚えるデザインに心が休まるでしょう。

また、主寝室をはじめとする各居室は、プライベートタイムをゆったりと過ごせる落ち着いた雰囲気に包まれています。ほか、住戸内には、以下のような便利な設備が整えられているのが特徴です。

設備

キッチン

※画像はイメージです。

浄水器一体型ハンドシャワー水栓

フロントレバーでシャワーや浄水への切り替えが簡単にでき、ストレスなく利用が可能なキッチン用水栓です。ハンドシャワー機能も備えているため、シンクも隅々までお手入れができます。

スイッチ付きエコフルシャワー

浴室のシャワーは、少ない水量でも勢いを出せる節水タイプ。手元にあるスイッチで吐水・止水が操作でき、快適な利用が可能です。

フォレストーンカウンター

パウダールームには、高純度天然水晶を使用した洗面化粧台を設置。使いやすさと手入れのしやすさも兼ね備えたスクエアタイプが採用されています。

ハイブリッドエコロジーシステム搭載トイレ

従来便器よりも70%の節水効果をもつトイレを用意。少ない水でも効率よく洗浄できるトルネード洗浄がエコに貢献をしています。

ACCESS アクセス

時間に縛られない
自由すぎるアクセスを
この手に

鉄道

四谷三丁目駅 入口
四谷三丁目駅 入口
グランスイート四谷二丁目レジデンス 路線図
グランスイート四谷二丁目レジデンス 路線図

グランスイート四谷二丁目レジデンスから各主要エリアへは、JR丸ノ内線「四谷三丁目」駅より以下の所要時間で到着できます。

  • 「新宿」駅
    JR丸ノ内線利用で約5分。乗り換えることなくスムーズに移動できます。
  • 「池袋」駅
    「新宿三丁目」駅から東京メトロ副都心線に乗り換え、15分程度で到着が可能です。
  • 「銀座」駅
    JR丸ノ内線利用で約10分で到着。乗り換えをする必要はありません。
  • 「六本木」駅
    「霞ヶ関」駅から東京メトロ日比谷線に乗り換え、合計18分程度でたどり着けます。

タクシー

タクシー

※画像はイメージです。

「渋谷」駅までは約17分、「池袋」駅までは約18分、「銀座」駅までは12分、「六本木」駅までは15分を目安にたどりつけます。交通状況により変動はありますが、都内の主要スポットへの快適な移動が可能です。

バス

バス

※画像はイメージです。

グランスイート四谷二丁目レジデンスから徒歩1分程度のところにバス乗り場「四谷二丁目」があります。そこから「新宿」駅付近までは18分程度で到着が可能です。また、「四ツ谷」すぐにあるバス乗り場「四谷駅」の利用で、約20分で銀座や有楽町エリアへたどり着けます。

新幹線発着駅

「東京」駅へのルート

JR丸ノ内線利用で約13分。乗り換えをせず到着が可能です。

「品川」駅へのルート

「東京」駅から京浜東北線に乗り換え、合計30分程度で到着できます。

空港

空港 首都圏

※画像はイメージです。

羽田空港へのルート

羽田空港へは、東京メトロ丸ノ内線「四谷三丁目」駅から乗車3分程度の「新宿三丁目」駅まで移動し、E8出口から出て徒歩7分程度に位置する「小田急ホテルセンチュリーサザンタワー」からリムジンバスに乗れば約1時間で到着が可能です。また、「新宿三丁目」駅のE10出口より徒歩約10分のところにある「バスタ新宿」からでも羽田空港行のバスが出ており、1時間程度で到着できます。

電車で向かう場合は、東京メトロ丸ノ内線「四谷三丁目」駅から「東京」駅へ。そこから京浜東北線に乗り換え「浜松町」駅へ移動したのち、東京モノレールで「羽田空港第一ターミナル」駅に到着、合計50分程度の移動時間です。

成田空港へのルート

成田空港は、東京メトロ丸ノ内線「四谷三丁目」駅から「新宿三丁目」駅まで約3分。「新宿」駅南口方面から地上に出て、E10出口より徒歩約10分にある「バスタ新宿」のバス停から成田空港行のバスに乗り、90分程度で到着できます。また、「新宿三丁目」駅のE8出口から出て徒歩7分程度のところにある「小田急ホテルセンチュリーサザンタワー」からリムジンバスに乗れば約2時間で到着が可能です。

電車の場合は、東京メトロ丸ノ内線「四谷三丁目」駅から「四ツ谷」駅に移動し、JR中央・総武線に乗り換え「船橋」駅へ。そこから5分ほど歩いて京成本線「京成船橋」駅から「成田空港」駅に行けば、合計約2時間でたどり着けます。

LIFE
INFORMATION 周辺の施設・店舗情報

徒歩圏内に広がる利便性
彩られ続ける生活

商業施設、商店街

コモレ四谷(徒歩9分/約700m)

コモレ四谷
コモレ四谷

スーパーやクリニックなど、生活をサポートする多種多様な店舗が揃う大型のショッピングモールです。「四ツ谷」駅からは徒歩3分程度に位置しています。室内には静かな雰囲気で過ごせる休憩スペース、周辺には誰でも訪れられる広場があり、散歩コースとしての利用も可能です。

アトレ四谷(徒歩9分/約700m)

アトレ四谷
アトレ四谷

フードチェーン店や美容関連のショップが多く揃うショッピングモールで、「四ツ谷」駅を利用するついでに寄れるのが魅力です。

ファミリーマート四谷大通り店(徒歩1分/約30m)

ファミリーマート四谷大通り店
ファミリーマート四谷大通り店

ファミリーマート四谷大通り店。マンションを出てからすぐ左にあり、1分もかからずに到着が可能です。

スターバックス コーヒー四谷3丁目店(徒歩2分/約120m)

スターバックス コーヒー四谷3丁目店
スターバックス コーヒー四谷3丁目店

マンションの目の前にある横断歩道を渡ったすぐ先に「スターバックス コーヒー四谷3丁目店」があります。出かける前や後でも気軽に立ち寄れるスポットの一つです。

スギ薬局 四谷三丁目店(徒歩2分/約110m)

スギ薬局 四谷三丁目店
スギ薬局 四谷三丁目店

マンションを出て右にある横断歩道を渡ったすぐに位置する「スギ薬局 四谷三丁目店」。薬がほしいと思ったタイミングですぐに向かえるところが魅力です。

まいばすけっと四谷三丁目駅東店(徒歩4分/約290m)

まいばすけっと四谷三丁目駅東店
まいばすけっと四谷三丁目駅東店

食品や雑貨が揃うスーパーの「まいばすけっと四谷三丁目駅東店」は、マンションから徒歩4分程度のところにあります。

イオンリカー四谷店(徒歩1分/約20m)

イオンリカー四谷店
イオンリカー四谷店

マンションと同じ通りに位置し、1分程度でたどり着ける「イオンリカー四谷店」。ワイン・日本酒・ビールなどを幅広く取り扱っています。

やよい軒 四谷2丁目店(徒歩1分/約80m)

やよい軒 四谷2丁目店
やよい軒 四谷2丁目店

マンションから徒歩2分程度のところにある「やよい軒 四谷2丁目店」。栄養バランスの良い日本の定食を気軽に楽しめる飲食店です。

ほっともっと 四谷2丁目店(徒歩2分/約100m)

ほっともっと 四谷2丁目店
ほっともっと 四谷2丁目店

マンションより2分程度のところに位置する「ほっともっと 四谷2丁目店」を利用すれば、いつでも温かいお弁当を部屋へ持ち帰ることができます。

JOYFIT24四谷(徒歩3分/約190m)

JOYFIT24四谷
JOYFIT24四谷

24時間利用できるフィットネス「JOYFIT24四谷」は、マンションから徒歩3分程度の位置にあります。

みずほ銀行四谷支店(徒歩3分/約200m)

みずほ銀行四谷支店
みずほ銀行四谷支店

徒歩3分程度でたどり着ける「みずほ銀行四谷支店」。主要な銀行も気軽に利用できる位置にあります。

自然、公園

迎賓館赤坂離宮(徒歩15分/約1,200m)

迎賓館赤坂離宮
迎賓館赤坂離宮

国宝に指定された建築物であり、主要国首脳会議などの国際会議の場としても使用されています。参観の開放日では、実際に庭園の景色などを間近で楽しむことが可能です。

新宿御苑(徒歩14分/約1,100m)

新宿御苑
新宿御苑

季節ごとにさまざまな自然の景色が楽しめる大型の庭園です。用意されている3つの門のなかでは、「大木戸門」からが最もスムーズに入場できます。

三栄公園(徒歩3分/約200m)

三栄公園
三栄公園

マンションから最も近い公園。見通しが良く、遊具も充実しています。

暮らし、インフラ

住友内科クリニック(徒歩2分/約100m)

住友内科クリニック
住友内科クリニック

マンションのすぐ近くにある内科・糖尿病内科・内分泌内科の受診が可能なクリニック。思い立ったときにすぐ相談へ行けるところが魅力です。

長谷川歯科医院(徒歩4分/約300m)

長谷川歯科医院
長谷川歯科医院

「余分に削らない」「なるべく歯を保存する」ことを重視した歯科医院。完全個室で診療をおこなっているため、プライベートの確保も可能です。

慶應義塾大学病院(徒歩14分/約1,100m)

慶應義塾大学病院
慶應義塾大学病院

高度な医療サービスの提供と医学研究を担う「特定機能病院」に指定された大学病院です。多様な診療を受けられるだけでなく、カフェやレストランなどの便利な院内施設も利用できます。

新宿区立新宿歴史博物館(徒歩5分/約400m)

新宿区立新宿歴史博物館
新宿区立新宿歴史博物館

新宿の歴史と文化を学べる博物館。定期的に講座やイベントがおこなわれているため、何度でも楽しめるところが魅力です。

消防博物館(徒歩4分/約300m)

消防博物館
消防博物館

消防がどのような進化を遂げてきたのかがわかる資材・書籍が展示されている博物館。四ツ谷消防署が併設されているところも特徴です。

四谷警察署(徒歩6分/約450m)

四谷警察署
四谷警察署

飲食店や娯楽施設が多く点在する「四谷三丁目駅」周辺に位置する大規模警察署です。そこにあるだけで生活に安心をプラスしてくれます。

国立競技場(徒歩6分/約450m)

国立競技場
国立競技場

東京2020オリンピック・パラリンピック競技大会のメインスタジアムとして使用された施設です。サッカーやラグビーの選手権大会など、さまざまなスポーツの観戦が可能です。

幼稚園、保育園、学校

新宿区立四谷子ども園(徒歩4分/約300m)

新宿区立四谷子ども園
新宿区立四谷子ども園

新宿区立四谷小学校(徒歩4分/約300m)

新宿区立四谷小学校
新宿区立四谷小学校

新宿区立四谷中学校(徒歩10分/約800m)

新宿区立四谷中学校
新宿区立四谷中学校

イベント、お祭り

例大祭

グランスイート四谷二丁目レジデンスより徒歩8分程度に位置する「須賀神社」にて毎年開催されているお祭りです。誰でも神輿を好きなときに担ぐことができる自由な雰囲気のなか、地域住民とのコミュニケーションを楽しめます。「須賀神社」では、元旦祭や節分祭など、年中行事が多く実施されています。

四谷大好き祭り

四谷地域の商店会が中心となって毎年開催している秋祭り。四谷に住まうすべての人を対象に、地域をより盛り上げていく目的でおこなわれています。

まとめ

可能性を秘めた佇まいが
本当の自由を教えてくれる

グランスイート四谷二丁目レジデンスは、東京の中枢に位置し、自由度の高いロケーションが魅力の物件です。また、徒歩圏内にある豊富な商業施設と、緑豊かな大自然に囲まれながら、プライベートの充実も図れる環境が整っています。都心の利便性と穏やかさをどちらも手にできる贅沢な空間に興味のある方は、ぜひ入居をご検討ください。

グランスイート
四谷二丁目レジデンス

駅徒歩 不動産の表示に関する公正競争規約の改正(2022年9月1日)により、交通利便情報が販売中のものと異なる場合がございます。

東京メトロ丸ノ内線
「四谷三丁目」駅 徒歩4分

中央線
「四ツ谷」駅 徒歩7分

築年月

2015年3月

総戸数

47戸

階数

地上13階