三井不動産レジデンシャル パークマンション赤坂氷川坂 Concept 青山通りから一歩奥に入った赤坂四丁目の小高い丘の上、コロンビア通り沿い、全体をクラシックモダンなデザインで統一した意匠、日本の風土に合う石材として古くから愛されてきた白河石を採用した重厚なエントランス

パークマンション赤坂氷川坂

六本木と赤坂という
二つの街に
寄り添う丘の上

「赤坂」・「溜池山王」
・「六本木一丁目」各駅徒歩6分

地上13階、総戸数36戸のハイグレードマンション

2025.05.23 公開

LOCATION ロケーション

300年の杜が包む
御屋敷街で
都心の躍動と共に暮らす

パークマンション赤坂氷川坂は、約300年の時を重ねた赤坂氷川神社に近く、また、古の武家屋敷の記憶を刻む、静寂の緑に包まれた赤坂の丘の上にあります。

赤坂氷川神社

また、江戸城の鎮守として徳川家からの崇敬が篤かった日枝神社に近く、その先には国会議事堂をはじめとする、日本の政治・行政の中枢エリアが広がります。

国会議事堂

さらに、六本木界隈も徒歩圏となっており、アークヒルズや東京ミッドタウンなど、こちらも日本を代表するビジネスやショッピング街と近接します。

アークヒルズ
東京ミッドタウン

パークマンション赤坂氷川坂から徒歩6分の最寄り駅は「赤坂」駅。ほかにも「溜池山王」駅や「六本木一丁目」駅までは徒歩6分、「六本木」駅までも9分と徒歩圏となっています。

東京メトロ千代田線「赤坂」駅
東京メトロ千代田線「赤坂」駅

鉄道網の充実には目を見張るものがありますが、車でのアクセスも快適です。首都高速3号渋谷線、首都高速都心環状線、外堀通り、六本木通りなどの利用が便利です。

外堀通り

FEATURES 建物の特徴

威風堂々たる表情を
街並みに映し出す邸宅

コンセプト・デザイン

パークマンション赤坂氷川坂 外観

パークマンション赤坂氷川坂は、三井不動産レジデンシャル施主・三井住友建設施工、2014年9月竣工の地上13階地下1階建て、総戸数36戸のマンションです。

威厳の中に優美さを感じさせる、緩やかな曲面とシンメトリーなフォルムが特徴。加えて、連層窓や彫りの深いグリッド、細部までこだわりを込めたディテールが上質感を高めます。

さらに、御屋敷街の記憶を持つ、港区赤坂の深い緑に囲まれた立地にふさわしく、敷地の周囲には緑を配して、周辺環境と美しく調和しています。

パークマンション赤坂氷川坂 敷地配置図

アプローチにはライティングにより浮遊感を創出する、大きくせり出したキャノピーを設定。雨天での車への乗り降りをしやすくするとともに、周囲からの視線をさえぎりプライバシーを確保。外の世界と一線を画す佇まいが、上質なアーバンライフに寄与します。

パークマンション赤坂氷川坂 アプローチ
パークマンション赤坂氷川坂 エントランス

建物構造

パークマンション赤坂氷川坂は、建物構造に先進の設計や技術を施して、安心を誇る邸宅を目指しています。

免震構造

建物と地面の間にしなやかに変形する免震層を設定。地震での揺れを吸収する免震構造としています。揺れを抑える事で居住者の安全確保はもちろん、建物の損傷や機能のダメージを低減。家具などの転倒も減らして二次災害の抑制に貢献します。

主な免震装置として、鉛プラグ入り積層ゴム型免震装置などを導入しています。こちらは、地震時には建物の荷重を支えつつ、ゆっくり平行に揺れる積層ゴムと、振動エネルギーを吸収して揺れを減衰するダンパーとなる鉛プラグを一体化したもの。柔軟な変形により、地震のエネルギーを吸収して、建物の揺れを抑制します。

地盤調査

パークマンション赤坂氷川坂は、地盤の許容支持力を割り出すため、事前の敷地調査、ボーリング調査、標準貫入試験など、入念な地盤調査を行っています。

場所打ちコンクリート拡底杭

直径約1.6mの場所打ちコンクリート杭で建物荷重を支え、地下約26mの強固な支持地盤にその荷重を伝えます。付属棟や外構部を除く建物の杭は拡底杭。先端を広げることで力強い支持力を得ています。

コンクリート耐久設計基準強度の概念を導入

構造物と部材の供用期間に応じた耐久性を確保するために必要な圧縮強度を示す「コンクリート耐久設計基準強度」の考え方を、パークマンション赤坂氷川坂は導入。柱や梁などの構造躯体は設計基準強度を30N/平方ミリとし、一部は最大39N/平方ミリの高強度コンクリートとしています。30N/平方ミリとは、1㎡あたり約3,000トンの圧縮に耐えられる強度で、1㎡あたり約2,400トン=24N/平方ミリが標準。耐久設計基準強度で大きく上回ります。

水セメント比50%以下

コンクリートは混和剤を含む水の割合が少ないほど耐久性を高められます。パークマンション赤坂氷川坂は、水セメント比を50%以下に設定。コンクリートの密度が高くなり、ひび割れも起きにくい建物を目指しています。

防災設備

パークマンション赤坂氷川坂は、万一の災害時でも安心をお届けするために、免震構造などに加えて、防災対策も怠りません。

※画像はイメージです。

防災備蓄倉庫

全フロアに防災備品を収納した防災備蓄倉庫を設置。1階と13階には共助に必要な備品を、住戸階には約5日分の飲用水、食料、非常用トイレなどの生活物資を揃えています。

非常用発電設備

万一の停電時には、非常用発電機が作動。1台分のエレベーター、給排水ポンプ、タワーパーキング、ディスポーザー処理槽へ電力を供給します。非常用発電設備の備蓄燃料は1,950Lを確保しており、約5日間の運用スケジュールを策定します。

太陽光発電設備・非常用蓄電池

太陽光発電と非常用蓄電池を用いて、災害対策拠点でラジオなどの稼働、携帯電話の充電などへの給電を策定しています。

災害対策拠点

1階のサロンを災害対策拠点と設定。共助活動を支援します。

管制運転付きエレベーター

地震と火災の管制装置をエレベーターに装備。停電の際は専用バッテリー電源により管制運転をし、最寄り階に着床します。また、天井の停電灯が点灯し、インターホンで外部と連絡が取れます。

非常用水貯水槽

災害時に管理用トイレが利用できるよう、排水用に貯水できる非常用水貯水槽を設置。さらに、生活用水として7トン分の貯留水を確保しています。

マンション地震防災システム

気象庁からのデータを受信して、数秒後に起きうる震度4以上の地震を速報するシステムです。警報音が鳴り、地震到達予測時間を各住戸のカラーモニター付インターホン(住宅情報盤)と1階共用部エントランスホールに設置したスピーカーでお知らせします。

セキュリティ

パークマンション赤坂氷川坂は、設計段階から最適なセキュリティ対策を施しています。マンション全体を3つのゾーンに分け、その特性に応じた対策を設計段階から考慮してセキュリティを確保。さらに、万一に対処するシステムと事故を未然に防ぐ安全対策を実施します。

そして、管理事務室にはスタッフが常駐。24時間体制で機械監視と館内の巡回を行い、機械だけでは判断できないケースや突発的な事態にも臨機応変に対応します。加えて、最新鋭の機器やセキュリティシステムとの2重の備えにより、住まう方に安心をお届けします。

人の目
+4タイムズ・セキュリティ

パークマンション赤坂氷川坂は、万一の事態に備えて「人の目+4タイムズ・セキュリティ」を採用しています。

レセプションには、日中はコンシェルジュが常駐。夜間はセキュリティスタッフが管理事務室で監視業務を行います。

1つめのセキュリティ機能として、エントランスホールにオートロックを設置。2つめはエレベーターホール前のオートロック、3つめはエレベーター内部にICセンサーを設置して、居住階のボタンのみを押せるように設定。4つめは、住戸玄関扉に複製が困難とされるディンプルシリンダー玄関錠を採用しています。

※画像はイメージです。

ディンプルシリンダー玄関錠

約172億通りのキーパターンがあるディンプルシリンダー玄関錠を玄関に2か所設置。ピッキングなどの不正解錠が非常に困難で、キーナンバーの読み取りなどの不正なキー複製も防止します。

玄関ドア防犯センサー

玄関ドアにセンサーを設置し、防犯セットがオンの状態に不審者が外部から無理に開けた際は、センサーが反応。住戸のインターホンに警報を発し、同時に三井不動産住宅サービス「お客様センター」、綜合警備保障(ALSOK)へ自動的に通報します。

カラーモニター付きインターホン
(住宅情報盤)

カラーモニター付きインターホン(住宅情報盤)により、エントランスや住戸玄関前にいる来訪者を画像でも確認できます。

防犯玄関ドア

無理矢理侵入する不審者へのドアガード、サムターン回し手口対策の防犯サムターンを装備。バールなどの玄関こじ開け対策に鎌デッド錠を施すなど、不正解錠による被害対策を行っています。

防犯カメラ

敷地や建物内に不審者が侵入する行為を抑制するため、共用部に防犯カメラを設置。画像を録画し、管理事務室のデジタルレコーダーに一定期間保存します。

※画像はイメージです。

エレベーター着床制限システム

住戸の鍵に組み込んだICチップにより、居住階と共用階のみに着床を制限します。

COMMON AREA 共用部

豊かな暮らしを
サポートする
共用施設が充実

パークマンション赤坂氷川坂は、住まう方の暮らしの充実をサポートする共用施設を用意しています。

共用施設

エントランスホール

石匠・和泉正敏氏の壁面アートや現代的な感性で創作する盆栽家・山田香織氏の季節を表現する芸術的な盆栽も施され、ラグジュアリーホテルのように上質な温かさをまといつつ、モダンアートによる洗練された空間となっています。

サロン

新進気鋭のガラス作家・岸本耕平氏の作品が壁面に大きく飾られるサロンは、緑、水、光の景色と一体となった2層吹き抜けのくつろぎ空間です。床に高低差を施し変化に富んだ表情を見せ、また、南面の開口から自然光があふれる、開放的な空間になっています。

ザ・ガーデン

パークマンション赤坂氷川坂には、都心に居ることを忘れさせるインテリア空間のような庭があります。ミラノサローネなどで注目されるイタリア・パオラレンティ社のソファを設置。そして、四季を彩るイロハモミジ、壁一面を緑で覆うグリーンウォールなど、約25 種の植栽が鮮やかな色彩を創出します。ザ・ガーデン脇にはティーハウスも配置されています。

コーチエントランス

棟内から駐車場へ直接アクセスできます。

屋内駐車場

パークマンション赤坂氷川坂の全36戸に対して36台分の機械式、2台分の平置き屋内駐車場を用意しました。屋外には身体障害者用に1台分の駐車場が別途用意されています。

EV充電コンセント

電気自動車やプラグインハイブリッド車に対応する充電コンセントを、駐車場全台数分(39台分)設置しています。

太陽光発電

発電した電力を共用部に供給し、電気料金も削減できます。

人感センサー対応照明

1階ゴミ置場、自転車置場、メールコーナー、管理用トイレに、人を感知すると自動点灯し、一定時間で自動的に消灯する照明を採用しています。

付属棟屋上緑化

ザ・ガーデンや地上の植栽だけではなく、屋上にも緑化スペースを確保しています。

トランクルーム

全36戸用にトランクルームを用意。停電時に利用できる保安コンセントも設置しています。

各階クリーンステーション

各階でゴミ出しが可能です。ゴミ搬出場までは管理スタッフが運びます。

サービス

住まう方のさまざまなご要望にお応えするため、パークマンション赤坂氷川坂ではコンシェルジュを配置しています。

※画像はイメージです。

コンシェルジュサービスの主な内容

  • レンタカー紹介
  • カタログギフト紹介
  • ハウスクリーニング業者紹介
  • グリーンサービス、観葉植物リース紹介
  • ケータリング紹介
  • クリーニング受付
  • 宅配クリーニング受付
  • ホームエステ、ホームマッサージ紹介
  • デリバリー紹介
  • ペットのお預かり紹介
  • ペット関連業者紹介
  • ペットホテル紹介
  • フラワーギフト(フラワーデリバリー)紹介
  • ベビーシッター紹介
  • ワイン専門店情報提供
  • ハウスメイド、ハウスキーピング紹介
  • 宅配便発送受付
  • タクシー、ハイヤー手配

FLOOR PLAN 間取り図一例

暮らしやすい機能的で
美しい間取り

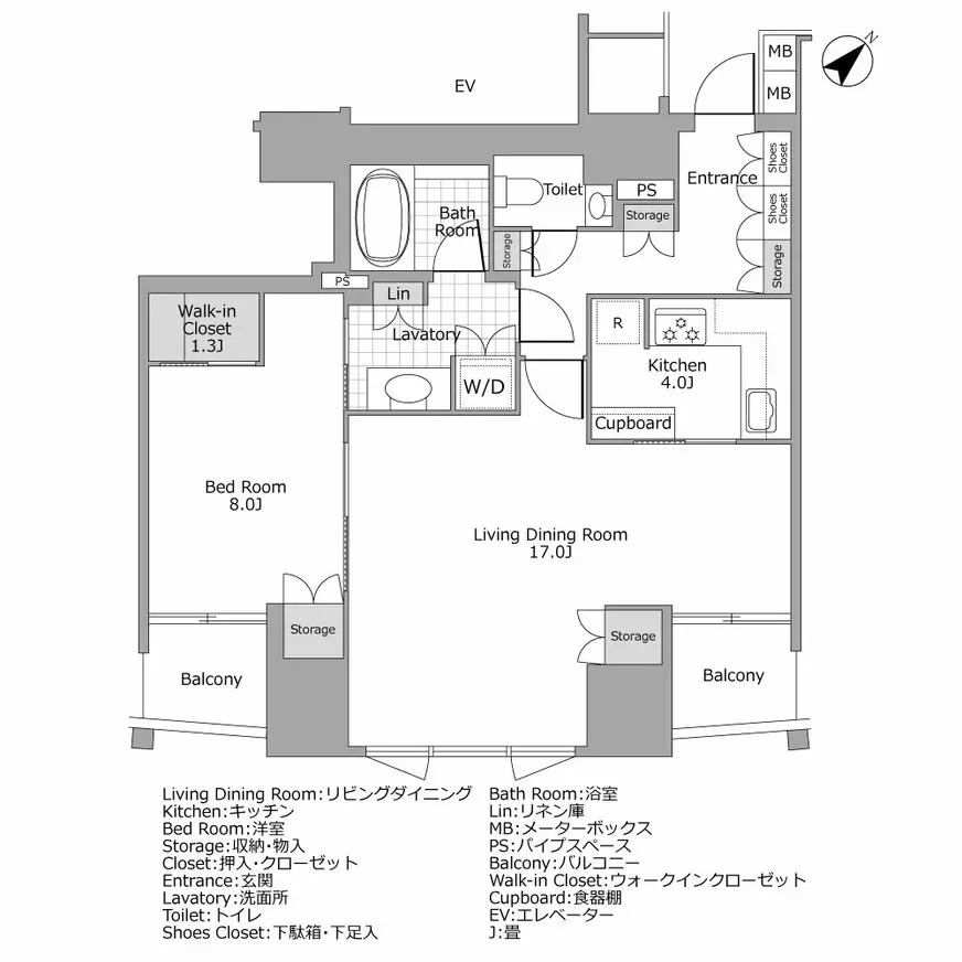
パークマンション赤坂氷川坂 間取り図例
パークマンション赤坂氷川坂 間取り図例
パークマンション赤坂氷川坂 間取り図例
パークマンション赤坂氷川坂 間取り図例

INSIDE THE ROOM 室内

こだわりの素材と
優雅な空間

パークマンション赤坂氷川坂は、都心の躍動を感じつつも、忙しい日常から切り離された優雅な室内空間を求めました。妥協することなく細部までこだわりを込めた住まいの素材、デザイン、しつらえが、限られた36邸に住まう方の暮らしに感動をもたらすはずです。

室内仕様

天井カセット式エアコン

室内機が天井に埋め込まれたカセット式エアコンを全居室、キッチンに採用。室内景観を損なわず、すっきりした印象を天井・壁面にもたらします。

全熱交換型換気ユニット

室内の汚れた空気や湿度を屋外へ排出し、除じんフィルターにより、花粉やホコリなどをカットする24時間換気です。熱交換器で室内温度に近づけられた新鮮な外気を各居室に供給します。

混合シャワー水栓&浄水器水栓

キッチンに、ハンスグローエ社製の混合シャワー水栓と、メイスイ社製の浄水器水栓を設置しました。

※画像はイメージです。

テラル社製ディスポーザー
システム

自動的に機器内に給水し、常に機器内をクリーンに保つ、テラル社製ディスポーザーシステムを採用しました。

※画像はイメージです。

ミーレ社製食器洗浄乾燥機

大容量の食器洗浄乾燥機を設置。食器に優しい余熱乾燥式です。

※画像はイメージです。

ジェット&ブロアを備えた
ジャクソン社製バスタブ

全身を包み込む水流とやわらかな気泡が心地よいバスタブです。また、20インチの埋込型浴室テレビも設置しています。

ハンスグローエ社製
レインシャワー&シャワーヘッド

天井に埋め込んだスクエアのシャワーから、あたかも雨のように降り注ぐレインシャワーを設置。さらにモード切り替え機能付きのシャワーヘッドも採用しています。

TOTO社製タンクレストイレ

TOTO社のエコで機能的な「ネオレスト」を採用。次亜塩素酸水による「きれい除菌水」で、トイレを常に美しく、清潔に保ちます。

即出湯システム

キッチンや洗面、バスルームなど数か所同時に給湯が可能で、長く待たずにお湯が利用できます。

ACCESS アクセス

都心ならでは
4駅5路線のマルチアクセス

パークマンション赤坂氷川坂は六本木・赤坂に寄り添う丘の上にあります。両方の街がある港区は、隣接する区が、中央区、千代田区、新宿区、渋谷区、目黒区、品川区となっており、東京を代表するビジネス街、ショッピング街へのアクセスに極めて便利です。

掲載の所要分数は日中平常時のもので、乗り換え・待ち時間等は含みません。
また時間帯により異なる場合があります。

鉄道

パークマンション赤坂氷川坂から徒歩6分の最寄り駅は、東京メトロ千代田線「赤坂」駅です。

東京メトロ千代田線「赤坂」駅
東京メトロ千代田線「赤坂」駅

また、東京メトロ銀座線・南北線「溜池山王」駅や東京メトロ南北線「六本木一丁目」駅までは徒歩6分、東京メトロ日比谷線・都営大江戸線「六本木」駅までも9分と徒歩圏となっています。

「溜池山王」駅
「溜池山王」駅
東京メトロ南北線「六本木一丁目」駅
東京メトロ南北線「六本木一丁目」駅
「六本木」駅
「六本木」駅

最寄り駅の「赤坂」駅からの主な駅への所要時間は以下の通りです。

  • 「銀座」駅
    東京メトロ千代田線利用。「国会議事堂前」駅で東京メトロ丸ノ内線に乗り換えます。所要時間は約10分です。
  • 「大手町」駅
    東京メトロ千代田線利用。所要時間は約8分です。
  • 「渋谷」駅
    東京メトロ千代田線利用。「表参道」駅で東京メトロ銀座線に乗り換えます。所要時間は約9分です。
  • 「新宿」駅
    東京メトロ千代田線利用。「国会議事堂前」駅で東京メトロ丸ノ内線に乗り換えます。所要時間は約17分です。
  • 「霞ケ関」駅
    東京メトロ千代田線利用。所要時間は約3分です。

タクシー

タクシー

※画像はイメージです。

行き先 所要時間
「銀座」駅 約13分
「大手町」駅 約9分
「渋谷」駅 約15分
「新宿」駅 約21分
「霞ケ関」駅 約5分

バス

バス

※画像はイメージです。

都営バス「六本木一丁目駅前」バス停へ徒歩6分。都01系統、新橋駅前行きと渋谷駅前行きが利用できます。そこから「新橋駅前」バス停まで約14分、「渋谷駅前」バス停まで約17分です。

空港

空港

※画像はイメージです。

羽田空港へのルート

①電車

「溜池山王」駅から東京メトロ銀座線利用、「新橋」駅でJR山手線または京浜東北・根岸線に乗り換え「浜松町」駅下車。東京モノレール空港快速で到着します。所要時間は約21分です。

②タクシー

所要時間は、約28分です

③リムジンバス

「ザ・キャピトルホテル東急」からリムジンバスが利用できます。所要時間は約45分です。

成田空港へのルート

①電車

「溜池山王」駅から東京メトロ銀座線で「上野」駅下車。徒歩で「京成上野」駅に向かい、京成スカイライナー利用で到着します。所要時間は約60分です。

②タクシー

所要時間は、約54分です。

③リムジンバス

「ザ・リッツ・カールトン東京」からリムジンバスが利用できます。所要時間は約127分です。

新幹線発着駅

「東京」駅へのアクセス

「赤坂」駅から東京メトロ千代田線を利用。「赤坂見附」駅で東京メトロ丸ノ内線に乗り換えます。所要時間は約13分です。

「品川」駅へのアクセス

「赤坂」駅から東京メトロ千代田線利用。「表参道」駅で東京メトロ銀座線に乗り換え「渋谷」駅へ移動。JR山手線に乗り換えます。所要時間は約26分です。

LIFE INFORMATION 周辺の施設・店舗情報

世界中の情報文化が集まる
六本木・赤坂の二つの街が利用可能

パークマンション赤坂氷川坂は、日本をはじめ世界中の情報や文化が集まる、躍動の都心六本木・赤坂の二つの街に寄り添う丘の上にあります。ここでは、商業施設や自然環境、公園、インフラ施設など生活に密着した情報をご紹介します。

商業施設、商店街

赤坂サカス(徒歩7分/約500m)

赤坂サカス
赤坂サカス

TBS放送センター、赤坂Bizタワー、赤坂BLITZ、赤坂ACTシアターなど、数々の施設が集まるのが赤坂サカスです。赤坂Bizタワーには、ショップやレストランが入り、成城石井などのスーパーマーケットも利用できます。

東京ミッドタウン(徒歩7分/約540m)

ショップやレストラン、オフィス、ホテル、緑地、美術館などの施設が集まる東京ミッドタウンは、都心生活に上質な潤いを提供してくれます。

自然、公園

港区立檜町公園(徒歩6分/約440m)

港区立檜町公園
港区立檜町公園

港区立檜町公園は、「檜屋敷」と異名をとった萩藩 毛利家の麻布下屋敷の庭園跡です。東京ミッドタウンの東にあり、回遊式庭園や芝生エリアなどが利用できます。

氷川公園(徒歩5分/約330m)

氷川公園
氷川公園

「赤坂」駅に近く、地下に駐車場がある公園です。噴水とバラのある西洋庭園の趣きです。この公園の付近は江戸時代前期、浅野家の屋敷があったことでも知られます。

暮らし、インフラ

赤坂氷川神社(徒歩4分/約280m)

赤坂氷川神社
赤坂氷川神社

951年(天暦5年)に蓮林僧正が一ツ木村(現在の赤坂4丁目付近)に氷川明神の社殿を建て祀ったのが始まりで、江戸中期の1716年(享保元年)に紀州徳川家の吉宗公が8代将軍職を継ぐに際して、紀州藩の中屋敷が赤坂にあったことから、氷川明神への幕府の尊信が高まったとされます。1729年(享保14年)に、吉宗公が老中水野忠之に命じて現在地に社殿を造営。1868年(明治元年)に明治天皇から新しい首都東京の鎮護と万民の安泰を祈る「准勅祭社」に定められ、今では「東京十社」のひとつに数えられています。

赤坂地区総合支所(徒歩15分/約1,200m)

赤坂地区総合支所
赤坂地区総合支所

港区役所の総合支所で、住民登録・証明交付・転入学や戸籍に関する届出・証明発行、特別区民税・都民税・国民健康保険・国民年金・介護保険などの手続きや相談が行えます。

外堀通り(徒歩9分/約650m)

中央区八重洲二丁目を起終点とする皇居外周を巡る環状道路、都道405号外濠環状線の通称です。

六本木通り(徒歩4分/約300m)

六本木通り
六本木通り

六本木通りは都道412号の通称で、千代田区霞が関二丁目を起点に渋谷区渋谷二丁目までの区間を指します。

首都高速3号渋谷線(徒歩5分/約350m)

首都高速3号渋谷線
首都高速3号渋谷線

首都高速都心環状線から谷町ジャンクションで分岐し、東名高速道路へ至る首都高速道路です。パークマンション赤坂氷川坂からは、飯倉出入口から都心環状線に乗り、谷町ジャンクションから3号渋谷線を利用すると便利です。

首都高速都心環状線(徒歩4分/約300m)

首都高速都心環状線
首都高速都心環状線

銀座、汐留、芝公園、霞が関、北の丸、神田橋を環状する首都高速道路です。パークマンション赤坂氷川坂からは、飯倉出入口が最寄りとなります。

医療機関

虎ノ門病院(徒歩13分/約990m)

虎ノ門病院
虎ノ門病院

1958年(昭和33年)に開設し、同年10月2日総合病院として認可され、2019年(令和元年)5月1日より現在の新病院になりました。がん、血液、循環器、消化器・肝臓、呼吸器、睡眠、脳神経、腎臓、泌尿器、内分泌・代謝、間脳下垂体、乳腺、感染症、小児科、産婦人科、整形外科、外傷などの各領域の専門診療と、救急・集中医療、麻酔、リハビリ、高齢者総合などの領域横断的診療を併せて、多くのニーズに対応する全人的診療を特色としています。許可病床数は819床です。

幼稚園、保育園、学校

港区立赤坂保育園(徒歩8分/約640m)

港区立赤坂保育園
港区立赤坂保育園

港区立中之町幼稚園(徒歩9分/約680m)

港区立中之町幼稚園
港区立中之町幼稚園

港区立小中一貫教育校 赤坂学園(徒歩9分/約720m)

赤坂小学校/赤坂中学校
赤坂小学校/赤坂中学校

イベント、お祭り

赤坂氷川祭

赤坂氷川神社で毎年9月中旬に行われる祭礼です。最も重要な神事を「例祭」といい、その前後に、神輿や山車の巡行、盆踊りや露店の出店が、「神賑わい」として行われます。

まとめ

都心の躍動を間近に
最高ブランドの住まいで
喧噪と一線を画して過ごす

パークマンション赤坂氷川坂 レリーフ
パークマンション赤坂氷川坂 レリーフ

パークマンション赤坂氷川坂は、三井不動産レジデンシャル最高ブランド、パークマンションシリーズとして、威厳と優美さを兼ね備えた外観と、選び抜かれた住居素材や什器を特徴とする上質な室内空間を兼ね備えた、地上13階 地下1階、総戸数36戸のハイグレードマンションです。

「赤坂」駅、「溜池山王」駅、「六本木一丁目」駅まで徒歩6分、「六本木」駅まで徒歩9分とビジネスにも、ショッピングにも活動しやすい、良好な交通アクセスを持つパークマンション赤坂氷川坂。六本木と赤坂という二つの街に寄り添い、赤坂氷川神社とアメリカ大使館宿舎の間の丘の上に立つ好立地で、都心の躍動を身近にしながら、一方でその喧騒とは一線を画す静穏な暮らしを両立することが可能です。

パークマンション赤坂氷川坂

駅徒歩 不動産の表示に関する公正競争規約の改正(2022年9月1日)により、交通利便情報が販売中のものと異なる場合がございます。

東京メトロ千代田線
「赤坂」駅 徒歩6分

築年月

2014年9月

総戸数

36戸

階数

地上13階 地下1階