野村不動産 プラウド本郷ヒルトップ Concept 邸宅地「本郷」の高台に佇む開放感あふれる
プレミアムマンション

プラウド本郷ヒルトップ

春日駅徒歩4分、
本郷三丁目駅 徒歩5分
4駅5路線利用可能

角部屋率約80%、天井高約2.6mと採光に優れた空間設計

地上17階、総戸数89戸3LDK中心の住戸プラン

2025.02.07 公開

LOCATION ロケーション

豊穣な緑、文化、都市機能を
掌中にできる文教の地
「本郷」

古より多くの人々が暮らす、文京区。その中でも「本郷」は、縄文時代から中世にいたるまで数多くの遺跡や暮らしの痕跡が点在し、一帯が安住の地であることを物語っています。その「本郷」が農村から「江戸市中の都市」に変貌を遂げたのは、徳川家康が江戸城に入城し、江戸時代の幕が開いた時でした。大半を武家屋敷が占めたことにより、落ち着きある山手の暮らしと高い都市機能の原点が形成され、今日まで継承されています。

本郷通り 春日通り
本郷通り 春日通り
後楽園駅前
後楽園駅前

プラウド本郷ヒルトップはそんな生活利便性の高い「本郷」の丘の上に位置しており、都営三田・大江戸線「春日」駅から徒歩4分、東京メトロ丸ノ内・南北線「後楽園」駅から徒歩5分、丸ノ内線「本郷三丁目」駅、都営三田線「水道橋」駅から徒歩6分と交通利便性も非常に高い住環境です。東京、銀座、新宿、池袋などの都内主要エリアまでダイレクトにアクセスできます。バスの利便性も高く、都営バスの他に文京区のコミュニティバス「B-ぐる」が運行され、区内の主要スポットを巡ります。

プラウド本郷ヒルトップは、春日通り沿いにあるため、車を日常的に利用される方にとっても便利です。近隣は静かな住宅地で、落ち着きのある山手の暮らしを実感できる環境です。

徒歩10分圏内には、区役所や保健所が入居している複合公共機関「文京シビックセンター」があります。センター内には郵便局や銀行、コンビニなども揃っており、非常に便利です。

文京シビックセンター
文京シビックセンター

日々のお買物に関しても、徒歩10分圏内にスーパー、コンビニ、ドラッグストア、ディスカウントストアなどが点在し、揃えられない物は無いと言ってもいい環境でしょう。1階にはローソンもあり、ちょっとした買い忘れなどもストレスなく、過ごせます。
東京ドームシティやラクーアといった大型施設とも近接しており、休日を楽しむのにも絶好のロケーションです。
「後楽園」駅や「本郷三丁目」駅周辺には飲食店も多く、多種多様な「食」も楽しめます。

東京ドームシティ ラクーア
東京ドームシティ ラクーア

文京区は多くの大名屋敷があったことから、小石川後楽園や肥後細川庭園など、大名が手塩にかけて造りあげた庭園も点在しています。播磨坂の桜並木や小石川植物園などもあり、都心にありながらその豊饒な緑を存分に味わえます。区立公園も点在しており、子どもと遊ぶのにも困ることはありません。

文京区立肥後細川庭園
文京区立肥後細川庭園

加えて文京区は子育て支援が整っており、産後から高校生にいたるまで様々な手厚いサポートを受けられます。
便利な場所でのびのびと子育てをしたい方にはおすすめのエリアです。

医療機関も近隣に大きな病院が3つ、その他にも小児科や内科、歯科、皮膚科などが点在しており、日々の通院や急なケガ、病気にも安心して対応できる環境です。

FEATURES 建物の特徴

「快適さ」を第一に
考えられた
優美な邸宅

プラウド本郷ヒルトップ 外観
プラウド本郷ヒルトップ 外観

静かで落ち着いた住環境の邸宅地、山手「本郷」。プラウド本郷ヒルトップは、そんな本郷の高台の一角に佇んでいます。その特徴は何と言っても、より多くの住戸に風と光を取り込む設計で、開放感あふれる住空間を実現しています。ワンフロアあたりの住戸数が少なく、建物の三方が道路に設置した角地のため、隣地と一定の距離があり、プライバシー性の高いマンションと言えるでしょう。

プラウド本郷ヒルトップ 敷地配置図
プラウド本郷ヒルトップ 敷地配置図

コンセプト・デザイン

プラウド本郷ヒルトップ レリーフ
プラウド本郷ヒルトップ レリーフ

プラウド本郷ヒルトップは「何よりも住空間の快適性を優先する」を念頭に置いて設計されています。そのため、角部屋率は全体の約80%を誇り、採光・通風に優れた形状となっています。窓を増やし、多面採光を実現したことにより様々な表情を見せるファサードは、繊細で陰影に満ちたものとなっています。外壁には春日通りの緑の並木に調和するベージュ系の45三丁掛タイルが採用されており、やわらかな色合いと深みのある風合いで建物全体を包みこみます。バルコニーの手摺りは乳白ガラスで、淡い色調のタイルとの調和を図っています。住宅街のある南側の道路沿いにはグリーンゾーンを設け、閑静な街並みに潤いを添える植栽計画となっています。プラウド本郷ヒルトップは、美と機能性を両立した「邸宅」と呼ぶに相応しいマンションです。

建物構造

杭基礎構造

プラウド本郷ヒルトップが建つ本郷台地は関東ローム層からなる安定した地盤で、その地表面から約40mの「砂礫混じり細砂層・砂礫層」に直径約2~3mのコンクリート杭を打ち込んでいます。

ダブル配筋による強固な建物構造

シングル配筋と比べてひび割れが起きにくく、建物の耐久性が高まり、強い強度を得られるダブル配筋を採用しています。

スケルトン・インフィル構造

構造体(スケルトン)と住戸内の内装(インフィル)を分離して考えるスケルトン・インフィルを採用。耐久性に優れた構造躯体と家族の成長や家族構成の変化に応じてリフォームできる柔軟性を持つことで、安心して長く住み続けられる住まいにしています。

二重床・二重天井

将来のリフォーム・メンテナンスに配慮して、二重床・二重天井を採用しています。遮音性にも優れている構造です。

複層ガラス

断熱性を高め、結露の発生も抑える複層ガラスを採用しています。冷暖房効果も高めてくれます。

防災設備

防災倉庫

ヘルメットや工具、災害用救急箱など、地震などの非常時に必要となる緊急用具を備えた防災倉庫を設置しています。

セキュリティ

防犯性の高いオートロックと
24時間セキュリティシステム

セキュリティエレベータ

※画像はイメージです。

プラウド本郷ヒルトップでは、防犯性の高いオートロックと24時間監視するセキュリティシステムを導入しています。
オートロックの解錠には暗証番号ではなくノンタッチキーのため、オートロックシステムの効果が高まります。
エレベーターもセキュリティが導入されており、居住者はノンタッチキーで乗降できます。来訪者は来館を許可された場合、エレベーターに乗ることができます。もちろん降りられるのは訪問先の階のみです。

駐車場にはリモコンで操作できるシャッターゲート、全住戸の玄関扉・窓ガラスにはセコムの防犯センサーが設置されており、不審者の侵入を防ぎます。
各住戸の玄関キーには、約1,000億通りのキーパターンを持ち、複製がしにくく、耐ピッキング性能を有するプログレッシブシリンダーキーを採用。キー挿入時の向きを問わない便利なリバーシブルタイプです。

COMMON AREA 共用部

細やかな配慮が
散りばめられた
品格ある空間設計

春日通り側に設けられた緑からはじまる「迎賓」の心が感じられるデザインとなっています。

共用施設

アプローチ

プラウド本郷ヒルトップ アプローチ
プラウド本郷ヒルトップ アプローチ

春日通り沿いに設けられたグリーンゾーンを抜けると、この邸宅の顔であるなだらかなアプローチに辿り着きます。プライバシー性を高めるために外部から十分に奥行きが取られ、帰られた方をプライベートモードへと誘います。

エントランスホール

二層吹き抜けの開放的な設計のエントランスホールです。ライムストーン貼りの壁と御影石が敷き詰められた床は、上質で静かな空間を演出しています。ホールの奥にはラウンジコーナーが設けられています。エントランスホールから住戸へは、ホテルライクな内廊下が続きます。

駐車場

全29台分(来客用および身障者優先区画含む)の駐車スペースが用意されています。駐車場の入口にはリモコン式のシャッターゲートが設置されており、セキュリティにも配慮されています。また、EV充電器も完備しています。

ダストステーション

各階の共用部に24時間ゴミ出しが可能なダストステーションを設置。エレベーターに乗ってのゴミ出しの手間も無く、天候を気にする必要もありません。

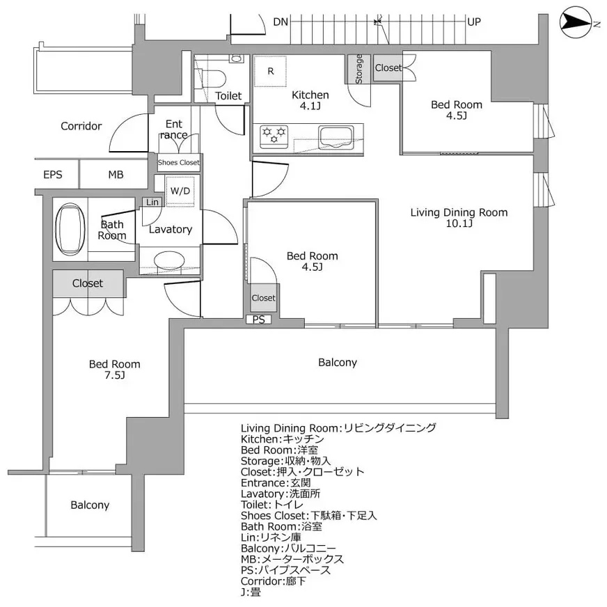
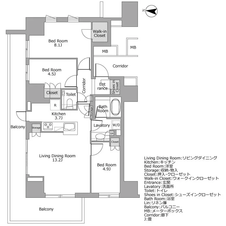
FLOOR PLAN 間取り図一例

採光にこだわった
ファミリー向け中心の
住戸プラン

プラウド本郷ヒルトップ 間取り図例
プラウド本郷ヒルトップ 間取り図例
プラウド本郷ヒルトップ 間取り図例
プラウド本郷ヒルトップ 間取り図例

プラウド本郷ヒルトップは、広さ50㎡台後半~80㎡台前半、3LDK中心のファミリー向けのプラン展開。採光へのこだわりから二面にバルコニーがあるタイプも用意されています。

INSIDE THE ROOM 室内

不変の快適性にこだわった
光あふれる住空間

多面採光にこだわった設計のプラウド本郷ヒルトップは、全体の約80%が角部屋。リビング・ダイニングの天井高は約2.6m、サッシの高さも約2.1mあり、広がりを感じられる空間設計となっています。全戸に奥行き約1.8mのワイドバルコニーが備えられており、大きな開口部から明るい光と爽やかな風を取り込め、快適な暮らしがおくれます。また、スケルトン・インフィル構造のため、ライフスタイルに合わせて間取りの変更も比較的簡単にできるようになっています。

室内仕様

リビング・ダイニング

床暖房

※画像はイメージです。

カラダに優しく、心地よい室温を保つTES温水式床暖房を設置。温風に比べて埃が舞い上がりにくく、綺麗で快適な空気環境が保てます。エアコンは、室内をスッキリとし印象に保つ天井カセット型を標準装備しています。

キッチン

ディスポーザー

※画像はイメージです。

モダンで美しいシステムキッチン、エコロジカルなディスポーザ、食器洗いの手間と節水を実現する食器洗い乾燥機、お手入れの簡単なガラストップコンロなど、日々の炊事をサポートしてくれる機能的な設備が設置されています。

バスルーム

換気はもちろん、洗濯物の乾燥や暖房機能を備えたマルチなTES浴室暖房乾燥機を設置。浴槽はお湯が冷めにくく、いつでも快適に入浴できる高断熱浴槽を採用していま。

トイレ

トイレ内には天然御影石を採用した専用のカウンター付き手洗いボウルを標準装備しています。

ACCESS アクセス

生活の幅を大きく広げる
4駅5路線の好アクセス

都営三田・大江戸線、東京メトロ丸ノ内・南北線、JR中央総武線の4駅5路線が利用でき、思うがままの都心暮らしを愉しめます。タクシーでの移動も便利です。

鉄道

都営三田・大江戸線 春日駅
都営三田・大江戸線 春日駅
都営大江戸線 本郷三丁目駅
都営大江戸線 本郷三丁目駅

プラウド本郷ヒルトップの最寄り駅は徒歩4分の都営三田・大江戸線「春日」駅。東京メトロ丸ノ内・南北線「後楽園」駅からも徒歩5分です。徒歩10分圏内には東京メトロ丸ノ内線「本郷三丁目」駅、都営三田線・JR中央総武線「水道橋」駅もあり、非常に便利です。

飯田橋駅

都営大江戸線 飯田橋駅
都営大江戸線 飯田橋駅

都営大江戸線「春日」駅から「飯田橋」駅まで所要時間は約2分です。

永田町駅

東京メトロ南北線 永田町駅
東京メトロ南北線 永田町駅

東京メトロ南北線「後楽園」駅から「永田町」駅まで所要時間は約8分です。

池袋駅

東京メトロ丸ノ内線 池袋駅
東京メトロ丸ノ内線 池袋駅

東京メトロ丸ノ内線「後楽園」駅から「池袋」駅まで所要時間は約8分です。

新宿駅

都営大江戸線 新宿西口駅
都営大江戸線 新宿西口駅

都営大江戸線を利用し、約13分の「新宿西口」駅で下車します。「新宿」駅までは徒歩5分で、所要時間は約18分です。

タクシー

タクシー

※画像はイメージです。

交通状況により多少の変動はありますが、道路があまり混雑していない場合の目安です。プラウド本郷ヒルトップは春日通り沿いに位置しているため、タクシー使用時も大変便利です。

エリア 所要時間
飯田橋駅 約5分
永田町駅 約16分
池袋駅 約17分
新宿駅 約21分

バス

バス

※画像はイメージです。

プラウド本郷ヒルトップから徒歩2分、春日通り沿いに都営バス「真砂坂上」バス停があります。大塚駅前行き「都02」、小滝橋車庫前行き「上69」が運行されています。

都営バス 真砂坂上停留所
都営バス 真砂坂上停留所

旧東富阪を経由した徒歩4分の都営バス「東京ドームシティ」バス停からは一ツ橋行きの「都02乙」が運行されています。
向かい側、白山通り沿いにあるコミュニティバス「B-ぐる」の「ラクーア」バス停からは「千駄木・駒込ルート」が運行されています。

B-ぐる ラクーア停留所
B-ぐる ラクーア停留所

コミュニティバス「B-ぐる」は、「千駄木・駒込ルート」「目白台・小日向ルート」「本郷・湯島ルート」の3ルートが運行されており、文京シビックセンターや「江戸川橋」駅、「御茶ノ水」駅、順天堂病院など、駅や主要な施設を巡ります。

同じ白山通り沿いには都営バス「東京ドームシティ」バス停もあり、大塚駅前行き「都02」、池袋駅東口行き「都02乙」が運行されています。

都営バス 東京ドームシティ停留所
都営バス 東京ドームシティ停留所

空港

空港

※画像はイメージです。

羽田空港へのルート

1 電車

・ルート1:都営三田・大江戸線を利用し「三田」駅まで行き、都営浅草線快特に乗り換えれば、そのまま終点の「羽田空港第1・第2ターミナル」駅に着きます。所要時間は約50分です。
・ルート2:東京メトロ丸ノ内線「後楽園」駅から「東京」駅まで行き、JR京浜東北・根岸線快速に乗り換え「浜松町」駅で下車。東京モノレール空港快速に乗り換えればそのまま終点の「羽田空港第1ターミナル」駅に着きます。所要時間は約41分です。

2 タクシー

交通状況により多少の変動はありますが、所要時間は約29分です。

3 リムジンバス

「秋葉原」駅から羽田空港行きのリムジンバスが運行されています。「秋葉原」駅までは車で約10分ですので、タクシーがおすすめです。秋葉原駅から「羽田空港第1・第2ターミナル」駅までの所要時間は約40分ですので、合計所要時間は70分ほどを見ておくと安心でしょう。

成田空港へのルート

1 電車

都営三田・大江戸線を利用し「上野御徒町」駅まで行き、徒歩11分の「京成上野」駅から京成成田空港線に乗り換えれば、そのまま終点の「成田空港」駅に着きます。所要時間は約60分です。

2 リムジンバス

東京ドームホテルから成田空港行きのリムジンバスが運行されています。東京ドームホテルまでは車で約7分ですので、タクシーがおすすめです。
ホテルから「成田空港第1ターミナル」駅までの所要時間は約105分ですので、合計所要時間は130分ほどを見ておくと安心でしょう。

新幹線発着駅

「東京」駅へのルート

東京メトロ丸ノ内線「本郷三丁目」駅から直通で約7分です。
タクシーの場合、所要時間は最大約17分です。

「品川」駅へのルート

都営三田・大江戸線を利用し「三田」駅で都営浅草線特急に乗り換えます。合計の所要時間は約24分です。
タクシーの場合、所要時間は最大約30分です。

LIFE
INFORMATION 周辺の施設・店舗情報

山手らしい住環境と
高い都市機能が交差する

古くから人々が暮らし、発展してきた「本郷」。そのため周辺には区の行政機関や文化施設、大型商業施設が集積しています。東京屈指の文教地区でもあるため、私立・公立問わず教育機関が数多く点在しています。また、文京区は下町情緒が漂う商店街も多く、スーパーやコンビニ、ドラッグストアなどもあり、日々のお買物に困ることはありません。加えて小石川植物園を始めとした公園も多く、日常的に自然にも触れあえます。

商業施設、商店街

東京ドームシティ(徒歩5分/約400m)

東京ドームシティ
東京ドームシティ

東京ドームや東京ドームシティアトラクションズ、後楽園ホール、ラクーア、東京ドームホテルなどの施設で構成される都内最大規模のエンターテインメント施設です。年間を通じて多くのイベントなども行われ、子どもから大人まで楽しめます。JR中央総武線、都営三田・大江戸線、東京メトロ丸ノ内・南北線の5路線が利用でき、非常にアクセスの良い施設です。

ASOBono!(アソボーノ)
(徒歩7分/約500m)

東京ドームシティASOBONO
東京ドームシティASOBONO

東京ドームシティ内にある都内最大級の屋内型キッズ施設です。子どもだけでなく大人も一緒に遊ぶことができ、ボールプールやすべり台など、さまざまなアクティビティを楽しむことができます。天候を気にすることなく、安心して子どもと遊べます。

ラクーア(LaQua)(徒歩5分/約400m)

ラクーア
ラクーア

東京ドームシティに併設されている融合商業施設です。スパやサウナ、アトラクション、レストラン、スーパー、ドラッグストアなどがあり、こちらも多くの人で賑わっています。

ラクーア 店舗
ラクーア 店舗

成城石井 東京ドームラクーア店
(徒歩7分/約500m)

成城石井 東京ドームラクーア店
成城石井 東京ドームラクーア店

ラクーア1階にあります。入口がバリアフリーで、店内も広々としており、お買物がとてもしやすいと評判のスーパーです。

まいばすけっと本郷春日通り店
(徒歩3分/約180m)

まいばすけっと本郷春日通り店
まいばすけっと本郷春日通り店

プラウド本郷ヒルトップから徒歩3分。春日通り沿いにあります。

徒歩5分の最寄り駅都営三田・大江戸線「春日」駅周辺はスーパー激戦区で、大手チェーンや高級スーパーがひしめくエリア。
「春日」駅より徒歩10分圏内に3店舗あり、通勤やお出かけからのお帰りの際にも便利です。

マルエツ春日駅前店(徒歩6分/約450m)

マルエツ 春日駅前店
マルエツ 春日駅前店

都営三田・大江戸線「春日」駅と直結しており、お帰りの際のお買物に便利です。1階にお惣菜やお弁当、飲料など、2階に生鮮食品があります。1階にはイートインスペースも併設されています。15台分の駐車場があります。

クイーンズ伊勢丹小石川店
(徒歩13分/約1,000m)

クイーンズ伊勢丹 小石川店
クイーンズ伊勢丹 小石川店

輸入食材・直輸入ワイン・有名チーズなども取り揃えた、高品質なプライベートブランドを持つ食品専門の高級スーパー。イートイン併設のベーカリーコーナーでは、焼きたてのパンをその場で頂くこともできます。
地下に駐車場があり、車での来店も可能です(台数制限あり)。

ダイエー小石川店(徒歩12分/約950m)

ダイエー小石川店
ダイエー小石川店

お手頃価格で、日用品から生鮮食品まで揃う地域密着型のスーパーです。調剤薬局も併設されており非常に便利です。

ライフ本郷三丁目駅前店(徒歩7分/約500m)

ライフ本郷三丁目駅前店
ライフ本郷三丁目駅前店

もう一つの最寄り駅、都営大江戸線「本郷三丁目」駅から徒歩2分のスーパーで、お惣菜やお弁当、パンが豊富に取り揃えられています。

近隣にはディスカウントストア、ホームセンターもあり、目的に合わせてお買物ができます。

ドン・キホーテ後楽園店(徒歩4分/約300m)

ドン・キホーテ後楽園店
ドン・キホーテ後楽園店

オリンピック白山店(徒歩12分/約900m)

オリンピック白山店
オリンピック白山店

DIYやガーデニング用品、スポーツ用品、ペット用品、インテリア、日用品などが揃います。

コーナンドイト後楽園店(徒歩4分/約300m)

コーナンドイト後楽園店
コーナンドイト後楽園店

都内では希少なホームセンターです。

その他に徒歩10分圏内にコンビニ、ドラッグストア、100円ショップなどもあり、生鮮食品から日用品、DIY、ペット用品など様々な物が揃う便利な環境です。

ローソン文京シビックセンター前店
(徒歩4分/約300m)

ローソン 文京シビックセンター前店
ローソン 文京シビックセンター前店

くすりの福太郎春日駅前店
(徒歩5分/約400m)

くすりの福太郎春日駅前店
くすりの福太郎春日駅前店

薬 マツモトキヨシ メトロ・エム後楽園店
(徒歩8分/約600m)

薬 マツモトキヨシ メトロ・エム後楽園店
薬 マツモトキヨシ メトロ・エム後楽園店

東京メトロ丸ノ内・南北線「後楽園」駅直結の商業施設「メトロM後楽園」3階。

ダイソー メトロ・エム後楽園店
(徒歩7分/約550m)

ダイソー メトロ・エム後楽園店
ダイソー メトロ・エム後楽園店

東京メトロ丸ノ内・南北線「後楽園」駅直結の商業施設「メトロM後楽園」4階。

ローソン文本郷三丁目メトロピア店
(徒歩6分/約450m)

ローソン 本郷三丁目メトロピア店
ローソン 本郷三丁目メトロピア店

東京メトロ丸ノ内線「本郷三丁目」駅構内にあります。

セブンイレブン文京本郷二丁目店
(徒歩5分/約350m)

セブンイレブン 文京本郷二丁目店
セブンイレブン 文京本郷二丁目店

自然、公園

文京区立礫川公園(徒歩7分/約550m)

文京区立礫川公園
文京区立礫川公園

かつて軍用地であった小石川台地に造られた区立公園です。高低差をいかした3段の構造で、中段には八重桜の「関山」、上段には染井吉野が植えられています。童謡『小さい秋みつけた』3番の歌詞のモデルになったハゼノキは、文京区弥生にあった作詞者サトウハチロー旧宅跡地から移植されたもので、秋には燃えるような朱色に変わります。また、文京区ゆかりの文学者宮沢賢治が残したデザイン由来の花壇があり、文学の歴史にも触れられる文京区ならではの公園です。上段には遊具のある遊び場もあり、取材日には子ども達が元気に遊んでいました。東京メトロ丸ノ内・南北線「後楽園」駅に直結しています。

東京ドーム周辺の銀杏並木
(徒歩9分/約700m)

東京ドーム 銀杏並木
東京ドーム 銀杏並木

秋には東京ドーム周辺の銀杏が黄色く色づき、その美しい景色に多くの人々が足を止めます。

小石川後楽園(徒歩9分/約700m)

小石川後楽園
小石川後楽園

江戸の大名庭園として現存する最古の庭園である小石川後楽園は、江戸初期の寛永6(1629)年初代水戸藩主徳川頼房が築造し、2代藩主光圀によって完成されました。中国趣味を取り入れた「回遊式築山泉水庭園」では、山や川、湖、田園などの景観が見事に表現されています。全国でたった9つしかない特別史跡および特別名勝の指定を受けた名園です。

小石川植物園(徒歩20分/約1,600m)

小石川植物園
小石川植物園

日本で最も古い植物園であり、世界でも有数の歴史を持つ植物園でもある小石川植物園は、植物学の研究・教育を目的とする東京大学の附属施設です。161,588m²という広大な敷地には台地、傾斜地、低地、泉水地などの地形を利用して様々な植物が配置され、豊かな緑で溢れています。遺伝学の礎を築いたメンデルが実験に用いたブドウの分株や小石川養生所で使われた井戸など、長い歴史を物語る数多くの由緒ある植物や遺構が今も残されており、国の史跡および名勝に指定されています。

暮らし、インフラ

文京シビックセンター(徒歩6分/約450m)

文京シビックセンター
文京シビックセンター

地下2階・地上26階の建物内にホール、区役所、区議会、保健所、高齢者や子育て世代に向けた区民施設などが入居している、東京メトロ丸ノ内・南北線「後楽園」駅直結の複合公共施設。8階~21階が区役所で、利用が多い戸籍住民課は2階に窓口が設けられています。25階には東京スカイツリーや富士山、筑波山などまで見渡せる330度の大パノラマの展望ラウンジがあり、夜は東京の美しい夜景も楽しめます。1階にはカフェ、郵便局、ATM、コンビニもあり、非常に便利です。

文京シビックセンターの前にはコミュニティバス「B-ぐる」のバス停があり、「千駄木・駒込ルート」「目白台・小日向ルート」「本郷・湯島ルート」の3ルート全てが運行されています。

B-ぐる 文京シビックセンター停留所
B-ぐる 文京シビックセンター停留所

文京春日郵便局(徒歩6分/約450m)

文京春日郵便局
文京春日郵便局

文京シビックセンター1階にあります。

文京区立真砂中央図書館(徒歩4分/約260m)

文京区立真砂中央図書館
文京区立真砂中央図書館

読み聞かせや映画鑑賞会、クリスマス会など赤ちゃんや子ども向けのイベントが定期的に行われています。

東京科学大学病院(徒歩15分/約1,200m)

東京科学大学病院
東京科学大学病院

医歯総合、その先には理工学との融合を目標とし、「頭から足先まで」トータルで受診できる国立大学病院で、高度な医療を提供する「特定機能病院」として厚生労働省から認定を受けています。医科では、難治性疾患(特に悪性腫瘍、神経難病、循環器疾患、自己免疫疾患、アレルギー疾患遺伝性疾患、生活習慣病)の診断・治療を得意としており、新たな治療法の開発などにも取り組んでいます。

東京大学医学部附属病院
(徒歩14分/約1,100m)

東京大学医学部附属病院
東京大学医学部附属病院

2024年にNewsweek誌が発表した「World Best Hospital」では、日本で1位、世界でも18位と高い評価を受けた総合病院です。
厚生労働省より「特定機能病院」として認定されており、ロボット支援手術、がんゲノム医療、臓器移植などの高度な最先端医療を行っています。また、東京都の総合周産期母子医療センターとしてリスクの高い妊娠・出産、新生児医療にも取り組んでいます。災害派遣医療チームや日本医師会災害医療チームに医師や看護師を派遣し、災害派遣にも貢献しています。

きたなかこども成長クリニック
(徒歩4分/約300m)

一般的な小児科以外に、小児内分泌内科、小児糖尿病内科、思春期内科があり、低身長など成長・内分泌疾患、アレルギー疾患は専門的に診療しています。

春日後楽園しのぶクリニック
(徒歩7分/約500m)

春日後楽園しのぶクリニック
春日後楽園しのぶクリニック

内科、泌尿器科、循環器内科の受診ができます。東京メトロ丸ノ内・南北線「後楽園駅」7番出口に直結しています。

フィックスデンタルクリニック
(徒歩6分/約450m)

フィックスデンタルクリニック
フィックスデンタルクリニック

インプラント治療に定評のある歯科です。歯科・口腔外科・矯正歯科・小児歯科の受診ができます。
都営三田・大江戸線「春日」駅A5出口に直結しています。

幼稚園、保育園、学校

弓町本郷幼稚園(徒歩3分/約190m)

弓町本郷幼稚園
弓町本郷幼稚園

区立本郷保育園(徒歩2分/約130m)

本郷保育園
本郷保育園

文京区立本郷小学校(徒歩4分/約260m)

文京区立本郷小学校
文京区立本郷小学校

文京区立本郷台中学校(徒歩5分/約350m)

文京区立本郷台中学校
文京区立本郷台中学校

桜蔭中学校高等学校(徒歩7分/約500m)

桜蔭中学校高等学校
桜蔭中学校高等学校

東京都立工芸高校(徒歩9分/約700m)

東京都立工芸高等学校
東京都立工芸高等学校

イベント、お祭り

文京花の五大まつり

豊かな緑に恵まれた街「文京区」。花の見頃に合わせて毎年「文京花の五大まつり」が開催されます。

お祭りごとに趣向が凝らされ、さまざまな催しや体験型イベントが楽しめます。

文京朝顔・ほおずき市

毎年7月に開催される「文京朝顔・ほおずき市」は、江戸時代から続く文京区の夏の風物詩。美しく多彩な朝顔と鮮やかな朱色のほおずきがたくさん並びます。鉢植えや苗、関連グッズの販売の他に、花合わせ会(品評会)、伝統芸能のパフォーマンス、ワークショップや模擬店・物産展、飲食ブースもあり、親子で楽しめるお祭りです。
会場は区内にある傳通院、源覚寺、澤蔵司稲荷、善光寺の4つの寺院。各会場を周っても600メートル弱の距離なので、子どもと一緒に散策しながら楽しめます。

傳通院
傳通院

まとめ

山手「本郷」で理想の
都心生活を叶える邸宅

江戸時代の面影が残る山手「本郷」の落ち着いた住環境を味わいながら、4駅5路線を利用でき、徒歩10分圏内に暮らしを豊かにする環境も整っているプラウド本郷ヒルトップ。都心でありながら、小石川植物園をはじめとする豊かな緑とも日常的に触れ合えます。

より多くの住戸に風と光を取り込む設計で、開放感あふれる住空間を持つプラウド本郷ヒルトップ。ワンフロアあたりの住戸数が少なく、また、建物の三方が道路に設置した角地のため、隣地と一定の距離があり、プライバシー性の高いマンションとも言えるでしょう。

プラウド本郷ヒルトップは、誰もが願う「理想の都心生活」を叶える邸宅と言えるでしょう。

プラウド本郷ヒルトップ

駅徒歩 不動産の表示に関する公正競争規約の改正(2022年9月1日)により、交通利便情報が販売中のものと異なる場合がございます。

都営三田線
「春日」駅 徒歩4分

築年月

2014年2月

総戸数

89戸

階数

地上17階