三菱地所レジデンス ザ・パークハウス
四番町レジデンス
Concept 市ヶ谷駅から帯坂を上り二七通りを左に進んだ右手、駅徒歩2分、彫の深いオリジナルタイルに格子状のルーバーが伸びる外観、日本の伝統的な武家屋敷にも使われた「ささら子下見張り」を現代風にアレンジしたエントランス周りの石張り、「日本的美意識」をテーマにした意匠

ザ・パークハウス四番町レジデンス

「市ヶ谷」駅 徒歩2分 「半蔵門」駅 徒歩5分、「麹町」駅 徒歩8分
4駅5路線利用可

全邸南向き1フロア3邸、2/3が角住戸

地上14階
総戸数39戸

2025.05.30 公開

LOCATION ロケーション

番町に建つ 風通しや
採光性の良い高台

「市ヶ谷」駅
「市ヶ谷」駅

ザ・パークハウス四番町レジデンスは千代田区四番町に建っており、都営新宿線「市ヶ谷」駅まで徒歩2分という駅に近い立地になります。JR線「市ヶ谷」駅、東京メトロ有楽町線、南北線「市ヶ谷」駅も徒歩圏内にあるほか、東京メトロ半蔵門線「半蔵門」駅、有楽町線「麹町」駅も近く、交通の便の良いエリアでもあります。

「市ヶ谷」駅から帯坂を上って二七通りを左に進んだ右手にあり、日本大学の裏手ほどに位置。都会的な雰囲気を残しつつもメインストリートからは奥まったところになり、落ち着いた環境が確保されています。番町の高台ということもあって採光性や通風性が良く、山手線の内側を中心に暮らせるという豊かさがステータスを高めます。

上智大学
上智大学

建物の周辺は行人坂や東郷元帥記念公園などがあり、都会にありながら緑を感じられます。このエリアは文教地区にも指定されており、日本大学のほかに上智大学、大妻女子大学なども近接、アカデミックな空気が漂います。こうした学術機関の存在が街に活力をもたらし、高台の邸宅地を価値の高いものにします。

FEATURES 建物の特徴

和とモダンが織りなす
風格漂うファサード

ザ・パークハウス四番町レジデンス アプローチ
ザ・パークハウス四番町レジデンス アプローチ

1フロアにつき3戸というゆとりをもたせた設計により、高さのある建物になっています。「日本的美意識」をテーマにしたデザインにより、圧迫感を与えない気品あふれるファサードに仕上がっています。

コンセプト・デザイン

ザ・パークハウス四番町レジデンス  敷地配置図
ザ・パークハウス四番町レジデンス 敷地配置図

ザ・パークハウス四番町レジデンスは2013年7月に竣工した、地上14階地下1階建てのマンションです。総戸数は39戸で、住戸専有面積は70.41~88.36㎡、分譲時の間取りは2LDKと3LDKになっています。1フロアに3戸というゆとりをもたせた設計で、すべての邸宅が南向きという通風採光の良さが魅力のひとつです。また、総戸数の2/3が角住戸になります。

ザ・パークハウス四番町レジデンス 外観
ザ・パークハウス四番町レジデンス 外観

ファサードのデザインは、「日本的美意識」がテーマに設定されています。高さのある建物でありながら圧迫感を与えない、現代的でシャープなデザインが施されていながら、日本的な落ち着いた意匠も散りばめられています。彫の深いオリジナルタイルや、格子状のルーバー、さらに、エントランス周りの石張りは武家屋敷にも使われていたという工法の「ささら子下見張り」を現代風にアレンジ。主張しすぎず、それでいて風格を表す凛とした姿が印象的です。

ザ・パークハウス四番町レジデンス エントランス
ザ・パークハウス四番町レジデンス エントランス

エントランス前には植栽もあり、季節の移り変わりを感じられるような気品を感じます。また、キャノピーが大きく張り出していて、車寄せも設けられています。ゲストを迎えるときも優雅さを忘れない、おもてなしの趣向があります。和とモダンが調和した外観から、ザ・パークハウス四番町レジデンスがもつ独自の美学を見て取ることができるでしょう。

建物構造

複層ガラス

外部の温度が室内へ影響しないようにするため、ガラスの間に空気層を設けた複層ガラスの窓を設置しています。断熱性が高まり、冷暖房効率がアップします。

セキュリティ

セキュリティシステム「LIFE EYES」

住戸内で異常を確認した場合、オンラインでセコムコールセンターと三菱地所コミュニティコールセンターが警報を受け取ります。警備会社と管理会社が連携を取り、適切に対応します。警備員が速やかに現場に向かい、状況によっては警察や消防に通報します。共用部の設備異常も24時間体制で監視しています。

防犯エレベーター

エレベーター内の映像を、1階にある防犯モニターで確認できます。密室化による危険性を軽減します。

開閉センサー

すべての住戸の玄関扉と窓(FIX窓を除く)に開閉センサーがセットされています。不正な開閉を感知すると、住宅情報盤でアラームが鳴ります。管理室や警備会社に通報が届き、適切に対応されます。

TVモニター付インターホン

住戸内にあるTVモニター付インターホンにより、風除室、エントランスホールのオートロックを管理します。訪問者の姿を映像や音声で確認してから解錠できます。

防犯サムターン&鎌式デッドボルト

針金などによって玄関扉を解錠するのを防ぐために、防犯サムターンを採用しています。破壊行為に対しては、こじ開けを防止する鎌式デッドボルトを取り入れています。

ダブルロック&ノンタッチキー

玄関ドアは上下2箇所にシリンダー錠を設置しており、防犯性能を高めています。エントランスの自動ドアなどは、キーを差し込まず受信機にかざすことによって解錠できるノンタッチキーになっています。雨の日や荷物が多い日でも、快適に通過できます。

COMMON AREA 共用部

ファサードの
意匠を引き継ぐ
エントランスホール

共用施設

エントランスホール

エントランスから連続するかのように、日本的な情緒が随所に感じられる空間です。木と金属のルーバーが水平・垂直のラインを形成し、シャープさを演出。趣きのあるピクチャーガーデンには景石と季節を表す植栽が心を和ませます。床と壁はブラウン系で統一され、落ち着いた雰囲気を演出。さらに、ホワイト系の天井が空間に広がりを感じさせます。味わいのあるイスとテーブルが奥ゆかしさを醸し出し、都会の喧騒とは一味違った空間のリズムを作り出します。

内廊下

各住戸へのアプローチは内廊下の設計になっており、ホテルのような快適さを得られます。外部の視線が届かず、1フロア3戸のみの作りになっているので、高いプライバシー性が確保されています。私邸と呼ぶにふさわしい静かな道が描かれています。

宅配ボックス

不在のときでも荷物が配達され、一時的に保管できる宅配ボックスが設置されています。

駐車場

14台分(身障者対応)の駐車場を確保しています。全長5.3m、全幅2.05m、高さ2mと、スペースに余裕をもたせています。最大車両重量は2,300kgと、さまざまな車種が駐車できるようにしています。

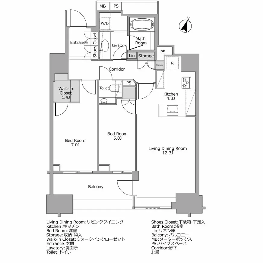
FLOOR PLAN 間取り図一例

ウォークイン
クローゼットで
充分な収納力を確保

ザ・パークハウス四番町レジデンス 間取り図例
ザ・パークハウス四番町レジデンス 間取り図例
ザ・パークハウス四番町レジデンス 間取り図例
ザ・パークハウス四番町レジデンス 間取り図例

INSIDE THE ROOM 室内

エレガントな時間が流れる
成熟した大人の空間

リビング・ダイニングには、ザ・パークハウス四番町レジデンスのテーマである「日本的な美意識」を取り入れた空間が広がります。和とモダンが融合した洗練されたデザインに加え、エレガントな雰囲気が成熟した上質さを演出。さらに、玄関や洋室にもその美意識が息づき、細部にまでこだわった上品な居住空間が提供されています。

キッチン

※画像はイメージです。

天然石のカウンタートップが美しい対面キッチンが用意されており、家族や友人とのコミュニケーションがさらに深まります。キッチンの空間そのものがデザイン性を保持し、調理のモチベーションをさらに高めてくれます。
キッチンには、次のような設備などが整えられています。

  • 節湯型キッチン水栓
  • ガラストップコンロ
  • キッチンバックカウンター収納
  • スライド収納
  • 食器洗い乾燥機
  • 電子コンベック

バス&ラバトリー

水回りも気持ち良く使えるように、ライトブラウンを基調としたスタイリッシュなデザインが施されています。洗面台は天然石のカウンタートップを使用するなど、高級感を演出することにも力を入れています。浴室の床は大きなタイルが丁寧に貼られ、リラックスタイムを過ごすのに適したゆとりが感じられます。

バス&ラバトリーには、次のような設備が導入されています。

  • 天然石カウンターの洗面ボウル
  • 浴室暖房乾燥機
  • 節湯シャワーヘッド
  • 節水型タンクレストイレ
  • トイレ手洗いカウンター
  • フルオートバス

ACCESS アクセス

複数の駅・路線が
徒歩圏内に
各都市へのアクセスが良好

鉄道

「市ヶ谷」駅
「市ヶ谷」駅

最寄り駅は都営新宿線「市ヶ谷」駅で、徒歩約2分の近距離にあります。さらに、JR中央・総武緩行線「市ヶ谷」駅や東京メトロ有楽町線、南北線「市ヶ谷」駅にも近く、各方面への移動がスムーズです。都内主要エリアへのアクセスにも優れ、暮らしの幅が広がります。
こちらでは、最寄りの「市ヶ谷」駅から、主要エリアへの所要時間を紹介いたします。

掲載の所要分数は日中平常時のもので、乗り換え・待ち時間等は含みません。
また時間帯により異なる場合があります。

「新宿」駅

「新宿」駅
「新宿」駅

都営新宿線「市ヶ谷」駅から、「新宿」駅まで直通で約6分です。

「渋谷」駅

「渋谷」駅
「渋谷」駅

JR中央総武線「市ヶ谷」駅から、「代々木」駅でJR山手線に乗り換えます。「渋谷」駅まで約13分です。

「六本木」駅

「六本木」駅
「六本木」駅

都営新宿線「市ヶ谷」駅から、「新宿」駅で都営大江戸線に乗り換えます。「六本木」駅まで約15分です。

「銀座」駅

「銀座」駅
「銀座」駅

東京メトロ南北線「市ヶ谷」駅から、「溜池山王」駅で東京メトロ銀座線に乗り換えます。「銀座」駅まで約10分です。

タクシー

※画像はイメージです。

行き先 所要時間
「新宿」駅 約14分
「渋谷」駅 約19分
「六本木」駅 約14分
「銀座」駅 約14分

所要時間は道路事情により、実際と異なる場合があります。

バス

※画像はイメージです。

「市ヶ谷」駅の近くに都バスの「市ヶ谷駅前」バス停があります。「新大久保」駅、「霞が関」駅、「新橋」駅、といった主要エリアへも軽快にアクセスできます。

空港

※画像はイメージです。

ザ・パークハウス四番町レジデンスは、国内外を問わずアクセス良好なことが魅力です。最寄り駅である「市ヶ谷」駅やマンションからの移動ルートを紹介します。

羽田空港へのルート

①電車

JR中央総武線「市ヶ谷」駅から、「秋葉原」駅でJR京浜東北線・根岸線快速に乗り換えます。さらに「浜松町」駅で東京モノレールに乗り換えます。所要時間は約34分です。

②タクシー

所要時間は約31分です。

成田空港へのルート

①電車

都営新宿線「市ヶ谷」駅から「馬喰横山」駅で下車、「東日本橋」駅に向かい都営浅草線エアポート快特に乗り換えます。所要時間は約68分です。

②タクシー

所要時間は、約60分です。

③リムジンバス

ザ・パークハウス四番町レジデンスから徒歩約18分のところにある「東京ガーデンテラス紀尾井町」から、成田空港行きのリムジンバスが利用できます。所要時間は約116分です。

新幹線発着駅

「東京」駅へのアクセス

JR中央総武線「市ヶ谷」駅から、「御茶ノ水」駅でJR中央線快速に乗り換えます。所要時間は約11分です。
タクシーなどを使った車移動の場合は、約14分です。

「品川」駅へのアクセス

JR中央総武線「市ヶ谷」駅から、「代々木」駅でJR山手線に乗り換えます。所要時間は約26分です。
タクシーなどを使った車移動の場合は、約26分です。

LIFE
INFORMATION 周辺の施設・店舗情報

充実した商業施設など
駅近の立地が
生きるエリア

「市ヶ谷」駅や「半蔵門」駅などが近接していることもあり、商業施設や生活に必要な施設などが徒歩圏内にある点が大きな魅力。日常生活を快適に送れます。

商業施設、商店街

成城石井市ヶ谷店(徒歩5分/約350m)

成城石井市ヶ谷店
成城石井市ヶ谷店

二七通りを西側へまっすぐ進んだところにあるスーパーマーケットです。マンションから移動しやすい立地で、日々の買い物に便利です。

ココカラファイン市ヶ谷駅前店(徒歩5分/約400m)

ココカラファイン市ヶ谷駅前店
ココカラファイン市ヶ谷駅前店

「市ヶ谷」駅前にあるドラッグストアです。お帰りの際に立ち寄りやすい場所にあります。

ミニストップ 九段南4丁目店(徒歩2分/約120m)

ミニストップ 九段南4丁目店
ミニストップ 九段南4丁目店

二七通りと東郷通りの交差点にあるコンビニエンスストアで、マンションのすぐ近くにあります。

自然、公園

東郷元帥記念公園(徒歩2分/約110m)

東郷元帥記念公園
東郷元帥記念公園

マンションのすぐ近くにある、ある程度の規模をもつ公園です。園内には東郷平八郎連合艦隊司令長官にゆかりのあるライオン像や力石などが残されており、子どもたちが楽しく遊べる遊具もそろっています。

暮らし、インフラ

千代田区麹町出張所・区民館(徒歩10分/約750m)

千代田区麹町出張所・区民館
千代田区麹町出張所・区民館

東京メトロ半蔵門線「半蔵門」駅や東京メトロ有楽町線「麹町」駅の近くに位置する行政サービスセンターです。生活サポートの窓口として活用できます。

千代田区立四番町図書館(徒歩5分/約400m)

千代田区立四番町図書館
千代田区立四番町図書館

一般閲覧室・児童室を完備しており、番町・麹町地域資料や伝統芸能関連資料も揃う図書館です。

幼稚園、保育園、学校

千代田区立九段幼稚園(徒歩3分/約240m)

千代田区立九段幼稚園
千代田区立九段幼稚園

千代田区立九段小学校(徒歩5分/約350m)

千代田区立九段小学校
千代田区立九段小学校

千代田区立麹町中学校(徒歩18分/約1,400m)

千代田区立麹町中学校
千代田区立麹町中学校

まとめ

成熟した土地と調和した
大人の居住空間

ザ・パークハウス四番町レジデンス レリーフ
ザ・パークハウス四番町レジデンス レリーフ

ザ・パークハウス四番町レジデンスはJR山手線内側の千代田区四番町の高台に建つ、地上14階地下1階建てのマンションです。都営新宿線「市ヶ谷」駅まで徒歩2分という駅に近い立地で、その他東京メトロ、JRの「市ヶ谷」駅や東京メトロ半蔵門線「半蔵門」駅、有楽町線「麹町」駅も徒歩圏内にあり、各都市へのアクセスの良さも魅力です。

総戸数は39戸で、住戸専有面積は70.41~88.36㎡、分譲時の間取りは2LDKと3LDKと、ファミリー層などに適した居住空間を用意。1フロアに3戸というゆとりある設計で、すべての邸宅が南向きに。さらに、2/3の住戸は角住戸となっているなど、暮らしやすさを追求しています。ファサードは「日本的美意識」を積極的に取り入れたテイストになっており、風格が表れています。

居室内も「日本的美意識」が随所に見られるなど、デザインのテーマを徹底。成熟した大人の空間が提供されており、バスルームの浴室暖房乾燥機やキッチンのスライド収納など、機能性にも重きが置かれています。都会の中心でのゆとりある居住スペースは、都会に住まう人の価値を押し上げることになるでしょう。

ザ・パークハウス四番町
レジデンス

駅徒歩 不動産の表示に関する公正競争規約の改正(2022年9月1日)により、交通利便情報が販売中のものと異なる場合がございます。

都営新宿線
「市ヶ谷」駅 徒歩2分

築年月

2013年7月

総戸数

39戸

階数

地上14階 地下1階