三井不動産レジデンシャル パークホームズ南麻布ザ・レジデンス Concept 麻布通りから一本奥まったところにある、武家屋敷の歴史を受け継ぐ邸宅。

パークホームズ南麻布ザ・レジデンス

港区南麻布2丁目

土地の歴史を継承し自然と一体化させたランドスケープデザイン

「麻布十番」駅徒歩7分、「白金高輪」駅徒歩9分

2024.12.06 公開

LOCATION ロケーション

穏やかな佇まいと
暮らしを送れる、
竹林が特徴のロケーション

パークホームズ南麻布ザ・レジデンス アプローチ
パークホームズ南麻布ザ・レジデンス アプローチ

パークホームズ南麻布ザ・レジデンスは、落ち着いた静かな住宅街にあるマンションで、穏やかな生活を送りたい方にぴったりのロケーションにあります。地上14階、336戸で、マンションの周りは竹の前庭や桜の園庭、石の奥庭に囲まれています。

パークホームズ南麻布ザ・レジデンス アプローチ
パークホームズ南麻布ザ・レジデンス アプローチ

マンションの付近は麻布通りや首都高速2号目黒線も通っているため、車で来訪するゲストもアクセスしやすい立地となっています。静かな生活と利便性を兼ね備えた立地です。

FEATURES 建物の特徴

元からある
自然のように造られた
癒しの空間

コンセプト・デザイン

パークホームズ南麻布ザ・レジデンス レリーフ
パークホームズ南麻布ザ・レジデンス レリーフ
パークホームズ南麻布ザ・レジデンス
パークホームズ南麻布ザ・レジデンス

外観は「人々を迎賓しつづける」住まいををコンセプトにした、南麻布の街に溶け込むやさしいデザインです。マンションのデザインは、リゾートホテルのデザインを手がけた内田淳氏が手がけました。淡いベージュを基調としており、経糸と横糸を織り込んだ織物のような佇まいを意識しています。

1,200㎡あるマンションの外周は「都心の中心に癒しのある杜」をコンセプトにしています。入口周りは武家屋敷があったという土地の歴史を大切にして作った竹林があります。奥に進むとモードなエントランスがある「和洋の変化」を意識したつくりにしました。

外周は竹林だけではなく、季節で変わる草花や樹木(ソメイヨシノ、イロハモミジ、ハクモクレンなど)などを植えています。桜が咲く庭や趣のある石庭、も水浴びをしている野鳥を観察できる「バードバス」もあることから、ひとつの敷地内でさまざまな雰囲気の風景を楽しめます。

セキュリティ

パークホームズ南麻布ザ・レジデンスは、住む人に心地よさと安心感を提供する住まいです。

内廊下

まず、内廊下は、建物内部に配置された通路で、プライバシーと防犯性を高める設計となっています。外部からの視線を完全に遮断し、雨風や外気の影響を受けることもありません。まるでホテルのような雰囲気を日常で味わえるこの設計は、住まいの高級感を一段と引き立てます。

オートロックシステム

また、オートロックシステムは、セキュリティ面での安心感を提供します。不審者の侵入を未然に防ぎ、住民が安全に暮らせる環境を守る仕組みです。

COMMON AREA 共用部

ラウンジや
パーティールームなどを
TPOに合わせて利用可能

共用施設系

ラウンジ

共用施設であるラウンジはそれぞれ異なるコンセプトで設計されています。来客の好みや用途、TPOに応じて柔軟に利用できるため、様々なシーンでご活用いただけます。

コンシェルジュカウンター付近にあるモダンなデザインが特徴のマスターラウンジには、アートが展示されており、華やかさとともにゆったりとくつろげる空間を提供しています。エレベーター前には「現代の枯山水」と「雫の山水庭」をテーマにした中庭や、アート作品を展示しているコモンラウンジがあり、優雅で落ち着いたひとときを過ごせます。

マスターラウンジを抜けると、住民が「もうひとつの書斎」として利用できるライブラリーラウンジがあります。書籍や雑誌が揃っているのはもちろん、作業に適したテーブルがあるため、ワーキングスペースや読書スペースとしてご利用いただけます。

パーティールーム・ゲストルーム

さらに、海外のモダンリビングをイメージしたパーティールームとゲストルームも用意。こちらのスペースはおもてなしや住民の別邸として使える設備が完備されています。パーティールームにはテーブルや椅子はもちろん、ホームパーティーで料理をもてなすためのキッチンを用意。ゲストルームには宿泊もできるベッドも完備しています。

その他共用施設

共用施設はラウンジやゲストルームだけではなく、生活を便利にする施設も完備しています。ゴミ置き場は各階にあるため、高層階のゴミ捨ても楽に行えます。宅配ボックスも完備しているため、一人暮らしの方やマンションでは難しい置き配対応がなくてもスムーズに荷物を受け取ることも可能です。

サービス系

コンシェルジュサービス

パークホームズ南麻布ザ・レジデンスのコンシェルジュサービスでは、暮らしをサポートするさまざまなサービスをご利用いただけます。

カーシェアシステム

カーシェア

※画像はイメージです。

カーシェアシステムも用意しており、マイカーがない方でもドライブや荷物の運搬などを手軽に行えます。

FLOOR PLAN 間取り図一例

メリハリのある生活や
一体感のある生活を

パークホームズ南麻布ザ・レジデンスは快適に過ごせる間取りの部屋を用意しています。

パークホームズ南麻布ザ・レジデンス 間取り図例
パークホームズ南麻布ザ・レジデンス 間取り図例

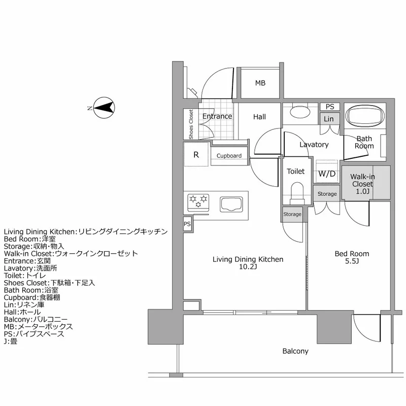
こちらは10.2畳のリビングダイニングと5.5畳の寝室をメインに構成されています。両部屋ともバルコニーと直結で日当たりは良好。マンション周辺の景色も一望できます。

リビングは横長の長方形で家具の配置がしやすいつくりに。収納スペースもついています。寝室は1畳のウォークインクローゼットと収納スペースがついています。リビングと直結のため、生活の一体感を出せる間取りが好みの方や、動線がスムーズな部屋を好む方におすすめです。

パークホームズ南麻布ザ・レジデンス 間取り図例
パークホームズ南麻布ザ・レジデンス 間取り図例

こちらは11.1畳のリビングダイニングをメインと6畳の寝室をメインに構成しています。廊下を真っ直ぐ渡って奥にはリビングは3つの収納スペースがあり、部屋に置くと生活感が出てしまう日用品などを十分にしまえます。

玄関横には6畳の寝室があり、窓もあるため日差しや外の様子も確認できます。寝室内には1.1畳のウォークインクローゼットも用意。オンオフをしっかり分けて生活しやすい方にピッタリの間取りです。

INSIDE THE ROOM 室内

生活を便利にする
システムや
設備で
快適な暮らしを

室内は、生活をより便利にする設備を揃えています。
エアコンはもちろん、床暖房を完備しているため、冬も快適に過ごせます。

キッチン

キッチンは、生ゴミを粉砕して処理するディスポーザーを完備しているため、水回りの掃除も楽に行えます。さらに、各部屋には浄水器を設置。ペットボトルの水の水を買うコストが削減されることにくわえて、シンクにカルキの残量がつきにくいのもメリットです。

浴室乾燥

その他、一人暮らしで家をあけることが多い方にとって便利な浴室乾燥もついています。

ACCESS アクセス

パークホームズ南麻布ザ・レジデンスからの交通アクセス
パークホームズ南麻布ザ・レジデンスからの交通アクセス

鉄道

パークホームズ南麻布ザ・レジデンスの最寄り駅は、港区の中でも落ち着きのある「麻布十番」駅と「白金高輪」駅です。都心の主要駅や「東京」駅にもアクセスしやすい場所となっています。

「麻布十番」駅

麻布十番駅
麻布十番駅

「麻布十番」駅に向かう場合は徒歩11分で到着します。

バスで向かう場合は麻布通り沿いにある「三ノ橋」で都営バス赤羽橋駅前行きに乗ると、約3分で「麻布十番」駅に到着します。

「白金高輪」駅

白金高輪駅
白金高輪駅

「白金高輪」駅は麻布通りを南方向に歩くと徒歩9分で到着します。

「渋谷」駅

渋谷駅
渋谷駅

パークホームズ南麻布ザ・レジデンスから「渋谷」駅に向かう場合は、以下2つの交通手段で行くことができます。

電車とバスを使う場合は、「麻布十番」駅で東京メトロ南北線「溜池山王」駅で降ります。その後東京メトロ銀座線の渋谷行きに乗ると約14分で「渋谷」駅に到着します。

バスのみで移動する場合は、麻布通り沿いにある「三ノ橋」で都営バス渋谷駅前行きにすると21分で到着します。

「銀座」駅

銀座駅
銀座駅

パークホームズ南麻布ザ・レジデンスから銀座駅に向かう場合は、電車を利用するとスムーズに行けます。

「麻布十番」駅から東京メトロ南北線の赤羽岩淵行きの電車に乗車した後「溜池山王」駅で東京メトロ銀座線の行きで乗り換えると約9分で「銀座」駅に到着します。

「東京」駅

東京駅
東京駅

パークホームズ南麻布ザ・レジデンスから「東京」駅に向かう場合は、以下の電車を使ったルートで行くことができます。

「白金高輪」駅から都営三田線の西高島平行きに乗ると、約12分で「東京」駅に到着します。

「麻布十番」駅から向かう場合は東京メトロ南北線線の赤羽岩淵行きに乗って、「溜池山王」駅で降ります。その後、「溜池山王」駅から東京メトロの我孫子行きに乗車して「二重橋前」駅で降りたあとに3分ほど歩くと、「東京」駅に到着します。このルートでは約9分で行くことができます。

東京フォーラム方面に行く場合はバスで向かうのがおすすめ。三田方面にある「三田五丁目」というバス停から出ている、東急バスの「東京駅南口」行きに乗ります。その後、「東京フォーラム前」で降りると約24分で行くことができます。

タクシー

タクシー

※画像はイメージです。

パークホームズ南麻布ザ・レジデンスからタクシーからタクシーで上記の駅に向かうことができます。都心の駅にもタクシーを使うと約20分以内で移動できるため、出勤や出張、終電後の移動もスムーズです。

「渋谷」駅には約13分、「銀座」駅には約17分、「東京」駅には18分で到着します。道路の交通状況によりますが、混んでいない場合は記載の時間で行くことが可能です。

バス

バス

※画像はイメージです。

パークホームズ南麻布ザ・レジデンスの周辺には移動を便利にするバス停があります。

徒歩約4分の距離にある都道415号には「古川橋」というバス停があり、五反田方面や新橋、六本木ヒルズ方面に行くことができます。
また、国道1号線方面に9分歩くと、「三田五丁目」というバス停があり、東京駅南口や田町方面に行くことができます。

徒歩5分の距離には「古川橋」というバス停があり、品川・高輪方面に向かうバスに乗ることができます。

空港

空港

※画像はイメージです。

羽田空港へのルート

羽田空港第1・第2ターミナル
羽田空港第1・第2ターミナル

パークホームズ南麻布ザ・レジデンスから羽田空港は以下のルートで行くのが便利です。

バスと電車を使う場合は、「三ノ橋」のバス停から都営バス五反田行きに乗ります。品川高輪口で降りて「品川」駅に向かった後、「京急本線の羽田空港第1・第2ターミナル行き」に乗ると、約29分で到着します。

乗り換えなしで行く場合は「三田」駅まで歩き、都営浅草線特急羽田空港第1・第2ターミナル行きでに乗ると約24分で到着します。

成田空港へのルート

パークホームズ南麻布ザ・レジデンスから成田空港は以下のルートで行くのが便利です。

バスと電車で行く場合は、三ノ橋というバス停から都営バスの「新橋」駅前行きに乗り、「新橋」駅前で乗ります。その後、JR山手線東京・上野方面で「日暮里」駅まで移動した後、京成スカイライナーの「スカイライナー57号有料特急成田空港行き」に乗ると、約52分で到着します。

新幹線発着駅

都内の新幹線発着駅である「東京」駅と「品川」駅には以下のルートで向かうことができます。

東京駅

「東京」駅に向かう場合は、「白金高輪」駅から都営三田線の西高島平行きに乗ると、約12分で到着します。

品川駅

「品川」駅に向かう場合は「白金高輪」駅から「目黒」駅まで移動した後、山手線で「品川」駅まで向かいます。このルートの場合は、約21分で移動可能です。

LIFE
INFORMATION 周辺の施設・店舗情報

早朝から深夜まで
買い物できる
商業施設で
生活を便利に

商業施設、商店街

ローソン 港南麻布店(徒歩2分/82m)

ローソン 港南麻布店
ローソン 港南麻布店

マンションから約1分の距離にはローソン 港南麻布店があります。日用品の買い足しなども便利。麻布通り沿いにあるため、深夜の治安や人通りの少なさが心配な方でも安心して利用できます。

まいばすけっと 南麻布古川橋店(徒歩5分/350m)

まいばすけっと 南麻布古川橋店
まいばすけっと 南麻布古川橋店

徒歩約4分の距離には、まいばすけっと 南麻布古川橋店があります。朝8時から23時まで営業しているため、出勤前や夜遅くの買い物も可能。コンビニでの取り扱いが比較的少ない生鮮食品や日用品も取り扱っているため、生活に必要なものを一か所で買いたい方にとって便利な場所です。

成城石井 麻布十番店(徒歩5分/350m)

成城石井
成城石井

麻布十番駅方面には成城石井 麻布十番店があります。24時間営業なのでライフスタイルに合わせて来店可能。購入後の商品は3時間以内届く宅配配送を依頼することもできるため、食材のまとめ買いをしたい方にとっても便利です。

自然、公園

南麻布新堀児童遊園(徒歩1分/57m)

南麻布新堀児童遊園
南麻布新堀児童遊園

マンションから徒歩1分の距離には南麻布新堀児童遊園があります。パーゴラやベンチにくわえて、サッカーや野球ができるグラウンドがあります。都心の公園では遊びにくい球技遊びを楽しめる公園です。

一の橋公園(徒歩10分/750m)

一の橋公園
一の橋公園

麻布十番駅の方向に向かうと、一の橋公園があります。古川両岸を結んでいる公園で、面積は4,997.19㎡もある広々としたスポットです。園内にはウォールクライミングやローラーすべり台、水遊び場噴水などの遊具があるため子どもを目一杯遊ばせることができます。

敷地内には交番もあるため、治安の面が心配な方でも安心して子どもを遊ばせられる公園です。

暮らし、インフラ

麻布総合地所(徒歩19分/1,500m)

麻布総合地所
麻布総合地所

六本木方面にある麻布総合地所は、平日8時30分から17時まで開館している総合地所です。

戸籍や住民票の広域交付はもちろん、保育や福祉関係の手続き、区民税の支払いなど、東京都の総合地所が提供する各種の手続きをを受けれます。館内はバリアフリー対応となっているため、ベビーカーや車椅子でも利用しやすい環境です。

古川橋病院(徒歩4分/280m)

古川橋病院
古川橋病院

古川橋病院はマンションから徒歩4分ほどの距離にある総合病院です。診療時間は午前中は9時から12時まで、午後は13時から17時まで受け付けており、外科や内科、整形外科、内視鏡での診察外来に対応しています。

怪我の急性治療期間を終了した人への地域包括ケア病床(リハビリ)や訪問リハビリテーションや在宅医療にも対応しています。幅広い年齢層や状況の方の助けになる病院です。

港区シルバー人材センター(ゆうあい南麻布)(徒歩5分/400m)

港区シルバー人材センター(ゆうあい南麻布)
港区シルバー人材センター(ゆうあい南麻布)

港区シルバー人材センター(ゆうあい南麻布)は、高齢者層の方向けの就業場所を紹介する施設です。地域に密着した社会貢献や就業支援を行うことを目的に、派遣や請負での仕事を紹介しています。港区在住で健康な60歳以上の方であれば登録をして就業紹介の支援を受けることができます。

幼稚園、保育園、学校

本村保育園(徒歩9分/650m)

本村幼稚園
本村幼稚園

東町小学校(徒歩2分/160m)

東町小学校
東町小学校

六本木中学校(徒歩19分/1,500m)

六本木中学校
六本木中学校

イベント

麻布十番納涼まつり

麻布十番納涼まつりは、毎年8月に東京・麻布十番商店街で開催される夏の風物詩です。商店街の老舗や話題の店舗が出店する屋台では、子どもから大人まで楽しめるグルメが勢ぞろい。また、日本各地の特産品が集まる「おらがくに自慢」ブースでは、普段味わえない逸品を堪能できます。

子ども向けの縁日コーナーやゲームも充実しており、射的やスーパーボールすくいなど、親子で一緒に楽しめるアクティビティが盛りだくさんです。

まとめ

杜に囲まれた
安らぎのある住居と、
老若男女の生活を
支援する施設で生活を

パークホームズ南麻布ザ・レジデンスは安らぎの時間と自然、利便性に長けた機能を完備したマンションですが、周辺施設は子どもから高齢者の方まで安心して住める環境が整っています。静かな住宅街ながら交通の便も整っているため、出勤や通学、休日のお出かけの移動もスムーズです。

当マンションにご興味のある方はお気軽にお問い合わせください。

パークホームズ南麻布ザ レジデンス

駅徒歩 不動産の表示に関する公正競争規約の改正(2022年9月1日)により、交通利便情報が販売中のものと異なる場合がございます。

東京メトロ南北線 「麻布十番」駅 徒歩7分

築年月

2013年10月

総戸数

336戸

階数

地上14階