三菱地所レジデンス ザ・パークハウス愛宕虎ノ門 Concept ビジネス街のイメージが強い虎ノ門にありながら愛宕山に近接した緑豊かな住環境

ザ・パークハウス愛宕虎ノ門

港区虎ノ門三丁目・愛宕

東京メトロ日比谷線 「神谷町」駅 徒歩3分

地上13階、総戸数105戸のプレミアムマンション

2024.12.25 公開

LOCATION ロケーション

ビジネス街にありながら
静寂さを感じられるエリア

ザ・パークハウス愛宕虎ノ門 レリーフ
ザ・パークハウス愛宕虎ノ門 レリーフ
ザ・パークハウス愛宕虎ノ門 外観
ザ・パークハウス愛宕虎ノ門 外観

ザ・パークハウス愛宕虎ノ門は港区虎ノ門3丁目に位置しています。虎ノ門というとビジネス街をイメージするかと思いますが、愛宕神社がある愛宕山に隣接しており、豊かな緑を感じることができる稀有な立地です。国道1号を少し入ったところにあるので、都心にもかかわらず閑静な空間となっています。

都営三田線 御成門駅
都営三田線 御成門駅

マンションの最寄り駅は東京メトロ日比谷線「神谷町」駅で、エントランスまでは徒歩約3分。このほかにも東京メトロ南北線「六本木一丁目」駅や都営三田線「御成門」駅なども徒歩圏内にあり、通勤・通学にはとても便利な立地です。さらに、六本木や銀座、新橋、永田町、霞が関といった、政治や経済の中心地も徒歩圏内となっています。居住者に格別のステイタスをもたらすエリアであると同時に、週末のショッピングでもさまざまな地域へ移動しやすいという特徴があります。

愛宕神社
愛宕神社

「神谷町」駅に近いため日常的なお買い物も便利ですが、ザ・パークハウス愛宕虎ノ門の立地のもうひとつの特徴が、愛宕山に隣接している点です。愛宕山は標高約26mの高さがあり、自然地形では東京23区内で最も高いとされています。山頂には江戸開府にあたって創建されたという愛宕神社があり、伝統と自然が息づくエリアでもあります。東京の歴史を映し出す虎ノ門エリアでの生活は、新たな価値を感じられることでしょう。

FEATURES 建物の特徴

モダンでありながら
防災にも注力した設計

ザ・パークハウス愛宕虎ノ門 敷地配置図
ザ・パークハウス愛宕虎ノ門 敷地配置図

コンセプト・デザイン

ザ・パークハウス愛宕虎ノ門 エントランス
ザ・パークハウス愛宕虎ノ門 エントランス

港区虎ノ門3丁目に位置し、自然豊かな愛宕山に隣接しているザ・パークハウス愛宕虎ノ門。立地を生かして、愛宕山の緑と融合したようなランドスケープになっています。木々を通して四季折々の変化を楽しむことができ、お出かけのときもご帰宅のときも心が和みます。

外観はシンプルでありながら縦の線を強調するような計算されたデザインで、重厚感を保ちつつもスリムでモダンな印象を与えます。14階建てという高さもあり、東京タワーを含む都会の様子を眺められます。美しい夜景は圧巻の一言で、窓から広がる景観が毎晩の楽しみにもなるでしょう。

広さは44~64㎡台となっており、さまざまな世帯に対応。その人に合った暮らし方が提供されます。

エントランスに入ると、外のビジネス街とは違ったホテルのような空間が広がる、まさに「空気の境界線」がそこにあります。インテリアはハイグレードなものが取り揃えられ、落ち着いた空気の中でくつろぐことができます。ゲストを迎える場所としても最適です。

建物構造

ザ・パークハウス愛宕虎ノ門はRC造(鉄筋コンクリート)となっています。耐震性に優れた作りになっており、地震発生にも備えています。これから長く住むという視点で考えると、地震の多い日本では建物に強度があることが重要です。ザ・パークハウス愛宕虎ノ門であれば地震に強く、大きな利点があると言えます。また、耐火性が高いという特徴も、防災の点から見逃せません。

遮音性も高く、周りの音を気にせず過ごせます。喧騒な都会にいながら、建物内では静寂な時間を過ごせることでしょう。また、快適に過ごすために必要な気密性も高く、外気温の影響を受けにくくなっています。

防災設備

多重セキュリティシステム

複数のセキュリティシステムを組み込みオートロックを導入することで、居住者の安全を守ります。また、各住戸に設置されているTVモニター付きインターホンで来訪者を確認できるので、安心して対応できます。

防犯カメラ

敷地内には複数の防犯カメラを設置しています。マンションの共用部など主要な箇所を中心にカメラを向けており、監視体制も万全です。

駐車場リングシャッター

駐車場の入り口は、不審者の侵入を抑制するためにリングシャッターを設置しています。居住者の愛車を守るためのセキュリティ対策も準備しています。

24時間セキュリティシステム

セコムの「LIFE EYE'S」というセキュリティシステムを導入し、24時間の管理体制を敷いています。異常が発生した場合はオンラインで警備システムへ自動で通報され、状況に応じて警察や消防などにも通報されます。

COMMON AREA 共用部

居住者の過ごしやすさに
配慮した動線の設計

共用施設系

内廊下

ブラウンをベースにした、重厚で気品あふれる共有廊下です。住戸の玄関ごとにアルコーブを設けて、独立したスペースを作っています。視線を感じにくく、プライバシーが守られます。天井に埋め込まれたライトや壁の質感などにも気品があり、外気にも触れないホテルライクな内廊下を演出しています。廊下は極力短くなるように設計されており、生活動線に配慮したプランとなっています。

ペット足洗い場

ザ・パークハウス愛宕虎ノ門では、ペットの飼育も可能となっています(規約制限あり)。お散歩から帰ってきたペットの足洗い場を設置しており、周囲に気兼ねせずきれいにしてから建物内に入れます。また、エレベーターにはペット同乗確認ボタンを設けています。ペットとの同乗が気になる方へ配慮でき、居住者同士が円滑に過ごせます。

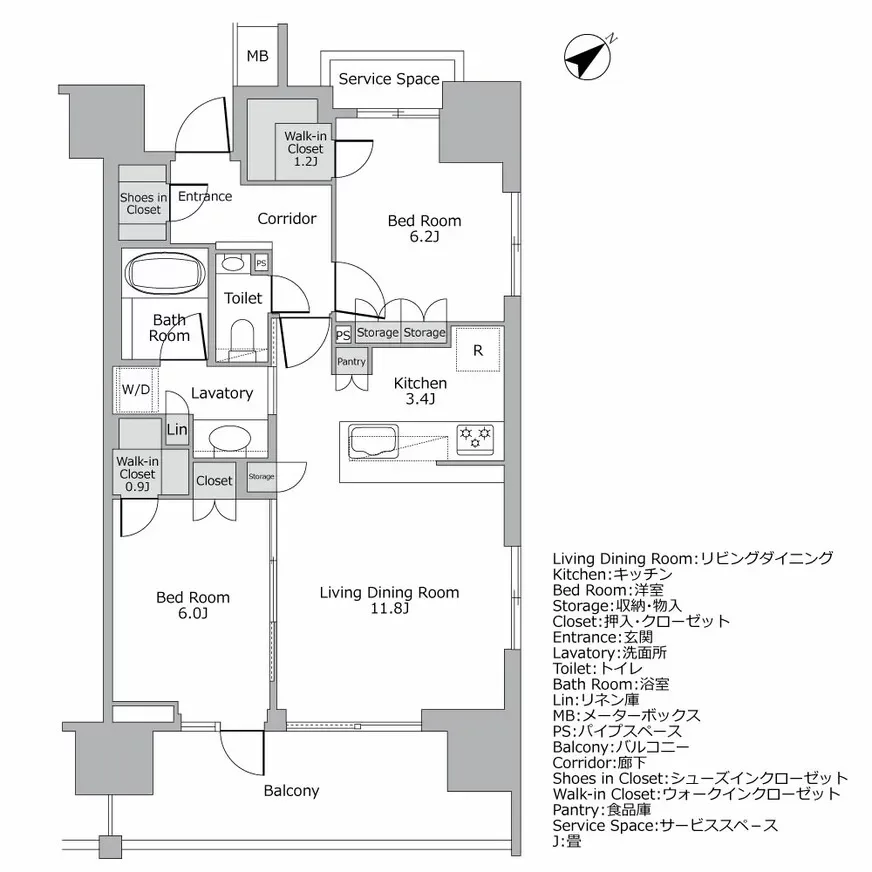
FLOOR PLAN 間取り図一例

家族との会話が弾む
対面キッチン

ザ・パークハウス愛宕虎ノ門 間取り図例
ザ・パークハウス愛宕虎ノ門 間取り図例

家事がスムーズに進む
快適な動線

ザ・パークハウス愛宕虎ノ門 間取り図例
ザ・パークハウス愛宕虎ノ門 間取り図例

INSIDE THE ROOM 室内

開放的な住空間で叶う
贅沢なプライベート時間

広めの畳数を取っているリビングは落ち着いた色合いの床材を使用するなどして、シックな雰囲気にまとめています。ソファでリラックスしながら東京タワーを含む都心の夜景を眺める、贅沢なプライベート時間を過ごせます。奥行きのあるバルコニーからは、眼下に広がる都心の様子をより開放的に眺められます。

室内の開放感を演出しているのが、天井カセット型エアコン。従来のエアコンのような圧迫感がなくすっきりして、天井をより高く感じられます。また、照明も天井に埋め込まれており、スマートにデザインされた居室内となっています。

ベッドルームはより落ち着いた雰囲気が描かれ、ほっと一息つける空間に。安らぎの時間を得られます。

居室の顔となる玄関は明るい色合いの空間になっており、大型のミラーを壁面に設置。姿見として使用でき、お出かけ前のチェックにも重宝します。

ウォークインクローゼット

※画像はイメージです。

ウォークインクローゼットやシューズインクロークも用意されており、どちらも十分なスペースを確保。ただ単に収納できるだけでなく、使いたいものを取り出しやすいように作られています。

ディスポーザー

※画像はイメージです。

キッチンには食器洗い洗浄機のほか、浄水機能付きシャワー水栓、静音シンクといった機能性豊かなシステムを採用。ドアポケット収納やスライド収納で使いたいものが取り出しやすく、吊り戸棚も備えていて収納スペースも十分に用意。シンクにはディスポーザーが設置されており、生ゴミを粉砕して排水口に流せます。生活の基礎となる場所だからこそ、使いやすさと美しさにこだわりを見せています。

洗面場はボウル一体型洗面化粧台を採用し、スリムで高級感のある印象をもたらします。三面鏡の裏側に収納が付いており、必要なものをまとめておくことが可能。また、置き場所に困りやすいヘルスメーターの収納スペースも用意されています。

バスルームは広々としており、大きな浴槽にゆっくり浸かることができます。開放感のある空間で、一日の疲れが癒やせるでしょう。サーモスタット混合水栓を採用しており、水温や水量が一定に保たれるほか、浴室暖房乾燥機、追い焚き機能などの設備も充実。浴槽には手すりが付いているので、立ち上がるときなども安心です。

住戸内は段差が少ないフラットフロアの設計を採用しており、つまずき事故などを予防できます。

ACCESS アクセス

中心街への移動が容易な
好アクセス

ザ・パークハウス愛宕虎ノ門からの交通アクセス
ザ・パークハウス愛宕虎ノ門からの交通アクセス

ザ・パークハウス愛宕虎ノ門の最寄り駅は、東京メトロ日比谷線「神谷町」駅です。最寄り駅までは徒歩約3分と近いうえ、「神谷町」駅から「六本木」駅までは約3分、「銀座」駅は約6分と、中心街への移動時間が短いのが特徴です。このほかにも、マンションから都営三田線「御成門」駅まで徒歩約9分、東京メトロ南北線「六本木一丁目」駅まで徒歩約13分と、さまざまな路線が徒歩圏内に集約されています。
以下では、主要駅へのアクセスを詳しく解説します。

鉄道

「六本木」駅まで

六本木駅
六本木駅

東京メトロ日比谷線「神谷町」駅から、所要時間は約3分です。多くの人でにぎわう六本木の街まで1駅の距離です。

「銀座」駅まで

銀座駅
銀座駅

「神谷町」駅から約6分で到着です。多くのブランドショップや百貨店が集まる銀座にも、わずかな時間で行くことができます。

「渋谷」駅まで

東急東横線 渋谷駅駅舎
東急東横線 渋谷駅駅舎

「神谷町」駅から「中目黒」駅へ行き、東急東横線に乗り換えて到着です。所要時間は約19分と、カルチャーが急速に発展する渋谷にも1回の乗り換えで行けます。

「新宿」駅まで

都営大江戸線 新宿駅
都営大江戸線 新宿駅

「神谷町」駅から「六本木」駅に行き、都営大江戸線に乗り換えて「新宿」駅に到着します。所要時間は約22分で、新宿方面の街に出るときも移動しやすいのがメリットです。

「上野」駅まで

上野駅
上野駅

「神谷町」駅から約24分でアクセスできます。上野は動物園や美術館、大きな公園など人気の観光スポットがたくさんある街。日比谷線一本で週末のレジャーも楽しめます。

タクシー

タクシー

※画像はイメージです。

「六本木」駅には約6~18分、「銀座」駅には約7~22分、「上野」駅には約12~26分、「新宿」駅には約12~40分、「渋谷」駅は約10~30分での到着になります。ただし、混雑状況や時間帯などによって移動時間の予想が異なります。あくまで目安としてお考えください。

バス

虎ノ門3丁目バス停
虎ノ門3丁目バス停

ザ・パークハウス愛宕虎ノ門の近くには、新橋方面や渋谷方面などに行くバス停があります。また「神谷町」駅近くのバス停からも目黒駅前、東京タワー方面などへ行くバス停が集まっています。

新幹線発着駅

「東京」駅へのルート

丸ノ内線 東京駅M10
丸ノ内線 東京駅

JR東北新幹線やJR東海道新幹線が発着する「東京」駅には、「神谷町」駅から「霞ケ関」駅へ向かい、東京メトロ丸ノ内線に乗り換えて到着です。所要時間は約8分です。
タクシーに乗った場合、約7~22分かかります。

「品川」駅へのルート

JR山手線 品川駅港南口
JR山手線 品川駅港南口

JR東海道新幹線が発着する「品川」駅には、「神谷町」駅から「恵比寿」駅へ向かい、JR山手線に乗り換えて到着です。所要時間は約26分です。
タクシーの場合、約12〜40分で着きます。

空港

空港

※画像はイメージです。

羽田空港へのルート

東京メトロ日比谷線「神谷町」駅から「東銀座」駅へ。そこから都営浅草線に乗り換えて、羽田空港に到着です。所要時間は約53分です。
もうひとつの電車のルートとしては、徒歩約9分で都営三田線「御成門」駅へ。そこから「三田」駅まで行き、都営浅草線特急で到着するというものです。所要時間は、「御成門」駅から計算して約42分です。
タクシーの場合、約20~35分で羽田空港に到着します。

成田空港へのルート

東京メトロ日比谷線「神谷町」駅から「東銀座」駅へ向かい、都営浅草線に乗り換えて「押上」駅へ。そこから京成押上線アクセス特急で到着です。所要時間は約99分です。
タクシーの場合、約55~80分で着きます。

LIFE
INFORMATION 周辺の施設・店舗情報

自然豊かな公園や
寺社が彩る
都会のオアシス

商業施設、商店街

ドラッグぱぱす神谷町店
(徒歩2分/約100m)

ドラッグぱぱす神谷町店
ドラッグぱぱす神谷町店

品揃えが豊富なドラッグストアです。医薬品や日用品、食料品などさまざまな種類が並んでいます。

セブンイレブン神谷町駅東店
(徒歩3分/約180m)

セブンイレブン神谷町駅東店
セブンイレブン神谷町駅東店

ザ・パークハウス愛宕虎ノ門の近くにあるコンビニエンスストアです。急に必要なものが出たときなどに重宝します。

成城石井愛宕グリーンヒルズ店
(徒歩4分/約280m)

成城石井愛宕グリーンヒルズ店
成城石井愛宕グリーンヒルズ店

直輸入ワインやチーズ、自家製のお惣菜など、独自の取り揃えを見せるスーパーマーケットです。駐車スペースも確保しており、たくさんお買い物をするときも便利です。

ジョナサン神谷町店(徒歩4分/約300m)

ジョナサン神谷町店
ジョナサン神谷町店

洋食系のファミリーレストランです。ランチもディナーも、どちらでも利用しやすいのが特徴です。また、ドリンクバーを注文してカフェとしても楽しめます。

みずほ銀行神谷町支店(徒歩5分/約350m)

みずほ銀行神谷町支店
みずほ銀行神谷町支店

「神谷町」駅から地上に上がってすぐの位置にあります。窓口業務をしているほか、ATMは平日が6時~26時(月曜日の6~7時は利用できない)と、深夜まで取り扱っているのが大きなメリットです。土日祝もATMを利用できます。

自然、公園

西久保巴町児童遊園(徒歩2分/約140m)

西久保巴町児童遊園
西久保巴町児童遊園

ザ・パークハウス愛宕虎ノ門から歩いてすぐ近くにある公園です。小さなスペースではありますが、ベンチも複数置かれていて憩いの時間を過ごせます。また、カラフルなコンビネーション遊具も設置されていて、小さな子どもも存分に遊べます。

愛宕神社(徒歩4分/約300m)

愛宕神社
愛宕神社

標高約26mの愛宕山の山頂に位置する、歴史ある神社です。江戸幕府を設くにあたり、1603年に防火の神様として祀られたのがきっかけとされています。「出世の石段」とよばれる石階段を登り切ると社殿が見え、都心とは思えない自然豊かで荘厳な世界が開けます。また、季節ごとにさまざまな祭典や行事を開催しています。

芝給水所公園(徒歩5分/約400m)

芝給水所公園
芝給水所公園

東京都水道局芝給水所改築に合わせて整備された公園です。少年サッカー場を主体としてしており、面積は約11,062㎡を誇ります。たくさんの大型遊具も置いてあり、子どもが楽しく動ける場です。

東京タワー(徒歩10分/約750m)

開業は1958年という、歴史ある総合電波塔です。東京のシンボルといえば東京タワーという人も多いのではないでしょうか。高さは333mで、150mと250mのところに展望台が設置されています。東京タワーからの眺望もまた別格の楽しみがあります。

芝公園(徒歩13分/約1,000m)

1873年に開園した、日本で最も古い公園のひとつです。野球場やテニスコートといった施設が充実しているほか、趣きのある大木などの植物も豊かで、自然の息吹を感じながら散歩を楽しめます。

暮らし、インフラ

港区役所(徒歩13分/約1,000m)

港区役所
港区役所

区役所が近くにあると、何かと便利です。ザ・パークハウス愛宕虎ノ門の徒歩圏内にも港区役所があり、必要なときは気軽に足を運べます。

幼稚園、保育園、学校

グローバルキッズ虎ノ門保育園
(認可保育所)(徒歩1分/約30m)

グローバルキッズ虎ノ門保育園
グローバルキッズ虎ノ門保育園

港区立小中一貫教育校 御成門学園
(徒歩7分/約550m)

港区立御成門中学校
港区立御成門中学校

まとめ

ホテルライクな都会生活で
新しい彩りを

ザ・パークハウス愛宕虎ノ門は東京メトロ日比谷線「神谷町」駅が最寄りの、地上13階、地下1階の高級マンションです。虎ノ門という日本有数のビジネス街に位置していますが、愛宕山に隣接した静寂なエリアに建っています。

エントランスからラグジュアリーホテルを思わせる、重厚感のあるデザインを採用。内廊下の構造になっており、玄関ごとにアルコーブを設けるなど、居住者のプライバシーに配慮したホテルライクな構造にこだわっています。

室内は高さを感じられる開放的な空間で、バルコニーからは都心の夜景を眺めることも可能です。食器洗い洗浄機やディスポーザー、浴室暖房乾燥機など、生活をサポートする機能も充実しています。

複数の大型公園が徒歩圏内にあるなど、立地の良さも大きなポイントです。都心での生活にふさわしいハイグレードなマンションで、日常のシーンがより豊かに彩られます。

ザ・パークハウス
愛宕虎ノ門

駅徒歩 不動産の表示に関する公正競争規約の改正(2022年9月1日)により、交通利便情報が販売中のものと異なる場合がございます。

東京メトロ日比谷線
「神谷町」駅 徒歩3分

築年月

2012年2月

総戸数

105戸

階数

地上13階 地下1階