三菱地所 麹町パークハウス Concept 新宿通り、参議院宿舎前交差点の角地、透明なガラスカーテンウォールを纏った正四角柱のフォルム、日中は周辺の景観を映し込み、日没後は街を照らす大きな行灯のように柔らかな光を灯す

麹町パークハウス

東京メトロ有楽町線「麹町」駅 徒歩2分、
4駅6路線利用可

ガラスカーテンウォールから
ダイナミックな景観変化が楽しめる居住空間

49邸中43邸が角住戸

2025.03.07 公開

LOCATION ロケーション

「麴町」駅徒歩2分
生活利便性と広大な
大名屋敷跡の静穏性

麴町パークハウス 外観
麴町パークハウス 外観駅

麹町パークハウスは東京メトロ有楽町線の麹町駅から徒歩2分の立地にある都市型マンションです。

参議院議員宿舎入口
参議院議員宿舎入口

麹町大通り沿いに面し、オフィスビルやマンションが立ち並ぶ環境にありますが、隣奥には参議院議員宿舎の敷地が広がっています。昼間の活気と夜間の静けさのコントラストはこのマンションの利便性と静穏性の両立を示しています。

東京ガーデンテラス
東京ガーデンテラス

麹町エリアはかつては江戸屈指の商業地として栄え、古くからの旗本屋敷から発展した邸宅地かつ文人たちの住居が軒を連ねた番町エリアと、広大な大名屋敷が広がり現在は国の中枢として官公庁が立ち並ぶ紀尾井町・永田町エリアの間にあります。

麴町4丁目交差点・日本テレビ通り
麴町4丁目交差点・日本テレビ通り

現在の麹町はオフィスビルやマンションが立ち並ぶ一方、日常の生活に困らないエリアでもあります。
麴町パークハウスはまさにその中心部麴町4丁目にほど近い立地にあります。
徒歩圏内にある複数のスーパーやドラッグストアに加え、千代田区麹町出張所では九段下の本庁まで出かけなくとも各種手続きを行うことも可能です。

皇居半蔵門からの眺望
皇居半蔵門からの眺望

また最寄りの清水谷公園、皇居周辺の緑多い環境も間近にあり、「麹町」駅、「半蔵門」駅、「四ツ谷」駅から都内各エリアへの移動にも便利な立地となっています。

迎賓館
迎賓館

麴町パークハウスの特徴でもある透明なガラスカーテンウォールの先には、北に番町の邸宅、南にかつての大名屋敷跡である、清水谷公園、東京ガーデンテラス、上智大学、ホテルニューオータニ、迎賓館赤坂離宮が広がります。

FEATURES 建物の特徴

都市を透過するかのような
透明なガラスウォール

コンセプト・デザイン

麴町パークハウス	 エントランス
麴町パークハウス エントランス

麹町パークハウスは建物の南北面に透明なガラスウォールを配し、都市の風景を透過するかのような正四角形の外観が特徴のマンションです。日中はガラスが周囲の景色を映しこみ街と一体化し、夜はバーティカルブラインド越しに柔らかな光で街を照らす大きな行燈のような存在となります。周囲を圧倒するのではなく、しなやかで艶やかな存在感をもつ邸宅として立つことをコンセプトとしています。
アプローチからエレベーターホールはこの開放的な空間デザインから徐々に安らぎの空間へ誘ってくれる段階を楽しむことが意識され、49邸中43邸が角住戸の住戸内は再び開放的な住環境を満喫できるように設計されています。

建物構造

強固な杭基礎構造

地中の支持層へ16本の強固な杭を打ち込んで建物を支える杭基礎構造を採用しています。

制震ダンパー

地震で建物を変形させるエネルギーを制震ダンパーに集め、建物全体の揺れや変形を抑えることで損傷を軽減してくれます。

ガラスカーテンウォール

リビング、ダイニングおよび居室の天井高は、4~14階で約2,550mm、15階以上では約2,600mmを確保されています。(一部の居室を除く)
また全住戸で、高さ約2,600mmのガラスカーテンウォールを採用し、その伸びやかな空間の魅力をお楽しみいただけるよう配慮しています。さらに住戸内の天井をできる限りフラットにすることで開放的かつシンプルな室内を実現しています。(一部下がり天井あり)

Low-Eガラス

窓ガラスは、熱伝導性の低いLow-Eガラスを使うことで。眺望と高い断熱性を共存させました。さらにガラスカーテンウォール側は、Low-Eガラスと合わせガラスを用いた複層ガラスとなっています。

遮音性に配慮したサッシュ

遮音性能基準T-3等級相当のサッシュを使用しています。(一部の窓には2等を採用)

セキュリティ

セキュリティエレベーター

※画像はイメージです。

24時間警備体制

管理員が常駐し、警備会社と連動した24時間機械警備を行います。

4重の来訪者チェック

2重オートロック

風除室とラウンジにオートロックを設置しています。音声と映像で来訪者を確認でき、ワンタッチでロック解除ができます。

エレベーター着床制限

エレベーターと階段には住戸の玄関キーと連動した着床制限機能を備え、訪問先以外の無用な移動を防ぎます。

玄関前カメラ付インターホン

来訪者の画像と音声を確認後に解錠する、玄関前カメラ付インターホンを採用、解錠前に画像と音声で来訪者を確認できます。

住宅専用エントランス

住宅エントランスとオフィスエントランスが分けられています。オフィスエントランスから住宅エリアへは出入りできません。 (非常時を除く)

防犯カメラ

防犯カメラを駐車場、エントランス、エレベーターなどに設置し、共用部を常時監視・記録します。

防犯センサー

防犯センサーを全戸・全窓 (FIX窓を除く)に設置し、万が一不法侵入があれば、警備会社に自動通報されます。

CP認定取得の玄関扉

玄関扉は防犯サムターンや鎌デッド錠などで防犯性能を高めています。

COMMON AREA 共用部

自然光を楽しむ共用部
24時間の有人管理体制

自然光を大胆に取り込むシンプルなガラスウォールのアプローチが印象的な麴町パークハウスの共用部です。昼間のコンシェルジュサービスを含む24時間有人体制での管理が行われ、全戸分のトランクルーム、宅配ロッカーなど共用サービスも充実しています。

共用施設

アプローチ・エントランスホール

麴町パークハウス エントランス
麴町パークハウス エントランス

自然光を楽しむシンプルなガラスウォールのアプローチから2層吹き抜けのエントランスホールに誘います。

ラウンジ

ハイサッシュを配し、外光を大胆に取りこんだラウンジは、日中は静けさと陽光を、夜は落ち着きに満ちた空間となっています。春には桜も楽しめます。

屋内機械式駐車場

麴町パークハウス 駐車場
麴町パークハウス 駐車場

地下に設置された屋内機械式駐車場は、ハイルーフ車や大型乗用車にも対応しています。駐車場使用時のみ開閉できるオートドアを設置し、駐車場出入口付近にも防犯カメラを設置しています。

駐輪場・バイク置場

駐輪場・バイク置場は敷地の奥に設置され、街路からの視線を遮り、防犯性を意識しています。

サービス

コンシェルジュサービス

エントランスホールに設置されたコンシェルジュカウンターでは24時間有人体制で多彩なソフトサービスが提供されています。

全戸分のトランクルーム

スーツケースやアウトドア用品、カー用品などの保管に便利な トランクルームをご用意しました。

宅配ロッカー

不在時に届いた宅配便を、ご帰宅時にお受け取りいただける宅配ロッカーを設置しました。

FLOOR PLAN 間取り図一例

49戸中43戸を角住戸と
した
高い独立性と開放感

麴町パークハウス 間取り図例
麴町パークハウス 間取り図例
麴町パークハウス 間取り図例
麴町パークハウス 間取り図例

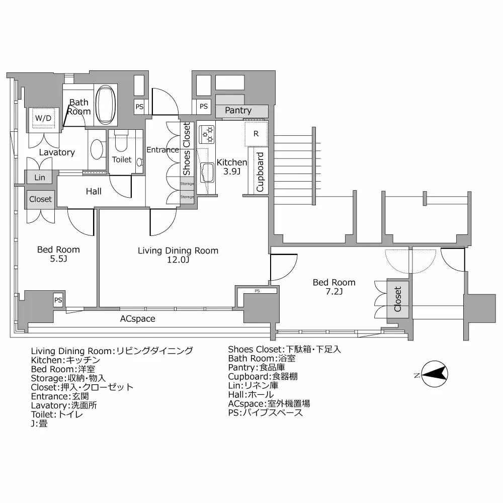
麹町パークハウスは総戸数70戸、間取りは53.61㎡~135.89㎡の1LDK~3LDKです。ガラスカーテンウォールに囲まれた専有空間は、49戸中43戸を角住戸とした高い独立性と開放感が特色です。

INSIDE THE ROOM 室内

ガラスカーテンウォールによる
開放感と安らぎの空間

リビングダイニング・居室

専有空間はガラスカーテンウォールに囲まれています。バーティカルブラインドが標準設置され、電動で自動開閉させることができます(一部を除く)。窓ガラスには赤外線・紫外線を遮り、暖房熱は逃がしにくいLow-Eガラスを採用され、天井カセット型エアコンを標準装備することでフラットな広々した開放感にあふれる室内を実現しています。

また、24時間換気システムとTES温水式床暖房で、クリーンで心地よい室内環境を保つ工夫がなされています。

ダウンライト調光器

室内のダウンライトをお好みの明るさに調節できる調光スイッチをリビングダイニング、居室と浴室に設置し、やすらぎに満ちた空間を演出します。

キッチン・アメニティ

見た目も美しくお手入れも簡単な過熱防止機能付き3つ口のガスコンロを設置しています。さらにビルトイン型の浄水器、片手で簡単に操作できるハンスグローエ社製のシングルレバー水栓、ソフトクロージング機能付きスライド収納、カップボードを備え、使いやすさに配慮しています。食器洗浄機、ディスポーザーでステンレス製のレンジフードも備え、後片付けや掃除も楽々です。

サニタリー

洗面化粧室や浴室、トイレの壁面は、リズミカルに貼られたタイル貼りとなっています。くつろぎの空間をコーディネートしています。

洗面化粧室

洗面化粧室のカウンタートップにはクオーツサイトを93%使用した高級感のある人造大理石を採用しています。衝撃に強く、汚れが染み込みにくいのが特長です。
ハンスグローエ社の洗面水栓を設置しています。

浴室

滑らかな肌触りと深みのある光沢の鋳物ホーローバスには、ワンタッチですべて自動のフルオートバスが採用されています。浴室の扉は枠のない不透明シート貼り全面強化ガラスで開放感を演出し、水流を三段階に切替可能なシャワー水栓、浴室暖房乾燥機で快適さを増す工夫がなされています。

トイレ

トイレには、すっきりとしたデザインで広々とした 空間を生むタンクレス型のトイレを採用し、壁面には手洗いカウンターを設置しています。自動水栓を備え、またサニタリー用品の収納スペースにもなっています。掃除がしやすくスタイリッシュな使いやすさが追及されています。

また、トイレ・浴室内で具合が悪くなった際に役立つコールボタン設置し、万が一の時には住宅情報盤から警報音が鳴り、警備会社にも通報します。

ACCESS アクセス

麹町駅徒歩2分
4駅6路線にアクセス

千代田区麹町に立地する「麹町パークハウス」は、東京メトロ有楽町線「麹町」駅まで徒歩2分、東京メトロ半蔵門線「半蔵門」駅まで徒歩7分、JR中央線快速・中央総武線各駅停車「四ツ谷」駅まで徒歩8分、東京メトロ南北線・東京メトロ丸ノ内線「四ツ谷」駅へは徒歩9分と4駅6路線利用が可能な交通利便性の高い立地にあります。

掲載の所要分数は日中平常時のもので、乗り換え・待ち時間等は含みません。
また時間帯により異なる場合があります。

鉄道

「永田町」駅

「永田町」駅
「永田町」駅

東京メトロ有楽町線「麴町」駅から直通約1分です。

「有楽町」駅

「有楽町」駅
「有楽町」駅

東京メトロ有楽町線「麴町」駅から直通約6分です。

「新宿」駅

「新宿」駅
「新宿」駅

JR中央線快速「四ツ谷」駅から直通約5分です。

「渋谷」駅

「渋谷」駅
「渋谷」駅

東京メトロ有楽町線「麴町」駅から「永田町」駅で東京メトロ半蔵門線に乗り換え約13分です。

「六本木」駅

「六本木」駅
「六本木」駅

東京メトロ有楽町線「麴町」駅から「永田町」駅で東京メトロ半蔵門線に乗り換え、「青山一丁目」駅で都営大江戸線に乗り継ぐと約12分です。

タクシー

タクシー

※画像はイメージです。

麹町パークハウスからは都内各エリアへのタクシー移動も便利です。

行き先 所要時間
「銀座」駅 約12分
「永田町」駅 約4分
「六本木」駅 約14分
「渋谷」駅 約22分
「新宿」駅 約12分

所要時間は道路事情により、実際と異なる場合があります。

バス

バス

※画像はイメージです。

麹町パークハウスの最寄りのバス停は都営バス「麴町4丁目」停留所です。ここでは四谷駅/晴海五丁目ターミナル行き「都03」、新宿駅西口/三宅坂行き「宿75」、新橋駅/小滝橋車庫前行き「橋63」が運行しています。また千代田区地域福祉交通「風ぐるま」も運行しています。

空港

空港

※画像はイメージです。

羽田空港へのルート

①電車・バス

・ルート1:「麴町」駅から東京メトロ有楽町線に乗り、「有楽町」駅でJR山手線・京浜東北線に乗り換え、「浜松町」駅から東京モノレールに接続します。「羽田空港第1ターミナル」駅までは約39分で到着します。
・ルート2:「麴町」駅から東京メトロ有楽町線に乗り、「日比谷」駅で都営地下鉄三田線に乗り換え、「三田」駅から都営地下鉄浅草線に接続すれば京浜急行に直通し、「羽田空港第1ターミナル」駅までは約41分で到着します。

②タクシー

麴町パークハウスから羽田空港第1旅客ターミナルへの所要時間は約35分です。

成田空港へのルート

①電車

・ルート1:「四ツ谷」駅からJR中央総武線各停に乗り、「浅草橋」駅で都営浅草線に乗り換え、「青砥」駅で京成スカイライナーに乗り継げば「空港第2ビル」駅へ約67分で到着します。
・ルート2:「四ツ谷」駅からJR中央線快速に乗り、「東京」駅でJR成田エクスプレスに乗り換えれば「空港第2ビル」駅へ約73分で到着します。

②タクシー

麴町パークハウスから成田空港第2旅客ターミナルへの所要時間は約70分です。

新幹線発着駅

「東京」駅へのルート

「四ツ谷」駅からJR中央線快速に乗車すれば約10分で到着します。

「品川」駅へのルート

「麴町」駅から東京メトロ有楽町線で「有楽町」駅まで行き、JR山手線に乗り換えると約22分で到着します。

LIFE
INFORMATION 周辺の施設・店舗情報

麹町大通り・
日本テレビ通り・一番町
充実の近隣施設

麴町パークハウスは麹町・番町エリアの中心部に位置しています。麹町大通り・日本テレビ通り・一番町周辺すべてが好アクセスであることに加え、区役所出張所・小学校・幼稚園にもアクセス良好です。

すぐ近くの一番町交差点付近は日常のお買い物に困らないエリアになります。また徒歩10分以内で日常生活や子育てサポートに必要な様々な施設が集中しています。

商業施設、商店街

成城石井 麹町店(徒歩3分/約220m)

成城石井 麹町店
成城石井 麹町店

麴町四丁目交差点付近には24時間営業の食品スーパー成城石井麹町店があります。ミドルクラス食材やお惣菜に加え、ハウスブランドも充実しています。

ココカラファイン 麹町店(徒歩3分/約200m)

ココカラファイン 麹町店
ココカラファイン 麹町店

麹町パークハウスから麹町四丁目交差点方向へ進むとココカラファイン 麹町店があります。

アトレ四谷(徒歩9分/約700m)

アトレ四谷
アトレ四谷

JR「四ツ谷」駅舎内には商用施設アトレ四谷があります。成城石井 アトレ四谷店、ゴディバ、スターバックスなどが出店しています。また、「四ツ谷」駅の先のコモレ四谷には大型スーパー、ライフ コモレ四谷店があります。

自然、公園

清水谷公園(徒歩5分/約350m)

清水谷公園
清水谷公園

麴町パークハウスの裏手にはかつての大名屋敷のエリアであった紀尾井町となります。紀州徳川家、尾張徳川家、彦根藩井伊家の屋敷の跡地に作られた清水谷公園は緑に囲まれ起伏に富んでいます。春は花見、秋は紅葉と近隣住民の目を楽しませています。

番町の森(徒歩6分/約450m)

番町の森
番町の森

麹町四丁目交差点を左に進むと日本テレビ通りに出ます。ここから市ヶ谷方向に進むと右手に見えてくるのが番町の森です。近隣の住民の憩いの場として定着していますが元は日本テレビ本社の跡地となります。地域に密着したイベントも開かれます。

暮らし、インフラ

千代田区役所 麹町出張所(徒歩7分/約550m)

千代田区役所 麹町出張所
千代田区役所 麹町出張所

千代田区役所 麹町出張所も麹町パークハウスの間近にあります。九段下の区役所まで行かずとも様々な手続きをここで完了できます。
千代田区立麴町小学校・麹町幼稚園に加え、麹町区民館も同じ敷地にあります。お買い物やお子様の送迎の途中に手軽に立ち寄ることができます。

半蔵門病院(徒歩10分/約750m)

半蔵門病院
半蔵門病院

地域の医療の中核となる半蔵門病院は千代田区役所麹町出張所前の道を直進した先にあります。一般内科と一般外科の診療以外にも特殊外来の診療、検査や入院に至るまで対応できる病院です。

千代田区立一番町児童館(徒歩7分/約500m)

千代田区立一番町児童館
千代田区立一番町児童館

麹町パークハウスのはす向かいには区立児童館があります。幼稚園・小学校の帰りの安心できる子供の遊び場としても充実した施設となっています。また乳児室は「子育てひろば一番町」として乳児と保護者の交流の場となっています。

幼稚園、保育園、学校

千代田区立麹町幼稚園・麹町小学校
(徒歩7分/ 約500m)

千代田区立麹町幼稚園・麹町小学校
千代田区立麹町幼稚園・麹町小学校

千代田区立麹町中学校(徒歩7分/約550m)

千代田区立麹町中学校
千代田区立麹町中学校

上智大学 四谷キャンパス(徒歩5分/約400m)

上智大学 四谷キャンパス
上智大学 四谷キャンパス

イベント、お祭り

千代田のさくらまつり

毎年さくらの開花時期にあわせて開催される千代田のさくらまつりは、全長約700mの「千鳥ヶ淵緑道」の桜のライトアップや、お濠の水上から夜桜を堪能できる「区営千鳥ヶ淵ボート場」の夜間特別営業を楽しめます。

日本テレビ通り納涼盆踊り大会

長年番町の住民に愛されている恒例の盆踊り大会も間近で開催されます。会場の「番町の森」には様々な屋台も出店されます。

まとめ

ガラスカーテンウォール
からの景観
生活利便性の
高い立地

麴町パークハウス レリーフ
麴町パークハウス レリーフ

正四角形のガラスカーテンウォールが特徴的な麴町パークハウスは全49戸中43戸が角住戸となっていて約3,600mmの階高と呼応してダイナミックな景観を楽しむことができます。また、「麹町」駅徒歩2分に加え4駅6路線にアクセス可能な立地は麹町番町エリアの生活利便性を享受できる環境でもあります。

麹町パークハウス

駅徒歩 不動産の表示に関する公正競争規約の改正(2022年9月1日)により、交通利便情報が販売中のものと異なる場合がございます。

東京メトロ有楽町線
「麹町」駅 徒歩2分

築年月

2011年6月

総戸数

70戸

階数

地上19階 地下2階