三菱地所 スタイルハウス西麻布 Concept テレビ朝日通りから外苑西通りに抜ける大横丁坂に入って最初の角を右に曲がった一歩奥、ベージュを基調とした風合いのあるボーダータイルを纏い、上質でクラシックな雰囲気のファサード、ガラス張りのバルコニーがモダンなテイストを加え、周辺の街並みと調和した瀟洒な外観

スタイルハウス西麻布

東京メトロ日比谷線「六本木」駅 徒歩5分東京メトロ千代田線
「乃木坂」駅 徒歩11分

全室角住戸
天井高約2.55m

地上5階、総戸数16戸

2025.06.06 公開

LOCATION ロケーション

六本木を生活圏に
落ち着いた暮らしを叶える

スタイルハウス西麻布 周辺
スタイルハウス西麻布 周辺

スタイルハウス西麻布は、六本木ヒルズを目の前にする西麻布3丁目にあるマンションです。六本木通りから一本入った閑静な高級住宅街に立地し、周囲にはルーマニア大使館やギリシャ大使館、ラオス大使館などが点在し外国人も多く居住するエリア。世界各国のレストランもたくさんあり、さまざまな国や人、文化が入り混じった国際色豊かな街並みです。

最寄り駅の東京メトロ日比谷線 、都営大江戸線「六本木」駅まで徒歩約5分、東京メトロ千代田線「乃木坂」駅へは徒歩約11分と都心へのアクセスが大変良好です。六本木をはじめ麻布十番、広尾も徒歩圏内と常に話題のスポットが身近にある贅沢な環境。首都高速3号渋谷線にも近いので車での移動もしやすくお出掛けの範囲も広がるでしょう。

東京ミッドタウン
東京ミッドタウン

多彩なエンターテインメントが楽しめる六本木ヒルズはマンションから徒歩4分の目と鼻の先にあります。また広大な緑地とオープンスペースが魅力の東京ミッドタウンも徒歩圏内。いずれもファッションやインテリアショップ、美術館、映画館やカフェ&レストラン、クリニックなどさまざまな施設が充実しています。日々イベントや展示会などが開催されているのでお散歩がてらに立ち寄ってみるのもいいですね。

さくら坂公園
さくら坂公園

大型商業施設だけでなくマンション周辺には、普段使いのスーパーマーケット、コンビニエンスストアやドラッグストアも多数点在しているので日々の買い物には困りません。
地域のコミュニケーションの場にもなっている笄公園、カラフルな遊具が人気のさくら坂公園、ちょっと足を伸ばせば自然の地形を生かした有栖川宮記念公園など、都会を忘れるほどのんびりとした穏やかな時間が流れる場所があるのもこのエリアの魅力です。小・中学校、麻布地区総合支所、図書館など公共施設も徒歩圏内に充実しているのでファミリー層も住みやすいエリアでしょう。

FEATURES 建物の特徴

快適な室内環境にも
配慮した
上質な住まい

スタイルハウス西麻布 エントランス
スタイルハウス西麻布 エントランス

建物全体に断熱性能を高めた施工で快適な室内環境を実現しました。全戸角住戸のワンフロア4戸以下のレイアウト、間取りに自由をもたらす可変性を高めた設計など開放感とプライバシーを両立させています。

コンセプト・デザイン

スタイルハウス西麻布 敷地配置図
スタイルハウス西麻布 敷地配置図

スタイルハウス西麻布は2011年に竣工した、地上5階、地下1階の低層レジデンスです。総戸数16戸のRC構造となっています。専有面積は60㎡~95㎡台、間取りは2LDK中心で、 全戸角住戸のゆったりとしたプラン。セキュリティ、プライベート性を高めたワンフロア4戸以下のレイアウトでシングルからファミリー層まで快適な都心ライフを送る居住空間をご用意しています。

スタイルハウス西麻布 外観
スタイルハウス西麻布 外観

三菱地所の自由設計マンション・スタイルシリーズは、都心を代表する邸宅街や人気の高いエリアに建つ特別感あふれる住まいです。同シリーズのスタイルハウス西麻布もまた上質な暮らしが息づく西麻布の街並みに調和した気品ある佇まいを見せています。ブラウンタイル貼りに縦長のぽつ窓を配した外観は均整が取れた美しいシルエット。モダンなガラス張りのバルコニーは、プライバシーを配慮しながら陽光と通風をたっぷりと取り込み心地よい暮らしを支えます。

スタイルハウス西麻布 外観
スタイルハウス西麻布 外観

磁器質のボーダータイルを採用した独特の風合いが美しいファサード。建築家・芦原太郎氏がデザインしたエントランスホールは、天然御影石が贅沢にあしらわれた優雅で格調高い空間が広がっています。陽が落ちてライトアップされるといっそう邸宅としての品格を印象付けます。

建物構造

杭基礎

杭基礎は地中深さ約27mの地盤が安定して強い堅固地盤まで杭をしっかりと打設し建物の安定性を確保しました。

水・セメント比

水・セメント比が大きいほど乾燥時に大きくひび割れが起きやすくなります。スタイルハウス西麻布では、水・セメント比を50%以下にすることでコンクリートの耐久性を高めています。

コンクリートの強度

耐久設計基準強度(長期)30N/m㎡のコンクリートを採用しています。JASS標準仕様によれば、大規模な補修をしなくても鉄筋の腐食やコンクリートの重大な劣化が起こらないと予定される期間はおおよそ100年となります。

複層(ペア)ガラス

断熱性に優れ結露発生を抑制するペアガラスを開口部に採用しています。ガラスとガラスの間に中空層を設けた構造で、外の温度変化を室内に伝えにくくします。そのため冬は暖かさを保ち、夏は涼しく快適に過ごすことができます。省エネ効果も期待できます。

溶接閉鎖型フープ筋・かぶり厚

鉄筋を包むコンクリート厚さを柱や梁、建物を支える耐力壁で40mm以上を確保しています。

二重床構造

床スラブ厚は約200mm(一部約180・220mm)を確保。床スラブの上に防振ゴムでスペースを確保するなど遮音性に配慮した床構造です。

二重天井構造

コンクリートスラブと仕上材の間に空気層を設けた二重天井構造を採用しています。上階から響く音が届きにくくなるため防音性が高く、また配管や電気配線のメンテナンスが容易になることでリノベーションがしやすくなります。

外壁構造

外壁のコンクリート壁の厚さは約180mm以上(一部約150mm)とし、外気温からの影響を抑える断熱材と、耐火性や遮音性があるプラスターボードを施工しています。住戸部分の床スラブ厚は200mmとし遮音性を高めています。

断熱材

屋根や外壁、床下などに断熱材を設置し、外気温の影響を受けにくい設計です。建物全体にわたる断熱性能を高めることで、夏の暑さ、冬の寒さを防ぎ、年間通して快適な室温環境を保つ効果があります。冷暖房効率の省エネ効果も期待できます。

可変性・階高

一定の範囲内で水回りを自由に移動できる可変性を確保しています。階高も3,010mmあるのでキッチン、バスルーム、トイレなどの水回りの間取り変更、大がかりなリノベーションも可能となります。最下階住戸の水回りは住戸内どこにでも移動ができます。

セキュリティ

オートロック

1階エントランスに、カメラ付オートロックシステムを採用しています。来訪者を画面で確認してからオートロックを解錠するので不審者のマンション内への侵入を防ぐことが可能です。

24時間機械監視システム

エントランスやエレベーター、駐車場に防犯カメラを設置し、不審者の侵入や犯罪、トラブルなどを未然に防ぎます。住戸内の火災やガス漏れなどの異常警報、エレベーターの故障など防犯センサー作動の情報は管理会社や警備会社へ通報。ガードマンや係員が現地に駆けつけ対応します。

ハイセキュリティ玄関

鍵のコピーがされにくく、ピッキング対策に強いディンプルキーを採用しています。約1000億通りものキーパターンによるコピーを困難にした高性能によって玄関の防犯性を高めています。さらにダブルロックを採用し空き巣など侵入者が入るリスクを低減します。

防犯カメラ

エントランスホールやエレベーターなどの共用部に、防犯カメラを設置し24時間監視します。防犯カメラの映像は録画しており、万が一トラブルや犯罪が起こった際の証拠画像にもなります。

防犯センサー

扉のこじ開け侵入防止対策として、全戸の開口部と玄関扉に防犯センサーを設置しています。警報が鳴ると管理センターに自動通知されガードマンが急行する安心のシステムです。

サムターン回し対策

室内からドアの鍵を開閉する際に使うサムターンを外から操作し解錠するサムターン回しの対策を施した鍵を採用。外部からでは空転するタイプを設置し不正解錠を防ぎます。

COMMON AREA 共用部

駐車場と駐輪場、
トランクルームを
建物内部に完備

防犯性の高い建物内部に駐車場、駐輪場をご用意しました。地下に全戸分のトランクルームを設置し十分な収納スペースを確保しました。

共用施設

アプローチ

スタイルハウス西麻布 アプローチ
スタイルハウス西麻布 アプローチ

駐車場入り口は、人と車のアプローチを分離し安全性に配慮されています。

駐車場

建物内部にシャッター付きの機械式地下駐車場を完備。車庫入れに便利なターンテーブルを備えているので、どなたでもスムーズな入出庫ができるので安心です。

駐輪場

通勤・通学やちょっとした買い物など短距離の移動に1台あると便利な自転車は都心生活に欠かせないアイテムです。防犯性の高い建物内部に駐輪場を用意しています。

サービス

トランクルーム

地下に全戸分のトランクルームを設置しています。スポーツ用品やレジャー用品など普段あまり使わないものを収納し、居室スペースをより効果的に使うことができます。

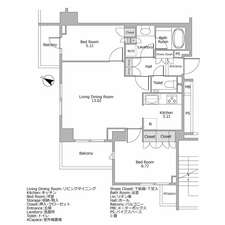
FLOOR PLAN 間取り図一例

天井高約2.55mの開放感に優れた
全戸角住戸

スタイルハウス西麻布 間取り図例
スタイルハウス西麻布 間取り図例
スタイルハウス西麻布 間取り図例
スタイルハウス西麻布 間取り図例

INSIDE THE ROOM 室内

快適さと心地よさを
考えた居住空間

スタイルハウス西麻布の室内は、全邸角住戸ならではの開放感と採光性を確保しながら、プライバシーにも配慮した設計。落ち着いた内装カラーと質感の高い素材を採用し、都心の喧騒を忘れさせる静かな住環境を実現しています。

室内仕様

24時間換気システム

空調設備によって新鮮な外気を室内に取り込み、ハウスダストや臭気を含んだ室内の空気を強制的に外に出し、常に快適な室内環境を保ちます。室内の換気を1日中行うことで、シックハウス症候群の予防、カビや結露の防止、建物の劣化を抑制できます。

温水式床暖房

温水を使用して足元から室内全体を暖める温水式床暖房を装備しています。エアコンやファンヒーターのように空気が乾燥したり、ハウスダストを吹き上げて空気を汚す心配がありません。火を使用しないため安全性が高く、またエネルギー効率が高いのでランニングコストが抑えられるメリットもあります。

ACCESS アクセス

都心の主要エリアへ
直通アクセス

最寄り駅は東京メトロ日比谷線、都営大江戸線「六本木」駅で、徒歩5分の距離にあります。
東京の各主要エリアへ直通アクセスができ、「新宿」駅へはわずか4駅、「東京」駅や「渋谷」駅へも短時間で到着できます。通勤・通学に限らず休日のお出かけにも大変便利です。
こちらでは、最寄りの「六本木」駅から、主要エリアへの所要時間を紹介いたします。

掲載の所要分数は日中平常時のもので、乗り換え・待ち時間等は含みません。
また時間帯により異なる場合があります。

鉄道

「六本木」駅
「六本木」駅

「渋谷」駅

「渋谷」駅
「渋谷」駅

都営大江戸線「六本木」駅から、「青山一丁目」駅で東京メトロ銀座線に乗り換えます。「渋谷」駅まで約11分です。

「新宿」駅

「新宿」駅
「新宿」駅

都営大江戸線「六本木」駅から、「新宿」駅まで直通で約9分です。

「銀座」駅

「銀座」駅
「銀座」駅

東京メトロ日比谷線「六本木」駅から、「銀座」駅まで直通で約10分です。

「新橋」駅

「新橋」駅
「新橋」駅

都営大江戸線「六本木」駅から、「新橋」駅まで直通で約8分です。

タクシー

タクシー

※画像はイメージです。

行き先 所要時間
「霞ケ関」駅 約14分
「新宿」駅 約21分
「銀座」駅 約17分
「渋谷」駅 約11分

バス

バス

※画像はイメージです。

マンションから徒歩約8分の外苑西通り沿いにある「六本木けやき坂」バス停は、「渋谷駅前」バス停、「西麻布」バス停、「六本木ヒルズ」バス停を循環する都営バスになります。また港区のコミュニティバス「ちぃばす」の麻布西ルート、麻布東ルート、青山ルート、田町ルート、赤坂ルートと複数の路線が発着しています。

空港

空港

※画像はイメージです。

スタイルハウス西麻布は、空港や新幹線発着駅へのアクセスが良好で出張の多い方や旅行が趣味の方にもうれしい立地です。最寄り駅の「六本木」駅やマンションからの移動ルートを紹介します。

羽田空港へのルート

①電車

都営大江戸線利用で「大門」駅へ行き、都営浅草線快特 羽田空港第1・第2ターミナル行きに乗り換えてアクセスします。乗車時間は約28分です。

②タクシー

乗車時間は、約28分です。

成田空港へのルート

①電車

都営大江戸線利用で「大門」駅へ行き、都営浅草線エアポート快特 成田空港行きに乗り換えてアクセスします。乗車時間は約70分です。

②タクシー

乗車時間は、約67分です。

➂リムジンバス

スタイルハウス西麻布から徒歩約5分のところにあるグランドハイアット東京から、成田空港行きのリムジンバスが利用できます。乗車時間は約120分です。

新幹線発着駅

「東京」駅へのアクセス

東京メトロ日比谷線利用で「銀座」駅へ行き、東京メトロ丸ノ内線に乗り換えてアクセスします。乗車時間は約15分です。
タクシーなどを使った車移動の場合は、約20分です。

「品川」駅へのアクセス

東京メトロ日比谷線で「恵比寿」駅に行き、JR山手線に乗り換えれば、乗車時間は約21分です。
タクシーなどを使った車移動の場合は、約16分です。

LIFE
INFORMATION 周辺の施設・店舗情報

利便施設、
多様なエンタメも徒歩圏

一歩外に出れば、多彩なショップやレストラン、多様なエンターテインメントにあふれる複合施設が身近にある華やかな環境です。その一方で毎日の暮らしに寄り添うスーパーマーケットや自然豊かな公園、公共施設も徒歩圏に充実しています。

商業施設、商店街

まいばすけっと西麻布3丁目店
(徒歩2分/約150m)

まいばすけっと西麻布3丁目店
まいばすけっと西麻布3丁目店

イオングループのスーパーマーケットです。生鮮食品からアルコール、お惣菜、日用品まで豊富な品ぞろえです。

六本木ヒルズ(徒歩4分/約320m)

六本木ヒルズ森タワー
六本木ヒルズ森タワー

200以上のレストランとショップをはじめ、映画館、美術館、ギャラリー、アリーナ、ホテル、オフィスが集まる複合施設です。都心を一望できる展望台や江戸時代の庭園を再現した日本庭園など、ゆっくりくつろぎながら過ごせる場所があるのも魅力です。

明治屋 六本木ストアー(徒歩6分/約480m)

明治屋 六本木ストアー
明治屋 六本木ストアー

厳選した生鮮食品、調味料やグロッサリー、ワイン、チーズなど美味しさにこだわった多彩な商品が並びます。明治屋オリジナルブランドや直輸入商品などバラエティ豊かな逸品はちょっとした手土産にも人気です。

自然、公園

港区立笄公園(徒歩6分/約480m)

港区立笄公園
港区立笄公園

笄小学校に隣接する公園です。広い園内にはブランコや複合遊具、スプリング遊具、砂場などがあり小さな子ども達ものびのび遊べます。パーゴラとベンチも設置されていて、地域の人たちの憩いの場にもなっています。

有栖川宮記念公園(徒歩10分/約770m)

有栖川宮記念公園
有栖川宮記念公園

有栖川宮家の御用地に造られた公園で、丘や傾斜、池や渓流など麻布大地の地形を生かした豊かな自然あふれる公園です。春はサクラ、夏はアジサイ、秋は紅葉など四季を通して美しい花々が楽しめます。園内の高台にはブランコ、すべり台、ジャングルジムなどが設置された公園があります。

暮らし、インフラ

港区麻布地区総合支所(徒歩15分/約1,200m)

港区麻布地区総合支所
港区麻布地区総合支所

住民票の異動届など各種届け、証明書などの交付、支払いの受付など行っています。平日でも空き時間に立ち寄りやすく、手続きがスムーズに済ませられるのが大きな利点です。

都立中央図書館(徒歩12分/約960m)

都立中央図書館
都立中央図書館

有栖川宮記念公園内にある都立中央図書館は、約229万冊の蔵書数を誇る国内最大級の公立図書館です。おすすめの絵本を揃えたキッズルームがあるので親子で気兼ねなく読書を楽しめます。また1階のカフェではこだわりのコーヒーと焼き菓子を販売。5階では食堂が営業しており定食やラーメン、そばなどを提供。持参したお弁当も食堂内で食べることができます。また窓際のカウンター席から望む景色が抜群で、東京タワーや六本木のビル群が一望できます。

心臓血管研究所付属病院(徒歩3分/約240m)

心臓血管研究所付属病院
心臓血管研究所付属病院

心臓および血管疾患に特化した専門病院です。循環器内科、心臓血管外科、心臓リハビリテーション科があり、急患の受け入れを24時間対応しています。

日本赤十字社医療センター
(徒歩15分/約1,160m)

日本赤十字社医療センター
日本赤十字社医療センター

41の診療科目、約700床の入院病床数を備えた総合病院です。専門的・急性期医療を提供する地域医療支援病院に指定されており、24時間体制で救急医療を提供しています。救急救命センター、周産母子・小児センター、緩和ケアセンター、健康管理センターなども備えています。

幼稚園、保育園、学校

麻布みこころ幼稚園(徒歩2分/約100m)

麻布みこころ幼稚園
麻布みこころ幼稚園

港区立笄小学校(徒歩7分/約520m)

港区立笄小学校
港区立笄小学校

港区立高陵中学校(徒歩10分/約770m)

港区立高陵中学校
港区立高陵中学校

広尾学園中学校・高等学校
(徒歩11分/約870m)

広尾学園中学校・高等学校
広尾学園中学校・高等学校

まとめ

都心の贅沢な地
プライベート感あふれる
全邸角住戸

スタイルハウス西麻布 レリーフ
スタイルハウス西麻布 レリーフ

スタイルハウス西麻布は、都内屈指の高級住宅街・西麻布3丁目に位置し、六本木ヒルズに近接、六本木・麻布・広尾といった都心エリアが徒歩圏内という抜群の立地を誇ります。華やかで利便性の高い環境でありながら、大通りから一歩入った閑静な住宅街に佇み、各国の大使館や瀟洒な戸建て、マンションが並ぶ上質な街並みに溶け込んでいます。ブラウンタイルを基調としたクラシックな外観は、このエリアにあってもひときわ美しく際立ちます。全邸角住戸プランの設計によりプライバシー性が高く、地下には全戸分のトランクルームを設置。建物内に駐車場・駐輪場を完備し、防犯カメラによる24時間監視体制のセキュリティシステムを採用するなど、安全で安心な暮らしを支える設備も充実しています。

最寄り駅の東京メトロ日比谷線、都営大江戸線「六本木」駅までは徒歩約5分、さらに東京メトロ千代田線「乃木坂」駅も徒歩11分と、通勤通学はもちろん休日のお出かけの際もとても便利です。マンション周辺には多彩なショップや飲食店が集まる複合施設から、日常使いのスーパーマーケット、公共施設、緑豊かな公園までが点在。都心の魅力と落ち着いた住環境が得られる、子育て世代のファミリー層も注目するエリアです。

スタイルハウス西麻布

駅徒歩 不動産の表示に関する公正競争規約の改正(2022年9月1日)により、交通利便情報が販売中のものと異なる場合がございます。

東京メトロ日比谷線
「六本木」駅 徒歩5分

築年月

2011年9月

総戸数

16戸

階数

地上5階 地下1階