東京建物|東急不動産 ブリリア代官山プレステージ Concept 代官山駅から徒歩3分の丘上に、キューブを少しずらしながら積み重ねたフォルム、共用部にはシースルーのエレベーター、エントランスの天井は深紅の天然突板、ジャパニーズモダンの感性を表現したアート感覚あふれるマンション

ブリリア代官山プレステージ

キューブを積み重ねた高いデザイン性

東急東横線「代官山」駅 徒歩3分

地上10階、総戸数128戸

2025.03.21 公開

LOCATION ロケーション

「代官山」駅徒歩3分の
場所にある
恵まれた環境

ブリリア代官山プレステージ アプローチ
ブリリア代官山プレステージ アプローチ

渋谷区恵比寿西2丁目に位置する「ブリリア代官山プレステージ」は、都会の利便性と閑静な住環境を兼ね備えたマンション。東急東横線の「代官山」駅から徒歩3分の場所にあり、都心の主要エリアへ軽快にアクセスすることが可能です。恵比寿や渋谷に徒歩で行ける立地は、移動のストレスを大幅に軽減し、快適な都市生活を提供します。 また、渋谷、恵比寿、目黒川などの谷に囲まれた丘の上の土地でもあります。

代官山T-SITE
代官山T-SITE

マンション周辺は洗練された街並みが広がり、おしゃれなカフェやレストラン、ブティックが点在しています。代官山の旧山手通り沿いには、アートギャラリーや専門店が軒を連ね、まさに文化やファッションの発信地。休日の散策にも適した環境です。また、恵比寿ガーデンプレイスや代官山T-SITEといった人気スポットも徒歩で向かえる範囲にあり、ショッピングや文化的な楽しみも充実しています。
都会で健やかな暮らしや心の充実が求められている昨今。これらに深く応えられるのが代官山であるといっても過言ではありません。

西郷山公園
西郷山公園

恵比寿西2丁目は、賑やかなエリアから少し離れた落ち着いた雰囲気が特徴です。近隣には緑豊かな公園も多く、ブリリア代官山プレステージに住む人々は、都会の喧騒を感じさせない穏やかな環境で暮らすことができます。たとえば、代官山公園や西郷山公園が近く、自然を身近に感じる生活が送れるのも魅力です。

FEATURES 建物の特徴

代官山の丘にふさわしい、
ジャパニーズモダンを
感じられる邸宅

ブリリア代官山プレステージ エントランス
ブリリア代官山プレステージ エントランス

コンセプト・デザイン

代官山の丘の上に都心の「頂点」を暮らすための邸宅を創りたい・・・。そのような思いから誕生したブリリア代官山プレステージは、「代官山の丘の上に、新たな丘を創る」というのがコンセプト。キューブを積み重ねたようなその形状は、モダニズム思想の結晶体にふさわしい外観です。

見た目の工夫をこらしただけでなく、キューブをずらすことでルーフバルコニーが出現。代官山に住むというこだわりを持つ居住者に応えられるアイデアを、しっかりと返しています。

ジャパニーズモダンの感性を表現するために、外壁タイルにはオリジナルの製品を導入。優しさと繊細さ、そして防汚性の高さを兼ね備えたそのタイルはしっかりと代官山の丘になじんでいます。和紙を挟み込んだ手すりガラス、給湯器カバー、カラーイメージなどにもジャパニーズモダンの感性が息づいていて、共用部やプレミアム住戸の壁面には、ライムストーンと大理石を素材に水系塗材による塗り壁を施しています。

建物構造

耐久性を高めるダブル配筋

床・壁のコンクリートの中には、シングル配筋よりも耐久性の高いダブル配筋を採用しています。

基礎杭

アースドリル工法を採用。これは、地下約29.5mにある固い支持層(砂礫層)に杭を打ち込む工法で、本物件では、65本(杭径約1.5m/内46本は拡底杭:最大拡底径約2.6m)の杭をこの工法で打ち込んでいます。

拡底杭

杭をまっすぐのままではなく、拡底して面積を広げることで、約2~3倍の支持力が得られています。

溶接閉鎖型フープ筋

鉄筋を閉じた帯筋は、溶接閉鎖型フープ筋と呼ばれています。コンクリートを拘束する効果に優れている点が特徴で、柱が粘り強くなります。

床構造(二重床)

LL-40等級の二重床を採用し、軽量床衝撃音の対策をとっています。また、重量床衝撃音対策としてはスラブ厚を工夫。スラブ厚約220mm(※一部240mm)を採用しています。

水廻りの間仕切り壁

上階の床下まで、耐火性や遮音性があるプラスターボードを設置。片側には二重に貼り込まれています。

断熱性に優れた外壁

外壁は、厚さ約160mm以上の鉄筋コンクリートにタイルを貼って施工。断熱性向上のために、内側には硬質発砲ウレタンフォームを使っています。

天井構造(二重天井)

二重床と、上階からの衝撃音を低減する二重天井を採用。リフォームや間取り変更がしやすい点も特徴です。
(※一部約240mm)

高い断熱性を誇るペアガラス

外気温の影響を受けにくいペアガラス。室内温度を一定に保ちやすく、結露が発生しにくいという特徴があります。

主寝室の間仕切り壁

間仕切り壁には、上階の床下までプラスターボードを貼り込んでいるほか、内側にはグラスウールを設置。耐火性や遮音性などに優れています。

セキュリティ

セキュリティに対して配慮されているエントランス。たとえばN.Y.の高級アパートメントを参考に、朝夕はエントランスにガードマンが常駐し、それ以外の時間も、有人による管理体制が敷かれています。また、人の目だけではなく、光ファイバーを活用した侵入検知システムなどの先進技術も採用し、安心できる住環境を提供しています。

COMMON AREA 共用部

デザイン性と
使いやすさを追求

共用施設

エントランスホール

紅葉や夕焼け、赤とんぼなどを想起させる深紅の天井が広がるエントランスホール。トップライトや照明によって様々な表情を見せてくれます。なお、備わっているファニチャーはこの空間のために作られたというオリジナル品です。

内廊下

プライバシーに配慮したホテルライクな内廊下を採用しています。

ラウンジ

オフィスでも自邸でもない「第三の空間」であるラウンジ。窓の外に設えた「シーベッドテラス」には、海の底を思わせる光の演出が施されています。ラウンジ内に流れるのは、自動のピアノ演奏や環境映像など。疲れを癒やす、そんな空間としてもご利用いただけます。

フィットネスゾーン

ハイクオリティのフィットネスゾーンを用意。ランニングマシン、インドアサイクル、シャワー室などが備わっています。

サービス

コンシェルジュサービス

コンシェルジュサービス

※画像はイメージです。

エントランスホールの先に、コンシェルジュサービスの受付を設置しています。様々な業務を居住者に代わって行うほか、カフェラウンジのサービスも行っています。

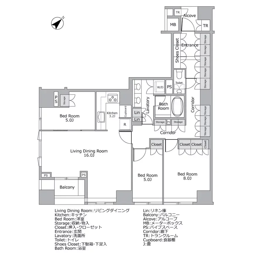
FLOOR PLAN 間取り図一例

すっきりと暮らせる、
豊富な収納

ブリリア代官山プレステージ 間取り図例
ブリリア代官山プレステージ 間取り図例

INSIDE THE ROOM 室内

機能性とデザインに
配慮した
設備を設置

室内仕様

ウォークインクローゼット

ベッドルームには多くの衣服などを収納できるウォークインクローゼットを設置。季節ものなどを自由に収納でき、居住スペースを広く取ることができます。

水栓金具

キッチンから洗面室、浴室まで、アール型の形状を採用。上質な空間を演出しています。
※一部住戸除く

レンジフード

イタリア・エリカ社のオールステンレスのレンジフードを採用。機能性とデザイン性に長けた商品です。
※一部住戸除く

キッチン天板

天然御影石製を採用。ステンレスバイブレーション仕上げを採用している住戸のあります。

食洗機

食器洗浄機

※画像はイメージです。

ビルトイン型の食洗機。ビルトイン型なので景観が損なわれない点もポイントです。

三つ口コンロ

ステンレスとセラミックガラス製なので、クックトップのお手入れが簡単です。

手洗いカウンター

トイレには、鏡付きの手洗いカウンターを設置。すっきりとした上質なデザインです。

ACCESS アクセス

都内や神奈川方面へ
快適に移動

ブリリア代官山プレステージの最寄り駅は東急東横線「代官山」駅で、徒歩約3分。東京都内のほかにも神奈川県方面などにも移動しやすい環境です。また、JR、東京メトロ日比谷線「恵比寿」駅も徒歩圏内。「代官山」駅から都内の主要スポットへは、以下の所要時間で到着できます。

掲載の所要分数は日中平常時のもので、乗り換え・待ち時間等は含みません。
また時間帯により異なる場合があります。

鉄道

渋谷駅

渋谷駅
渋谷駅

東急東横線利用で、所要時間は約2分です。

六本木駅

六本木駅
六本木駅

東急東横線利用で「中目黒」駅へ。東京メトロ日比谷線に乗り換えると所要時間は約9分です。

新宿駅

新宿駅
新宿駅

東急東横線利用で「渋谷」駅へ。JR湘南新宿ラインに乗り換えると所要時間は約11分です。

銀座駅

銀座駅
銀座駅

東急東横線利用で「中目黒」駅へ。東京メトロ日比谷線に乗り換えると所要時間は約20分です。

タクシー

タクシー

※画像はイメージです。

行き先 所要時間
「渋谷」駅 約7分
「六本木」駅 約14分
「新宿」駅 約26分
「銀座」駅 約22分

所要時間は道路事情により、実際と異なる場合があります。

バス

バス

※画像はイメージです。

マンションから3分ほどの「代官山駅」バス停は、「恵比寿駅入口」バス停「渋谷駅西口」バス停などを循環するハチ公バスです。さらに、徒歩5分ほどの「代官山駅入口」バス停からは「洗足」駅方面や青葉台方面に向かう東急バスも走っています。

空港

空港

※画像はイメージです。

羽田空港へのルート

電車

ルート1:東急東横線利用で「渋谷」駅へ。そこからJR山手線に乗り換えて「品川」駅まで行きます。そこから京急本線急行に乗り換えて乗車時間は約38分で到着します。
ルート2:東急東横線利用で「中目黒」駅へ。そこから東京メトロ日比谷線に乗り換えて「東銀座」駅まで行きます。そこで都営浅草線に乗り換えて合計約46分で到着します。

タクシー

所要時間は約29分です。

リムジンバス

ブリリア代官山プレステージから徒歩約17分のところにある「セルリアンタワー東急ホテル」から羽田空港行きのリムジンバスが利用できます。所要時間は約55分です。

成田空港へのルート

電車

東急東横線利用で「渋谷」駅へ行き、JR山手線に乗り換えます。その後、「日暮里」駅でスカイライナーに乗り換えると、所要時間は約66分です。

タクシー

所要時間は、約60分です。

リムジンバス

ブリリア代官山プレステージから徒歩約17分のところにある「セルリアンタワー東急ホテル」から成田空港行きのリムジンバスが利用できます。所要時間は約95分です。

新幹線発着駅

「東京」駅へのアクセス

東急東横線(副都心線直通)利用「新宿三丁目」駅で、東京メトロ丸ノ内線に乗り換えてアクセスします。「代官山」駅からの所要時間は約27分です。
タクシーなどを使った車移動の場合は、約22分です。

「品川」駅へのアクセス

東急東横線利用「渋谷」駅で、JR山手線に乗り換えてアクセスします。「代官山」駅からの所要時間は約16分です。
タクシーなどを使った車移動の場合は、約22分です。

LIFE
INFORMATION 周辺の施設・店舗情報

ハイセンスで便利な
商業施設と
緑豊かな
スポットの数々

商業施設、商店街

17dixsept / ディセ(徒歩4分/約290m)

17dixsept / ディセ
17dixsept / ディセ

代官山にあるショッピング施設。スーパーマーケットやドラッグストアなど普段使いできるお店も入っています。
フランス語で“17”を意味する「ディセ」。代官山アドレスの住所が代官山17番地であることから名づけられました。整然としているので、ウィンドーショッピングだけでも有意義な時間を過ごせるでしょう。おむつ交換用のベビーシートや授乳室があるため、小さなお子さま連れでもショッピングを楽しめます。

アドレスプロムナード(徒歩4分/約290m)

アドレスプロムナード
アドレスプロムナード

代官山らしい個性的な路面店やオープンカフェが並ぶショッピングゾーン。お散歩コースにもおすすめです。

代官山ピーコック(徒歩4分/約290m)

代官山ピーコック
代官山ピーコック

旬の食材やできたての多彩なメニューが自慢のデリカテッセンなどが手に入るスーパーマーケット。賑わいのある売場と丁寧なおもてなしが特徴で、普段使いに適したお店です。

ウエルシア代官山ディセ店(徒歩4分/約260m)

ウエルシア代官山ディセ店
ウエルシア代官山ディセ店

薬品や健康食品をはじめ、ボディケア、化粧品、日用雑貨まで幅広い品ぞろえ。明るく清潔で、探しやすく選びやすい店内です。

ヒルサイドテラス(徒歩5分/約400m)

ヒルサイドテラス
ヒルサイドテラス

1967年から数期に分けて建設された住居、店舗、オフィスからなる複合施設です。洗練された店舗やレストランを街路レベルに設け、住戸部分の居住環境を確保。代官山文化の発信地、都内でも有数のファッショナブルなエリアとして注目されています。

LOG ROAD DAIKANYAMA(徒歩5分/約350m)

LOG ROAD DAIKANYAMA
LOG ROAD DAIKANYAMA

「季節の移ろい、色、風、香り、発見、癒やし」をテーマにしたランドスケープ。東横線の線路跡地につくられたこの商業施設は、ウッディな建物が軒を連ねる緑豊かな散歩道として、地域住民の憩いの場となっています。

自然、公園

代官山公園(徒歩4分/約300m)

代官山公園
代官山公園

「旧同潤会代官山アパート」時代より児童公園として親しまれてきた「代官山公園」が駅前広場と一体化。緑の中に遊具やベンチが設置された、幅広い年代が利用できる身近な公園です。

旧朝倉家住宅(徒歩5分/約400m)

旧朝倉家住宅
旧朝倉家住宅

東京府議会議長や渋谷区議会議長を歴任した朝倉虎治郎によって、1919年に建てられた住宅。重要文化財に指定されており、木造2階建ての主屋には、当時の意匠を凝らした邸宅の特徴が遺されています。回遊式庭園には、石灯籠などの添景物が多く、春はツツジ、秋はモミジなどを楽めます。

菅刈公園(徒歩14分/約1,100m)

菅刈公園
菅刈公園

豊後の岡藩の屋敷を1874年に西郷従道が購入し、洋館や和館を建造。現在は当時の名園の姿を一部復元し、公園として一般開放しています。

郷さくら美術館(徒歩10分/約750m)

郷さくら美術館
郷さくら美術館

現代日本画の専門美術館。昭和以降に生まれた現代日本画家の作品を1,000点以上コレクションしています。50号を超える大画面の作品が多く、テーマを設けた「コレクション展」を年に4~5回開催しています。

恵比寿公園(徒歩4分/約270m)

恵比寿公園
恵比寿公園

通称「ロケット公園」。飛行機、ロケット、汽車の形に作られたレトロな遊具、さまざまな形のコンクリート遊具など、他の公園には見られないユニークな遊具がたくさんあります。

暮らし、インフラ

渋谷区代官山スポーツプラザ(徒歩4分/約290m)

渋谷区代官山スポーツプラザ
渋谷区代官山スポーツプラザ

渋谷区在住、在勤・在学者を対象としたスポーツ施設。屋内温水プール、屋外の幼児プール、多目的ルームがあります。

渋谷区文化総合センター大和田(徒歩15分/約1,200m)

渋谷区文化総合センター大和田
渋谷区文化総合センター大和田

プラネタリウムやホール、図書館などがある、地域住民に親しまれている施設です。科学実験や体験型の展示などのプログラムを提供するこども科学センター「ハチラボ」、夜間診療 (内科)、休日診療(内科・小児科)、がん検診に対応している区民健康センター桜丘も併設されています。

幼稚園、保育園、学校

恵比寿のびのびこども園(徒歩4分/約300m)

恵比寿のびのびこども園
恵比寿のびのびこども園

渋谷区立猿楽小学校(徒歩8分/約600m)

渋谷区立猿楽小学校
渋谷区立猿楽小学校

渋谷区立鉢山中学校(徒歩10分/約750m)

渋谷区立鉢山中学校
渋谷区立鉢山中学校

まとめ

利便性を追求した
レジデンス

ブリリア代官山プレステージはエリアの特性である、他の街では手に入れることができない刺激やステイタスを住まいのデザインや空間設計に反映しており、日々の暮らしを格別なものにするマンションといえます。

耐震性や防音性、断熱性に優れた設計が施された丘の上に建つレジデンスは、快適で安全な住まいを提供するとともに、長期的な資産価値を見据えた高品質な建物といえるでしょう。

ブリリア代官山プレステージ

駅徒歩 不動産の表示に関する公正競争規約の改正(2022年9月1日)により、交通利便情報が販売中のものと異なる場合がございます。

東急東横線
「代官山」駅 徒歩3分

築年月

2007年3月

総戸数

128戸

階数

地上10階 地下2階