積水ハウス グランドメゾン九段南 Concept 靖国通りから一本入った二七通り沿い、三方が道路に面した開放感ある角地、閑静な住宅地に落ち着いたグレーを基調としたシンメトリーなファサードのマンション

グランドメゾン九段南

歴史ある邸宅地九段南

「市ヶ谷」駅 徒歩4分

地上14階、総戸数65戸のプレミアムマンション

2025.1.10 公開

LOCATION ロケーション

江戸時代から続く
歴史を感じられる場所に
佇むマンション

グランドメゾン九段南 外観
グランドメゾン九段南 外観

九段南は、江戸時代から続く豊かな歴史と、現代に息づく文化が交差する場所です。周囲には、日本の歴史や文化を象徴する建物や施設が数多く点在し、静けさと活気を同時に感じられます。

また、かつての武家地としての格式が今も残る九段南は、近代に至るまで文化人や財界人たちに愛され続けてきた地でもあります。この土地には、文豪・与謝野晶子や音楽家・滝廉太郎らが愛した趣が色濃く残っており、街全体がまるで文化の宝庫ともいえるでしょう。

FEATURES 建物の特徴

伝統と品格を重んじた
デザイン

グランドメゾン九段南 レリーフ
グランドメゾン九段南 レリーフ

コンセプト・デザイン

グランドメゾン九段南 アプローチ
グランドメゾン九段南 アプローチ

グランドメゾン九段南は、地域の伝統と品格を引き継ぎながらも、現代の快適さと美しさを極めたマンションです。

シンメトリーのファサードは、華美に飾り立てることなく、整然とした美を追求。時代に左右されない普遍の美しさを放つこのデザインは、住まう人の心に深い安心感と満足感をもたらします。四方から眺めても端正で堂々とした地上14階建ての外観は、街に溶け込みながらもシンボリックな存在感を放っています。

さらに、角地という恵まれた立地を活かし、角住戸には開放的なコーナーサッシを採用。高層階の住まいから望む景色は、心地よい時間が流れる空間を演出します。

建物構造

基礎構造

グランドメゾン九段南は、安全性と永住性を追求し、将来にわたり安心して暮らせる住まいを目指しています。何よりも「安全」を軸とした住まいづくりの思想を根底に、地盤強化のため地下約31.5mに到達する堅固な支持層に28本の杭を配置。建物全体を支える強固な基礎構造が採用されています。この安定した基礎により、都心の住宅でも安心して住める信頼性の高い住まいを実現しています。

次世代エネルギー基準に対応

省エネルギー対策にも配慮した次世代省エネルギー基準対応の設計により、ペアガラスと断熱材を採用しました。冬は暖かく夏は涼しい快適な居住空間を提供し、省エネにも貢献します。さらに、外壁には断熱材を厚くし、戸境壁には生活音を抑える遮音性能TLD-55対応製品を採用するなど、目に見えない部分にまでこだわり、住まう方の快適性を高めています。

内部構造

内部構造には、将来のメンテナンスやリフォームに対応しやすい二重床・二重天井を採用しました。壁や天井に凹凸の少ないボイドスラブの採用により、すっきりとした美しい空間を提供し、住まいのどこを見ても安定したデザインが広がります。

セキュリティ・防災設備

グランドメゾン九段南は、日々の生活に安心と快適さを提供するために徹底したセキュリティシステムを備えています。共用玄関とエントランスホールにはそれぞれオートロックを設置し、さらに住戸玄関の施錠を加えた三重の保護体制により、不審者の侵入を防ぎます。

地下駐車場からエレベーターで各住戸フロアへ直接アクセスできるため、スムーズな移動が可能です。また、玄関や窓には防犯センサーを配備し、異常を感知した際には即座に警報を発し、自動で通報する機能を備えています。敷地内や建物の出入り口には防犯カメラが設置され、24時間体制で住まいの安全を見守ります。

さらに、非接触キーの採用により、かざすだけでエントランスの解錠ができます。ALSOKマンションセキュリティシステムによる24時間監視も行っており、火災やエレベーターの故障など、万が一の事態にも迅速に対応できる体制が整っています。

COMMON AREA 共用部

居住者にやすらぎを
感じさせる
エントランスとラウンジ

共用施設

エントランス ホール
エントランス ホール

エントランス

グランドメゾン九段南のエントランスには、都市の喧噪を忘れさせる落ち着いた空間が広がっています。重厚な御影石が敷かれた先には、奥行きある2層吹き抜けのエントランスホールが広がり、最大約4.8mの開放的な高さから射し込む自然光が、内部空間に透明感と気品をもたらします。

ラウンジ

ラウンジは住まう方のためのプライベートな場所として設計され、待ち合わせや語らいの場としても、心地よいひとときを提供するようデザインされています。敷地全体には、シラカシやシダレザクラ、キンモクセイ、イロハモミジ、サルスベリといった四季折々の植物が配され、心地よい自然が生み出す安らぎが感じられます。

サービス

グランドメゾン九段南は、快適で安心な暮らしを支える充実した設備とサービスが整っています。24時間の有人管理体制により、住まう方の日常を常に見守り、緊急時には迅速な対応が可能です。2基のエレベーターが各フロアへのスムーズなアクセスを実現し、忙しい毎日にゆとりをもたらします。

また、外出時の荷物の受け取りも安心。宅配ボックスが完備されており、不在時でも安心して荷物を受け取れます。

FLOOR PLAN 間取り図一例

ゆったりと過ごせる
大きなリビングが魅力

グランドメゾン九段南 間取り図例
グランドメゾン九段南 間取り図例

この間取りは、広々としたリビングダイニングルームが特徴的で、開放感のある居住空間が魅力です。10.6畳のリビングは家族みんなで快適に過ごせる空間です。また、隣接するキッチンも4.1畳と広めで、日常の家事がスムーズに行える設計になっています。

洋室にはクローゼット、寝室には広々としたウォークインクローゼットが備わっています。子どもの成長とともに増えるおもちゃやベビー用品、洋服などもすっきりと整理できる収納スペースが各所に配置されているため、生活空間を広く保ちながら快適に暮らせるでしょう。

グランドメゾン九段南 間取り図例
グランドメゾン九段南 間取り図例

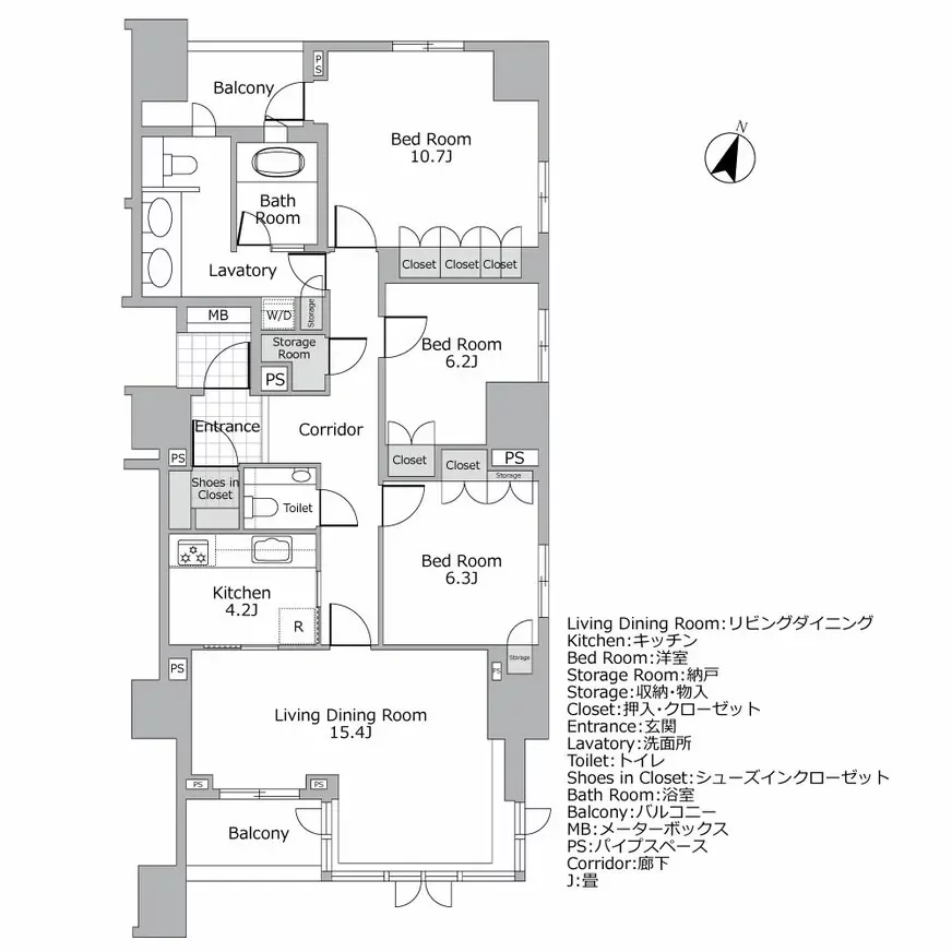
この間取りは、広々としたリビングダイニングルームや複数の寝室が配置されており、子育てファミリーにとって理想的な住環境です。リビングダイニングルームは15.4畳と非常に広く、南向きのバルコニーからの光が注ぐため、明るく居心地の良い空間が広がります。

10.7畳の寝室には3つのクローゼットが配置されており、衣類や小物の整理がしやすく、子どもの成長に合わせて増える荷物も十分に収納できます。また、廊下には収納スペースが設けられているため、季節ごとに使うベビーカーやアウトドア用品などの収納にも便利です。

INSIDE THE ROOM 室内

暮らしやすい環境が
整う住まい

グランドメゾン九段南は、日常の快適さを追求し、上質な暮らしを提供する住まいです。

キッチン

ディスポーザー

ディスポーザー

※画像はイメージです。

キッチンにはディスポーザーが標準装備されています。調理中に出る生ゴミをスイッチひとつで簡単に処理できるこの機能は、キッチンを常に清潔で快適な状態に保つサポートをしてくれます。忙しい毎日でも、ストレスなく家事をこなすことができる環境が整っています。

換気システム

住戸内には天井チャンバー・常時小風量換気システムを採用しています。このシステムは、24時間穏やかな気流を生み出し、常に新鮮な空気を住まいに送り込みます。結露や湿気を抑制し、室内環境を快適かつ健康的に保つことが可能です。天井付けの給気口であるため、スタイリッシュで無駄のない設計が実現されています。

ACCESS アクセス

「市ヶ谷」駅から
都内主要スポットへ

グランドメゾン九段南からの交通アクセス
グランドメゾン九段南からの交通アクセス

まずは、グランドメゾン九段南から都内主要スポットへのアクセス方法を交通手段別にご紹介します。

鉄道

グランドメゾン九段南の最寄り駅は「市ヶ谷」駅です。徒歩圏内には「半蔵門」駅もあり、都内の各所へスムーズに移動できる立地です。

「市ヶ谷」駅
「市ヶ谷」駅

市ヶ谷駅は多くの路線が乗り入れているため、通勤や通学、観光やショッピングなどさまざまな目的での移動がスムーズに行えます。以下の4つの路線が乗り入れており、各方面へのアクセスが簡単です。

  • JR中央・総武線:中央線と総武線の各停車駅を利用でき、新宿や御茶ノ水、秋葉原といった主要エリアへの移動が便利です。また、都心の他のJR路線に接続する駅が多いため、乗り換えもしやすいです。
  • 東京メトロ有楽町線:池袋や有楽町、銀座などのエリアへ直結しています。銀座へのアクセスがスムーズなため、都心でのショッピングにも向いています。
  • 東京メトロ南北線:南北線を利用することで、目黒や白金台、赤羽岩淵方面など、都心から郊外まで幅広くアクセスできます。
  • 都営地下鉄新宿線:新宿駅や本八幡方面へのアクセスが可能で、新宿に直結している点が魅力です。

【駅から主要駅へのアクセス】

  • 東京駅まで:約11分
  • 新宿駅まで:約6分
  • 銀座駅まで:約11分

東京駅へのアクセス

「市ヶ谷」駅から「東京」駅へは、まず総武線で「御茶ノ水」駅まで移動した後、中央線に乗り換えるルートが便利です。このルートでは約11分ほどで到着します。

新宿駅へのアクセス

「新宿」駅へは、「市ヶ谷」駅から新宿線を使えば乗り換えなしでアクセス可能です。所要時間は約6分です。

銀座駅へのアクセス

「銀座」駅へは、「市ヶ谷」駅から総武線と山手線を乗り継いで移動します。まず総武線で「代々木」駅まで移動し、そこから山手線に乗り換えると「銀座」駅に到着します。

所要時間は日中平常時のもので、待ち時間等は含みません。時間帯により異なる場合があります。

【他の最寄り駅】

「半蔵門」駅
「半蔵門」駅

「半蔵門」駅は渋谷や大手町、錦糸町など主要駅への直通アクセスが可能な交通の利便性が魅力です。グランドメゾン九段南からは、徒歩約10分で行けます。駅周辺はオフィスビルやマンションが立ち並びつつも、皇居の緑に囲まれた落ち着いた環境が広がり、静かな雰囲気が漂っています。

「半蔵門」駅自体は半蔵門線の単独駅ですが、隣接する「永田町」駅や「九段下」駅で他路線に乗り換えが可能であり、多方面へのアクセスがスムーズです。「永田町」駅では有楽町線・南北線・半蔵門線が交差しており、東京都内の主要エリアへ簡単にアクセスできる環境が整っています。

タクシー

タクシー

※画像はイメージです。

タクシーを利用すれば、東京、新宿、銀座などへのアクセスもスムーズ。混んでない時間帯であれば、以下の時間で移動できます。

  • 東京駅まで:約13分
  • 新宿駅まで:約14分
  • 銀座駅まで:約12分

バス

バス

※画像はイメージです。

グランドメゾン九段南から徒歩約1分で行ける最寄りのバス停「東京家政学院前」は、千代田区コミュニティバス「風ぐるま」の麹町ルートが停車するバス停です。 グランドメゾン九段南から徒歩約1分の場所にあり、千代田区役所などにアクセスできます。

空港

空港

※画像はイメージです。

新幹線を利用する場合の「東京」駅へのアクセスは上記で紹介したとおりですが、空路を利用する際の羽田空港や成田空港へのアクセス方法も紹介します。

羽田空港へのルート

羽田空港第1・第2ターミナル
羽田空港第1・第2ターミナル

「市ヶ谷」駅から羽田空港へは、以下のルートで行けます。駅間の徒歩移動も含めた全体の所要時間は約54分です。

1.「市ヶ谷」駅から「馬喰横山」駅へ(約8分)
2.「馬喰横山」駅から徒歩で「東日本橋」駅へ(約4分)
3.「東日本橋」駅から「羽田空港第1・第2ターミナル」駅へ(約40分)

交通状況により多少の変動があります。

成田空港へのルート

「市ヶ谷」駅から成田空港へのアクセス方法は、複数の選択肢がありますが、「馬喰横山」駅から「東日本橋」駅を経由してアクセスする方法がよいでしょう。駅間の徒歩移動も含めた全体の所要時間は約1時間15分です。

1.「市ヶ谷」駅から「馬喰横山」駅へ(約8分)
2.「馬喰横山」駅から徒歩で「東日本橋」駅へ(約4分)
3.「東日本橋」駅からエアポート快特で「空港第2ビル」駅へ(約59分)

交通状況により多少の変動があります。

LIFE
INFORMATION 周辺の施設・店舗情報

スーパーから複合商業
施設まで
幅広く揃う

商業施設、商店街

スーパーマーケット リコス 九段南4丁目店(徒歩2分/約160m)

スーパーマーケット リコス 九段南4丁目店
スーパーマーケット リコス 九段南4丁目店

スーパーマーケット リコス 九段南4丁目店は、グランドメゾン九段南からのアクセスがしやすいスーパーです。店舗の営業時間は朝8時から夜10時までと、長時間営業をしているため、忙しい毎日でも時間を気にせずに利用できるでしょう。子育て中の家族にとって、家事や育児の合間にさっと買い物を済ませられる利便性は大きな助けになります。

お弁当や総菜コーナーも充実しているため、忙しい日や育児で手が回らない時にすぐに食べられるものが必要な時や、もう一品欲しい時にも便利です。

ミニストップ 九段南4丁目店(徒歩3分/約190m)

ミニストップ 九段南4丁目店
ミニストップ 九段南4丁目店

ミニストップ 九段南4丁目店は、日々の生活を便利で快適にする24時間営業のコンビニエンスストアです。グランドメゾン九段南から徒歩約3分とアクセスが良く、急な用事や夜遅くの買い物にも便利です。

飯田橋サクラテラス(徒歩14分/約1,100m)

飯田橋サクラテラス
飯田橋サクラテラス

飯田橋サクラテラスは、グランドメゾン九段南の徒歩圏内にある複合商業施設です。

新鮮な食材を取り揃えたスーパーマーケット「成城石井」や、24時間営業のコンビニエンスストア「ローソン」など、日常のお買い物に便利な店舗が揃っています。 また、イタリアンレストラン「Luccollina」やハワイアンカフェ「ALOHA TABLE」など、多彩な飲食店があり、ランチやディナーにも利用できるでしょう。

そのほか、音楽教室「宮地楽器 MUSIC JOY 飯田橋」や、スポーツジム「セントラルスポーツ ジムスタ」など、趣味や健康維持に役立つ施設も充実しています。 郵便局や薬局、クリニックなど、生活に欠かせないサービスも揃っており、日常の様々なニーズに対応しています。

くすりの福太郎九段北店(徒歩2分/約140m)

くすりの福太郎九段北店
くすりの福太郎九段北店

くすりの福太郎 九段北店は、日々の生活を快適にするための便利なドラッグストアです。平日は朝8時から夜9時まで、土日祝日は朝10時から夜8時まで営業しているため、通勤前や仕事帰り、週末のお買い物にも柔軟に対応できます。

店内には医薬品や健康食品、化粧品、日用品はもちろん、ベビー用品も豊富に揃っているため、急なベビー用品の買い足しや日々の育児に必要なアイテムも手軽に購入できます。さらに、子ども向けの医薬品も扱っているため、急な体調不良時にも頼りになります。現金以外のクレジットカードや電子マネー、スマホ決済にも対応しているので、忙しい子育て中の方でもスムーズに買い物ができるのも嬉しいポイントです。

自然、公園

東郷元帥記念公園(徒歩3分/約200m)

東郷元帥記念公園
東郷元帥記念公園

徒歩ですぐの場所にある東郷元帥記念公園は、日常の憩いの場としておすすめのスポットです。

この公園は、日露戦争でロシアのバルチック艦隊を破った東郷平八郎元帥の旧邸宅跡地に整備されており、歴史的な背景を持つ静かな環境が魅力です。 園内には、東郷元帥の邸宅にあったライオン像や力石などの記念物が残されており、歴史を感じながら散策を楽しめます。

また、遊具や健康遊具も設置されており、子どもから大人まで幅広い世代が楽しめる空間となっています。 さらに、震災対策用の応急給水施設も備えており、地域の防災拠点としての役割も果たしています。

千鳥ケ淵(徒歩10分/約800m)

千鳥ケ淵
千鳥ケ淵

千鳥ケ淵は、四季折々の美しい自然を楽しめる、都内屈指の憩いのスポットです。歴史ある緑道とお堀に囲まれ、季節ごとに異なる表情を見せる千鳥ケ淵は、日常の中で心安らぐひとときを過ごすことができる場所です。

また、千鳥ケ淵ではボートも楽しめます。親子でゆったりした時間を過ごしたい場合におすすめのレジャーです。

千代田区立九段坂公園(徒歩9分/約700m)

千代田区立九段坂公園
千代田区立九段坂公園

九段坂公園は、千鳥ヶ淵に隣接しており、都心とは思えないほど自然豊かな環境が広がっています。春には、公園を彩る桜が見事に咲き誇り、桜の季節には多くの人が訪れます。満開の桜のトンネルを歩きながら、春の陽気を感じることができるのは、この公園ならではの魅力です。また、夏には新緑が茂り、秋には美しい紅葉が広がります。

公園内には、元帥陸軍大将大山巌の銅像や品川弥二郎像、高燈籠(常燈明台)など、歴史的なモニュメントが各所にあります。

暮らし、インフラ

靖国神社(徒歩9分/約650m)

靖国神社
靖国神社

靖国神社は、歴史と自然が調和した深い魅力を持つ神社です。

神社の入り口に立つ大鳥居は、その壮大さで圧倒される存在です。この鳥居をくぐり境内に進むと、荘厳な拝殿が迎えてくれ、静かで厳かな空気に包まれます。また、境内には四季折々の自然が楽しめる景観が広がり、春には約500本の桜が咲き誇ります。特に靖国神社は東京の桜の開花宣言に使用される標本木もあるため、桜の季節には多くの人が花見に訪れます。

さらに、靖国神社には「遊就館」という歴史資料館が併設されており、日本の近代から現代にかけての歴史について子どもといっしょに学ぶことができます。

千代田区立四番町図書館(徒歩3分/約230m)

千代田区立四番町図書館
千代田区立四番町図書館

四番町図書館は、一般閲覧室のほかに児童室を設けており、子ども連れの方にも利用しやすい環境が整っています。 また、番町・麹町地域に関する資料や伝統芸能関連資料を収集しており、地域の歴史や文化に触れられます。

開館時間は、月曜日から金曜日は午前9時から午後8時まで、土曜日は午前9時から午後7時まで、日曜日・祝日・12月29日・12月30日は午前9時から午後5時までとなっており、仕事帰りや週末にも利用できます。

さらに、定期的におはなし会やイベントを開催しており、地域の交流の場としても活用されています。

半蔵門病院(徒歩13分/約1,000m)

半蔵門病院
半蔵門病院

1975年に開院した半蔵門病院は、内科、アレルギー科、外科、呼吸器科、消化器外科、循環器科、心臓血管外科、泌尿器科、糖尿病内科など、多岐にわたる診療科目を備えています。

特に、アレルギー性気管支喘息や糖尿病などの専門外来も充実しており、専門的な診療を受けることが可能です。 また、最新の医療設備を完備し、患者一人ひとりに寄り添った医療を提供しています。予約不要の診療科もあり、急な体調不良時にも安心して受診できます。

さらに、インフルエンザや新型コロナウイルスの予防接種、各種健康診断、人間ドックなど、予防医療にも力を入れています。

幼稚園、保育園、学校

千代田区立九段小学校(徒歩2分/約160m)

千代田区立九段小学校
千代田区立九段小学校

千代田区立麹町中学校(徒歩19分/約1,500m)

千代田区立麹町中学校
千代田区立麹町中学校

千代田区立神田一橋中学校(徒歩22分/約1,700m)

千代田区立神田一橋中学校
千代田区立神田一橋中学校

イベント

千代田のさくらまつり

千代田のさくらまつりは、毎年春に開催される桜の祭典です。千鳥ヶ淵緑道では、約700メートルにわたる桜並木がライトアップされ、幻想的な夜桜を楽しむことができます。

千鳥ヶ淵ボート場では、桜に囲まれた静かな水上でのひとときが楽しめます。子どもと一緒にボートに乗りながら、特別な思い出を作るのもよいでしょう。

まとめ

落ち着いた
上質な暮らしを
求める方
向けのマンション

グランドメゾン九段南は、都心でありながら静寂と緑に包まれた特別な空間で、豊かな暮らしを求める方にふさわしいマンションです。九段南という格式ある地に佇み、住まう方に深い安らぎと誇りをもたらします。

洗練されたデザインと配慮の行き届いた空間は、日々の暮らしに上質な彩りを添え、穏やかで心地よい時間を提供してくれるでしょう。安心と快適性が高いレベルで調和する「グランドメゾン九段南」で、豊かさを感じる日常をお楽しみください。

グランドメゾン九段南

駅徒歩 不動産の表示に関する公正競争規約の改正(2022年9月1日)により、交通利便情報が販売中のものと異なる場合がございます。

都営新宿線
「市ヶ谷」駅 徒歩4分

築年月

2008年11月

総戸数

65戸

階数

地上14階