鹿島建設 コートレジデントタワー Concept 外堀通り沿い、小石川後楽園に隣接、都心と大庭園の移り変わる景色をスクリーンのように映すガラスのファサード、室内は足元から立ち上がるパノラマピクチャーウィンドウが設置され眺望が愉しめる

コートレジデントタワー

「飯田橋」駅 徒歩4分、徒歩11分圏内に4駅、9路線利用可

約2/3が角住戸、
都心を見晴らすアーバンサイド、
庭園側のコートサイドの
二方向ビュー

地上21階、総戸数122戸のタワーマンション

2025.03.07 公開

LOCATION ロケーション

江戸時代から続く大庭園に
隣接する都心の中心

小石川後楽園
小石川後楽園

江戸の大名庭園として現存する最古の庭園「小石川後楽園」に隣接するコートレジデントタワー。江戸城築城と共に計画都市として発展し、約400年以上に渡り日本の中核として栄えてきた都心の中心部に位置します。水戸徳川家の屋敷であり、日本と中国の名勝や古典になぞらえた見どころが配された大庭園は、深山幽谷の趣に満ちています。四季の移ろいを鮮やかに感じられる大庭園の隣に暮らすことは、心の安らぎになるでしょう。

飯田橋駅
飯田橋駅

コートレジデントタワーがあるのは、山手線サークルの中心です。5路線が集中分岐するキーステーションである「飯田橋」駅をはじめ、「水道橋」駅、「九段下」駅、「後楽園」駅が徒歩圏内にあり、4駅9路線が利用できることから、東西南北どこへでもスムーズにアクセスすることができます。

東京科学大学病院
東京科学大学病院

高機能なアクセスはもちろん、オフィスビル、レストラン、コンサートホールなどが近接し、ライフスタイルのすべてを徒歩圏内で叶えることもできます。こうした快適性と利便性も、都心居住ならではの魅力です。また、歴史と格式のあるこのエリアには教育環境も充実。周辺には、名門大学や歴史ある私立高校などの教育機関、大学病院をはじめとする日本有数の医療機関が集中しています。

FEATURES 建物の特徴

移り変わる景色を取り込み
景観へと昇華する

コートレジデントタワー 敷地配置図
コートレジデントタワー 敷地配置図

地上21階、総戸数122戸のタワーマンションは、都心と緑、空と陽光など、取り巻く景色もデザインと捉え、都心と大庭園の移り変わる景色を設計回路に取り込むことで、この地と共生する新しい景観を生み出しています。

コートレジデントタワー アプローチ
コートレジデントタワー アプローチ

小石川後楽園の大泉水や清流は、神田上水から水を引き入れて造園されたもの。コートレジデントタワーのエントランスを囲むウォーターコートとウォータースクリーンに、その美意識を継承しました。水の上を渡るウォーターコートブリッジの先に広がる水に包まれたエントンスは、周辺建物のエントランスとは異なるデザインで、拡張高い都心の居住特区であることを主張しています。

コンセプト・デザイン

コートレジデントタワー 外観
コートレジデントタワー 外観

外観デザインは、周囲とバランスの取れた美しい調和を図りながら独創性を施しました。ファサードには特殊ガラスを採用し、スクリーンのように景色を映し出すことで周辺の建物と調和します。ガラスの表面に金属または金属酸化物などの膜を均一にコーティングすることで、日射の熱を反射し、室内の冷房負荷を低減させ、省エネ効果を発揮。また、縦・横方向にPCリブラインをデザインすることで、シャープでスタイリッシュな印象をもたらします。

建物構造

基本構造

鹿島建設独自の「チェーンド・チューブ構法」を採用。確かな耐震性を持ち合わせるこの構法は、一般的なラーメン構法内部の柱をチューブ外周部に効率的に配置させ、それによって作り出された2つのチューブを中央部で連結した形になっています。チューブを大きくすることにより、高面積な大型スラブを実現し、平面プランの自由度を高めると同時に、チューブ内には柱がなく、戸堺部分に梁の出ない開放的な空間を実現。確かな耐震性を備えながら、住戸のプランニングと将来の間取り変更の自由度も向上します。

防災設備

防災火災

※画像はイメージです。

スプリンクラー(一部住戸)・非常用消火器

10階以上の住戸にはスプリンクラーを設置。一定温度以上の熱を感知した場合、自動的に作動し火災に対処します。9階以下は共同住宅用自動火災報知機設備を設置。また、消火器をすべての住戸に設置しています。

超高層ガス安全システム

地下1階と地上1階にガス漏れ警報器を設置。さらに、ある一定の揺れを感知すると各住居へのガス供給を遮断するシステムを採用。管理員室からも押しボタンにより供給を遮断できる機能と持たせています。

マイコンガスメーター

大きな揺れを感知したり、またお風呂の消し忘れなどによりガス使用が長時間続いたりした場合は、自動的にガスの供給を遮断。ガスの流れを常時監視しているので、万一のガス管のひび割れによる微量なガス漏れも検知し、事故を未然に防止します。

地震管制装置付きエレベーター

エレベーターには地震・火災管制装置、停電時自動着床装置を装備。異常を感知すると自動的に管制運転に切り替わり、自身・停電時には最寄り階に、火災時は避難階に停止してドアが開くので、速やかにエレベーターから退避できます。

自家発電装置

万一の非常時には、救出や消火活動に不可欠なエレベーターやスプリンクラーポンプなどに、自家発電装置から優先的に電力を供給。停電時にも数時間、エレベーターと給排水ポンプが可動します。

防災倉庫

万一の災害に備え、地下1階にある防災倉庫に防災用備品をストックしています。

ホバリングスペース

屋上にヘリコプターのホバリングスペースを確保。万一の非常時のことを考えて、高層階からの救出と援助にも対応できるよう配慮しています。

セキュリティ

365日24時間有人管理システム

24時間有人管理体制により安全で快適な暮らしを守ります。日本ハウズイングの「ライフガード24」を導入。住戸内や共用部の各種センサーが異常を感知した場合は、「ライフガード24」緊急センターに自動通報されます。緊急センターから住戸および管理員室に電話で確認し、警備員が現地に急行します。

赤外線センサー

道路に面していない外周部には、赤外線センサーを設置。塀の乗り越えなどによる侵入者をいち早くキャッチし、管理員室内のみで警報を鳴らします。

防犯カメラ

エントランスや駐輪場、エレベーター内などの共用部に16台の防犯カメラを設置。万一に備え、録画機能により記録を残します。

カラーTVモニター付
ハンズフリーインターホン

カラー映像と音声で来訪者を確認後、エントランスのオートロックを解除できます。録音機能により、留守モードに設定しておくと、不在時の来訪者の音声を最大24件まで録音可能です。宅配ボックスに荷物がある場合、お知らせする機能も搭載しています。

ノンタッチキーシステム

エントランスなどのオートロックは、操作盤に鍵を近づけるだけで解錠ができる非接触型のノンタッチキーを採用。荷物を抱えている時や、車椅子利用の方にも操作しやすく便利です。

防犯窓センサー

全住戸の住戸内開閉部(窓、玄関ドア)に、防犯センサーを標準設置。お出かけ前に設定しておけば、外部からの侵入に対しセンサーが反応して警報が鳴り、緊急センターに通報されます。

リバーシブルタイプのディンプルキー

ダブルロックの玄関キーは、ディンプルキーを採用。リバーシブルタイプなので、鍵穴に差し込む時にキーの向きを確かめる必要がありません。

ダブルロック・防犯サムターン・鎌デッド錠

玄関ドアは、鍵を2か所に設置したダブルロック。また、防犯サムターンを採用。鎌デッド錠により、バールなどの工具を使った解錠・侵入にも配慮しています。

COMMON AREA 共用部

都市生活をさらに
快適にする
充実したサービス

コンシェルジュサービスや食品宅配サービスなど、日々の暮らしをさらに快適にするきめ細やかサービスを提供しています。

共用施設

エントランスホール

コートレジデントタワー エントランスホール
コートレジデントタワー エントランスホール

居住者やゲストを迎え入れる1階のエントランスホールは、約4.5mのハイサッシュがL字型ワイドに張り巡らされ、都心と並木道の景色を大胆に映しこんだ開放的な空間です。

スカイビューコート

約73mの上空から360°ビューを満喫できる「スカイビューコート」を屋上に設置。約100㎡のスペースは、フィルターを通さない陽光と爽風、夜は星座のイルミネーションに包まれ、夏は東京で開催される花火大会を観覧するプライベートスペースにもなります。

電動アシスト自転車レンタル(有料)

自転車置場に、電動アシスト式のレンタサイクルを2台ご用意。自転車を所有せずとも、休日のお買い物やサイクリングなどに利用できます。

駐車場(33台有料・6台分譲)

敷地内に機械式駐車場30台分、平置駐車場3台分(内1台は身障者用)、屋内に平置駐車場6台分(分譲)を確保。駐車場の出入口には電動シャッターを設置し、不審車の侵入や防犯に配慮しています。

自転車置場(124台有料)・
バイク置場(4台有料)

2段式自転車置場は居住者用122台とレンタサイクル用2台分を屋内に、敷地内にはミニバイク置場を4台分確保しています。

サービス

コンシェルジュサービス

コンシェルジュサービス

※画像はイメージです。

コンシェルジュが多彩なサービスで日常生活をサポート。さまざまなニーズにお応えするサービスメニューを取り揃え、きめ細やかにおもてなしいたします。

コンシェルジュサービス一覧
  • ライフサポート
    デイリーサービス/セーフティサービス/アメニティサービス/ヘルスケアサービス/シニアケアサービス
  • 生活サポートコール
  • コマッタコール

24時間ゴミ出し可能&ゴミ回収サービス

地下1階のゴミ置場と1階を除く各階のゴミステーションは24時間使用可能で、曜日や時間に縛られることなく、ご自身の生活時間に合わせてゴミを出すことができます。

食品宅配サービス

周辺のラクーア内にあるスーパーマーケット「成城石井」が、マンションまで食品のお届けをします。また、買い物代行会社JCPのサービスもご利用いただけます(別途買物代行手数料がかかります)。

リラクゼーション・サービス(有料)

周辺のリラクゼーション施設の利用を優待するサービスを行っています。

宅配ボックス・メールコーナー

1階メールコーナーに宅配ボックスを設置。宅配物が届くと、エントランスと住戸内のインターホンに表示して知らせるので、帰宅後24時間いつでも荷物を取り出すことが可能です。

朝刊各戸配達サービス

毎朝、朝刊をメールコーナーまで取りに行く煩わしさを解消するために、朝刊を各住戸の玄関まで配達します。

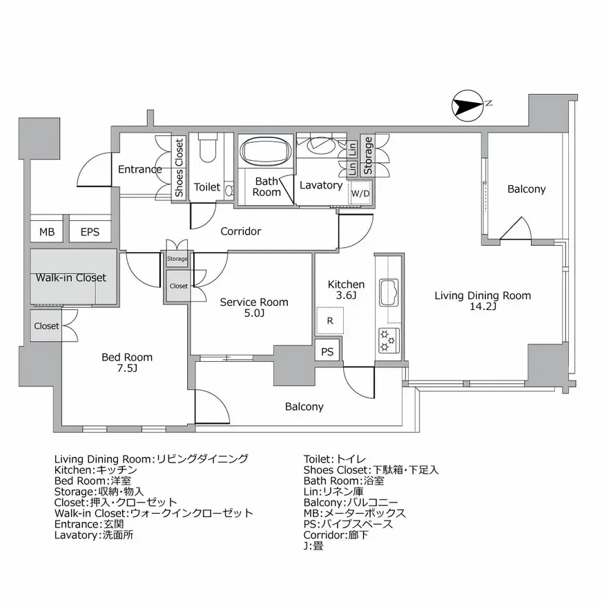
FLOOR PLAN 間取り図一例

約2/3が角住戸で
バリエーションも豊富

コートレジデントタワー 間取り図例
コートレジデントタワー 間取り図例
コートレジデントタワー 間取り図例
コートレジデントタワー 間取り図例

高い独立性とプライバシー性を確保するためにマンション全体の約2/3が角住戸。床面積は45.57㎡~114.41㎡で、間取りは1LDK~3LDKと豊富なバリエーションをご用意しています。シングル、DINKS、ファミリーの方々におすすめです。

INSIDE THE ROOM 室内

都心と庭園。
2つの景色と
繋がる開放空間

約2/3ある角住戸は、都心を見晴らせるアーバンサイド、隣接する小石川後楽園のコートサイドの2方向に設置。ハイクオリティな眺望を室内に取り込んだ、開放感あふれるリビング空間を実現しました。最上階トップスイートフロアの住戸は天井高約3.5mの大空間にステップフロアを設けることで、立体的な空間デザインになっています。

設備

コートレジデントタワーの居住空間は、充実した室内設備も魅力のひとつ。最上階のトップスイートフロア、高層階のエクセレントフロア、低層~中層階のノーブルフロアで一部内容は異なりますが、いずれも居住者の暮らしを豊かにする設備を取り揃えています。

パノラマピクチャーウインドウ

中間梁工法と二重床を採用することで、足元からめいっぱい立ち上がる大展望台のような「パノラマピクチャーウインドウ」をリビング空間に実現しました。角住戸では、2方向にパノラマピクチャーウインドウを設置することで視野角をさらに拡張。中住戸にはパノラマピクチャーウインドウに加えパノラマコーナーウインドウを設置し、大きな開放感と眺望を叶えます。

キッチン

キッチン

※画像はイメージです。

キッチンの設備は以下の通りです。衛生的かつ環境にも配慮したディスポーザーや容量たっぷりの収納などを備え、快適な調理や片付けをサポートします。

  • ディスポーザー
  • 大型シンク
  • ガラストップビルトインコンロ(一部除く)
  • コンビネーションレンジ(トップスイートフロアは標準、エクセレントフロア、ノーブルフロアはオブション)
  • IH+ラジェントヒーター(トップスイートフロアのオプション)
  • 電気オーブンレンジ(トップスイートフロアのオブション)
  • グローエ社製水栓
  • 浄水器
  • レンジフード(トップスイートフロアとエクセレントフロアのみ)
  • 引出し収納

パウダールーム&トイレ

パウダールーム&トイレには、ワイドな三面鏡付きの化粧台や、タンクレスのローシルエットシャワートイレを備え、すっきりとした空間を演出します。

  • 洗面化粧台
  • リネン庫(一部住戸を除く)
  • ドラム式洗濯乾燥機(トップスイートフロアは標準装備、エクセレントフロアとノーブルフロアはオブション(一部除く))
  • ローシルエットシャワートイレ

バスルーム

バスルームの設備は以下の通りです。キッチンからも操作できるフルオートバスや、多機能シャワーヘッドを取り入れることで、毎日のリラックスタイムを充実させます。

  • 浴室暖房換気乾燥機・ランドリーパイプ
  • 冷たさを感じにくいサーモ床(エクセレントフロアとノーブルフロアに標準装備)
  • シャワーヘッド・スライドバー(トップスイートフロアのみ)
  • 混合水栓
  • フルオートバス
  • 浴室テレビ(オプション)

リビング・ダイニング

床暖房

※画像はイメージです。

パノラマピクチャーウインドウを設置し、開放感あふれるリビング・ダイニング。エアコンとガス温水式床暖房を備え、快適なくつろぎ空間を演出します。

  • エアコン(トップスイートフロアはリビング・ダイニング(フリービルトインタイプ)、全居室に標準装備、エクセレントフロアとノーブルフロアはリビング・ダイニングに標準装備)
  • ガス温水式床暖房

ユニバーサルデザイン

玄関のドアや照明、スイッチ類などにはユニバーサルデザインを採用しました。どなたでもスムーズに操作ができ、さらに暮らしやすさを高めます。

  • プッシュプルハンドル
  • 人感センサー付玄関照明
  • 保安灯
  • フラットフロア設計
  • バスルーム内手すり
  • 大型スイッチ

ACCESS アクセス

4駅9路線利用で東西南北へ
スムーズにアクセス

コートレジデントタワーの最寄り駅は、徒歩4分のところにある都営大江戸線「飯田橋」駅。「飯田橋」駅は、ほかにJR総武線、東京メトロ東西線、有楽町線、南北線など複数路線が利用できる交通の利便性の高い駅です。さらに、「水道橋」駅、「九段下」駅、「後楽園」駅が徒歩圏内にあり、4駅9路線が利用できます。最寄り駅から都内の主要スポットへは、以下の所要時間で到着できます。

掲載の所要分数は日中平常時のもので、乗り換え・待ち時間等は含みません。
また時間帯により異なる場合があります。

鉄道

池袋駅

池袋駅
池袋駅

東京メトロ有楽町線利用で、所要時間は約9分です。

新宿駅

新宿駅
新宿駅

JR総武線利用で、所要時間は約12分です。

銀座駅

銀座駅
銀座駅

東京メトロ東西線利用で「日本橋」駅に行き、東京メトロ銀座線に乗り換え。所要時間は約15分です。

渋谷駅

渋谷駅
渋谷駅

東京メトロ東西線利用で「九段下」駅に行き、東京メトロ半蔵門線に乗り換え。所要時間は約17分です。

六本木駅

六本木駅
六本木駅

都営大江戸線利用で、所要時間は約39分です。

タクシー

タクシー

※画像はイメージです。

行き先 所要時間
「東京」駅 約13分
「銀座」駅 約14分
「渋谷」駅 約17分
「六本木」駅 約20分

バス

バス

※画像はイメージです。

コートレジデントタワーから徒歩4分のところに都営バスが発着する「都営飯田橋駅前」バス停があり、「牛込神楽坂」駅まで約16分、「新大久保」駅まで約28分で到着。また、徒歩8分のところにある「水道橋駅前」バス停から乗車すれば、「池袋」駅まで約34分で到着します。

空港

空港

※画像はイメージです。

羽田空港へのルート

①電車

東京メトロ東西線利用で「日本橋」駅に行き、都営浅草線に乗り換え。所要時間は約55分です。

②タクシー

所要時間は約23分です。

成田空港へのルート

①電車

都営大江戸線利用で「上野御徒町」駅で下車。徒歩で「京成上野」駅に移動し、京成スカイライナーに乗車。所要時間は約約71分です。

②タクシー

所要時間は約56分です。

③リムジンバス

マンションから徒歩4分の場所にあるバス停「東京ドームホテル」から空港行きのリムジンバスに乗車。所要時間は約120分です。

新幹線発着駅

「東京」駅へのルート

東京メトロ東西線利用で「大手町」駅まで行き、徒歩で「東京」駅まで移動。所要時間は約16分です。
タクシーなどを使った車移動の場合は、約13分です。

「品川」駅へのルート

東京メトロ東西線利用で「日本橋」駅に行き、都営浅草線に乗り換え。所要時間は約27分です。
タクシーなどを使った車移動の場合は、約27分です。

LIFE
INFORMATION 周辺の施設・店舗情報

普段の買い物から休日の
お出かけまで徒歩圏内

コートレジデントタワーの周辺には、スーパーやドラッグストアなど日常のお買い物に便利なスポットが充実し、休日のお出かけにぴったりな商業施設へも徒歩でアクセスできます。隣接する小石川後楽園はもちろんのこと、自然を感じられる公園や保育園、学校も多いエリアなので、子育て世代にも最適です。

商業施設、商店街

まいばすけっと飯田橋駅北店
(徒歩8分/約600m)

まいばすけっと飯田橋駅北店
まいばすけっと飯田橋駅北店

生鮮食品、加工食品、弁当惣菜、冷凍食品などを取り扱うスーパー。お酒、たばこの取り扱いもあり、ATMも設置されています。

いなげや飯田橋店(徒歩11分/約850m)

いなげや飯田橋店
いなげや飯田橋店

生鮮品、加工食品、総菜などを中心に、オリジナル商品も充実する食品スーパー。イオングループのプライベートブランド「トップバリュ」の商品も取り扱っています。24時間スマホやPCからいつでも注文できるネットスーパーも利用できるのが便利です。

スギドラッグ水道橋店(徒歩4分/約290m)

スギドラッグ水道橋店
スギドラッグ水道橋店

医薬品、化粧品、日配食品、お酒などを取り扱うドラッグストア。処方箋のネット受付に対応しているため、好きな時間に予約して処方薬が受け取れます。

東京ドームシティ(徒歩5分/約350m)

東京ドームシティ
東京ドームシティ

東京ドームや後楽園ホール、遊園地、ラクーア、ホテルなどの施設で構成された都内最大規模のエンターテインメントシティ。ショッピングモール、日帰り入浴施設「スパ ラクーア」、バラエティに富んだ飲食店も備え、家族連れやカップルでにぎわいます。1日中楽しむことができる休日のお出かけにぴったりなスポットです。

飯田橋ラムラ(徒歩10分/約750m)

飯田橋ラムラ
飯田橋ラムラ

「飯田橋」駅から徒歩1分にある総合ショッピングセンター。スーパーやカフェ、飲食店をはじめ、書店、衣料品店、リラクゼーションサロンなどバラエティに富んだショップが入っています。100円ショップやドラッグストアもあるので、生活必需品を購入するのにも便利です。さまざまなイベントも開催されています。

自然、公園

千代田区立飯田橋三丁目広場
(徒歩5分/約400m)

千代田区立飯田橋三丁目広場
千代田区立飯田橋三丁目広場

JR「飯田橋」駅と「水道橋」駅の中間にある広場。周囲がフェンスで囲まれているため、安全にボール遊びなどをすることができます。バスケットゴールは申込不要で利用可能です。

文京区立後楽公園(徒歩9分/約700m)

文京区立後楽公園
文京区立後楽公園

小石川後楽園の一角にある公園です。木製のアスレッチ遊具があり、体を思い切り動かして遊ぶことができます。小さな子ども用にはスプリング遊具や砂場もあり、幅広い年齢の子どもたちがのびのびと過ごせる場所です。また、少年野球に利用できる「後楽園少年野球場」も隣接しています。

文京区立礫川公園(徒歩9分/約700m)

文京区立礫川公園
文京区立礫川公園

東京メトロ丸ノ内線「後楽園」駅の北側に位置する小石川大地の東端に造られた公園。高低差を活かした3段構造で、2本の大きなケヤキを中心にした広場や、池と花壇のある憩いの空間、遊具や健康器具のある遊び場があり、小さな子どもから大人までみんなで楽しめる場所です。イタリア・ルネッサンス様式を参考にした高さ10mに及ぶカスケードは、公園のシンボルになっています。

暮らし、インフラ

JCHO東京新宿メディカルセンター
(徒歩11分/約850m)

JCHO東京新宿メディカルセンター
JCHO東京新宿メディカルセンター

豊富な診療科を持つ、このエリアの基幹病院。各診療科を横断して1人の患者を包括的に診る総合診療に力を入れており、IC病棟から回復期リハビリテーション病棟、緩和ケア病棟まで520床を備え、多様な状況に対応します。

文京シビックセンター(徒歩10分/約750m)

文京シビックセンター
文京シビックセンター

音楽イベントにも使われる大小のホール、文京区役所、区議会場、高齢者や子育て世代に向けた区民施設などからなる総合施設。8階~21階が文京区役所で、利用の多い戸籍住民課は利便性の高い2階にあります。カフェやコンビニエンスストア、郵便局なども入っていて、公共駐車場(130台)も接地されています。

幼稚園、保育園、学校

文京区立後楽幼稚園(徒歩9分/約700m)

文京区立後楽幼稚園
文京区立後楽幼稚園

太陽の子 新小川町保育園(徒歩11分/約850m)

太陽の子 新小川町保育園
太陽の子 新小川町保育園

文京区立礫川小学校(徒歩17分/約1,300m)

文京区立礫川小学校
文京区立礫川小学校

文京区立第三中学校(徒歩14分/約1,100m)

文京区立第三中学校
文京区立第三中学校

まとめ

自然と共生する都心の
贅沢な暮らしが叶う

コートレジデントタワー エントランス
コートレジデントタワー エントランス

都心にありながら大庭園の潤いを身近に感じられる地上21階のタワーマンション。コートレジデントタワーは、心地よい室内空間から四季の移ろいを楽しみつつ、利便性に富んだ快適な都心生活を送ることができます。歴史と格式のあるこのエリアでの暮らしは、より本質的かつ贅沢なものになるでしょう。

コートレジデントタワー

駅徒歩 不動産の表示に関する公正競争規約の改正(2022年9月1日)により、交通利便情報が販売中のものと異なる場合がございます。

都営大江戸線
「飯田橋」駅 徒歩4分

築年月

2006年12月

総戸数

122戸

階数

地上21階 地下1階