野村不動産|三井不動産 他 ザ・センター東京 Concept 外苑東通り沿い、防衛省の隣り 尾張徳川家の上屋敷があった市谷本村町。東京を360°見晴らせる「東京の真ん中」に建つ、大規模・高層タワーマンション

ザ・センター東京

「曙橋」駅 徒歩5分、4駅7路線利用可能

徒歩圏に商店街や様々な飲食店が揃う四谷荒木町や神楽坂

地上38階、総戸数426戸のタワーマンション

2024.12.25 公開

LOCATION ロケーション

圧倒的な利便性の高さと
自然の融合

ザ・センター東京 レリーフ
ザ・センター東京 レリーフ

ザ・センター東京は、尾張徳川家の上屋敷跡に位置し、歴史のある新宿区市谷本村町にあります。この地域は、古くから高位な大名が住んでいた場所であり、気品のある住宅地として知られています。さらに、新宿区市谷本村町は山手線の内部に位置し、利便性の高いエリアとしても注目されています。

仲之公園
仲之公園

新宿区市谷本村町は、東京の中心部にありながらも緑や自然を感じられる場所です。徒歩圏内には仲之公園や加賀公園などがあり、子供たちの遊び場や休日の散歩ルートとして利用されています。自然豊かな環境を楽しみながら、都会の利便性を享受できる点がこの地域の魅力の一つです。

まいばすけっと 市谷薬王寺町店
まいばすけっと 市谷薬王寺町店

周辺にはスーパーやコンビニといった生活に必要な施設が充実しており、飲食店も多数存在するため、生活面で不便を感じることはありません。また、ザ・センター東京の徒歩圏内には保育園や幼稚園、小学校、中学校が揃っており、子育て世代にとって暮らしやすい環境となっています。

FEATURES 建物の特徴

東京の真ん中
自然と調和したエレガントな外観

コンセプト・デザイン

ザ・センター東京 外観
ザ・センター東京 外観

外苑東通り沿いに建つザ・センター東京は、38階建てのタワーマンションです。エレガントでありながら、周囲の景観と調和した外観が特徴です。ザ・センター東京のコンセプトは「東京の真ん中」であり、山手線の内側に位置する市谷本村町に位置しています。360°どこを向いても東京の街が広がるロケーションが魅力です。

ザ・センター東京 アプローチ
ザ・センター東京 アプローチ

ザ・センター東京のメインエントランスは、重厚感のある黒御影石貼りの列柱が特徴的です。床と壁には自然の風合いを活かした天然石が張られ、天井まで大きなガラスが配置されることで、洗練された表情を生み出しています。また、ザ・センター東京の前の歩道は幅広く作られており、交通量が多い外苑東通り沿いでも喧騒感を感じさせない落ち着いた空間を提供しています。

ザ・センター東京 その他
ザ・センター東京 その他

約6,000㎡の敷地に豊かな緑を配したガーデンスペースが魅力。1階の「フォレストガーデン」に加えて、2階の屋上庭園「オーバルガーデン」が設けられ、このガーデンでは四季の移ろいや柔らかな太陽光を感じることができ、都会の中にありながらプライベート感のある癒しの空間を実現しています。

建物構造

ザ・センター東京は、遮音性に優れた二重床を採用しており、子供やペットの足音が階下に響きにくく、上階からの音も軽減される特長があります。また、住戸間の壁には遮音性だけでなく耐火性能に優れた乾式耐火壁を使用し、石膏ボードの間にロックウールを挿入することで隣戸とのプライバシーにも配慮しています。外壁内側には約2.5mmの断熱材と厚さ約12.5mmの石膏ボードを施し、断熱性能を高めることで年間を通じて快適な室内環境を実現しています。

さらに、点検やメンテナンスがしやすい管ヘッダー工法を採用し、給水・給湯管にはさびや熱に強く耐久性の高い架橋ポリエチレン管を使用しています。このように、ザ・センター東京は住居者が安心安全に過ごせる工夫が施されています。

防災設備

ザ・センター東京では、住居者が24時間安心して暮らせるよう常時有人の管理・警備体制を整えています。敷地内や建物内の巡回警備を実施し、防災・防犯に注力しているため、万が一の災害があった際にも安心です。管理員や設備技術員などの係員がトラブル現場に駆けつけるほか、必要に応じて警察署や消防署にも通報します。

また、当物件には防災倉庫が設置されており、ヘルメットや工具、防災用救急箱などの防災備品が用意されています。地震が発生した際にも安心できる環境が整っています。

COMMON AREA 共用部

四季の移り変わりを味わう
集いあう心地の良い空間

共用施設系

ザ・センター東京では、以下のような共用施設が充実しています。

メインラウンジ(1階)

メインラウンジは、大きな吹き抜けが広がる開放的な空間です。壁にはライムスートン、床にはややダークな落ち着いたフローリングを採用。
間接照明によって和やかな雰囲気が演出されており、大きなソファーでゆったりと過ごすことが可能です。

カスケードラウンジ(1階)

メインラウンジの横にある二層吹き抜けの「カスケードラウンジ」には、ワイドな窓を配置。カスケードの水の流れやフォレストガーデンの木々の緑を存分に楽しめます。

屋上庭園「オーバルガーデン」(2階)

タワー棟の2階部分に設けられたオーバルガーデンは、駐車場の屋上を利用した施設で、美しくデザインされた楕円形のプライベートガーデンです。四季の移り変わりや自然の軽やかな風を感じられる場所です。
オーバルガーデン内には、ガラス張りのクラブハウスがあり。中には「キッズルーム」と「キッチンスタジオ」を設定しています。

キッズルーム(2階)

キッズルーム

※画像はイメージです。

オーバルガーデン内にあるクラブハウスには。雨の日でも子供たちが遊べるように、キッズルームが完備されています。おもちゃや絵本が用意され、子供たち同士が自然と友達になれる環境が整えられています。

キッズガーデンエリア(2階)

オーバルガーデン内には、小さな子どもでも安心して遊べる芝生エリアも存在します。中心に築山を設けており、子どもの遊び場としてピッタリです。

パーティーガーデンエリア(2階)

木製のテーブルとチェアーを用意した、大人の社交場として利用できるエリアを設置。バーベキューコンロの貸出サービスも利用可能です。

キッチンスタジオ(2階)

ガラス張りで明るいキッチンスタジオは、アイランド型キッチンを採用しており、複数人で囲んで使いやすくなっています。オーバルガーデンの美しい景色を眺めながら、ランチやディナーパーティーを楽しむことができます。

利用可能時間/10:00~22:00(予約制)
利用料/1時間500円

コンサバトリー(2階)

コンサバトリーは、屋外のおバルガーデンにつながるスペースです。割り肌の石を乱張りした床やプランターの緑によって、自然を豊かに体感できるオーガニックな空間を演出しています。

コージーラウンジ(2階)

コージーラウンジには、ステップダウンした床にカーペットが敷かれています。そのまま座り込める仕様で、来客時にはくつろぎのスペースとして利用可能です。

ライブラリー(2階)

コンサバトリーとコージーラウンジの間には、書棚が並ぶライブリーを設置。低いテーブルと個性的なデザインのソファーが並ぶ空間で、ゆったりと読書を楽しめます。

ベーカリーカフェ(2階)

コージーラウンジ横には焼き立てパンと飲み物を販売するベーカリーカフェがあり、買い物に出かけることなく午後のティータイムを楽しむことができます。パンと飲み物はテイクアウトにも対応しています。

フィットネス&サウナ(2階)

エアロバイク、ランニングマシーンなどの機器を揃えたフィットネスジムと、日々の疲れを癒せるサウナを併設しています。

ジャパニーズスイート(2階)

檜と石を使用したお風呂がある和風のゲストルーム「ジャパニーズスイート」です。訪ねてきたゲストの宿泊施設や、友人との趣味のスペースとして利用できます。
チェックイン/14:00(予約制)
チェックアウト/翌10:00
宿泊料/1泊4,000円
利用可能時間/11:00~22:00(予約制)
利用料/1時間500円

スカイラウンジ(18階)

東京の真ん中ならではの眺望が楽しめる、カウンタースタイルのキッチンを備えたスカイラウンジです。大きなテーブルとチェアー、ソファーがあるので、パーティーなどで楽しめます。
利用可能時間/10:00~22:00(予約制)
利用料/1時間500円

スカイスイート(18階)

開放的な空が広がるゲストルームの「スカイスイート」です。シックで落ち着いたインテリアにより、まるでホテルのような大人の雰囲気を演出しています。
チェックイン/14:00(予約制)
チェックアウト/翌10:00
宿泊料/1泊4,000円

サービス系

ザ・センター東京には、日々の暮らしを便利にしてくれるさまざまなサービスが用意されています。

コンシェルジュサービス

コンシェルジュサービス

※画像はイメージです。

1階のフロントにはコンシェルジュが在住し、約50種類のサービスを提供しています。レンタカーの予約や粗大ゴミの取次、宅配便発送の手続きなどが可能です。

買物配達サービス

スーパーマーケットと連携した配達サービスを行っており、悪天候や買い物が多いときに便利です。

子育て支援サービス

ザ・センター東京のタワー棟2階には「キッズルームⅡ」があり、育児と幼児教育に定評のある「株式会社オリエントケアネット」による子育て支援サービスを利用できます。

24時間クリーニング取次装置サービス

24時間利用可能なクリーニング取次装置が設置されており、外出や帰宅の際に手軽にクリーニングを預けたり受け取ったりできます。

レンタサイクルサービス

20台分のレンタサイクルが用意されており、近場への買い物や少し遠方へのお出かけなどに利用できます。

レンタカーサービス

提携しているレンタカー会社のサービスを利用し、割引特典があるレンタカーの予約が可能です。

各階24時間対応ゴミ置場

各階には24時間利用できるゴミ置場が設置されており、曜日や時間を気にせずにゴミを処理できる便利さがあります。部屋にゴミを溜める必要もなく、エレベーターを使ってゴミを運ぶ手間も省けます。

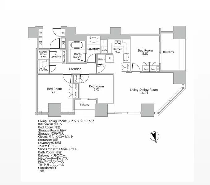
FLOOR PLAN 間取り図一例

アーティスティックに暮らす
家族を温もりを包んだ住まいを実現

ザ・センター東京 間取り図例
ザ・センター東京 間取り図例
ザ・センター東京 間取り図例
ザ・センター東京 間取り図例

INSIDE THE ROOM 室内

優しい光が入り込む
どこまでも伸びやかな空間

ザ・センター東京の室内は、優しい光が入り込む、開放感のある空間が特徴です。天井高は約2.6m〜2.88m(下がり天井や一部タイプを除く)で、縦の広がりを確保し、居住空間にゆとりをもたらしています。

リビング・ダイニングのドア建具の高さは約2.26mで、天井の高さと相まって伸びやかな空間を実現しています。バルコニーへの窓には床から約2.34mのハイサッシを採用し、室内に優しい光を取り込むことで、明るく心地よい居住環境を提供しています。

ACCESS アクセス

東京を縦横無尽
柔軟なアクセスを実現

こちらでは、交通手段別に所要時間を紹介します。

鉄道

曙橋駅
曙橋駅
ザ・センター東京 アクセス
ザ・センター東京 アクセス

ザ・センター東京の最寄り駅は、徒歩5分の位置にある都営新宿線「曙橋」駅です。この駅から都内の主要な駅へのアクセスは以下の通りです。

渋谷駅

都営新宿線で隣の「新宿三丁目」駅まで行き、東京メトロ副都心線に乗り換えます。約7分で「渋谷」駅に到着します。合計所要時間は約16分です。

新宿駅

「曙橋」駅の2駅先が「新宿」駅です。乗り換えなしで約5分でアクセスできます。

永田町駅

隣の「市ヶ谷」駅まで行き、東京メトロ有楽町線に乗り換えます。合計所要時間は約12分です。

恵比寿駅

「新宿」駅へ向かい、JR山手線に乗り換えます。約9分で「恵比寿」駅に到着します。

霞ヶ関駅

ザ・センター東京から徒歩約15分の位置にある東京メトロ丸ノ内線「四谷三丁目」駅から、乗り換えなしで約9分で「霞ヶ関」駅にアクセスできます。

タクシー

タクシー

※画像はイメージです。

「渋谷」駅まで約20分、「新宿」駅まで約10分が目安です。渋滞によって時間が変わりますが、道路が比較的空いていればおおよそこの時間で到着できます。ザ・センター東京の前にある「外苑東通り」は交通量があるため、タクシーもすぐに捕まるでしょう。

バス

バス

※画像はイメージです。

ザ・センター東京の最寄りのバス停「市谷仲之町交差点」には徒歩1分でアクセスできます。「新宿」駅へは約17分、「渋谷」駅は約30分が目安です。時間帯によっては、平日・休日ともに1時間に5~6本運行しているため、電車以外の交通手段として選択肢に入るでしょう。

空港

空港

※画像はイメージです。

出張が多い方は、空港や新幹線の駅までの所要時間が気になるのではないでしょうか。こちらでは、羽田空港、成田空港、東京駅、品川駅までのアクセスを紹介します。

羽田空港へのルート

電車でのアクセス
  • ルート1:
    都営新宿線「曙橋」駅から「神保町」駅まで行き、都営三田線に乗り換えて「三田」駅まで行きます。その後、都営浅草線に乗り換え、「羽田空港第2ターミナル」駅に向かいます。ザ・センター東京からの所要時間は約55分です。
  • ルート2:
    「曙橋」駅から「新宿」駅まで行き、JR山手線に乗り換えて「品川」駅まで向かいます。京急本線に乗り換えれば、「羽田空港第1・第2ターミナル」駅まで約1時間でアクセス可能です。
リムジンバス

リムジンバスを使用する場合は、都営新宿線「曙橋」駅から「新宿」駅へ向かい、「バスタ新宿」からリムジンバスが出ており、約1時間でアクセスできます。

成田空港へのルート

電車でのアクセス
  • ルート1:
    都営大江戸線「牛込柳町」駅から「上野御徒町」駅まで行きます。その後、徒歩で京成本線「京成上野」駅へ向かい、そこから「成田空港」駅まで直通です。ザ・センター東京からの所要時間は合計で約1時間20分です。
  • ルート2:
    都営新宿線「曙橋」駅から6駅先の「馬喰横山」駅まで向かい、都営浅草線「東日本橋」駅に乗り換えることで、「成田空港」駅へ直通でアクセス可能です。所要時間は約1時間27分です。
リムジンバス

都営新宿線「曙橋」駅から「新宿」駅へ向かい、その後「バスタ新宿」から出ているリムジンバスを利用します。所要時間は約1時間40分です。

新幹線発着駅

東京駅までのアクセス

東京駅へは、東京メトロ丸ノ内線「四谷三丁目」駅まで行き、乗り換えなしで約28分で到着します。タクシーの場合の所要時間の目安は約18分です。

品川駅までのアクセス

都営新宿線「曙橋」駅から「新宿」駅まで行き、JR山手線に乗り換えて「品川」駅まで向かいます。電車でアクセスする場合の所要時間は約38分です。タクシーで移動する場合は約35分で到着できます。

LIFE
INFORMATION 周辺の施設・店舗情報

世界のトレンドや日本の
文化を
思うがままに堪能

商業施設、商店街

まいばすけっと 市谷薬王寺町店
(徒歩2分/110m)

まいばすけっと 市谷薬王寺町店
まいばすけっと 市谷薬王寺町店

まいばすけっとは、イオングループが運営する都市型小型食品スーパーです。「近い、安い、きれい、そしてフレンドリィ」をコンセプトとしており、主に日常の食卓に並ぶ食品や雑貨を取り扱っています。

ローソン 市谷仲之町店(徒歩2分/100m)

ローソン 市谷仲之町店
ローソン 市谷仲之町店

ローソン 市谷仲之町店は、外苑東通りを渡ってすぐにアクセスできる場所に位置しています。24時間営業なので、スーパーでの買い忘れなど、いざというときの利用が便利です。

ダイソー くすりの福太郎市谷柳町店
(徒歩5分/400m)

ダイソー くすりの福太郎市谷柳町店
ダイソー くすりの福太郎市谷柳町店

100円ショップのダイソーは、当物件から徒歩約6分でアクセス可能です。日用品や文房具などを安価で購入できるのが魅力です。また、当施設はドラッグストアの「くすりの福太郎」と併設されているため、薬や化粧品も購入できます。

自然、公園

泰國山 長昌寺(徒歩4分/260m)

長昌寺
長昌寺

泰國山 長昌寺は、徳川家康が亡くなった年である1616年に開創された寺院です。毎月第4土曜日には定例坐禅会が開かれており、一般の方も参加できます。

仲之公園(徒歩5分/350m)

仲之公園
仲之公園

仲之公園は1977年に開園した公園です。すべり台やブランコの遊具だけでなく、芝生や長さ約14mの藤棚があります。

暮らし、インフラ

曙橋よつばファミリークリニック
(徒歩2分/100m)

曙橋よつばファミリークリニック
曙橋よつばファミリークリニック

曙橋よつばファミリークリニックは、小さな子供から大人まで利用できるクリニックです。日曜診療にも対応しているため、急な病気の際でも安心です。

新宿区立防災センター(徒歩3分/200m)

新宿区立防災センター
新宿区立防災センター

新宿区立防災センターは、万が一の災害時に区役所本庁舎と同じ機能を持つ施設です。平常時には防災思想の普及・啓発の拠点となっています。

牛込警察署(徒歩13分/1,000m)

牛込警察署
牛込警察署

牛込警察署は、新宿大久保通り沿いに位置する警察署です。運転免許証の記載事項の変更や落とし物の受け取りが可能です。

外苑東通り(徒歩1分/80m)

外苑東通り
外苑東通り

ザ・センター東京の目の前にある外苑東通りは交通量が多いため、タクシーを拾いやすいのが魅力です。車通りは多いものの、歩道が広いため、子どもが急に飛び出すなどの危険性は低いと言えます。

幼稚園、保育園、学校

アスク薬王寺保育園(徒歩3分/170m)

アスク薬王寺保育園
アスク薬王寺保育園

新宿区立牛込仲之幼稚園・牛込仲之小学校(徒歩2分/160m)

牛込小学校・幼稚園
牛込小学校・幼稚園

新宿区立牛込第三中学校(徒歩12分/900m)

牛込第三中学校
牛込第三中学校

まとめ

東京の真ん中でビジネス・プライベートの優雅な拠点を築く

東京の中心にあるザ・センター東京は、日々を優雅に過ごせるサービスが整っており、周辺施設も充実しています。快適な住環境が魅力の物件です。都会の機能を最大限活用しつつ、自然とも触れ合える環境に身を置きたい方は、ぜひ入居を検討してみてください。

ザ・センター東京

駅徒歩 不動産の表示に関する公正競争規約の改正(2022年9月1日)により、交通利便情報が販売中のものと異なる場合がございます。

都営新宿線 「曙橋」駅
徒歩5分

築年月

2007年11月

総戸数

426戸

階数

地上38階 地下2階