野村不動産 市谷逢坂ハウス Concept 外堀通りから逢坂に入り坂を少し上った左手、基壇部は重厚な印象を与える花崗岩、2階以上はホワイトベージュ系の端正なボーダータイル、シルバーの水平ルーバーと相まって繊細でシャープな表情の外観デザイン

市谷逢坂ハウス

歴史が薫る、市ヶ谷の高台

「飯田橋」駅 徒歩8分
「牛込神楽坂」駅 徒歩6分
「市ケ谷」駅 徒歩6分
3駅6路線利用可

地上5階、総戸数14戸

2025.06.06 公開

LOCATION ロケーション

歴史を継承し、
賑わいと静謐さを携える

江戸より昔から、人々のなりわいが積もり積もった丘の上にある神楽坂。たまにある急勾配はすぐになだらかになり、全体が起伏に富んだ小さな山のような地形をしています。そこには賑わいが今日も息づきながらも、文化と伝統をゆっくりと着実に次代へ繋ぐかのような落ち着いた静謐な環境が整っています。

皇居外濠
皇居外濠

戦国時代には職人たちの街として栄えた神楽坂一帯。江戸時代になると外濠が築かれ、屋敷町として賑わいを見せました。明治、大正、昭和と、文豪や画家、役者が好んで居を構えた、文化と伝統を築き上げてきたこのまちには、賑わいと同時に、静謐な空気が漂っています。

神楽坂通り商店街
神楽坂通り商店街

個性的なショップが軒を連ねる神楽坂通り商店街は、数百年前から栄えてきたこの土地の目抜き通り。曜日を問わず、また、夜のきらめきも楽しめるとあって時を経てなお、その賑わいは衰えるところを知りません。さらに、「飯田橋」駅周辺にはラムラ、エキュートエディション、飯田橋サクラテラスといった商業施設も点在し、生活に彩りを加えてくれることでしょう。

「飯田橋」駅
「飯田橋」駅

最寄りの都営大江戸線の「牛込神楽坂」駅、さらに東京メトロ東西線の「神楽坂」駅、JR、地下鉄が乗り入れる「飯田橋」駅が徒歩圏内になり、目的地に合わせて手段を選べるのも神楽坂のポテンシャルです。大久保通り、外堀通りといった幹線道路も近くを通り、車での移動にもアドバンテージを発揮する環境が揃っています。

FEATURES 建物の特徴

歴史を尊び、
未来を見据えた邸宅

市谷逢坂ハウス 外観
市谷逢坂ハウス 外観

江戸時代から脈々と受け継がれる神楽坂の格式。これに調和し、さらには、確かな知識と技術で建物を作り上げていくことで100年先の未来をも見越した建物構造です。元来、治安のよい界隈ですが、幾重にも折り重ねられたセキュリティで安全な邸宅が実現されています。

コンセプト・デザイン

市谷逢坂ハウス 敷地配置図
市谷逢坂ハウス 敷地配置図

江戸時代の屋敷町の風情が息づく逢坂周辺。邸宅の前には重厚感のある静謐な石垣が伸びていき、格式の高い屋敷町の片鱗がまちのそこかしこにあります。マンション名にもなっている逢坂は住まいからはくだって行く坂道で、その先には外濠が悠々と流れています。

そのような環境にあって、この地を生きた人の歴史を次代へ継承していくべきカタチとしての邸宅をデザインしようと建築家の柴田知彦氏・柴田いづみ氏が仕事にあたりました。建物の外には坂道をなぞるような前庭を置き、エントランスは地形を利用して奥まった場所に設置することで、静謐な雰囲気を醸し出しています。外壁は花崗岩とボーダータイルの2トーンで仕上げ、住戸のベランダに配置したシルバーの水平ルーパーの美しさも相まって繊細でシャープな外観に仕上がっています。

地上5階、総戸数14戸の市谷逢坂ハウスは、かつて、選ばれた者だけが住むことを許されたこの格式の高い地が持つ風情と調和を果たし、次代へと存在感を示していく新たなる品格を携えた「継承」と「創造」の邸宅です。

建物構造

スケルトン&インフィル、100年コンクリート

柱、梁、壁、床には高強度のコンクリートを採用し、高い耐久性を誇っています。また、住戸仕切り壁や内装、電気設備は戸外に設置スペースを設けることで室内を自由にレイアウトできるようになっています。構造躯体の「スケルトン」と、マルチファンクションシャフトを採用した「インフィル」によって約100年の耐久性を目指した屈強で、室内を思い通りにカスタマイズしやすい設計になっています。

二重床・二重天井

室内の床と天井は、将来のリフォームやメンテナンスがしやすいように二重構造になっています。床のスラブ厚は200mm(最下階は180mm)を確保しその上に木の温もりを感じるフローリング材を採用しています。床スラブとフローリングの間には防振ゴムや特殊な吸音材を配置し、地震の揺れへの対策や、上下階への遮音性も実現しています。

複層ガラス

住戸内の全ての窓には複層ガラスを採用しています。ガラスを重ねることで結露の防止や断熱性、遮音性も向上しています。また、外壁には35mm厚の断熱材を施し、屋上、最下階床にも断熱材を配置して快適な室内空間を保っています。

外壁タイル

しっかりとした厚さの断熱材の外側には繊細でシャープな外壁タイルを採用しています。基壇部は花崗岩となっており変化のある外観をデザインして、モダンでありながらも落ち着きのある雰囲気を演出しています。

逆梁構造とハイサッシ

バルコニーの梁は逆梁構造にして、一般の窓よりも背の高い約2.25m以上のハイサッシを採用しています。これによってリビング・ダイニングに広がりが生まれ、採光と相まって心地よい開放感と奥行きのある住空間を実現しています。

防災設備

耐震仕様の玄関ドア

地震の被害に遭っても、安全な避難経路を確保できるように、玄関ドアは耐震仕様になっています。

セキュリティ

セキュリティシステム〈アーバント〉

全ての住戸の玄関と窓の開口部に防犯センサーを設置し、異常を感知すると広域管理センターとセコムコントロールセンターに自動通報され、専門スタッフが住戸と住まう方の非常事態に対応します。

カラーTVモニター付オートロック

エントランスのオートロックで来訪者を映像と音声で確認できるように、住戸内にはカラーTVモニター付インターホンが備え付けられています。来訪者の姿を確認してからオートロックを解除することができるので、不審者の容易な侵入を防止することができて安全です。

ピンシリンダー・ダブルロック

玄関ドアには複製が困難なリバーシブルピンシリンダーを採用しています。さらにこれをドアハンドルの上下に設置したダブルロックで防犯性能を向上。ピンシリンダーはピッキングにも高い耐抗性をもっています。

防犯カメラ

防犯カメラ

※画像はイメージです。

エントランスや駐車場などに防犯カメラを設置して、犯罪やいたずらの抑止力となっています。

COMMON AREA 共用部

地形を利用した
エントランスと
上質な迎賓空間

市谷逢坂ハウスが建つ立地は坂の斜面。その地形を利用して、エントランスは道路から少し奥まったところに設計されています。美しいマーブルと豊富な緑に彩られた迎賓空間から住戸へとアプローチが続いていきます。屋内駐車場や宅配ボックスなどライフサポートも兼ね備えた邸宅です。

共用施設

エントランス

市谷逢坂ハウス エントランス
市谷逢坂ハウス エントランス

坂の中腹から邸宅へ誘うのは緩やかな階段のアプローチ。斜面の地形を利用したエントランスは道路よりも少し低い位置に作られています。シャープな印象の黒い手すり、足元を照らす照明に歩を任せて進んだ先には、洗練されたマーブルが美しいエントランスが待っています。豊かな植栽が脇を固め、落ち着いた色のエントランスの壁は、気品と風格をまといながら、静かなる邸宅を演出する落ち着いた空間。住まう人と市谷逢坂ハウスに訪れる方を迎え入れる穏やかなつくりとなっています。

エントランスロビー

天井の白、壁のマーブル、床の石材のシックな黒みで構成される迎賓空間・エントランスロビー。ワイドなガラス窓からは自然光が降り注ぎ、窓外には豊かな緑の植栽が都心にいることを忘れさせてくれます。来訪者と語らいができるようにソファーも設置されたおもてなしの空間には安穏の醸成ともいうべき雅な空気が漂っています。

内廊下

柔らかなカーペット生地の床が玄関へ、あるいはエレベーターへと誘う内廊下はホテルライクな作り。ダウンライトの柔らかな光に照らし出された玄関への回廊を歩くたびに、静寂と上質さを感じることでしょう。

サービス

屋内駐車場

住まう方の大切な愛車は屋内駐車場に収納できます。雨風にさらされることなく、また、乗り降りも天候を気にせず行えるので快適です。

宅配ボックス

不在の時でも荷物を受け取れるように宅配ボックスを設置しています。贈り物やネットショップの買い物のほか、クリーニングに出した衣類などの受け取りにも利用できます。

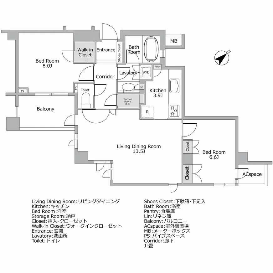
FLOOR PLAN 間取り図一例

ユーティリティに富み、
採光も良好

市谷逢坂ハウス 間取り図例
市谷逢坂ハウス 間取り図例
市谷逢坂ハウス 間取り図例
市谷逢坂ハウス 間取り図例

INSIDE THE ROOM 室内

世界ブランドが魅せる
美しく快適な空間

室内仕様

システムキッチン

キッチン

※画像はイメージです。

美しさと機能性を兼ね備えたドイツ・ジーマティック社のシステムキッチンを採用しています。世界的にも有名なキッチンブランドで、シャープで洗練された美しい設計の中身は、調理欲をそそり、楽しく美味しい時間を叶えてくれる充実の機能が満載です。シンクの水栓にはいつでも美味しい水が飲めるように浄水器を設置。コンロは、火災の心配も少ないIHクッキングヒーターを採用しています。

天井カセット式エアコンと床暖房

床暖房

※画像はイメージです。

リビング・ダイニングには、室内に余計な出っ張りを出さなないために、エアコンは天井カセット式を採用しています。また、冬場は足元からじんわりと室内を温めてくれるTES式床暖房を設置。エアコンの送風による乾燥が気になる冬場は、床暖房で快適な生活を送ることができます。

常時小風量換気システム

住戸内の空気を常にクリーンに保つために、風量が少ないながらも常時空気の入れ換えを行う換気システムを配備しています。小風量で室内に空気の流れを作り出し、結露対策にも効果があります。

フルオートバスシステム

湯はり、保温、追い焚きまでワンタッチ操作が可能なフルオートバスシステムを採用しています。また、浴室には室内干しが可能な換気機能、冬場にヒートショックの予防となる暖房機能を兼ね備えた空調システムも完備しています。ワイドな鏡と天然石仕上げの美しい風格のある浴室です。

ディスポーザー

ディスポーザー

※画像はイメージです。

生ごみを粉砕処理してくれるディスポーザーがシンクに備わっています。臭いのもととなる生ごみを処理し、家庭から排出されるごみの量も減り快適な生活をサポートしてくれる機能的なアイテムです。

インターネットシステム

住戸内では光ファイバー導入によるインターネットサービスを利用することができます。定額利用で常時接続、さらに各居室にも接続口があるため、それぞれの楽しみたいコンテンツをプライベート空間で楽しむことができます。また、BS・CS・CATVを楽しめる環境も整っています。

その他

玄関床は大理石仕上げとなっており、居室の天井は約2.6mとゆとりのある高さとなっています。温もりを感じるフローリングは耐傷性に優れた製品を選び、システム収納はデザイン面・機能面共に充実しているイタリア製を採用。網戸を使用しないときには収納できるプリーツ構造のタイプですっきりとした窓を演出しています。さらに、トイレには手洗いカウンターとウォシュレットアプリコットを搭載し、操作が簡単で機能性に富んだグローエ社の水栓を採用した充実の室内設備となっています。

ACCESS アクセス

4駅複数路線で
各所へアクセス良好

最寄り駅は都営大江戸線「牛込神楽坂」駅で、徒歩6分の距離にあります。
さらに、JR総武・中央緩行線「市ケ谷」駅も徒歩6分、JR総武・中央緩行線「飯田橋」駅も徒歩8分、東京メトロ東西線、南北線、有楽町線、都営大江戸線が乗り入れる地下鉄の「飯田橋」駅と、複数の路線が利用可能です。
東京の各主要エリアへ直通アクセスができ、「新宿」駅、「東京」駅や「渋谷」駅へも短時間で到着できます。通勤・通学に限らず休日のお出かけにも大変便利です。
こちらでは、最寄りの「牛込神楽坂」駅から、主要エリアへの所要時間を紹介いたします。

掲載の所要分数は日中平常時のもので、乗り換え・待ち時間等は含みません。
また時間帯により異なる場合があります。

鉄道

「牛込神楽坂」駅
「牛込神楽坂」駅

「銀座」駅

「銀座」駅
「銀座」駅

都営大江戸線「牛込神楽坂」駅から、「本郷三丁目」駅で東京メトロ丸ノ内線に乗り換えます。「銀座」駅まで約15分です。

「渋谷」駅

「渋谷」駅
「渋谷」駅

都営大江戸線「牛込神楽坂」駅から、「東新宿」駅で東京メトロ副都心線に乗り換えます。「渋谷」駅まで約16分です。

「新宿」駅

「新宿」駅
「新宿」駅

都営大江戸線「牛込神楽坂」駅から、「新宿西口」駅より徒歩で到着します。「新宿」駅まで約14分です。

「六本木」駅

「六本木」駅
「六本木」駅

都営大江戸線「牛込神楽坂」駅から、「都庁前」駅で同線六本木・大門方面に乗り換えます。「六本木」駅まで約22分です。

タクシー

タクシー

※画像はイメージです。

行き先 所要時間
「銀座」駅 約16分
「渋谷」駅 約23分
「新宿」駅 約15分
「六本木」駅 約18分

バス

バス

※画像はイメージです。

最寄りの「市谷田町」バス停には、「新橋駅前」を出発して「霞ヶ関」、「市ヶ谷駅前」、「牛込柳町駅」、「新大久保駅前」などを経由し、新宿の「小滝橋車庫」を結ぶ路線バスが運行しています。また、大久保通りの「牛込神楽坂駅前」のバス停には、「都営飯田橋駅前」を出発し、「牛込柳町駅前」、「国立国際医療研究センター前」、「新大久保駅」などを経由して「小滝橋車庫前」までを結ぶ路線バスが運行しています。

空港

空港

※画像はイメージです。

市谷逢坂ハウスは、国内外を問わずアクセス良好なことが魅力です。最寄り駅である「牛込神楽坂」駅やマンションからの移動ルートを紹介します。

羽田空港へのルート

①電車

「牛込神楽坂」駅から都営大江戸線で「春日」駅で都営三田線に乗り換えて「三田」駅まで行きます。「三田」駅からは京急本線に直通する都営浅草線に乗車して約39分で到着します。

②タクシー

タクシー等、自動車の場合の所要時間は約33分です。

成田空港へのルート

①電車

「牛込神楽坂」駅から都営大江戸線で「蔵前」駅へ。都営浅草線快速 成田空港に乗り換えます。乗車時間は約106分です。

②タクシー

タクシー等、自動車の場合は約60分で到着します。

③リムジンバス

市谷逢坂ハウスの最寄りにある東京ドームホテルから出ている成田空港行きのリムジンバスも便利です。約85分で到着します。

新幹線発着駅

「東京」駅へのアクセス

「牛込神楽坂」駅からは都営大江戸線で「本郷三丁目」駅降車後、東京メトロ丸ノ内線に乗り換えて約12分で到着します。
タクシー等、自動車の場合は約17分で到着します。

「品川」駅へのアクセス

「牛込神楽坂」駅からは都営大江戸線で「上野御徒町」駅降車後、JR「御徒町」駅まで移動して山手線に乗車し、約28分で到着します。
タクシー等、自動車の場合は約29分で到着します。

LIFE
INFORMATION 周辺の施設・店舗情報

活気のある商店街と
憩いに囲まれて

少し歩けば夜まで賑やかな神楽坂通り商店街があり、近所には子どもたちが遊べるスポット、足を伸ばせば北の丸公園や小石川後楽園など豊潤な緑も点在しています。自動車、鉄道ともにアクセスが良好でありながら住まいの周りは情緒と風格を感じるまちです。

商業施設、商店街

神楽坂通り商店街(徒歩8分/約600m)

神楽坂通り商店街
神楽坂通り商店街

300前後の店舗が軒を連ねる神楽坂通り商店街。和洋中のレストランをはじめ、食料品、ファッション、雑貨、理美容、コンビニ、ドラッグストアなどあらゆるショップがあります。神楽坂上から神楽坂下までのメイン通りだけでなく、左右にある細い路地にも隠れ家的な店舗もあり、老舗から新店まで個性あふれる魅力的な商品やサービスが満載です。

飯田橋ラムラ(徒歩9分/約650m)

飯田橋ラムラ
飯田橋ラムラ

JR「飯田橋」駅に併設しているショッピングセンターです。1階、2階、20階に30店舗以上が集結しており、レストランやファッション、リラクゼーション、雑貨、食料品店、カフェ、ドラッグストアなど、生活に役立つ商品や、人気の飲食店などが軒を連ねています。地下鉄飯田橋駅とも直結し、お出かけ前や帰りしなにショッピングを楽しむことも可能です。

自然、公園

新宿区立若宮公園(徒歩5分/約400m)

新宿区立若宮公園
新宿区立若宮公園

かつて武家屋敷が多くあった神楽坂の歴史にちなみ、瓦葺の門や冠木門、漆喰塀、四阿などが設けられた公園です。遊具はなく、坂の中腹にある静かな休憩スポットとして、江戸時代の風情を感じながら一息つける場所となっています。

中町公園(徒歩4分/約300m)

中町公園
中町公園

ブランコや鉄棒、砂場などがあり子どもが遊べる住まいに最も近い公園です。園内にはマンサクやロウバイなど春を告げる樹木が植栽され、5月ごろに見頃を迎える藤棚もある風流なスポット。ベンチやトイレ、井戸もあります。

北の丸公園(徒歩19分/約1,500m)

北の丸公園
北の丸公園

皇居外苑にある北の丸公園は、住まいから少し離れていますが、訪れればその豊かな緑や千鳥ヶ淵、園内の池などの潤いを感じリラックスできる広い公園です。日本武道館、科学技術館、東京近代美術館なども園内にあり、イベントやコンサートがある日には大変賑わっています。レストランや休憩所もところどころに設けられていて、長時間過ごしても飽きのこないスポットです。

暮らし、インフラ

箪笥町特別出張所(徒歩8分/約630m)

箪笥町特別出張所
箪笥町特別出張所

新宿区役所の特別出張所が大久保通り沿いの箪笥町にあります。転入届や印鑑登録など、区役所で行う用事を住まいの近場で済ますことができるため大変便利です。区民ホールと地域センターも同一施設内にまとめられています。建物入り口には来場者用の駐輪場が設けられています。

「牛込神楽坂」駅(徒歩6分/約480m)

「牛込神楽坂」駅
「牛込神楽坂」駅

都営大江戸線が通る「牛込神楽坂」駅が住まいの最寄駅です。2000年に開業し1面2線のホームで改札は1ヶ所。西は新宿や都庁、東は飯田橋や両国方面への移動が可能です。住まいに最も近い出口はA2で、大久保通りに面しています。

外堀通り(徒歩2分/約160m)

外堀通り
外堀通り

住まいの由来でもある逢坂をくだれば、数分で大きな通りにあたります。この通りは外堀通り(都道405号)と呼ばれ、環状2号線の一部。西は市ヶ谷、四ツ谷、赤坂見附など、東は水道橋、神田などにつながっています。首都高飯田橋の入り口が至近にあるため、飯田橋の交差点は混雑することが多くあります。

幼稚園、保育園、学校

新宿区立あいじつ子ども園
(徒歩8分/約600m)

新宿区立あいじつ子ども園
新宿区立あいじつ子ども園

新宿区立津久戸幼稚園(徒歩11分/約810m)

新宿区立津久戸幼稚園
新宿区立津久戸幼稚園

新宿区立愛日小学校(徒歩8分/約600m)

新宿区立愛日小学校
新宿区立愛日小学校

新宿区立牛込第三中学校(徒歩10分/約800m)

新宿区立牛込第三中学校
新宿区立牛込第三中学校

イベント、お祭り

神楽坂まつり

毘沙門天善國寺
毘沙門天善國寺

毎年7月下旬に開催される古き良き情緒を今も大切にしている神楽坂まつり。神楽坂通りの中腹にある毘沙門天善國寺ではほおずき市が催され、縁日や近隣の飲食店が協力して営む屋台などが出店します。また、神楽坂と6丁目の2会場で開催される阿波踊りもこの祭りの名物となっています。

まとめ

良好な住環境が生み出す
充実した日々

歴史を継承し、土地に息づく静謐の中にたたずむ市谷逢坂ハウス。賑やかな商店街も、使い勝手のいい商業施設も、子どもたちが遊ぶ公園も、豊潤な緑や潤いに満ちた外濠など、住み心地の良いスポットが住まいの近くに点在しています。100年先を見据えた堅牢な作りの建物に、住まう方の安全な生活を守るセキュリティシステムも搭載され、単身でもファミリーでも、ゆっくりと落ち着いた雰囲気の中で充実した日々が送れそうな住環境が整っています。

市谷逢坂ハウス

駅徒歩 不動産の表示に関する公正競争規約の改正(2022年9月1日)により、交通利便情報が販売中のものと異なる場合がございます。

都営大江戸線
「牛込神楽坂」駅 徒歩6分

総武・中央緩行線
「市ケ谷」駅 徒歩6分

築年月

2003年2月

総戸数

14戸

階数

地上5階