三井不動産 パークコート三番町 Concept 内堀通りに面し、千鳥ヶ淵入口の交差点から半蔵門方面へ一歩入った角地、大きく曲線を描くフォルム、重厚感のある基壇部、清楚な趣を醸し出す中層部、青空と溶け合う屋根を影像する上層部の三層構成、コンテンポラリーでありながらモダン・クラシカルな印象の外観デザイン

パークコート三番町

「半蔵門」駅 徒歩5分「麹町」駅 徒歩10分

千鳥ヶ淵の風景を住まいに
取り込むパノラマ
ビューウィンドウ

地上9階、総戸数15戸のプレミアムマンション

2025.05.30 公開

LOCATION ロケーション

優雅な邸宅地
「番町」の一角
千鳥ヶ淵を望む地

「パークコート三番町」は、千代田区三番町に佇むマンションです。皇居の西部から北東部に広がる「番町」の歴史は、江戸時代にまで遡ります。優れた地の利を有する山の手台地の上にあることから、将軍直属の格式高い武士たちの屋敷が建ち並びました。そして明治時代以降は、官吏、文化人、華族などが邸宅を構え、各国の大使館も点在するエリアになったのです。

千鳥ヶ淵
千鳥ヶ淵

由緒ある邸宅地として知られる番町の中でも、三番町は千鳥ヶ淵や北の丸公園などの自然豊かな環境に寄り添う位置にあります。特に「パークコート三番町」は千鳥ヶ淵を見渡せる地にあり、都心とは思えないほどの豊富な緑と潤いを享受できます。

また、皇居の奥には日本橋や銀座などの洗練された街が広がり、暮らしの利便性や豊かさを感じられるロケーション。「パークコート三番町」は東京メトロ半蔵門線「半蔵門」駅を最寄りとし、東京メトロ有楽町線「麹町」駅や、JR中央本線、総武本線、東京メトロ有楽町線、南北線、都営新宿線が乗り入れる「市ヶ谷」駅も徒歩圏にあり、各方面へ軽快にアクセス可能です。

FEATURES 建物の特徴

クラシカルなデザイン
眺望を愉しむ15邸

パークコート三番町 外観
パークコート三番町 外観

曲線を描く大きな開口が特徴的なデザイン。千鳥ヶ淵の風景を取り込んだ15邸から成るマンションです。

コンセプト・デザイン

パークコート三番町 敷地配置図
パークコート三番町 敷地配置図

「パークコート三番町」は地上9階建て、総戸数15邸という構成で、2004年11月に誕生しました。施主である三井不動産が描いたのは、番町に相応しい優雅な邸宅。クラシカルな様式を基本とし、三層構造のカラーコーディネーションが存在感を放つデザインです。モダン・クラシックな佇まいが、番町の品位をより一層高めています。

また、特にこだわったのが、千鳥ヶ淵を望む恵まれた立地を活かすこと。そこで、大きな曲線を描くパノラマビューウィンドウを用いた巧みなデザインを採用しています。15戸それぞれの住まいに美しい眺望と開放感をもたらした造りです。千鳥ヶ淵の風景を私庭のように愉しめる、そんな優雅な暮らしをお届けします。

パークコート三番町 レリーフ
パークコート三番町 レリーフ

住空間は南向きと東向きのタイプがあり、107.06㎡~122.29㎡というゆとりある専有面積を確保。間取りは2LDKで、約2.6mの天井高やパノラマビューウィンドウによってのびやかな空間を演出しています。

さらに、シンボルツリーをはじめとした植栽にこだわり、上質な迎賓空間であるエントランスホール、独自のメダリオン、数々のアートなど、共用空間も美意識に包まれた「パークコート三番町」。揺るぎない品格を纏った住まいです。

建物構造

三層構成

建物の基壇部には、御影石とライムストーンを用いて重厚感を演出。その上の中層部は、二色の山型45四丁掛タイルによってすっきりとした印象に。大きくとったパノラマビューウィンドウが存在感を示し、窓枠には100角タイルを、窓上部にはメタリック調のボーダー塗装を施すことで、クラシカルなイメージを高めています。さらに、空と調和する上層部という三層で構成されています。

歩車分離設計

パークコート三番町 アプローチ
パークコート三番町 アプローチ

敷地内では安全のために、歩行者と車の動線を分離しています。歩行者はエントランスポーチに入り、風除室とエントランスホールのオートロックを解錠して住戸へと向かう動線です。車の動線としては、リモコン式シャッター付きの専用ゲートをご用意。入庫後は、雨の日も濡れずにエントランスポーチへたどり着く動線を確保しています。また、ペットとご一緒の場合には、正面のエントランスとは別の出入り口へ。ペット足洗い場も設けています。

耐震構造

地震の揺れを軽減する耐震構造となっています。暮らすうえでの安心を感じられる造りです。

セキュリティ

オートロック

風除室からエントランスホールに入る部分に1つ目のオートロックを設置。そして、エントランスホールからエレベーターホールへ進むには、2つ目のオートロックを解錠する必要があります。2か所のオートロックで不正な侵入を防ぎます。

TVモニター付きインターホン

住戸にはTVモニター付きインターホンが設置されています。来訪があった際には、映像と音声で相手を確認したうえでオートロックを解錠できるため、暮らしの安心感が高まります。

リモコン式シャッター

パーキングに繋がる専用ゲートには、リモコン式シャッターを設けています。大切な車を守る設計です。

COMMON AREA 共用部

上質さを追求した
迎賓空間が
心地よい時を刻む

エントランスホールをはじめとした共用空間は、家具、照明器具、アート、テクスチャーなど細部にまでこだわった造りで、ホテルライクな空間が広がります。また、全住戸分のパーキング、宅配ロッカー、ペット足洗い場など設備面も充実しています。

共用施設

エントランス

パークコート三番町 エントランス
パークコート三番町 エントランス

エントランスの外観は、派手な装飾を避けることで上質さを表現。居住者を温かく穏やかに迎える一方で、外部との結界性を持つフォーマルな空間づくりを行っています。また、素材感を大切にしていて、エントランスの扉には花梨材を採用。美しい木目の扉が、堂々とした佇まいを強調しています。そして、風除室にはウォールコンソール、姿見、プランターを配置するなど、美しい空間づくりにこだわっています。

エントランスホール

風除室の先には、洗練されたエントランスホールが広がります。床は大理石の磨き仕上げとし、壁にはウッディパネル、そして上品な折り上げ天井と照明によって美しい迎賓空間が表現されています。ラウンジチェアやエンドテーブルなどの家具も丁寧に選定しています。

メダリオン

風除室とエントランスホールの床には、「太陽の輝き」をモチーフにしたメダリオンが描かれています。円と放射を組み合わせて、中心性と広がりを表したデザイン。空間ごとのテクスチャーにもこだわり、風除室では大理石モザイクで、エントランスホールでは高級感のある磨き仕上げでメダリオンを描かれています。

アート

建物の外観や共用空間のデザイン、そして随所に飾られているアートの選定もマーク伊東氏によるもの。現代的な中にも伝統を感じるデザインを意識して選ばれており、和のテイストを感じる作品も使われています。

植栽

千鳥ヶ淵の緑と調和する植栽も特徴で、道路沿いにはシンボルツリーとして大きなケヤキを配置。エントランスポーチ右側には、ヤマボウシ、ハナミズキ、ツツジ、ハイビャクシン、ゴールドクレストといった緑がつらなります。

パーキング

屋内保管型のパーキングは、全住戸分を越えるご用意があります。ベンツSクラス、BMW7シリーズといった大型車や一部ハイルーフ車にも対応。住戸内から電話で出庫予約できるため、時間を有効活用できます。

自転車置場・バイク置場

敷地内には、自転車置場とバイク置場も設置されています。

宅配ロッカー

宅配ロッカーの設置があり、不在時にも荷物の受け取りが可能です。時間に縛られなくなり、暮らしの自由度が高まります。

内廊下

建物内は内廊下を採用しているため、外部からの視線を遮ることができます。都心での暮らしで気になるセキュリティやプライバシーに配慮した設計です。

ペット足洗い場

ペットの足に付いた土や汚れを落とせる足洗い場をご用意しています。散歩後も清潔な状態で室内に入れます。

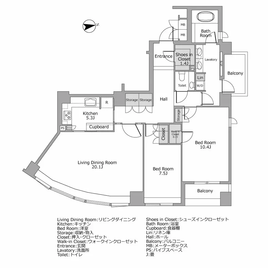
FLOOR PLAN 間取り図一例

眺望がよく
採光性にも優れた
リビングダイニング

パークコート三番町 間取り図例
パークコート三番町 間取り図例
パークコート三番町 間取り図例
パークコート三番町 間取り図例

INSIDE THE ROOM 室内

ゆとりがあり
美しい風景を取り込む
住空間

春夏秋冬それぞれに趣きがある千鳥ヶ淵の風景。美しい風景を愉しめるようパノラマビューウィンドウを採用しました。暮らしを快適にする設備も揃えています。

リビングダイニング

天井高約2.6m(最上階住戸は折上部分で約2.9m)の開放的な造りです。また、天井近くにまでパノラマビューウィンドウが伸びていて、陽光を存分に取り込む設計となっています。広々とした住空間を堪能できます。

眺望

千鳥ヶ淵の風景を暮らしに取り込んだ設計に。千鳥ヶ淵に向かって扇状に開いた空間構成とし、四季折々で移り変わる美しい眺めを満喫できる住まいです。

TVモニター付きインターホン

来訪者を映像と音声で確認できるTVモニター付きインターホンを設置。対面しないため、勧誘などを断りやすいといったメリットもあります。

温水式床暖房

床暖房

※画像はイメージです。

温水を利用して室内を暖める床暖房を採用しています。エアコンよりも乾燥しにくく、足元の冷え対策にも効果的な暖房です。

天井カセットエアコン

エアコンは天井に埋め込むタイプで、室内をすっきりとした印象に。開放感を高める設備です。

キッチン

食器洗浄乾燥機

食器洗浄機

※画像はイメージです。

食後の片付けの時間と手間を軽減してくれる食器洗浄乾燥機を装備。日々の快適性を高め、より一層上質な暮らしへと導きます。

電子コンベック

電子レンジとガスオーブンが一体となった電子コンベックが、料理にゆとりや愉しみをもたらします。

ディスポーザー

ディスポーザー

※画像はイメージです。

生ゴミを簡単に処理できるディスポーザーも設置済みです。キッチンを清潔に保つことができ、生ゴミによるにおいも抑えられます。

浴室

浴室暖房換気乾燥機

雨の日や夜間などに洗濯物を干したい場合にも便利な、浴室暖房換気乾燥機を設置しています。また、入浴前に浴室をあらかじめ暖めておくことで、体にかかる負担を軽減できます。

ACCESS アクセス

都心の各スポットへ軽快にアクセス可能

「半蔵門」駅
「半蔵門」駅

最寄り駅は東京メトロ半蔵門線「半蔵門」駅で、徒歩約5分の距離にあります。「六本木」駅、「渋谷」駅、「東京」駅など、主要エリアにもスムーズに移動可能です。通勤・通学や休日の外出にも便利なロケーションとなっています。

こちらでは、最寄りの「半蔵門」駅から、主要エリアへの所要時間を紹介いたします。

掲載の所要分数は日中平常時のもので、乗り換え・待ち時間等は含みません。
また時間帯により異なる場合があります。

鉄道

「六本木」駅

「六本木」駅
「六本木」駅

東京メトロ半蔵門線「半蔵門」駅から、「青山一丁目」駅で都営大江戸線に乗り換えます。「六本木」駅まで約6分です。

「渋谷」駅

「渋谷」駅
「渋谷」駅

東京メトロ半蔵門線「半蔵門」駅から、「渋谷」駅まで直通で約9分です。

「銀座」駅

「銀座」駅
「銀座」駅

東京メトロ半蔵門線「半蔵門」駅から、「大手町」駅で東京メトロ丸ノ内線に乗り換えます。「銀座」駅まで約10分です。

「新宿」駅

「新宿」駅
「新宿」駅

東京メトロ半蔵門線「半蔵門」駅から、「九段下」駅で都営新宿線に乗り換えます。「新宿」駅まで約11分です。

タクシー

タクシー

※画像はイメージです。

行き先 所要時間
「六本木」駅 約14分
「渋谷」駅 約19分
「銀座」駅 約13分
「新宿」駅 約14分

所要時間は道路事情により、実際と異なる場合があります。

バス

バス

※画像はイメージです。

マンションから徒歩約4分の場所に「五味坂交番」バス停あります。地域福祉交通「風ぐるま」の麹町ルートが運行していて、「半蔵門」駅や「四ツ谷」駅などへとアクセス可能です。また、反対車線には「五味坂」バス停があり、「市ヶ谷」駅などに繋がる麹町ルートや、「九段下」駅などに繋がる富士見・神保町ルートが運行しています。

空港

空港 首都圏

※画像はイメージです。

「パークコート三番町」は、国内外を問わずアクセス良好なことが魅力です。最寄り駅である「半蔵門」駅やマンションからの移動ルートを紹介します。

羽田空港へのルート

①電車

東京メトロ半蔵門線で「青山一丁目」駅へ行き、都営大江戸線に乗り換えます。「大門」駅から都営浅草線特急に乗り換えると、乗車時間約38分で到着します。

②タクシー

乗車時間は約30分です。

成田空港へのルート

①電車

東京メトロ半蔵門線で「押上」駅へ行き、京成成田スカイアクセス線アクセス特急に乗り換えると、乗車時間約62分で到着します。

②タクシー

乗車時間は約60分です。

➂リムジンバス

「パークコート三番町」から徒歩約24分の場所にある「ザ・プリンスギャラリー 東京紀尾井町」から、成田空港行きのリムジンバスが利用できます。乗車時間は約1時間52分です。

新幹線発着駅

「東京」駅へのアクセス

東京メトロ半蔵門線利用「大手町」駅で、東京メトロ丸ノ内線に乗り換えてアクセスします。乗車時間は約7分です。
タクシーなどを使った車移動の場合は、約13分です。

「品川」駅へのアクセス

東京メトロ半蔵門線利用「大手町」駅で、東京メトロ丸ノ内線に乗り換え、「東京」駅でJR横須賀線に乗り換えれば、乗車時間は約15分です。
タクシーなどを使った車移動の場合は、約25分です。

LIFE
INFORMATION 周辺の施設・店舗情報

自然が身近にあり 商業、
文化、
生活施設も充実

マンション周辺には、公園や緑道が点在し、四季折々の自然を身近に感じられる環境が整っています。近隣にはスーパーマーケットや飲食店、生活利便施設が揃い、日常の買い物や外食にも便利です。

商業施設、商店街

セブン-イレブン 千代田三番町店
(徒歩2分/約120m)

セブン-イレブン 千代田三番町店
セブン-イレブン 千代田三番町店

暮らしに便利なコンビニエンスストアが、マンションから徒歩すぐの場所にあります。

カフェ・ベローチェ 一番町店
(徒歩4分/約270m)

カフェ・ベローチェ 一番町店
カフェ・ベローチェ 一番町店

気軽に通えるカフェが徒歩圏に。店内で寛ぎの時間を愉しんだり、テイクアウトして周辺を散策したりと気分に合わせて利用できます。

東京国立近代美術館(徒歩15分/約1,200m)

東京国立近代美術館
東京国立近代美術館

皇居に隣接した場所に位置する東京国立近代美術館。19世紀末以降の日本の近現代美術品を所蔵し、さまざまな展示会も開催しています。また、近現代美術に関する専門図書館でもあり、誰でも無料で閲覧可能。新しい発見などを愉しめるスポットです。

自然、公園

千鳥ヶ淵公園(徒歩1分/約60m)

千鳥ヶ淵公園
千鳥ヶ淵公園

マンションを出てすぐの場所に、千鳥ヶ淵公園の一部(西側)があります。さらに進んで内堀通りを渡ると、皇居を囲む半蔵濠(はんぞうぼり)に沿って千鳥ヶ淵公園が広がります。春には数多くの桜が咲きます。

九段坂公園(徒歩10分/約800m)

九段坂公園
九段坂公園

洗練されたデザインが特徴の公園です。近くには日本武道館があります。

皇居外苑(徒歩24分/約1,900m)

皇居外苑
皇居外苑

黒松が植えられている大芝生広場や、歴史的建造物などを愉しめる公園です。歴史を感じながら豊かな自然に癒やされる。そんな心地よい時間を過ごすことができます。

暮らし、インフラ

千代田麹町出張所・麹町区民館
(徒歩8分/約630m)

千代田麹町出張所・麹町区民館
千代田麹町出張所・麹町区民館

出張所では、転出・転入の手続きや、住民票の写しの発行などが行えます。また、区民館の利用も可能です。

九段坂病院(徒歩17分/約1,300m)

九段坂病院
九段坂病院

「九段下」駅の方面にある総合病院です。内科、外科、皮膚科、婦人科、リハビリテーション科など幅広い診療科があり、併設されている九段坂病院健康医学センターでは、健診・人間ドックを実施しています。

幼稚園、保育園、学校

千代田区立九段幼稚園(徒歩7分/約550m)

千代田区立九段幼稚園
千代田区立九段幼稚園

千代田区立九段小学校(徒歩6分/約450m)

千代田区立九段小学校
千代田区立九段小学校

千代田区立麹町中学校(徒歩17分/約1,300m)

千代田区立麹町中学校
千代田区立麹町中学校

東京家政学院中学校・高等学校
(徒歩8分/約600m)

東京家政学院中学校・高等学校
東京家政学院中学校・高等学校

まとめ

誇りと安らぎを描いた
心を満たす住まい

「パークコート三番町」は、千代田区三番町に位置する洗練された佇まいのマンションです。皇居を囲う内堀通りから一本入ってすぐの角地にあります。千鳥ヶ淵を見渡せるロケーションで、恵まれた立地を活かした住空間設計が特徴です。全15邸それぞれに大きな曲線を描くパノラマビューウィンドウを設け、美しい眺望と開放感を愉しめる造りに。千鳥ヶ淵の風景を取り込んだ優雅な暮らしを実現します。

また、外観デザインは三層構造のカラーコーディネーションで、モダン・クラシックな佇まいを演出。華美な装飾を避けることで、上質さを際立たせました。エントランスホールなどの共用部ではフォーマルな空間づくりを行い、マンション全体をクラシック調のデザインでまとめています。

さらに、敷地内は歩車分離設計とし、耐震構造、オートロック、全住戸分のパーキングなど、都市生活の安全性や快適性にもこだわった造りです。最寄りの東京メトロ半蔵門線「半蔵門」駅は徒歩約5分の距離にあり、「麹町」駅や「市ヶ谷」駅も普段使いできる好立地。番町に相応しい邸宅から、心地よい生活が始まります。

パークコート三番町

駅徒歩 不動産の表示に関する公正競争規約の改正(2022年9月1日)により、交通利便情報が販売中のものと異なる場合がございます。

東京メトロ半蔵門線
「半蔵門」駅 徒歩5分

築年月

2004年11月

総戸数

15戸

階数

地上9階 地下1階