積水ハウス グランドメゾン南青山 Concept 外苑東通り沿い、乃木神社の斜向かい、重厚感あるベージュの基壇部、中層部をレンガ色、高層部をベージュの三層で構成されたスタイリッシュな都市型マンション

グランドメゾン南青山

東京メトロ千代田線「乃木坂」駅 徒歩3分

平均19.8畳、最大天井高約2.7m、リビング中心の住空間

地上13階、総戸数43戸の都市型マンション

2025.03.21 公開

LOCATION ロケーション

六本木エリアを臨む
都会的で洗練された
ロケーション

「乃木坂」駅
「乃木坂」駅

グランドメゾン南青山は港区南青山1丁目に位置するマンションで、最寄り駅は徒歩約3分のところにある東京メトロ千代田線「乃木坂」駅です。また、東京メトロや都営地下鉄など複数の路線が乗り入れる「青山一丁目」駅や東京メトロ日比谷線や都営大江戸線が乗り入れる「六本木」駅も徒歩圏内にあり、都心部の主要な駅へスムーズに移動できます。

乃木神社
乃木神社

マンションが建っているのは外苑東通り沿いで、都会的な洗練さを感じられるエリアです。斜向かいには乃木神社や山王病院、近くには青山公園もあり、歴史を感じられるとともに暮らしやすさも享受できます。

青山南一商振会
青山南一商振会

また、近隣には人で賑わう青山南一商振会などもあり、個性的な飲食店も豊富です。ワンランク上のお店も見られ、グルメを楽しむのにも適しています。「乃木坂」駅を過ぎてさらに南へ進むと、東京ミッドタウンがあります。さまざまな飲食店を楽しむだけでなく、お買い物や隣接する檜町公園でゆったり過ごすなど、思い思いに過ごせます。国立美術館も近隣にあり、住む人の好みにフィットする生活を送ることができるでしょう。

FEATURES 建物の特徴

全戸角部屋で快適な住空間
駐車場も十分な台数を確保

グランドメゾン南青山 アプローチ
グランドメゾン南青山 アプローチ

都心での生活にゆとりをもたらす、全戸角部屋という快適な設計。さらに、地下に設けられた駐車場の台数は全戸数以上となる45台分が用意されています。

コンセプト・デザイン

グランドメゾン南青山 敷地配置図
グランドメゾン南青山 敷地配置図

グランドメゾン南青山は地上13階地下1階建てのマンションで、2002年12月に竣工。全戸角部屋の総戸数43戸で、耐震性や耐火性などにすぐれているSRC構造です。

グランドメゾン南青山 外観
グランドメゾン南青山 外観

階層ごとにカラーが異なる、個性的な外観となっています。基壇部はベージュでまとめて重厚感を出し、中層部はレンガ色に。そして高層部を再びベージュ系にした三層の構成で、都心にふさわしいモダンな色合いを実現しています。材質は磁器質タイルや御影石貼りなどを使用し、高級な雰囲気を漂わせます。

グランドメゾン南青山 エントランス
グランドメゾン南青山 エントランス

アプローチは車寄せができるようにスペースが取られており、雨が降っている日でも濡れることなくエントランスへ入ることができます。エントランスを入ると暖炉やソファーセットが置かれる、格調ある空間が迎えてくれます。

建物構造

基礎杭

耐震・耐久に優れた拡底アースドリル杭を採用し約29mの深さに計14本打ち込んでいます。杭の直径は約2m~約2.4mと、十分な太さを有しています。

地盤

杭を打ち込む支持地盤となるのは、約20万年前に堆積した東京礫層(とうきょうれきそう)です。東京タワーの支持地盤としても活用されており、地盤の強度はレベル50以上(N値)にもなります。

拡底アースドリル工法

支持地盤まで杭を到達させて、それからコンクリートを打設する工法を選択しています。杭には拡底アースドリル杭を使っており、基底部が地盤をしっかり捉えます。それにより支持力が強化されます。

その他の建物構造

床と天井は二重構造にし、遮音性に配慮。将来的にメンテナンスやリフォームが必要になった場合、スムーズに対応できます。
外壁はコンクリートや断熱材、空気層など、複数の材料によって構成された多重構造。断熱性が高まり結露の発生を抑えます。
住戸内の間仕切り壁は、居室間の両側にプラスターボードを両面二重貼りにしています。マスターベッドルームは壁を天井スラブまで立ち上げて、天井からまわり込む音に配慮しています。

防災設備

保安灯

廊下に設けられているフットライトですが、停電時などには自動点灯して安心感をもたらします。夜間にトラブルが起きたときには居住者の道しるべとなり、安全なルートを照らし出します。

セキュリティ

セキュリティシステム

コンシェルジュと警備員が常駐することにより、24時間の有人管理体制を実現。さらに、警備会社との連携によって先端的な情報セキュリティシステムを導入しています。綜合警備保障のマンション・セキュリティシステムによって各住戸の防災・防犯性能を高め、火災やガス漏れなどのセンサーが感知した場合は、管理事務室やフロント、綜合警備保障ガードセンターに通報される仕組みになっています。状況に応じてスタッフが現場に急行するなどの対策を取り、居住者の生活を守ります。

カラーTVモニター付インターホン

エントランスに来た来訪者を、居室内にあるカラーTVモニター付インターホンによって確認できます。不審者が侵入するのを防止するとともに、必要のない勧誘に出る手間も省けます。

シリンダーキー

玄関キーは、キーパターンが120億通りもあるとされるシリンダーキーを採用。エントランスなどに設置されているオートロックは、キーヘッドをセンサーにかざすだけで解錠できます。玄関ドアの解錠はキーの上下を確認する必要がないリバーシブルタイプなので、セキュリティのポイントもスムーズに移動できます。

COMMON AREA 共用部

住まいをグレードアップ
してくれる
共用空間

サービス

コンシェルジュサービス

コンシェルジュサービス

※画像はイメージです。

日々の暮らしを支えるコンシェルジュサービスをご利用いただけます。

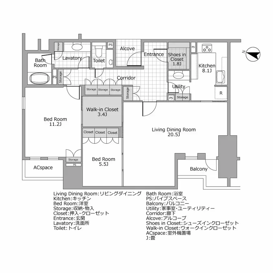
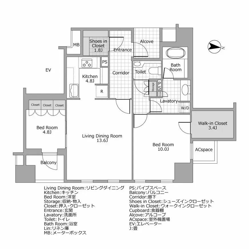
FLOOR PLAN 間取り図一例

平均約19.8畳
リビングの
快適性を追求した住環境

グランドメゾン南青山 間取り図例
グランドメゾン南青山 間取り図例
グランドメゾン南青山 間取り図例
グランドメゾン南青山 間取り図例

INSIDE THE ROOM 室内

天井高や
ガラス間仕切りなど
開放感の高い環境

隣室との連続性をもたせ、天井高をしっかり確保するなどし、居心地の良い快適な空間を生み出しています。また、ハードウエアなどの製品にもこだわり、高級感を演出しています。

玄関

共用廊下から各住戸の玄関へは、プライバシーに配慮したアルコーブを介して入れます。玄関ホールは住まいの広がりを実感できるよう、アルコーブから続く天然大理石で仕上げて連続性を演出。折上天井が広がりを生み出し、ガラスの向こうにはリビング・ダイニングが見えるように配置して開放感を高めます。また、つまずきを防止するためにフラットフロアに設計されており、小さいお子さまや高齢の方も安心して利用できます。

玄関ドア

マホガニーを使用した木質系の防火ドアとなっています。美しい紅褐色に仕上げ、住戸の顔とも言える入り口を贅沢に仕立てています。重厚感がある一方でプッシュプルタイプを採用しており、ワンアクションでドアが開きます。荷物が多いときでも簡単に出入りできます。

シューズクローク

天井までの高さを誇るシューズクロークは、ブーツも保管できるほどの収納力を発揮します。傘やスキー板、ゴルフバッグなども入れることができ、利便性を感じられます。

廊下収納

ウォールタイプなのでたっぷり収納できるのが魅力です。棚を自由に組み立てられるシステムを採用しており、居住者のライフスタイルに合わせられます。部屋によってはコートクロークも設置されています。

リビング・ダイニング

グランドメゾン南青山に特別な価値をもたらしているのが、リビング・ダイニングのもつ開放感です。部屋の広さは平均で約19.8畳、最大で約25.7畳という大きな面積となっています。広さだけでなく、天井高も最大で約2.7mを確保。また、開口を絞るためにスリット窓を採用し、スマートでゆったりとした空間を演出しています。まさに「リビング中心主義」と言えるほど、心地良い空間づくりに注力しています。

折上天井

どのプランでも、リビングの天井には奥行きが深まる折上天井を導入しています。間接照明と調光器付きのダウンライトがライティングの役割を果たし、折上天井に光の陰影をもたらします。

ガラス間仕切り

リビング・ダイニングとDENの間にはガラスの引き戸(一部タイプを除く)を採用しています。隣室との間の空間演出にこだわり、空間の広がりを意識できるように設定しています。

キッチン

キッチン

※画像はイメージです。

一部を除いて独立タイプになっており、料理に集中できるスペースです。ドイツ・アルノ社製のシックなシステムキッチンを採用しており、カウンタートップは人造大理石を加工。清潔感のある空間で気持ちよく料理ができます。壁は約200mm×250mm角の、耐水・耐火にすぐれた大型タイルを使用。床はリビング・ダイニングと同じワイドフローリング仕上げで、連続性をもたせています。また、床暖房も設置されており、冷えが気になる方も安心です。

そのほか、キッチンに採用されているシステムや備品は次のとおりです。

  • ハンドシャワー付水栓金具
  • 3つ口レンジ
  • 浄水器
  • 電子コンベック
  • 食器洗浄乾燥機
  • ディスポーザー
  • パントリー
  • スパイスラック
  • 吊戸棚収納

マスターベッドルーム

ゆとりのある空間にこだわり、ツインベッドとナイトテーブルを設置しても余裕をもてる設計になっています。天井高を約2.5mとし、エアコンも天井に埋め込まれているカセットタイプを標準装備して開放感を演出。防音対策として仕切り壁はプラスターボードを二重貼りするなど、プライベート空間をより快適にしています。

ウォークインクロゼット

ウォークインクロゼット

※画像はイメージです。

フレキシブルなシステムを採用し、荷物の保管のしやすさにこだわっています。扉の通風性や遮光性も高く、適切な環境で収納できるのも大きなメリットです。床は居室と同じくフローリング仕上げとなっており、もうひとつの居室であるかのように開放的です。

洗面室

色調をブラックとホワイトでまとめ、メリハリのあるシックな空間に仕上がっています。御影石と大理石を組み合わせて清潔さを強調し、デンマーク・ボラ社製の水栓を採用するなどし、高級感を演出しています。浴室とはガラスで仕切られており、開放的な空間に。使いやすさが求められる洗面室で、下記のような機能が装備されています。

リネン庫

湯上がりのときに使うタオルやバスローブなどを収納できます。

メディシンボックス

化粧品やメイク道具などをショーケースのように飾ることも可能。実用性とともにデザイン性も高め、日々の洗面室でのお化粧などがより楽しくなります。

ランドリーバスケット

カウンター下部に設置され、洗濯物などを気軽に納められます(一部タイプ除く)。

浴室

天井高を約2.3m、浴槽は約1.6m×約2.0mとするなど、開放的な空間です。床は御影石、壁は大型タイルを施すほか、バスタブは人造大理石製と素材にこだわっています。オートバスや浴室暖房換気乾燥機の機能を装備しています。

トイレ

床は御影石、カウンタートップは大理石、ライティングを間接照明とするなど、ラグジュアリーな環境にこだわっています。大型の鏡を設置してお化粧直しができるようにし、収納スペースも用意されています。

ACCESS アクセス

複数の地下鉄路線を
利用できる
駅チカの好アクセス

グランドメゾン南青山は東京メトロ千代田線「乃木坂」駅まで徒歩約3分、東京メトロ銀座線、半蔵門線、都営大江戸線が乗り入れている「青山一丁目」駅まで徒歩約7分と、主要な路線にアクセスしやすい立地です。さらに、「六本木」駅までは徒歩9分と、都心の主要エリアへも徒歩圏内です。
最寄り駅である東京メトロ千代田線「乃木坂」駅から主要な駅への所要時間は、以下のとおりです。

掲載の所要分数は日中平常時のもので、乗り換え・待ち時間等は含みません。
また時間帯により異なる場合があります。

鉄道

「六本木」駅

「六本木」駅
「六本木」駅

東京メトロ千代田線を利用し、東京メトロ日比谷線「霞ケ関」駅乗り換えで、乗車時間は約15分です。
徒歩7分の距離にある都営大江戸線「青山一丁目」駅を利用すると、「六本木」駅まで直通で乗車時間は約3分です。
マンションから歩くと、所要時間約9分です。

「渋谷」駅

「渋谷」駅
「渋谷」駅

東京メトロ千代田線を利用し、東京メトロ銀座線「表参道」駅乗り換えで、乗車時間は約9分です。
徒歩7分の距離にある東京メトロ銀座線「青山一丁目」駅を利用すると、「渋谷」駅まで直通で乗車時間は約6分です。
徒歩9分の距離にある都営大江戸線「六本木」駅を利用し、「青山一丁目」駅で東京メトロ半蔵門線に乗り換えると、「渋谷」駅まで乗車時間は約7分です。

「銀座」駅

「銀座」駅
「銀座」駅

東京メトロ千代田線を利用し「国会議事堂前」駅で東京メトロ丸ノ内線に乗り換えて、乗車時間は約12分です。
徒歩7分の距離にある東京メトロ銀座線「青山一丁目」駅を利用すると、「銀座」駅まで直通で乗車時間は約10分です。
徒歩9分の距離にある東京メトロ日比谷線「六本木」駅を利用すると、「銀座」駅まで直通で乗車時間は約10分です。

「新宿」駅

「新宿」駅
「新宿」駅

東京メトロ千代田線を利用し、小田急小田原線「代々木上原」駅乗り換えで、乗車時間は約16分です。
徒歩7分の距離にある都営大江戸線「青山一丁目」駅を利用すると、「新宿」駅まで直通で乗車時間は約7分です。
徒歩9分の距離にある都営大江戸線「六本木」駅を利用すると、「新宿」駅まで直通で乗車時間は約9分です。

タクシー

タクシー

※画像はイメージです。

行き先 所要時間
「六本木」駅 約3分
「渋谷」駅 約11分
「銀座」駅 約13分
「新宿」駅 約16分

バス

バス

※画像はイメージです。

マンションのすぐ近くにある山王病院そばに「山王病院前」バス停、乃木公園付近にも「乃木公園」バス停があります。どちらも港区のコミュニティバス「ちぃばす」の赤坂ルートで、「六本木ヒルズ」「溜池山王駅」「赤坂見附駅」「赤坂地区総合支所前」「青山一丁目駅前」などの主要なバス停を通ります。

空港

空港

※画像はイメージです。

グランドメゾン南青山は、飛行機の発着場があるエリアにも移動しやすいメリットがあります。最寄り駅である「乃木坂」駅やマンションからの移動ルートを紹介します。

羽田空港へのルート

電車

ルート1:「乃木坂」駅から東京メトロ千代田線利用で「日比谷」駅へ。そこから東京メトロ日比谷線に乗り換えて「東銀座」駅へ。都営浅草線特急に乗り換え、複数の路線に乗り入れて、乗車時間約35分で到着します。

ルート2:「青山一丁目」駅から都営大江戸線利用で「大門」駅へ。そこから都営浅草線快特に乗り換えると、乗車時間約29分で到着します。

タクシー

乗車時間は約27分です。

成田空港へのルート

電車

東京メトロ千代田線利用で「国会議事堂前」駅へ。東京メトロ丸ノ内線に乗り換えて「東京」駅で降り、JR総武本線特急成田エクスプレスに乗り換えれば、乗車時間約63分で到着します。

タクシー

乗車時間は約64分です。

リムジンバス

グランドメゾン南青山から徒歩約17分のところにある「グランド ハイアット 東京」から、成田空港行きのリムジンバスが利用できます。所要時間は約120分です。

新幹線発着駅

「東京」駅までのアクセス

東京メトロ千代田線利用で「国会議事堂前」駅へ。東京メトロ丸ノ内線へ乗り換えれば、乗車時間は約15分で到着です。
タクシーなどを使った車移動の場合は、乗車時間約14分です。

「品川」駅までのアクセス

東京メトロ千代田線利用で「明治神宮前」駅へ。「原宿」駅まで歩き、JR山手線を利用すれば、乗車時間は約24分です。
タクシーなどを使った車移動の場合は、乗車時間約17分です。

LIFE
INFORMATION 周辺の施設・店舗情報

多様な施設へ移動しやすい
バランスの良い立地

グランドメゾン南青山は、さまざまなエリアへ移動しやすい好立地。「青山一丁目」駅方面、赤坂通り方面、さらに足を伸ばすと「六本木」駅方面など、用途に合わせた行動が可能です。近隣は公園やスーパーマーケットもあり、平日、週末ともに快適に過ごせます。

商業施設、商店街

まいばすけっと青山一丁目店(徒歩5分/約400m)

まいばすけっと青山一丁目店
まいばすけっと青山一丁目店

東京メトロ銀座線などが走る「青山一丁目」駅の近くにあるスーパーマーケットです。

スギ薬局 赤坂店(徒歩11分/約860m)

スギ薬局 赤坂店
スギ薬局 赤坂店

赤坂通り沿いにあるドラッグストアです。夜遅くまで営業しているため、販売、調剤ともに遅い時間でも利用できるのが大きなメリットです。

自然、公園

青山公園 北地区(徒歩4分/約290m)

青山公園 北地区
青山公園 北地区

南北に分かれている青山公園の北地区が、マンションのすぐそばにあります。北地区はサクラや花壇などの草花が豊富で、ご家族でも安心して利用できる草地広場があります。また、青葉公園も隣接しています。

暮らし、インフラ

赤坂地区総合支所(徒歩13分/約1,000m)

赤坂地区総合支所
赤坂地区総合支所

赤坂コミュニティぷらざ内にある、区役所機能の一部を担う施設です。港区コミュニティバス「ちぃばす」の赤坂ルートにある「赤坂地区総合支所前」バス停の目の前にあります。

三菱UFJ銀行 青山通支店(徒歩6分/約450m)

三菱UFJ銀行 青山通支店
三菱UFJ銀行 青山通支店

「青山一丁目」駅からほど近いところにある銀行です。ATMは平日、土日祝にかかわら夜遅くまで使用できます(ただし、ATMを利用できない時間帯が一部あります)。

山王病院(徒歩4分/約300m)

山王病院
山王病院

グランドメゾン南青山の斜向かいにある大型の病院です。数多くの診療科に対応しており、女性に特化した医療センターも設置。産前・産後のケアも充実しています。

赤坂図書館(徒歩5分/約400m)

赤坂図書館
赤坂図書館

青山一丁目タワー3階にある港区立の図書館です。日曜・祝日も開館しているため、お仕事が忙しい方でも利用しやすくなっています(一部休業日あり)。

幼稚園、保育園、学校

南青山保育園(徒歩5分/約390m)

南青山保育園
南青山保育園

港区立小中一貫教育校 赤坂学園(徒歩7分/約500m)

まとめ

ゆとり十分の居室空間
都心部のメリットも享受

グランドメゾン南青山は、最寄り駅が東京メトロ千代田線「乃木坂」駅で徒歩約3分という好立地。「青山一丁目」駅方面や「六本木」駅方面などにも足を運べ、さまざまな商業施設にアクセスできます。外苑東通り沿いという大きな通りが目の前にあり、愛車でのアクセスも良好です。

建物は全戸角部屋という快適な設計で、プライベート感を高めます。さらに、リビングは平均約19.8畳の広さを確保するなど、リビングを中心に据えた開放感のある設計が追求されています。天井高にもこだわりが見られ、都心部にありながらゆとりを感じられる環境です。

周囲には公園も多く、緑を感じられるエリアです。さまざまな施設を利用しやすく、南青山エリアならではのハイグレードな生活を送ることができるでしょう。

グランドメゾン南青山

駅徒歩 不動産の表示に関する公正競争規約の改正(2022年9月1日)により、交通利便情報が販売中のものと異なる場合がございます。

東京メトロ千代田線
「乃木坂」駅 徒歩3分

築年月

2002年12月

総戸数

43戸

階数

地上13階 地下1階