三菱地所 パークハウス四番町 Concept 靖国通りから東郷通りに入り、二七通りを越えた東郷元帥記念公園の向かい、既存の石積みの雰囲気を残した擁壁、グレーを基調に下層部分は濃い色のボーダータイル、上層部は明るいタイル貼りのコーディネーション、安定感のある外観デザイン

パークハウス四番町

「市ヶ谷」駅 徒歩3分4路線利用可

1フロア2戸全戸角住戸設計、全戸3面採光

地上9階、総戸数16戸

2025.05.30 公開

LOCATION ロケーション

豊かな自然や
有名大学に囲まれた
番町の高台

「市ヶ谷」駅
「市ヶ谷」駅

パークハウス四番町は、千代田区四番町に位置するマンションです。最寄り駅となるJR総武・中央緩行線「市ヶ谷」駅まで徒歩3分、都営新宿線や東京メトロ有楽町線、南北線「市ヶ谷」駅も徒歩圏内となっています。この他にも東京メトロ半蔵門線「半蔵門」駅、東京メトロ有楽町線「麹町」駅なども近接しており、さまざまな路線を使い各都市へアクセスできます。

マンションが建つ四番町界隈は、江戸時代に大名屋敷や武家屋敷が並んでいました。現在は大使館も多く見られるなど、東京の中心地ならではの格式の高さが伺えるロケーションです。華美な繁華街とは違った、趣き深い土地柄となっています。

外濠公園
外濠公園

また、緑あふれる環境もこの街に安らぎをもたらしています。マンションの目前には東郷元帥記念公園があり、このエリアに活力を与えています。さらに、「市ヶ谷」駅付近の水辺に沿うように外濠公園があり、季節の節目には花々が咲き誇ります。東京メトロ半蔵門線、東西線、都営新宿線「九段下」駅方面へ向かうと皇居に隣接する北の丸公園にも足を運ぶことができ、休日の散歩コースが充実しています。また、大妻女子大学や上智大学、法政大学などの学術機関も多数あり、アカデミックな雰囲気が街の価値をさらに押し上げています。

FEATURES 建物の特徴

シングルも住みやすい
充実のフロアプラン

パークハウス四番町 アプローチ
パークハウス四番町 アプローチ
 

分譲時の間取りが2~3LDKとなっており、さまざまな世帯が住みやすいプランが用意されています。

コンセプト・デザイン

パークハウス四番町 夜間
パークハウス四番町 夜間

パークハウス四番町は、2002年3月に竣工した地上9階地下2階建て、総戸数が16戸のマンションです。1フロアに2戸というフロアプランを設けており、プライベート性を確保。さらに全戸角住戸、全戸3面採光という、番町の高台というメリットを生かした設計になっています。分譲時の間取りは2~3LDKで、住戸専用床面積は63.13〜76.10㎡。シングルやDINKs、少人数のファミリーに適したプランとなっています。

パークハウス四番町 外観
パークハウス四番町 外観

外壁は落ち着いたグレー系の色でまとめながら、数種類の質感の素材を組み合わせることで陰影を演出。高さを生かしたシャープなデザインを施し、東京の中心地に合った高級感を醸し出します。東郷坂に面した擁壁は石積みの雰囲気を残し、濃い色のボーダータイルを外壁の下層に使っています。一方、上層階にあたるところには明るい色の外壁タイルを適用。上下に分けたカラーコーディネーションによって、ファサードに安定感をもたらしています。

パークハウス四番町 エントランス
パークハウス四番町 エントランス

エントランスは充分な奥行きと厚みのある庇(ひさし)を設けて奥行きを出しており、雨の日のお出かけも安心。周囲には季節を彩るさまざまな種類の植栽があり、居住者のみならず道行く人たちの心も和ませます。

建物構造

壁・床スラブ厚

床スラブ厚は200mm以上、天井は二重天井としており、遮音性や断熱性に配慮しています。戸境壁の厚みも180mm以上に設定しているので、生活音を気にしすぎることなく過ごせます。さらに、断熱材は壁35mm、屋根(最上階)60mmを使用し、外気の影響を受けにくい環境を整えています。

長期修繕計画

長きにわたって居住することを考慮し、長期修繕計画を提案しています。修繕のための積立や資産価値を守ることなども含めた、綿密なプランのもとで計画されています。

スパイラルフープ筋および溶接閉鎖型フープ

鉄筋コンクリート造を採用しており、耐久性に優れています。柱の帯筋はスパイラルフープ筋および溶接閉鎖型フープとしており、耐震性を確保しています。また、地下約34mのところにある支持層を基礎とした杭基礎によって、強固な土台を形成しています。

ペアガラス

空気層を2枚のガラスで挟み込んだペアガラスを全居室に採用しています。断熱性が高まり、冷暖房効率がアップします。

低ホルムアルデヒド仕様

建具や壁クロス、床材の接着剤といった建物の重要な部分には、低ホルムアルデヒド仕様のものを採用しています。居住者の身体に配慮し、やさしい環境を整えています。

防災設備

耐震ラッチ

キッチンには、揺れによって吊り戸棚にある物が落下するのを防ぐ耐震ラッチを備えています。

保安灯

地震などの緊急事態により停電が起きた際に明かりを灯す、バッテリーを内蔵した保安灯が設置されています。

セキュリティ

セキュリティシステム

各住戸に設置されているインターホンは、オートロックシステムに対応しています。さらに、ガス漏れや火災などの緊急事態に備えた警報機能も備わっています。
また、すべての住戸の窓には防犯センサーを装備。インターホンシステムに組み込まれた熱感知器、ガス漏れ警報器、非常ボタンが異常を検知すると、コントロールセンターや管理員室へ自動通報されます。
通報を受けたスタッフが迅速に現場へ駆けつけ、適切に対応。状況に応じて、消防署や警察署への連絡も行います。

ディンプルシリンダー錠

120億通りものキーパターンを有するディンプルシリンダー錠を採用しています。さらにダブルロックに設定しており、より高い防犯性能を発揮します。

COMMON AREA 共用部

愛車を風雨から守る
地下駐車場を設置

駐車場を地下に設け、防犯機能を高めます。また、宅配ロッカーも配置するなどして過ごしやすさに配慮しています。

共用施設

エントランスホール

エントランスに入ったところは濃いグレーの天然石を床に敷き詰め、外壁の色調が続くように落ち着いた空間を演出。その奥にはエントランスホールがあり、床と壁が明るいライムストーンに。一転して淡いベージュの空間が広がります。大理石のカウンターには鮮やかな赤が使われ、空間のアクセントになっています。エントランスホールに至るまでにドラマチックな変化を伺い知ることができ、高いデザインセンスを感じさせます。

地下駐車場

愛車を雨やホコリなどから防ぎ、防犯対策にもなる地下駐車場が設けられています。機械式によるタイプで、9台分を確保しています。また、駐車場入口には電動シャッターが設置されており、リモコンで簡単に操作が可能です。

宅配ロッカー

エントランスホールに設置されているロッカーで、不在時でも荷物を受け取れます。荷物が到着する時間を気にせず、外出することができます。

サービス

トランクルーム

日頃使わない季節物やレジャー用品など、大きな荷物を収納できるスペースです。地下に設けられています。

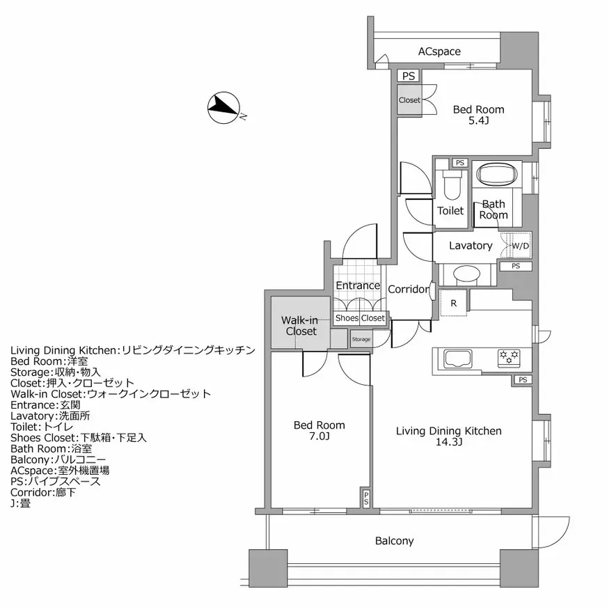
FLOOR PLAN 間取り図一例

ウォークインクローゼットにより
収納スペースを確保

パークハウス四番町 間取り図例
パークハウス四番町 間取り図例
パークハウス四番町 間取り図例
パークハウス四番町 間取り図例

INSIDE THE ROOM 室内

自然な明るさが広がる
リビング・ダイニング

リビング・ダイニングは天井の高さを確保するとともに、ハイサッシにより自然光がたっぷり広がります。また、機能的なキッチンを採用しており快適性を高めます。

玄関ホール

ギャラリーウォールが設けられており、インテリア空間を楽しめます。ミニカウンターや照明が配置され、玄関ホールにアクセントを加えます。また、玄関の床には大理石が設けられ、ホテルのような空間が広がります。

リビング・ダイニング

リビング・ダイニングは開放感を確保するために、天井の高さを最大2.7mに設定。さらに折り上げ天井にしており、より深みのある空間が広がります。このほか、キッチンの形状をオープンにすることでLDKとの一体感が生まれ、ハイサッシとともに光の柔らかさが広がります。また、リビング・ダイニングには身体に優しくクリーンな温水式床暖房や、室内空間の開放感を邪魔しない天井カセット式エアコンを導入し、快適な生活をサポートします。

キッチン

キッチン

※画像はイメージです。

天板や壁には御影石が採用されていて、高級感とともに清潔感を高めることにも貢献しています。毎日使う場所だからこそ、クリーンさにこだわった設計になっています。また、水栓金具はイタリアテクノビル社のものを採用し、デザイン性に配慮しています。

ディスポーザーシステム

ディスポーザー

※画像はイメージです。

不快に感じる生ゴミを管理せずに済むよう、ディスポーザーシステムを導入しています。キッチンのシンク部分で生ゴミを処理できるというもので、持ち運びや管理をする必要がなくなります。嫌な臭いが残らず、キッチンのクリーンさを保持できます。処理された生ゴミは排水処理装置で分解し、下水道に放流されます。環境にも良いシステムなので、安心して利用できます。

洗面室

壁面にモザイクタイルを使用し、その中に大型の鏡がはめ込まれています。鏡の中には間接照明が設置され、鮮やかな光を楽しめる空間に仕上がっています。また、床にはコルクタイルが使われており、壁面とは違った質感によってハイセンスな雰囲気を醸し出します。洗面水栓金具には、デザイン性が優れているイタリアテクノビル社製のものを採用しています。

ドラム回転式洗濯・乾燥機

パークハウス四番町で採用しているドラム回転式洗濯・乾燥機は、日本、スイス、イタリアの企業で共同開発した「マルバー」のものになります。洗濯から乾燥までボタンひとつで操作可能です。グッドデザイン賞を受賞するなどデザイン性の高さにも定評がありますが、日本で初めてとなる100V仕様で、湯沸かしの電気代が不要となる外部給湯型など、機能性にも優れています。さらに、洗面化粧台と一体になっているので場所を取りません。

浴室

ワイドなオープンスペースが設けられ、出窓感覚で使用できます。このほか、雨の日でも洗濯物を乾かせてカビを防止する浴室換気乾燥機、お湯張りや追い焚きをボタンひとつでできるフルオートバスといった機能が付いています。

ACCESS アクセス

「市ヶ谷」駅の
各路線が最寄り
主要駅へのアクセス良好

鉄道

「市ヶ谷」駅
「市ヶ谷」駅

最寄り駅はJR総武・中央緩行線「市ヶ谷」駅、徒歩約3分の近距離にあります。さらに、都営新宿線や東京メトロ有楽町線、南北線「市ヶ谷」駅も利用でき、さまざまな路線を使い各都市へアクセスできます。「新宿」駅や「東京」駅、「渋谷」駅へも短時間で到着できます。通勤・通学のほか、休日のレジャーなどにも大変便利です。

こちらでは、最寄りの「市ヶ谷」駅の各路線から、主要エリアへの所要時間を紹介いたします。

掲載の所要分数は日中平常時のもので、乗り換え・待ち時間等は含みません。
また時間帯により異なる場合があります。

「新宿」駅

「新宿」駅
「新宿」駅

JR中央・総武緩行線「市ヶ谷」駅から、「新宿」駅まで直通で約10分です。
都営新宿線「市ヶ谷」駅から、「新宿」駅まで直通で約6分です。

「渋谷」駅

「渋谷」駅
「渋谷」駅

JR中央・総武緩行線「市ヶ谷」駅から、「代々木」駅でJR山手線に乗り換えます。「渋谷」駅まで約13分です。

「六本木」駅

「六本木」駅
「六本木」駅

都営新宿線「市ヶ谷」駅から、「新宿」駅で都営大江戸線に乗り換えます。「六本木」駅まで約15分です。

「銀座」駅

「銀座」駅
「銀座」駅

東京メトロ南北線「市ヶ谷」駅から、「溜池山王」駅で東京メトロ銀座線に乗り換えます。「銀座」駅まで約10分です。

タクシー

タクシー

※画像はイメージです。

行き先 所要時間
「新宿」駅 約13分
「渋谷」駅 約19分
「六本木」駅 約14分
「銀座」駅 約13分

所要時間は道路事情により、実際と異なる場合があります。

バス

バス

※画像はイメージです。

「市ヶ谷」駅の近くに都バスの「市ヶ谷駅前」バス停があります。「新大久保」駅、「霞ヶ関」駅、「新橋」駅など、都内各地へスムーズに移動できます。

空港

空港

※画像はイメージです。

パークハウス四番町は、国内外を問わずアクセス良好なことが魅力です。最寄り駅である「市ヶ谷」駅やマンションからの移動ルートを紹介します。

羽田空港へのルート

①電車

JR中央総武線「市ヶ谷」駅から、「秋葉原」駅でJR京浜東北線・根岸線快速に乗り換えます。さらに「浜松町」駅で東京モノレール空港快速に乗り換えます。所要時間は約33分です。

②タクシー

所要時間は約31分です。

成田空港へのルート

①電車

都営新宿線「市ヶ谷」駅から「馬喰横山」駅で下車、「東日本橋」駅に向かい都営浅草線エアポート快特に乗り換えます。所要時間は約70分です。

②タクシー

所要時間は、約65分です。

③リムジンバス

パークハウス四番町から徒歩約18分のところにある「東京ガーデンテラス紀尾井町」から、成田空港行きのリムジンバスが利用できます。所要時間は約116分です。

新幹線発着駅

「東京」駅へのアクセス

JR中央総武線「市ヶ谷」駅から、「御茶ノ水」駅でJR中央線快速に乗り換えます。所要時間は約11分です。
タクシーなどを使った車移動の場合は、約14分です。

「品川」駅へのアクセス

JR中央総武線「市ヶ谷」駅から、「代々木」駅でJR山手線に乗り換えます。所要時間は約26分です。
タクシーなどを使った車移動の場合は、約26分です。

LIFE
INFORMATION 周辺の施設・店舗情報

徒歩1分以内の範囲に
買い物施設や公園が隣接

スーパーマーケットやコンビニエンスストア、それに公園といった主要な施設がマンションのすぐ近くにあり、利便性の高さを感じられます。

商業施設、商店街

スーパーマーケット リコス 九段南4丁目店(徒歩1分/約70m)

スーパーマーケット リコス 九段南4丁目店
スーパーマーケット リコス 九段南4丁目店

マンションが建っている交差点を渡り、すぐに立ち寄れるスーパーマーケットです。日常的な買い物がしやすい利便性の高いエリアです。

ミニストップ 九段南4丁目店(徒歩1分/約40m)

ミニストップ 九段南4丁目店
ミニストップ 九段南4丁目店

マンションのある交差点の斜め向かいにある、隣接したコンビニエンスストアです。マンションを出てすぐに買い物へ行けるほどの近い距離にあります。

スギドラッグ 市ヶ谷店(徒歩7分/約500m)

スギドラッグ 市ヶ谷店
スギドラッグ 市ヶ谷店

「市ヶ谷」駅に近接しているドラッグストアです。お帰りの際に立ち寄りやすい立地です。

自然、公園

東郷元帥記念公園(徒歩1分/約40m)

東郷元帥記念公園
東郷元帥記念公園

マンションの目の前にある公園です。園内は広場のほかに遊具も設置され、豊かな自然にもあふれています。

暮らし、インフラ

りそな銀行 市ヶ谷支店(徒歩4分/約300m)

りそな銀行 市ヶ谷支店
りそな銀行 市ヶ谷支店

「市ヶ谷」駅のすぐ近くにある銀行です。マンションから近距離にあり、現金を引き出したいときなどに便利です。

幼稚園、保育園、学校

千代田区立九段幼稚園(徒歩2分/約160m)

千代田区立九段幼稚園
千代田区立九段幼稚園

千代田区立九段小学校(徒歩4分/約280m)

千代田区立九段小学校
千代田区立九段小学校

千代田区立麹町中学校(徒歩18分/約1,400m)

千代田区立麹町中学校
千代田区立麹町中学校

大妻女子大学(徒歩4分/約260m)

大妻女子大学
大妻女子大学

まとめ

居室の採光や
プライバシー性に配慮
快適性の高い住まい

パークハウス四番町は、2002年3月に竣工した地上9階地下2階建てのマンション。東郷通りに面し、隣には東郷元帥記念公園、最寄り駅となる「市ヶ谷」駅付近の外濠公園など、緑豊かな公園が近接した優れたロケーションです。

シングルやDINKs、少人数のファミリーに適したプランが用意されています。1フロアに2戸とプライベート性が高く、全戸角住戸、全戸3面採光という柔らかな光を取り込める設計が魅力です。ファサードはシャープなデザインである一方、多彩な壁材を使い高級感を演出。上下に分けたカラーコーディネーションによって安定感を創出しています。

室内は床の段差を解消したバリアフリー設計で、安全性に配慮しています。リビング・ダイニングは採光性が高く、天井高を最大2.7mに設定し、開放感を演出。キッチンにはディスポーザーシステム、洗面室にはデザイン性に優れたドラム式洗濯乾燥機を採用し、快適な暮らしをサポートします。さらに、東京の中心地、番町の高台という利点を生かした住環境により、アーバンライフをより豊かなものにしてくれるでしょう。

パークハウス四番町

駅徒歩 不動産の表示に関する公正競争規約の改正(2022年9月1日)により、交通利便情報が販売中のものと異なる場合がございます。

総武・中央緩行線
「市ヶ谷」駅 徒歩3分

築年月

2002年3月

総戸数

16戸

階数

地上9階 地下2階