産業振興 パレスサイド三番町 Concept 内堀通りを靖国神社方向に進み、千鳥ヶ淵の入り口の次の角を曲がった番町学園通り沿い、安定感を感じる基壇部、上層部は縦方向の目地を半分ずらしたウマメジのタイル貼り、円や正四角形をモチーフとした窓が要所要所に配された外観デザイン

パレスサイド三番町

「半蔵門」駅 徒歩7分
「市ヶ谷」駅 徒歩12分

多面採光、ゆとりの室内空間

地上8階、総戸数31戸

2025.05.23 公開

LOCATION ロケーション

都市の利便性と自然が
共存する
由緒ある地

皇居東御苑
皇居東御苑

「パレスサイド三番町」は、東京メトロ半蔵門線「半蔵門」駅を最寄りとするマンションです。内堀通りの近くにあり、通りを越えた先にはお濠に囲まれた皇居の広大な敷地が広がります。

マンションが佇む千代田区三番町は、江戸時代に武家屋敷地帯として栄えていた歴史がある場所。長い年月を経た現在も、東京の中心部として皇居の傍らに広がる由緒ある地です。

東京国立近代美術館
東京国立近代美術館

東京国立近代美術館や国立劇場などの文化施設が身近にあるほか、徒歩すぐの場所には桜で有名な千鳥ヶ淵公園や北の丸公園など自然を感じられるスポットも。マンションに隣接する道路にも美しい街路樹が並んでいます。

また、半蔵門病院、九段坂病院、東京逓信病院などの総合病院が徒歩圏にあり、保育園・幼稚園から大学まで教育施設も充実した環境です。

FEATURES 建物の特徴

上質さと個性を両立した
美しいデザイン

パレスサイド三番町 外観
パレスサイド三番町 外観

閑静なエリアに佇む「パレスサイド三番町」は、洗練された外観デザインが目を惹きます。また、建物は耐震構造で、24時間セキュリティシステムを導入。暮らしの安心・安全を守るマンションです。

コンセプト・デザイン

パレスサイド三番町 敷地配置図
パレスサイド三番町 敷地配置図

洗練された住まいを意味する「ソフィスティケイテッド・ステージ」をコンセプトに、2001年3月に竣工した「パレスサイド三番町」。地上8階建て、総戸数31戸のマンションです。

趣きのある外観デザインが特徴で、外壁はタイルの目地を半分ずつずらして貼るウマメジ状に。これにより、上質さやデザイン性の高さが感じられる造りを実現しました。また、ファサードはブラウン系やグレー系の落ち着きのある配色で、街並みと調和しています。さらに、窓は画一的ではなく、円形、正四角形、長方形などさまざまなデザインにすることで、マンションの豊かな表情を描きました。

パレスサイド三番町 エントランス
パレスサイド三番町 エントランス

居住性にこだわり、1階は共用部で、2階以上を住戸とした造り。美術館を思わせるようなエントランスホールや、ライティングを施した通路など、共用部も洗練された空間が広がります。各住戸の広さは75㎡台~120㎡台で、間取りは2LDK~3LDKとなっています。

建物構造

SRC造

建物構造は、鉄骨と鉄筋コンクリートを組み合わせたSRC造です。主要な部分がコンクリートで造られていて、耐震性、耐火性、耐久性などに優れています。

壁・床

床スラブ厚は200mm、隣の住戸との間の壁は200mmの厚さを実現。マンションにおける快適な暮らしのために、見えない部分にもこだわっています。

耐震構造

耐震構造のため、地震の揺れを軽減できます。居住者の安全を守るとともに、建物のひび割れや倒壊も防ぐ造りです。

セキュリティ

24時間セキュリティシステム

安心・安全な暮らしを24時間体制で見守っています。エントランスにはオートロックの設置もあり、不正な侵入を防ぎます。

COMMON AREA 共用部

洗練された空間が広がり
便利な設備も充実

オートロックや内廊下で守られ、外部からは窺い知れない共用部には、光や水で演出された空間が広がります。また、駐車場、宅配ロッカー、ペット足洗い場などの設備も整っており、快適性が感じられる造りです。

共用施設

エントランスホール

エントランスホールでは、光と水を巧みに用いて美術館を思わせる空間を演出しています。その先には、エレベーターホールへと続く通路があり、美しいライティングで居住者をプライベート空間へ誘います。

エレベーター

建物の北側と南側に1基ずつエレベーターを設置。住戸に近いエレベーターを使用すると、各フロア1〜3戸で1基を共有することになります。独立性と利便性の高さを感じられる造りです。

内廊下

セキュリティとプライバシーに配慮し、共用廊下は内廊下を採用。建物内の移動や住戸への出入りが外部から見えない設計です。

駐車場

ターンテーブルを採用した駐車場をご用意しています。スムーズな入庫・出庫が可能です。

宅配ロッカー

不在時にも荷物の受け取りができる宅配ロッカーを設置。配達時間に合わせて待機せずに済み、再配達を減らすことにも繋がります。

ペット足洗い場

散歩でペットの足に土や汚れが付着した場合も、足洗い場できれいに流すことができます。汚れを持ち込まずに済むため、室内を清潔に保てます。

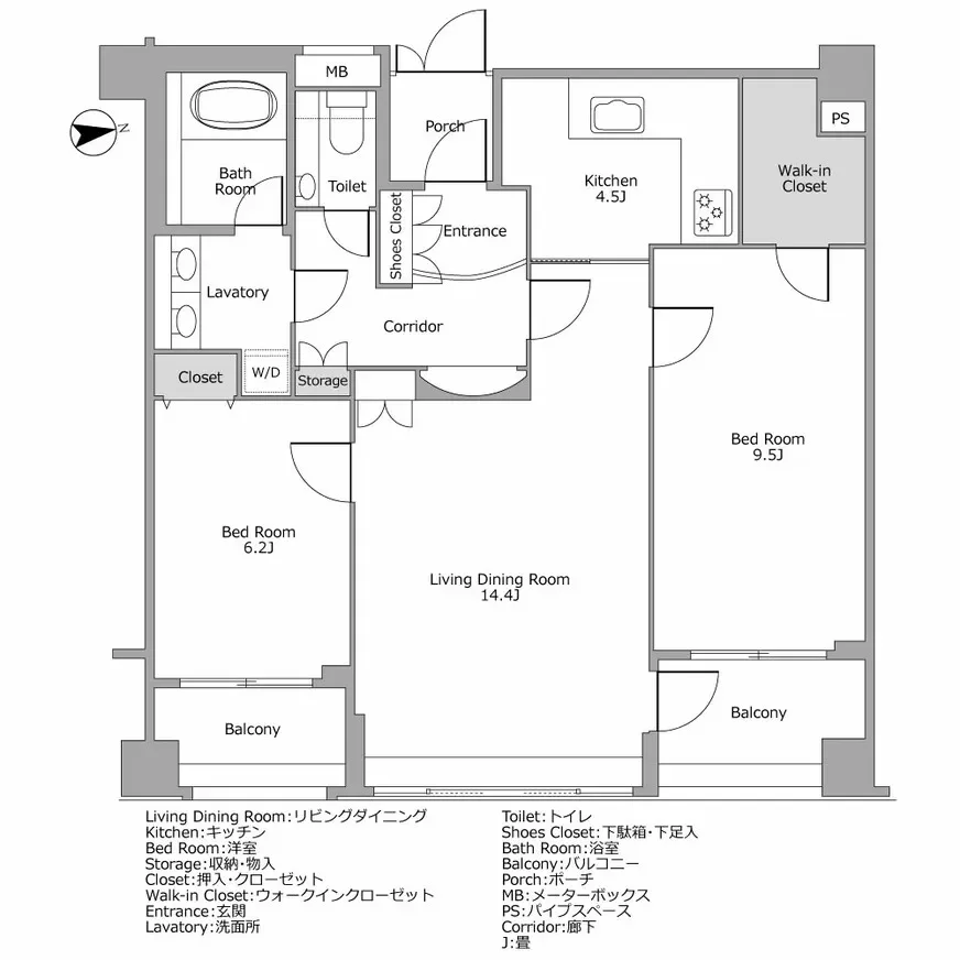
FLOOR PLAN 間取り図一例

広々とした
リビングダイニングには
床暖房を設置

パレスサイド三番町 間取り図例
パレスサイド三番町 間取り図例
パレスサイド三番町 間取り図例
パレスサイド三番町 間取り図例

INSIDE THE ROOM 室内

デザイン性、機能性、
快適性の
全てを追求

各住戸は、自然光をよく採り込むゆとりの空間が広がっています。吊棚やカウンターは素材にこだわり、インテリアショップの手によって洗練された住空間を実現。また、TES床暖房をはじめ、随所に機能性と快適性を感じられる設備が導入されています。ルーフバルコニーがあるタイプやメゾネットタイプなど、豊富なルームプランがある点も特徴です。

室内仕様

玄関ポーチ

内廊下から玄関に至る部分には玄関ポーチを設置し、住戸の独立性を高めています。また、玄関スペースもゆとりをもたせた設計です。

リビングダイニング

快適性にこだわり、リビングダイニングは12帖以上のスペースを確保しています。広々として過ごしやすい環境です。ルームプランにより、約20帖もの広さを確保したタイプもあります。

TES床暖房

床暖房

※画像はイメージです。

リビングダイニングにはTES床暖房を採用。温水を利用して足元から室内を暖めます。エアコンのように風でホコリが舞う心配がない点もメリットです。心地よい室内環境を保ちます。

照明

ダウンライトを設置しており、好みや気分に合わせて空間演出を愉しめます。

ウォークインクローゼット

ウォークインクローゼット

※画像はイメージです。

住戸タイプにより、主寝室として使える洋室にはウォークインクローゼットを設置。収納力が豊富で、衣装選びの愉しさも感じられます。

インテリア

インテリア・コーディネートを手掛けたのは、サンフランシスコ周辺のライフスタイルショップと、ヨーロッパの専門店を参考にしてお店を立ち上げたインテリアショップ「アッサンブラージュ」。ディティールにこだわり、洗練された空間づくりを行っています。

ノンホルムアルデヒド仕様

シックハウス症候群を引き起こすホルムアルデヒドという化学物質を含まない素材を使用。健康に配慮した造りです。

インターネット環境

インターネット接続専用回線を導入済みのため、コンテンツなどを快適に愉しめます。

BS・CS放送

BS・CS放送に対応していて、さまざまなチャンネルを受信できます。(チャンネルにより、専用チューナー、加入料、視聴料などが別途必要)

キッチン

ガスコンベック

落ち着いた色合いのシステムキッチンには、快適なオーブン調理を愉しめるガスコンベックを採用しています。

食器洗浄機

食器洗浄機

※画像はイメージです。

家事をラクにする食器洗浄機を装備。食後の家事負担を減らし、寛ぎのプライベートタイムを創出します。

ディスポーザ

ディスポーザ

※画像はイメージです。

キッチンの排水口には、生ゴミなどを粉砕して処理するディスポーザを設置。においが気になる生ゴミをスピーディーに処理することで、キッチンを清潔に保てます。

ユーティリティルーム

住戸タイプにより、キッチンと接する場所に、洗濯や掃除用具の収納などに活用できるユーティリティルームを設けています。

洗面室

ドラム式洗濯乾燥機

洗濯から乾燥まで行えるドラム式洗濯乾燥機を装備。洗濯の負担が減り、忙しい毎日の助けとなります。

洗面台

戸棚付三面鏡を備えた洗面台です。デザイン性と機能性を両立した設備となっています。

浴室

バスルーム

1620サイズの低床タイプバスルームを採用。広々とした空間で、ゆったりと疲れを癒すことができます。

浴室換気乾燥機

洗濯物の乾燥を行える浴室換気乾燥機を設置。雨の日や夜間の洗濯には助けとなります。また、ヒートショック予防として入浴前に浴室を暖めておきたい場合にも活用できます。この他、浴室内の換気や乾燥を行うことで、カビが発生しにくい環境となります。

ACCESS アクセス

都心の主要エリアへの
アクセスに優れた立地

鉄道

「半蔵門」駅
「半蔵門」駅

最寄り駅は東京メトロ半蔵門線「半蔵門」駅で、徒歩約7分の距離にあります。「六本木」駅、「渋谷」駅、「東京」駅など、主要エリアにもスムーズにアクセス可能。通勤・通学だけでなく、休日の外出にも便利なロケーションです。

こちらでは、最寄りの「半蔵門」駅から、主要エリアへの所要時間を紹介いたします。

掲載の所要分数は日中平常時のもので、乗り換え・待ち時間等は含みません。
また時間帯により異なる場合があります。

「六本木」駅

「六本木」駅
「六本木」駅

東京メトロ半蔵門線「半蔵門」駅から、「青山一丁目」駅で都営大江戸線に乗り換えます。「六本木」駅まで約6分です。

「渋谷」駅

「渋谷」駅
「渋谷」駅

東京メトロ半蔵門「半蔵門」駅から、「渋谷」駅まで直通で約9分です。

「銀座」駅

「銀座」駅
「銀座」駅

東京メトロ半蔵門「半蔵門」駅から、「大手町」駅で東京メトロ丸ノ内線に乗り換えます。「銀座」駅まで約10分です。

「新宿」駅

「新宿」駅
「新宿」駅

東京メトロ半蔵門「半蔵門」駅から、「九段下」駅で都営新宿線に乗り換えます。「新宿」駅まで約10分です。

タクシー

タクシー

※画像はイメージです。

行き先 所要時間
「六本木」駅 約14分
「渋谷」駅 約19分
「銀座」駅 約13分
「新宿」駅 約14分

所要時間は道路事情により、実際と異なる場合があります。

バス

バス

※画像はイメージです。

マンションから徒歩約5分の場所に「五味坂交番」バス停があります。地域福祉交通「風ぐるま」の麹町ルートが運行していて、「半蔵門」駅や「四ツ谷」駅などへとアクセスできます。また、反対車線には「五味坂」バス停があり、麹町ルートは「市ケ谷」駅などに、富士見・神保町ルートは「九段下」駅などに繋がっています。

空港

空港

※画像はイメージです。

「パレスサイド三番町」は、国内外を問わずアクセス良好なことが魅力です。最寄り駅である「半蔵門」駅やマンションからの移動ルートを紹介します。

羽田空港へのルート

①電車

東京メトロ半蔵門「半蔵門」駅から、「青山一丁目」駅で都営大江戸線に乗り換え、「大門」駅で都営浅草線特急に乗り換えます。所要時間は約39分です。

②タクシー

所要時間は約30分です。

成田空港へのルート

①電車

東京メトロ半蔵門「半蔵門」駅から、「大手町」駅で東京メトロ丸ノ内線に乗り換え、「東京」駅でJR総武本線 特急成田エクスプレスに乗り換えます。所要時間は約76分です。

②タクシー

所要時間は約60分です。

➂リムジンバス

「パレスサイド三番町」から徒歩約22分の場所にある「ザ・プリンスギャラリー東京紀尾井町」から、成田空港行きのリムジンバスが利用できます。所要時間は約1時間52分です。

新幹線発着駅

「東京」駅へのアクセス

東京メトロ半蔵門「半蔵門」駅から、「大手町」駅で東京メトロ丸ノ内線に乗り換えます。所要時間は約8分です。
タクシーなどを使った車移動の場合は、約13分です。

「品川」駅へのアクセス

東京メトロ半蔵門「半蔵門」駅から、「渋谷」駅でJR山手線に乗り換えます。所要時間は約21分です。
タクシーなどを使った車移動の場合は、約25分です。

LIFE
INFORMATION 周辺の施設・店舗情報

多様な生活施設が揃った便利なエリア

日々の買い物に便利な店舗が身近にあり、公園、区役所、総合病院、教育施設なども周辺に揃っているため、暮らしやすさを感じられます。

商業施設、商店街

スギ薬局一番町店(徒歩5分/約400m)

スギ薬局一番町店
スギ薬局一番町店

医薬品、化粧品などが揃うドラッグストアが徒歩圏にあります。処方せんサービスもあり便利です。

珈琲館 千代田区一番町店(徒歩5分/約400m)

珈琲館 千代田区一番町店
珈琲館 千代田区一番町店

ゆっくりと寛ぎたい時にぴったりのカフェがマンションの近くにあります。

自然、公園

千鳥ヶ淵公園(徒歩4分/約290m)

千鳥ヶ淵公園
千鳥ヶ淵公園

内堀通りと、皇居のお濠である半蔵濠(はんぞうぼり)の間にある公園です。春にはソメイヨシノをはじめとした桜が咲き、美しい景観が愉しめます。遊具の設置もあり、大人も子どもものんびりと過ごせるスポットです。

北の丸公園(徒歩9分/約700m)

北の丸公園
北の丸公園

皇居に隣接する公園で、広大な敷地を誇ります。桜の名所として知られるほか紅葉も美しく、四季折々で豊かな自然を享受できる場所です。

暮らし、インフラ

千代田区役所(徒歩17分/約1,300m)

千代田区役所
千代田区役所

さまざまな暮らしの手続きができる千代田区役所も徒歩圏。また、千代田図書館が建物内に入っています。図書館にはさまざまなタイプの座席があり、読書や学習をはじめ、パソコンの使用も可能です。

麴町警察署(徒歩9分/約700m)

麴町警察署
麴町警察署

「半蔵門」駅の方面に麴町警察署があります。地域の至る所に警察官がいて安全を守っているため、暮らすうえでの安心を感じられます。

東京逓信病院(徒歩15分/約1,200m)

東京逓信病院
東京逓信病院

靖国神社の奥、「飯田橋」駅の方面にある総合病院です。標榜診療計29科、461床という規模で幅広い患者さんに医療を提供しています。

幼稚園、保育園、学校

千代田区立麹町保育園(徒歩4分/約300m)

千代田区立麹町保育園
千代田区立麹町保育園

千代田区立九段小学校(徒歩5分/約350m)

千代田区立九段小学校
千代田区立九段小学校

千代田区立九段中等教育学校
(徒歩13分/約1,000m)

千代田区立九段中等教育学校
千代田区立九段中等教育学校

千代田区立麹町中学校(徒歩17分/約1,300m)

千代田区立麹町中学校
千代田区立麹町中学校

まとめ

洗練された住まいから
始まる
ゆとりある暮らし

千代田区三番町の閑静なエリアに佇む「パレスサイド三番町」。地上8階建て、総戸数31戸という構成で、ウマメジ状に貼り付けた外壁タイルやさまざまなデザインの窓などが織りなす美しいファサードが特徴です。

1階には空間演出にこだわったエントランスホールや通路が広がり、2階以上を住戸とするなど、セキュリティやプライバシーに配慮した設計です。また、エレベーターを建物の北側と南側に1基ずつ設置することで、独立性と利便性を高めました。

多面採光の室内空間はゆとりと快適性にこだわり、リビングダイニングは12帖以上のスペースを確保。TES床暖房、ウォークインクローゼット、食器洗浄機、ディスポーザ、浴室換気乾燥機など、設備が充実している点も暮らしやすさに繋がります。

そんなマンション周辺には、千鳥ヶ淵公園や北の丸公園など自然豊かな環境もあり、穏やかな空気が流れています。最寄り駅は東京メトロ半蔵門線「半蔵門」駅で、主要エリアにもスムーズにアクセスできるロケーション。洗練された暮らしを実現できる住まいとなっています。

パレスサイド三番町

駅徒歩 不動産の表示に関する公正競争規約の改正(2022年9月1日)により、交通利便情報が販売中のものと異なる場合がございます。

東京メトロ半蔵門線
「半蔵門」駅 徒歩7分

築年月

2001年3月

総戸数

31戸

階数

地上8階