鹿島建設|大成建設 代官山アドレス Concept カフェや個性的なショップが並ぶ洒落た街並み代官山、旧同潤会代官山アパート跡地に建つ「ザ・タワー」「ジ・アネックス」「ザ・レジデンス(イースト・サウス・ウエスト)」5棟からなる商業施設・公共施設が併設されたマンション

代官山アドレス

「代官山」駅 徒歩1分

スーパー、ドラッグストアが入る商業施設「ディセ」が敷地内

5棟からなる総戸数501戸のマンション

2024.12.13 公開

LOCATION ロケーション

都心への利便性も備えた
落ち着いて暮らせる邸宅街

代官山アドレス ザ・タワー
代官山アドレス ザ・タワー

代官山アドレスは、住みたい街に関するさまざまなアンケート調査などでも上位にランクインされる代官山に位置します。渋谷、中目黒まで一駅、恵比寿にも近いという都心にも出やすい利便性の高い場所でありながら、緑あふれる瀟洒で高級感のある街並みが、住宅地としての人々の羨望を集めています。

代官山駅
代官山駅

代官山という地名の由来は、江戸時代にこの一帯が当時の代官の直轄林だったことであると言われています。その地が邸宅地として一躍注目を集めたのは、明治初期、西郷隆盛の実弟、従道がこの地に居を構えたことが始まりでした。約10万坪におよぶ丘の上の敷地に、近代的な洋館と贅を尽くした庭園を持つ西郷邸。さらに根津邸、山本邸と名邸が続き、明治末期には屈指のお屋敷街になりました。代官山に漂う凛とした美意識はその当時から受け継がれています。

代官山アドレス ザ・タワー アプローチ
代官山アドレス ザ・タワー アプローチ

代官山が注目を集めるもう一つの理由として、独自の代官山カルチャーがあげられます。1960年代から旧山手通りに創られてきた商業施設と集合住宅の複合施設ヒルサイドテラス。そこに出店したショップや行われるイベントに東京でもセンスあふれる人々が集まるようになり、流行や文化を発信。今では、老舗レストランやカフェ、アパレルや雑貨ショップなどへ、渋谷などの既存の都市生活で飽き足らなくなった人々が足を運んでいます。

代官山アドレス ザ・タワー 敷地配置図
代官山アドレス ザ・タワー 敷地配置図

FEATURES 建物の特徴

代官山の暮らしに、
自然と都市が調和する
特別な空間

コンセプト・デザイン

代官山の新しいコアとなる複合施設の街づくり

東急東横線「代官山」駅と人道橋とダイレクトに結ばれる代官山アドレス。旧同潤会代官山アパートの跡地には住宅棟だけではなく、商業施設や公共施設とともに整備され、代官山という街の新しいコアを創出しています。「代官山アドレス」というネーミングは、代官山地区市街地再開発組合が一般公募し、選ばれたもの。そこには「人々が活発に交流・交歓する街にしたい」という気持ちが込められています。

旧同潤会代官山アパートから続く計画的な街づくり

関東大震災の復興事業の一環として建設された旧同潤会代官山アパート。その精神にあるのは復興に寄与するべく、人々の暮らしを再建するために計画された、わが国の近代的な集合住宅の始まりといえるものでした。1927年に竣工した2階建23棟、 3階建13棟、337戸の住宅は、当時の政府が提唱していた田園都市構想の影響も受けており、日本で初めて本格的に鉄筋コンクリートを採用した集合住宅。さらに、街づくりを意識した都市建設の始まりともいえます。

都市生活のほとんどがそろう複合施設

旧同潤会代官山アパートの跡地に生まれた代官山アドレスは、地上36階建「ザ・タワー」、地上8階建「ザ・レジデンス・ウエスト」、地上10階建「ザ・レジデンス・サウス」、地上13階建「ザ・レジデンス・イースト」、地上5階建の「ジ・アネックス」、そして商業棟「ディセ」によって構成されています。約500戸の集合住宅と洗練されたショッピングゾーン、渋谷区代官山スポーツプラザが集まり、ここだけで都市生活を完結できる都市型複合施設です。

代官山にふさわしい豊かな住環境の創造を

ニューヨーク近代美術館「彫刻の庭」、アメリカの象徴「自由の女神島」など、樹木や水などのランドスケープデザインで、国際的に高い評価を受けているランドスケープアーキテクト、ロバート・ザイオン氏に設計を依頼。氏ならではのダイナミックでありながらシンプルなデザインと自然との共生から生まれる優しく暖かな表情、美しく伸びやかな風景が、代官山アドレスの顔になっています。

それぞれの表情を演出する2つのエリア

アーバンエリアとグリーンエリアという2つのテーマのもとに、7つのアウトドアルームをデザインしています。アーバンエリアは訪れる人を迎える「コートヤード」、にぎわいの中心になる「アドレスプラザ」、おしゃれなブティックやカフェなどが立ち並ぶ「アドレスモール」はガラス張りの天井(ガレリア)が、高級感を醸し出す開放的な空間です。

古き良き代官山の記憶を物語る年輪を刻んだ樹木

都心にありながら豊かな自然に包まれるグリーンエリア。代官山駅から直結するブリッジを渡るとある、四季折々の花と樹木が住む人を迎える「エントランスガーデンは、さまざまな楽しみ方に応える都市の中の贅沢な空間。広々とした開放的な広場「アドレスコート」、豊かな緑で訪れたお客様を迎える「アドレスガーデン」、そしてケヤキやヒマラヤスギなどの樹々が、古き良き代官山の記憶を物語ります。「代官山公園」には子供たちの歓声がこだまします。

緑を重要なポイントにしたマスタープラン

ザイオン氏が描いた代官山アドレスのマスタープランには「緑」の位置付けが、大きなポイントになっています。旧同潤会代官山アパートメントの時代から長年根を下ろしてきたヒマラヤスギやケヤキの移植をはじめ、「アドレスコート」を見下ろすイチョウなど、効果的にシンボルツリーを配し、敷地全体に四季折々の花木をふんだんにあしらっています。敷地全体を巡る周囲約430mの遊歩道「アドレスウォーク」では、四季折々に、さまざまな自然の表情が楽しめます。

建物構造

強固な地盤と先進の制震構造で地震対策

旧同潤会代官山アパートメントのDNAを受け継ぐ代官山アドレスは耐震性も重要な設計思想の一つです。地下約30mに緻密で強固な地層、東京礫層がある良質な地盤。さらに北側は基礎構造をベタ基礎で東京礫層にしっかり埋め込み、南側は東京礫層まで155本の杭を打ち込み、建物全体をしっかり支えています。地震時の横揺れに強いSRC造に加え、高強度PCコンクリートで強化。高粘度のオイレス粘性体を使用した制振壁は、地震時の振動エネルギーを吸収します。

防災設備

万一の地震を想定した耐震枠対応の玄関

地震の大きな揺れで変形してもドアの開閉が可能な耐震枠を玄関扉に設置。不燃性に優れた鋼材が耐火性を高めています。ジーマティック社製のシステムキッチンは3Dオールメタルフックレールシステムで地震時の食器の飛び出しを防ぎます。災害時のライフラインにも着目。敷地内の自家発電装置で約8時間、共用廊下の照明、非常用エレベーター、駐車場の駐車機器などに優先的に非常用の電気を供給します。また、専用の備蓄倉庫が用意されています。

セキュリティーとプライバシーへのこだわり

24時間365日の有人管理体制を構築。ザ・タワー2階の防災センター・フロントでは、24時間2人体制の常駐警備を実施。さらに管理員・駐車場管理員・設備管理技術者が日勤、常駐しています。緊急連絡への対応やエレベーター監視用モニター(ITVカメラ)など棟内のモニターは途切れることなく監視を続けます。定期点検のお知らせなどの連絡は、電子回覧板で防災センターから全住戸への各住戸情報盤のTVモニターに一斉に配信します。

火災予防と迅速な復旧対応を図るオール電化

火災に対する予防は超高層住宅に重要なポイントです。代官山アドレスは、火災原因の大きな割合を占めるキッチンからの出火リスクを軽減するために、ガスを使わないオール電化システムとしています。キッチンの熱源にはハロゲンヒーター(一部はIHヒーター)を採用。割安の深夜電力を利用した貯湯式給湯システムを設置しました。災害時のインフラ復旧の速さはオール電化の強みです。

異常を自動感知し作動するスプリンクラー

防災

※画像はイメージです。

代官山アドレスでは共用部・住戸内ともにきめ細かく火災センサー(熱感知器)を設置。出火の場所は素早く防災センターに伝え、初期対応も迅速に行います。11階以上の専有面積100㎡を超える住戸には防火ドアを設置し、火災時の延焼を防止します。ザ・タワーでは全住戸にスプリンクラーを配置。温度の異常を感知すると自動的に作動します。さらに屋上にはヘリコプターのホバリングスペースを確保。緊急時、屋上からの救援を可能にしています。

COMMON AREA 共用部

代官山に佇む、
上質と安らぎの空間

共用施設系

代官山アドレス ザ・タワー レリーフ
代官山アドレス ザ・タワー レリーフ

アドレスプラザは代官山の玄関口に位置する駅直結の多目的広場

アートワークと一体となったベンチが多数設置され、待ち合わせや憩いのスペースとしても心地よいスペースです。クリスマスシーズンには、毎年趣向を凝らしたツリーとイルミネーションが設置され、代官山のクリスマスを彩ります。

光と大理石のハーモニー。品格を醸すエントランスロビー

石畳のコートヤードから続く、美しさと格調をたたえたエントランスロビーが向かいます。アドレスガーデンを望むテラスに面した、大きなガラス張りのデザインが開放感を演出。モダンな装いの壁と床には、贅沢なほど大理石をあしらい、美術館を彷彿させるような空間に仕上げています。住む人々にはステイタスを、訪れる人には期待感を湧き立たせる演出が施されています。

落ち着きの中に上質な暮らしを表現するザ・レジデンス

住まいとしての落ち着きを追求したイースト、サウス、ウェストの3つのザ・レジデンスはその名にふさわしく、各エントランスホールも上質な仕上げ。床は高級感漂う御影石を敷き詰め、壁はブラウンの御影石をあしらい、開放感をもたらす吹抜けと手入れの行き届いた植栽が潤いと威厳を表しています。

眺望を楽しむ高層階。交流を楽しむコミュニティスペース

ザ・タワーは地上36階、高さ約120m。代官山地区では唯一の超高層建築です。高層階から一望する都心の絶景、東京タワー、新宿副都心の摩天楼といったここしかない代官山眺望生活があります。また、そこに暮らす人同士が気軽にくつろぐ、そんなサロンのような空間を作りたい・・・。こうして生まれたコミュニティスペースがザ・タワー北側のフロアの2層吹抜けです。

緑の中にも和のひとときを味わえる空間

アドレスガーデンに面した落ち着いた建物、「同潤庵」は、畳の肌触りが心地良い和風の集会室です。ガラスの向こう豊かな緑を望みながら、くつろいだ時間をゆっくりと味わえます。

全住戸分の駐車スペースを確保

なかなか駐車場を確保することが難しい都心生活。敷地の有効利用として、全住戸数分の駐車場を地下に確保しています。代官山アドレスの美しい景観を駐車場が損ねることなく、また、大切な愛車も安心して駐車することができます。住棟によっては住戸フロアに直結するエレベーターがレイアウトされています。

サービス系

日々の暮らしに豊かさを提供するフロントサービス

より快適に毎日を過ごせるよう、フロントでは午前9時30分から午後6時までの間、各種サービスを提供しています。メッセージサービスからクリーニングやレンタカーの手配、スーツケース・ビデオカメラなどの各種用品のレンタル、ファクス・コピーサービス、ハウスクリーニングサービス、ルームメンテナンスサービス、引越し業者やリフォーム・メンテナンス業者斡旋サービスまで、多彩な内容で暮らしのお手伝いをします。

オートロックのキーが宅配ロッカーに連動

ノンタッチキーを使用しているために、オートロックの解錠はエントランスでキーをかざすだけでOK。各住棟に設置された宅配ロッカーとも連動しているので、不在時に荷物が配達されても、集合玄関にランプの点灯で宅配ロッカーへの着荷を知らせます。帰宅後も暗証番号を必要とせず住戸キーをエントランスの操作盤にかざすだけで、荷物が受け取れます。取り出しは24時間可能、留守時の宅配受け取りも安心です。

ゴミ出しの煩わしさを解消した収集サービス

ザ・タワーでは高層住宅にあるゴミ出しの不便さを少しでも解消するように、フロアごとにゴミ置き場を設置しています。地下1階のごみ処理室までは管理員が運搬を行う、便利なゴミ収集サービスを採用しています。

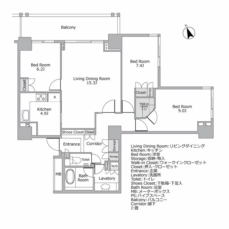
FLOOR PLAN 間取り図一例

部屋数を抑えて、
一部屋ごとのゆとりを
大切にしたプランニング

代官山アドレス ザ・タワー 間取り図例
代官山アドレス ザ・タワー 間取り図例

INSIDE THE ROOM 室内

お屋敷街の邸宅にふさわしい
しつらえの住空間

代官山アドレスの各プランはトータルコーディネートされた室内が特徴です。本物の魅力を追求したオーセンティックステージと、さらなる上質を追求したエクセレントステージの2グレード。エクセレントステージでは建具に美しい天然木のチヂミ(波上の木目)入りシカモア材を使用し、鏡板には象嵌(ぞうがん)を作り込みました。また、折り上げ天井には廻り縁をしつらえたほか、玄関の天井にはアール状の間接照明デザインが施すなど、よりゴージャスな仕上りを見せています。

室内設備

3種のカラーでトータルコーディネート

それぞれのグレードには、天然木本来の美しさ、温かさにジャパネスクデザインの中に表現した洗練のカラーである「ヒーリングナチュラル」。代官山の歴史とお屋敷街の重厚感をイメージしながらアールデコを融合させた、趣のある「トラディショナルブラウン」。ミディアムブラウンを基調として若々しさと落ち着きを両立させたコンテンポラリー感にあふれる「モダンチェリー」の3種のカラーバリエーションが用意され、それぞれ統一感のある室内を演出しています。

デザイン性の高い世界の一流品を装備

キッチンには国際的に高い評価を得るドイツの逸品、ジーマティック社製のシステムキッチンに、人造大理石のカウンタートップ「デュポン社製コーリアン」を採用。厨房水栓、浴室水栓、洗面水栓にはドイツ・グローエ社製の水栓を、シャワーヘッドはドイツ・ハンザ社製造シャワーヘッドを採用するなど、高い機能性とエレガントなデザインを両立させた世界の一流品でコーディネートされています。

クリーンでおいしい水を届ける

代官山アドレスでは水を弱アルカリ水に変化させる磁気波動水処理装置(マグユニット)を採用しています。地下の受水槽と高架水槽にマグユニットを設置することで、水に含まれる塩素や微生物、配管の赤さびや水垢・藻・菌類を除去。また、人の細胞膜に浸透しやすくなり、新陳代謝を活発にします。このマグユニットの心臓部は永久磁石のため、メンテナンスも不要。フィルター部分での雑菌の繁殖も防げます。

高い収納力で居室にゆとりと広がりを

どのプランも居室内のシステム収納やウォークインクロゼットなど、収納スペースの充実を図り、室内をすっきり広々と使えるように配慮されています。特に洋室は贅沢にドイツ製のシステム収納を採用。デザイン性にあふれているだけでなく、優れた収納力、機能性が特徴です。一部住戸には地下にトランクルームを用意。季節用品やアウトドアグッズなどの収納にもゆとりがあります。

全居室に天井カセット式エアコン、居間・食堂は床暖房

全居室に、湿度だけを下げることのできるアメニティードライ機能を搭載した天井カセット式エアコンを標準装備しています。また、居間と食堂には電気式面状発熱方式の床暖房を採用。電気式の速熱型ヒーターで室内の空気を汚すことなく足下から優しく温めます。

見えない部分への配慮が寄与する快適な毎日

フローリングには遮音性に優れたLL45等級を使用。床のスラブ厚は約200mmを確保し、水回りと玄関は二重床構造です。戸境壁は強化プラスターボードを採用し、二重のグラスウールを硅酸カルシューム板で挟みました。さらに主寝室と水回りはプラスターボードを二重にするなど、より遮音性を高めています。また、ホルムアルデヒドを最小限に抑えたノンホルマリンのフローリング材は、森林浴などのフィトンチッドによるヘルシー機能と抗菌性能があります。

ACCESS アクセス

駅への近さと
整った交通網が
代官山生活をアクティブに

代官山アドレスからのアクセス
代官山アドレスからのアクセス

鉄道

「代官山」駅(代官山アドレス ザ・タワーより徒歩2分/約110ⅿ)からのルートと所要時間です。

「渋谷」駅へ

渋谷駅
渋谷駅

約2分(東急東横線)

「六本木」駅へ

六本木駅
六本木駅

約9分(東急東横線で「中目黒」駅へ。「中目黒」駅からは東京メトロ日比谷線を利用)

「新宿」駅へ

新宿駅
新宿駅

約9分(東急東横線で「渋谷」駅へ。「渋谷」駅からはJR山手線を利用)

「銀座」駅へ

銀座駅
銀座駅

約16分(東急東横線で「渋谷」駅へ、「渋谷」駅から東京メトロ銀座線を利用)

「東京」駅へ

東京駅
東京駅

約18分(東急東横線で「渋谷」駅へ。「渋谷」駅から東京メトロ銀座線を利用し「赤坂見附」駅からは東京メトロ丸ノ内線へ乗車)

「品川」駅へ

品川駅
品川駅

約15分(東急東横線で「渋谷」駅へ。「渋谷」駅からはJR山手線に乗車)

タクシー

タクシー

※画像はイメージです。

「渋谷」駅へ 約5分
「六本木」駅へ 約13分
「新宿」駅へ 約20分
「銀座」駅へ 約20分
「東京」駅へ 約20分
「品川」駅へ 約20分

バス

バス

※画像はイメージです。

代官山アドレスから最寄りのバス停は、「代官山町」または「代官山駅入口」です。東急バスや渋谷区のコミュニティバス「ハチ公バス」が利用できます。ハチ公バスは、渋谷や恵比寿エリアを循環するルートとなっており生活に便利です。

空港

空港

※画像はイメージです。

羽田空港へのルート

電車の場合

「代官山」駅から東急東横線で「渋谷」駅で下車。JR山手線に乗り換えて「品川」駅で下車したら、京浜急行線に乗り換えて、所要時間は約55分です。

タクシーの場合

約25分

バスの場合

セルリアンタワー東急ホテルから直通バスを利用し、羽田空港第2ターミナルまで約60分です。

成田空港へのルート

電車の場合

「代官山」駅から東急東横線「中目黒」駅で下車したら、東京メトロ日比谷線に乗り換え「上野」駅へ。徒歩で「京成上野」駅に移動し、京成線に乗車すると成田空港までの所要時間は約90分です。

タクシーの場合

約90分

バスの場合

セルリアンタワー東急ホテルから直通バスを利用し、成田空港第3ターミナルまで約80〜95分です。

LIFE
INFORMATION 周辺の施設・店舗情報

ハイセンスで便利な
商業施設

商業施設、商店街

代官山アドレス・ディセ(徒歩2分/約90ⅿ)

代官山アドレス・ディセ
代官山アドレス・ディセ

代官山らしいハイセンスなライフスタイルを彩る店舗が集まったライフスタイル・ギャラリーが代官山アドレスの中にあります。「ディセ」はフランス語で“17”の意味。
代官山アドレスの住所が代官山17番地であることから名づけられました。アドレスプロムナードからのウィンドーショッピングだけでも楽しい時間を過ごせます。

アドレスプロムナード(徒歩1分/約50ⅿ)

アドレスプロムナード
アドレスプロムナード

ザ・レジデンスとディゼにはさまれたアドレスプロムナードは文字通り代官山アドレスの散歩道です。オープンカフェをはじめ、代官山らしい個性的な路面店舗が集まったショッピングゾーンです。

代官山ピーコック(徒歩1分/約20ⅿ)

代官山ピーコック
代官山ピーコック

旬・産地で選んだ季節の野菜・フルーツ、和牛をはじめ確かな品質のミート、各地の漁港からの海の幸、できたての多彩なメニューが自慢デリカテッセンなど、とびきりの鮮度と美味しさが豊富に。賑わいのある売場と丁寧なおもてなしで住民の生活をサポートしています。

ウエルシア代官山ディセ店(徒歩1分/約70ⅿ)

ウエルシア代官山ディセ店
ウエルシア代官山ディセ店

地域に暮らす人々の健康で快適な生活をサポート。 薬品や健康食品などのヘルスケア商品、化粧品やボディケアなどのビューティーケア商品、日用雑貨まで、探しやすく選びやすい品揃えです。

代官山T-SITE(徒歩6分/約450ⅿ)

代官山T-SITE
代官山T-SITE

書店を核とした複合文化施設「代官山T-SITE」は、水戸の徳川邸屋敷跡地にあります。書店以外にも食料品店、カフェ、ペットショップなどの個性豊かなショップが集まります。 お気に入りの本を探しながら、ふらっと立ち寄れる庭として、代官山文化にもう一つの広がりを創ります。夏祭りの開催など、地域交流にも貢献しています。

ヒルサイドテラス(徒歩5分/約400ⅿ)

ヒルサイドテラス
ヒルサイドテラス

1967年から数期に分けて建設された住居、店舗、オフィスからなる複合建築。交通量の多い通りに面しながら、洗練された店舗やレストランを街路レベルに設けることで住戸部分の居住環境を確保し、公共の歩行者空間は集まった店舗群への移動空間として機能するというマスタープランが功奏。代官山文化の発信地となり、都内でも有数のファッショナブルなエリアを形成しています。

LOG ROAD DAIKANYAMA(徒歩5分/約350ⅿ)

LOG ROAD DAIKANYAMA
LOG ROAD DAIKANYAMA

「季節の移ろい、色、風、香り、発見、癒やし」をテーマに、創り過ぎない、自然体でありながら、代官山らしい都会的センスも感じるランドスケープ。かつての東横線の線路跡地につくられた商業施設は、ウッデイな建物が軒を連ねる細長い散歩道。緑に囲まれ、季節の風合いと自然の豊かさを感じます。ここにも気持ちの良い空気を感じる代官山があります。

自然、公園

代官山公園(徒歩2分/約90ⅿ)

代官山公園
代官山公園

「旧同潤会代官山アパート」時代より児童公園として親しまれてきた「代官山公園」が駅前広場と一体化し、誰もが憩えるスペースとして生まれ変わりました。木々の中に遊具が設置された、地域の身近な公園です。

旧朝倉家住宅(徒歩5分/約350ⅿ)

旧朝倉家住宅
旧朝倉家住宅

東京府議会議長や渋谷区議会議長を歴任した朝倉虎治郎によって、1919年に建てられた重要文化財。木造2階建ての主屋には、意匠を凝らした欄間や襖、板戸の絵画など、明治期から戦後の頃までに建設された邸宅の特徴を今に遺しています。庭園は崖線という地形を取り入れた回遊式庭園となっており、石灯籠などの添景物が多く、春はツツジ、秋はモミジなどを楽しむことができます。

西郷山公園(徒歩11分/約850ⅿ)

西郷山公園
西郷山公園

西郷山公園、菅刈公園一帯は西郷隆盛の弟で明治の政治家・軍人であった西郷従道が西南戦争に敗れ下野した兄、隆盛のために購入した土地で、街の人々からも「西郷山」と親しまれていました。台地の上の明るい芝生広場は子どもたちが伸び伸び遊べるスペースになっているほか、ゆるやかな坂道の園路や展望台も設けられ、晴れた冬の日には遠く富士山も望めます。

菅刈公園(徒歩13分/約1,000ⅿ)

菅刈公園
菅刈公園

滝や池のある回遊式の大名庭園として江戸の名所にもなっていた豊後の岡藩の屋敷を1874年に西郷従道が購入し、洋館や和館を建造。庭園も東都一の名園と謳われました。現在、在りし日の名園の姿を一部復元し、公園として整備されました。日本庭園に面して建てられた和館では、菅刈公園の成り立ちや西郷従道に関する資料を見ることができます。

郷さくら美術館(徒歩9分/約700ⅿ)

郷さくら美術館
郷さくら美術館

現代日本画の専門美術館として、2012年3月に開館。昭和以降に生まれた現代日本画家の作品をコレクションしています。約1,000点を超える収蔵作品の多くが、50号を超える大画面の作品です。テーマを設けた「コレクション展」を中心に、年に4、5回の展覧会を開催しています。

恵比寿公園(徒歩7分/約550ⅿ)

恵比寿公園
恵比寿公園

通称「ロケット公園」と呼ばれて親しまれている地域の中では広めの公園。飛行機、ロケット、汽車の形に作られたレトロな遊具、色とりどりの輪やさまざまな形の大きなコンクリート遊具など、他の公園には見られないユニークな遊具がたくさんあります。その他に滑り台、ブランコ、うんてい付きジャングルジム、砂場があり、子どもたちに人気です。

暮らし、インフラ

渋谷区代官山スポーツプラザ(徒歩2分/約120ⅿ)

渋谷区代官山スポーツプラザ
渋谷区代官山スポーツプラザ

渋谷区在住、在勤在学者を対象とした本格的なスポーツ施設。屋内の温水プール2つをはじめ、屋外の幼児プール、さらに卓球やエアロビクスなど各種スポーツが楽しめる多目的ルームがあります。

渋谷区文化総合センター大和田(徒歩13分/約1,000ⅿ)

渋谷区文化総合センター大和田
渋谷区文化総合センター大和田

文化・教育・健康・福祉など幅広い分野における区民活動の拠点。プラネタリウムをはじめ、ホールや図書館など区内外の方にも広く利用され、地域住民に親しまれています。
科学実験や体験型の展示など、普段体験できない科学・技術・数学のプログラムを提供するこども科学センター「ハチラボ」、夜間診療 (内科)、休日診療(内科・小児科)、がん検診を行う区民健康センター桜丘も併設されています。

幼稚園、保育園、学校

恵比寿のびのびこども園(徒歩8分/約600ⅿ)

恵比寿のびのびこども園
恵比寿のびのびこども園

渋谷区立猿楽小学校(徒歩6分/約450ⅿ)

渋谷区立猿楽小学校
渋谷区立猿楽小学校

渋谷区立鉢山中学校(徒歩8分/約600ⅿ)

渋谷区立鉢山中学校
渋谷区立鉢山中学校

まとめ

代官山駅前でかなう
理想の生活

利便性の高い場所でありながら、緑あふれる街並みが住宅地としての地位を確立している代官山。その駅前に建つ代官山アドレスでの日々は、まさに理想の生活です。独自の文化も見逃せない、個性あふれる街で豊かな生活を送ってみてはいかがでしょうか。

代官山アドレス(ザ・タワー)

駅徒歩 不動産の表示に関する公正競争規約の改正(2022年9月1日)により、交通利便情報が販売中のものと異なる場合がございます。

東急東横線 「代官山」駅 徒歩1分

築年月

2000年8月

総戸数

501戸(5棟合計)

階数

地上36階

最終更新:2024.09.01

※分譲当時のパンフレットの内容を記載しているため、以降に更新された情報が異なる場合がございます。

※不動産の表示に関する公正競争規約の改正(2022年9月1日)により、交通利便情報が販売中のものと異なる場合がございます。