三井不動産 パークコート元麻布
ヒルトップレジデンス
Concept 麻布十番商店街から七面坂を上り少し進んだ丘の上、開放感あふれる広い連窓ガラスが印象的な外観デザイン、丘の上の開放感と麻布十番の賑わいを感じることができる総戸数43戸のプレミアムマンション

パークコート元麻布ヒルトップレジデンス

港区・元麻布の丘の上

東京メトロ南北線「麻布十番」駅 徒歩4分

地上8階、総戸数43戸のプレミアムマンション

2024.12.25 公開

LOCATION ロケーション

丘の上に広がる開放空間

パークコート元麻布ヒルトップレジデンス 外観
パークコート元麻布ヒルトップレジデンス 外観
七面坂
七面坂

元麻布一丁目は江戸時代に麻布村の中心だった由緒ある土地。都心の中心に位置しながら、七面坂を上ると落ち着いた雰囲気の高級住宅地が広がっています。

マンションの立地は抜群で「麻布十番」駅まで徒歩4分、「六本木」駅までは徒歩14分です。日常の買い物はもちろん、グルメ、ショッピング、レジャーまでお洒落なお店や老舗が揃っています。六本木ヒルズや東京ミッドタウンも生活圏内。お散歩感覚で行くことが可能です。

有栖川宮記念公園
有栖川宮記念公園

マンションから徒歩13分のところにある有栖川宮記念公園は、麻布台地の地形を活かした自然あふれる公園です。晴天の日は散策するだけで気分転換できるでしょう。

豊かな自然と触れ合うことができるため、小さなお子さん連れのファミリーにもおすすめの場所です。

FEATURES 建物の特徴

おおらかな生き方を謳う
ランドスケープの雄弁

コンセプト・デザイン

パークコート元麻布ヒルトップレジデンス外観
パークコート元麻布ヒルトップレジデンス外観

江戸時代には屋敷町として、丘の上に多くの藩邸や自社があった元麻布。求めたのは開放という価値です。その名の通り、丘の上に位置する「パークコート元麻布ヒルトップレジデンス」は開放感にあふれた43戸のプレミアムレジデンスです。

丘の上の建物は、空へと視線を導くケレン味のない直線づかいが特徴です。解放をテーマにしているだけに、建物には2層分の大きなガラス窓が設置されています。

また、建物の周囲には常緑樹、落葉樹など、さまざまな樹木が植栽され四季折々の表情を楽しむことができます。

建物構造

基礎杭

パークコート元麻布ヒルトップレジデンスは阪神大震災の経験を生かした耐震基準を取り入れています。そのため、直径1300mmの頑丈な杭を46本使用し、地中17mの堅固な東京礫層までしっかりと打ち込んでいます。

二重天井

また、天井はコンクリートスラブから吊り下げる二重構造になっているのが特徴です。電気配線や換気ダクトなどはスラブと天井の間に通していて、メンテナンス性にも美観にも優れた構造を取り入れています。

戸環境、外壁

外壁は約200mm、住戸間の壁は240mmを確保していますので、JIS特級のD-55レベルという高度な遮音性を追求しました。

二重床

床の基礎となるコンクリートスラブは、遮音性の高さを考慮して230mmを確保。さらにフローリングとスラブの間には吸音材を挟み込んだ二重構造を取り入れました。床材面を支える支持脚にもクッションゴムを装着することで、音の伝達を徹底的に低減しています。

防災設備

週7日間管理体制

土日も含む、週7日間、午前8時45分から17時まで管理スタッフが駐在しています。また、24時間体制で安全を見守るベルボーイシステムも取り入れました。万一、火災やガス漏れ、侵入者、非常ボタンや救急コールの作動などの非常事態が起こった場合、管理室内の収集監視システムが情報をキャッチし、緊急センターと警備会社に自動で警報を送ります。救急コールでは、119番通報とともに家族の登録連絡先にも一報が届きます。

TVモニター付ダブルオートロックシステム、
指紋照合電気解錠システム

フォーマル・エントランス、ギャラリー・エントランスにはどちらも二重にオートロックを設置しています。TVモニター付のインターホンで音声と映像の両方で来訪者を確認できます。自分で解錠する場合は、指紋で照合する先端の機能を採用しました。大型プランでは、マスターベッドルームからのオートロック解除も可能です。安全性はもちろん、キーレスのスピーディさや利便性も備えています。

防犯センサー

1階の住戸の各窓には防犯センサーを備えています。異常があった場合は、住戸内全域に警報が鳴ると同時に管理室にも知らされ、すぐに警備会社に通報されます。

防犯カメラ

2つのエントランスや駐車場には防犯カメラを備えています。管理室内ではモニターで監視し、異常が発生した場合はすぐに現場に急行します。

COMMON AREA 共用部

誇りで迎え解放へと誘う

共用施設系

エントランス

 パークコート元麻布ヒルトップレジデンス エントランス
パークコート元麻布ヒルトップレジデンス エントランス

エントランス部は気品で人々を迎えるコンセプトを取り入れています。いたずらな華美や重厚を排して、飾らない成熟を演出。その先へ続く開放感あふれる部屋へのイントロダクションになっています。ロビーは中央部に天然の大理石、その周囲には自然石をモダンなテイストで敷き詰め、壁も大理石。照明は柔らかなダウンライトで、シンプルに空間を演出しています。

また、ソファーセットが置かれたサロンも併設。ゲストとのレセプションルームとして利用いただけます。

ウォーター・ラウンジ

エントランス部のガラス窓の向こうにあるのがウォーター・ラウンジです。コバルトブルーのタイルを貼ったプールは、常に青い水をたたえ見る者の心を解放するでしょう。夜になると、プールの傍らに配置された三筋の水が流れ落ちるウォーター・フォールがライトアップされて、幻想的な情景を醸し出します。

トランクルーム

ゴルフクラブやウィンタースポーツ、アウトドアギアなどが入るトランクルームが全戸分、用意されています。トランクルーム内にはエアコンも完備しているため、万全の状態で保管することが可能になっています。

宅配ロッカー

宅急便などの荷物の受け渡しはもちろんのこと、宅配貨物の発送やクリーニング店への洗濯物の受け渡しも可能です。24時間利用可能で、ゴルフバッグやスキー板など、大型の荷物を収納できるロッカーも用意しています。

駐車場

地下ビット式・三段式立体駐車方式を採用し、ほぼ全戸分に当たる41台分のスペースを確保しています。セキュリティも万全で、リモコンで開閉可能な電動シャッターを設置。大型サルーンやRV車が入庫できるスペースも用意しました。

レンタサイクル ※有料サービス

電動アシスト式自転車のレンタルを行っています。日常の買い物はもちろん、六本木や広尾、青山へのお出かけやサイクリングにもご利用いただけます。

サービス系

ベルボーイライフサービス

パークコート元麻布ヒルトップレジデンスでは、ベルボーイライフサービスを実施しています。サービス内容は以下の通りです。

電話健康相談

専門医療スタッフがいますので、電話による健康相談ができます。また、夜間や休日の医療機関や施設の紹介、ベビーシッターの案内まで、24時間365日に渡って健康をサポートします。

宅急便発送

送りたい荷物は、宅配ロッカーに入れておくだけで発送を代行します。忙しい時に便利ですし、重い荷物を運ぶ手間から解放されます。

ハウスクリーニング

エアコン、網戸、カーペットなどのクリーニングやフローリングのワックスがけなど、ハウスクリーニングを10%割引で行えます。他の家事代行サービスも割引料金で利用可能です。

クリーニング回収

クリーニングに出したい洗濯物は、宅配ロッカーに入れておくだけ。クリーニング店が回収してくれます。仕上がりの受け取りも宅配ロッカーで行うことが可能です。

レンタカー割引

通常料金の20%割引でレンタカーを利用できます。大人数での移動時にはミニバン、アウトドアの時はSUVなど、目的に合わせた車を使うことができます。

プラント・ポット宅配

花の苗を宅配するサービスを行っています。四季それぞれに多彩な花を用意していますので、バルコニーに季節感を演出することが可能です。

INSIDE THE ROOM 室内

使い勝手を重視しつつ
デザインにこだわった空間

室内設備

リビング・ダイニング

「開放」がマンションのコンセプトですので、まず何よりも広いことが最大の特徴です。天井は高く、窓は大きく、たっぷりと射し込んだ陽光がリビング・ダイニング全体に広がります。爽快さを際立たせるインテリアもまた、開放をテーマにしています。

キッチン

キッチン

※画像はイメージです。

機能を大事にしながらも、美しさにこだわったキッチンです。例えば水栓は洗練されたデザインと質感で親しまれている、ドイツのグローエ社製を採用。シングルレバーなので操作も簡単です。シャワーヘッドを伸ばすこともできるので、ジャンボサイズのシンクの全範囲まで水が届きます。

ドレッシングルーム、浴室、トイレ

広さはもちろんですが、細部のディテールにもこだわり、収納を充実させたドレッシングルームです。床は美観に優れ、メンテナンス性や抗菌作用のあるリノリウムを使用。快適性をより高めるために、オプションで床暖房を設置することができます。

浴室のこだわりも、まずは広いことです。天井高は最大で2210mmでゆとりのサイズを追求しています。快く心身をくつろがせるバスタイムを実現しています。

トイレも上質さと快適性へのこだわりは変わりません。全戸に手洗い専用のカウンターとTOTO製のウォシュレットを完備。大型プランでは、ゲスト用とプライベート用の2つのトイレを用意しています。

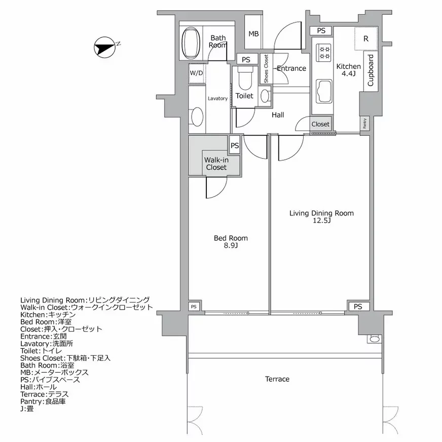
FLOOR PLAN 間取り図一例

開放にこだわった
空間づくりで快適生活

パークコート元麻布ヒルトップレジデンス 間取り図例
パークコート元麻布ヒルトップレジデンス 間取り図例

ACCESS アクセス

「麻布十番」駅チカ、便利なバスも

鉄道

麻布十番駅
麻布十番駅

パークコート元麻布ヒルトップレジデンスの最寄り駅は、徒歩4分の東京メトロ南北線・ 都営大江戸線「麻布十番」駅です。

ここからは都内の主要駅へのアクセスをご紹介します。

渋谷駅

都営大江戸線を利用し「青山一丁目」駅で半蔵門線に乗り換えます。トータル約14分で到着です。

銀座駅

東京メトロ南北線で「溜池山王」駅下車、銀座線に乗り換えてトータル約13分です。

東京駅

東京メトロ南北線利用「溜池山王」駅下車、銀座線に乗り換え、「赤坂見附」駅で東京メトロ丸ノ内線に乗り換えてトータル約15分です。

タクシー

タクシー

※画像はイメージです。

パークコート元麻布ヒルトップレジデンスから「六本木」駅まで約4分、「渋谷」駅まで約15分、「銀座」駅まで約16分で到着します。「東京」駅まで約18分、「品川」駅まで約15分、「新宿」駅まで約19分、「羽田空港」駅まで約27分となります。

道路の混雑状況や時間帯によって変動があります。

バス

バス

※画像はイメージです。

マンションから最寄りのバス停は「麻布十番駅前」です。ここから渋谷駅に向かう際は都営バスで約19分です。

空港

空港

※画像はイメージです。

出張や旅行の際に飛行機や新幹線を利用する場合、羽田空港や成田空港、新幹線の発着駅へのアクセスが気になるのではないでしょうか。

「麻布十番」駅周辺からは、都営大江戸線・東京メトロ南北線の地下鉄2路線のほか、都営バスなど複数の移動手段があります。そのなかでも比較的、所要時間が短く乗り換えも少ない利便性に優れたルートをご紹介します。

羽田空港へのルート

①電車でのアクセス

ルート1:都営大江戸線で「大門」駅下車。ここから都営浅草線エアポート快速特急を利用すると「羽田空港第1・第2ターミナル」駅まで乗り換える必要がなく、スムーズに到着します。トータルの所要時間は約37分です。

ルート2:都営バス「麻布十番駅前」バス停に乗車し、「泉岳寺前」バス停にて下車してください。ここから京急線「泉岳寺」駅から京急本線特急にて「羽田空港第1・第2ターミナル」駅に到着します。ルート2の場合、所要時間が約50分かかってしまう上、バスを利用するため、荷物が多いと乗り換えが大変です。ルート1が最適といえるでしょう。

②リムジンバスでのアクセス

マンションから徒歩13分、タクシーで6分のところにある「グランドハイアット東京」からリムジンバスが出ています。羽田空港までの所要時間は約40分です。

成田空港へのルート

①電車でのアクセス

ルート1:都営大江戸線を利用し「大門」駅で下車してください。そこから都営浅草線アクセス特急に乗り換えると、そこからは乗り換えなしで「成田空港」駅へ到着します。トータルで約1時間21分かかります。

ルート2:東京メトロ南北線を利用し「溜池山王」駅で下車してください。そこから東京メトロ銀座線で「上野」駅で下車し、「京成上野」駅まで徒歩約8分。そこから京成特急スカイライナーを利用し「成田空港」駅へ到着します。所要時間は約1時間27分となります。

ただ、ルート2の場合は乗り換え回数が多く、徒歩で移動する距離も長くなるため、荷物が多い場合などはルート1をおすすめします。

②リムジンバスでのアクセス

マンションから徒歩約16分、タクシーで4分のところにあるグランドハイアット東京がリムジンバスの発着所となっています。

リムジンバスでの所要時間は約2時間です。電車での移動に比べて所要時間は嵩みますが、時間に余裕のあるときや荷物を預けてゆったりした気分で空港へ向かいたい場合には、リムジンバスの利用がおすすめです。

新幹線発着駅

東京駅へのルート

電車でのアクセス

ルート1:東京メトロ南北線を利用し「溜池山王」駅で東京メトロ銀座線に乗り換え。さらに「赤坂見附」駅で東京メトロ丸ノ内線に乗り換え「東京」駅へ。トータル約18分です。

ルート2:都営大江戸線で「大門」駅下車、そこから徒歩で「浜松町」駅へ向かい、京浜東北線で「東京」駅へ。約17分で到着します。

どちらも所要時間はあまり変わりませんが、路線の遅延・運休などが起きた場合は臨機応変に最適なルートを選ぶようにしてください。

品川駅へのルート

新幹線は「品川駅」からも乗降可能です。「品川」駅へは都営大江戸線で「大門」駅にて下車後、都営浅草線に乗り換えるルートがおすすめ。所要時間は約15分です。

LIFE
INFORMATION 周辺の施設・店舗情報

麻布十番、六本木が生活圏

商業施設、商店街

麻布十番商店街(徒歩3分/230m)

麻布十番商店街
麻布十番商店街

パークコート元麻布ヒルトップレジデンスから徒歩4分のところにあるのが麻布十番商店街です。300年以上の歴史があり、老舗からおしゃれなカフェ、レストランまでさまざまな店舗が軒を連ねています。

毎年、8月の終わりには「麻布十番納涼まつり」を開催し、特設ステージでのライブやバラエティ豊かな飲食屋台が並びます。

六本木ヒルズ(徒歩9分/650m)

六本木ヒルズ
六本木ヒルズ

国内外のラグジュアリーブランド・ショップや飲食店はもちろん、美術館や映画館までが入居する複合施設です。建物は54階建てで、52階には都心を360度見渡せる展望台があります。ここから眺める夜景はまさに絶景。東京でも人気上位の展望スポットです。

成城石井 麻布十番店(徒歩3分/210m)

成城石井 麻布十番店
成城石井 麻布十番店

「麻布十番」駅から徒歩3分の高級スーパーです。野菜や果物、鮮魚、精肉はもちろんですが、オリジナルのお惣菜やスイーツも人気。24時間営業なので、夜中でも買い物することができるのも嬉しいポイントです。

ビオセボン 麻布十番店(徒歩1分/75m)

ビオセボン 麻布十番店
ビオセボン 麻布十番店

ビオセボンはオーガニック食品を扱うスーパーで、フランスで生まれました。その国内1号店が麻布十番店。有機野菜やフルーツ、オーガニックワインなどが揃っています。中でも世界中のオーガニックワインが揃うワインコーナーは、ビオセボンの中でも麻布十番店が最も広く、品揃えも豊富です。

自然、公園

パティオ十番(徒歩2分/130m)

パティオ十番
パティオ十番

麻布十番商店街を抜けたところにあるパティオ十番は、地元の人たちに親しまれている多目的広場です。ドラマやCMのロケ地として使用されることもあるため、目にしたことがある人も多いでしょう。道の起伏を利用した、階段状のスペースになっているので、買い物帰りなどのちょっとした休憩には最適なスペースです。また、周囲にはカフェもあるので、飲み物をテイクアウトして、リラックスした時間を楽しむことができます。

網代公園(徒歩2分/130m)

網代公園
網代公園

マンションから徒歩2分、麻布十番商店街からすぐの公園です。公園の北側にはローラーすべり台のほか、アスレチックなどの遊具が設置されていて、近隣の子どもたちで賑わっています。また、園内には桜があり、春には人気のお花見スポットでもあります。

暮らし、インフラ

マンションの周囲には、大韓民国大使館をはじめ、各国の大使館が点在しています。警護の警察官や警備員が24時間体制で厳重な警備を行っているため、治安の良さはこのエリアの大きな特徴といえるでしょう。

麻布地区総合支所(徒歩10分/750m)

麻布地区総合支所
麻布地区総合支所

マンションから徒歩10分のところにあるのが、麻布地区総合支所です。各種届出や住民票、戸籍謄本の交付に便利です。

さわやか信用金庫麻布十番出張所
(徒歩3分/190m)

さわやか信用金庫麻布十番出張所
さわやか信用金庫麻布十番出張所

マンションの最寄りの金融機関がさわやか信用金庫麻布十番出張所です。麻布十番商店街の中にあるので、買い物帰りに立ち寄るのも便利です。

麻布十番郵便局(徒歩3分/180m)

麻布十番商店街の中にある郵便局です。買い物のついでに立ち寄ることが可能です。

幼稚園、保育園、学校

デイジー保育園 麻布十番(徒歩4分/270m)

デイジー保育園 麻布十番
デイジー保育園 麻布十番

港区立南山小学校(徒歩7分/500m)

港区立南山小学校
港区立南山小学校

港区立六本木中学校(徒歩10分/740m)

港区立六本木中学校
港区立六本木中学校

まとめ

東京で暮らす歓びを
存分に味わう

パークコート元麻布ヒルトップレジデンス外観
パークコート元麻布ヒルトップレジデンス外観

元麻布の高台に位置するパークコート元麻布ヒルトップレジデンスは、開放感にあふれ居住することに歓びをもたらしてくれます。麻布十番にも近く、都会ならではの利便性は抜群。その一方で、大規模な公園などもあるため、東京でありながら自然と触れ合うことができる贅沢な気分で日々を過ごせるでしょう。

パークコート元麻布
ヒルトップレジデンス

駅徒歩 不動産の表示に関する公正競争規約の改正(2022年9月1日)により、交通利便情報が販売中のものと異なる場合がございます。

都営大江戸線
「麻布十番」駅 徒歩4分

築年月

2001年3月

総戸数

43戸

階数

地上8階 地下1階