三菱地所 パークハウス神宮外苑 Concept 明治通りから一歩奥に入った神宮前二丁目、表面に加工を施していない自然な風合いを生かした外壁タイル、限りなくシンプルでありながらアイデンティティを主張するフォルム

パークハウス神宮外苑

「原宿」駅 徒歩10分

90㎡台~130㎡台、2LDK~4LDK

地上5階、総戸数29戸

2025.05.23 公開

LOCATION ロケーション

気ままに散策するだけで
新しい発見がある
神宮前エリア

「原宿」駅
「原宿」駅

パークハウス神宮外苑があるのは、常に時代をリードし、最先端のアートやファッションを発信する神宮前エリア。ファッションはもちろん、アートから食文化に至るまで、その魅力は語りつくせません。JR山手線「原宿」駅、東京メトロ千代田線、副都心線「明治神宮前<原宿>」駅まで徒歩10分。2008年6月には、徒歩8分の場所に東京メトロ副都心線「北参道」駅も誕生し、さらに便利になりました。3路線を利用可能で、「渋谷」駅、「新宿」駅、「池袋」駅、「品川」駅など主要駅に乗り換えなしでアクセスでき、交通の利便性にも優れています。

表参道ヒルズ
表参道ヒルズ

マンションからすぐの場所には、昔からカルチャーの発信地としておしゃれな人々が集う「青山キラー通り商店会」や、コンテンポラリーアートが楽しめる「ワタリウム美術館」があり、原宿方面に進めば、人気ブランドが揃う「オモカド」や「ハラカド」、「表参道ヒルズ」といった商業施設が立ち並ぶ日本有数のショッピングエリアが広がります。マンション周辺を気ままに散策するだけで、きっと心がワクワク弾むことでしょう。そんな個性あふれるこのエリアならではの感性は、マンションの美意識にも取り入れられています。

代々木公園
代々木公園

にぎやかなイメージがある神宮前エリアですが、一本通りを入れば戸建て住宅やマンションも多く、静かで奥深い味わいがあるのも魅力です。スーパーやクリニックなど、日常生活に必要な環境も整っています。マンションの東側には「明治神宮外苑」や「都立明治公園」、西側には「明治神宮」や「代々木公園」があり、都心のオアシスも徒歩圏内。スタイリッシュでありながら、同時に落ち着いた住環境も満喫できます。流行に敏感でハイセンスな人々が集まる刺激的な動のエッセンスと、ゆったりと大人な時間が流れる静のエッセンスが共存し、自分らしい都心生活を送りたいという人におすすめのロケーションです。

FEATURES 建物の特徴

10年、20年先も
色褪せない美しさを
追求した住まい

パークハウス神宮外苑 敷地配置図
パークハウス神宮外苑 敷地配置図

パークハウス神宮外苑は、1999年に竣工したマンションです。施主は三菱地所で、竹中工務店が設計・施工を担当。ものづくりの原点に戻り、細部にいたるまでこだわりを追求した「Next Concept Park House」を目指しています。

コンセプト・デザイン

パークハウス神宮外苑 外観
パークハウス神宮外苑 外観

単なる居住空間だけでなく、美しい価値観そのものを提案する「Mode Of Living」をコンセプトに、「次世代型パークハウス」として誕生したパークハウス神宮外苑。外観デザインは「ニュートラル」をテーマに、トラディショナルでありモダン、和風でも洋風でもあり、新鮮なのにどこか懐かしい。そんな様々なスタイルを融合させた、新しい美しさの実現を追求しています。

また、素材本来が持つ美しさにもこだわり、外壁のタイルは、自然の風合いを生かすために、あえて表面に加工を施していません。筐体には「100年コンクリート」(日本建築学会により「構造体の大規模修繕が予想できる期間としておよそ100年」と定められた高強度コンクリート)を採用。建物本体の耐久性にも配慮しています。

建物構造

パークハウス神宮外苑は、地下1階、地上5階建てのRC構造となっています。

セキュリティ

24時間有人管理

24時間有人管理体制で、住まいの安全にも配慮しています。

オートロック

共用エントランスは、オートロックシステムを採用しています。

COMMON AREA 共用部

暮らしをより快適に
サポートする
施設や
サービス

パークハウス神宮外苑には、落ち着いた雰囲気で迎え入れる共有施設や、日々の暮らしをさらに快適にするコンシェルジュサービスなどが揃っています。

共用施設

中庭

シンボルツリーが植えられた中庭は、潤いの空間を演出します。

ラウンジスペース

ガラス張りの広々としたラウンジスペース。窓の外には中庭が広がります。

エントランスポーチ

パークハウス神宮外苑 エントランス
パークハウス神宮外苑 エントランス

落ち着きのある雰囲気で迎えてくれるエントランスポーチを備えています。

エントランスホール

エントランスホールは、ガラス貼りで自然の光を取り込み、開放感のある空間です。

サービス

コンシェルジュサービス

コンシェルジュサービス

※画像はイメージです。

上質な暮らしをサポートするコンシェルジュサービスにより、居住者様のご要望に幅広く対応します。

宅配ボックス

エントランスホールに宅配ボックスを設置。24時間いつでも荷物を受け取ることができます。

駐車場

敷地内の地下に、全戸分以上の屋内パーキングを確保しています。

トランクルーム

地下1階には居住者様が利用可能なトランクルームをご用意。大型荷物の収納に便利です。

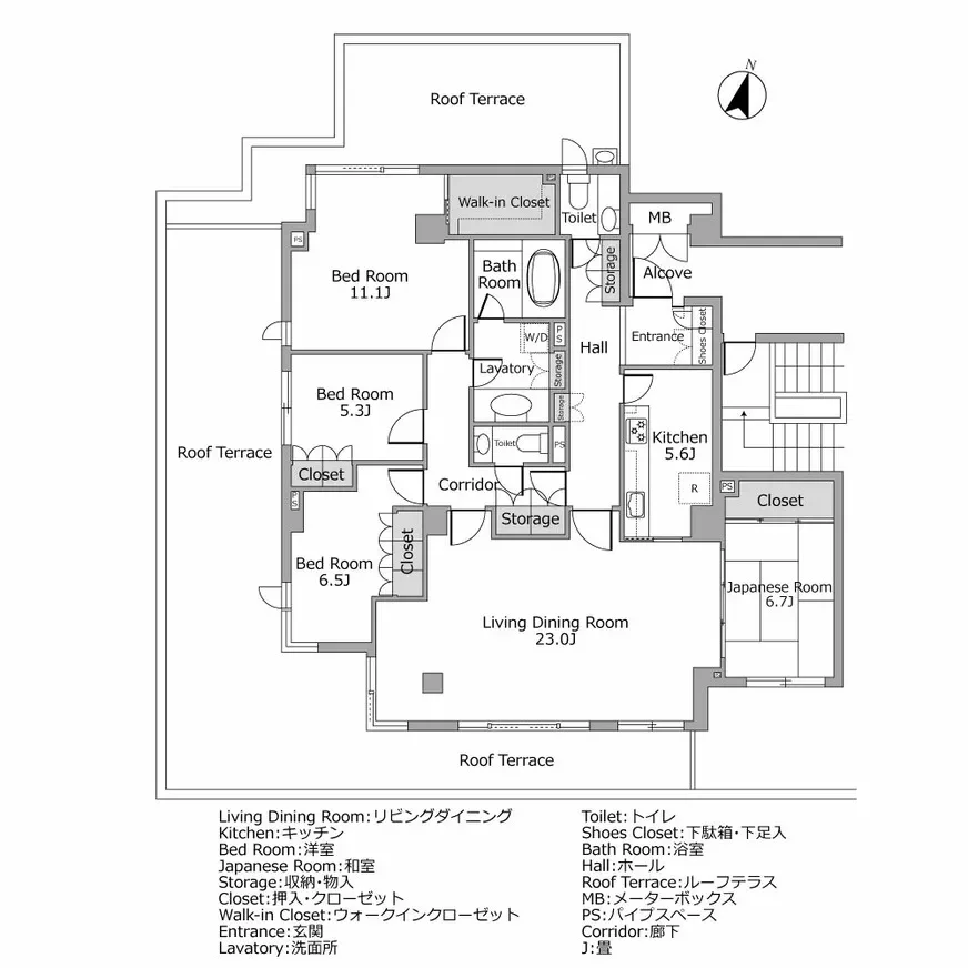
FLOOR PLAN 間取り図一例

2LDK~4LDKの
ゆとりある間取りで
ファミリーに最適

パークハウス神宮外苑 間取り図例
パークハウス神宮外苑 間取り図例
パークハウス神宮外苑 間取り図例
パークハウス神宮外苑 間取り図例

総戸数29戸のパークハウス神宮外苑。専有面積は90㎡台~130㎡台、間取りは2LDK~4LDKでゆとりあるプランが特徴のファミリー向けマンションです。

INSIDE THE ROOM 室内

単なる居住空間を超えた、
美しいスタイル

ものづくりの原点に戻り、マンションをデザインする。このコンセプトは空間設計にも生かされています。余計なデコレーションを施さず、限りなくシンプルに空間をデザイン。厳選された素材を用いた室内空間は、広さと機能性を重視し、シンプルに構成することで、住まう方の感性で自由に心地よく過ごせる住まいに仕上がっています。

室内仕様

リビング・ダイニング

床暖房

※画像はイメージです。

空間全体をアートとしてとらえたリビング・ダイニングは、明るく柔らかなモダンテイストに仕上がっています。床暖房や天井埋め込み型エアコンも標準装備し、デザイン性だけではなく機能性にも配慮しています。

  • 床暖房
  • 24時間換気システム
  • 天井埋込型エアコン
  • ピアノ塗装を施したスーパーホワイトの扉

ベッドルーム

ウォークインクローゼット

※画像はイメージです。

プライベートな寛ぎを満喫するベッドルームは、二段折り上げ天井、大型のコーナーウィンドウを採用し、開放感を高めています。衣類もたっぷり収納できる、ワイドなウォークインクローゼットも備えています。

バスルーム

ガラスや御影石などを効果的に用いたバスルームは、透明感がありながら存在感もあります。

  • ドイツ・バンベルガー製のホーロー浴槽
  • 天然石のカウンタートップ
  • 床暖房
  • 天然大理石を採用したパブリック用トイレ

キッチン

キッチン

※画像はイメージです。

キッチンは、メーカーの生産ルートに頼ることなく、吟味した部材を組み合わせることで、料理好きの方に喜んでいただける厨房を目指しています。

  • ステンレスのカウンタートップ
  • ドイツ製食器洗浄機
  • 日本製ビルトインコンロ

エントランス

住む方、訪れる方を瞬時に柔らかく迎え入れる各居室のエントランスは、シンプルな上質感の中にも、温かい包容力があるデザインに仕上げています。インテリアとしての完成度が高く、たっぷり収納できるワイドな下足入に加え、シューズクローゼットも備え、収納力を高めています。

ACCESS アクセス

都内を縦断しやすく
埼玉方面や
神奈川方面にも
気軽に行ける

パークハウス神宮外苑の最寄り駅は、JR山手線「原宿」駅で、徒歩10分。同じく徒歩10分には、東京メトロ千代田線、副都心線「明治神宮前<原宿>」駅もあります。「渋谷」駅、「新宿」駅、「表参道」駅、「赤坂」駅、「日比谷」駅など、主要駅への移動がスムーズです。

副都心線は、東武東上線、西武有楽町線・池袋線、東急東横線・横浜高速鉄道みなとみらい線と相互直通運転しているので、東京都内だけでなく、埼玉県方面や神奈川県方面にも気軽にアクセスできる環境です。また、2008年6月には徒歩8分の場所に東京メトロ副都心線「北参道」駅もでき、さらに便利になりました。「原宿」駅から都内の主要スポットへは、以下の所要時間で到着できます。

掲載の所要分数は日中平常時のもので、乗り換え・待ち時間等は含みません。
また時間帯により異なる場合があります。

鉄道

「渋谷」駅

「渋谷」駅
「渋谷」駅

JR山手線利用で、所要時間は約2分です。

「新宿」駅

「新宿」駅
「新宿」駅

JR山手線利用で、所要時間は約5分です。

「恵比寿」駅

「恵比寿」駅
「恵比寿」駅

JR山手線利用で、所要時間は約5分です。

「目黒」駅

「目黒」駅
「目黒」駅

JR山手線利用で、所要時間は約7分です。

「池袋」駅

「池袋」駅
「池袋」駅

JR山手線利用で、所要時間は約13分です。

タクシー

タクシー

※画像はイメージです。

行き先 所要時間
「明治神宮前<原宿>」駅 約3分
「新宿三丁目」駅 約3分
「渋谷」駅 約5分
「中目黒」駅 約14分
「池袋」駅 約14分

バス

バス

※画像はイメージです。

マンションから徒歩2分のところにある「渋谷神宮前郵便局」バス停から、神宮前・千駄ヶ谷ルートを運行するハチ公バスを利用できます。渋谷、原宿、表参道、千駄ヶ谷、代々木を経由しているので、近隣へのお出かけの際に便利です。

また、徒歩3分のところにある「千駄ヶ谷小学校前」バス停からは都営バスが利用可能。「渋谷駅東口」バス停、「表参道」バス停、「東新宿駅前」バス停、「池袋駅東口」バス停などを循環する都営バス池86系統と池86出入系統、「表参道」バス停、「渋谷駅東口」バス停などに留まる渋88出入系統が運行しています。

空港

空港

※画像はイメージです。

羽田空港へのルート

①電車

JR山手線利用で「品川」駅へ行き、京急本線特急に乗り換えます。所要時間は約47分です。

②タクシー

所要時間は約22分です。

③リムジンバス

パークハウス神宮外苑から徒歩26分のところにある「渋谷駅[渋谷フクラス]」から、羽田空港行きのリムジンバスが利用できます。所要時間は約34分です。

成田空港へのルート

①電車

JR山手線利用で「日暮里」駅へ行き、京成スカイライナーに乗り換えます。所要時間は約97分です。

②タクシー

所要時間は、約60分です。

③リムジンバス

パークハウス神宮外苑から徒歩26分のところにある「渋谷駅[渋谷フクラス]」から、成田空港行きのリムジンバスが利用できます。所要時間は約87分です。

新幹線発着駅

「東京」駅へのアクセス

JR山手線利用で直通。所要時間は約28分です。
タクシーなどを使った車移動の場合は、約16分です。

「品川」駅へのアクセス

JR山手線利用で直通。所要時間は約17分です。
タクシーなどを使った車移動の場合は、約22分です。

LIFE
INFORMATION 周辺の施設・店舗情報

流行の最先端を知れる
スポットから
緑豊かな公園まで

マンションから徒歩圏内には、「オモカド」や「表参道ヒルズ」といった流行の最先端が集まる複合施設が集中。都心のイメージがありながら、「代々木公園」や「明治神宮外苑」といった緑豊かな公園にもほど近く、思い思いの時間を過ごせる環境です。

商業施設、商店街

まいばすけっと 神宮前2丁目商店街店(徒歩3分/約210m)

まいばすけっと 神宮前2丁目商店街店
まいばすけっと 神宮前2丁目商店街店

生鮮品、惣菜、冷凍食品などを扱う食品スーパー。イオンのプライベートブランド「トップバリュ」の商品も取り扱いがあり、普段のお買い物に便利なスポットです。

青山キラー通り商店会(徒歩7分/約500m)

青山キラー通り商店会
青山キラー通り商店会

青山と新宿を繋ぐ、外苑西通りを中心にした広いエリアに跨る商店会。有名企業や人気ショップ、美術館、カフェ、オフィスなどが立ち並ぶ、おしゃれな大人たちが集まるスポットです。それでいて、表参道の隣とは思えないほど、ほのぼのとした空気も流れているのも魅力。一本路地を入れば、原宿教会や青山熊野神社、龍厳禅寺といった名所もあります。

東急プラザ表参道「オモカド」(徒歩9分/約650m)

東急プラザ表参道「オモカド」
東急プラザ表参道「オモカド」

表参道と明治通りが交差する日本のファッション・カルチャーの中心地にあり、国内外の人気ブランドが揃う商業施設。ファッション、雑貨、アクセサリー、コスメなど、個性豊かなショップが立ち並び、レストランやカフェも充実しています。6階屋上には癒しの空間が広がる庭園「おもはらの森」も。明治神宮交差点を挟んで対面には東急プラザ原宿「ハラカド」もあります。

IKEA原宿(徒歩11分/約850m)

IKEA原宿
IKEA原宿

高品質でデザイン性、機能性に優れたお手頃価格の家具やインテリアが揃うIKEAの都心型店舗。欲しい商品をオンラインまたは店舗で注文すると、その時に店舗にない商品でも、こちらの店舗で受け取ることができるのも便利です。また、焼きたてのパンや食品、ドリンクが揃う「スウェーデンコンビニ」も備えています。

表参道ヒルズ(徒歩13分/約1,000m)

表参道ヒルズ
表参道ヒルズ

旧同潤会青山アパートの建替事業として2006年に誕生し、店舗と住戸で構成された複合施設。ファッション、雑貨、高級ジュエリー、コスメ、ライフスタイルなど幅広いショップやカフェ、レストランが立ち並びます。本館地下3階のスペースオーで開催される、バラエティに富んだイベントも見逃せません。

自然、公園

原宿外苑緑道(徒歩7分/約550m)

原宿外苑緑道
原宿外苑緑道

明治通りから1本入ったところにある緑道。周囲には建物が多く一見分かりづらいところにありますが、心地よい風が吹き抜ける自然溢れる空間で、人工の池もあります。原宿外苑中学校方面に抜けることができ、ちょっとしたお散歩に最適です。

都立明治公園(徒歩9分/約700m)

都立明治公園
都立明治公園

国立競技場に隣接する都市型の公園は、都市を彩るオアシスとして、自然と人が対話し共存するサステナブルなプロジェクトとして2023年に開園。園内中央にある天然芝の広場をはじめとする3つの広場と、落葉樹約500本、常緑樹150本を植樹し、100年の杜を目指す「誇りの杜」があり、豊かな自然を肌で感じながら、のんびりと過ごすことができるスポットです。園内にはカフェやフードホール、ショップ、都市型のスパ施設もあります。

明治神宮(徒歩13分/約1,000m)

明治神宮
明治神宮

明治天皇と昭憲皇太后を祀る神社。およそ70万平方メートルの広大な鎮守の杜は、明治神宮創建にあたって全国から献木された約10万本の木を植栽した人工林です。境内には花菖蒲が植えられた御苑、重要文化財の宝物殿、明治神宮ミュージアムなど見どころも多数。芝地やカフェなどもあり、参拝後にのんびりとくつろぐことができます。新年には国内外から多くの参拝客が訪れる、原宿エリアの代表的な観光スポットでもあります。

代々木公園(徒歩14分/約1,100m)

代々木公園
代々木公園

都心にありながら広大な緑地を有し、都民の憩いの場となっている公園。噴水池を望む中央広場をはじめ、ドッグランやサイクリングコース、バードサンクチュアリなど多くの施設が揃い、休日を過ごすのにぴったりです。敷地の南側エリアには陸上競技場やサッカー場などスポーツ施設のほか、野外ステージやイベント広場も備え、さまざまなイベントが開催されます。

暮らし、インフラ

SCC千駄ヶ谷コミュニティセンター(徒歩5分/約350m)

SCC千駄ヶ谷コミュニティセンター
SCC千駄ヶ谷コミュニティセンター

渋谷区の地域コミュニティ、子育てなどの幅広い分野で区民活動の拠点となる複合施設。建物の設計は隈研吾建築都市設計デザインが手掛け、会議室やサークルホールを備え、認定こども園も施設内に設置しています。パンとクラフトビールが楽しめるカフェが併設されており、気軽にふらっと立ち寄ることができます。

渋谷区立中央図書館(徒歩7分/約550m)

渋谷区立中央図書館
渋谷区立中央図書館

渋谷区立図書館の中心的存在となる図書館。インターネット、データベースで調べ物ができるセルフレファレンスコーナーもあり、身近な知的空間として活用できます。一般書約20万6,000冊、児童書約2万8,000冊に加え、外国語図書約1万冊なども蔵書。原宿という土地柄、ファッションコーナーを設けているのもユニークです。5階には「はらじゅく子育てひろば」があります。

ワタリウム美術館(徒歩9分/約650m)

ワタリウム美術館
ワタリウム美術館

国際的なコンテンポラリーアートを多数展示する私設美術館。現代アートを中心にさまざまなジャンルの展示会を開催しています。地上5階建てで、地下1階と1階にあるミュージアムショップがあり、過去の展示会のカタログのほか、ポストカードなどのステーショナリー、芸術書などが販売されています。

渋谷区神宮前区民施設(渋谷区役所神宮前出張所)(徒歩12分/約900m)

渋谷区神宮前区民施設
渋谷区神宮前区民施設

転出入関連の届出や証明書の発行、各種税金の納付、子育てに関する申請などを窓口で行えます。近隣には交流室や料理室、リラクゼーションルーム、浴室などを備えた「地域交流センター神宮前」もあります。

幼稚園、保育園、学校

原宿こども園(徒歩5分/約350m)

原宿こども園
原宿こども園

渋谷区立千駄谷幼稚園(千駄谷なかよし園)(徒歩4分/約250m)

渋谷区立千駄谷幼稚園
渋谷区立千駄谷幼稚園

渋谷区立千駄谷小学校(徒歩4分/約270m)

渋谷区立千駄谷小学校
渋谷区立千駄谷小学校

渋谷区立原宿外苑中学校(徒歩5分/約400m)

渋谷区立原宿外苑中学校
渋谷区立原宿外苑中学校

イベント

原宿表参道元氣祭 スーパーよさこい

高知県のよさこい祭りの伝統を守りながら、明治神宮奉納祭りとして2001年から開催している夏のお祭り。首都圏最大級のよさこい祭りとして有名で、明治神宮や代々木公園などの各会場で個性豊かで熱気に満ちたよさこい鳴子踊りが楽しめ、毎回大盛況となっています。

神宮外苑花火大会

明治神宮外苑を会場に行われる花火大会。都内で唯一、山手線内で開催されるコンサート付の都市型花火大会で、東京の夏の風物詩となっています。さまざまな趣向が凝らされた花火と共に、豪華アーティストたちによるライブを楽しめるのが醍醐味です。

まとめ

自由な発想で暮らせる
シンプルで
美しい住まい

パークハウス神宮外苑は、流行の最先端である神宮前エリアにあるからこそ、昔も今も、これから先も色褪せることなく変わらない美しさにこだわっています。自然な風合いを持つ素材本来が持つ美しさを活かしたシンプルでいてアイデンティティを主張する外観。カーペットから建具に至るまで、選び抜かれたディテールが美しい相乗効果を生み出す室内仕様。内外の隅々までこだわりを追求した空間設計で満たされたパークハウス神宮外苑は、自分らしく人生を楽しみたいという人にふさわしいマンションです。

パークハウス神宮外苑

駅徒歩 不動産の表示に関する公正競争規約の改正(2022年9月1日)により、交通利便情報が販売中のものと異なる場合がございます。

山手線「原宿」駅 徒歩10分

築年月

1999年10月

総戸数

29戸

階数

地上5階 地下1階