三菱地所レジデンス ザ・パークハウス麹町テラス Concept 麹町駅から麹町学園通りに入り学校の角を曲がった左手、ホワイト系のマーブル調タイルを基調に、彫りの深いグリッドで構成されたファサード、透明感がありながらも重厚な佇まい

ザ・パークハウス麹町テラス

「麹町」駅 徒歩3分「半蔵門」駅、「四ツ谷」駅徒歩圏
3駅6路線利用可

全戸角住戸プラン

地上9階、総戸数35戸

2025.06.06 公開

LOCATION ロケーション

都心の利便性と
自然が調和する住環境

「ザ・パークハウス麹町テラス」は、東京都千代田区麹町に位置するマンションで、都心の利便性と落ち着いた住環境を兼ね備えた立地が魅力です。最寄駅の東京メトロ有楽町線「麹町」駅までは徒歩3分、半蔵門線「半蔵門」駅やJR中央線、JR総武線、東京メトロ南北線・丸ノ内線が利用できる「四ツ谷」駅も徒歩圏内にあり、3駅6路線が利用可能。主要エリアへの移動がしやすく、通勤や日常の利便性に優れています。

ココスナカムラ 麹町店
ココスナカムラ 麹町店

また、新宿通りから一本入った閑静なエリアにあり、落ち着いた住環境が整っています。徒歩圏内にはスーパーマーケットや飲食店が充実しており、日常の買い物や外食にも便利です。

皇居東御苑
皇居東御苑

さらに、皇居が近く、四季折々の自然を楽しみながらランニングや散策ができるなど、都心にいながら豊かな自然を感じられるのも魅力です。

周辺には歴史的な建築物や大使館などもあり、治安の良さにも定評があります。名門校や私学も多く、教育環境も充実しているため、子育て世帯にも適したエリアです。

FEATURES 建物の特徴

上質なデザインと
安心が共存する住まい

ザ・パークハウス麹町テラス 外観
ザ・パークハウス麹町テラス 外観
ザ・パークハウス麹町テラス アプローチ
ザ・パークハウス麹町テラス アプローチ

「ザ・パークハウス麹町テラス」は、鉄筋コンクリート(RC)造。「清廉・洗練」をコンセプトにした美しいデザインが魅力のレジデンスです。

コンセプト・デザイン

外観には、光の反射が清々しい、明るいマーブル調のタイルを採用。ホワイトを基調としたシンプルでスタイリッシュなデザインが、洗練された都会的な印象を演出します。

また、直線的なフォルムを活かした端正なデザインに、バルコニー部分のガラス手すりを組み合わせることで、軽やかで開放的なファサードを実現。格子状のデザインが建物全体にリズムと奥行きをもたらし、周囲の街並みにも調和する品格ある佇まいを生み出しています。

細部にまでこだわった設計が、住まう人に洗練された美しさと落ち着きのある空間を提供します。

ザ・パークハウス麹町テラス 敷地配置図
ザ・パークハウス麹町テラス 敷地配置図

敷地内にはイロハモミジやシラカシなど、四季折々の表情を楽しめる植栽を配置。都心にいながら自然を感じられる環境が整えられています。

ザ・パークハウス麹町テラス エントランス
ザ・パークハウス麹町テラス エントランス

エントランスから住戸に至るアプローチには内廊下設計を採用し、外部からの視線を遮ることでプライバシーと防犯性を確保。さらに、全35戸が角住戸設計となっており、開放感あふれる空間づくりと独立性の高さを両立しています。

セキュリティ

オートロック

エントランスにはオートロックシステムを採用し、居住者以外の無断入館を防ぐ設計となっています。住戸内から訪問者を確認したうえで解錠できるため、不審者の侵入を抑制し、安全性を高めています。

TVモニター付きインターホン

来訪者の顔を映像で確認できるため、音声だけでは分からない不審者の侵入を防ぐ効果があります。

防犯カメラ

共用部には防犯カメラを設置し、録画機能によって防犯対策を強化。不審者の侵入抑止や万が一の際の映像確認が可能です。

COMMON AREA 共用部

心地よさと利便性を備えた
共用空間

エントランスから一歩足を踏み入れるだけで、上質な暮らしを実感できる空間が広がります。

共用施設

エントランス

エントランスには、存在感のある大きな庇(ひさし)を設置。雨の日も快適に出入りできるだけでなく、建物の顔としての重厚感と品格を演出します。ゆったりとした造りが、住まう人や訪れるゲストを温かく迎え入れ、上質な暮らしの始まりを感じさせます。

エントランスホール

エントランスに足を踏み入れると、タイルに映り込む柔らかな光が、美しい陰影を生み出す空間が広がります。時間帯や季節によって表情を変えるその輝きが、上質な雰囲気を演出。光と素材が織りなす洗練された空間が、住まう人や訪れる人を優雅に迎え入れます。

駐車場・駐輪場

敷地内に、平置駐車場1台と身障者用平置駐車場1台をご用意。さらに、自転車置場には平置タイプと2段ラック式を設置しています。

宅配ボックス

3階のメールコーナーには宅配ボックスを設置し、不在時でもスムーズに荷物を受け取れる環境を整えています。さらに、各階にも戸別宅配ボックスを設置し、自宅近くで荷物を受け取れる利便性を確保。外出が多い方でも安心して利用でき、日々の暮らしを快適にサポートします。

トランクルーム

全戸分のトランクルームを標準装備し、収納スペースを確保。季節用品やアウトドアグッズ、スーツケースなどをすっきりと収納できるため、住戸内を広々と使えます。

ペット足洗い場

散歩帰りのペットの足をきれいにできるペット足洗い場を設置。共用部分や住戸内を清潔に保ち、大切なペットと快適に暮らせる環境です。雨の日や泥が付きやすい場所での散歩後も安心して利用でき、ペットオーナーにとって便利な設備です。

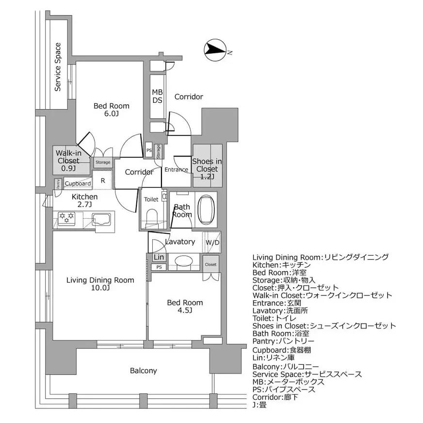
FLOOR PLAN 間取り図一例

収納充実&開放的な住空間

ザ・パークハウス麹町テラス 間取り図例
ザ・パークハウス麹町テラス 間取り図例
ザ・パークハウス麹町テラス 間取り図例
ザ・パークハウス麹町テラス 間取り図例

INSIDE THE ROOM 室内

快適な暮らしを支える
収納と設備

使いやすさと美しさを兼ね備えた収納と設備が、住まう人の毎日をより快適に整えます。

室内仕様

ウォークインクローゼット

ウォークインクローゼット

※画像はイメージです。

ウォークインクローゼットを完備し、衣類やバッグをすっきりと収納可能。シーズンごとの衣替えもスムーズに行え、居住空間を快適に保てます。使い勝手の良い収納設計が、日々の暮らしをスマートにサポートします。

シューズインクローゼット

玄関にはシューズインクローゼットを設置し、靴をすっきりと収納。靴の種類ごとに整理しやすく、玄関まわりを常に整った状態に保てます。スマートな収納設計で、出入りの動線もスムーズに。

システムキッチン

キッチン

※画像はイメージです。

機能性とデザイン性を兼ね備えたシステムキッチンを採用。キャビネットや作業スペースを確保し、調理のしやすさを向上させています。シンプルで洗練されたデザインが、日々の食卓を美しく彩ります。

ACCESS アクセス

都心を自在に使いこなす
優れた交通アクセス

「ザ・パークハウス麹町テラス」は、東京メトロ有楽町線「麹町」駅と 東京メトロ半蔵門線「半蔵門」駅 が最寄駅です。

都心の主要エリアへのアクセスがスムーズで、ビジネスやプライベートの移動も快適。丸の内・大手町エリアをはじめ、新宿や渋谷、銀座方面へも短時間でアクセスできるため、通勤・通学にも便利な立地です。

また、複数路線を利用できることで、交通の選択肢が広がります。

こちらでは、「麹町」駅・「半蔵門」駅から、主要エリアへの所要時間を紹介いたします。

掲載の所要分数は日中平常時のもので、乗り換え・待ち時間等は含みません。
また時間帯により異なる場合があります。

鉄道

「麹町」駅
「麹町」駅

「麹町」駅からのアクセス

  • 「市ヶ谷」駅
    東京メトロ有楽町線「麹町」駅から、「市ヶ谷」駅まで直通で約1分です。
  • 「永田町」駅
    東京メトロ有楽町線「麹町」駅から、「永田町」駅まで直通で約2分です。
  • 「新宿」駅
    東京メトロ有楽町線「麹町」駅から、「市ヶ谷」駅で都営新宿線に乗り換えます。「新宿」駅まで約13分です。
  • 「渋谷」駅
    東京メトロ有楽町線「麹町」駅から、「永田町」駅で東京メトロ半蔵門線に乗り換えます。「渋谷」駅まで約15分です。
  • 「神田」駅
    東京メトロ有楽町線「麹町」駅から、「有楽町」駅でJR山手線に乗り換えます。「神田」駅まで約9分です。

「半蔵門」駅からのアクセス

  • 「大手町」駅
    東京メトロ半蔵門線「半蔵門」駅から、「大手町」駅まで直通で約7分です。
  • 「池袋」駅
    東京メトロ半蔵門線「半蔵門」駅から、「永田町」駅で東京メトロ有楽町線に乗り換えます。「池袋」駅まで約16分です。
  • 「横浜」駅
    東京メトロ半蔵門線「半蔵門」駅から、「渋谷」駅で東急東横線に乗り換えます。「横浜」駅まで約36分です。

タクシー

タクシー

※画像はイメージです。

行き先 所要時間
「市ヶ谷」駅 約7分
「永田町」駅 約6分
「新宿」駅 約13分
「渋谷」駅 約15分

所要時間は道路事情により、実際と異なる場合があります。

バス

バス

※画像はイメージです。

マンションの近くにある「麹町二丁目」バス停は、「四谷駅前」バス停、「千代田区役所」バス停などを循環する千代田区コミュニティバス「風ぐるま」が運行しています。また、「東京駅丸の内北口」行きや「新宿駅西口」行きの都営バスも利用でき、都内各所へのアクセスが便利です。

空港

空港

※画像はイメージです。

羽田空港へのルート

①電車

東京メトロ有楽町線で「有楽町」駅へ行き、徒歩で「日比谷」駅へ移動。都営三田線で「三田」駅へ向かい、都営浅草線特急に乗り換えれば、約34分で到着します。

②タクシー

所要時間は約22分です。

成田空港へのルート

①電車

東京メトロ有楽町線で「有楽町」駅へ。「東京」駅でJR総武本線特急成田エクスプレスに乗り換えれば、約61分で到着します。

②タクシー

所要時間は約60分です。

③リムジンバス

ザ・パークハウス麹町テラスから徒歩約9分のところにある「東京ガーデンテラス紀尾井町」から、成田空港行きのリムジンバスが利用できます。所要時間は約1時間53分です。

新幹線発着駅

「東京」駅へのアクセス

東京メトロ有楽町線利用「有楽町」駅で下車。そこから歩いてアクセスします。所要時間は約10分です。
タクシーなどを使った車移動の場合は、約9分です。

「品川」駅へのアクセス

東京メトロ有楽町線利用「有楽町」駅で、JR山手線に乗り換えてアクセスします。所要時間は約16分です。
タクシーなどを使った車移動の場合は、約24分です。

LIFE
INFORMATION 周辺の施設・店舗情報

暮らしやすさを支える
便利な環境

徒歩圏内にはスーパーマーケットやドラッグストア、公園、公共施設などがそろい、快適な生活をサポート。買い物や手続きがスムーズにできるだけでなく、緑豊かな公園でリフレッシュできる環境も整っています。さらに、幼稚園や学校も近くにあり、子育て世帯にも安心の立地です。

商業施設、商店街

ココスナカムラ 麹町店(徒歩3分/約210m)

ココスナカムラ 麹町店
ココスナカムラ 麹町店

マンションから徒歩3分のところにあるスーパーマーケットで、日々の食材や日用品の買い物に便利です。仕事帰りに立ち寄るのはもちろん、朝や昼の買い物にも使いやすい立地。生鮮食品が充実しており、自炊派の方にもおすすめです。

ココカラファイン麹町店(徒歩4分/約290m)

ココカラファイン麹町店
ココカラファイン麹町店

医薬品や化粧品、日用品がそろっています。風邪をひいたときや、生活必需品の購入に便利です。

自然、公園

番町の森(徒歩7分/約500m)

番町の森
番町の森

芝生広場やベンチが整備されており、ちょっとした散歩や気分転換に適しています。四季折々の花や木々が楽しめるほか、災害時の一時避難場所として指定されています。

芝生の上でくつろいだり、子どもと一緒に遊んだりと、幅広い世代が思い思いの時間を過ごせる空間です。都会の喧騒を忘れ、自然を身近に感じながら穏やかなひとときを楽しめます。

清水谷公園(徒歩7分/約550m)

清水谷公園
清水谷公園

心字池や大久保利通哀悼碑がある自然と歴史が息づく公園です。園内には四季折々の木々が広がり、春の桜や秋の紅葉が楽しめます。

暮らし、インフラ

千代田区立四番町図書館(徒歩12分/約900m)

千代田区立四番町図書館
千代田区立四番町図書館

マンションから徒歩約12分でアクセスできる図書館。「児童室」と呼ばれる2階は、児童書専門のフロアとなっています。

千代田区麹町出張所・麹町区民館
(徒歩3分/約220m)

千代田区麹町出張所・麹町区民館
千代田区麹町出張所・麹町区民館

住民票の取得や各種手続きができる出張所と、地域の交流スペースとして利用できる区民館が併設されています。

幼稚園、保育園、学校

千代田区立麹町幼稚園、麹町小学校
(徒歩2分/約110m)

千代田区立麹町幼稚園、麹町小学校
千代田区立麹町幼稚園、麹町小学校

麹町学園女子中学校・高等学校
(徒歩2分/約110m)

麹町学園女子中学校・高等学校
麹町学園女子中学校・高等学校

まとめ

都心の洗練と穏やかさが
共存する
美しきレジデンス

 

「ザ・パークハウス麹町テラス」は、東京メトロ有楽町線「麹町」駅から徒歩3分。「半蔵門」駅や「四ツ谷」駅も徒歩圏内に収まり、都心の主要エリアへスムーズにアクセスできる恵まれたロケーションに位置しています。

ホワイト系のマーブル調タイルを基調としたファサードは、透明感と重厚感を兼ね備えた洗練されたデザイン。直線的なフォルムが生み出す端正な佇まいは、都会の景観と調和しながらも、存在感を放ちます。

全戸角住戸のプライベート性を高めた住空間に加え、内廊下設計やオートロックなどのセキュリティも充実。皇居や清水谷公園などの緑も身近に感じられ、都市の利便性と自然の潤いが共存する暮らしが広がります。

駅から近く、静かで落ち着いた住環境。アクティブな都市生活と、心地良い安らぎが両立できるレジデンスです。

ザ・パークハウス麹町テラス

駅徒歩 不動産の表示に関する公正競争規約の改正(2022年9月1日)により、交通利便情報が販売中のものと異なる場合がございます。

東京メトロ有楽町線
「麹町」駅 徒歩3分

築年月

2022年11月

総戸数

35戸

階数

地上9階 地下2階