モリモト ピアース赤坂 Concept 赤坂駅から東京ミッドタウン方向に進んで4分、氷川坂の入り口、ベージュを基調としたモダンでシックな外観、1LDK〜2LDK中心の都市型プレミアムコンパクトマンション

ピアース赤坂

「赤坂」駅 徒歩4分、徒歩10分圏内に5駅、5路線利用可

赤坂サカス、
東京ミッドタウン、
六本木ヒルズを普段使い

地上14階、総戸数119戸のプレミアム
コンパクトマンション

2025.02.21 公開

LOCATION ロケーション

都心の魅力を凝縮した
希少なポジション

ピアース赤坂 レリーフ
ピアース赤坂 レリーフ

永田町や霞が関、赤坂御用地などに接する港区赤坂は日本の中心エリアです。多くの大企業が本社ビルを構え、世界各国の大使館や高級ホテル、大型複合商業施設が集まっていることから国際色豊かなビジネス街としても賑わいでいます。その一方で、赤坂氷川神社や赤坂御用地、迎賓館赤坂離宮など歴史ある自然が多く残るのもここ赤坂の魅力です。

都内でも指折りの高級住宅街として知られる赤坂ですが、表通りの一歩奥に入った氷川坂の入り口に「ピアース赤坂」は位置します。赤坂の活気あふれる雰囲気とは異なり、静寂で落ち着いた雰囲気が広がっています。マンションから近い氷川公園や一ツ木公園では、元気に遊ぶ子どもたちやベンチでのんびり過ごす地域の人たちの穏やかな光景が都心の忙しさを忘れさせてくれます。

TBS放送センター
TBS放送センター
東京ミッドタウン
東京ミッドタウン

赤坂サカスや東京ミッドタウンなど最先端の都市文化を発信する大型複合施設はマンションから歩いて10分圏内。上質なアパレルショップやレストラン、世界の芸術を集めた多彩なミュージアム、都心の中にあって広大な緑を持つオープンスペースなど洗練された都市文化の華やぎを身近にした都心ライフを実現します。

 

最寄り駅は徒歩4分の東京メトロ千代田線「赤坂」駅をはじめ、「乃木坂」駅、東京メトロ南北線、銀座線「溜池山王」駅、東京メトロ南北線「六本木一丁目」駅、東京メトロ日比谷線、都営大江戸線「六本木」駅の計5駅が徒歩10分圏。この地だからこそ叶うマルチアクセスが、東京、表参道、渋谷などの都心主要駅を10分圏に結びます。

六本木ヒルズ
六本木ヒルズ
乃木公園
乃木公園

また「赤坂」駅付近から乗車できる港区コミュニティバス・ちぃばすは、六本木、青山エリアへ移動するのに大変便利です。赤坂地区総合支所前、山王病院前、赤坂郵便局、乃木公園など生活利便施設と結ぶ日常生活の足としても重宝するでしょう。ちぃばすは、出入り口の段差をなくしたノンステップ車両なので、車いすの方やベビーカーにお子さんを乗せたままでも乗車が可能です。自治体が運営しているので運賃は比較的低い設定で、普段使いできる気軽さがあります。

FEATURES 建物の特徴

居住性の本質を追求した
プレミアムコンパクト
レジデンス

コンセプト・デザイン

ピアース赤坂 エントランス
ピアース赤坂 エントランス
ピアース赤坂 アプローチ
ピアース赤坂 アプローチ

人気の高いブランド立地の赤坂に建つ唯一無二の希少価値を誇るマンションにふさわしく、選び抜かれた素材とデザインによるプレミアムなレジデンス。全40mにも及ぶ天然石張りのアクセントウォール、奥行きあるアプローチ空間、エントランス手前にはイロハモミジとシマトネリコなどを植栽して季節感を演出するなど、全119邸のスケールを活かしたランドデザインが特徴です。

プライベートガーデンを配した奥行きあるエントランスにはホテルのロビーのようなくつろぎある空間を設え、さらにはプライバシーを守りながら優雅な空間を演出する内廊下設計、そして天然大理石の光壁のあるコンシェルジュカウンターを採用するなど快適さと心地よさを追求した上質な空間設計が魅力です。

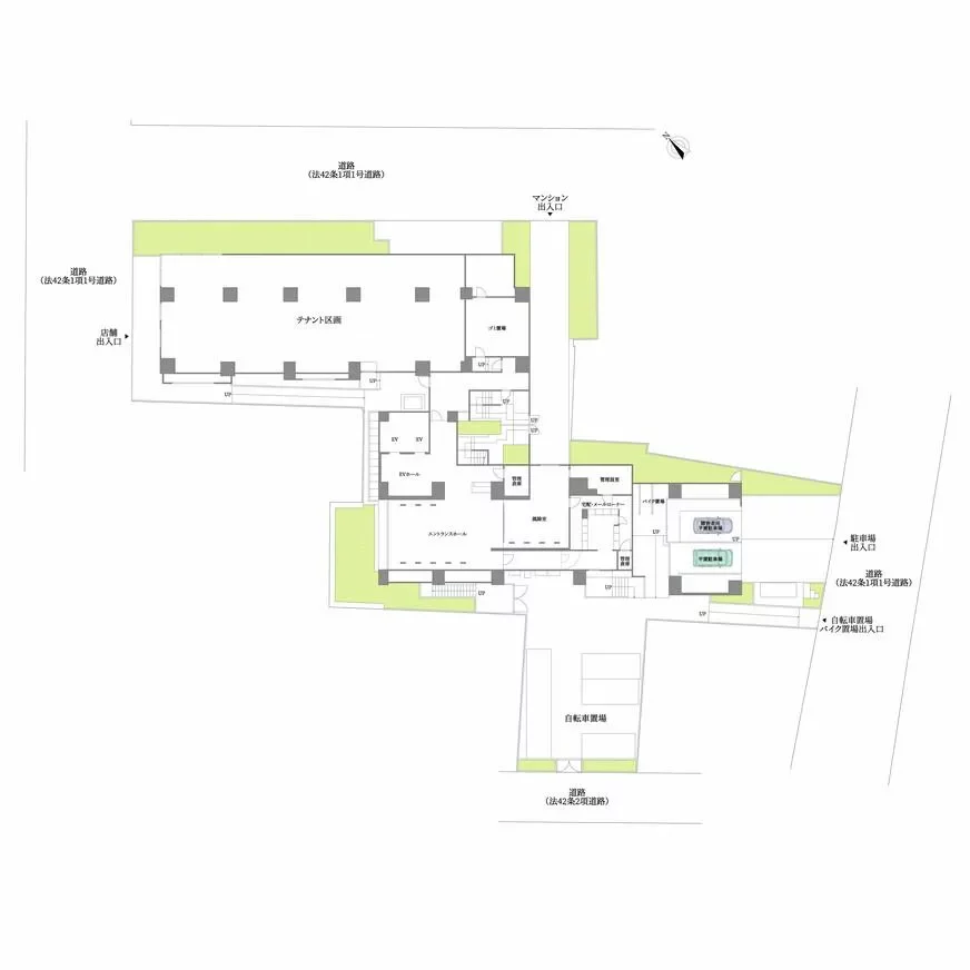
ピアース赤坂 敷地配置図
ピアース赤坂 敷地配置図

建物構造

地上14階、全戸119戸のピアース赤坂は、建物を支える柱、梁、床、壁には鉄筋コンクリート造を採用し最大で1㎡あたり約4,200t〜5,400tもの圧力に耐える強度で構造の信頼と安心感を高めています。主要構造部にあたる壁は鉄筋を二重に組むダブル配筋とし、シングル背筋よりも高い強度と耐久性を実現。基礎構造は計30本の場所打ち鉄筋コンクリート杭を支持層に貫入し、地震時にも抵抗しうる強度と剛性を確保しています。

防災設備

※画像はイメージです。

防災火災

住戸内で火災などの異常が発生した場合、また、共用設備の火災報知器異常やエレベーターが故障した場合などは管理員室と警備会社に24時間機械報知され、警備会社が緊急に対処します。

セキュリティ

ピアース赤坂は、安全な都心生活を確保するために次のような万全なセキュリティを備えています。

トリプルセキュリティ・
テレビモニター付オートロックシステム

風除室・エレベーターと各住戸玄関で来訪者を三重チェックできるオートロックシステム。インターホン親機で風除室のテレビカメラ付集合インターホンで来訪者を確認の後、オートロック解錠ボタンで扉を会場できます。

24時間セキュリティシステム

各住戸から異常信号が発信されると警備員が現場へ出動します。建物内の設備異常についても24時間体制で緊急要員が待機。異常発生時には現場へ出動し、復旧作業を迅速に行います。

防犯窓センサー

防犯警戒中にセンサーが設置された窓を開けるとインターホン親機にて音声警報を発して周辺に異常を伝えます。

ディンプルキー

複製困難でピッキング防止効果が高いディンプルキーを採用しています。

防犯カメラ

見通しがさえぎられる場所や人通りが少ない場所に防犯カメラを設置し、常にモニタリングしています。

CP認定玄関ドア

玄関錠は複製が困難なディンブルシリンダー錠のダブルロックに、防犯サムターン、鎌デッド錠などと合わせて防犯性を強化しています。

COMMON AREA 共用部

安息を深める
ラグジュアリーな迎賓空間

共用施設

ラウンジ

上質な天然石が取り入れられたラウンジ。正面奥には坪庭を配し、四季の移り変わりや移ろいを提供しています。

内廊下

セキュリティやプライバシーを守る、ホテルのようなカーペット敷きの内廊下を採用しています。

多機能宅配BOX

不在時でも荷物の受け取りが可能な宅配BOXを設置。荷物の取り忘れを防ぐために、荷物が届くと住戸内のインターホンにお知らせが届きます。

24時間利用できるゴミ置場

24時間ゴミ出しが可能。ゴミ置場は脱臭機能付きなのもうれしいポイントです。

FLOOR PLAN 間取り図一例

計算し尽くされた
導線や余白によって
高まる居心地や快適性

ピアース赤坂 間取り図例
ピアース赤坂 間取り図例
ピアース赤坂 間取り図例
ピアース赤坂 間取り図例

INSIDE THE ROOM 室内

細部にまで研ぎ澄まされた
美を追求

住む人の実感を大切にした住空間を提案。便利、安心、美しさのためのさまざまなアイデアと工夫を随所に織り込んでいます。

リビング・ダイニングルーム

※画像はイメージです。

TES温水式床暖房

足下からじっくりと暖め、天井まで均一に室温を保つのが特徴。ホコリを巻き上げないので、お子さまが過ごす空間としても安心です。

A〜Fタイプを除く。

ホルムアルデヒドF☆☆☆☆

室内の壁材やフローリング材、内装に使う接着剤などは、低ホルムアルデヒド仕様の製品を使用。シックハウス対策もしっかりと考慮されています。

キッチン

※画像はイメージです。

ディスポーザー

生ゴミ処理機「ディスポーザー」を標準装備。生ごみをその場で処理できるので、すっきりとしたキッチン周りがキープできます。後付けが難しい設備なので、標準で装備されているのは本物件の魅力のひとつでもあります。※一部粉砕できないものがあります。

食器洗い乾燥機

洗浄が楽になるだけではなく、手洗いより節水できるのが食器洗い乾燥機のメリットでもあります。時短、節約につながるうれしい設備です。

バスルーム

TES温水式浴室暖房乾燥機が備わった、フルオートバスを採用しています。くるりんポイ排水口なのでお掃除がしやすい造りです。

ACCESS アクセス

日常生活を支える
抜群の交通アクセス

鉄道

ピアース赤坂の最寄り駅は東京メトロ千代田線「赤坂」駅で、徒歩4分。最寄駅から都内の主要スポットへは、以下の所要時間で到着できます。

表参道駅

表参道駅
表参道駅

東京メトロ千代田線直通です。所要時間は約4分です。

渋谷駅

渋谷駅
渋谷駅

東京メトロ千代田線にて「表参道」駅で降車し、東京メトロ銀座線 に乗り換えます。所要時間は約10分です。

銀座駅

銀座駅
銀座駅

東京メトロ千代田線にて「日比谷」駅で降車し、東京メトロ日比谷線 に乗り換えます。所要時間は約6分です。

新宿駅

新宿駅
新宿駅

東京メトロ千代田線にて「国会議事堂前」駅で降車し、東京メトロ丸ノ内線に乗り換えます。所要時間は約19分です。

タクシー

※画像はイメージです。

行き先 所要時間
「渋谷」駅 約13分
「大手町」駅 約12分
「新宿」駅 約16分

バス

※画像はイメージです。

最寄りの東京メトロ千代田線「赤坂」駅付近から乗車できるバスは、港区が運営しているコミュニティバスちぃばすの赤坂ルートがあります。六本木ヒルズから赤坂、青山エリアを8時台から20時台まで30分間隔で運行しています。

空港

※画像はイメージです。

羽田空港へのルート

①電車

東京メトロ千代田線にて「大手町」駅へ。都営三田線に乗り換え「三田」駅から都営浅草線エアポート快特に乗ると、合計約42分で到着します。

②タクシー

所要時間は約33分です。

成田空港へのルート

➀電車でのアクセス

東京メトロ千代田線利用で「国会議事堂前」駅へ。東京メトロ丸ノ内線に乗り換え「東京」駅からJR総武本線特急成田エクスプレスに乗ると、約61分で到着します。

②タクシー

所要時間は約69分です。

③リムジンバス

ANAインターコンチネンタルホテル東京からリムジンバスが運行されており、乗車時間は約77分です。ピアース赤坂からザ・キャピトルホテル東急までは、タクシーで乗車時間約7分で到着します。

新幹線発着駅

「東京」駅へのアクセス

東京メトロ千代田線を利用し「国会議事堂前」駅で東京メトロ丸ノ内線に乗り換えてアクセスします。所要時間は約7分です。タクシーなどを使った車移動の場合は、約16分です。

「品川」駅までのアクセス

東京メトロ千代田線を利用し「国会議事堂前」駅で東京メトロ丸ノ内線に乗り換え「東京」駅へ。JR東海道線に乗ってアクセスします。所要時間は約15分です。タクシーなどを使った車移動の場合は、約29分です。

LIFE
INFORMATION 周辺の施設・店舗情報

主要な名所が徒歩圏内、
多彩な生活施設も身近に

商業施設、商店街

赤坂サカス(徒歩7分/約550m)

赤坂サカス
赤坂サカス

TBS放送センターをはじめライブハウス「TBS赤坂BLITZ」や、ミュージカル、コンサート、歌舞伎などを上演する「TBS赤坂ACTシアター」、グルメやショッピングが楽しめる「赤坂Bizタワー」など魅力あふれる複合エンタテインメント空間です。
エリア内には11種類約100本のサクラが植栽されており、3月上旬に咲き始める河津桜に始まり、5月上旬に咲く兼六園菊桜までの2カ月間、美しいサクラを楽しむことができます。

東京ミッドタウン(徒歩8分/約620m)

東京ミッドタウン
東京ミッドタウン

緑に囲まれた広大な複合都市。ザ・リッツ・カールトン東京、サントリー美術館などの文化施設、さまざまなショップやレストラン、オフィス、広大な緑のオープンスペース、レジデンス、クリニックなど都心に求められる多彩な施設が集まっています。

成城石井赤坂アークヒルズ店
(徒歩10分/約770m)

成城石井赤坂アークヒルズ店
成城石井赤坂アークヒルズ店

アーク森ビル1階にあるスーパーマーケット。直輸入ワイン、チーズ、自家製惣菜、生鮮食品、輸入菓子など、日本、世界から選りすぐられた食品を取りそろえています。

自然、公園

赤坂氷川神社(徒歩3分/約200m)

赤坂氷川神社
赤坂氷川神社

赤坂・六本木の氏神である赤坂氷川神社。古来より厄除の神様として伝わる素盞嗚尊(すさのおのみこと)、その妻の奇稲田姫命(くしいなだひめのみこと)、そしてあらゆる「むすび」の神様と伝わる大己貴命(おおなむぢのみこと)を祭ることから縁結び、厄除にご利益がある神社とされています。
社殿は徳川吉宗公が建立されたまま現存し、1976年に東京都の有形文化財(建築物)に指定されています。都心の中心にありながらも緑豊かな境内には江戸の年号が刻まれた鳥居、狛犬、灯籠が現存し、江戸の情景を数多く見ることができる神社です。

氷川公園(徒歩5分/約350m)

氷川公園
氷川公園

地下に駐車場がある人工地盤の公園。園内には子どもの遊び場、バラ園、噴水などがあり、地域の人たちが安心して気軽に利用できる快適な空間です。バラ園の見頃は5月中旬と10月中旬。車いす、ベビーベッド・ベビーチェア対応トイレが設置されています。

暮らし、インフラ

赤坂地区総合支所(徒歩11分/約860m)

赤坂地区総合支所
赤坂地区総合支所

住民登録や証明交付、転入学通知に関すること、戸籍に関する届出、税金などの払い込みなどの手続きが行えます。子育て・保健関係、保育園関係などの相談も受け付けています。

赤坂子ども中高生プラザ(徒歩4分/約310m)

赤坂子ども中高生プラザ
赤坂子ども中高生プラザ

赤坂子ども中高生プラザ(愛称・プラザ赤坂なんで~も)は0歳から18歳までの子ども、中高生とその保護者が利用できる大型の児童施設です。乳幼児と保護者が過ごせるキッズルーム、いろいろな工作活動ができるクラフトルーム、近隣の児童館とeスポーツ対決などもできるメディアルーム、絵本やマンガを読めるラウンジ、ダンスやバンド活動ができる防音のスタジオ、スポーツ活動ができるアリーナなど幅広い世代の人たちがやってみたいことになんでもチャレンジできる部屋や設備が整っています。保護者の就労などで放課後に家庭での保護が受けられない児童を対象とした学童クラブもあります。

山王病院(徒歩13分/約1,000m)

山王病院
山王病院

各分野で高い専門性を持つ医師が多数在籍する総合病院。女性医療センター、消化器センターなどチーム医療の特色ある診療や、同じ区内にある山王メディカルセンターや国際医療福祉大学三田病院と連携した万全の診療体制を整えています。グランドピアノや上質なソファを設置した待合室ロビー、出産や退院祝いパーティも催せる本格的なレストランなど、高級ホテル並みの設備を備えています。

国立新美術館(徒歩12分/約930m)

国立新美術館
国立新美術館

国立美術館で唯一、コレクションを持たない美術館です。そのため常設展示はなく、日本最大級の展示スペースでは自由度の高い多様な展覧会や公募展を常時開催しています。建物は波のようにうねるガラスカーテンウォールの壁面がとても美しく印象的で、世界的な建築家、黒川紀章氏が手掛けた最後の美術館としても知られています。

幼稚園、保育園、学校

赤坂保育園(徒歩4分/約280m)

赤坂保育園
赤坂保育園

中之町幼稚園(徒歩6分/約430m)

中之町幼稚園
中之町幼稚園

港区立小中一貫教育校赤坂学園
(徒歩6分/約450m)

港区立小中一貫教育校赤坂学園
港区立小中一貫教育校赤坂学園

まとめ

都心ライフの楽しみと
安らぎのある私邸

日本屈指の高級住宅街、赤坂の景観に溶け込む美しい外観が印象的なピアース赤坂。徒歩圏内の赤坂サカスや東京ミッドタウンをはじめ六本木ヒルズなど、都心を象徴する大型複合商業施設を普段使いするぜいたくな住環境にあります。さらには赤坂御用地や赤坂氷川神社など歴史や文化を受け継ぐ名所が多く点在し、都会の真ん中にありながら豊かな自然に触れる日常が送れるでしょう。

世界各国の大使館が多くあるため、警察の巡回も頻繁に行われているので治安も良く、単身者からファミリー層まで安心して暮らすことができるエリアです。徒歩圏内に5駅5路線が通っているなど交通アクセスも良好で、通勤・通学、外出も快適。閑静で住みやすくたくさんの魅力がある赤坂が、さまざまなライフスタイルを叶えてくれるでしょう。

ピアース赤坂

駅徒歩 不動産の表示に関する公正競争規約の改正(2022年9月1日)により、交通利便情報が販売中のものと異なる場合がございます。

東京メトロ千代田線
「赤坂」駅 徒歩4分

築年月

2019年3月

総戸数

119戸

階数

地上14階