竹中工務店 シティタワー西梅田 Concept 超都心「梅田」に新しいスカイマーク

シティタワー西梅田

JR大阪駅徒歩12分、
福島駅徒歩5分

関西交通ネットワークの
結節点となる
スーパーポジション

総戸数347戸、地上50階建タワーマンション

2024.12.25 公開

LOCATION ロケーション

関西交通ネットワークの
結節点となる
スーパーポジション。

交通アクセスの優れた利便性

交通の要所である福島駅まで徒歩5分、JR「大阪」駅へも徒歩12分、「新福島」駅へも徒歩7分、「西梅田」駅は徒歩13分という好立地にあります。また、JR環状線「福島」駅から「大阪」駅まで1駅1分であり、大阪メトロ谷町線「東梅田」駅まで電車で8分、「中央線本町」駅には電車で4分、また「天王寺」駅へも電車で7分と、さらに、大阪環状線の各駅にも容易にアクセスできるため、関西全域へのビジネスや観光での移動もスムーズです。タクシーを利用すれば、「森ノ宮」駅や「本町」駅までは約6分、「京橋」駅まで約10分、「大阪」駅まで約12分、「関西国際空港」駅まで約43分という利便性です。

グランフロント大阪
グランフロント大阪

商業施設の充実

梅田は、大阪を代表するオフィスゾーンでもあり、グランフロント大阪やハービス大阪、梅田DTタワーを始め、西梅田の大阪ガーデンシティ、新梅田シティなど、大規模なオフィスが立ち並ぶビジネスエリアです。このエリアには、阪急梅田本店、阪神本店、大丸梅田店という大阪を代表する3つの百貨店があり、HEPナビオやHEPファイブ、ヨドバシカメラ、グランフロント大阪、ハービスエントやヒルトンプラザウエストなども集結しています。これにより、活気ある商業ゾーンが構成され、ショッピングやグルメが楽しめる場所としても魅力的です。

日常生活の利便性

現地周辺は梅田エリアの一角でありながら、日常生活の利便性にも恵まれた恵まれた立地です。徒歩圏内には多様な生活利便施設が揃い、スーパーや飲食店があるため日常生活に必要なものがすぐ手に入り非常に便利です。周辺にはクリニックも充実していて徒歩圏内にはイワオ歯科、福島クリニック、大阪中央病院など、様々な医療機関が揃っており、急な体調不良や定期健診にも対応可能です。また、緑豊かな公園や緑地も近くにあり、あらゆる世代が安心して生活できる豊かな環境が整っています。上福島北公園やABC公園、大淀南公園などが徒歩圏内にあり、日常的に自然に触れることができます。

ザ・リッツカールトン大阪
ザ・リッツカールトン大阪

文化とエンターテイメントの選択肢

西梅田地区には、「ザ・リッツカールトン大阪」や「ヒルトン大阪」といった一流ホテルが集まっており、ビジネスや観光の拠点としても機能しています。少し足を伸ばせば中之島の「リーガロイヤルホテル」もあり、高級感あふれる滞在が可能です。また、現地の北には大阪唯一のクラシック専用ホールである「ザ・シンフォニーホール」、西梅田には「大阪四季劇場」があり、数々のホールやシアター、美術館も立地しています。これにより、文化的なイベントやエンターテイメントを楽しむ場が豊富に提供されており、生活の質を高める要素が揃っています。

FEATURES 建物の特徴

梅田の天空に描く
光と色の造形が
大阪の都市デザインを
変える。

シティタワー西梅田 遠景
シティタワー西梅田 遠景

シティタワー西梅田は、地上50階建ての超高層タワーレジデンス。超都心「梅田」のスカイラインに新たなスカイマークを描き出し、関西屈指のビジネスと商業エリアに佇むその存在感が際立ちます。
ガラスカーテンウォールを豊富に身に纏い洗練された外観は、都会のダイナミズムを象徴し、シャープでモダン、かつシンボリックな外観ファザードを構成し、そのデザインが、住まう人々に都市の洗練と快適さを提供します。時とともに変化するシーンを映し込み、物理的なだけではない高さを印象付けるとともに、反射と言あいつが織りなす警官が都市に新たな表情を醸し出し、また、内観においてもガラスウォールにより生まれるダイレクトスカイビューがダイナミックな都市の眺望を創出します。

共用空間には、スカイラウンジやゲストルームなどの施設が整い、高級感あふれる内装はラグジュアリーホテルを彷彿とさせます。また、先進の超高層免震構造を採用し、地震にも強い建物となっており、安心して快適に暮らせる環境を提供します。

コンセプト・デザイン

シティタワー西梅田 レリーフ
シティタワー西梅田 レリーフ

シティタワー西梅田は、都会の中心にありながらも、住まう人に静かな安らぎを提供します。
建物には天井まで広がるガラスウォールは広がる眺望とともに開放感が漂い、訪れる人を温かく迎えるダブルエントランス方式、グランドエントランスとスカイエントランスはシャトルエレベーターで直結。特別な空間を演出します。モダンで洗練されたデザインは、住む人だけでなく、ゲストをも魅了する優雅な雰囲気を醸し出します。

タワーマンションならではの「ビューエレベーター」からは、昇降の際に大阪のパノラマビューを楽しむことができ、ダイナミックな都市の眺望が日常の一部となります。

シティタワー西梅田 アプローチ
シティタワー西梅田 アプローチ

建物構造としてシティタワー西梅田は最先端技術と高い品質を兼ね備えた安全かつ快適な住空間を実現しています。超高層免震構造を採用し、建物の骨格にはRC一部SRC構造を採用し、強度と耐久性を兼ね備えています。

共用エリアにはスカイラウンジやゲストルームが設置され、贅沢な空間で都市の喧騒を忘れ、静かな時間を過ごすことができます。各階にゴミ置き場があり、日々の生活の利便性も高められています。

防災設備

シティタワー西梅田 エントランス
シティタワー西梅田 エントランス

シティタワー西梅田は、住む人々の安全を最優先に考え、先進の防災設備を備えています。超高層免震構造により、震度7クラスの地震時の室内の揺れを、耐震建物震度4クラスの地震時の揺れと同程度に低減します。

安全に対応できる設計となっており、エレベーターには緊急停止機能が備わっているため、地震発生時にも速やかに最寄り階に自動停止します。また、停電時には非常用電源が作動し、一定期間安全な生活を維持できるよう設計されています。

火災に対しての安全はもちろん、環境に配慮したエコキュート採用の「オール電化」を採用しています。

さらに1階防災センターと9階コンシェルジュセンターには常駐する365日24時間、二重の友人管理も採用され、各住戸の玄関扉には防犯センサーも設置されています。マンション内には防犯カメラが複数設置されていて、出入り口やエレベーター、地下駐輪場、駐車場、バイク置き場などの共用部の要所を常時チェックしています。

万一の備えには屋上にヘリポートが設置されていて、消防隊員による高層階からの救助活動等に対応できるように配慮されています。

このように、シティタワー西梅田は、先進技術によって安全な住まいを提供し、地震などの自然災害に備えた強固な構造で、安心して暮らせる住環境を実現しています。

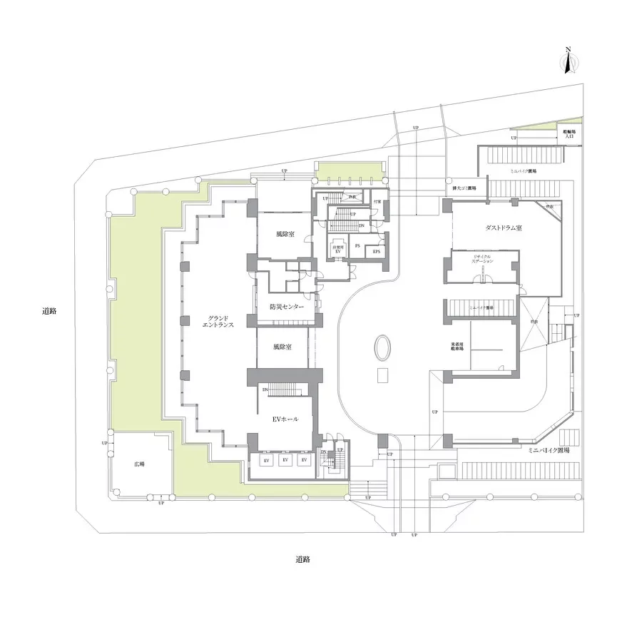
シティタワー西梅田 敷地配置図
シティタワー西梅田 敷地配置図

COMMON AREA 共用部

暮らしをサポートする、
多彩なサービス

シティタワー西梅田では、充実した共用施設と多様なサービスで、住まう人々の日々の生活を快適にサポートします。

24時間対応のコンシェルジュサービスでは、クリーニングやタクシー手配、宅配便の発送など、幅広いニーズに対応するサービスを提供しています。セキュリティ面でも24時間の遠隔監視システムが導入されており、安全な生活環境を守ります。

共用施設

エレベーターホール

高層階・低層階それぞれに専用のエレベーターを設置し、快適でスムーズな移動を実現。光が差し込む明るいエレベーターホールは、住まう人々にリラックスできる空間を提供します。

天井高約6mの吹き抜け空間、グランドエントランス

シティタワー西梅田 グランドエントランス
シティタワー西梅田 グランドエントランス

天井高のある開放的なグランドエントランスホールは、まるで高級ホテルのような落ち着きのある雰囲気。上質感を薫らせる内装と調度品。大きな窓から柔らかな緑。すべてに、人を癒し、和ませるためのしつらえを凝らしています。

上質のホテルの印象、タワー内カーエントランス

シティタワー西梅田 カーエントランス
シティタワー西梅田 カーエントランス

雨の日でも快適に車の乗り降りができる車寄せを完備。タワー内を南北に抜ける車路に沿って車寄せのあるカーエントランス。拡張ある石畳調の舗装、柔らかな光が溢れ出す天井の間接照明やダウンライト。そしてロータリーの中心部に添えた植込みなどがまさにホテルを彷彿させるでしょう。大切な愛車を雨風から守り、住まいの出入りもスムーズにサポートします。

タワーパーキング

多数の車両を収容できるタワーパーキングは、スムーズな入出庫を実現。安心して愛車を預けられる施設が整っています。

スカイエントランス

シティタワー西梅田 スカイエントランス
シティタワー西梅田 スカイエントランス

通常のマンションでは10階に相当する地上約31mの9階に、ホテルのラウンジを思わせるやく400平米のスカイエントランスがあります。オーナーの方々だけのセミプライベート空間を構成し、ガラスカーテンウォールが演出する開放感に包まれた、憩いのひと時が味わえます。

地上100m、都心のパノラマを愉しむスカイラウンジ

地上29-30階にある2層吹き抜けスカイラウンジは、住まう人々に都心のパノラマビューを心ゆくまで楽しめる場所です。ダイレクトパノラマウィンドウ越しに市街地の眺望や、足元には夜景が広がります。美しい夜景を楽しみながら、くつろぎのひとときを過ごせます。

ホテルの上質なスイートな印象、ゲストルーム

29階にはホテルの上質なスイートを思わせるしつらえで、ゲストに気兼ねなく泊まってもらえるゲストルームがあります。2室中1室には梅田の夜景を望むビューバスを備えています。

スカイエントランスでモーニングサービス

リーガロイヤルホテル「メリッサ」と提携し、朝7時30分から9時までモーニングサービスが受けられます。当日焼き上げたパンがマンション内で食べられます。

24時間ゴミ回収サービス、ダストステーション

常時ゴミ出しができるよう各階にゴミステーションを設置しており、住民がいつでも快適にゴミ出しを行えるよう配慮されています。出されたゴミは管理スタッフが定期的に回収し、非常用エレベーターで1階のダストドラムまで運搬。清潔で便利な生活が提供されています。

サービス

コンシェルジュサービス

コンシェルジュサービス

※画像はイメージです。

シティタワー西梅田は、ラグジュアリーな暮らしを実現するため、充実したサービスを提供しています。24時間対応のコンシェルジュサービスでは、住民の日常をサポートする多彩なサービスを利用できます。

コピー・Faxサービスやタクシー手配、ホテルやレストランの紹介、宅配便発送手続きに加え、専門業者の紹介やクリーニング受付、メッセージ預かりなど、生活のあらゆるシーンで便利にご利用いただけます。さらに、館内施設の予約やクロークサービスも行い、住まいをより快適なものにしています。

スカイエントランスでは、住民専用のモーニングサービスを提供しており、朝の時間を優雅にスタートできます。

これらのサービスに加えて、24時間対応のセキュリティ監視システムが導入されており、常に安全が守られています。万が一の緊急事態にも迅速に対応する体制が整っており、住民が安心して暮らせる環境が整っています。

シティタワー西梅田では、上質なサービスによって都市生活を豊かで快適にし、日々の生活をサポートします。

INSIDE THE ROOM 室内

光、そして、色彩。
5色で愉しむ暮らしの贅。

室内仕様

シティタワー西梅田では、住む人の安心と快適さを追求した住空間が提供されています。室内のデザインや設備は、都市生活を豊かにしながら、細部にまでこだわりが詰まっています。

ディスポーザー

※画像はイメージです。

キッチンは、美しさと利便性を兼ね備えた設計が施されており、生ゴミ処理をスムーズにするディスポーザーやスライド式キャビネットタンク、サイレント仕様のステンレス製多機能深型シンクなどが効率よくスマートなキッチンスタイルにしています。広々としたスペースと効率的な機能性を持つスマートキッチンは、忙しい毎日を快適にサポートします。

洗面・バスルームにも快適さを追求しています。おしゃれな三面鏡タイプの洗面化粧台は収納力が高く、バスルームには低床式のバリアフリーユニットバスを採用。手すりが設置され、安全設計がなされているため、安心して利用できます。また、浴室暖房乾燥機により、寒い冬でも快適なバスタイムを楽しめるだけでなく、衣類の乾燥にも対応します。

さらに、24時間常時換気システムを備えたセントラル給気ファンユニットによって、常に清潔で快適な空気環境が保たれています。ホルムアルデヒド対策を講じているため、健康面にも十分に配慮されており、住む人々にとって安心の空間を提供します。遮音性に優れたT-2等級の防音サッシュや、約150mm厚の乾式耐火遮音壁によって、外部からの騒音を遮断し、プライバシーを守ります。

また、シティタワー西梅田は、通信環境も完備。高速インターネットサービス「SUISUI」や光パーフェクトTVの多チャンネルサービスを利用することで、リモートワークやエンターテインメントも快適に楽しめます。

FLOOR PLAN 間取り図一例

多彩な
ライフスタイルに対応

シティタワー西梅田 間取り図例
シティタワー西梅田 間取り図例
シティタワー西梅田 間取り図例
シティタワー西梅田 間取り図例

間取りは50㎡〜280.99㎡の1LDK〜3SLDKのバリエーションに富んだプランが揃っています。都心の中の都心の快適な暮らしを享受できるマンションです。

ACCESS アクセス

大阪のビジネス・文化・
交通の中心地「梅田」に
直結

シティタワー西梅田は、大阪の中心地「梅田」エリアへのアクセスが非常に優れたタワーマンションです。

最寄り駅のJR大阪環状線「福島」駅から徒歩5分、JR「大阪」駅から徒歩12分と、関西の主要駅へ直結しています。また、「西梅田」駅から徒歩13分、「新福島」駅から徒歩7分と、複数の駅から利用可能な立地にあり、都市の心臓部へのアクセスが非常に良好です。

電車を利用すれば、「大阪梅田」まで約2分、「京橋」まで約10分、「弁天町」まで約5分、「大正」駅まで約8分、「なんば」駅まで約15分、「天王寺」駅まで約13分と、大阪の主要エリアへスピーディーにアクセスできます。

地下鉄も利用可能で、御堂筋線や四ツ橋線を使えば、梅田、淀屋橋、なんば、天王寺、新大阪といった主要なビジネス・商業エリアへ、最短でアクセスできます。また、大阪シティバスの路線も充実しており、主要駅へは直通で運行されているため、公共交通機関を利用した移動もスムーズです。

タクシーを利用すれば、主要なビジネス街や観光スポットへも10分〜20分で移動することが可能で、急ぎの用事にも迅速に対応できます。さらに、関西国際空港へのアクセスも優れており、国内外の旅行や出張においても便利な立地です。

鉄道

福島駅
福島駅

最寄り駅からの所要時間は以下の通りです。

大阪メトロ御堂筋線「梅田」駅:電車で約2分

大阪の中心地「梅田」までは電車で約2分。ビジネスやショッピング、グルメを楽しむのに最適なエリアです。

JR大阪環状線「京橋」駅:電車で約10分

「京橋」駅までは電車で約10分。大阪市都島区の中心地で、商業施設も充実しています。

JR大阪環状線「弁天町」駅:電車で約5分

大阪市港区の「弁天町」駅までは電車で約5分。大阪南港へのアクセスにも便利です。

JR大阪環状線「大正」駅:電車で約8分

大阪市大正区の「大正」駅までは電車で約8分。下町情緒溢れるエリアです。

大阪メトロ御堂筋線・四つ橋線「なんば」駅:電車で約15分

大阪を代表する繁華街「なんば」までは電車で約15分。食べ歩きやショッピングを満喫できます。

JR大阪環状線「天王寺」駅:電車で約13分

歴史と文化が息づく「天王寺」までは電車で約13分。観光にもおすすめのエリアです。

タクシー

タクシー

※画像はイメージです。

シティタワー西梅田からタクシーで移動した場合の所要時間は以下の通りです。
シティタワー西梅田は、大阪の中心部へのアクセスが非常に良好で、タクシーを利用すれば短時間で目的地までスムーズに移動できます。

タクシーを利用すれば、大阪梅田やなんば、天王寺などの主要スポットまで10分〜20分で到着可能です。急ぎのビジネスミーティングやショッピング、観光のお出かけにも便利です。また、空港へのアクセスもスムーズで、伊丹空港や関西国際空港までの所要時間も短く、国内外の移動も快適です。

所要時間
「大阪梅田」駅 8分
「京橋」駅 16分
「弁天町」駅 18分
「大正」駅 18分
「なんば」駅 15分
「天王寺」駅 13分
「関西空港」駅 45分

空港

空港 関西

※画像はイメージです。

関西国際空港へのルート

シティタワー西梅田から関西国際空港へのアクセスは、電車や車での移動が非常にスムーズです。

電車を利用する場合、JR大阪駅から関空快速に乗り換えることで、約40分で関西国際空港に到着します。JR福島駅からも、さまざまな路線を駆使してスムーズにアクセス可能です。

車の場合は、阪神高速4号湾岸線を利用することで、約45分程度で到着します。
シティタワー西梅田からの充実した交通アクセスで、ビジネスや旅行の準備も比較的ストレスフリーにアクセスできます。

LIFE
INFORMATION 周辺の施設・店舗情報

西日本一の
ターミナル機能と
職・住・遊の多彩な
都市機能が集積。

シティタワー西梅田周辺は、梅田エリアに位置し、生活の利便性がとても良好です。当マンションからのアクセスだけでなく、仕事帰りや、出掛けの帰りが梅田エリアになるため、様々な施設に足を運びやすいでしょう。大型スーパーや商店街があり、日常の買い物も快適。おしゃれなカフェやレストランが豊富で、グルメも楽しめます。さらに、緑豊かな公園が点在し、リラックスできる自然環境も整っています。

文化的施設も充実しており、劇場やシンフォニーホールが近く、学校やクリニックも完備しているのでファミリー層にもおすすめです。

商業施設、商店街

MaxVaLueEx西梅田店(徒歩1分/30m)

MaxVaLueEx西梅田店
MaxVaLueEx西梅田店

食料品から日用品まで、幅広い商品を取り揃えたスーパーマーケットです。当マンションから徒歩1分の近さなので毎日の買い物に非常に便利です。

セブンイレブン大阪金蘭会前店(徒歩2分/140m)

セブンイレブン大阪金蘭会前店
セブンイレブン大阪金蘭会前店

近くには、24時間営業のセブンイレブンがあります。急な買い物やちょっとした日用品の調達も、徒歩数分で対応可能。食材や日用品はもちろん、ATMや宅配便の取り扱い、コピーサービスなども揃っており、忙しい毎日を便利にサポートします。

自然、公園

上福島北公園(徒歩2分/140m)

上福島北公園
上福島北公園

マンションから140mのところに位置する、身近な憩いの場です。小さな子供向けの遊具もあり、マンションの窓から緑が見えるのも魅力の一つです。

暮らし、インフラ

ザ・シンフォニーホール(徒歩2分/160m)

ザ・シンフォニーホール
ザ・シンフォニーホール

関西を代表するクラシック音楽の殿堂、ザ・シンフォニーホールがあります。大阪唯一のクラシック専用ホールとして、国内外の一流アーティストの演奏を楽しむことができる、贅沢な空間です。

幼稚園、保育園、学校

大阪市立大淀保育所(徒歩8分/570m)

大阪市立大淀保育所
大阪市立大淀保育所

愛輝幼稚園(徒歩1分/10m)

愛輝幼稚園
愛輝幼稚園

大阪市立上福島小学校(徒歩5分/370m)

大阪市立上福島小学校
大阪市立上福島小学校

市立下福島中学校(徒歩18分/1390m)

市立下福島中学校
市立下福島中学校

まとめ

都心居住の新しい
ステイタスが手に入る、
ホテルライフ
タワーレジデンス

シティタワー西梅田は、大阪の中心部にありながらも、緑豊かな公園や文化施設が点在し、都市の利便性と自然環境が調和する理想的なロケーションです。JR大阪駅や福島駅をはじめ、徒歩圏内に複数の主要駅が揃い、ビジネスやレジャー、子育てなど、あらゆるライフスタイルに対応できる優れたアクセスが魅力です。

地上50階建てのタワーレジデンスからは、大阪の街を一望できる壮大なパノラマビューが広がり、住む人々に日々の生活に特別な瞬間を提供します。共用施設やコンシェルジュサービス、24時間のセキュリティなど、快適で安心な暮らしを支えるさまざまな工夫が施されています。

充実したホテル住まいのような都市生活を過ごしてみませんか?

シティタワー西梅田

駅徒歩 不動産の表示に関する公正競争規約の改正(2022年9月1日)により、交通利便情報が販売中のものと異なる場合がございます。

大阪環状線
「福島」駅 徒歩5分

築年月

2006年12月

総戸数

347戸

階数

地上50階