三菱地所 パークハウス赤坂氷川 Concept 六本木通りから一本奥に入った、かつて武家屋敷が集まっていた赤坂六丁目。
最高裁判所などを生み出した建築家 岡田新一氏手がけた赤坂の歴史と空気感を引き継いだデザイン

パークハウス赤坂氷川

「赤坂」駅 徒歩5分、
「溜池山王」駅 徒歩6分

都心でありながら住宅地が広がる赤坂6丁目

地上14階、総戸数97戸

2024.12.20 公開

LOCATION ロケーション

マンションや大使館がある
赤坂の一角に立地

パークハウス赤坂氷川
パークハウス赤坂氷川

パークハウス赤坂氷川は、東京都港区赤坂の閑静な住宅街に位置するマンションです。特に氷川町エリアはマンション、大使館が多く立ち並び、洗練された雰囲気が漂っています。赤坂氷川神社や久國神社といった歴史や自然豊かなスポットが徒歩圏内にあり、都会の中でも落ち着いた環境で生活を楽しむことができます。

TBS放送センター 赤坂サカス
TBS放送センター 赤坂サカス

六本木や赤坂などにぎやかな街は徒歩や自転車で移動できる距離。静と動が日常にある稀有な立地といえるでしょう。赤坂見附や溜池山王まで行くと、平日の日中はビジネスマンの姿が目立ちますが、週末や祝日などは車通りも少なく、静かで落ち着いた空気に包まれています。東京ミッドタウンや赤坂サカスなどの大型商業施設も近く、ショッピングやグルメ、エンターテインメントを楽しむのにも便利です。

さまざまな路線の駅が近接しており、「赤坂」駅、「赤坂見附」駅、「溜池山王」駅などを使えば、複数の路線が利用可能です。交通の便が非常に良いのも特徴と言えるでしょう。青山、乃木坂、そして銀座や日比谷といった東京を代表するエリアにも短時間でアクセスでき、ビジネスにもプライベートにも理想的なロケーションです。こうした赤坂の魅力が凝縮された環境にあるパークハウス赤坂氷川は、静かな住環境と都心の利便性を兼ね備えた理想の住まいです。

FEATURES 建物の特徴

日本を代表する
建築家が手掛けた、
赤坂という地の「独特」を
強く意識したマンション

コンセプト・デザイン

最高裁判所など、名だたる建築物を生み出してきた、日本を代表する建築家である岡田新一。「誰が使うか」「どんな人が住むか」「どのような土地に建つのか」という点に着眼し、本プロジェクトを手掛けました。
かつてこの土地に暮らしていた武士たちが、粋な暮らしを楽しんでいたという赤坂。この赤坂という地の「独特」を強く意識し、名残を感じられるよう外観のタイルは着物の袴をイメージ。ファザードは、外部との関係性を考え素材感を意識しています。
結果的に「抽象」と「緻密」によってパークハウス赤坂氷川を造り上げたという岡田新一氏。こうしてでき上った赤坂に佇むレジデンスは、都心の中に美しく存在しています。

エントランスで特徴的なのは、凹凸が縦方向に波打って見えるタペストリーガラス。外壁に使われている炻器質タイルを組み合わせることで美しいコントラストを創出し、優しさと洗練した印象を与えています。

建物構造

永住にふさわしい価値を求めて、施工は日本の成長を支えてきた、スーパーゼネコンである鹿島建設が担当。歴史に残るランドマークを造り続けてきた豊富なノウハウと高い企業理念がパークハウス赤坂氷川には息づいています。建物は、鉄筋コンクリート造14階建て。ベタ基礎工法を採用した上に建つレジデンスは、二重床や二重天井を採用し遮音性やリフォームのしやすさに配慮しています。

防災設備

全戸の玄関には、防犯窓センサーを設置。不正に開閉されると、室内に設置された住宅情報盤がアラームを発し、緊急コールセンターなどにつながります。また、バス・トイレで気分が悪くなった時は備え付けのバス・トイレコール押せば、居室内にいる家族に緊急事態であることを伝えられます。

COMMON AREA 共用部

天然石を使った、
品格のある空間

共用施設系

エントランスホール

壁と床には大理石、床の中央部には花崗岩を使用しています。タペストリーガラスを組み合わせたことで重厚で暖かみのある空間を実現しています。

エレベーターホール

エントランスホールと同じ素材を使い、連続性と一体感を大事にしています。

パーク

シンボルツリーのクスノキ、サザンカ、アベリアなどを植栽し、四季を感じながら緑の近くで暮らす歓びを感じられます。

サービス系

24時間の有人管理を採用。昼夜問わず、人の目で住民の安心安全を監視。緊急時には現場へ急行します。

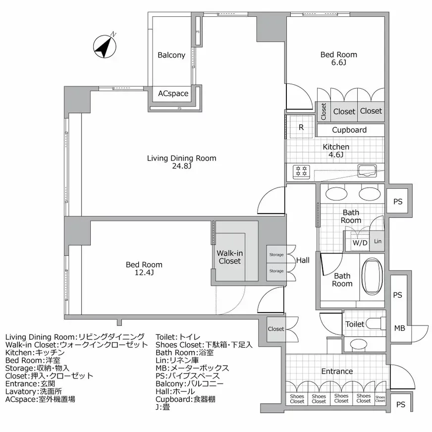
FLOOR PLAN 間取り図一例

住まう人が満足する
ゆとりある室内

パークハウス赤坂氷川 間取り図例
パークハウス赤坂氷川 間取り図例

INSIDE THE ROOM 室内

ライフシーンに洗練と
快適を添えてくれる
多彩な設備

室内仕様

室内仕様

※画像はイメージです。

キッチンには、IHコンロを採用。火災が起こりにくいので、安心して調理ができます。サッと拭くだけでお手入れがしやすい点もメリットです。また、システムキッチンにはワイドシンク、ビルトイン食器洗浄乾燥機、ディスポーザーなど暮らしやすさに配慮した設備を設置。洗面室には洗面台のカウンター下に引き出し式の収納、自動洗濯乾燥機を備え、便利で快適な住空間を実現しています。

エアコンは天井カセットエアコンが標準装備となっているので、室内がすっきりとした空間になっています。こうした配慮も生活にゆとりをもたらします。

ACCESS アクセス

鉄道やバスを使った移動も
自由自在

路線図
路線図

鉄道

パークハウス赤坂氷川の交通アクセスは非常に優れています。最寄り駅である東京メトロ千代田線の「赤坂」駅から徒歩約5分でアクセスすることができ、そこから都心部への移動は非常にスムーズです。

「六本木」駅まで

六本木駅
六本木駅

東京メトロ千代田線「赤坂」駅から「霞ケ関」駅で東京メトロ日比谷線に乗り換え、「六本木」駅まで約10分。

「渋谷」駅まで

渋谷駅
渋谷駅

東京メトロ千代田線「赤坂」駅から「表参道」駅で東京メトロ半蔵門線に乗り換え、「渋谷」駅まで約6分。

「銀座」駅まで

銀座駅
銀座駅

東京メトロ千代田線「赤坂」駅から「日比谷」駅で東京メトロ日比谷線に乗り換え、「銀座」駅まで約6分。

「日比谷」駅まで

日比谷駅
日比谷駅

東京メトロ千代田線「赤坂」駅から「日比谷」駅まで約5分。

バス

港区のコミュニティバス「ちぃばす」は、近隣に赤坂ルートが設定されており、六本木や青山、乃木坂などの周辺エリアへの移動に非常に便利です。都営バスも赤坂周辺をカバーしており、新橋や渋谷方面への移動がスムーズに行えます。

タクシー

行き先 所要時間
「六本木」駅 約5分
「渋谷」駅 約15分
「銀座」駅 約11分

空港

羽田空港へのルート

電車の場合は、東京メトロ千代田線「赤坂」駅から「日比谷」駅へ行き、東京メトロ日比谷線に乗り換えて「東銀座」駅で下車します。そこから都営浅草線に乗車、京急線に直通で羽田空港に到着、トータル約40分でアクセスできます。また、タクシーの場合は、約24分で到着します。

成田空港へのルート

電車の場合は、東京メトロ千代田線「赤坂」駅から「国会議事堂前」駅へ。そこで東京メトロ丸ノ内線に乗り換えて「東京」駅まで向かいます。「東京」駅からはJR総武本線特急成田エクスプレスを利用します。所要時間は約60分です。また、タクシーの場合は、約60分で到着します。

新幹線発着駅

「東京」駅までのアクセス

電車の場合は、東京メトロ千代田線「赤坂」駅から「二重橋」駅へ向かい、そこから徒歩で「東京」駅へ。トータル約13分でアクセスできます。また、タクシーの場合は、約12分で到着します。

「品川」駅までのアクセス

電車の場合は、東京メトロ千代田線「赤坂」駅から「明治神宮前」駅へ向かいます。そこから徒歩で「原宿」駅へ行き、JR山手線に乗り換えて「品川」駅へ。所要時間は約30分です。また、タクシーの場合は、約20分で到着します。

LIFE
INFORMATION 周辺の施設・店舗情報

東京の中心部から近い、
緑と便利が身近な街

商業施設、商店街

東京ミッドタウン(徒歩10分/約800ⅿ)

東京ミッドタウン
東京ミッドタウン

ホテル、文化施設、ショップ&レストランがある複合施設。平日、休日問わず、ショッピングやランチを楽しむ人々でにぎわいます。アートファンには、サントリー美術館や21_21 DESIGN SIGHTが魅力的で、日常にアートを取り入れる暮らしが楽しめます。

成城石井赤坂アークヒルズ店
(徒歩6分/約450ⅿ)

成城石井赤坂アークヒルズ店
成城石井赤坂アークヒルズ店

厳選された食材や創意工夫されたお惣菜などが手に入るスーパーマーケット。店内は明るく清潔で、見ているだけでも楽しめる食べ物が並んでいます。ディナーにちょっと一品加えたいとき、手軽に本格的な味を楽しみたいときにも気軽に利用できます。24時間営業というのもうれしいポイントです。

自然、公園

港区立檜町公園(徒歩9分/約650ⅿ)

港区立檜町公園
港区立檜町公園

東京ミッドタウンの東側に位置する公園。四季折々の自然が楽しめる広々とした芝生で過ごす時間や、池の周りを散策するのが心地よく、リフレッシュするのに適した都会の中のオアシスです。朝にはジョギングや犬の散歩を楽しむ人が多く、昼間は子ども連れの家族や仕事の合間にリフレッシュするビジネスマンが訪れます。週末には余暇を楽しむ人々でさらににぎわいを見せます。

乃木公園(徒歩14分/約1,100ⅿ)

乃木公園
乃木公園

乃木将軍の遺志により東京市に寄贈され、1913年に開園した公園。小規模ながらも緑が豊富で静かな雰囲気が特徴です。乃木神社に隣接し、歴史を感じる落ち着いた空間が広がります。平日は仕事の合間に訪れるビジネスマンの姿も見られますが、休日は読書を楽しむ人や静かな場所で一息つきたい人々が集まります。木々に囲まれたベンチでのんびりと過ごす時間は、都会にいることを忘れさせる贅沢なひとときです。

暮らし、インフラ

赤坂コミュニティーぷらざ
(徒歩15分/約1,200ⅿ)

赤坂コミュニティーぷらざ
赤坂コミュニティーぷらざ

地域の住民が集まる公共施設で、会議室やホールがあり、さまざまなイベントや教室が開かれています。地域の情報が集まる場所でもあり、地元の人々との交流を深めるきっかけにもなる場所です。

医療法人財団 順和会 山王病院
(徒歩17分/約1,300ⅿ)

医療法人財団 順和会 山王病院
医療法人財団 順和会 山王病院

山王病院は総合病院として地域に根付いています。特に婦人科や産科での評価が高く、妊婦さんの通院姿も見かけます。医療施設が充実していることで、急な体調不良や定期健診などでも安心して利用できます。院内は清潔で落ち着いた雰囲気があり、患者や家族が安心して過ごせる環境が整っています。

幼稚園、保育園、学校

赤坂保育園(徒歩9分/約650ⅿ)

赤坂保育園
赤坂保育園

港区立小中一貫教育校 赤坂学園
(徒歩10分/750ⅿ)

港区立赤坂学園
港区立赤坂学園

イベント

赤坂氷川神社

赤坂氷川神社
赤坂氷川神社

赤坂氷川神社は、地元住民に親しまれている神社です。歴史を感じさせる静かな境内は、都会の喧騒を忘れさせる場所です。年中行事や季節ごとの祭りが行われ、特に毎年9月の赤坂氷川祭では神輿が町内を練り歩く様子が見られ、地域の伝統を感じることができます。

まとめ

都心のその奥にある、
赤坂の独特
にこだわった住まい

パークハウス赤坂氷川は、赤坂という都心の一等地に位置する、静かで落ち着いた住環境を提供しているマンションです。赤坂の豊かな歴史や自然、そして多彩な施設が徒歩圏内にそろうこの環境は、日々の生活に潤いを与えてくれるでしょう。交通アクセスも良好で、ビジネスやレジャー、ショッピングといったさまざまなシーンで利便性を感じることができます。建物自体もデザイン性が高く、上質な都市生活を楽しむための条件が備わっています。

パークハウス赤坂氷川

駅徒歩 不動産の表示に関する公正競争規約の改正(2022年9月1日)により、交通利便情報が販売中のものと異なる場合がございます。

東京メトロ千代田線
「赤坂」駅 徒歩5分

築年月

2008年5月

総戸数

97戸

階数

地上14階 地下1階