住友商事|住友不動産 クラッシィ白金台
シティハウス
Concept 目黒通り沿い白金台駅前の高台、城門を彷彿させる石造りの重厚なエントランスゲートが特徴的な都市型プレミアムマンション

クラッシィ白金台シティハウス

「白金台」駅 徒歩1分

天井高約2.57m、
ハイサッシュ、ワイドサッシュ採用で
開放的な室内

地上14階、総戸数88戸の都市型プレミアムマンション

2025.01.24 公開

LOCATION ロケーション

「白金台」駅まで
徒歩1分!
目黒通り沿いに立地

クラッシィ白金台シティハウス アプローチ
クラッシィ白金台シティハウス アプローチ

クラッシィ白金台シティハウスは、目黒通り沿いに面した希少な高台に建つ好立地物件です。海抜30mと白金台エリアで最も高い場所にあります。目の前に目黒通りが走っていて、都営三田線・東京メトロ南北線が通る「白金台」駅から徒歩1分と非常に便利です。「白金台」駅の隣の「目黒」駅は、歩いても14分ほど。お花見スポットとして有名な目黒川沿いの桜も気軽に楽しめます。

クラッシィ白金台シティハウス 外観
クラッシィ白金台シティハウス 外観

マンションの1階にはコンビニエンスストア、目黒通りを挟んだ向かいには24時間営業のスーパーがある他、100円ショップやドラッグストアも徒歩2~3分の距離にあり、普段の買い物にも便利です。
長い歴史を持つ白金。南北朝時代には白金長者と呼ばれる裕福な豪族が住み、江戸時代には武家屋敷が建ち並んでいた地歴のある場所です。今もなお邸宅地の雰囲気が息づいています。目黒通りや公園には平日の昼間から優雅に愛犬との散歩を楽しむ人の姿が多く見られ、高級住宅街であることを感じます。

八芳園
八芳園

結婚式場で有名な八芳園をはじめ、明治学院大学や、クラッシィ白金台シティハウスのすぐ南側にある瑞聖寺など、歴史と風格を感じさせるスポットが多く、一帯に静けさと落ち着きをもたらしています。治安が良く、喧騒とは無縁の落ち着いた街と言えます。

瑞聖寺
瑞聖寺

緑あふれる街であることも、白金台が多くの人に愛される理由でしょう。付近には広大な敷地を持つ国立科学博物館附属自然教育園や東京都庭園美術館など緑豊かな施設が多くあります。遊具を備えた子ども向けの小さな公園もたくさんあり、ファミリー世帯にも人気です。都心でありながら自然の息吹を感じられます。

東京大学医科学研究所
東京大学医科学研究所

また、東京大学医科学研究所や北里大学白金キャンパスなど研究機関や教育施設が多く、インターナショナルスクールも点在。文教の街であることも落ち着いた雰囲気に一役買っています。

FEATURES 建物の特徴

重厚でノーブル 
名刹に隣接する
借地権マンション

コンセプト・デザイン

クラッシィ白金台シティハウス エントランス
クラッシィ白金台シティハウス エントランス

2002年4月竣工のクラッシィ白金台シティハウスのコンセプトは、“ノーブルなハイソサエティ”。外観にはニューヨークの古き良き建築様式の風格が感じられます。重厚さと高貴さを兼ね備えたデザインが特長です。格調高いタイル貼りの外観で、石造りの重厚なエントランスゲートが城門を彷彿とさせます。

建物構造

SRC構造のマンション。地上14階・地下1階建てで、総戸数は88戸。耐震等級2、劣化対策等級3を取得しています。二重天井で遮音性を高めています。

COMMON AREA 共用部

雨にぬれずに
車の乗降ができて便利

共用施設

クラッシィ白金台シティハウス 敷地配置図
クラッシィ白金台シティハウス 敷地配置図

エントランスを入るとレセプションホールがあり、多彩なサービスに対応するコンシェルジュ・カウンターがあります。絵画やグランドピアノが配置されたピアノラウンジからは、ガーデンテラスの緑が見えて心が和みます。

メインエントランスとカーポーチエントランスは歩車分離を実現。雨にぬれずに車の乗り降りができて便利です。全88戸に対し、63台分の駐車場を確保。出庫待ちの時間短縮を図るため、遠隔出庫予約システムを導入しています。

多重セキュリティーシステムとオートロックを採用。充実したセキュリティで安心です。内廊下なのでホテルのような高級感があり、建物内に入れば雨風や暑さ寒さもなく、外の目を気にする必要もありません。エレベーターホールへ続く途中にもギャラリーホールが設けられ、ソファでくつろぐこともできます。

サービス

コンシェルジュサービス

コンシェルジュ

※画像はイメージです。

一階エントランスホールのカウンターでは、毎日8時~20時までホテルライクなコンシェルジュサービスを利用できます。

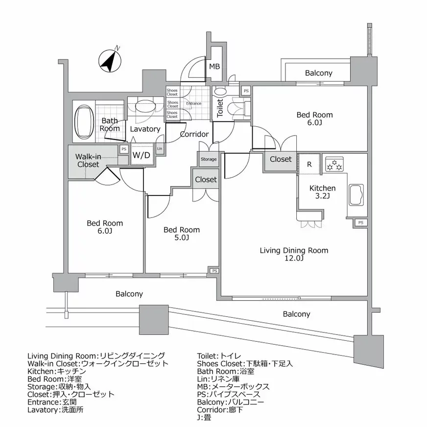
FLOOR PLAN 間取り図一例

クラッシィ白金台シティハウス 間取り図例
クラッシィ白金台シティハウス 間取り図例
クラッシィ白金台シティハウス 間取り図例
クラッシィ白金台シティハウス 間取り図例

眺望と採光に優れた南向き住戸が中心です。

INSIDE THE ROOM 室内

ハイサッシで明るく
開放感のあるリビング

玄関

玄関ドアには耐震枠を採用。これは、ドアとドア枠との間に隙間を設けることで、揺れによって発生する歪みが吸収できる仕組みです。地震発生時に建物が歪んでドアが開かなくなり、避難できないという状況を防ぎます。

リビングルーム

約2.57mの天井高近くまであるハイサッシで、風通しの良い明るく開放感のある空間をつくっています。また、リビング・ダイニングには天井埋め込み式のカセットエアコンを採用することで、スッキリした空間を実現しています。

キッチン

バルコニー面に設置することで、大きな開口部と勝手口を備えた明るく開放的なキッチンを実現。食事の支度や片付けをしながら家族との会話も楽しめる対面式カウンターです。ビルトインの食器洗浄機は鍋やたくさんの食器を一度に洗える大きめサイズです。

ベッドルーム

主寝室には大型ウォークインクローゼットを標準装備。6畳以上のゆとりあるスペースと高い収納力で便利です。

ウォークインクローゼット

※画像はイメージです。

バスルーム

追い焚き機能付きの大型フルオートバスとなっています。雨の日などの衣類乾燥にも役立つ浴室換気乾燥機を標準装備。シャワーは好きな高さに調節できます。

洗面台

大理石のワイドなカウンタートップと三面鏡を備えたパウダールームとも呼べる仕様で、ゆったり落ち着いてメイクやスキンケアをすることできます。洗剤やリネン類などのストックに便利なメディシンボックスやリネン庫など、豊富な収納スペースも確保されています。

トイレ

ワイドな手洗いカウンターが備え付けられています。

その他のポイント

家族団らんの場としても客間としても使える和室は、ふすまを開けるだけでリビングとの一体感が生まれるように設計されています。

ACCESS アクセス

「大手町」駅に直通14分と
利便性が高い

鉄道

白金台駅
白金台駅

クラッシィ白金台シティハウスの最寄り駅は「白金台」駅。東京メトロ南北線・都営三田線の2路線が利用できます。JR山手線や東急目黒線に乗り換えられる「目黒」駅まで1駅、JR総武線などが通る「飯田橋」駅などに乗り換えなしで移動できるなど、アクセスに優れています。主要な駅への経路と所要時間は以下のとおりです。

「渋谷」駅まで

渋谷駅
渋谷駅

「白金台」駅から都営三田線で「目黒」駅まで行き、JR山手線に乗り換えます。所要時間は11分。再開発で新スポットが増えた渋谷は、休日のレジャーにも適したエリアです。

「大手町」駅まで

「白金台」駅で都営三田線に14分乗れば、多くの路線が通る「大手町」駅に到着です。ここから5~6分歩けば地下通路でつながる「東京」駅にも行けます。

「飯田橋」駅まで

飯田橋駅
飯田橋駅

「白金台」駅から東京メトロ南北線で16分ほど。乗り換えの必要はありません。

「新宿」駅まで

新宿駅
新宿駅

「白金台」駅から東京メトロ南北線を利用して「目黒」駅へ。JR山手線に乗り換えます。所要時間は約18分です。

「池袋」駅まで

池袋駅
池袋駅

「白金台」駅から都営三田線に乗って「目黒」駅まで移動し、JR山手線に乗り換えれば約22分で到着します。

「上野」駅まで

「白金台」駅から東京メトロ南北線で「溜池山王」駅へ移動し、銀座線に乗り換えます。所要時間はおよそ25分です。

タクシー

タクシー

※画像はイメージです。

「六本木」駅まで約13分、「渋谷」駅まで約18分、「浜松町」駅まで約20分、「上野」駅まで約26分、「新宿」駅まで約28分でアクセスできます。

バス

バス

※画像はイメージです。

近くの「白金台駅前」バス停から都営バスに乗れば、品川駅や目黒駅に行けます。

新幹線発着駅

「品川」駅まで

「白金台」駅で都営三田線に乗り、「目黒」駅でJR山手線に乗り換えれば約14分でアクセス可能。
タクシーならおよそ約7分で到着するので、気軽に新幹線を利用できるでしょう。

「東京」駅まで

「白金台」駅から都営三田線に乗車して「大手町」駅で下車。東京メトロ丸ノ内線に乗り換えます。所要時間は約25分。「大手町」駅から徒歩でも行けます。
タクシーを使えば約24分でアクセス可能。

空港

空港

※画像はイメージです。

羽田空港へのルート

「白金台」駅から都営三田線で「三田」駅まで行き、都営浅草線に乗り換えて「羽田空港第1・第2ターミナル」駅まで。25分ほどで到着します。
タクシーを使えば、およそ31分で羽田空港に到着します。

成田空港へのルート

「白金台」駅から都営三田線で「三田」駅まで行き、浅草線特急に乗り換えて「青砥」駅へ。京成成田空港線スカイライナーで「成田空港」駅で下車。およそ62分で到着します。
タクシーを使えば約65分でアクセスできます。

LIFE
INFORMATION 周辺の施設・店舗情報

普段使いに便利な施設が
徒歩圏内にいくつもある

商業施設、商店街

マルエツプチ白金台店(徒歩1分/約40m)

マルエツプチ白金台店
マルエツプチ白金台店

「白金台」駅前にある24時間営業のスーパー。プチの割には一通りそろっている印象です。クラッシィ白金台シティハウスの1階には「セブン-イレブン 白金台駅前店」もあり、早朝や深夜にも買い物ができます。

プラチナドン・キホーテ 白金台店
(徒歩2分/約140m)

プラチナドン・キホーテ 白金台店
プラチナドン・キホーテ 白金台店

2019年にオープンしたディスカウントストア。基本的には他のドン・キホーテと同じ庶民的な品ぞろえですが、松阪肉専門店「朝日屋」が出店しているなど、白金ならではの部分もあります。

ツルハドラッグ 白金台店(徒歩2分/約160m)

ツルハドラッグ 白金台店
ツルハドラッグ 白金台店

プラチナドン・キホーテと100円ショップのキャンドゥに挟まれたドラッグストア。奥に細長い造りで見た目より広く、品ぞろえ豊富。処方箋・調剤以外は23時まで営業しています。

いなげや白金台店(徒歩4分/約260m)

いなげや白金台店
いなげや白金台店

生鮮食品を買いたいときはここが便利でしょう。ワンフロアですが品揃えは充実。総菜、ワインなどの酒類も豊富です。目黒通り沿いのビルの1階にあり、平日も賑わっています。普段の買い物なら目黒通り沿いでまかなえそうです。

自然、公園

白台児童遊園(徒歩1分/約70m)

白台児童遊園
白台児童遊園

目黒通り沿いにある小さな公園。民家に囲まれ平和な雰囲気です。すべり台やブランコ、砂場、スプリング遊具などがあり、小さな子どもが楽しく遊ぶ様子が見られます。トイレや屋根付きのベンチとテーブルもあり、こぢんまりとしていますが整備が行き届いている印象です。

港区立白金台三丁目遊び場
(徒歩4分/約250m)

港区立白金台三丁目遊び場
港区立白金台三丁目遊び場

白金台幼稚園の向かいにあり、基本の遊具がそろっています。すぐ近くにはボール遊びが出来る投球場エリアも用意されています。

白金台どんぐり児童遊園(徒歩5分/約350m)

白金台どんぐり児童遊園
白金台どんぐり児童遊園

目黒通りに面した、国立自然教育園や東京都庭園美術館にほど近い公園。遊具もありますが、開放的な広場や築山に加え、夏には水遊びを楽しめる「じゃぶじゃぶ池」も利用でき、子どもたちがのびのびと遊べそうです。名前の通り、秋になるとたくさんのどんぐりがなります。ベンチやテーブルもあるので休憩にぴったり。スーパーも近いので、昼時にはお弁当や総菜を食べることもできそうです。

国立科学博物館附属 自然教育園
(徒歩6分/約450m)

国立科学博物館附属 自然教育園
国立科学博物館附属 自然教育園

東京都庭園美術館に隣接する広大な緑地。シイの巨木をはじめモミジ、コナラなどの木々が生い茂り、池や小川などもあります。植物には名称や特徴が記載された解説板が付けられていて、知識を深めながら自然を楽しめます。日曜観察会や自然史セミナーといったイベントも行われています。

暮らし、インフラ

目黒通り(徒歩1分/約10m)

目黒通り
目黒通り

港区の桜田通りの清正公前交差点から、世田谷区の多摩堤通りに至る10kmの都道です。通り沿いにはスーパーや公園、ファミリーレストラン、区民のための複合施設などが多くあり、地元住民にとって欠かせない場所になっています。

プラチナ通り(徒歩7分/約550m)

プラチナ通り
プラチナ通り

地名の白金からその名が付いた、目黒通りから北へ延びる約1km続くストリート。イチョウ並木沿いにおしゃれなカフェやレストラン、美容サロン、ブティックなどが建ち並んでいます。散歩がてら歩きながら流行を感じてみるのも良いでしょう。

港区立郷土歴史館(徒歩4分/約300m)

港区立郷土歴史館
港区立郷土歴史館

「白金台」駅からすぐの場所にある複合施設「ゆかしの杜」は、昭和13年に建てられた「公衆衛生院」を改修して利用されています。郷土歴史館をはじめ、子育てひろば、学童クラブ、区民協働スペースといったコミュニティ施設、医療支援施設やカフェなどが入っています。

東京都庭園美術館(徒歩10分/約750m)

東京都庭園美術館
東京都庭園美術館

旧・皇族朝香宮家の自邸として建てられた本館は、主要な部屋の内装にアール・デコ様式を採用。国の重要文化財に指定されています。宮邸時代の面影を残した庭園は、開放感のある芝生の前庭と起伏に富んだ日本庭園。展覧会は日時指定の事前予約制ですが、庭園だけなら当日チケットで入れるので、思い立ったときに優雅な散策を楽しめます。

高輪コミュニティープラザ
(徒歩13分/約1,000m)

高輪コミュニティープラザ
高輪コミュニティープラザ

東京メトロ南北線と都営三田線が通る「白金高輪」駅直結の複合施設で、区民ホールや図書館などが入っています。クラッシィ白金台シティハウスのある白金台3丁目を管轄する高輪地区総合支所区役所もあり、転出入の手続き、住民票の写しやマイナンバーカードの交付などができます。

幼稚園、保育園、学校

港区立白金台幼稚園(徒歩4分/約250m)

港区立白金台幼稚園
港区立白金台幼稚園

アイグラン保育園白金台(徒歩4分/約280m)

アイグラン保育園白金台
アイグラン保育園白金台

ローラス インターナショナルスクール
オブ サイエンス
(徒歩5分/約350m)

ローラス インターナショナルスクール オブ サイエンス
ローラス インターナショナルスクール オブ サイエンス

evoke communication academy
(徒歩5分/約400m)

evoke communication academy
evoke communication academy

港区立白金小学校(徒歩6分/約450m)

港区立白金小学校
港区立白金小学校

港区立高松中学校(徒歩12分/約950m)

港区立高松中学校
港区立高松中学校

まとめ

駅近・目黒通り沿いの邸宅で
快適な暮らしを

コンシェルジュ・カウンターやピアノラウンジ、雨にぬれずに車の乗り降りができるエントランス、遠隔出庫予約システムを採用している駐車場など、共用部が充実した借地権マンション。
「大手町」駅まで14分の「白金台」駅が徒歩1分の距離にあり、スーパーやドラッグストア、クリニックなど普段使いに便利な施設が徒歩圏内にいくつもあります。加えて教育施設や公園も多く、子育て環境にも恵まれています。

クラッシィ白金台
シティハウス

駅徒歩 不動産の表示に関する公正競争規約の改正(2022年9月1日)により、交通利便情報が販売中のものと異なる場合がございます。

都営三田線
「白金台」駅 徒歩1分

築年月

2002年4月

総戸数

88戸

階数

地上14階 地下1階