旭化成不動産レジデンス アトラス市ヶ谷 Concept 真の意味で「都心の中枢」に暮らす、皇居の周縁から主要エリアへ縦横無尽にアクセスできるマンション

アトラス市ヶ谷 外観

東京メトロ南北線 「市ケ谷」駅 徒歩4分

外壕の水辺や防衛省の木々を臨む自然を享受できる住環境

地上13階、総戸数48戸の都市型小規模マンション

2025.01.17 公開

LOCATION ロケーション

都会の利便性と歴史ある
名所が共存した街

コモレモール
コモレモール

「アトラス市ヶ谷」は、JR中央線・総武線、東京メトロ南北線、有楽町線、都営新宿線の5つの路線が利用できる「市ヶ谷」駅まで徒歩4分、JR中央本線「四ツ谷」駅まで徒歩9分という、都内各所にアクセスしやすいマンションです。また「コモレモール」や「アトレ四谷」などのショッピングスポットが徒歩圏であり、非常に利便性の高いエリアにあります。

市谷亀岡八幡宮
市谷亀岡八幡宮

アトラス市ヶ谷の近隣には市谷亀岡八幡宮や浄瑠璃坂など、江戸時代からの歴史を感じさせる観光スポットがあります。マンションの所在地である市谷本村町は尾張徳川家の上屋敷があった場所であり、都心の歴史を見守ってきた土地として由緒正しき街並みが広がっています。

靖国通り
靖国通り

アトラス市ヶ谷は、靖国通り沿いに立地しているマンションです。近隣には防衛省など公的機関が集まっており、春には美しい桜が咲く市ヶ谷濠、そして靖国神社など散策しがいのある、東京の多様な顔を楽しめるエリアです。

FEATURES 建物の特徴

垂直と水平を
効果的に組み合わせた
立体的デザイン

コンセプト・デザイン

アトラス市ヶ谷 レリーフ
アトラス市ヶ谷 レリーフ

アトラス市ヶ谷は、旭化成不動産レジデンス株式会社が開発する「都心の好立地を舞台とする」都市型マンションのブランドである「アトラス」シリーズの地上13階、総戸数48戸の都市型小規模マンションとして、2017年9月に竣工しました。利便性が高く自然にも恵まれた立地であることから着想を得て、都心で暮らす中にも「誇りと安らぎを感じられる」マンションであることがテーマになっています。

外観のデザインはアースカラーをベースに、タイル・金属・ガラスといった部材を統一感を崩さないように調和させています。正面から見ると立体的な垂直ラインが特徴的で、下から見上げると水平のラインが立体的に浮かび上がる絶妙なコントラストになっています。

アトラス市ヶ谷 植栽
アトラス市ヶ谷 植栽

手入れが行き届いた植栽に加え、ベージュのタイル貼りに絶妙な変化をもたらす玉砂利がエントランスを彩っています。館内にはガラスウォール越しに緑と自然石がある美しい中庭が広がっており「緑の連続」を表現した空間演出が特徴です。

建物構造

アトラス市ヶ谷 全邸角住戸の開放感
アトラス市ヶ谷 全邸角住戸の開放感

アトラス市ヶ谷は靖国通り側だけでなく背面も道路に面しているため、全邸が角住戸となっています。そのため、どの部屋を選んでも全面に建物がなく、都心にありながら窓からの開放感ある眺望が確保されていることが魅力です。もちろん住戸の向きによって景観は変わり、防衛省の木々を眺められる邸宅や、心地よい日当たりが得られる部屋など様々です。

外部の視線を気にならない内廊下

人通りが多い都心のマンションでは、プライバシーの確保を求める方が多いです。アトラス市ヶ谷は共用廊下に内廊下が採用されているため、セキュリティ面でも安心できる仕様になっています。また、ホテルライクな高級感も内廊下の魅力であり、都心に住まう方のニーズを満たしています。

防災設備

非常用発電設備

非常用発電設備は、停電や災害時に電力供給を維持するための装置です。マンションに非常用発電設備があることにより、停電時にエレベーターが動かせたり給水設備を維持できたりします。災害時に共用照明へ電気を供給する役割もあり、防災設備として重要な役割を担っています。

管制運転機能付きエレベーター

管制運転機能付きエレベーターは、火災や地震などの緊急時に自動的に最寄りの階に移動し、乗客を安全に降ろす機能があります。この機能があることで、お住いの方は安心してエレベーターを利用することが可能です。

防災倉庫

アトラス市ヶ谷の1〜3階には防災倉庫が設置されており、いつ起こるかわからない災害に備えて様々な防災用品を備蓄しています。

セキュリティ

ダブルオートロック

アトラス市ヶ谷は、エントランスとエレベーターホール前の2箇所でICチップ付きの鍵を使って解錠する必要がある「ダブルオートロック」を採用しています。各住戸前のロックと合わせたトリプルセキュリティで、お住いの方の安心・安全を確保しています。

セキュリティインターホンシステム

セキュリティインターホンシステムとは、お住いの方と訪問者のコミュニケーションを安全に行うための設備です。訪問者の映像を住戸内のモニターに映し出すことで、お住いの方は「誰がきたのか」を確認したうえでドアを開けるか判断できます。

COMMON AREA 共用部

都心の邸宅にふさわしい
洗練されたパブリック空間

アトラス市ヶ谷の共用部には、緑の連続性を感じさせる植栽を活かしたエントランスや自然石を使った中庭など、街並みとの調和を図りつつも住まう方だけの特別な空間が広がっています。

共用施設

プライベートを謳歌するやすらぎの空間

アトラス市ヶ谷 エントランス
アトラス市ヶ谷 エントランス
アトラス市ヶ谷 敷地配置図
アトラス市ヶ谷 敷地配置図

エントランスからエントランスホール・エレベーターホールまで石造りとなっており、色味はブラウンとベージュで統一されていて連続性のある空間になっている。都心でありながら自然が感じられる立地であることも意識して、随所に緑が取り入れられた設計となっていることが特徴です。

宅配ボックス

アトラス市ヶ谷には宅配ボックスが設置されているため、お住いの方は不在時でも荷物を受け取ることが可能です。住戸の鍵がなければ取り出せないため、セキュリティ面でも安心感があります。

FLOOR PLAN 間取り図一例

全邸角住戸の
開放感ある居住空間

アトラス市ヶ谷 間取り図例
アトラス市ヶ谷 間取り図例
アトラス市ヶ谷 間取り図例
アトラス市ヶ谷 間取り図例

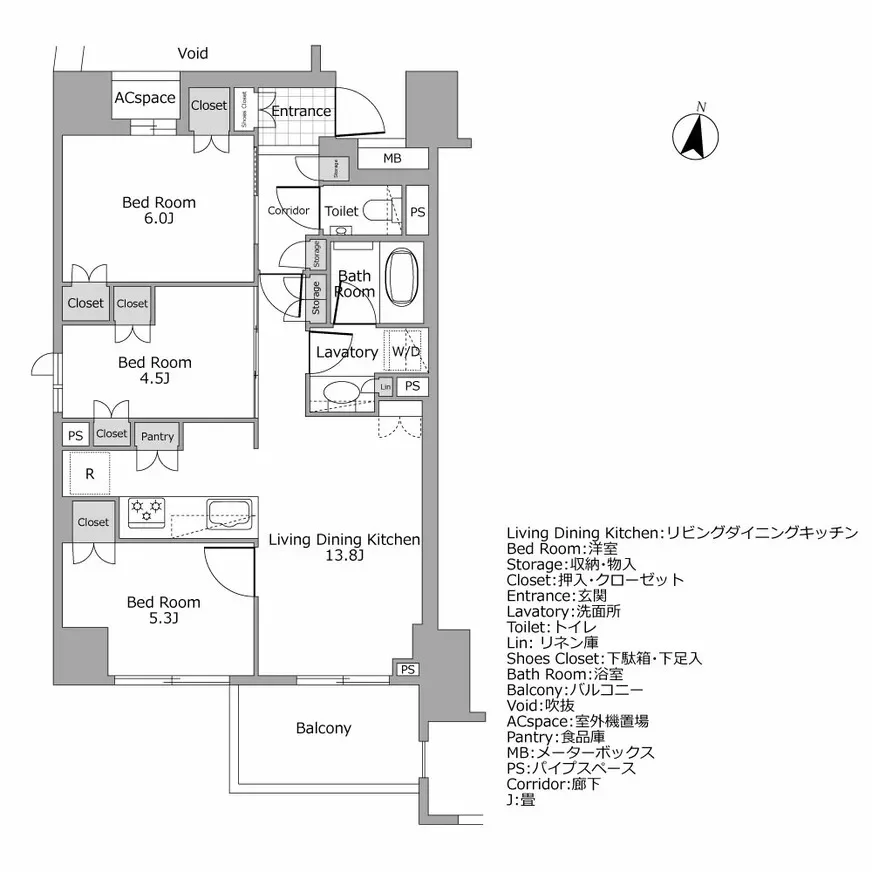
各戸の広さは42㎡~65.㎡台で間取りは1LDK~3LDK、ビルトイン浄水器・食器洗い乾燥機が標準装備されています。

INSIDE THE ROOM 室内

都心に住む方にふさわしい充実した設備

アトラス市ヶ谷の室内は、都心にありながら開放感が得られる角住戸の特性を存分に味わえます。さらに浄水器や食器洗い乾燥機など、生活のクオリティを向上させる設備が揃っています。

設備

ビルトイン浄水器

※画像はイメージです。

アトラス市ヶ谷の角住戸にはビルトイン浄水器が設置されていて、専用の蛇口をひねるだけで塩素や不純物が取り除かれた「おいしい水」を飲むことが可能です。料理にも気軽に利用できる点もメリットです。

ビルトイン食器洗い乾燥機

※画像はイメージです。

食器洗い乾燥機がキッチンに組み込まれており、設置スペースを有効活用できて見た目にもスッキリとした印象です。家事の手間を減らすだけでなく、高温のお湯でしっかり洗えるので衛生面でも安心できます。

ACCESS アクセス

新宿をはじめとした、
主要都市への
アクセスが優秀

こちらでは最寄りの「市ケ谷」駅から、主要エリアの所要時間を紹介いたします。

鉄道

市ヶ谷駅 出口
市ヶ谷駅 出口
  • 六本木駅
    都営新宿線利用「新宿」駅で都営大江戸線に乗り換えます。所要時間は約15分です。
  • 渋谷駅
    JR中央/総武線利用「代々木」駅でJR山手線に乗り換えます。所要時間は約13分です。
  • 銀座駅
    JR中央/総武線利用「四ツ谷」駅で東京メトロ丸ノ内線に乗り換えます。所要時間は約11分です。
  • 東京駅
    JR中央/総武線利用「御茶ノ水」駅でJR中央/総武線快速に乗り換えます。所要時間は約10分です。
  • 品川駅
    東京メトロ南北線利用「溜池山王」駅で東京メトロ銀座線に乗り換え「新橋」駅でJR東海道本線に乗り換えます。所要時間は約15分です。
  • 新宿駅
    都営新宿線を利用し、直通で約6分、またはJR中央/総武線直通で約10分です。

タクシー

※画像はイメージです。

アトラス市ヶ谷の目の前には靖国通りが通っているため、道路には数多くのタクシーが走っています。交通状況によりますが、道が空いていれば「新宿」駅に約10分で到着が可能です。「六本木」駅には約15分、「銀座」駅には約17分、「東京」駅には約17分、「渋谷」駅には約18分でアクセスできます。

バス

※画像はイメージです。

アトラス市ヶ谷の付近にはバス路線が通っております。徒歩3分の場所にある「防衛省前」バス停から「九段下」駅まで約12分で到着が可能です。

新幹線発着駅

「東京」駅へのルート

東京駅
東京駅

「市ケ谷」駅から「東京」駅に向かうためには、以下のルートが便利です。

  • ルート1:都営新宿線で「九段下」駅に行き、そこから東京メトロ東西線で「大手町」駅で下車。そこから徒歩で向かいます。所要時間は約10分です。
  • ルート2:「市ケ谷」駅から有楽町線に乗って「有楽町」駅で降ります。そこから徒歩で「東京」駅へ向かうことができます。所要時間は約11分です。

「品川」駅へのルート

品川駅 改札
品川駅 改札

東京メトロ有楽町線で「有楽町」駅に行き、そこからJR山手線に乗り換えてアクセスします。所要時間は約24分です。

空港

※画像はイメージです。

羽田空港へのルート

①電車でのアクセス
  • ルート1:「市ケ谷駅」から東京メトロ南北線に乗り「白金高輪」駅で下車。都営三田線に乗り換えて「三田」駅で降り、都営浅草線乗り換えて「泉岳寺」駅から直通で京急本線・空港線に入り、「羽田空港第1・第2ターミナル」駅へ向かいます。アトラス市ヶ谷からの所要時間は約42分です。
  • ルート2:「市ケ谷駅」から都営新宿線に乗り「九段下」駅で下車。東京メトロ南北線に乗り換えて「日本橋」駅で降り、都営浅草線に乗り換えて「泉岳寺」駅から直通で京急本線・空港線に入り「羽田空港第1・第2ターミナル」駅へ向かいます。アトラス市ヶ谷からの所要時間は約43分です。
②リムジンバスでのアクセス

アトラス市ヶ谷からリムジンバスに乗るには、まず徒歩20分の場所にある「ホテルニューオータニ」へ行きます。そこからエアポートリムジンバスが出ており、羽田空港まで約60分です。※現在、全便運休となっています

成田空港へのルート

①電車でのアクセス
  • ルート1:「市ケ谷駅」からJR中央/総武線に乗り「浅草橋」駅で下車。都営浅草線に乗り換えて「押上」駅から直通で京成押上線の「青砥」駅で下車。京成スカイライナーに乗り換えて成田空港へ向かいます。アトラス市ヶ谷からの所要時間は約65分です。
  • ルート2:「市ケ谷駅」からJR中央/総武線に乗り「秋葉原」駅で下車。JR山手線に乗り換えて「日暮里」駅で降り、京成スカイライナーに乗り換えて成田空港へ向かいます。アトラス市ヶ谷からの所要時間は約70分です。
②リムジンバスでのアクセス

アトラス市ヶ谷からリムジンバスに乗るには、まず徒歩20分の場所にある「ホテルニューオータニ」へ行きます。そこからエアポートリムジンバスが出ており、成田空港まで約120分です。

LIFE
INFORMATION 周辺の施設・店舗情報

文化と便利が共存する街、市ヶ谷

アトラス市ヶ谷の周辺には、さまざまな商業施設や複合施設が集まっております。

商業施設、商店街

ローソン 四谷本塩町店(徒歩3分/約180m)

ローソン 四谷本塩町店
ローソン 四谷本塩町店

アトラス市ヶ谷から徒歩3分で、最寄りのコンビニエンスストアであるローソン四谷本塩町店があります。日用品と食料品など幅広いラインナップで気軽に利用しやすいのが魅力です。コピー機があり、公共料金の支払いやATMの利用などサービスが充実しているため、急な用事にも対応できるでしょう。24時間営業なので帰りが遅くなってしまった場合でも安心して利用できます。

くすりの福太郎市ヶ谷店(徒歩4分/約270m)

くすりの福太郎市ヶ谷店
くすりの福太郎市ヶ谷店

くすりの福太郎市ヶ谷店は、JR市ヶ谷駅を出て靖国通りを挟んだすぐの場所に位置しています。医薬品だけでなく日用品や食料品も充実しており、多くの人に愛されているドラッグストアです。毎月9のつく日は「10%OFF」「ポイント10倍」などのセールを行っており、お得なサービスを提供しています。JR市ヶ谷駅からアトラス市ヶ谷までの途中に位置しており、立ち寄りやすくたいへん便利です。

コモレモール(徒歩9分/約700m)

コモレモール
コモレモール

2.4haという大規模再開発プロジェクトで誕生した、コモレ四谷内の商業ゾーンにコモレモールがあります。コモレモールはビジネスシーンからデイリーユースまで昼夜問わず楽しめる多彩なお店が立ち並んでいます。周辺には約3,300㎡の「コモレビの広場」、駅前側に交流空間として約1,000㎡の「出迎えの広場」があり、緑豊かな空間を創出した大型の複合施設です。

アトレ四谷(徒歩9分/約700m)

アトレ四谷
アトレ四谷

「アトレ四谷」は、JR中央/総武線「四ツ谷」の駅上に建っているショッピングセンターです。1階は飲食店やカフェが集まっており、2階にはファッションや美容、サービス関連の店舗が連ねています。

自然、公園

市ヶ谷濠(徒歩3分/約220m)

市ヶ谷濠
市ヶ谷濠

市ヶ谷濠は東京の歴史と文化を感じられる貴重な場所です。さくらの名所として、3月下旬から4月上旬に行われる「千代田のさくらまつり」では、毎年国内外から100万人以上のお花見客が来場します。市ヶ谷濠を囲うように広がる外濠公園はケヤキやカエデがあり、総武線の車窓から美しい紅葉を望むことができます。

市谷亀岡八幡宮(徒歩4分/約300m)

市谷亀岡八幡宮
市谷亀岡八幡宮

市谷亀岡八幡宮は文明11年(1479年)、西方の守護神として鎌倉の鶴岡八幡宮の分霊を祀ったのが始まりである500年の歴史のある神社です。JR市ケ谷駅から徒歩5〜6分ほどでアクセスできます。七五三のお祝いや初詣のご祈禱をペットと一緒に参拝できる神社として、多方面から注目を集めています。区内唯一の銅の鳥居をはじめとした、区指定の文化財が多くあります。

浄瑠璃坂(徒歩8分/約600m)

浄瑠璃坂
浄瑠璃坂

JR市ケ谷駅から靖国通りを挟んですぐにある、江戸時代から古い歴史を持つ坂です。名前の由来は浄瑠璃人形芝居の名手が住んでいたことなど諸説あります。かつてこの坂では、江戸時代の三大仇討にも数えられる「浄瑠璃坂の仇討」と呼ばれる事件がありました。現在、周辺は閑静な住宅街が佇んでおりますが、歴史の名残りを感じることのできるスポットです。

五番町児童遊園(徒歩9分/約700m)

五番町児童遊園
五番町児童遊園

JR市ケ谷駅とJR四ツ谷駅の間に位置する、土手の上に作られた公園です。外濠公園とは中央線を挟んで向かいに位置しております。公園からは、中央/総武線を見下ろすことができ、都心にありながらも眺めを楽しむことができる憩いの場として地域の住民から利用されています。すべり台・鉄棒・砂場などの遊具もあるため、昼間は子どもの声で賑わいを感じる公園です。

暮らし、インフラ

市ヶ谷駅前診療所(徒歩7分/約550m)

市ヶ谷駅前診療所
市ヶ谷駅前診療所

アトラス市ヶ谷から徒歩7分、JR市ケ谷駅からは徒歩1分という好立地にある診療所です。内科、皮膚科、循環器科、消化器科、アレルギー科と幅広く診療を行っているため、なんでも相談しやすい「かかりつけ医」として利用しやすい病院です。

みずほ銀行 市ヶ谷支店(徒歩7分/約500m)

みずほ銀行 市ヶ谷支店
みずほ銀行 市ヶ谷支店

アトラス市ヶ谷から徒歩7分、JR市ケ谷駅の目と鼻の先にみずほ銀行市ヶ谷支店があります。周辺には商業施設や郵便局などがあるため、まとめて用事を済ませられます。窓口は平日の9:00〜15:00まで営業しており、土日祝日は休日です。ATMは平日は26:00まで、土曜は22:00まで、日祝は21:00まで営業しているため、遅い時間でも利用できます。

千代田区役所 麹町出張所
(徒歩18分/約1,400m)

千代田区役所 麹町出張所
千代田区役所 麹町出張所

アトラス市ヶ谷から徒歩で18分、自転車に乗れば8分でアクセスできます。本庁舎まで直接、足を運ばなくても住民票の発行や各種行政サービスが受けられます。開庁時間は平日の8:30〜17:00です。区民館が併設されているため、使用料を支払えば会合や趣味の場として利用できます。

四谷駅前郵便局(徒歩8分/約600m)

四谷駅前郵便局
四谷駅前郵便局

郵便の荷物の発送や受け取りだけでなく、貯金や保険の窓口、ATMを利用できます。急ぎの書類や大きな荷物を送りたい時に近くにあると便利です。コモレモールの中に併設されているため、郵便局の用事の他にもお買い物や食事を楽しめます。移転してまだ4年程のため建物はとても綺麗です。

靖国通り

靖国通り
靖国通り

アトラス市ヶ谷の目の前を通る靖国通りは、隅田川に架かる両国橋から、新宿駅の北の大ガードまで続いています。周辺の沿道には防衛省があり、豊かな木々を眺めながら散歩ができます。名前の由来である靖国神社やその先には皇居があり、歴史的な背景を持つ場所が多いため、歩いて散策するのにぴったりな場所です。

幼稚園、保育園、学校

ポピンズナーサリースクール四ッ谷
(徒歩3分/約170m)

ポピンズナーサリースクール四ッ谷
ポピンズナーサリースクール四ッ谷

千代田区立番町幼稚園(徒歩13分/約1,000m)

千代田区立番町幼稚園
千代田区立番町幼稚園

新宿区立四谷小学校(徒歩14分/約1,100m)

新宿区立四谷小学校
新宿区立四谷小学校

新宿区立四谷中学校(徒歩12分/約950m)

新宿区立四谷中学校
新宿区立四谷中学校

イベント、お祭り

市谷亀岡八幡宮例大祭

市谷亀岡八幡宮の例大祭は、毎年8月上旬に催されるお祭りです。神社で行われるのは式典のみですが、各町会ごとに催しが各自行われます。あけぼのばし通りの商店街では、日中は神輿が担がれ、夜には盆踊りが開かれます。市谷薬王寺会では隔年で夏まつりが開かれて、八棟造の神輿が町内会で担がれます。地元の人々が集まり、豪華な屋台やパフォーマンスで賑わいを見せる歴史ある祭りです。

まとめ

優れた利便性と
歴史を感じる文化が
共存した物件

アトラス市ヶ谷は都心へのアクセスの良さに加え、周辺には教育機関や医療・商業施設が充実しており、生活に必要なすべてが揃っています。公園や緑地も多いため、自然を感じながらリラックスできる環境が整っています。歴史的な名所も点在するため、文化や歴史に触れながら都会と共存したこの街で生活できるのは、大きな魅力があるでしょう。

アトラス市ヶ谷

駅徒歩 不動産の表示に関する公正競争規約の改正(2022年9月1日)により、交通利便情報が販売中のものと異なる場合がございます。

東京メトロ南北線
「市ケ谷」駅 徒歩4分

築年月

2017年9月

総戸数

48戸

階数

地上13階