トヨタホーム|三菱地所 白金台レジデンス Concept 目黒通りと首都高2号線が交差する上大崎交差点から、一本奥の道を五反田方面に進んだ角地、城南五山 池田山の高台、周辺に緑が多い瀟洒な邸宅地、建物周囲に常緑の竹を纏い、基壇部にグレー、上層部にオフホワイトのタイルを使用した外観、水平基調のファサードデザイン

白金台レジデンス

白金台駅・目黒駅 徒歩9分2駅4路線利用可

扁平梁構造とハイサッシ採用天井高約2.5m

地上4階、総戸数21戸

2025.04.18 公開

LOCATION ロケーション

貴重な第一種低層
住居専用地域
だからこそ得られる
落ち着きの住環境

白金台レジデンスは品川区上大崎一丁目に建つ落ち着きのあるレジデンスです。JR山手線内側では数少ない「第一種低層住居専用地域」に指定されており、この地域は低層住宅のための良好な住環境を保護するために、建築物の容積率や高さなどに厳しい制限が設けられています。

品川区立池田山公園
品川区立池田山公園

この地は、江戸時代には豪壮な大名屋敷が建ち並ぶ城南五山と称された高台で、南国や西国の大名屋敷が建ち並んでいました。

目黒・白金の一帯は、明治から昭和初期にかけて歴史的風景を形成し、現在もその伝統と豊かな自然が受け継がれています。国立自然教育園や品川区立池田山公園といった豊かな自然と共にある都心邸宅地として、魅力的な輝きを放つエリアとなりました。

JR「目黒」駅
JR「目黒」駅

白金台レジデンスからの交通アクセスは良好で、都営三田線・東京メトロ南北線「白金台」駅と、JR「目黒」駅までは、それぞれ徒歩9分。2駅4路線が利用でき、都内様々な場所へも短時間で到着することができるでしょう。白金台レジデンスは、都心ならではの利便性と豊かな自然環境、そして歴史的な背景が融合した、稀有なロケーションにあると言えます。

FEATURES 建物の特徴

歴史ある街に溶け込む
外観ファサードと
作り込まれた
クラシカル&エレガントな
住空間

白金台レジデンス 外観
白金台レジデンス 外観

白金台レジデンスは、静謐な環境に溶け込む存在を目指し、外観は2色の外壁タイルを使用した水平基調の重厚感と洗練を併せ持つデザインとなっています。また、低層邸宅の特性を活かし建物中央に設けられた吹き抜け空間は、建物全体の明るさの演出とともに建物内に空気を循環させ、快適な居住空間を作り出しています。

コンセプト・デザイン

白金台レジデンス 外観
白金台レジデンス 外観

白金台レジデンスは2008年1月に竣工した地上4階・地下1階、RC構造のマンションです。総戸数は21戸で、「一邸一邸主義」というコンセプトに基づき、インテリアは全16タイプが設定されています。

白金台レジデンス エントランス
白金台レジデンス エントランス

モダンな印象の中に柔らかな質感と品格を漂わせるエントランスは、1~2m大の白御影石を割石状に配し、自然石ならではの風合いを生かした仕上げが施されています。そして、その奥には吹き抜けと一体となった明るく開放的なエントランススペースが広がっています。重厚な外観と対照的な明るく開放的な空間が、居住者を温かく迎えます。

建物構造

杭基礎

地表面(GL)から約29.5mの深さに、アースドリル拡底工法により杭径約1.2mの杭を22本打ち込むことで、堅牢な基礎を構築しています。

耐震性を高めた鉄筋構造

柱の粘り強さを高めるため、帯筋には溶接閉鎖型やスパイラルフープを採用。継ぎ目のないスパイラルフープは強度が均一で主筋の折れを防ぎ、特殊溶接で閉じた溶接閉鎖型フープ筋はコンクリートの拘束力が高く粘り強さに優れています。いずれも地震時の耐性に優れ、耐震性の向上に寄与しています。
また、床・壁の鉄筋はダブル配筋(一部チドリダブル配筋)となっており、通常のシングル配筋と比べひび割れが起きにくい構造となっています。

外壁・戸境壁

断熱性の向上とプライバシーを守るため、外部に面する壁厚は150mm以上を確保。さらに、外壁内側には約25mmの断熱材を吹き付け、9.5mm厚のプラスターボードを木軸下地もしくは軽鉄下地に貼りつけています。また、戸境壁の厚さは約200mmとなっています。

二重床・二重天井構造とボイドスラブ工法

白金台レジデンスでは、床材・天井材とコンクリートスラブとの間に空間を設ける二重床、二重天井構造を採用。また、工法は同じ重量のスラブ床に比べ、剛性・強度が高い特性を持たせることができ、小梁を少なくすることができるボイドスラブ工法が採用されています。約275mm・約300mmのコンクリートスラブを確保しています。
(※水周り部分など一部は厚み約180~約250mmの通常スラブとなります)

扁平梁とハイサッシ

すっきりとした空間を実現するため、梁は扁平梁が採用されています。リビングダイニングのサッシ高は約2,200mmを確保し、室内の開放感を演出しています。(※一部住戸を除きます)

セキュリティ

24時間体制のセキュリティシステム

エレベーターの故障や住戸内の火災、ガス漏れなどの異常にいち早く対応できるよう、共用・専有スペースともに24時間体制のセキュリティシステムが採用されています。異常発生時には、管理員室やエレベーター管理会社、警備会社へ自動的に通報されます。

スマートキー・スマートドアシステム

すべての住戸の玄関とエントランスのドアには、自動車のキーレスエントリーシステムを応用したスマートキー・スマートドアシステムを採用。鍵穴に鍵を差し込む必要がなく、携帯している鍵が一定の距離に近づくとセンサーが反応し、自動で解錠されるため、荷物を持っていてもスムーズに出入りが可能です。また、スマートキー以外での解錠に対して警報を鳴らす防犯モードの設定も可能です。

オートロックシステムと
カラーモニター付インターホン

エントランスへの来訪者を居住者が確認し解錠操作を行えるオートロックシステムを各邸に採用。お部屋にあるカラーモニター付インターホンで、来訪者を音と映像で確認することができます。

防犯マグネットセンサー

センサーが感知すると住戸内の住宅情報盤が鳴動し、警備会社へと自動通報する防犯マグネットセンサーが、全戸の玄関扉、窓(Fix窓を除く)に設置されています。また、1階及び2階(エントランス階)の住戸には、防犯ガラスが採用されています。

防犯性を高めた玄関ドアと特殊鍵

玄関ドアは防犯性を高めるために上下2カ所のダブルロックを採用しています。また、工具を使った不正解錠対策として、鎌式のデッドボルトが採用されています。
そして扉の鍵はほぼ複製が困難なディンプルシリンダーキーを採用。さらに、特殊な工具でデッドボルトを作動させて解錠する「カム送り解錠」対策として、扉内部の錠ケースと扉の隙間をなくした製品が採用されています。

自動照明機能「あけたらタイマ」

各邸には設定時間に照明を自動的にON・OFFさせることができる留守番タイマーを標準装備。不在時に在宅を装うことができる、犯罪抑止に効果的な装置です。

バス・トイレコール

万が一のトラブル発生に備え、各住戸の浴室とトイレにコールボタンを設置。各住戸に設置された住宅情報盤を通して、警備会社に通報されるシステムです。

COMMON AREA 共用部

プライバシーに配慮しつつ
開放感と視覚的変化が
愉しめるアプローチ

白金台レジデンスでは、プライバシーとセキュリティに配慮した「内廊下」形式を採用しています。明るく開放的なエントランスから各住戸へは、両側にアーチのように継がれた吹き抜けがあり、その吹き抜けには竹を中心とした植栽が施され、視覚的な変化も愉しめる設計となっています。

白金台レジデンス 敷地配置図
白金台レジデンス 敷地配置図

共用施設

エントランスホール

重厚なイメージのエントランスから中に入ると、そこに広がるのはライムストーン貼りの壁面と白御影石の床の、明るく柔らかな印象のエントランスホール。建物の中に入ることで安心感・開放感を感じられるよう設計された、エレガントな空間が広がります

開放感だけでなく外気を取り込み
環境を整える吹き抜け構造

「吹き抜け」空間は、建物内部に外部空間を取り込む最良の装置。白金台レジデンスでは建物の中心にその吹き抜け空間を設けることで、外光の取り込みと住戸から引き込まれた風を外部へと誘導しています。この光と風の効果により建物内には外気が循環。快適な環境が作られます。

リングシャッター装備の駐車場

駐車場への入り口には、リモコンで操作可能のシャッターゲートが設置されています。悪戯や盗難への対策など、セキュリティに配慮した設備です。

美しい景観のため
建物の内と外に植栽された木々

より美しい景観を創り出すため、白金台レジデンスの周囲にはヴェールで建物を取り囲むよう竹や紅葉などの木々が植えられています。また、エントランスホールの吹き抜けにも竹を中心とした植栽が施されており、建物の内と外で四季を感じさせるランドスケープを創造しています。

メールコーナー・宅配ロッカー

エントランスホール脇には、郵便物や宅配便などの受取ができるメールコーナー、宅配ロッカーが設置されています。

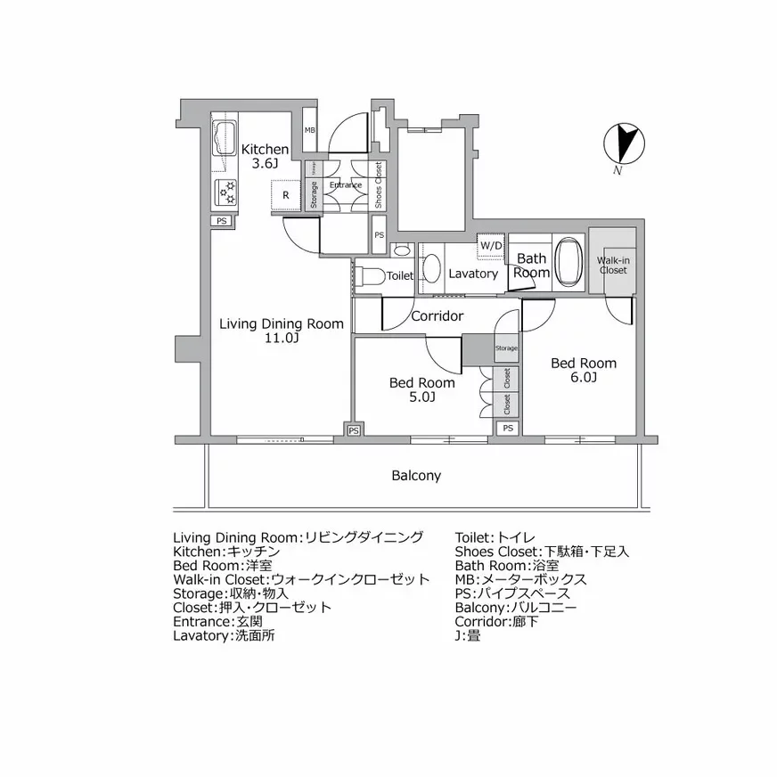
FLOOR PLAN 間取り図一例

「一邸一邸主義」に基づき
各邸ごとに異なる
プランを設定

白金台レジデンス 間取り図例
白金台レジデンス 間取り図例
白金台レジデンス 間取り図例
白金台レジデンス 間取り図例

INSIDE THE ROOM 室内

永く愛着を持って
暮らせるよう
考え抜かれた、
こだわりとゆとりの室内

室内は、より永く愛着をもって住んでもらえるよう、落ち着いたクラシカルかつエレガントな空間となるべくデザイン。特徴的な風合いの自然石やデザイン性の高い素材を採用した建具など、上質な時間を過ごせるようこだわりの設計・仕様となっています。

また、室内は扁平梁とハイサッシを採用し、開放感あふれる居室空間を実現。リビングとダイニングの基準天井高は約2,500mmを確保。サッシは約2,200mm高(一部住戸を除く)のハイサッシとなっています。さらに、玄関も約2,400mmの天井高を確保したタイプを用意(一部住戸を除く)。広々とした、ゆとりの空間を生み出しています。

リビング・ダイニング

TES温水式床暖房

床暖房

※画像はイメージです。

足元から体全体を暖めるTES温水式床暖房をリビングダイニングに装備。風を起こさず暖めるので、お肌の乾燥などにも配慮した健康的な暖房システムです。

エアコン

快適な生活に欠かせないエアコン。リビングダイニングと洋室1には、天井カセット式が標準装備され、室内をスッキリとした印象にまとめています。

システム収納

収納したい品々に柔軟に対応できる、レイアウト変更が可能な棚や引き出しを装備したシステム収納を各住戸に設置。機能的で使い勝手のよさが魅力です。(※引き出し等はオプション)

キッチン

機能的かつ衛生的な水回り

キッチン

※画像はイメージです。

機能性だけでなく美しさも兼ね備えたキッチンには、こだわりの設備が充実しています。シンクは水跳ねの音を軽減する「サイレントシンク」を採用し、排水口は自動給水型のディスポーザーが設置され調理時に出る生ゴミをカッターで粉砕処理します(※生ゴミの種類によっては処理できないものがあります)。さらに、引き出して使うことができる、機能美あふれるシングルレバーの水栓を採用しています。ビルトイン型の浄水器も設置されており、機能的かつ衛生的な水回りとなっています。

ガラストップ3口コンロ

コンロはドイツ・ショット社製の内炎式3口コンロを採用しています。。セラミックガラストップですので、汚れに強くお手入れも簡単です。また、コンロの上に設置されたレンジフードはデザイン性・機能性に優れたデザインとなっており、油の飛び散りを防ぎます。

ビルトイン食器洗い乾燥機

食器洗浄機

※画像はイメージです。

スチーム洗浄機能で汚れを落とすスライドオープンタイプの食器洗い乾燥機を装備。後片付けの時間を短縮することができるうれしい装備です。

キッチン収納

小物類を整理整頓して収納できるスペースを豊富に備えています。また、システムキッチン吊戸棚は、万が一の地震の際でも扉が開かないよう配慮された耐震ラッチを採用しており、食器などの飛び出しを防ぎます。

バスルーム・洗面台

リフレッシュの時間を満喫できるバスルーム

バスタブはゆったりとしたサイズの人造大理石製を採用しています。お湯張りや湯温調整、追い焚きなどをワンタッチで操作できるフルオートバス機能が付いています。また、水圧によるマッサージ効果を持つマッサージシャワーヘッドを採用しており、転倒防止用の浴室手摺りなど、リラックスタイムをより楽しく、より安全に楽しめるよう設計されています。

浴室換気乾燥機

浴室のカビ対策や入浴前の予備暖房に効果を発揮する浴室換気乾燥機を設置しています。雨の日や夜間でも洗濯物を干すことができます。

洗面化粧室

ワイドなミラーが設置された洗面化粧台には、左サイドに収納スペースを備えており、小物の整理に便利です。また、タオルやサニタリー小物の収納に便利なリネン庫も設置されています(※一部住戸を除く)。

ACCESS アクセス

2駅4路線の利用で
都心各地へ
短時間でアクセス可能

最寄り駅は都営三田線、東京メトロ南北線「白金台」駅とJR山手線、東急目黒線「目黒駅」で、どちらも徒歩9分の距離にあります。徒歩10分圏内で4路線を使用することができ、JR「渋谷」駅へは約5分、都営三田線「大手町」駅までは約14分でアクセスすることが可能。都心の各地へ短時間で到着できる大変便利な立地です。

こちらでは、都営三田線、東京メトロ南北線「白金台」駅と、JR「目黒駅」から主要エリアへの所要時間を紹介いたします。

掲載の所要分数は日中平常時のもので、乗り換え・待ち時間等は含みません。
また時間帯により異なる場合があります。

鉄道

都営三田線、東京メトロ南北線「白金台」駅
都営三田線、東京メトロ南北線「白金台」駅

「白金台」駅からのアクセス

  • 「大手町」駅
    都営三田線「白金台」駅から「大手町」駅まで直通で約14分です。
  • 「溜池山王」駅
    都営三田線「白金台」駅から「溜池山王」駅まで直通で約9分です。
  • 「銀座」駅
    都営三田線「白金台」駅から「日比谷」駅で日比谷線に乗り換えます。「銀座」駅まで約15分です。
JR「目黒」駅
JR「目黒」駅

「目黒」駅からのアクセス

  • 「六本木」駅
    JR山手線利用「恵比寿」駅で東京メトロ日比谷線に乗り換え約9分です。
  • 「渋谷」駅
    JR「目黒」駅から「渋谷」駅まで直通で約5分です。
  • 「新宿」駅
    JR「目黒」駅から「新宿」駅まで直通で約12分です。
  • 「新橋」駅
    JR「目黒」駅から「新橋」駅まで直通で約16分です。

タクシー

タクシー

※画像はイメージです。

行き先 所要時間
「品川」駅 約12分
「霞ヶ関」駅 約12分
「六本木」駅 約13分
「銀座」駅 約13分
「渋谷」駅 約16分
「東京」駅 約16分
「新宿」駅 約18分

所要時間は道路事情により、実際と異なる場合があります。

バス

「上大崎」バス停
「上大崎」バス停

白金台レジデンスの近くにあるバス停は、都営バス「上大崎」バス停です。「目黒駅前」バス停から大井競馬場をつなぐ品93系統、「目黒駅前」バス停から「新橋駅前」バス停をつなぐ橋86系統、そして「目黒駅前」バス停から「千駄ヶ谷駅前」バス停をつなぐ黒77系統の、3路線を利用することができます。

空港

空港

※画像はイメージです。

白金台レジデンスの最寄り駅JR「目黒」駅は、複数の路線が乗り入れしており空港や新幹線へもアクセスしやすくスムーズな移動が可能です。

羽田空港へのルート

➀電車

JR山手線利用で「品川」駅へ。そこから京急本線快特に乗り換えます。所要時間は約27分です。

②タクシー

所要時間は約27分です。

③リムジンバス

白金台レジデンスから徒歩17分(約1,300m)のところにある「シェラトン都ホテル東京」から羽田空港行きのリムジンバスが利用できます。所要時間は約50分です。

成田空港へのルート

➀電車

都営三田線利用で「三田」へ。そこから都営浅草線エアポート快特に乗り換えます。所要時間は約88分です。

②タクシー

所要時間は約68分です。

③リムジンバス

白金台レジデンスから徒歩17分(約1,300m)のところにある「シェラトン都ホテル東京」から成田空港行きのリムジンバスが利用できます。所要時間は約120分です。

新幹線発着駅

「東京」駅までのアクセス

JR山手線の利用で「東京」駅まで約21分で到着します。
タクシーなどの車を使った移動は、約16分です。

「品川」駅までのアクセス

JR山手線の利用で「品川」駅まで約8分で到着します。
タクシーなどの車を使った移動は、約11分です。

LIFE
INFORMATION 周辺の施設・店舗情報

日々の暮らしに欠かせない
商業施設が充実、
歴史と文化を
感じさせる施設も

白金台レジデンスの周辺には、スーパーやコンビニといった日々の暮らしに欠かせない商業施設が充実。また、最寄り駅である「目黒」駅周辺には大規模なショッピングモールや個性的な個人店、バラエティに富んだ飲食店などが建ち並びます。また、マンション周辺には緑豊かな公園や美術館なども多数あり、文化的な日々を送ることができるでしょう。

商業施設、商店街

いなげや白金台店(徒歩6分/約450m)

いなげや白金台店
いなげや白金台店

白金台レジデンスに最も近いスーパーマーケット。独自に開発したオリジナル商品も多数取りそろえており、良質な商品をお手頃な価格で購入することができます。営業時間は9時30分から22時となっています。

ファミリーマート 自然教育園前店(徒歩4分/約290m)

ファミリーマート 自然教育園前店
ファミリーマート 自然教育園前店

白金台レジデンスに最も近いコンビニエンスストアです。

東急ストア 目黒店(徒歩10分/約800m)

東急ストア 目黒店
東急ストア 目黒店

「目黒」駅から徒歩2分の距離にあるスーパーマーケットです。平日は9時から23時まで、休日は9時から22時まで営業しています。2階にはバラエティショップのダイソーやホームドライ(クリーニング店)が入っています。

アトレ目黒1(徒歩10分/約750m)

アトレ目黒1
アトレ目黒1

JR「目黒」駅に隣接する大型ショッピング施設。地上6階、地下2階の建物では食料品や衣料品はもちろん、アクセサリーやコスメ、ドラッグストア、カフェ・レストランなど様々な店舗が営業しています。

自然、公園

品川区立池田山公園(徒歩3分/約220m)

品川区立池田山公園
品川区立池田山公園

旧岡山池田藩の下屋敷跡を整備して昭和60年(1985)に開園した品川区立の鑑賞型公園です。高低差を生かした池泉回遊式庭園で、高台部は遊戯・休憩ゾーン、低地部は回遊ゾーンとなっています。梅や椿、つつじ、花菖蒲、紫陽花、紅葉など四季折々の花が楽しめる公園として区民に親しまれています。

ふれあいガーデン「和」(徒歩7分/約500m)

ふれあいガーデン「和」
ふれあいガーデン「和」

NTT東日本関東病院の敷地内にある一般にも開放されている庭園で、入院患者や職員だけでなく、近隣の人たちも利用する憩いの場となっています。毎年11月頃になると紅葉も楽しめます。

暮らし、病院

品川区目黒サービスコーナー(戸籍住民課分室)(徒歩7分/約500m)

品川区目黒サービスコーナー
品川区目黒サービスコーナー

住民票の写しの発行や印鑑証明登録、マイナンバーカードの各種手続きができる出張所です。

NTT東日本関東病院(徒歩10分/約750m)

NTT東日本関東病院
NTT東日本関東病院

前身は1952年(昭和27年)に開院した関東逓信病院で、当時は日本電信電話公社の職域病院でしたが、1986年に保険医療機関の指定を受け、一般に開放されました。高度な医療提供が可能な急性期医療機関で、現在は地域の中核病院としての役割も担っています。

東京大学医科学研究所附属病院(徒歩12分/約900m)

東京大学医科学研究所附属病院
東京大学医科学研究所附属病院

1892年(明治25年)に北里柴三郎が設立した大日本私立衛生会附属伝染病研究所の付属病室が前身の、国内唯一の国立大学の研究所附属病院です。難病・感染症・がんなどの高度先進医療に特化した特定機能病院として、先端的医療の研究と実施、そして地域医療への貢献を行っています。

博物館・美術館・仏閣

東京都庭園美術館(徒歩10分/約800m)

東京都庭園美術館
東京都庭園美術館

東京都庭園美術館の本館は、1933年に皇族朝香宮家の邸宅として建てられ、1983年に美術館として開館しました。フランスのアール・デコ様式を取り入れた建築が特徴で、2015年に国の重要文化財に指定されています。庭園には日本庭園と芝生の前庭があり、四季折々の風景が楽しめます。

国立科学博物館附属 自然教育園(徒歩8分/約600m)

国立科学博物館附属 自然教育園
国立科学博物館附属 自然教育園

大都市・東京の中心部にあって今なお豊かな自然が残る貴重な森林緑地です。園内には四季にわたって様々な草花、動物、昆虫などの生き物が観察できるよう整備されており、児童・生徒・学生の校外学習や、入園者を対象とした日曜観察会、自然史セミナーなどが開催されています。

隆崇院(徒歩9分/約650m)

隆崇院
隆崇院

1669年に増上寺の山下谷に創建された浄土宗の寺院で、1904年に現在地へ移転しました。本堂(1962年竣工)には、日本画家・伊東深水らが描いた天井絵があり、中央に「牡丹唐獅子図」が配置されています。墓地には伊東深水とその子・万耀が眠り、また、日本の椅子製作の創始者・古屋豊吉の墓と「本邦椅子製造元祖」の碑もあります。

荏原 畠山美術館(徒歩12分/約900m)

荏原 畠山美術館
荏原 畠山美術館

荏原 畠山美術館は、日本、中国、朝鮮の古美術品を展示する私立美術館です。創立者の畠山一清氏は実業家であり、美術品の蒐集に努めました。昭和初期に白金猿町に私邸「般若苑」を造営し、戦後も茶道具や能装束を収集。1964年に畠山記念館を開館し、茶の湯文化の発信に貢献しました。2024年に「畠山記念館」から「荏原 畠山美術館」へと名称を変更。茶の湯の文化を広める美術館として運営されています。

松岡美術館(徒歩12分/約950m)

松岡美術館
松岡美術館

実業家・松岡清次郎氏が約半世紀をかけて全世界から集めたコレクションを展示する私設美術館です。開館以来、所蔵品のみの展示が行われており、清次郎の審美眼にかなった陶磁、絵画、彫刻、考古美術の作品が展示されています。

幼稚園、保育園、学校

学校法人 白金幼稚園(徒歩8分/約600m)

学校法人 白金幼稚園
学校法人 白金幼稚園

品川区立第三日野小学校(徒歩4分/約300m)

品川区立第三日野小学校
品川区立第三日野小学校

品川区立日野学園(徒歩17分/約1,300m)

品川区立日野学園
品川区立日野学園

頌栄女子学院 中学校・高等学校(徒歩13分/約1,000m)

頌栄女子学院 中学校・高等学校
頌栄女子学院 中学校・高等学校

明治学院高等学校(徒歩15分/約1,200m)

明治学院高等学校
明治学院高等学校

清泉女子大学(徒歩19分/約1,500m)

清泉女子大学
清泉女子大学

名所

目黒川の桜並木

目黒川
目黒川

都内有数のお花見スポットである目黒川。川の両岸には約800本のソメイヨシノを中心とする桜並木が整備され、桜が咲く時期には大勢の花見客でにぎわいます。

まとめ

都市の中にあって“静謐”な
住環境を創出する
低層レジデンス

白金台レジデンスは都心にありながら、豊かな自然に囲まれた稀有な邸宅地に建つレジデンスです。山手線内側の第一種低層住居専用地域という限られた場所であり、歴史と伝統を受け継ぐこの場所は、落ち着いた住環境を住む人に提供します。

周辺環境との調和と住む人の心地よさを追求した建物は、洗練されたデザインと高品質な建材、開放的な吹き抜け構造、一邸一邸主義に基づき、21邸それぞれに異なるオンリーワンの仕様を採用。低層住宅ならではの魅力が随所に感じられます。都心ならではの利便性と喧噪から距離を置いた静謐な住環境、白金台レジデンスならば、そのどちらもかなえることができるでしょう。

白金台レジデンス

駅徒歩 不動産の表示に関する公正競争規約の改正(2022年9月1日)により、交通利便情報が販売中のものと異なる場合がございます。

山手線「目黒」駅 徒歩9分

築年月

2008年1月

総戸数

21戸

階数

地上4階 地下1階