大和ハウス工業 ディーグランセ
南青山ハイヴァリー
Concept 青山通りと外苑東通りが交差する青山一丁目交差点から一歩奥、建築家 新井千秋氏が手がけた桂離宮を髣髴とさせるプロポーション、独特の形状をした窓と、打ちっぱなしにされたコンクリートで構成、卓抜な空間構成

ディーグランセ南青山ハイヴァリー

東京メトロ銀座線「青山一丁目」駅 徒歩2分

天井高約3m、日本のほとんどのマンションが
経験したことのないスケール

地上9階、総戸数13戸

2025.04.11 公開

LOCATION ロケーション

緑溢れる青山の伝統は、
国際的かつ一流。

「青山一丁目」駅
「青山一丁目」駅

ディーグランセ南青山ハイヴァリーは、東京都港区南青山にある高級分譲マンションです。東京メトロ銀座線・半蔵門線・都営大江戸線の交わる「青山一丁目」駅まで徒歩2分の好立地で、ほかにも東京メトロ銀座線「外苑前」駅(徒歩7分)、東京メトロ千代田線「乃木坂」駅(徒歩10分)の3駅4路線を利用可能です。

青山という土地名の由来は、徳川家康の重臣・美濃郡上藩青山家の青山忠成が、天正19年に下屋敷を設けたことからきています。明治以降、青山は日本の進化と進歩の最先端をいく街へと成長しました。1904年には三宅坂と青山4丁目を結んだ路面電車が開通し、1938年には表参道と渋谷の間に日本初の地下鉄が開通しています。

表参道ヒルズ
表参道ヒルズ

南青山エリア一帯は、都心のなかでもひときわ国際的な文化を感じられる街です。数々の外資系企業がオフィスを構え、表参道周辺にはヨーロッパを代表するブランドや名店が軒を連ねています。

1964年に開催された東京オリンピックでは、隣接する国立競技場をメイン会場に開催されたため、青山は国際文化都市として世界中に認知されるようになりました。今日の青山も、世界で活躍する日本人はもちろん、日本で活躍する外国人の心を惹きつける街となっています。

最寄りである東京メトロ「青山一丁目」駅周辺にも、人気の飲食店や落ち着いて作業ができるカフェなどが点在しています。外に出て息抜きをしたり、食事を楽しんだり、充実した暮らしを実現できます。

明治神宮外苑いちょう並木
明治神宮外苑いちょう並木

好アクセスの立地でありながら、周辺は都心でも珍しい豊かな緑に囲まれている環境です。
赤坂御用地、神宮外苑、青山霊園、明治神宮から代々木公園へと連なるグリーンベルト。その中心にあるのが、南青山です。森と緑に囲まれて、リフレッシュしながら豊かな毎日を送ることができます。

FEATURES 建物の特徴

名作たる所以は、
機能と美を両立する内装

ディーグランセ南青山ハイヴァリー 外観
ディーグランセ南青山ハイヴァリー 外観

ディーグランセ南青山ハイヴァリーは地上9階、総戸数13戸の都市型マンションです。デザイナーズマンションであるディーグランセ南青山ハイヴァリーの外観は、コンクリート打ちっぱなしや独特の形状の窓が胸を打つインダストリアルな佇まい。特徴的で目を引く外観のみならず、建物内部の細部に至るまで、デザイナーの細部まで計算されたデザインが施されています。

24時間のフロントサービスや、天井高3m(一部3.5m)の開放的な居住環境など、ラグジュアリーな暮らしを求める方にうれしい設備が整います。

緑が多く国際色豊かな南青山に位置しており、利便性はもちろん、洗練された落ち着きのある暮らしが実現します。従来から日本の最先端を切り拓いてきた青山という立地ならではの環境が整い、最寄りの「青山一丁目」駅まで徒歩2分でどこへでもアクセスしやすいのが魅力です。

コンセプト・デザイン

ディーグランセ南青山ハイヴァリー 外観
ディーグランセ南青山ハイヴァリー 外観

ディーグランセ南青山ハイヴァリーを手掛けたのは、気鋭の建築家・新居千秋氏。20世紀を代表する建築家であるルイス・カーンに師事した同氏が、「桂離宮」をイメージして和風と西洋文化の粋を取り入れて設計。
その趣きは芸術作品のようでありながら、人の住む場所として細やかで丁寧な配慮が行き届く、格調高い建物です。

ディーグランセ南青山ハイヴァリー 正面
ディーグランセ南青山ハイヴァリー 正面

窓面の構成は、住む人の「内部の視線」、内部空間を構成する建物の「構造」、外側を覆う「外観」という三重のレイヤードを施したデザインにより、快適な空間と景観の美を両立しています。

外観デザインのためならず、住む人が外を見る目線で配置された窓。コンクリートの打ちっぱなしにより印象づけられた建物のプロポーションは、窓の大きなフレームがリズミカルであるとともに、細かい内窓やバルコニーの手すりにより、全体が調和して美しいアンサンブルを奏でています。

日本のほとんどのマンションが経験したことのないスケールで、空間の広さを実現しています。居室の天井高は約3.0mで、もっとも高いところは約3.5m。最上階住戸では約8.0mにも及びます。エントランスロビーやラウンジは3.6m、共用エレベーターは2.4mと、ゆとりのある天井高により開放的な住まいとなっています。

建物構造

 

TWFSーSRC構造

ディーグランセ南青山ハイヴァリーでは、空間の自由度を最大限確保するため、柱や梁の張り出しが少ないTWFSーSRC構造が採用されています。
従来のRCラーメン構造では柱や梁で建物を支えるのに対し、TWFS(厚肉床壁構造)ーSRC(鉄骨鉄筋コンクリート造)構造では、高品質な壁や床が建物を支えています。
支柱や梁の張り出しが少ないため間取りの自由度が増し、室内空間のデザインも容易に。家具のレイアウトや設備の変更もしやすいのが特徴です。

耐震性能は従来の1.25倍

ディーグランセ南青山ハイヴァリーは耐震性能にも優れた構造です。
構造躯体としては、耐震設計基準強度33N/m㎡のコンクリートが採用されており、「住宅の品質確保に関する法律」の「住宅性能表示制度」に基づいた耐震等級は2で、建築基準法に定められる耐震性能の約1.25倍の耐震性を持ちます。防災避難拠点となる公共施設や官庁施設と同程度の強度で、いざという時にも安全な住まいです。

プライバシーに配慮した外壁や床

ディーグランセ南青山ハイヴァリー・住戸内の床や壁は、遮音性や強度に優れ、プライバシーに配慮した設計となっています。
スラブ厚約380mmの中空ボイドスラブ工法を採用した床は、強度を担保しながらも、小梁のない開放的な住空間を実現しています。二重床・二重天井構造と、壁厚400mmの外壁・戸境壁により、プライバシーが守られた安心な生活を送ることができます。

セキュリティ

24時間有人防犯管理

ディーグランセ南青山ハイヴァリーの館内には、年末年始・祝日以外24時間フロントマン(管理員)が常駐し、生活を見守りサポートしてくれます。さまざまなフロントサービスも付帯しています。

ホームサット24

管理会社である(株)ダイワサービスの24時間遠隔管理システム「ホームサット24」が導入されています。
緊急事態には、各住戸内や共用部分から、異常信号を電話回線によって警備会社のガードセンターへ自動転送します。365日24時間対応なので、いつでも安心です。

防犯カメラ・防犯センサー

防犯カメラ

※画像はイメージです。

エレベーターを含む共用部に防犯カメラが6台設置されています。さらに、各住戸の玄関ドアと窓の開口部にも防犯センサーが設置されています(一部設置されていない箇所あり)。

ディンプル式リバーシブルシリンダーキー&
ダブルロック

強固なピッキング対策を施された、複雑で困難なディンプル式リバーシブルシリンダーキーのダブルロックが採用されています。

スイッチ式サムターン&鎌デッド錠

サムターン回し(ドアに穴を開け専用工具を使って侵入する手口)対策として、玄関ドアの鍵穴にはスイッチ式サムターンが採用されています。
また、バール等を使ったこじ開けに対しても強度を誇る鎌デッド錠もついており、玄関の安全対策も万全です。

自動録音機能TVモニター付インターホン

インターホンでは、TVモニターにより来訪者を音声と映像で確認し、エントランスのドアを遠隔解錠可能です。自動録音機能により、留守中の来訪者も確認できます。

COMMON AREA 共用部

和の息遣いを感じるひと時

ディーグランセ南青山ハイヴァリーの共用部であるエントランスは、目に入るものすべてがハイエンドな仕上がりに。ゆったりと待合ソファーに腰掛けると目に入る庭園は、和の心を思い出させるようなギミックに満ちています。

住む人も訪れる人も、安心して頼れるフロントサービス付きで、24時間不便なく過ごせます。

共用施設

エントランス「玉海の間」

ディーグランセ南青山ハイヴァリー エントランス
ディーグランセ南青山ハイヴァリー エントランス

「玉海の間」と名付けられたエントランスの床には、深い海をイメージしたチャイニーズ・オイスター・ストーンが敷き詰められています。天然木の壁は昇る太陽をイメージした赤いデザインです。
エントランスの窓からは、シャラやモミジなど日本の懐かしい情景を呼び起こす庭園を見ることができます。エントランスで待つ人は「静慮」へと誘われるでしょう。

サービス

24時間フロントサービス

コンシェルジュサービス

※画像はイメージです。

フロントにはフロントマン(管理員)が常駐。年末年始・祝日以外、24時間フロントサービスを受けることができます。
メッセージ受付や伝言などのインフォメーションサービス、ゴミの回収、クリニック紹介サービス、宅配便の預かりや発送などのポストサービス、ゲストアウトサービスなど、充実したサービスが提供されています。

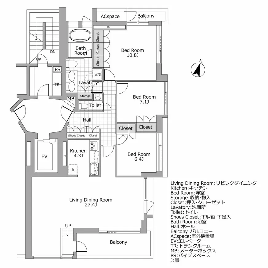
FLOOR PLAN 間取り図一例

デザインと機能が一体の
プレミアムな間取り

ディーグランセ南青山ハイヴァリー 間取り図例
ディーグランセ南青山ハイヴァリー 間取り図例
ディーグランセ南青山ハイヴァリー 間取り図例
ディーグランセ南青山ハイヴァリー 間取り図例

ディーグランセ南青山ハイヴァリーは、洗練された都市型ライフスタイルを叶える贅沢な間取りが魅力です。広々としたリビングダイニングルームは、開放感あふれるバルコニーと一体化し、上質なくつろぎを提供します。

さらに、部屋ごとに豊富な収納スペースが確保されており、一部にはウォークインクローゼットも完備。リビングルームを見渡せるキッチンや、ホテルライクなバスルーム・洗面スペースが、快適で機能的な暮らしを実現します。

INSIDE THE ROOM 室内

合理的かつデザインに
優れるハイエンド空間

すべての居室が、使用する素材から機能まで徹底的にこだわり抜かれたハイエンド空間です。

玄関ホール、洗面、トイレの床はスベボロイヤル大理石、フローリングはビルマチーク、ドアや建具は積層突板仕上げ。壁紙は、サイザル麻や亜麻の繊維を漉き込んだ自然な風合いの不織布が採用されており、どこを見ても息を呑む美しさが魅力です。

デザインのみならず、暮らしやすさを重要視した設備や動線設計も抜群と言えます。

室内仕様

リビングダイニングルーム・バルコニー

リビングダイニングルームはバルコニーと接続しており、暮らしの中心となる開放的な空間を演出します。3m以上の高い天井に、美しく仕切られた空間、広々とした奥行きなどにより、圧倒的な生活空間容積を実現。美しいウッドデッキのバルコニーの高さや位置は、「内部の視線」を熟慮して設計されており、外の風にあたるリフレッシュタイムの質を高めます。

キッチン

システムキッチン収納

※画像はイメージです。

キッチンカウンターの奥行きは約888mm(一部を除く)と広く、黒御影石がエレガントで高潔な印象を演出します。

機能性・デザインともにすぐれたキッチンは設備も充実。AEG社製のハイカロリーガスコンロとガスオーブン、Miele社製の食器洗浄機、キッチンディスポーザーがビルトインで完備されています。

ワークスペースとして十分に広々した空間で、快適にクッキングを楽しめます。

ベッドルーム

約10畳のベッドルームは、「目覚めた時に何が目に入るか」を主眼に、快適な睡眠環境が追求されています。このベッドルームでは、約3mの天井に達する全面の窓と、そこにかけられたカーテンから溢れる陽光を浴びながら朝を迎えられます。

エキストラルーム

エキストラルームは、サッシ高約3.5mの窓からゆるやかに光が差し込む特別な空間です。

独立したプライベートルームとして機能しますが、可動式間仕切りによってリビングダイニングルームとつながっています。2つの可動式間仕切りを開ければ、ダイニングからベッドルームまで約18mの空間が見通せる特別な空間となります。

エキストラルームにはエアコンが完備され、木製ルーパーで隠された熱交換方式24時間換気により、常に快適な空気が保たれます。

クローゼット

ウォークインクローゼット

※画像はイメージです。

すべての個室にクローゼットが完備されています。大きくて使いやすいシステム収納から、ウォークインクローゼット、シューズクローゼットなど、収納には困りません。毎日袖を通す衣服も大切なコレクションも、機能的かつ美しく管理できます。

バスルーム・パウダールーム

バスルーム・パウダールームは、大理石をラグジュアリーにあしらった美しいデザイナーズ空間に仕上げられています。洗面化粧台はマロンブラウン大理石で仕上げられています。

バスタブに座ったとき、立ってシャワーを浴びるとき、それぞれの「内部の視線」を意識した窓の配置にこだわった空間です。オーバーヘッドシャワーも付いており、気分に合わせて快適なシャワータイムを過ごすことができます。
パウダールームには、AEG社製ドラム式洗濯機も備え付けられています。

ACCESS アクセス

青山一丁目を拠点に
どこへも快適なアクセス

最寄り駅は東京メトロ銀座線「青山一丁目」駅で、徒歩2分の距離にあります。
さらに、東京メトロ千代田線「外苑前」駅も徒歩7分、東京メトロ千代田線「乃木坂」駅も徒歩10分と、複数の路線が利用可能です。
東京の各主要エリアへ直通アクセスができ、新宿駅や東京駅、渋谷駅へも短時間で到着できます。通勤・通学に限らず休日のお出かけにも大変便利です。
こちらでは、「青山一丁目」駅と「外苑前」駅からの主要エリアへの所要時間を紹介いたします。

掲載の所要分数は日中平常時のもので、乗り換え・待ち時間等は含みません。
また時間帯により異なる場合があります。

鉄道

「青山一丁目」駅
「青山一丁目」駅

「青山一丁目」駅からのアクセス

  • 「六本木」駅
    東京メトロ銀座線で乗り換えなくアクセスできます。所要時間は約7分です。
  • 「新宿」駅
    都営大江戸線で乗り換えなくアクセスできます。所要時間は約12分です。
  • 「銀座」駅
    東京メトロ銀座線で乗り換えなくアクセスできます。所要時間は約14分です。
  • 「渋谷」駅
    東京メトロ銀座線で乗り換えなくアクセスできます。所要時間は約10分です。

「外苑前」駅からのアクセス

  • 「六本木」駅
    東京メトロ銀座線で「青山一丁目」駅まで行き、都営大江戸線に乗り換えます。所要時間は約10分です。
  • 「新宿」駅
    東京メトロ銀座線で「赤坂見附」駅まで行き、東京メトロ丸の内線に乗り換えます。所要時間は約17分です。
  • 「銀座」駅
    東京メトロ銀座線で乗り換えなくアクセスできます。所要時間は約11分です。
  • 「渋谷」駅
    東京メトロ銀座線で乗り換えなくアクセスできます。所要時間は約4分です。

タクシー

タクシー

※画像はイメージです。

行き先 所要時間
「六本木」駅 約6分 (約1,400m)
「渋谷」駅 約9分 (約2,900m)
「銀座」駅 約13分 (約4,400m)
「新宿」駅 約15分 (約4,900m)

所要時間は道路事情により、実際と異なる場合があります。

バス

バス

※画像はイメージです。

マンションから徒歩2分の位置に、バス停「青山一丁目駅前」があります。都バス品97系統で、「品川」駅や「信濃町」駅、「新宿」駅に簡単にアクセスできます。また、徒歩1分のところに港区コミュニティバス「ちぃばす」のバス停「青山二丁目交差点」があり、「赤坂見附」駅や「表参道」駅、六本木ヒルズなど、港区内の主要施設へ便利に移動できます。

空港

空港

※画像はイメージです。

ディーグランセ南青山ハイヴァリーは、国内外を問わずアクセス良好なことが魅力です。最寄り駅である「青山一丁目」駅やマンションからの移動ルートを紹介します。

羽田空港へのルート

①電車

「青山一丁目」駅から都営大江戸線で「大門」駅まで行き、都営浅草線のエアポート快特 羽田空港第1・第2ターミナル行に乗り換えます。合計所要時間は約45分です。

②タクシー

都道319号を走行し、首都高速都心環状線に入ります。その後、首都高速湾岸線を都道294号まで走行し、首都高速11号台場線を進みます。距離は約20000mで、交通状況にもよりますが、約30分ほどで到着します。

③リムジンバス

マンションから徒歩23分の「グランドハイアット」バス停から羽田空港行きのバスが出ています。乗車時間は約40分です。

成田空港へのルート

①電車

「青山一丁目」駅から東京メトロ銀座線で「上野」駅まで行き、「京成上野」駅まで歩きます。「京成上野」駅から京成スカイライナーに乗ります。合計所要時間は約84分で到着します。

②タクシー

首都高速10号晴海線を走行し、東関東自動車道を経由します。距離は約73900mで、交通状況にもよりますが、約75分ほどで到着します。

③リムジンバス

マンションから徒歩23分の「グランドハイアット」駅バス停から成田空港行きのバスが出ています。乗車時間は約120分です。

新幹線発着駅

「東京」駅へのルート

「青山一丁目」駅から東京メトロ銀座線を利用し、「赤坂見附」駅で東京メトロ丸ノ内線に乗り換えます。所要時間は約17分です。
タクシーなどの車移動の場合、所要時間は約12分です。

「品川」駅へのルート

「青山一丁目」駅から東京メトロ銀座線を利用し、「新橋」駅でJR東海道線に乗り換えます。所要時間は約24分です。
タクシーなどの車移動の場合、所要時間は約20分です。

LIFE
INFORMATION 周辺の施設・店舗情報

健やかで文化的な、
大人の青山ライフ

ディーグランセ南青山ハイヴァリーが位置する青山は、利便性はもちろん、一流を身近に感じられるエリアです。日本の外資系企業で働く外国人も多く、質が高く洗練された商品や飲食店がたくさんあります。

江戸時代から日本の主要拠点であったことを誇る歴史的背景もあり、青山迎賓館や明治神宮外苑など、世界中の人がわざわざ足を運ぶスポットも多い青山。どこへも徒歩で行くことができ、特別な体験も生活の一部へと変化していきます。

商業施設、商店街

青山ツイン(徒歩4分/約280m)

青山ツイン
青山ツイン

マンションから徒歩4分に位置する、「青山一丁目」駅前のショッピングモール「青山ツイン」。飲食店やカフェなどで食事を楽しめるほか、ドラッグストアやワインショップ、アパレルショップなどでの買い物を楽しめます。歯科や皮膚科など医療施設も同居しているため、かかりつけのクリニックも探せます。

PASSAGE AOYAMA(徒歩12分/約900m)

PASSAGE AOYAMA
PASSAGE AOYAMA

マンションから徒歩12分の「PASSAGE AOYAMA」は、南欧を表現したくつろぎのショッピングモールです。
洗練された飲食店や観葉植物専門店、ワークアウトスタジオ、サウナなどがあり、暮らしをさらに彩る体験が可能です。

自然、公園

区立青葉公園(徒歩3分/約240m)

区立青葉公園
区立青葉公園

徒歩3分に位置する公園です。子どもが遊べるブランコや滑り台、ジャングルジムなどの遊具が揃う小規模な公園です。4本の大きなケヤキの木が、涼やかな木陰を作ります。

明治神宮外苑(徒歩11分/約850m)

明治神宮外苑
明治神宮外苑

1926年から続く歴史を誇る明治神宮外苑も、徒歩11分でアクセスできます。現在では、軟式野球やテニス、ゴルフ、アイススケートなど多くのスポーツを楽しめる施設があるだけでなく、日本文化の普及を目的に、茶道や華道、書道教室も一般向けに開講されています。聖徳記念絵画館やレストランもあり、日常的な散策にうってつけです。

暮らし、インフラ

青山杵渕クリニック(徒歩3分/約190m)

青山杵渕クリニック
青山杵渕クリニック

徒歩3分に位置する青山杵渕クリニックでは、現代医学的治療と漢方治療とを融合した治療を受けることができます。現代医学的な検査では問題が見つからないのに身体が不調な人や、現代医学的な治療が合わない人が通いやすい医療機関です。

国立新美術館(徒歩17分/約1,300m)

国立新美術館
国立新美術館

国立新美術館は、「森の中の美術館」をコンセプトとして六本木に開館した美術館です。展示スペースは国内最大級の広さを誇っており、多彩な企画展や美術団体による展示が不定期に開催されます。ミュージアムショップやカフェ、レストラン、アートライブラリーなど、関連施設も充実しています。アートに浸りたい休日に最適な場所です。

港区立赤坂図書館(徒歩4分/約290m)

港区立赤坂図書館
港区立赤坂図書館

最寄りの図書館です。周辺のビジネス環境に対応した資料を数多く収蔵しており、趣味や教養も深められるような情報提供をめざす図書館です。登録団体が利用できる多目的ホールもあります。

幼稚園、保育園、学校

ヒーロー幼児園(徒歩9分/約650m)

ヒーロー幼児園
ヒーロー幼児園

港区立南青山保育園(徒歩4分/約300m)

港区立南青山保育園
港区立南青山保育園

港区立青山小学校(徒歩5分/約350m)

港区立青山小学校
港区立青山小学校

港区立青山中学校(徒歩5分/約400m)

港区立青山中学校
港区立青山中学校

イベント、お祭り

青山まつり

青山の4つの商店街によって作られる青山商店街連合会が主催しているイベントで、地元の学校や企業、地域の大使館が協力して運営しています。

「ふれあいインターナショナル」をテーマにさまざまな国の人との交流を深めるイベントや、パレードやマーケットが開催され、盛り上がりを見せています。老若男女問わず楽しめる地域密着型のイベントながら、国際交流が盛んな青山を体現するお祭りです。

乃木神社 季節の祭り

乃木神社
乃木神社

明治天皇の崩御時に忠誠心から自刃した乃木将校夫妻を祀った乃木神社には、1年を通してさまざまな催事や祭などの行事があります。乃木公園も併設されており、家族で参加できる催しが多数開催されます。

まとめ

青山で「名作に住む」
極上体験を。

歴史的かつ文化的な街、青山にたたずむ、建築家・新居千秋による"名作”ディーグランセ南青山ハイヴァリー。

東京メトロ銀座線「青山一丁目」駅から徒歩2分というロケーションは、都内の主要エリアへのアクセス良好。暮らしを彩る周辺施設では一流の商品やサービスにふれることが可能です。

建物は、耐震性やセキュリティも万全なデザイナーズマンションです。住む人の「内部の視線」や建物の「構造」、「外観」という三重のレイヤードが施されたデザインにより、快適な空間と景観の美を両立した稀有な建築物で、まさに「名作」と言えます。13世帯のためだけに24時間常駐するフロントサービスや、住戸内のそこかしこに配置されたラグジュアリー素材から、青山で送る快適な極上の暮らしを体験できます。

「名作に住む」一流の暮らしを求める方に最適な住まいです。

ディーグランセ
南青山ハイヴァリー

駅徒歩 不動産の表示に関する公正競争規約の改正(2022年9月1日)により、交通利便情報が販売中のものと異なる場合がございます。

東京メトロ銀座線
「青山一丁目」駅 徒歩2分

築年月

2006年3月

総戸数

13戸

階数

地上9階 地下1階階