三菱地所 パークハウス市谷仲之町 Concept 都心の丘で叶える 豊かで美しい暮らし

パークハウス市谷仲之町

都営新宿線 「曙橋」駅 徒歩3分

地上5階・総戸数47戸の中低層マンション

イタリアのブランド「カッシーナ・イクスシー」との
コラボレーション

2025.03.07 公開

LOCATION ロケーション

幹線道路から一歩奥まった場所にある
閑静な邸宅地

パークハウス市谷仲之町 外観
パークハウス市谷仲之町 外観

パークハウス市谷仲之町があるのは、江戸時代に武家地として栄えていた歴史を持つ「市谷仲之町エリア」です。靖国通りから一歩奥まった丘にあり、静かで過ごしやすい空間が広がっているのが特徴。都心部にありながらも閑静な邸宅地で、ゆったりと過ごすことが可能です。

曙橋駅
曙橋駅

最寄り駅である都営新宿線「曙橋」駅は、東京の主要都市へ抜群のアクセス性を誇ります。JR山手線の内側にある当駅からは、渋谷や青山、六本木など、さまざまな場所へ楽々移動が可能です。静かに暮らすだけでなく、都市機能もしっかり活用できるのが、市谷仲之町エリアの魅力です。

あけぼのばし商店街
あけぼのばし商店街

下町の風情が残る「あけぼのばし商店街」は、地域住民から愛され続けている存在です。スーパーやクリニック、薬局などが立ち並んでいます。
徒歩圏内で生活に必要なものがすべて揃う利便性は、住みやすさを実感できるポイントです。

FEATURES 建物の特徴

イタリアのブランドと
コラボレーションして
生まれた
スタイリッシュな外観

パークハウス市谷仲之町 エントランス
パークハウス市谷仲之町 エントランス

コンセプト・デザイン

パークハウス市谷仲之町は、イタリアのモダンファニチャア(現代的でおしゃれな印象のインテリア)のリーディングブランドである「カッシーナ」製品の輸入・販売を行っている「カッシーナ・イクスシー」とコラボレーションしています。

歴史ある市谷仲之町の景観を損なうことなく、末永く街の象徴となりうる存在になることをコンセプトとして、美しく品格のある外観デザインを創造しました。

ボーダータイルを基調として、打ち放しのコンクリート、アルミボーダーを織り交ぜたスタイリッシュな外観は、閑静な邸宅地である市谷仲之町にしっかり溶け込んでいます。

建物構造

センターにライトコートを配した住棟配置

建物のセンターにライトコート(採光を目的として作られる中庭)を設け、建物全体へ陽光を導く開放感のあるロの字型の住宅配置としました。また、全47戸のうち19戸を角部屋として設定。集合住宅が持つ魅力をそのままに、深いくつろぎのなかでの生活が実現できます。

全47戸のうち40戸が7.5m以上の間口を持つ
「ワイドスパン」

バルコニーなどの開口部が7.5m以上ある「ワイドスパン」を、全47戸のうち40戸で実現しています。丘の上ならではのやわらかな陽光や風を感じられるでしょう。

三菱地所独自の住宅性能表示システム「CHECK EYE’S」

パークハウス市谷仲之町は、住宅の設計や施工について客観的な基準で評価する「設計住宅性能評価書」の取得だけでなく、三菱地所独自の住宅性能表示システム「CHECK EYE’S」を採用しています。

  • 設計段階のCHECK EYE:設計住宅性能評価書を取得したうえで、三菱地所独自の性能評価書「CHECK EYE’S BOOK」を作成
  • 施工段階のCHECK EYE:同社のクオリティインスペクター(一級建築士)による品質管理と施工経過報告書「CHECK EYE’S REPORT」を契約者に提出
  • 完成時のCHECK EYE:信頼の証となる独自の住宅性能評価書「CHECK EYE’S DOCUMENT」を発行

二重床・二重天井

約180mm~280mmのコンクリートスラブの上に防振ゴムや吸音材を設置した二重床・二重天井を導入。上下階に優れた遮音性を発揮します。

断熱性と遮音性を高めた外壁・戸境壁

外壁のコンクリートには、内部に断熱材を施しました。また外壁は200mm、戸境壁には約180mm~200mmのコンクリート厚を確保。外部や隣接住戸から伝わる騒音や生活音をやわらげて、静かで快適な暮らしを実現しています。

断熱性に優れたペアガラス

開口部のすべてが、2枚のガラスの間に空気層をはさみ、気密性の優れたペアガラスです。冷暖房効率を向上し、湿気やカビの原因となる結露を防ぎます。

さや管ヘッダー方式

配管には、中間に接続箇所がなく、耐久性に優れた「さや管ヘッダー方式」を採用しています。ヘッダー(分岐部分)に点検口を設けることで、将来的なメンテナンスを容易に対応できるようにしました。

防災設備

耐震ラッチ

キッチンの吊戸棚の扉には、地震の揺れによって調理器具が落下することを未然に防ぐ「耐震ラッチ」を採用しています。

停電時に灯る保安灯

停電時に自動で廊下を照らし、足元の安全を確保する「保安灯」を用意。壁から取り外すことで、懐中電灯としても利用できます。

セキュリティ

セコムの24時間セキュリティ

防犯カメラ

※画像はイメージです。

不審者の侵入や火災、ガス漏れなど、万が一の異常が発生した場合には、オンラインシステムにより管理員室および、セコムのコントロールセンターに自動通報が入ります。状況を確認し、必要に応じて関係機関や緊急連絡先へ通報すると同時に、警備員や係員が現場へ急行します。

不審者の侵入を防ぐ防犯システム

すべての住戸の玄関扉、窓、掃き出し窓に、不審者の侵入を感知する防犯センサー(マグネットセンサー)を設置しています。不意の開口の際には警報音声を鳴らし、感知後約30秒で管理員室や警備会社へと通報されます。

監視カメラ

居住者の安全を守るために、エレベーターや駐輪場などの共用部に監視カメラ(ITV)を設置しています。ITVの画像を管理員室にて録画するなど、共用部の防犯性能を高めている点が特徴です。

ダブルロックの玄関錠

住戸の玄関ドアには、優れた防犯性能を誇るダブルロック機能のついた2wayロータリーシリンダー・リバーシブルキータイプを採用しています。

オートロック・TVモニター付きインターホン

エントランスはオートロックになっており、来訪者の顔と音声を各住戸内のTVモニター付インターホンで確認可能です。玄関前でも来訪者の情報が確認できるので、安全性に優れています。

COMMON AREA 共用部

都心での暮らしに
ゆとりを届ける
洗練された共用部

共用施設

エントランス

マンションの象徴となるエントランスには、アルミパネルとガラス素材や、上質な木材感が洗練された第一印象を与える、優雅なデザインを施しました。無駄な広さしつらえを排除し、あくまでも私空間、私時間を大切にできるような空間としています。

トランクルーム

建物地階には、全戸分のトランクルームを用意。ゴルフバッグやアウトドア用品などの大きな荷物もスッキリと収納できます。

駐車場

大型ハイルーフ車にも対応する、22台分の駐車場を確保しています。大切な愛車を雨風による痛みから守ります。

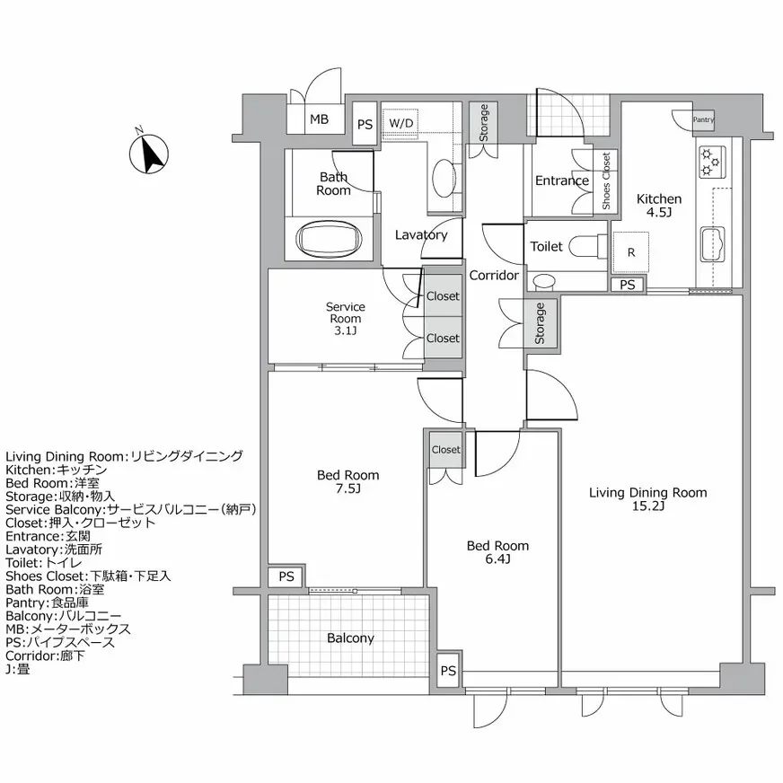
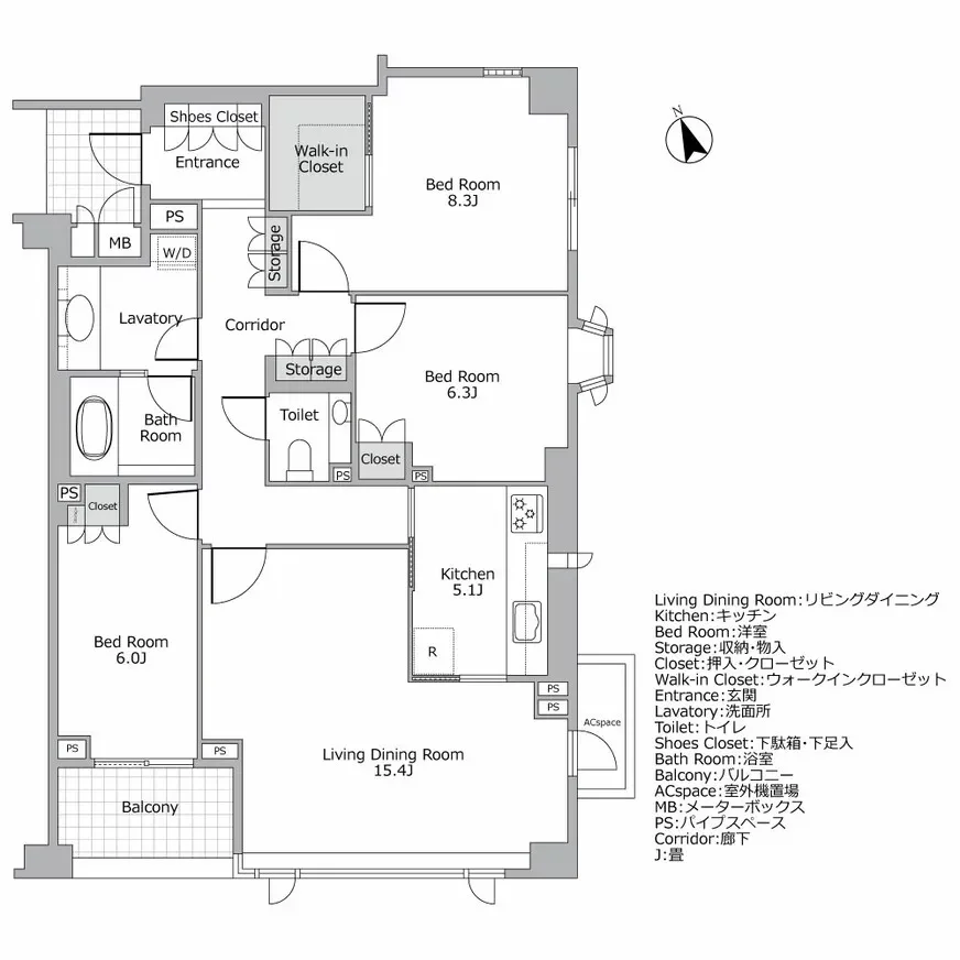
FLOOR PLAN 間取り図一例

1LDK~3LDKまで、
基本17タイプの
豊富なプランを用意

パークハウス市谷仲之町 間取り図例
パークハウス市谷仲之町 間取り図例
パークハウス市谷仲之町 間取り図例
パークハウス市谷仲之町 間取り図例

INSIDE THE ROOM 室内

カッシーナ・イクスシーの
感性が
暮らしのクオリティを高める

パークハウス市谷仲之町 レリーフ
パークハウス市谷仲之町 レリーフ

パークハウス市谷仲之町は、カッシーナ・イクスシーとのコラボレーションにより誕生しました。妥協のない空間コーディネートが、暮らしのクオリティを高めています。

室内仕様

エントランス

住まいの第一印象を伝える玄関は、室内の広がりを大切にした風格あるスペースにしています。4枚扉の下足入れが、玄関先のゆとりを醸し出しています。

ドイツ・グローエ社製の水栓金具

キッチン・バスルームおよび洗面化粧室の水栓には、ドイツ・グローエ社の製品を採用しています。デザインと機能性に優れている点が特徴です。

浄水器

キッチンには浄水器をビルトイン。安全でおいしい水を、いつでもたっぷり利用できます。

ドラム式全自動洗濯乾燥機

洗面化粧室には、ドラム式の全自動洗濯乾燥機を標準装備しています。スイッチひとつで、乾燥までスピーディーに実施。天候にかかわらず、いつでも洗濯が可能です。

TES式床暖房

リビング・ダイニングには、足元から部屋全体を暖める、TES温水床暖房を標準装備しています。騒音がなく、ホコリも出ないクリーンで健康的なシステムです。

常時接続のインターネット

24時間常時接続・定額制のインターネット環境を用意しています。

バリアフリーなバルコニー

居室とバルコニー間の掃き出し窓の床面を、可能な限りフラットに仕上げました。年配の方やお子さまのつまずきによる怪我の心配を減らした作りです。

低床タイプのユニットバス

つまずきによる転倒事故を防ぐために、浴室と洗面化粧室の段差がわずかな、低床タイプのユニットバスを採用しました。
浴槽脇の壁には手摺があるので、安心してバスタイムを楽しめます。

バスコール&トイレコール

浴室にはバスコール、トイレにはトイレコールを標準装備。万一の場合には、住宅情報盤、管理員室、警備会社に通報が入ります。

手摺下地の設置

玄関・洗面室・トイレの壁には、手摺が取り付けられるように、下地が組み込まれています。(一部住戸を除く)

ACCESS アクセス

4駅3路線が徒歩圏内
都心部へ快適な
アクセスを実現

パークハウス市谷仲之町の最寄り駅は、都営新宿線「曙橋」駅(徒歩3分)です。
他にも、以下の駅へのアクセス性が良く、都心部への快適な移動を実現しています。

  • 東京メトロ丸ノ内線「四谷三丁目」駅より徒歩10分
  • 都営大江戸線「牛込柳町」駅より徒歩11分
  • 都営大江戸線「若松河田」駅より徒歩11分

掲載の所要分数は日中平常時のもので、乗り換え・待ち時間等は含みません。
また時間帯により異なる場合があります。

鉄道

新宿駅

新宿駅
新宿駅

都営新宿線「曙橋」駅の2駅先が「新宿」駅です。所要時間は約3分です。

渋谷駅

渋谷駅
渋谷駅

都営新宿線で隣の「新宿三丁目」駅まで行き、東京メトロ副都心線に乗り換えます。
所要時間は約16分です。

大手町駅

大手町駅
大手町駅

都営新宿線で「神保町」駅へ行き、都営三田線へ乗り換えます。
所要時間は約12分です。

青山一丁目駅

青山一丁目駅
青山一丁目駅

都営新宿線で「九段下」駅へ行き、東京メトロ半蔵門線へ乗り換えます。
所要時間は約15分です。

六本木一丁目駅

六本木一丁目駅
六本木一丁目駅

都営新宿線で「市ヶ谷」駅まで行き、東京メトロ南北線に乗り換えます。
所要時間は約17分です。

タクシー

タクシー

※画像はイメージです。

行き先 所要時間
「新宿」駅 約11分
「渋谷」駅 約20分
「六本木」駅 約14分
「銀座」駅 約18分

所要時間は道路事情により、実際と異なる場合があります。

バス

バス

※画像はイメージです。

パークハウス市谷仲之町の最寄りのバス停は「市谷仲之町交差点」バス停で、徒歩4分です。「新宿」駅へは約17分、「渋谷」駅は約30分が目安です。時間帯によっては、平日・休日ともに1時間に5~6本運行しています。

空港

空港 首都圏

※画像はイメージです。

羽田空港へのルート

➀電車

「曙橋」駅から「神保町」駅へ移動し、都営三田線に乗り換えて「三田」駅へと向かいます。
「三田」駅から都営浅草線で「羽田空港第2ターミナル」駅へ。所要時間は約56分です。

②タクシー

所要時間は約40分です。

➂リムジンバス

リムジンバスに乗るためには、「新宿」駅へ向かいます。
「曙橋」駅から都営新宿線で「新宿」駅へ向かい、「バスタ新宿」バス停へ。所要時間は約1時間です。

成田空港へのルート

➀電車

「曙橋」駅から「馬喰横山」駅へ移動。2分歩くと都営浅草線「東日本橋」駅が見えます。
そこから、特急成田空港行きに乗車。所要時間は約1時間23分です。

②タクシー

所要時間は約1時間20分です。

➂リムジンバス

「バスタ新宿」バス停から出ているリムジンバスを利用します。所要時間は約1時間30分〜1時間50分です。

新幹線発着駅

「東京」駅へのアクセス

「東京」駅へは、まず「曙橋」駅から「小川町」駅へ移動します。
そこから徒歩5分で東京メトロ丸ノ内線「淡路町」駅へ。「淡路町」駅の2駅隣が「東京」駅です。所要時間は約20分です。
タクシーなどを使った車移動の場合は、約17分です。

「品川」駅へのアクセス

「曙橋」駅から「新宿」駅まで行き、JR山手線に乗って「品川」駅へ向かいます。所要時間は約38分です。
タクシーなどを使った車移動の場合は、約26分です。

LIFE
INFORMATION 周辺の施設・店舗情報

周辺施設が充実している
「曙橋」駅で
豊かな暮らしを

商業施設、商店街

あけぼのばし商店街(徒歩4分/約300m)

あけぼのばし商店街
あけぼのばし商店街

徒歩4分の位置にある「あけぼのばし商店街」には、多くの地域住民が足を運んでいます。
飲食店やスーパー、クリニックなど豊富な施設が入っており、日常的な買い物に便利です。

コモレMall(徒歩14分/約1,100m)

コモレ四谷
コモレ四谷

少し足を伸ばすと、大型商業施設の「コモレ四谷」が見えてきます。敷地面積17,900㎡の土地にはコモレMallという商業施設があり、スーパーや100円ショップなど、生活用品の購入に適した施設が立ち並んでいます。周辺を散歩するだけでも楽しめる、憩いの場です。

三徳 住吉店(徒歩5分/約350m)

三徳 住吉店
三徳 住吉店

東京・神奈川・千葉に展開しているスーパーの三徳です。プライベートブランド商品を展開しており、品揃えが豊富。
当日お届けサービスを利用すれば、買った商品を自宅まで届けてくれるので、お子さま連れでも安心です。

まいばすけっと曙橋駅前(徒歩4分/約260m)

まいばすけっと曙橋駅前
まいばすけっと曙橋駅前

イオングループが展開する食品スーパーです。あけぼのばし商店街にあり、23時まで営業しています。

セブンイレブン新宿曙橋東店
(徒歩2分/約130m)

セブンイレブン新宿曙橋東店
セブンイレブン新宿曙橋東店

パークハウス市谷仲之町から徒歩2分の場所には、セブンイレブンがあります。ちょっとした食品や飲料を購入するのに便利です。

自然、公園

仲之公園(徒歩2分/約130m)

仲之公園
仲之公園

仲之公園は緑が豊かで、芝生部分が設けられているなど、自然を感じられるスポットです。すべり台やブランコなどの遊具も充実しているので、子どもの遊び場としても活用できます。

住吉公園(徒歩5分/約350m)

住吉公園
住吉公園

シーソーやすべり台など、小さな子どもが楽しめる遊具がある公園です。小規模な公園ですが、ボール遊びができるフェンス付きの敷地もあります。

みずも児童遊園(徒歩5分/約350m)

みずも児童遊園
みずも児童遊園

「曙橋」駅のすぐ側にある、すべり台やブランコが設置されている小さな公園です。

加賀公園(徒歩10分/約750m)

加賀公園
加賀公園

石の山やグローブジャングルなど、アクティブに遊べる遊具がたくさんある公園です。緑が豊富なため、近隣住民のオアシスとして、多くの人が利用しています。

暮らし、インフラ

曙橋よつばファミリークリニック
(徒歩4分/約290m)

曙橋よつばファミリークリニック
曙橋よつばファミリークリニック

内科、小児科、アレルギー科など、多くの診療を受けられるクリニックです。
土曜日・日曜日診療にも対応しているので、平日は仕事で忙しい方でも通いやすいといえます。

牛込警察署(徒歩17分/約1,300m)

牛込警察署
牛込警察署

新宿大久保通り沿いにある警察署です。運転免許証の記載事項の変更などが行えます。

幼稚園、保育園、学校

ニチイキッズ曙橋保育園(徒歩7分/約500m)

ニチイキッズ曙橋保育園
ニチイキッズ曙橋保育園

アスク薬王寺保育園(徒歩7分/約500m)

アスク薬王寺保育園
アスク薬王寺保育園

新宿区立牛込仲之幼稚園・小学校
(徒歩5分/約400m)

新宿区立牛込仲之幼稚園・小学校
新宿区立牛込仲之幼稚園・小学校

新宿区立牛込第一中学校
(徒歩17分/約1,300m)

新宿区立牛込第一中学校
新宿区立牛込第一中学校

イベント、お祭り

あけぼのばし新酒はしご祭り

チケットを購入すれば、曙橋・牛込柳町エリアにある参加店舗の料理とお酒をペアリングで楽しめる、地域全体で行われる飲み歩きイベントです。

曙橋住吉町盆踊り大会

盆踊り大会には珍しく商店街の路上で開催される、市ヶ谷亀岡八幡宮の日(例年8月中旬)に行われる盆踊り大会です。市ヶ谷亀岡八幡宮のお祭り開催中に行われることもあり、多くの人で賑わいます。

まとめ

都会にある静寂の地
市谷中之町の魅力を
享受する

パークハウス市谷仲之町は、東京都新宿区という中心部にありながらも、静かで暮らしやすい邸宅地にある物件です。カッシーナ・イクスシーとコラボレーションしたスタイリッシュなデザインは、長く住んでも飽きることはありません。周辺にある商店街やスーパーなどの豊富な施設が、暮らしやすさを増長してくれます。
歴史ある市谷中之町エリアで快適な暮らしを実現したい方は、ぜひご検討ください。

パークハウス市谷仲之町

駅徒歩 不動産の表示に関する公正競争規約の改正(2022年9月1日)により、交通利便情報が販売中のものと異なる場合がございます。

都営新宿線「曙橋」駅 徒歩3分

築年月

2004年11月

総戸数

47戸

階数

地上5階 地下1階